Скачать Серия 3.818.9-2 Выпуск 10. Элементы ограждения мест содержания овец и коз. Рабочие чертежиДата актуализации: 01.01.2021
|
| Обозначение: | Серия 3.818.9-2 |
| Обозначение англ: | Series 3.818.9-2 |
| Статус: | не определен законодательством |
| Название рус.: | Выпуск 10. Элементы ограждения мест содержания овец и коз. Рабочие чертежи |
| Дата добавления в базу: | 01.09.2013 |
| Дата актуализации: | 01.01.2021 |
| Дата введения: | 01.11.1991 |
| Дата окончания срока действия: | 30.06.2003 |
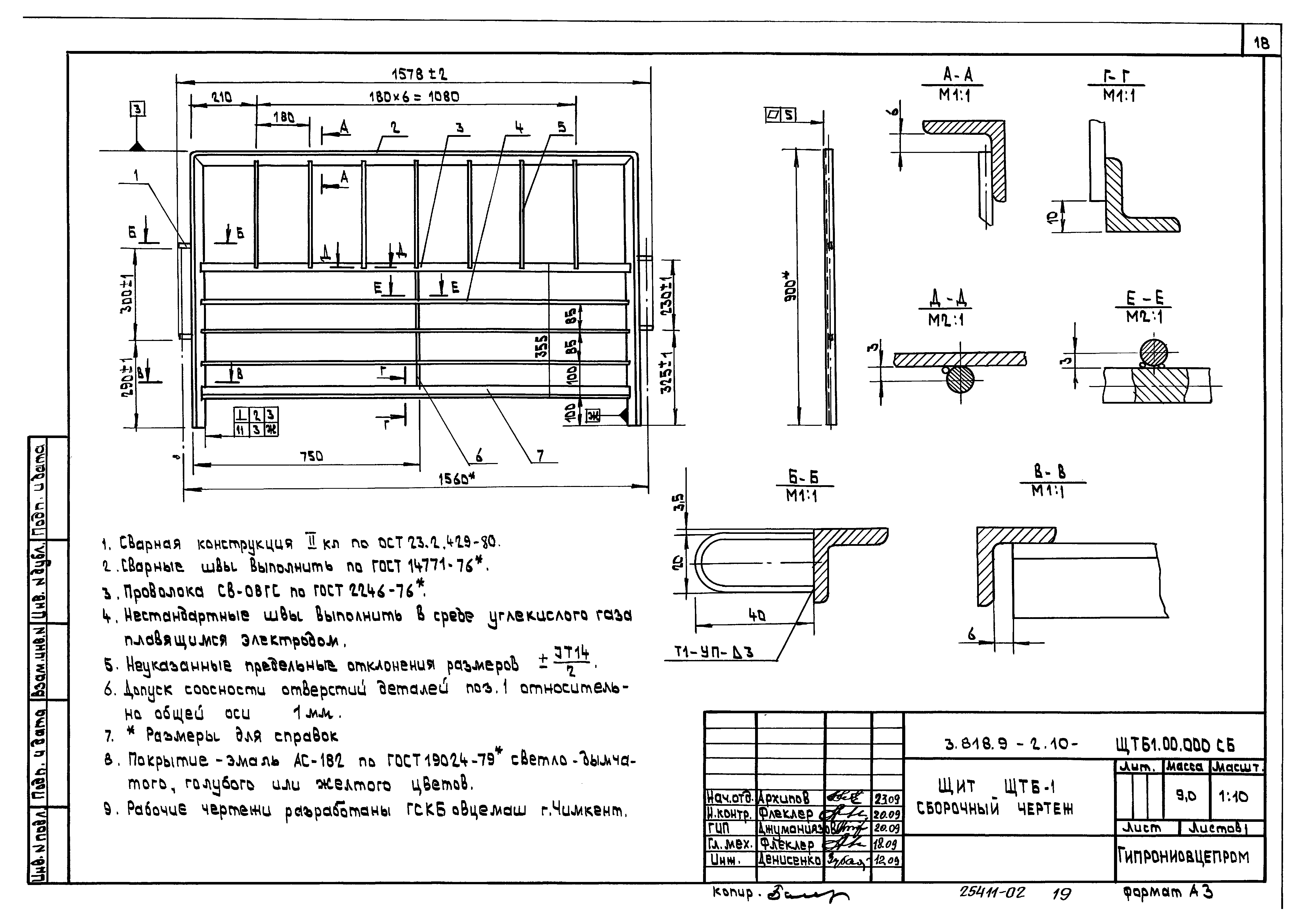
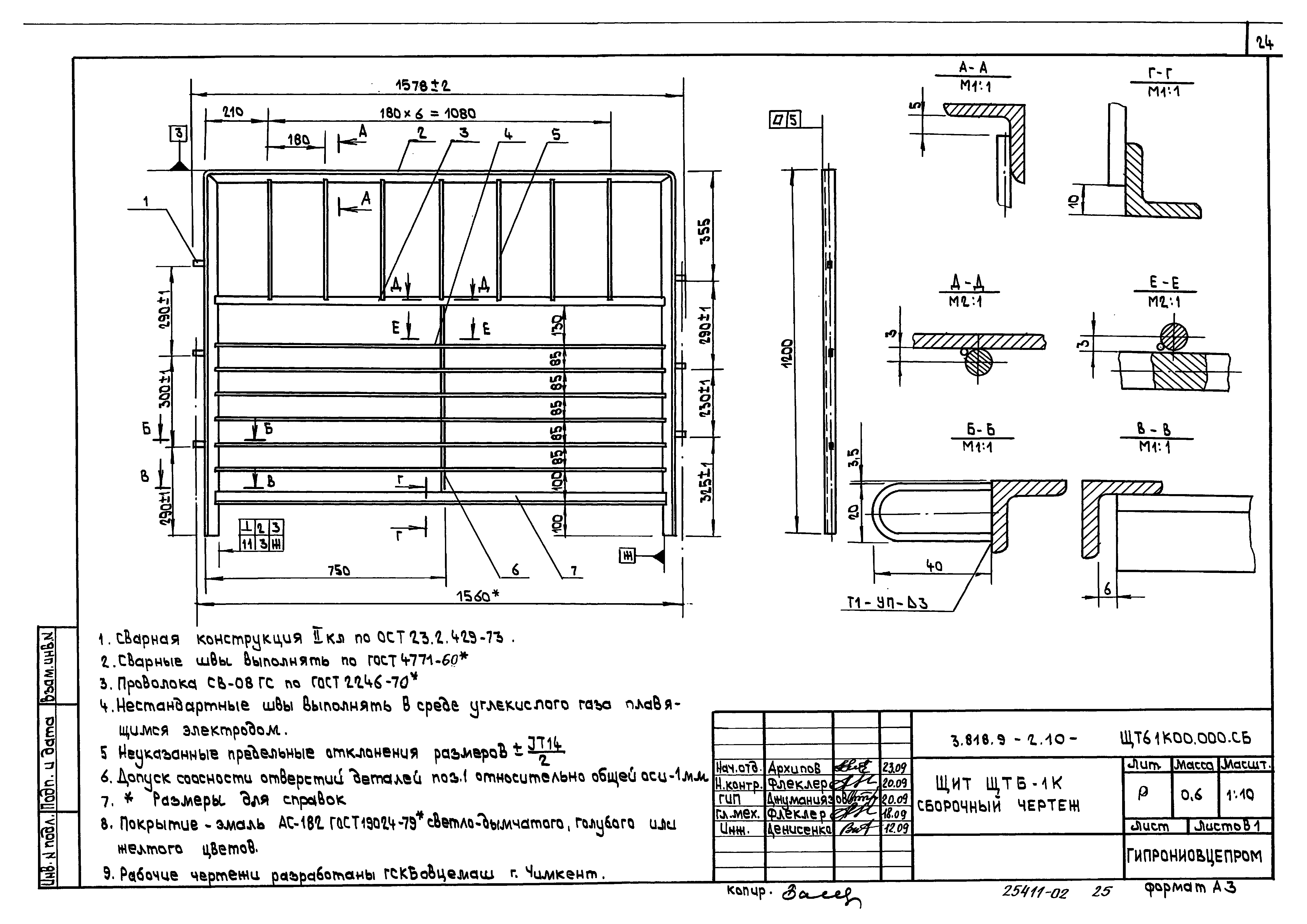
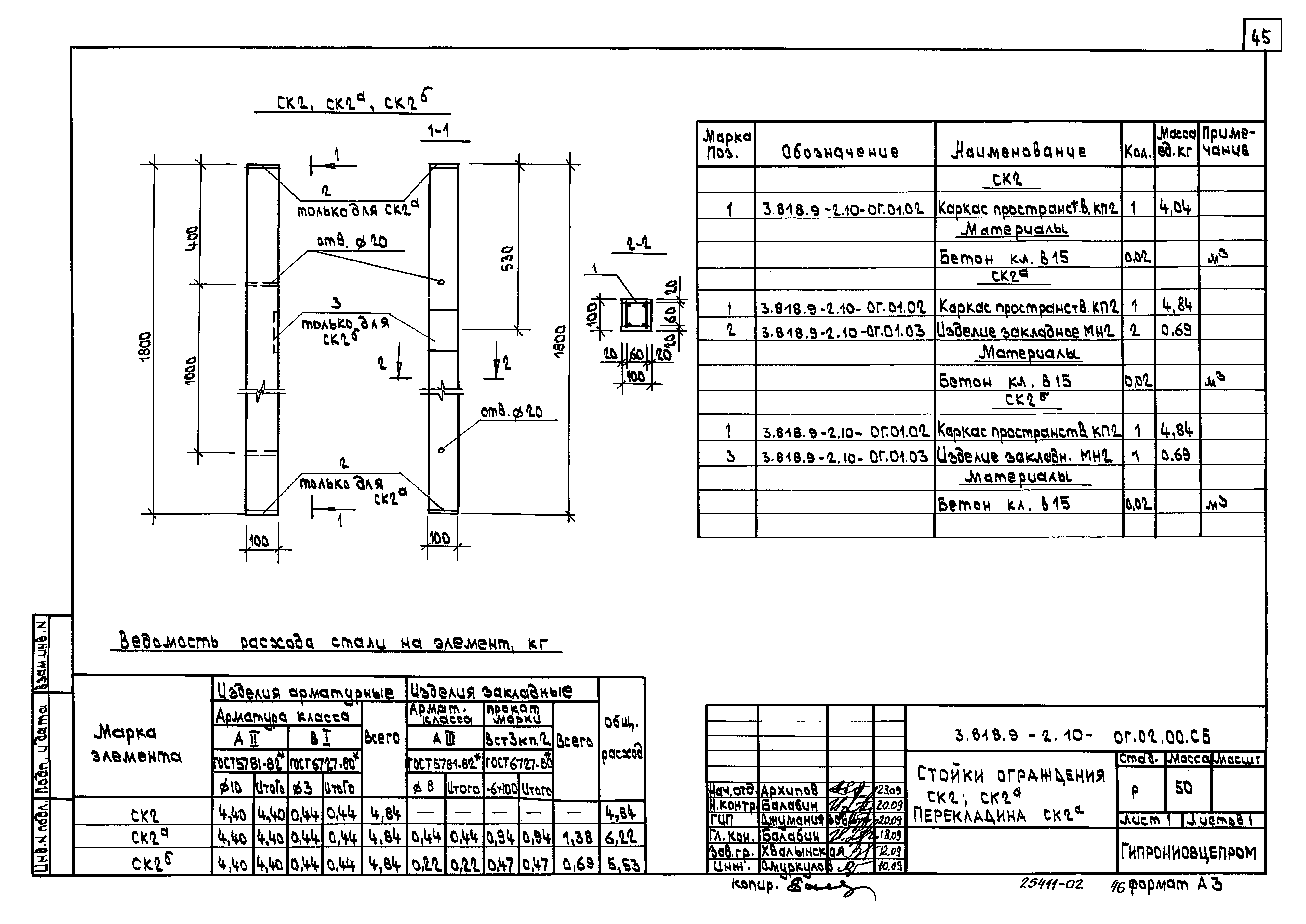
| Оглавление: | 3.818.9-2.10.00.00 Содержание выпуска 3.818.9-2.10.00.00ПЗ Пояснительная записка Щиты 3.818.9-2.10-ЩП1-2.00.000 Щит ЩП1,ЩП2 3.818.9-2.10-ЩП3.00.000 Щит ЩП3 3.818.9-2.10-ЩТА.00.000 Щит ЩТА 3.818.9-2.10-ЩТА.00.000СБ Щит ЩТА. Сборочный чертеж 3.818.9-2.10-ЩТБ.00.000 Щит ЩТБ 3.818.9-2.10-ЩТБ.00.000СБ Щит ЩТБ. Сборочный чертеж 3.818.9-2.10-ЩТВ.00.000 Щит ЩТВ 3.818.9-2.10-ЩТВ.00.000 СБ Щит ЩТВ. Сборочный чертеж 3.818.9-2.10-ЩТА1.00.000 Щит ЩТА1 3.818.9-2.10-ЩТА1.00.000 СБ Щит ЩТА1. Сборочный чертеж 3.818.9-2.10-ЩТБ1.00.000 Щит ЩТБ1 3.818.9-2.10-ЩТБ1.00.000 СБ Щит ЩТБ1. Сборочный чертеж 3.818.9-2.10-ЩТВ1.00.000 Щит ЩТВ1 3.818.9-2.10-ЩТВ1.00.000 СБ Щит ЩТВ1. Сборочный чертеж 3.818.9-2.10-ЩТА1К.00.000 Щит ЩТА-1К 3.818.9-2.10-ЩТА1К.00.000 СБ Щит ЩТА-1К. Сборочный чертеж 3.818.9-2.10-ЩТБ1К.00.000 Щит ЩТБ 1К 3.818.9-2.10-ЩТБ1К.00.000 СБ Щит ЩТБ 1К. Сборочный чертеж 3.818.9-2.10-ЩТВ1К.00.000 Щит ЩТВ 1К 3.818.9-2.10-ЩТВ1К.00.000 СБ Щит ЩТВ 1К. Сборочный чертеж 3.818.9-2.10-ЩТВ1.1.00.000 Щит ЩТВ1.1 3.818.9-2.10-ЩТВ1.1.00.000 СБ Щит ЩТВ1.1. Сборочный чертеж 3.818.9-2.10-ЩТВ1.2.00.000 Щит ЩТВ1.2 3.818.9-2.10-ЩТВ1.2.00.000 СБ Щит ЩТВ1.2. Сборочный чертеж 3.818.9-2.10-КБЛ.03.501 Ушко 3.818.9-2.10-ЩТА.00.601 Пруток 3.818.9-2.10-ЩТА1.00.000 Рама 3.818.9-2.10-ЩТА.00.801 Рама 3.818.9-2.10-ЩТА.00.802 Распор 3.818.9-2.10-СТБ.00.000 Стойка СТБ 3.818.9-2.10-СТБ.00.000 СБ Стойка СТБ. Сборочный чертеж 3.818.9-2.10-СТБ1.00.000 Стойка СТБ1 3.818.9-2.10-СТБ1.00.00 СБ Стойка СТБ1. Сборочный чертеж 3.818.9-2.10-СТБ.00.501 Кронштейн 3.818.9-2.10-СТБ.00.701 Основание 3.818.9-2.10-КУА.01.601 Штырь КУА 3.818.9-2.10-КУА.01.602 Штырь КУА1 3.818.9-2.10-КУА.01.603 Скоба 3.818.9-2.10-КУА.01.604 Скоба 3.818.9-2.10-КУА.01.605 Перемычка Фрагмент планов расстановки технологического оборудования в овчарне Варианты установки и соединения щитов ограждения 3.818.9-2.10-ОГ.00 Ограждение из оцинкованной проволоки (1000м) 3.818.9-2.10-ОГ.00.У1 Фрагмент 1 3.818.9-2.10-ОГ.00.У2 Фрагмент 2 3.818.9-2.10-ОГ.01.00 Стойки СК1,СК1а,СК1б,СК1в 3.818.9-2.10-ОГ.02.00 Стойки ограждения СК2,СК2б. Перекладина СК2а 3.818.9-2.10-ОГ.01.01 Каркасы плоские КР1,КР2 3.818.9-2.10-ОГ.01.02 Каркасы пространственные КП1,КП2 3.818.9-2.10-ОГ.01.03 Закладные изделия МН2,МН3,МН4 |
| Разработан: | Гипрониовцепром |
| Утверждён: | 25.10.1991 Минсельхозпрод СССР (USSR Minselkhozprod 073-3/183) |















































