Скачать Серия 3.818.9-2 Выпуск 11. Технологическое оборудование и изделия подсобно-производственного назначения для овцеводческих и козоводческих зданий. Рабочие чертежиДата актуализации: 01.01.2021
|
| Обозначение: | Серия 3.818.9-2 |
| Обозначение англ: | Series 3.818.9-2 |
| Статус: | не определен законодательством |
| Название рус.: | Выпуск 11. Технологическое оборудование и изделия подсобно-производственного назначения для овцеводческих и козоводческих зданий. Рабочие чертежи |
| Дата добавления в базу: | 01.09.2013 |
| Дата актуализации: | 01.01.2021 |
| Дата введения: | 01.11.1991 |
| Дата окончания срока действия: | 30.06.2003 |
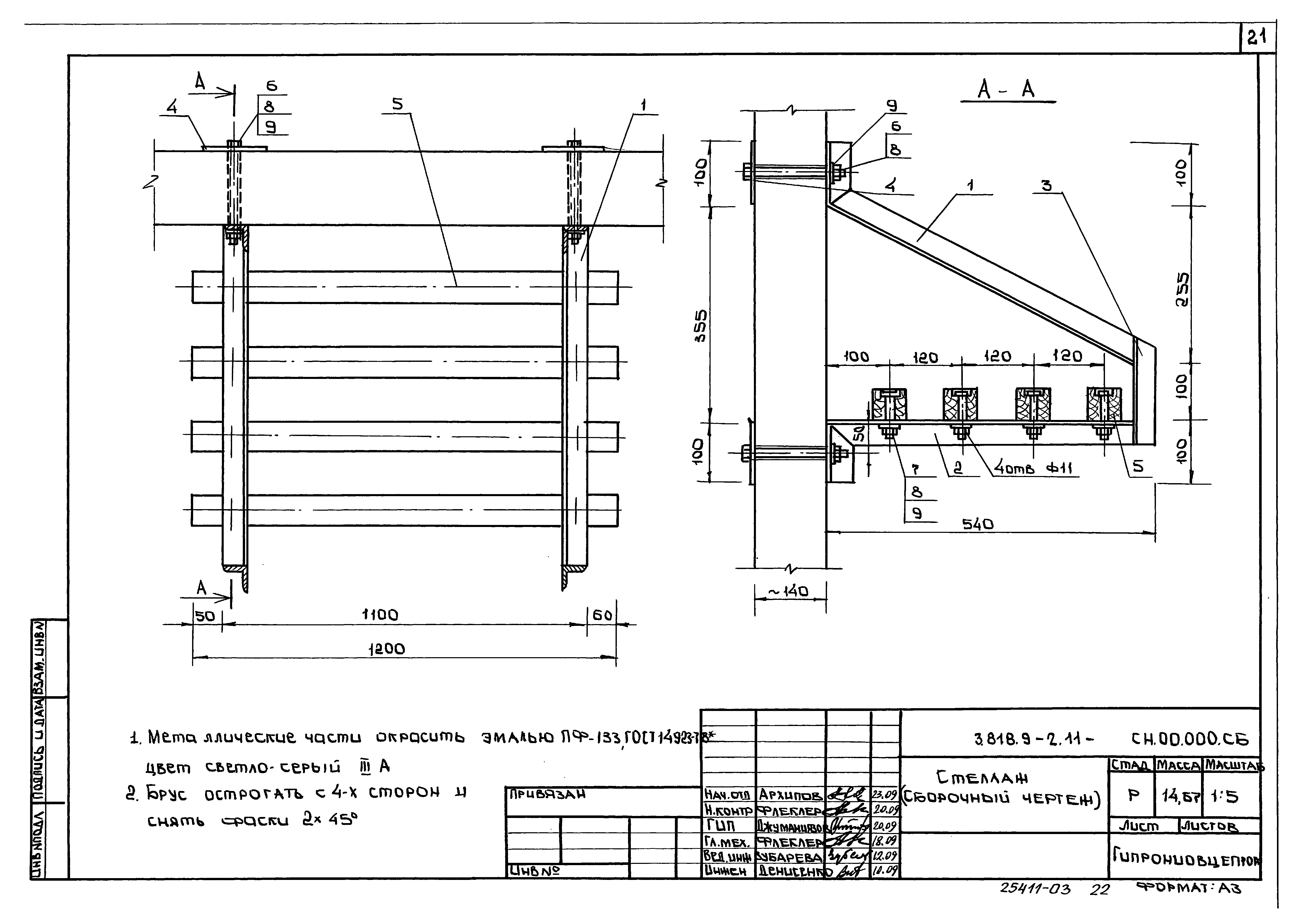
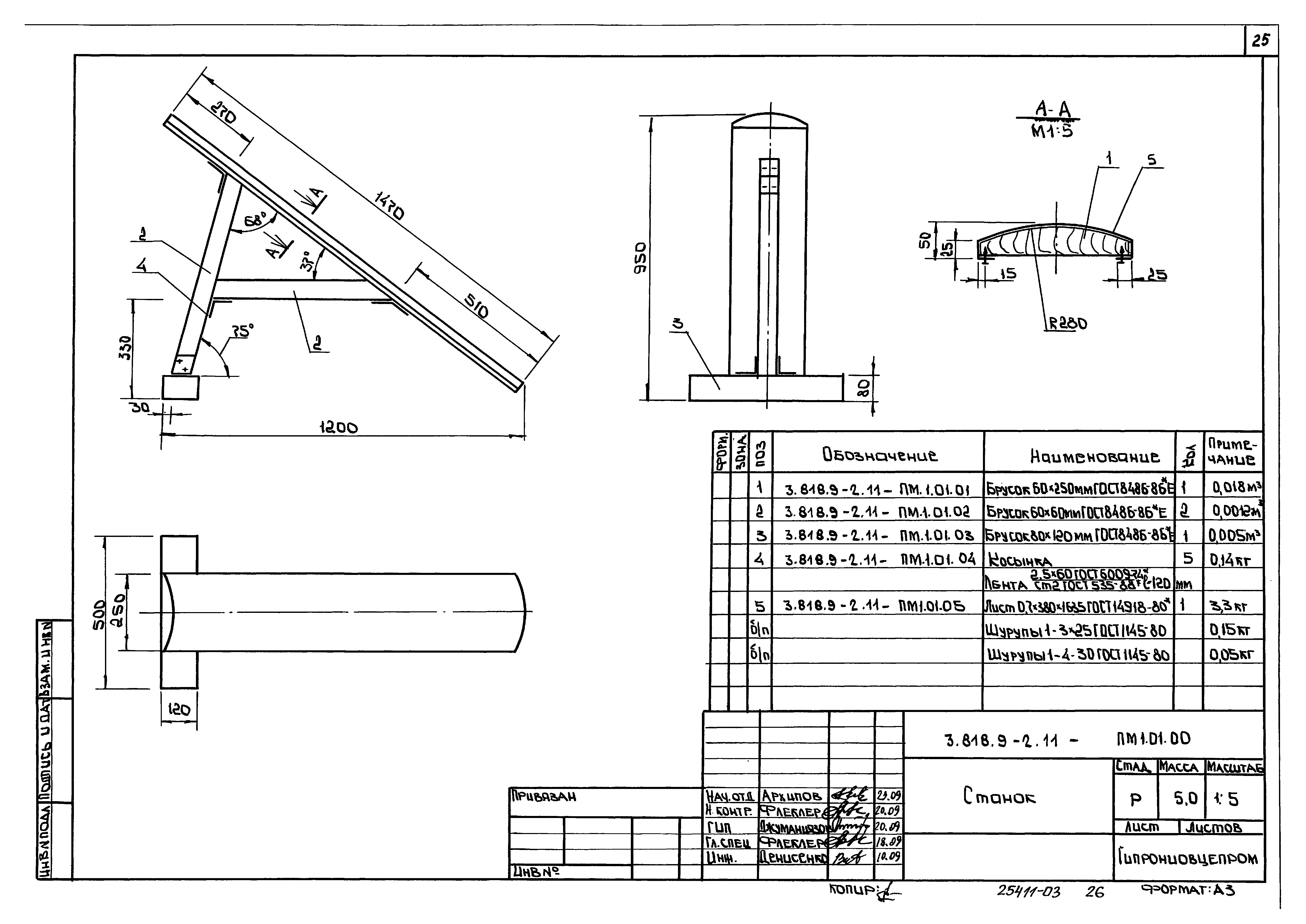
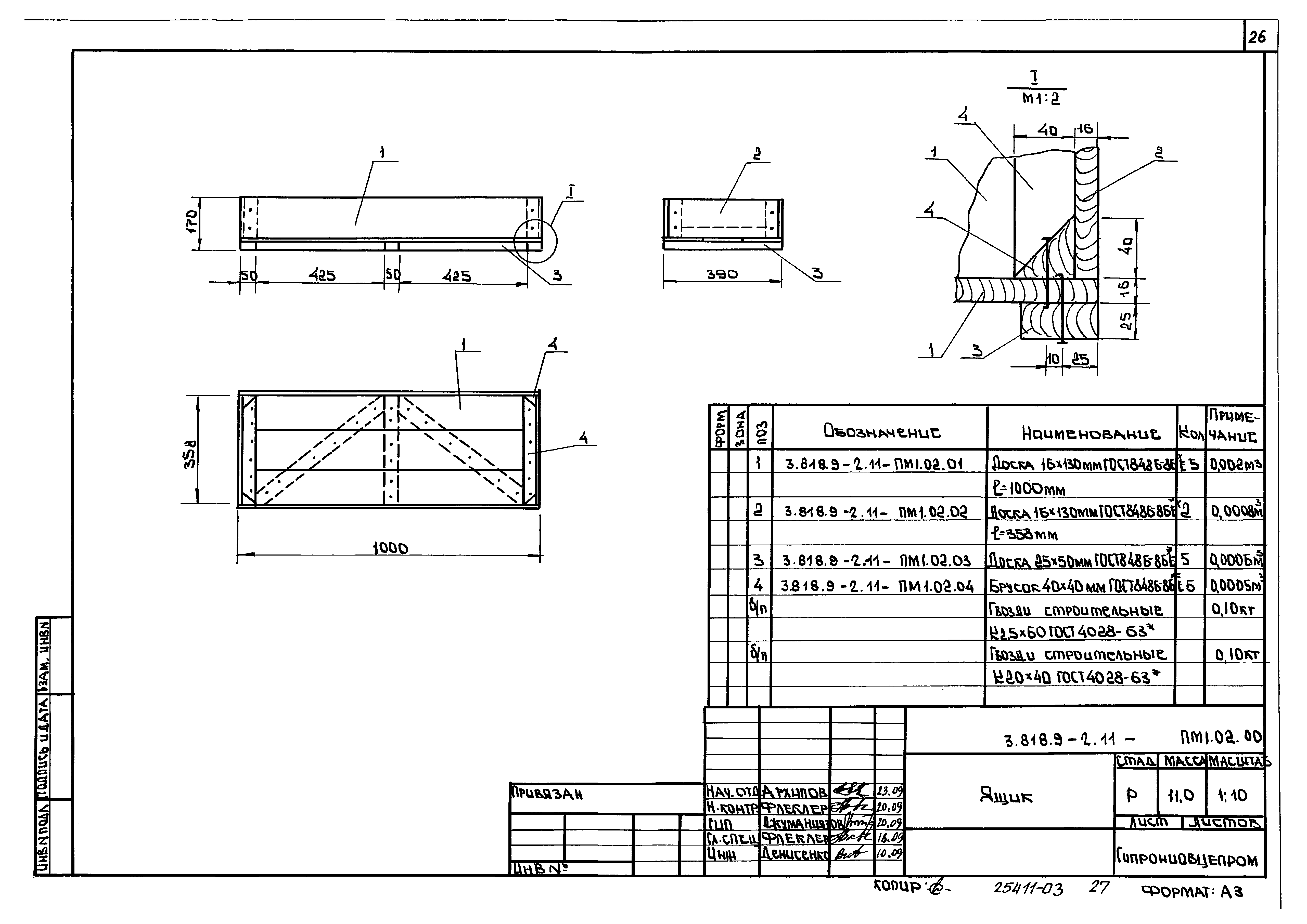
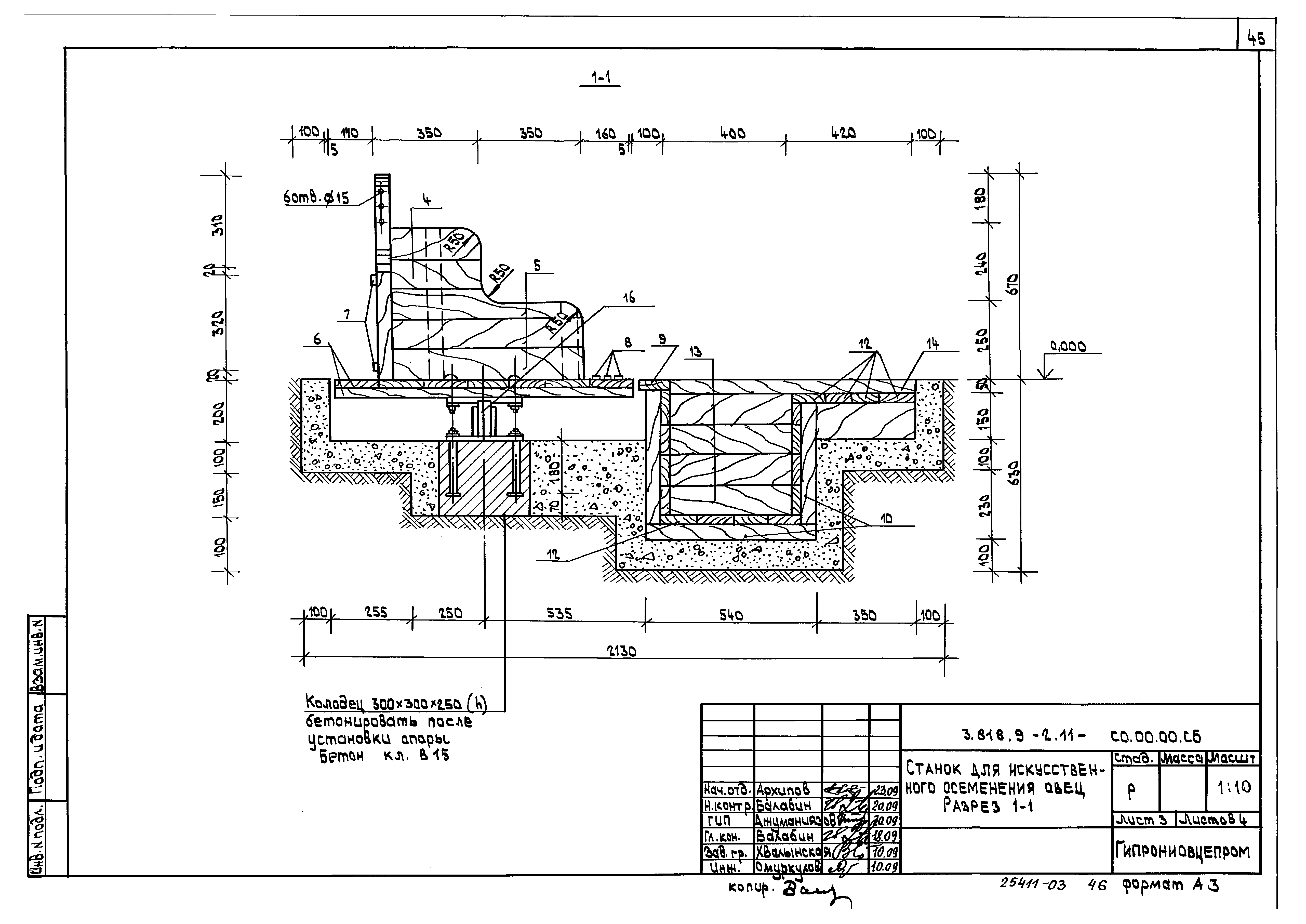
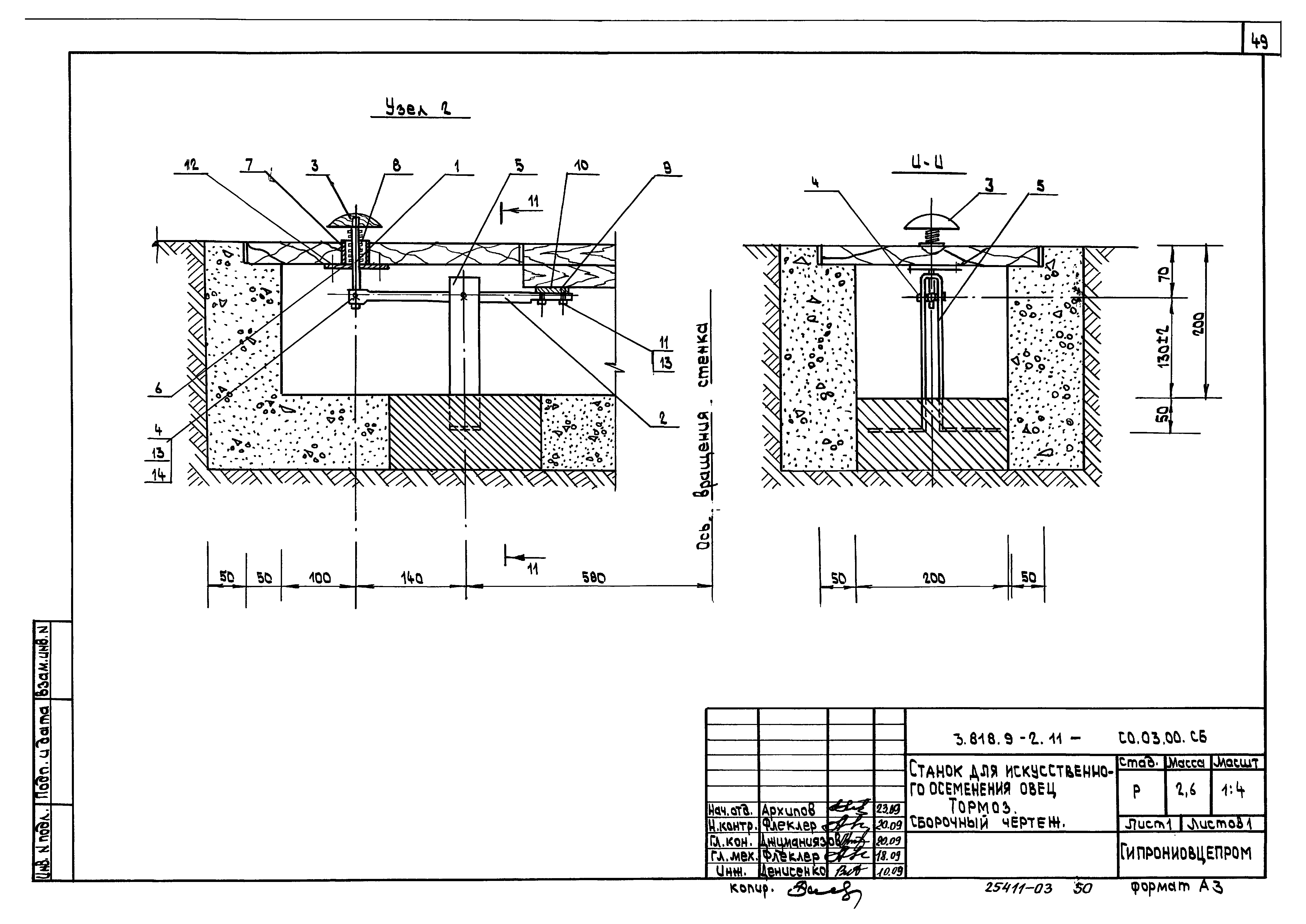
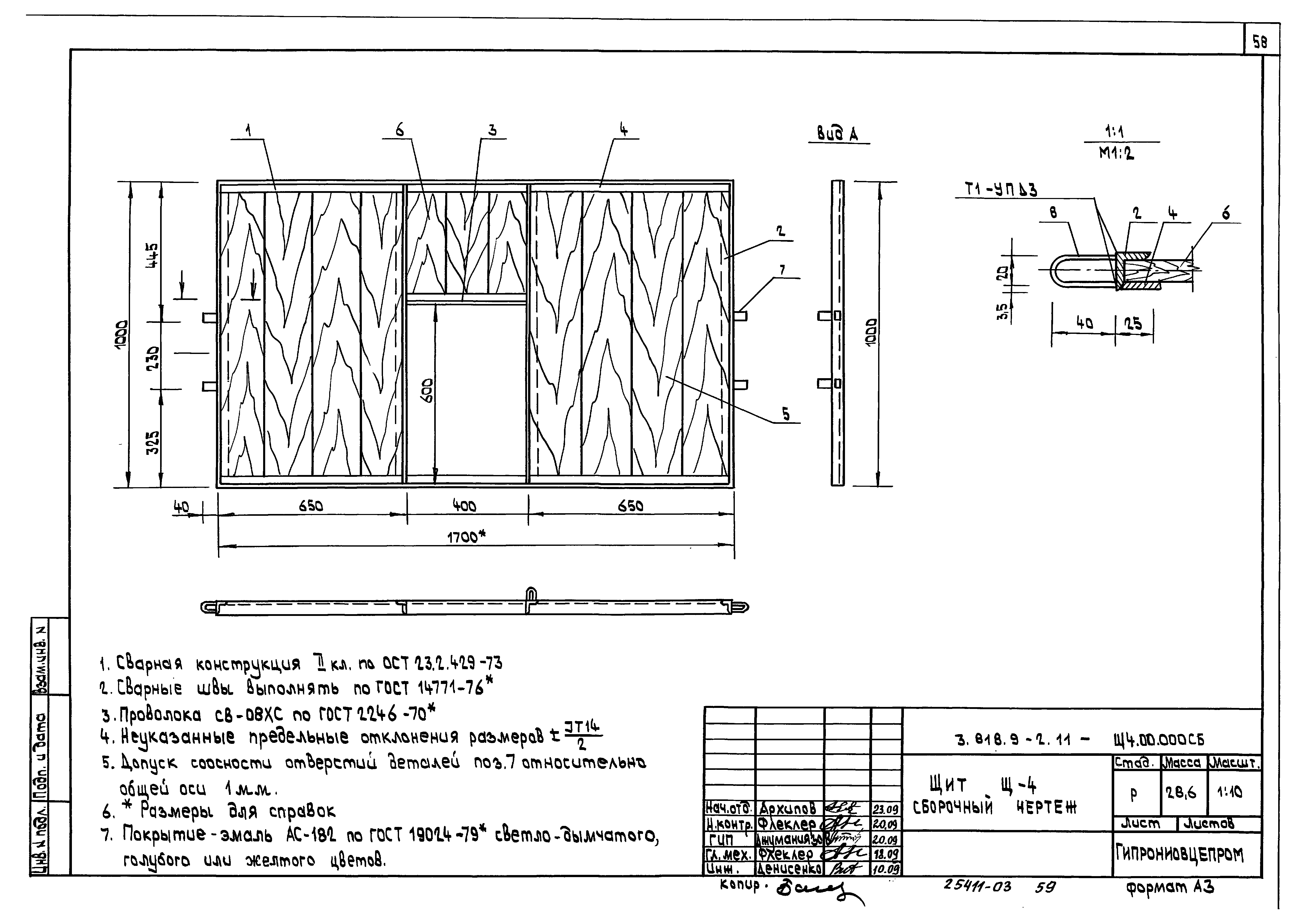
| Оглавление: | 3.818.9-2.11-00.00 Содержание альбома 3.818.9-2.11-00.00 ПЗ Пояснительная записка 3.818.9-2.11-БВ5.00.000 Бак для воды емк. 5 куб. м 3.818.9-2.11-БВ5.00.000 СБ Бак для воды емк. 5 куб. м. Сборочный чертеж 3.818.9-2.11-БВ3.00.000 Бак для воды емк. 3 куб. м 3.818.9-2.11-БВ3.00.000 СБ Бак для воды емк. 3 куб. м. Сборочный чертеж 3.818.9-2.11-БВ5.00.004 Горловина 3.818.9-2.11-БВ5.00.004 СБ Горловина. Сборочный чертеж 3.818.9-2.11-БВ3.00.007 Опорная лапа с косынкой 3.818.9-2.11-БВ3.00.007 СБ Опорная лапа с косынкой 3.818.9-2.11-БВ5.00.005 Крышка 3.818.9-2.11-БВ3.00.006 Ребро жесткости 3.818.9-2.11-БВ5.00.007 Ручка 3.818.9-2.11-БВ5.00.008 Крюк 3.818.9-2.11-ВМ.00.000 Вешала для мяса, субпродуктов и голов 3.818.9-2.11-ВМ.00.000 СБ Вешала для мяса, субпродуктов и голов. Сборочный чертеж 3.818.9-2.11-РО.00.000 Разнога для овец 3.818.9-2.11-РО.00.000 СБ Разнога для овец. Сборочный чертеж 3.818.9-2.11-СН.00.000 Стеллаж 3.818.9-2.11-СН.00.000 СБ Стеллаж. Сборочный чертеж 3.818.9-2.11-СОВ.00.000 Стол для обработки внутренностей 3.818.9-2.11-КЗБ.00.000 СБ Козлы для забеловки овец 3.818.9-2.11-ПМ1.00.000 Пост мездрения ПМ1 3.818.9-2.11-ПМ1.01.000 Станок 3.818.9-2.11-ПМ1.02.000 Ящик 3.818.9-2.11-ЛС.00.000 Ларь для соли емкостью 0.5 куб. м 3.818.9-2.11-ЛК.00.000 Ларь для концкормов емкостью 1.0 куб. м 3.818.9-2.11-ВС1.00.000 Верстак наладчика ВС1 3.818.9-2.11-ВС.00.000 СБ Верстак наладчика ВС1. Сборочный чертеж 3.818.9-2.11-ВС1.01.000 Каркас 3.818.9-2.11-ВС1.01.000 СБ Каркас. Сборочный чертеж 3.818.9-2.11-ВС1.02.000 Бак для масла 3.818.9-2.11-ВС1.02.000 СБ Бак для масла. Сборочный чертеж 3.818.9-2.11-ВС1.03.000 Ящик для инструмента 3.818.9-2.11-ВС1.03.000 СБ Ящик для инструмента. Сборочный чертеж 3.818.9-2.11-ВС1.04.000 Ящик для солидола 3.818.9-2.11-ВС1.04.000 СБ Ящик для солидола. Сборочный чертеж 3.818.9-2.11-ВС1.03.003 Ручка 3.818.9-2.11-ВС1.05.000 Вилка 3.818.9-2.11-ВС1.01.012 Кронштейн 3.818.9-2.11-ВС2.00.000 Верстак точильщика ВС-2 3.818.9-2.11-ВС2.00.000 СБ Верстак точильщика ВС-2. Сборочный чертеж 3.818.9-2.11-ВС3.00.000 Стол приставной к верстаку точильщика ВС-3 3.818.9-2.11-ВС3.00.000 СБ Стол приставной к верстаку точильщика ВС-3. Сборочный чертеж 3.818.9-2.11-ВС3.01.000 Каркас 3.818.9-2.11-ВС3.01.000 СБ Каркас. Сборочный чертеж 3.818.9-2.11-ВС3.02.000 3.818.9-2.11-ВС1.02.000 Ванна 3.818.9-2.11-ВС3.02.000 3.818.9-2.11-ВС1.02.000 СБ Ванна. Сборочный чертеж 3.818.9-2.11-ЩС1.00.000 Щит. ЩС1 3.818.9-2.11-ЩС2.00.000 Щит. ЩС2 3.818.9-2.11-ЩС3.00.000 Щит. ЩС3 3.818.9-2.11-СО.00.000 Станок для искусственного осеменения овец. Спецификация 3.818.9-2.11-СО.00.000 СБ Станок для искусственного осеменения овец. План 3.818.9-2.11-СО.00.000 СБ Станок для искусственного осеменения овец. Разрез 1-1 3.818.9-2.11-СО.00.000 СБ Станок для искусственного осеменения овец. Разрезы 2-2, 3-3, 4-4 3.818.9-2.11-СО.00.000 Станок для искусственного осеменения овец. Опора 3.818.9-2.11-СО.03.000 Станок для искусственного осеменения овец. Тормоз 3.818.9-2.11-СО.00.000 СБ Станок для искусственного осеменения овец. Опора. Сборочный чертеж 3.818.9-2.11-СО.03.000 СБ Станок для искусственного осеменения овец. Тормоз. Сборочный чертеж 3.818.9-2.11-СО.01.000 Опора верхняя 3.818.9-2.11-СО.01.000 СБ Опора верхняя. Сборочный чертеж 3.818.9-2.11-СО.02.000 Опора нижняя 3.818.9-2.11-СО.02.000 СБ Опора нижняя. Сборочный чертеж 3.818.9-2.11-СО.03.01 Шток 3.818.9-2.11-СО.03.02 Рычаг 3.818.9-2.11-СО.03.03 Педаль 3.818.9-2.11-СО.03.04 Палец 3.818.9-2.11-СО.03.05 Кронштейн 3.818.9-2.11-СО.03.06 Пластина 3.818.9-2.11-СО.03.08 Пружина 3.818.9-2.11-СО.03.09 Пластина Переносная установка для искусственного осеменения овец 3.818.9-2.11-Щ4.00.000 Щит Щ-4 3.818.9-2.11-Щ4.00.000 СБ Щит Щ-4. Сборочный чертеж 3.818.9-2.11-Щ5.00.000 Щит Щ-5 3.818.9-2.11-Щ5.00.000 СБ Щит Щ-5. Сборочный чертеж 3.818.9-2.11-СТ.00.000 Стойка СТ-1 3.818.9-2.11-СТ.00.000 СБ Стойка СТ-1. Сборочный чертеж 3.818.9-2.11-КР.00.000 Кронштейн КР-1 3.818.9-2.11-КР.00.000 СБ Кронштейн КР-1. Сборочный чертеж 3.818.9-2.11-ПМ.00.000 Перемычка ПМ-1 3.818.9-2.11-ПМ.00.000 СБ Перемычка ПМ-1. Сборочный чертеж 3.818.9-2.11-П.00.000 Пластина П-1 3.818.9-2.11-КУА.00.000 Штырь КУА-1 3.818.9-2.11-ОП.00.000 Опуски полиэтиленовые ОП1, ОП2 |
| Разработан: | Гипрониовцепром |
| Утверждён: | 25.10.1991 Минсельхозпрод СССР (USSR Minselkhozprod 073-3/183) |

































































