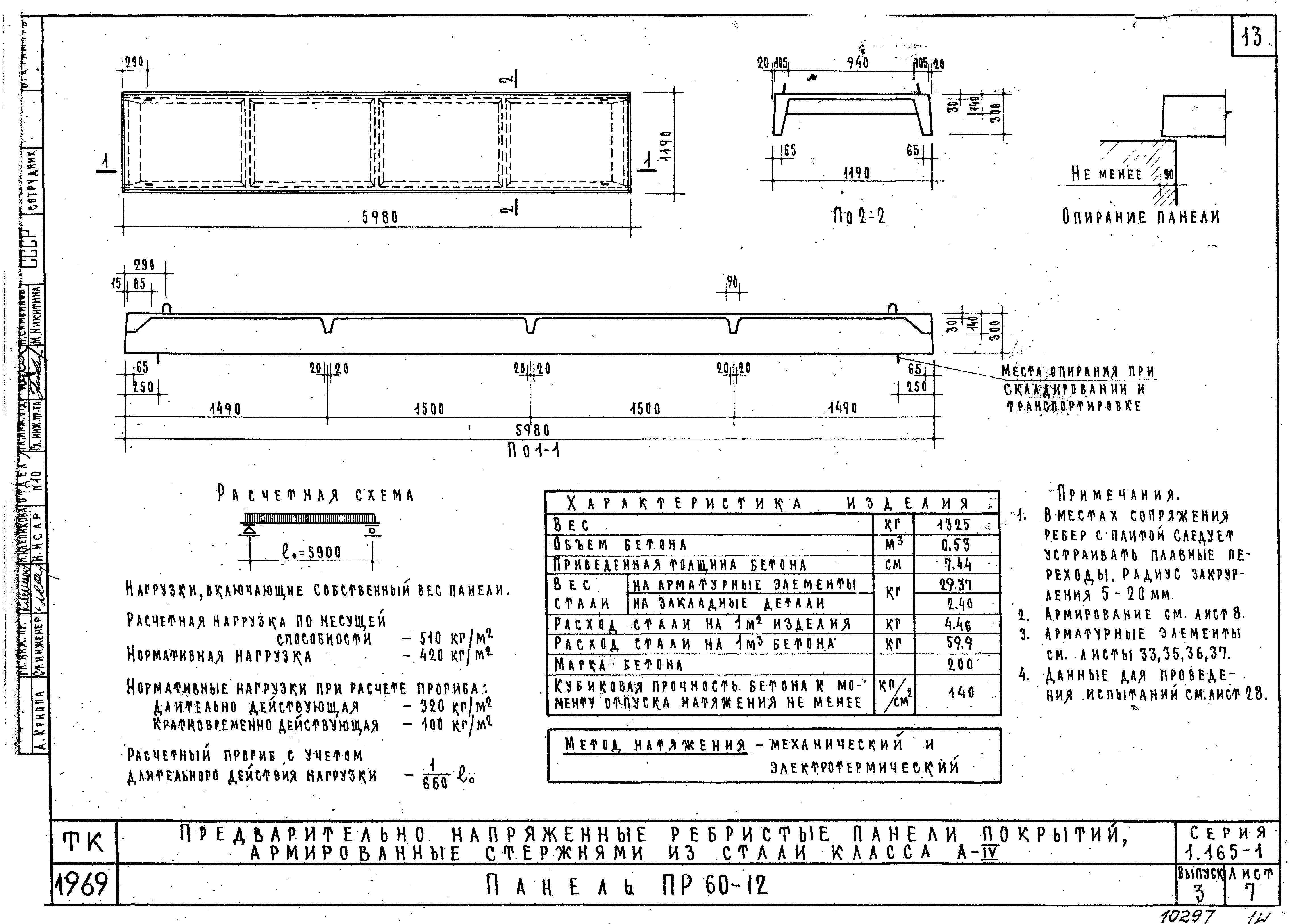
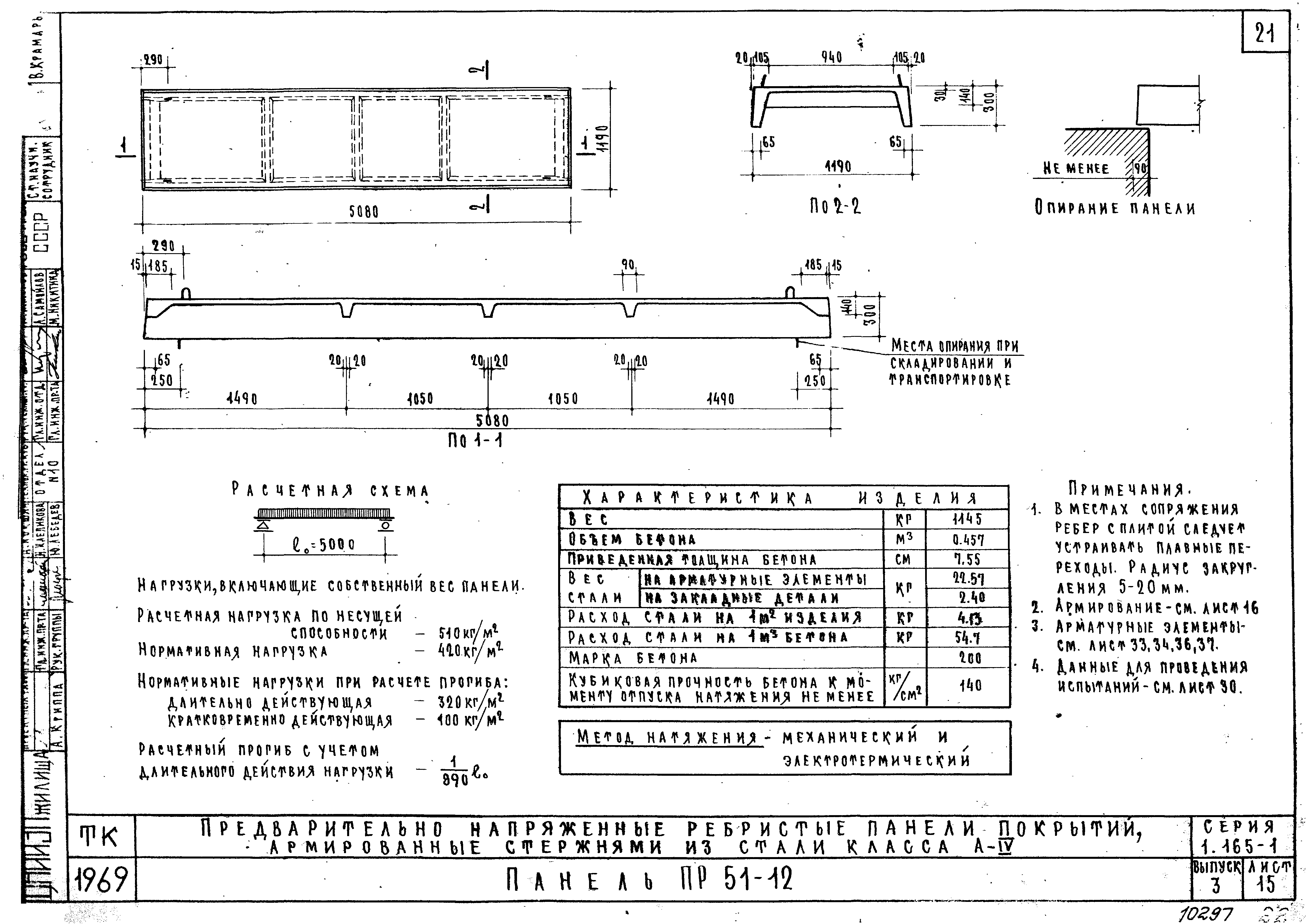
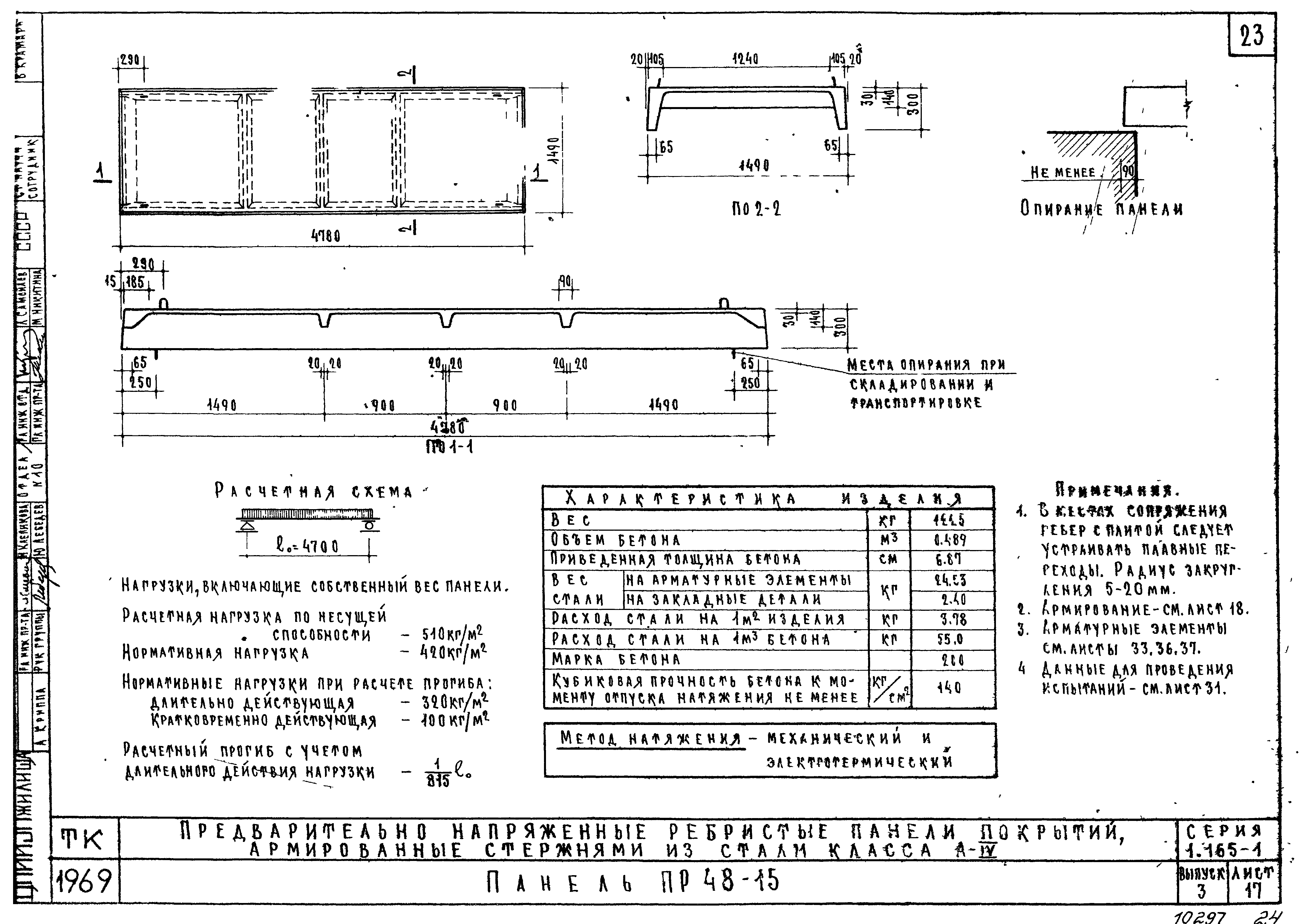
Скачать Серия 1.165-1 Выпуск 3. Предварительно напряженные панели длиной 628, 598, 538, 508, 478 см, шириной 149 и 119 см, армированные стержнями из стали класса А-IV (метод натяжения - механический и электротермический)Дата актуализации: 01.01.2021 Серия 1.165-1
Выпуск 3. Предварительно напряженные панели длиной 628, 598, 538, 508, 478 см, шириной 149 и 119 см, армированные стержнями из стали класса А-IV (метод натяжения - механический и электротермический)| Обозначение: | Серия 1.165-1 | | Обозначение англ: | Series 1.165-1 | | Статус: | не действует | | Название рус.: | Выпуск 3. Предварительно напряженные панели длиной 628, 598, 538, 508, 478 см, шириной 149 и 119 см, армированные стержнями из стали класса А-IV (метод натяжения - механический и электротермический) | | Дата добавления в базу: | 01.09.2013 | | Дата актуализации: | 01.01.2021 | | Дата окончания срока действия: | 01.06.1987 | | Разработан: | НИИЖБ Госстроя СССР ЦНИИЭП жилища
| | Утверждён: | 08.10.1969 Государственный комитет по гражданскому строительству и архитектуре при Госстрое СССР (222)
|
                                          
|