Скачать Типовой проект 503-1-81.13.90 Альбом 1. Пояснительная запискаДата актуализации: 01.01.2021
|
| Обозначение: | Типовой проект 503-1-81.13.90 |
| Обозначение англ: | 503-1-81.13.90 |
| Статус: | не определен законодательством |
| Название рус.: | Альбом 1. Пояснительная записка |
| Дата добавления в базу: | 01.09.2013 |
| Дата актуализации: | 01.01.2021 |
| Дата введения: | 04.02.1991 |
| Дата окончания срока действия: | 30.06.2003 |
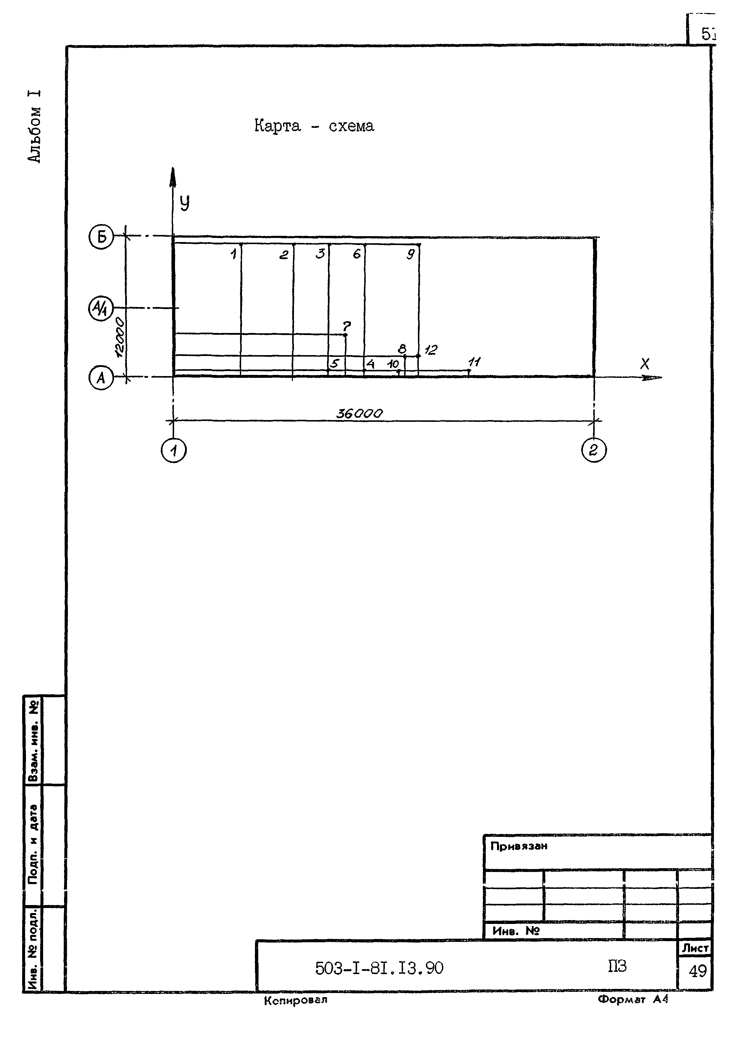
| Оглавление: | ТП 503-1-81.13.90-ПЗ-1 Общая часть ТП 503-1-81.13.90-ПЗ-2 Технико-экономическая часть ТП 503-1-81.13.90-ПЗ-3 Технология производства ТП 503-1-81.13.90-ПЗ-4 Электротехническая часть, автоматизация, связь и сигнализация ТП 503-1-81.13.90-ПЗ-5 Архитектурно-строительные решения ТП 503-1-81.13.90-ПЗ-6 Теплоснабжение, отопление и вентиляция ТП 503-1-81.13.90-ПЗ-7 Водопровод и канализация ТП 503-1-81.13.90-ПЗ-8 Мероприятия по охране водоемов, почвы и атмосферного воздуха от загрязнений неочищенными сточными водами и промышленными выбросами ТП 503-1-81.13.90-ПЗ-9 Сводный сметный расчет стоимости строительства ТП 503-1-81.13.90-ПЗ-10 Рекомендации по организации строительства ТП 503-1-81.13.90-ПЗ-11 Схема генерального плана |
| Разработан: | Новосибирский филиал Гипроавтотранса |
| Утверждён: | 04.02.1991 Новосибирский Облисполком (4) |



































































