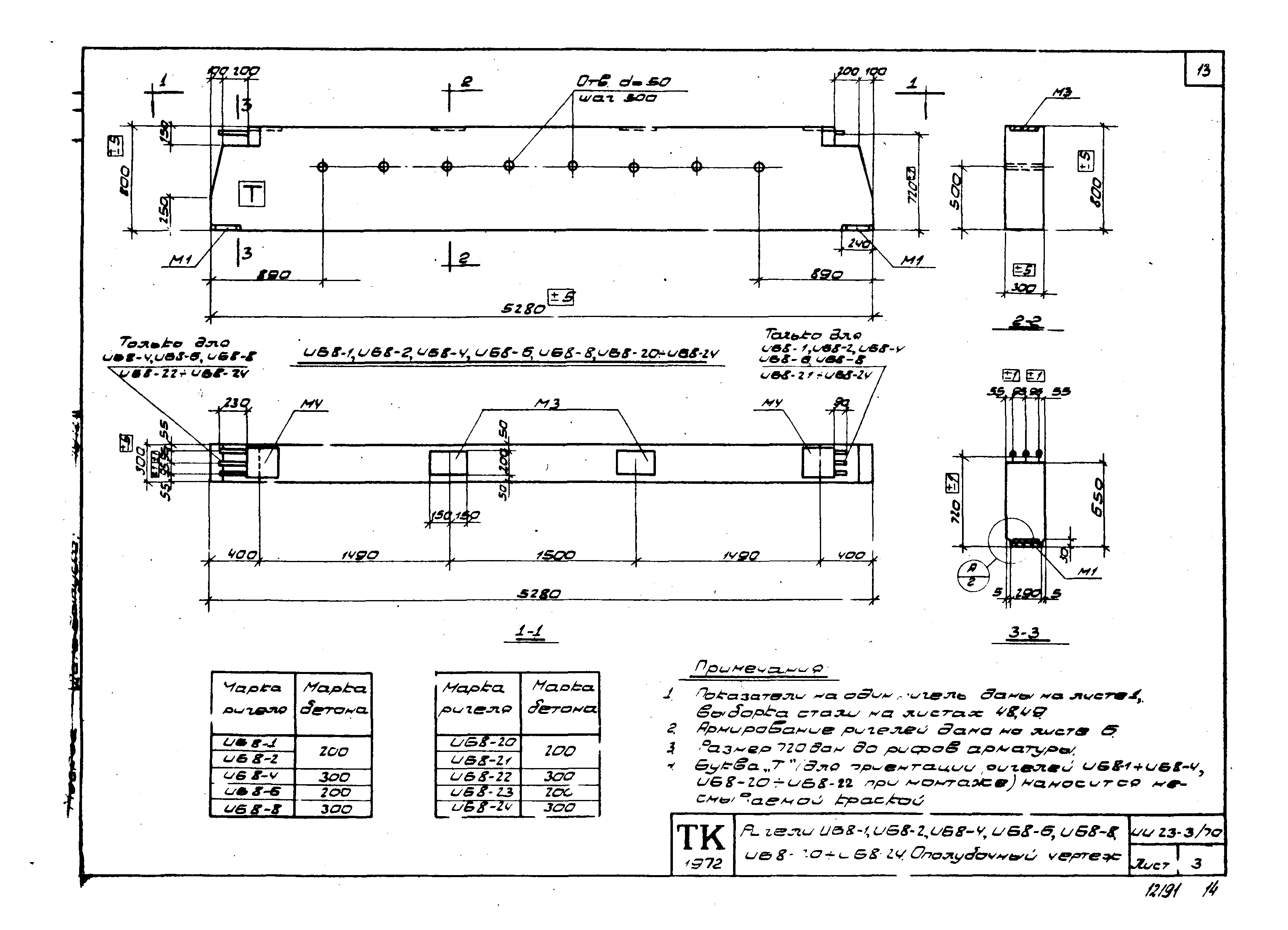
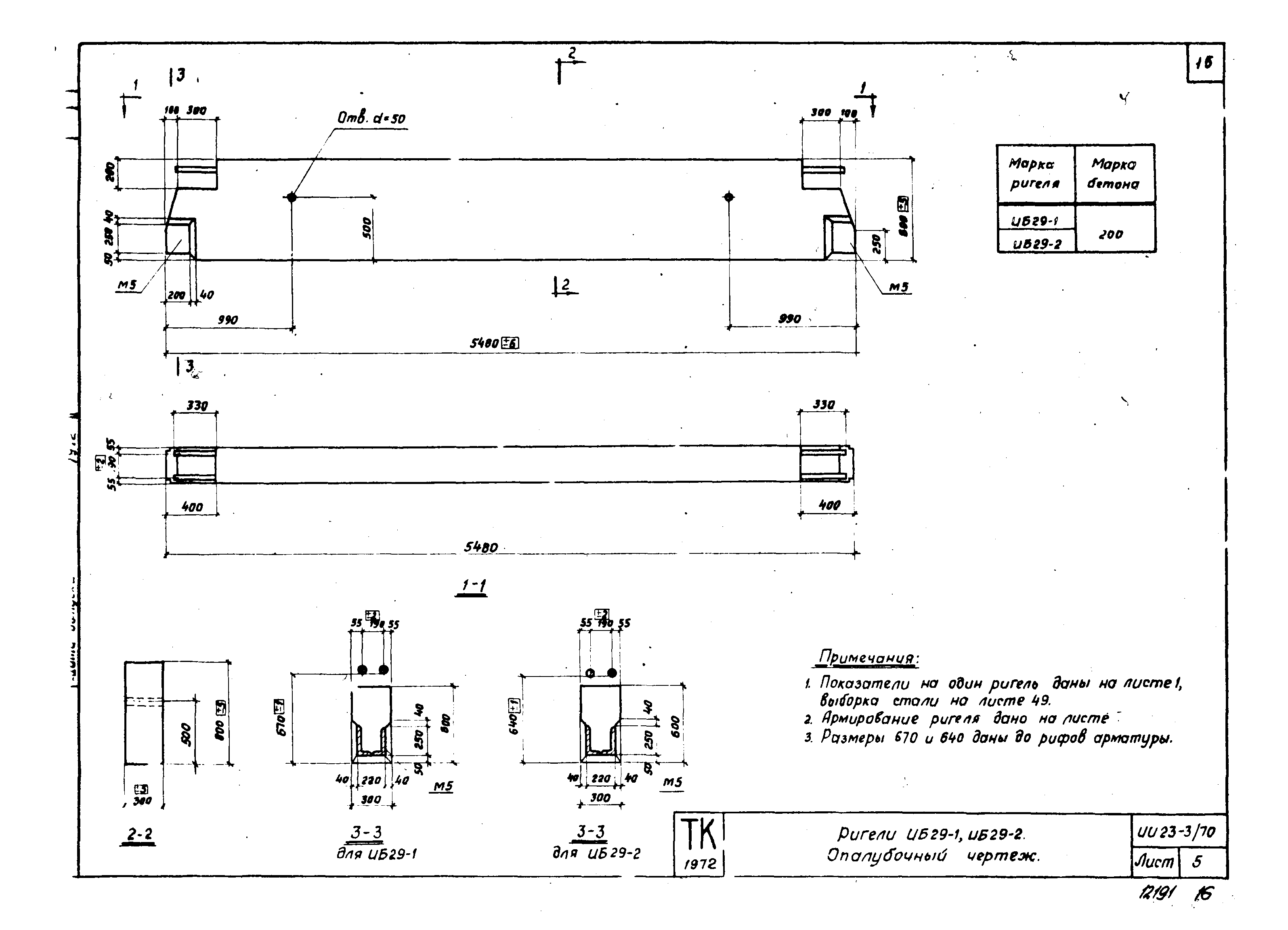
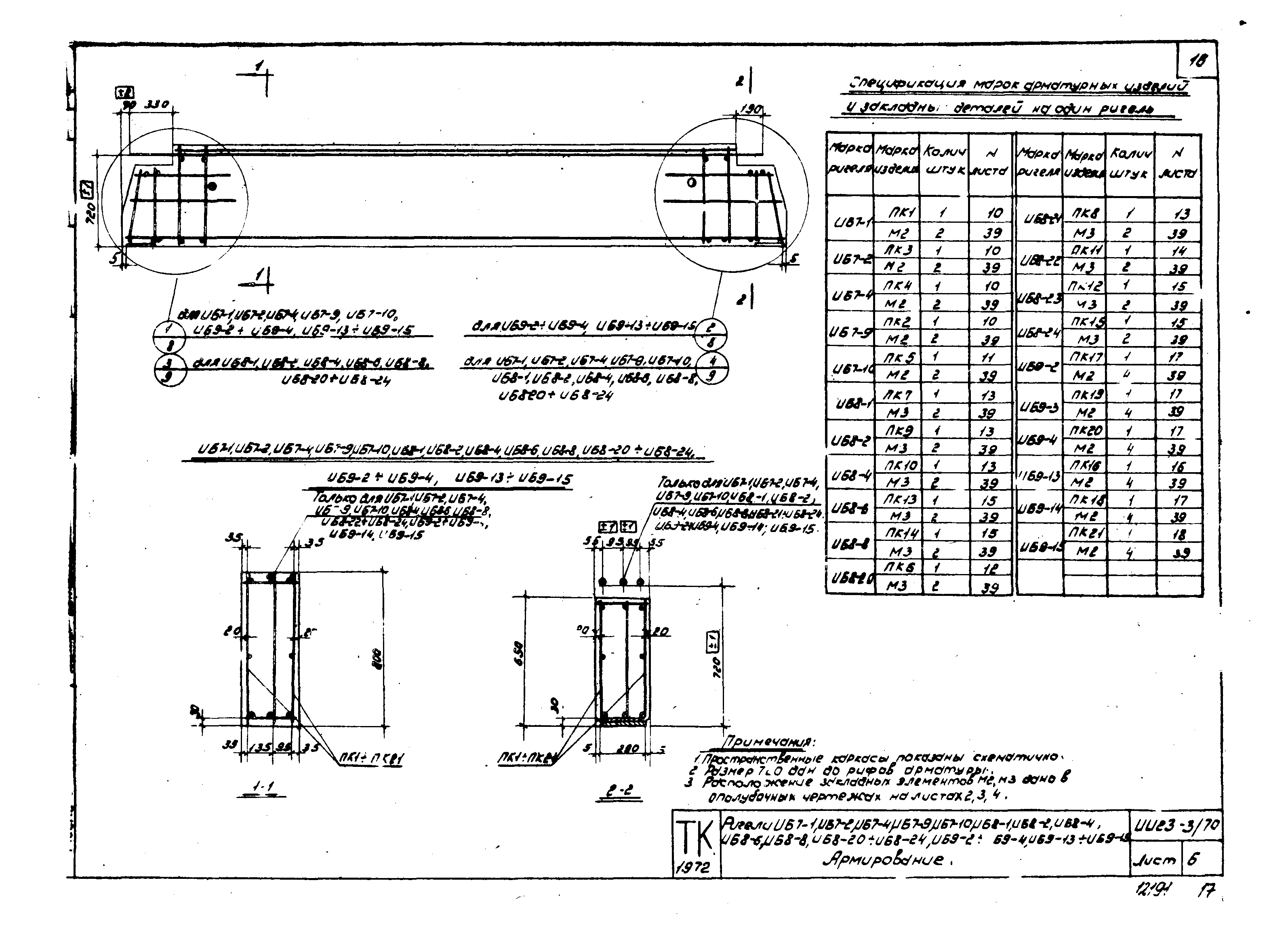
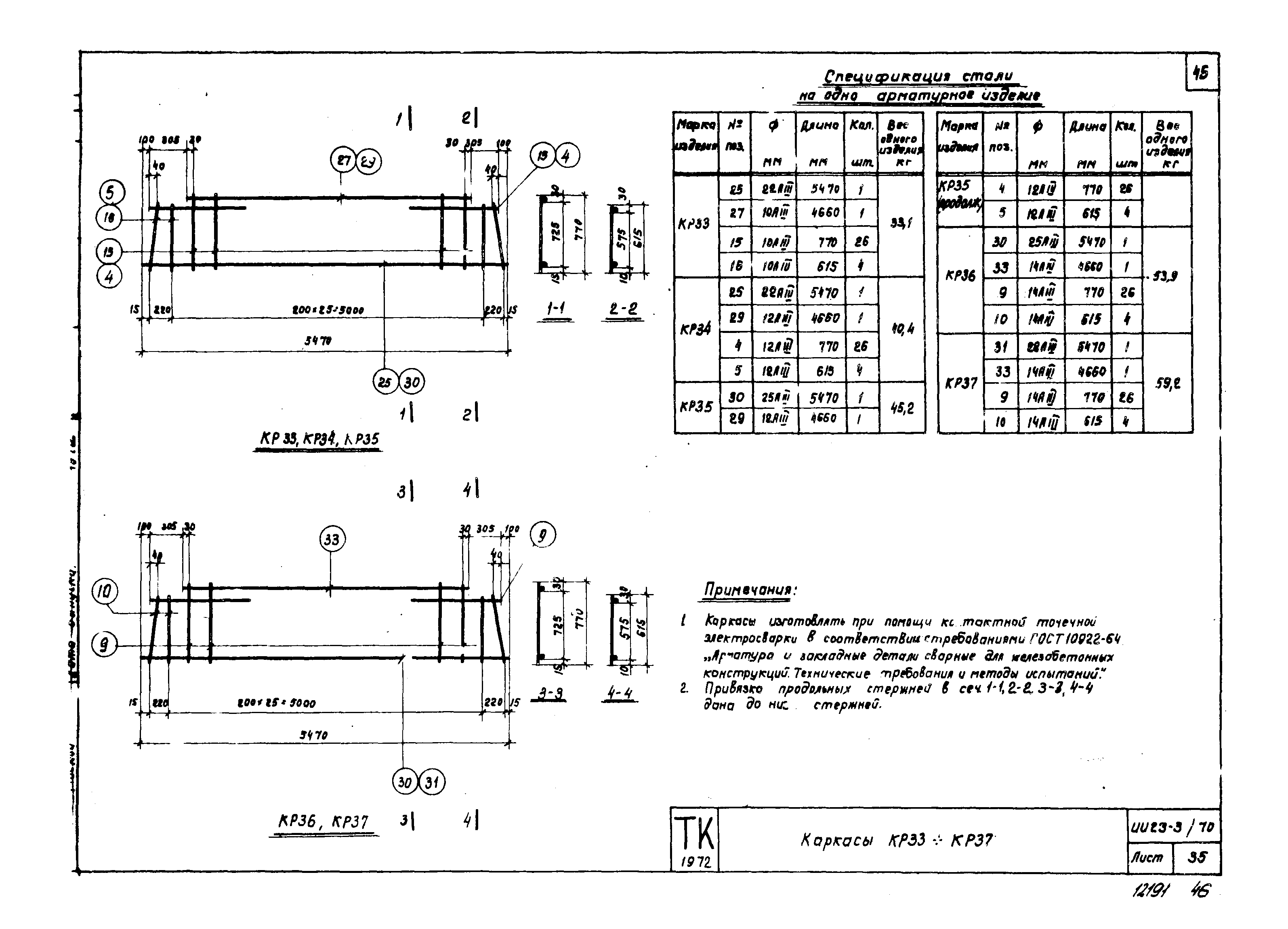
Скачать Серия ИИ23-3/70 Железобетонные ригели прямоугольного сечения, пролетом 6 мДата актуализации: 01.01.2021 Серия ИИ23-3/70
Железобетонные ригели прямоугольного сечения, пролетом 6 м| Обозначение: | Серия ИИ23-3/70 | | Обозначение англ: | Series ИИ23-3/70 | | Статус: | не действует | | Название рус.: | Железобетонные ригели прямоугольного сечения, пролетом 6 м | | Дата добавления в базу: | 01.09.2013 | | Дата актуализации: | 01.01.2021 | | Дата введения: | 01.07.1973 | | Дата окончания срока действия: | 01.10.1998 | | Разработан: | ЦНИИпромзданий НИИЖБ
| | Утверждён: | 28.11.1972 Госстрой СССР (Государственный комитет Совета Министров СССР по делам строительства) (USSR Gosstroy 203)
| | Заменяет собой: | |
                                                             
|