Скачать Типовой проект 902-2-375.83 Альбом 2. Технологическая, строительная и электротехническая частиДата актуализации: 01.01.2021
|
| Обозначение: | Типовой проект 902-2-375.83 |
| Обозначение англ: | 902-2-375.83 |
| Статус: | не определен законодательством |
| Название рус.: | Альбом 2. Технологическая, строительная и электротехническая части |
| Дата добавления в базу: | 01.09.2013 |
| Дата актуализации: | 01.01.2021 |
| Дата введения: | 17.05.1983 |
| Дата окончания срока действия: | 30.06.2003 |
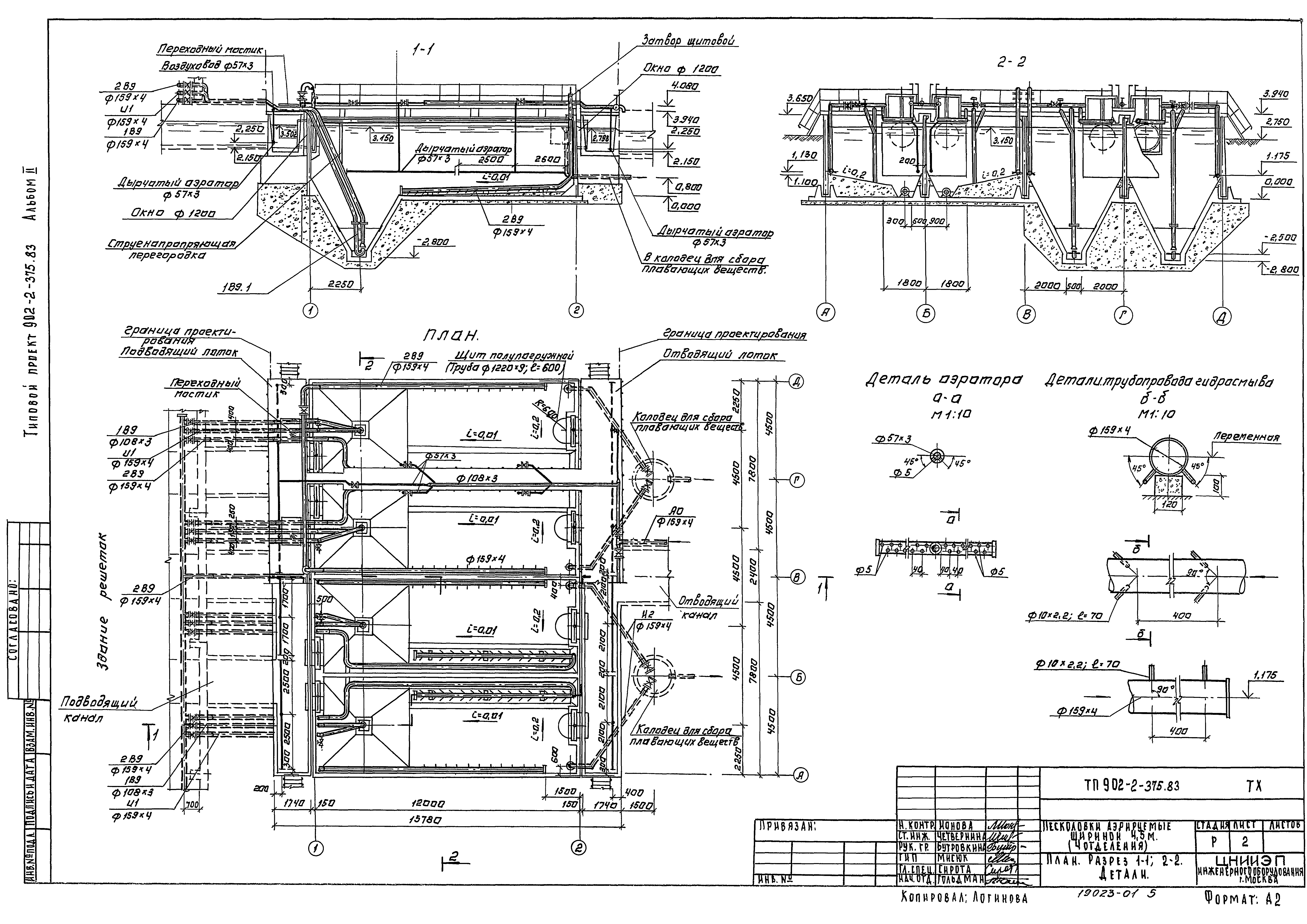
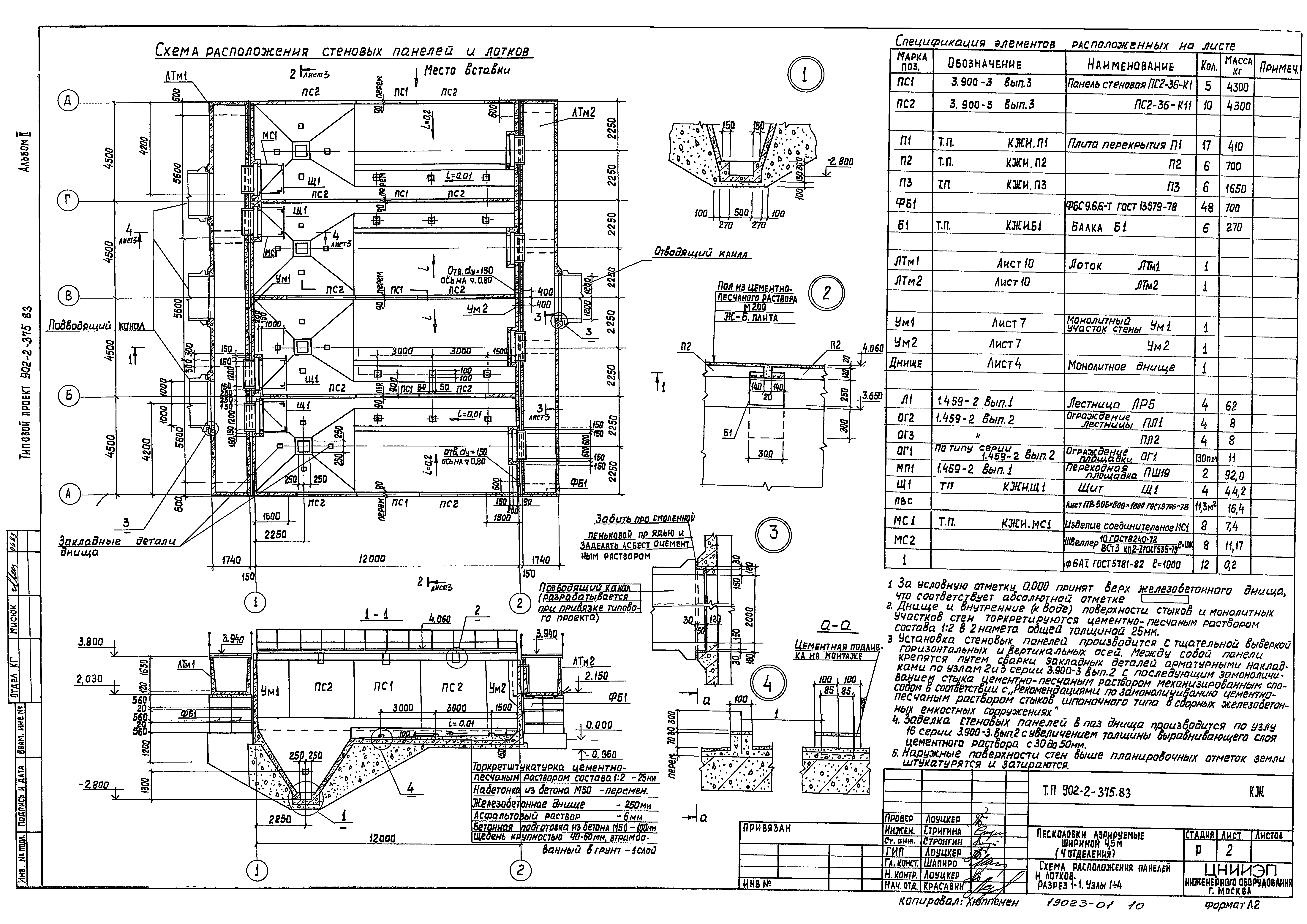
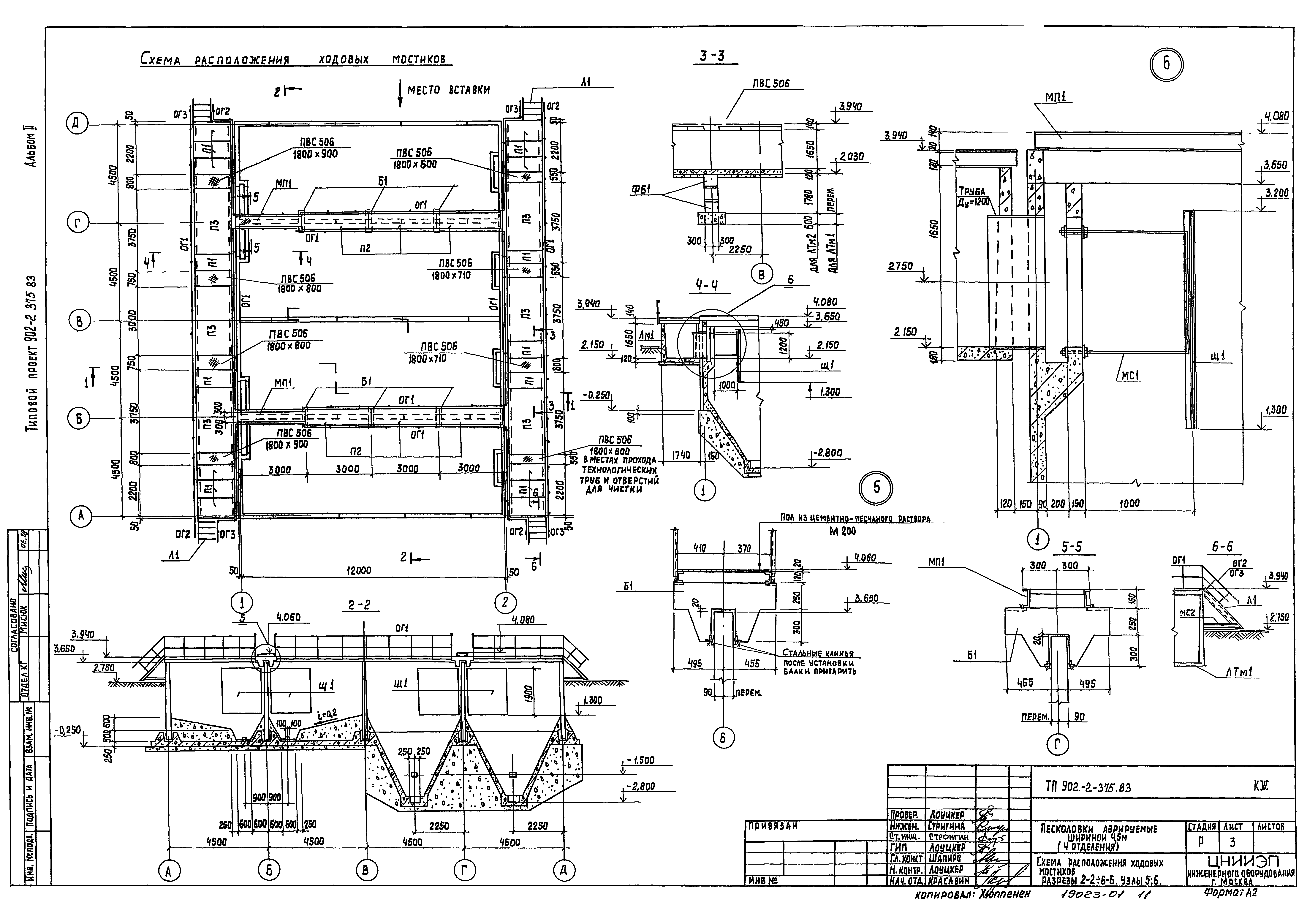
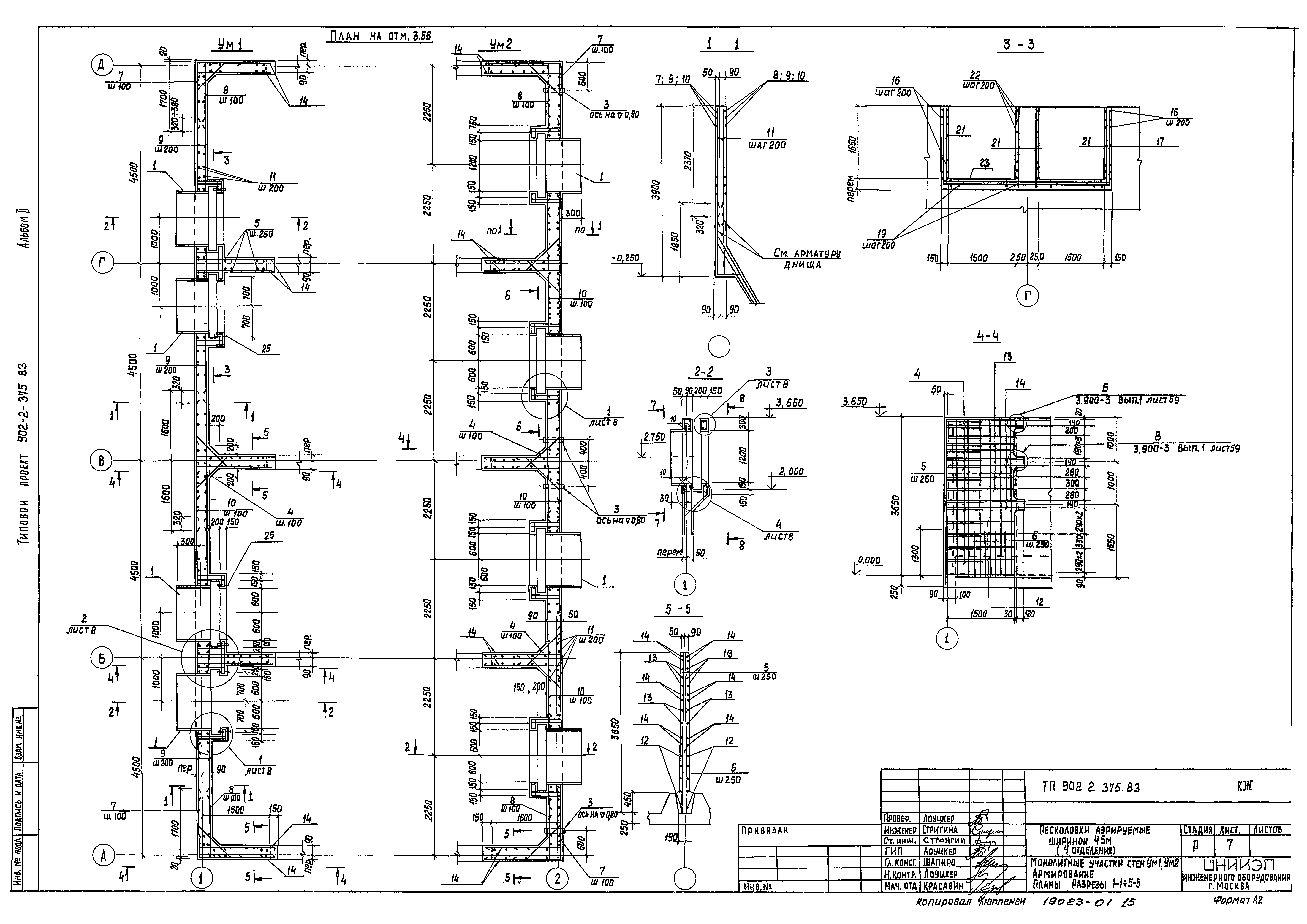
| Оглавление: | Содержание альбома Технологическая часть Общие данные План. Разрезы 1-1, 2-2. Детали Схемы систем 1В9, И1, 2В9, А0, И2 Спецификация систем 1В9, И1, 2В9, А0, И2 Строительная часть. Конструкции железобетонные Общие данные Схема расположения панелей и лотков. Разрез 1-1. Узлы 1…4 Схема расположения ходовых мостиков. Разрезы 2-2…6-6. Узлы 5, 6 Днище. Опалубочный чертеж Днище. Армирование. Схемы расположения верхних и нижних сеток каркасов Днище. Армирование Монолитные участки стен Ум1, Ум2. Армирование. Планы. Разрезы 1-1…5-5 Монолитные участки стен Ум1, Ум2. Армирование. Разрезы 6-6…8-8. Узлы Монолитные участки стен Ум1, Ум2. Спецификации Монолитные лотки ЛТМ1, ЛТМ2. Опалубочно-арматурный чертеж Вставка длиной 3 м Электротехническая часть Общие данные. Схема электрическая принципиальная питания электрооборудования Схема электрическая принципиальная управления задвижками и насосами. Схема подключения электрооборудования Кабельный журнал Расположение электрооборудования и прокладка кабеля |
| Разработан: | ЦНИИЭП инженерного оборудования |
| Утверждён: | 22.07.1974 Госгражданстрой (Gosgrazhdanstroy 164) |

























