Скачать Типовой проект 902-2-428.87 Альбом 2. Технологическая и электротехническая частиДата актуализации: 01.01.2021
|
| Обозначение: | Типовой проект 902-2-428.87 |
| Обозначение англ: | 902-2-428.87 |
| Статус: | не определен законодательством |
| Название рус.: | Альбом 2. Технологическая и электротехническая части |
| Дата добавления в базу: | 01.09.2013 |
| Дата актуализации: | 01.01.2021 |
| Дата введения: | 01.05.1987 |
| Дата окончания срока действия: | 30.06.2003 |
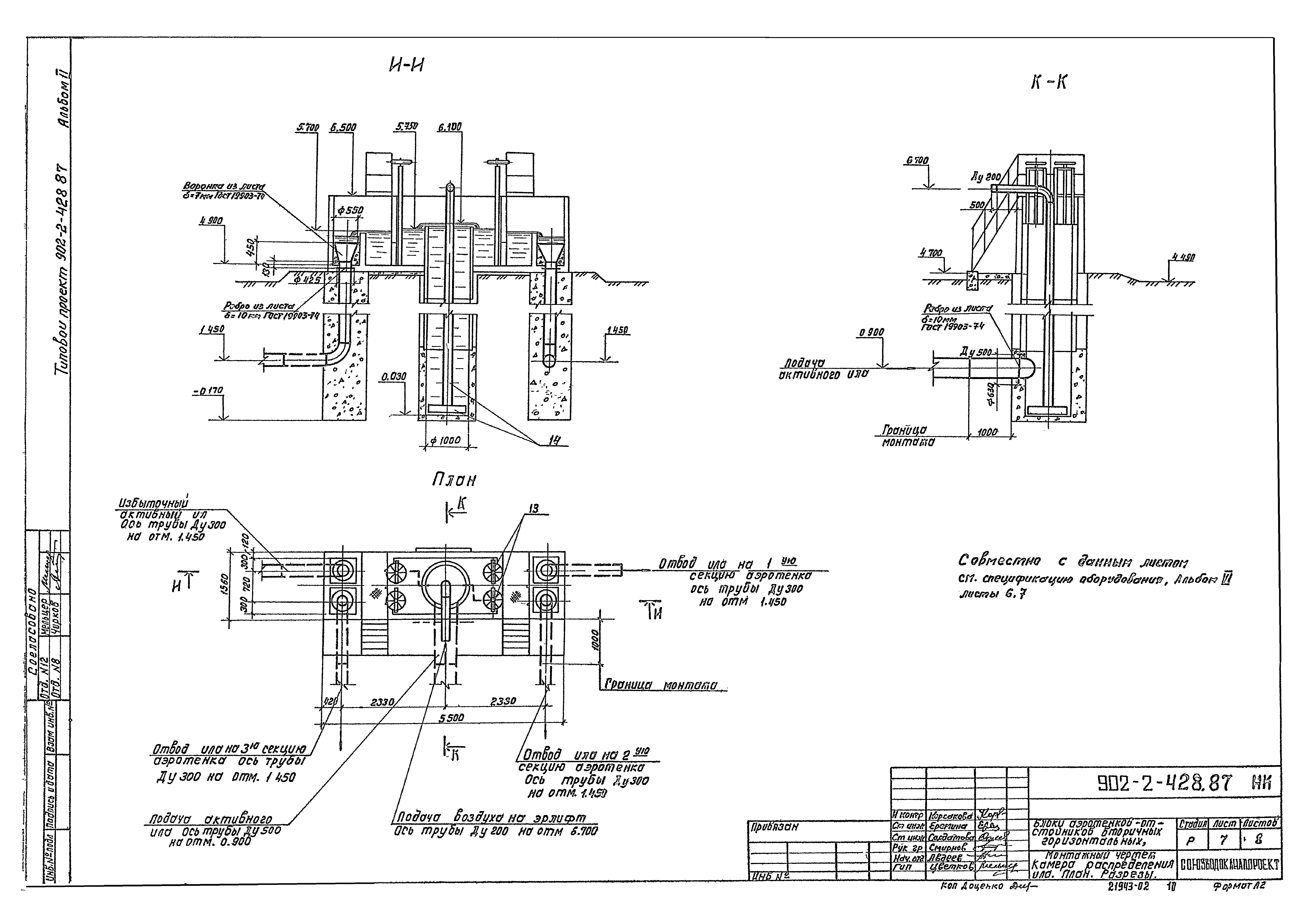
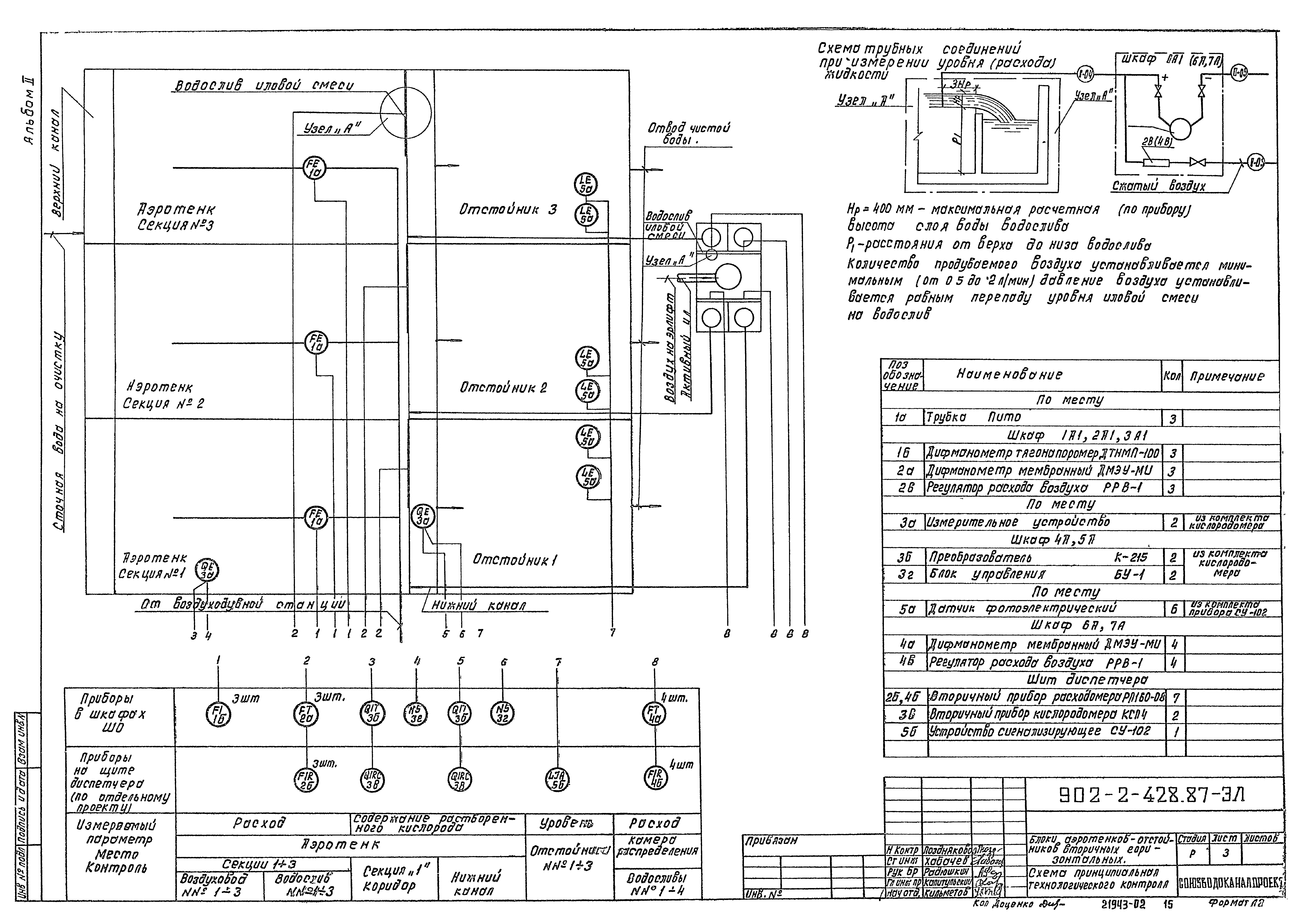
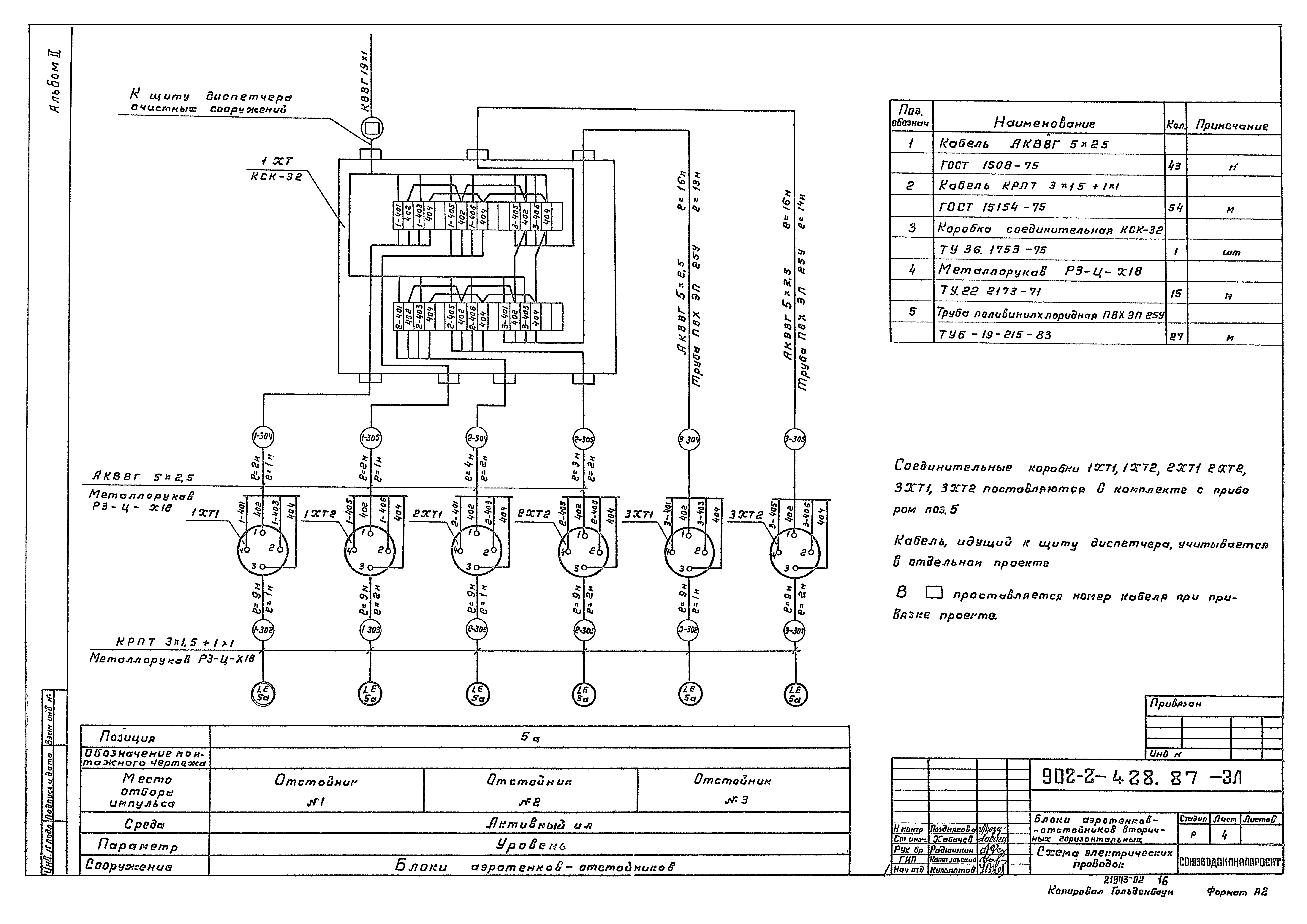
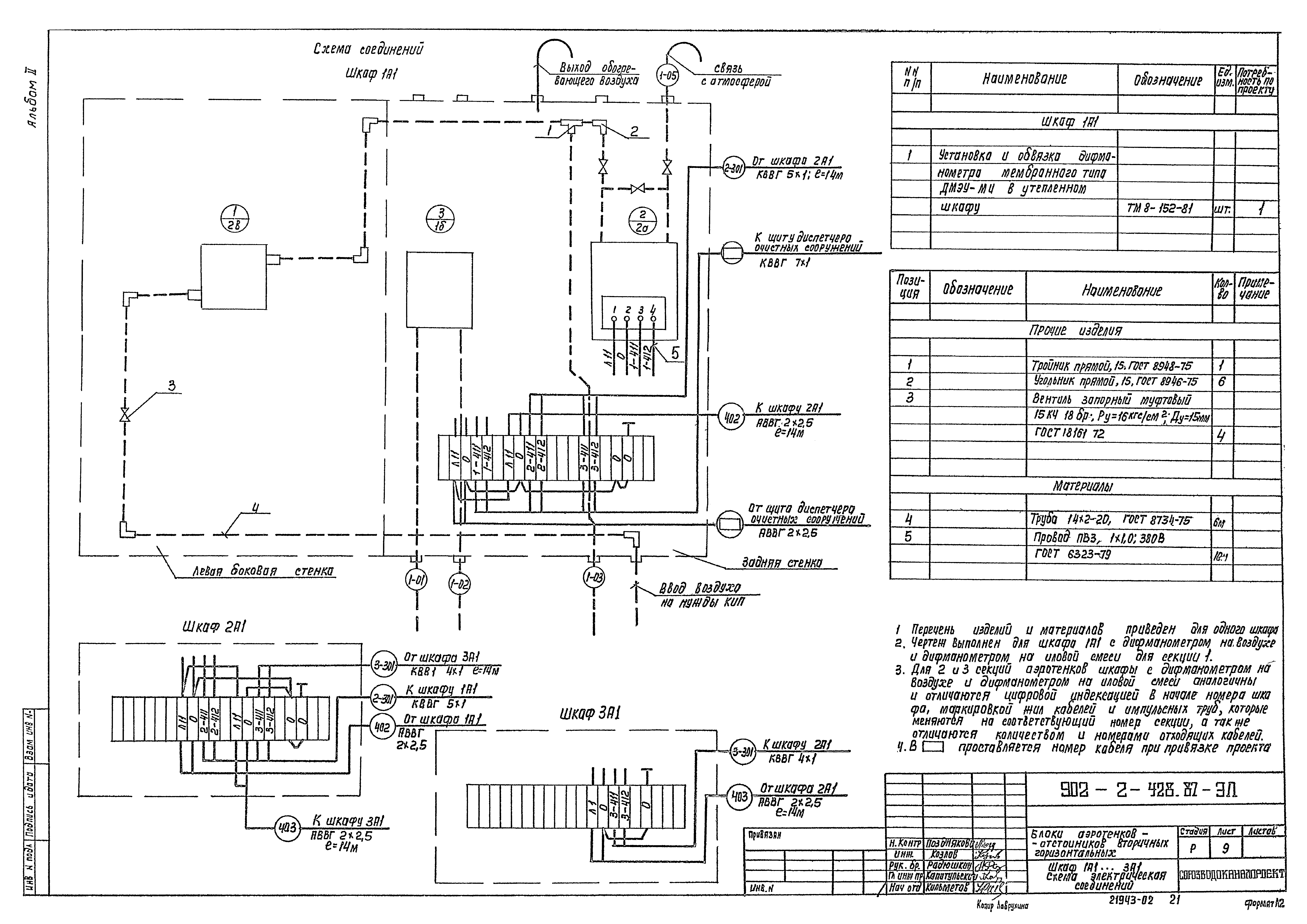
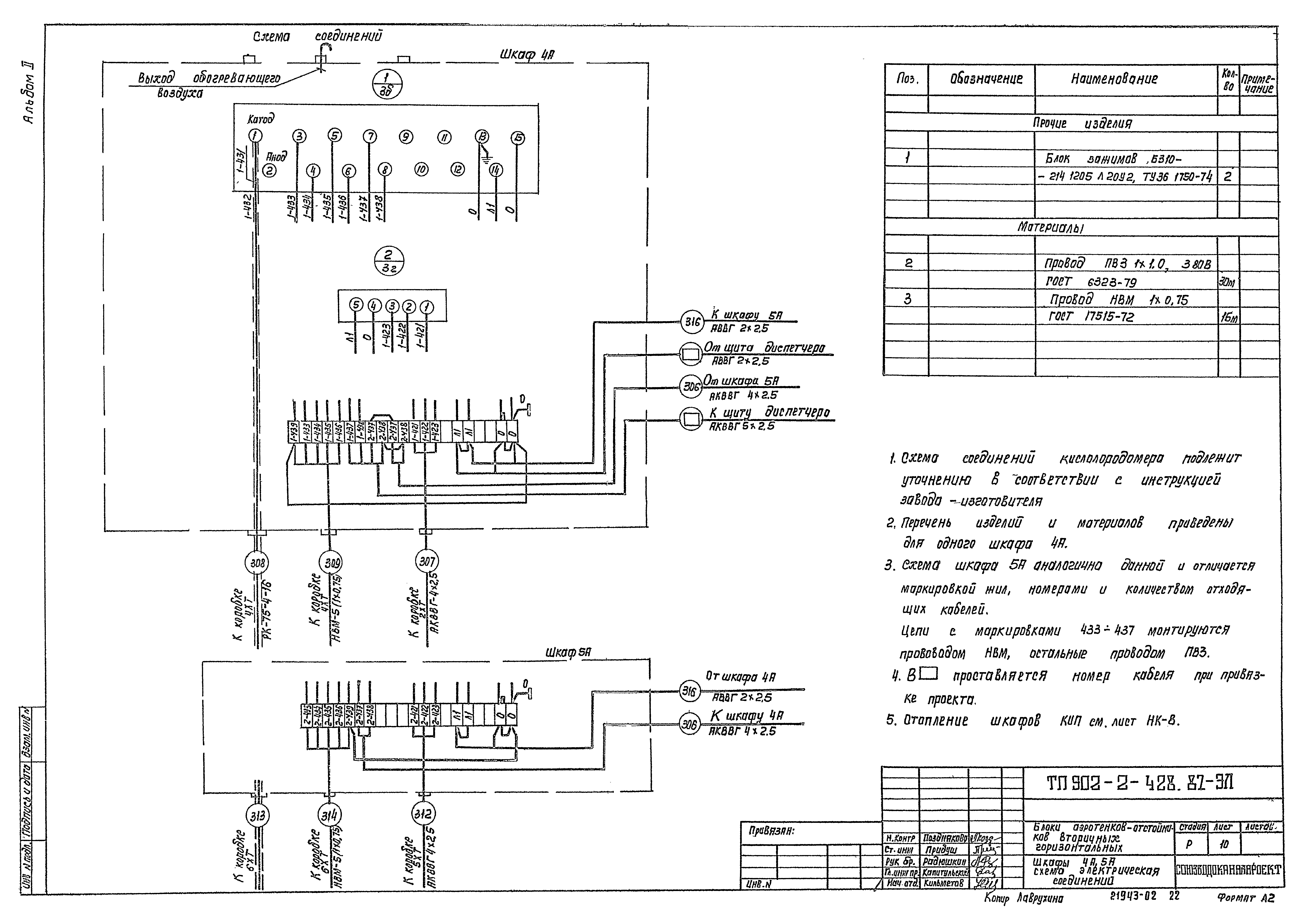
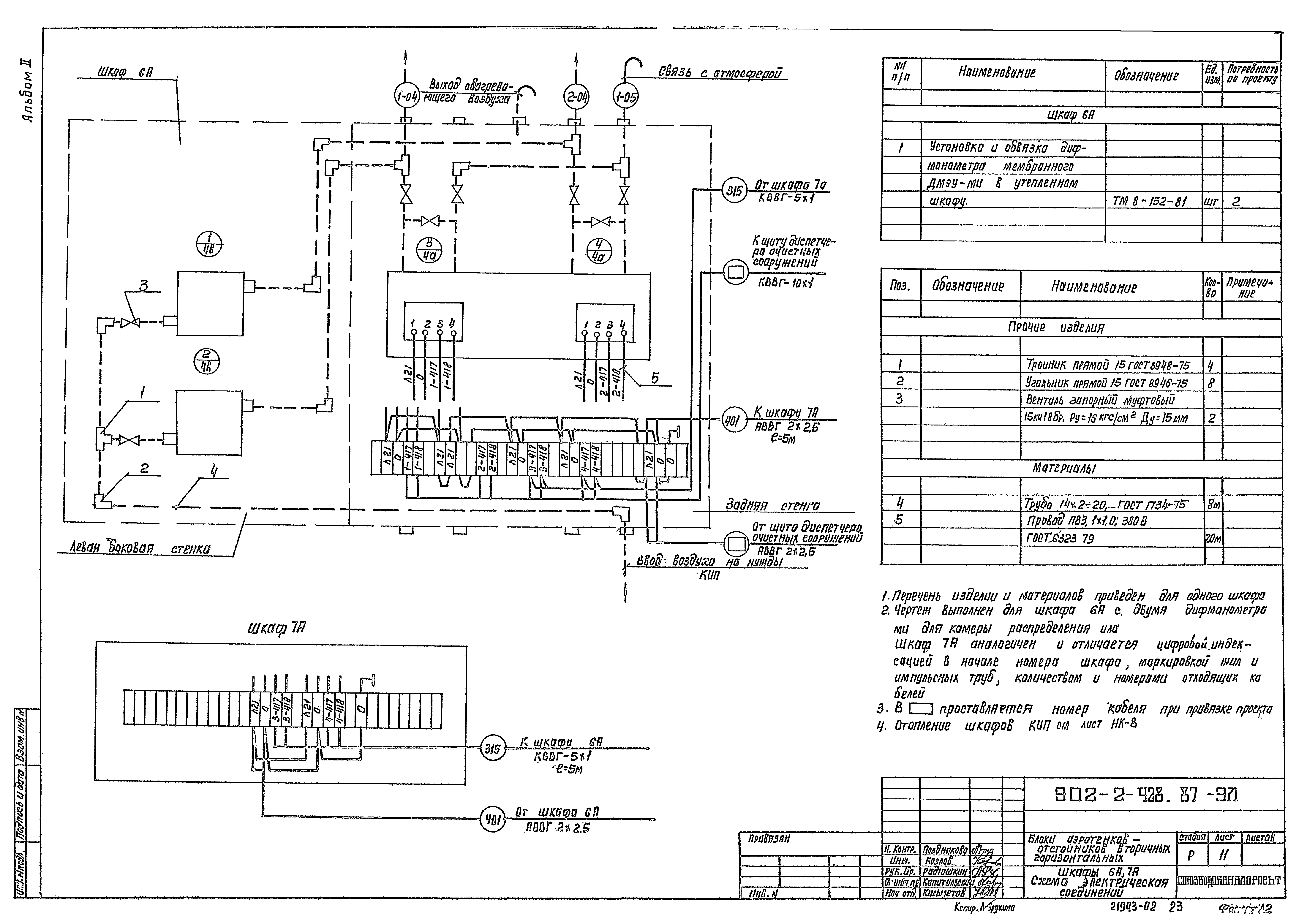
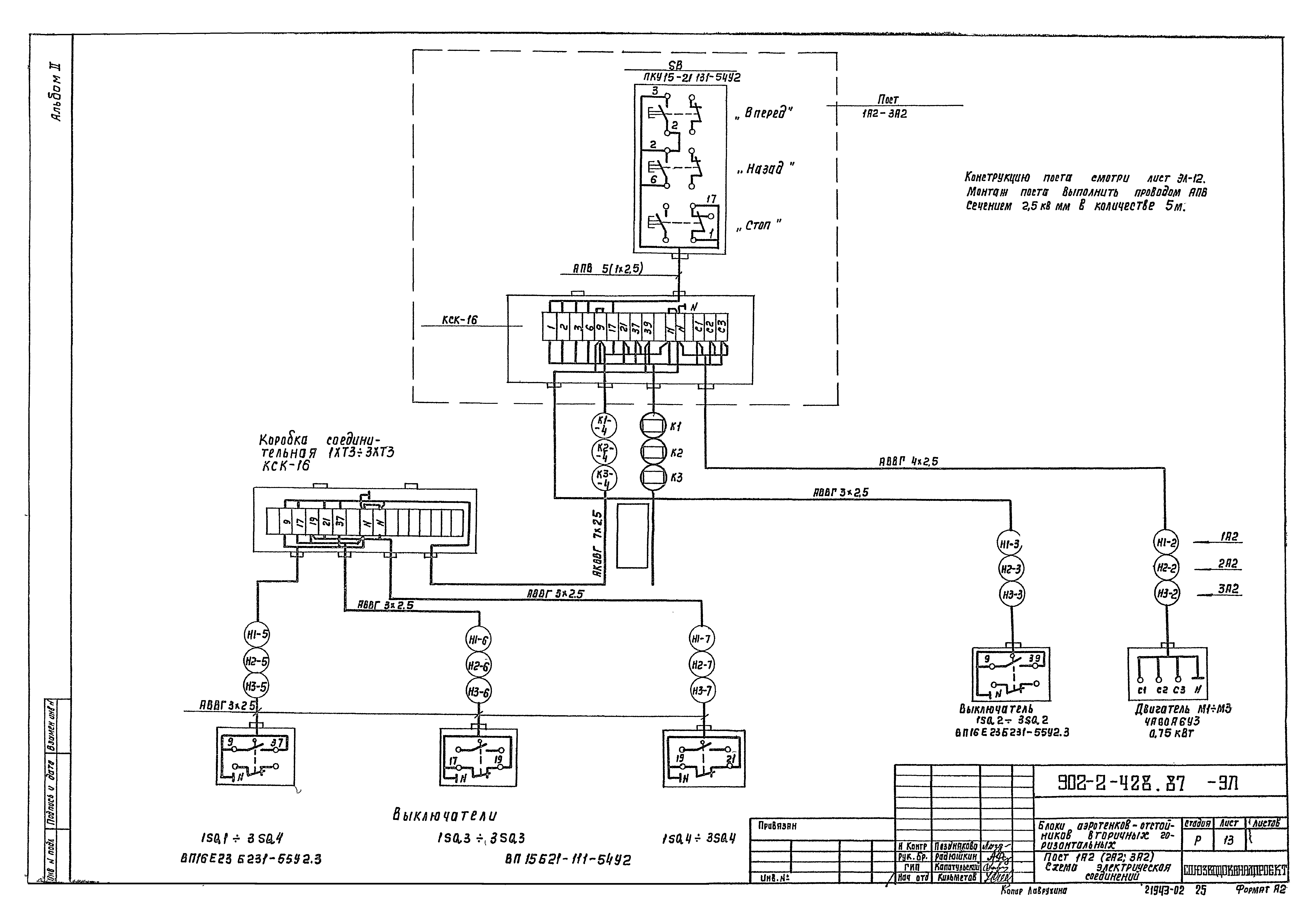
| Оглавление: | Содержание альбома Технологическая часть Общие данные Монтажный чертеж. План одной секции аэротенка в осях 1 - 4. Разрезы В-В, Г-Г, Д-Д Монтажный чертеж. План одной секции отстойника в осях 4 - 5. Разрезы Е-Е, Ж-Ж. Узел 1 Монтажный чертеж. Разрезы А-А, Б-Б. Узлы 1, 2 Аксонометрическая схема воздуховодов и аэраторов из пористых керамических труб Аксонометрическая схема воздуховодов и аэраторов из пористых керамических пластин Монтажный чертеж. Камера распределения ила. План. Разрезы И-И, К-К Отопление шкафов КИП сжатым воздухом. План, детали и узлы Аэратор из пористых керамических труб Электротехническая часть Общие данные Схема принципиальная управления тележкой илососа отстойника Схема принципиальная технологического контроля Схема электрических проводок Шкафы 1А1, 3А1. Схема электрических и трубных проводок Шкаф 4А. Схема электрических проводок Шкаф 5А. Схема электрических проводок Шкафы 6А, 7А. Схема электрических и трубных проводок Шкафы 1А1, 3А1. Схема электрическая соединений Шкафы 4А, 5А. Схема электрическая соединений Шкафы 6А, 7А. Схема электрическая соединений Пост 1А2, 3А2. Общий вид Пост 1А2 (2А2, 3А2). Схема электрическая соединений Кабельный журнал Расположение оборудования и прокладка кабелей и труб Установка преобразователя К-215 и блока управления БУ-1 в обогреваемом шкафу |
| Разработан: | Союзводоканалпроект |
| Утверждён: | 18.07.1986 Госстрой СССР (Государственный комитет Совета Министров СССР по делам строительства) (USSR Gosstroy АЧ-42) |





























