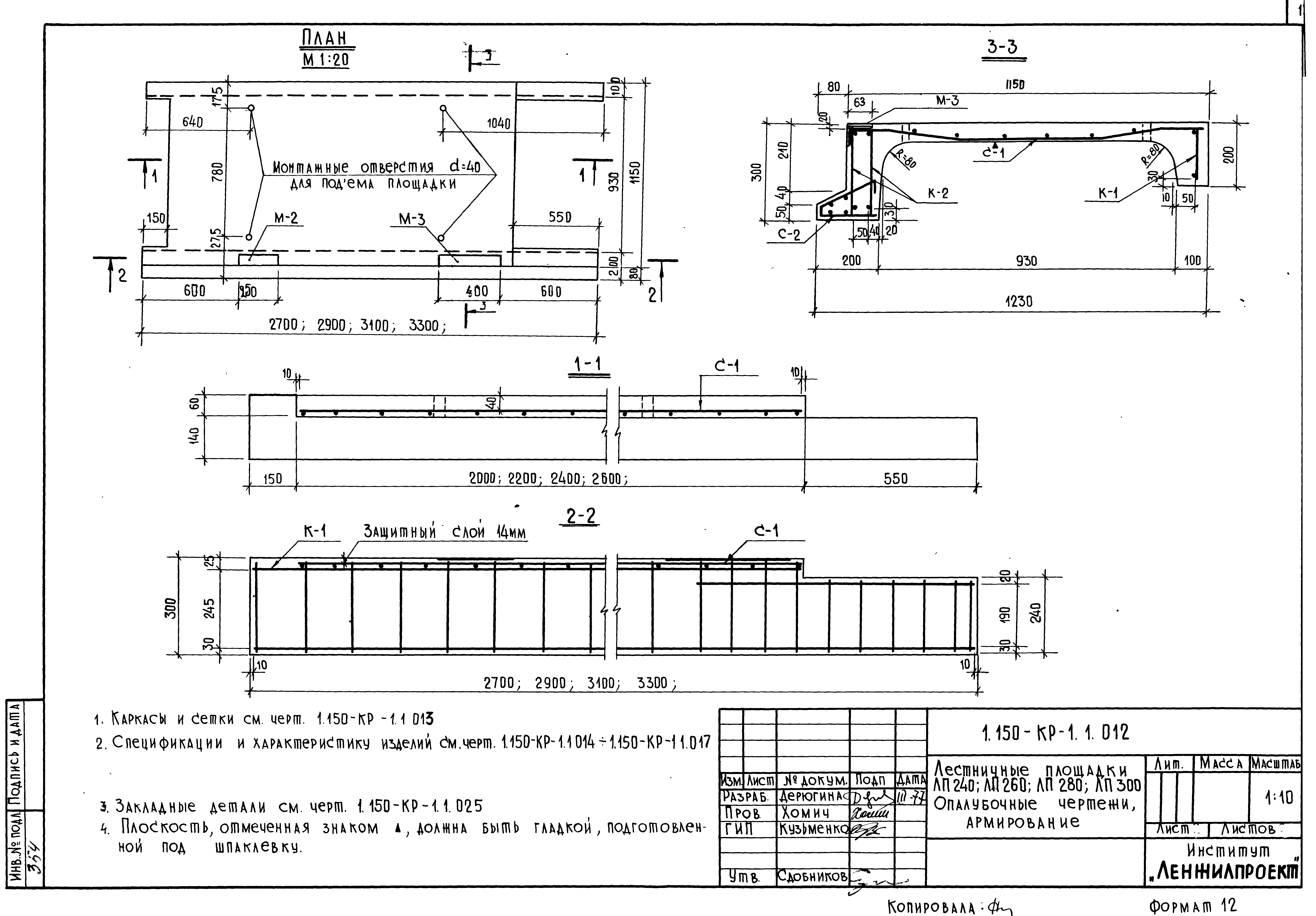
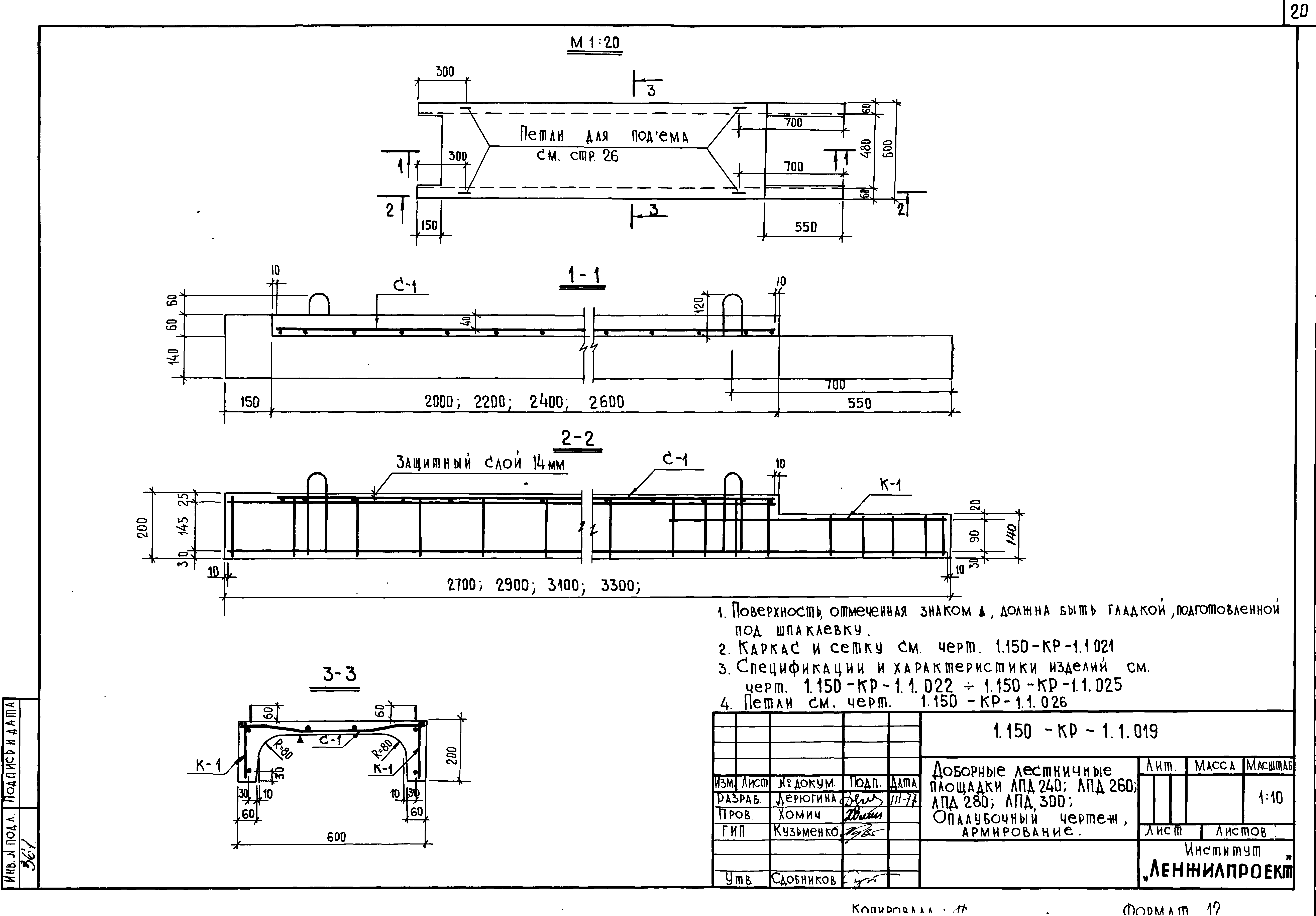
Скачать Серия 1.150-КР-1 Альбом I. Часть 1. Рабочие чертежи сборных железобетонных изделий. Изделия (марши для высоты этажа от 2,85 до 3,90 м, шириной 115 см; площадки шириной 115 см и 60 см, длиной 270, 290, 310 и 330 см)Дата актуализации: 01.01.2021 Серия 1.150-КР-1
Альбом I. Часть 1. Рабочие чертежи сборных железобетонных изделий. Изделия (марши для высоты этажа от 2,85 до 3,90 м, шириной 115 см; площадки шириной 115 см и 60 см, длиной 270, 290, 310 и 330 см)| Обозначение: | Серия 1.150-КР-1 | | Обозначение англ: | Series 1.150-КР-1 | | Статус: | не действует | | Название рус.: | Альбом I. Часть 1. Рабочие чертежи сборных железобетонных изделий. Изделия (марши для высоты этажа от 2,85 до 3,90 м, шириной 115 см; площадки шириной 115 см и 60 см, длиной 270, 290, 310 и 330 см) | | Дата добавления в базу: | 01.09.2013 | | Дата актуализации: | 01.01.2021 | | Разработан: | Ленжилпроект Ленгорисполкома
| | Утверждён: | 01.03.1977 Ленжилпроект
|
                            
|