Скачать Типовой проект 902-7-2.84 Альбом 1. Конструкции железобетонные. Конструкции металлические. Технологическая часть. Электротехническая часть. ВентиляцияДата актуализации: 01.01.2021
|
| Обозначение: | Типовой проект 902-7-2.84 |
| Обозначение англ: | 902-7-2.84 |
| Статус: | не определен законодательством |
| Название рус.: | Альбом 1. Конструкции железобетонные. Конструкции металлические. Технологическая часть. Электротехническая часть. Вентиляция |
| Дата добавления в базу: | 01.09.2013 |
| Дата актуализации: | 01.01.2021 |
| Дата введения: | 01.03.1985 |
| Дата окончания срока действия: | 30.06.2003 |
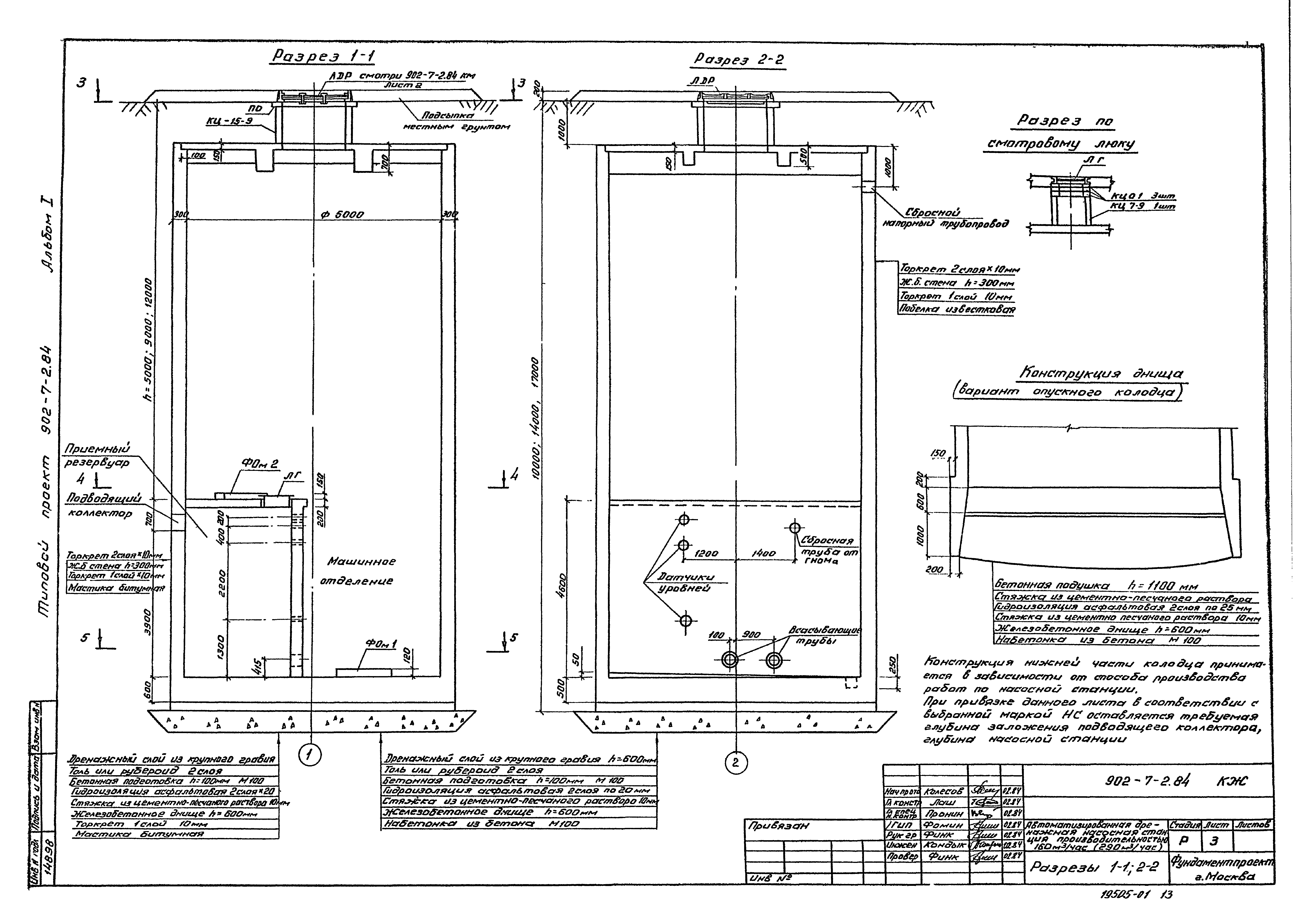
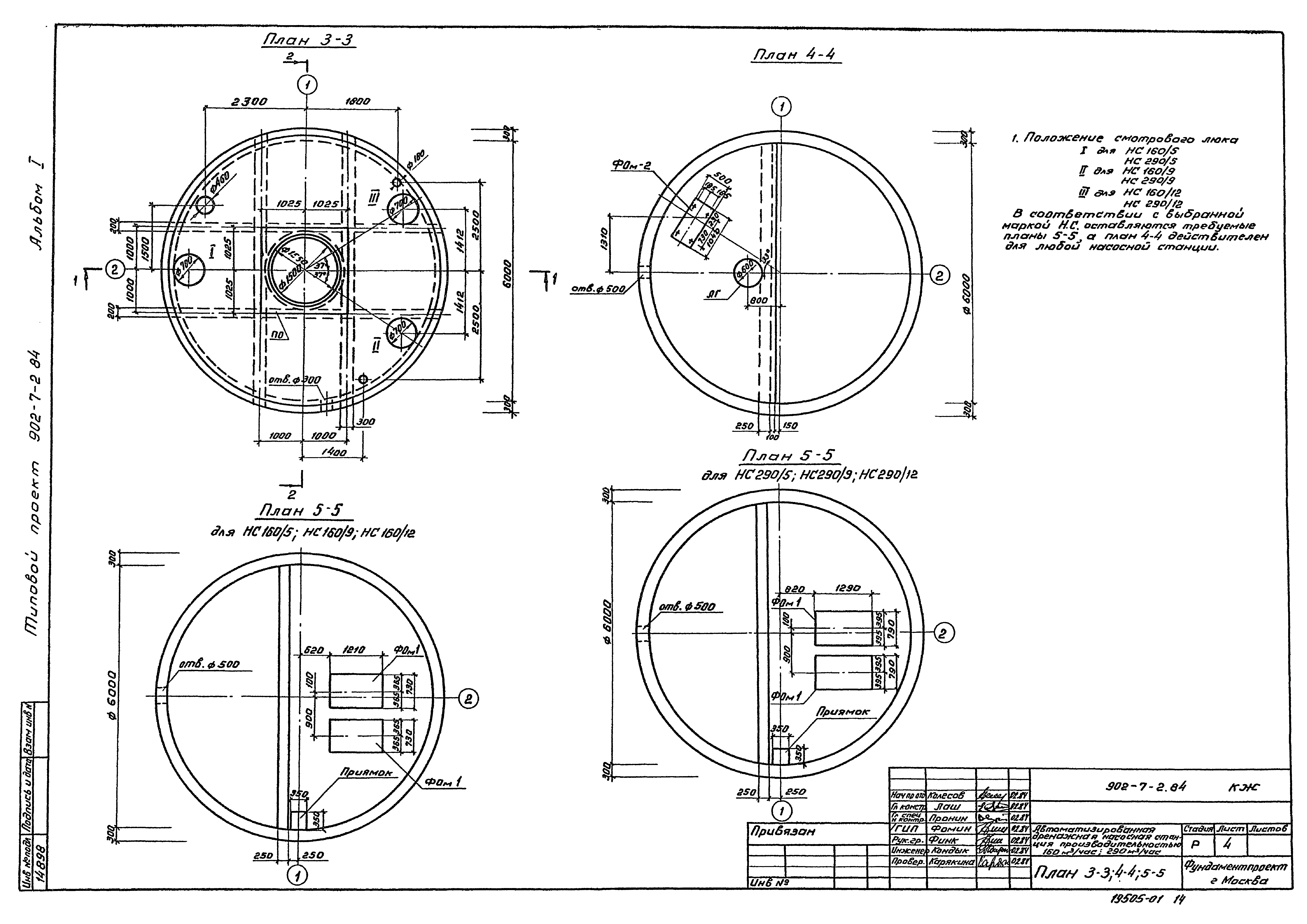
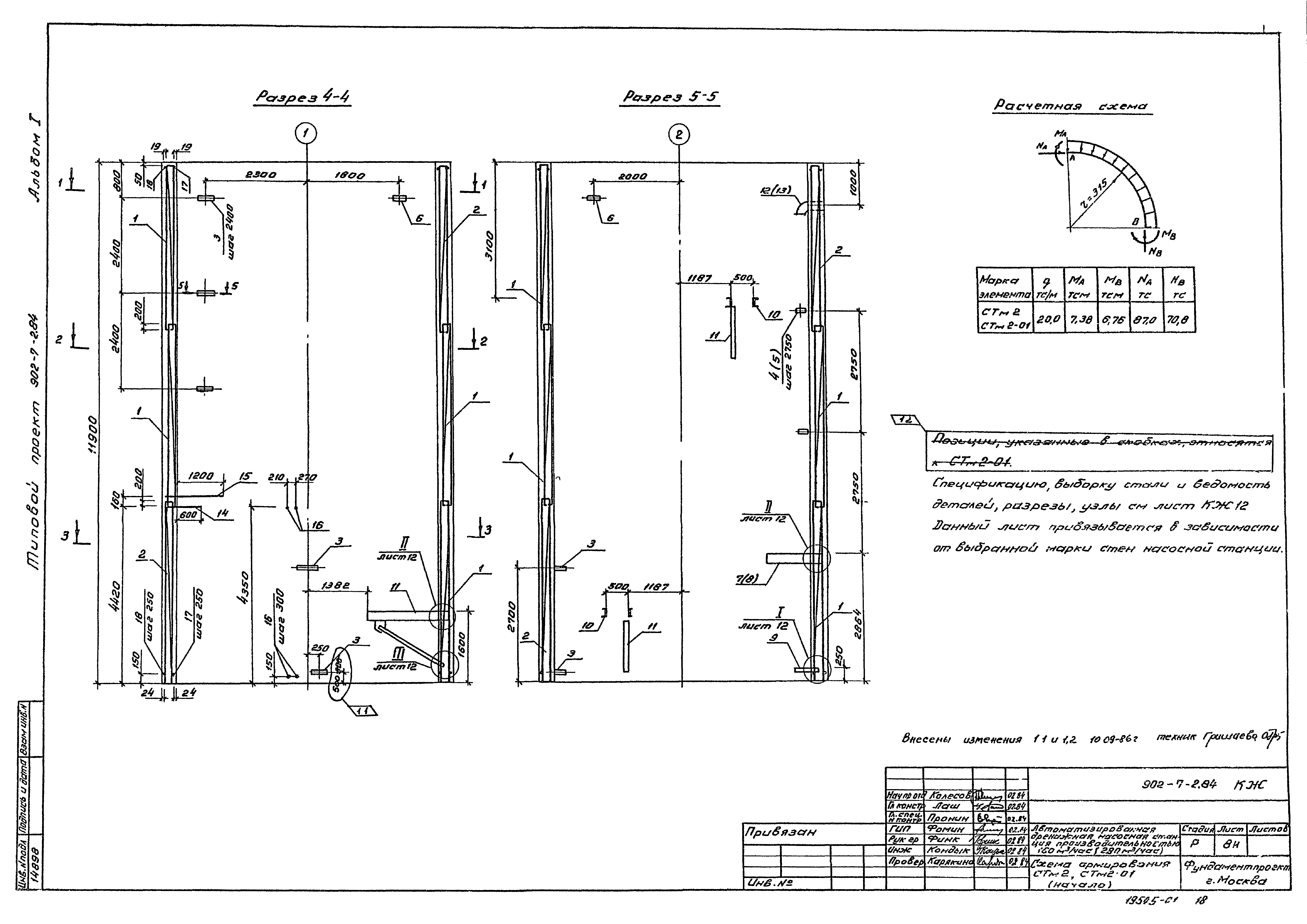
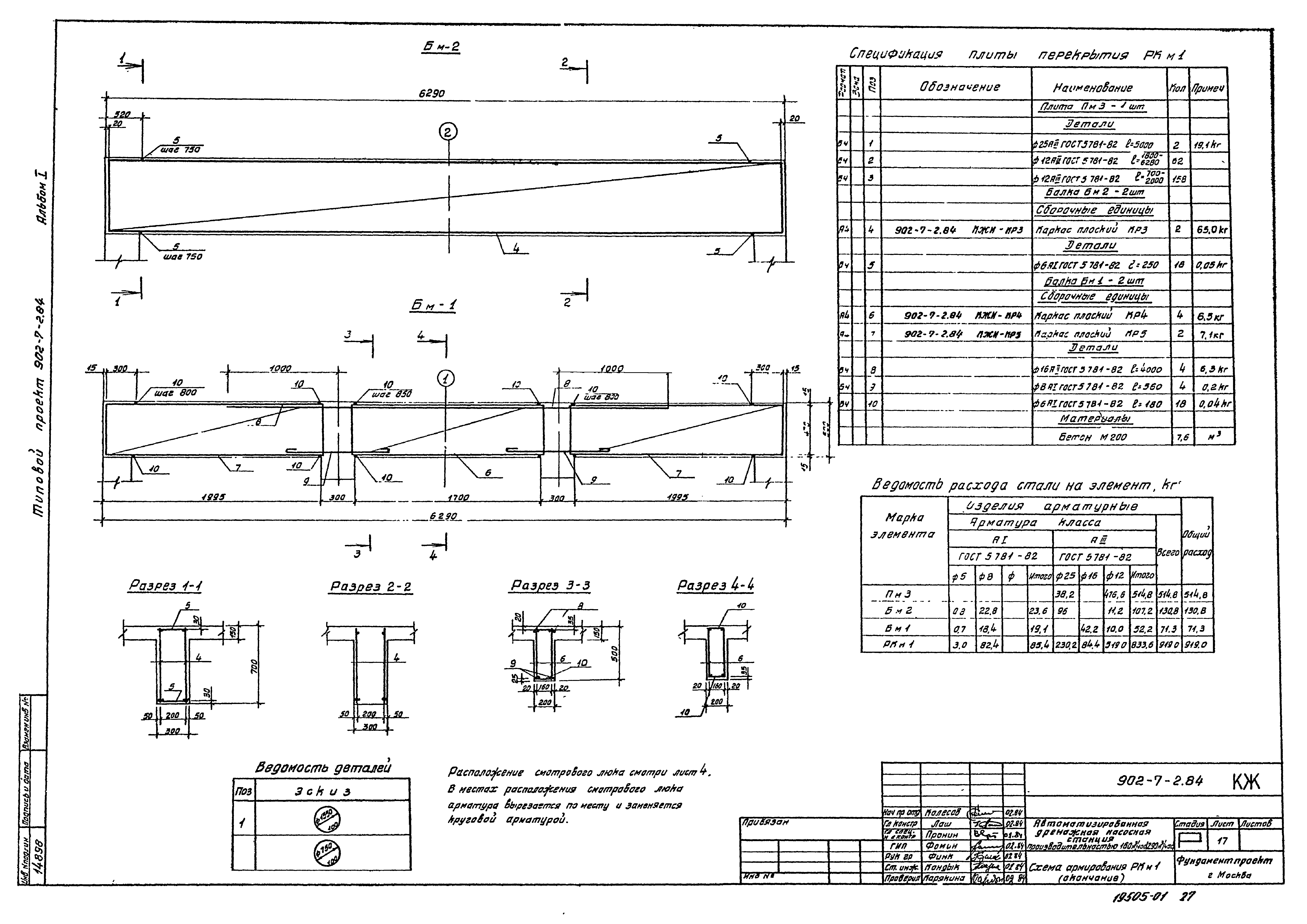
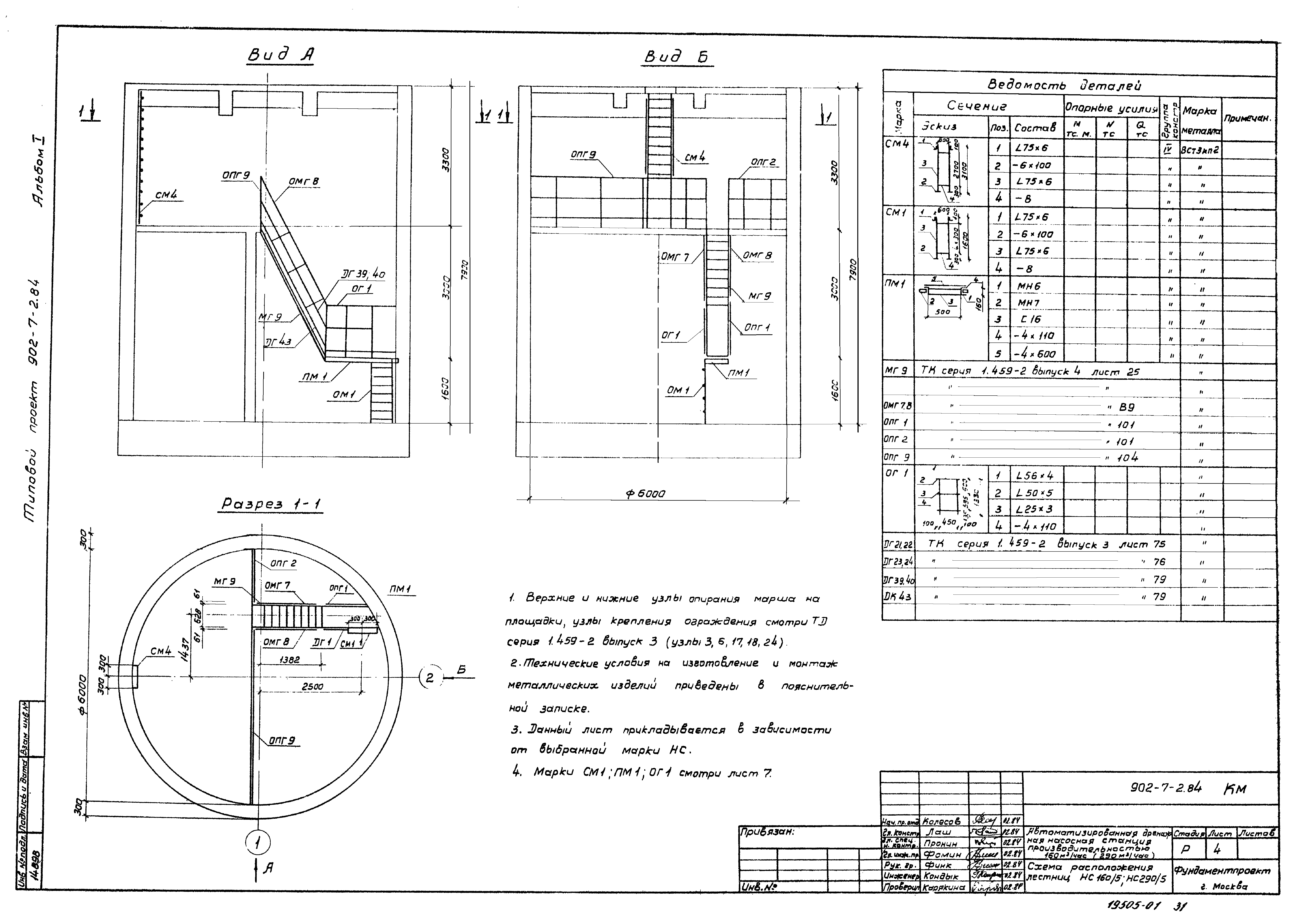
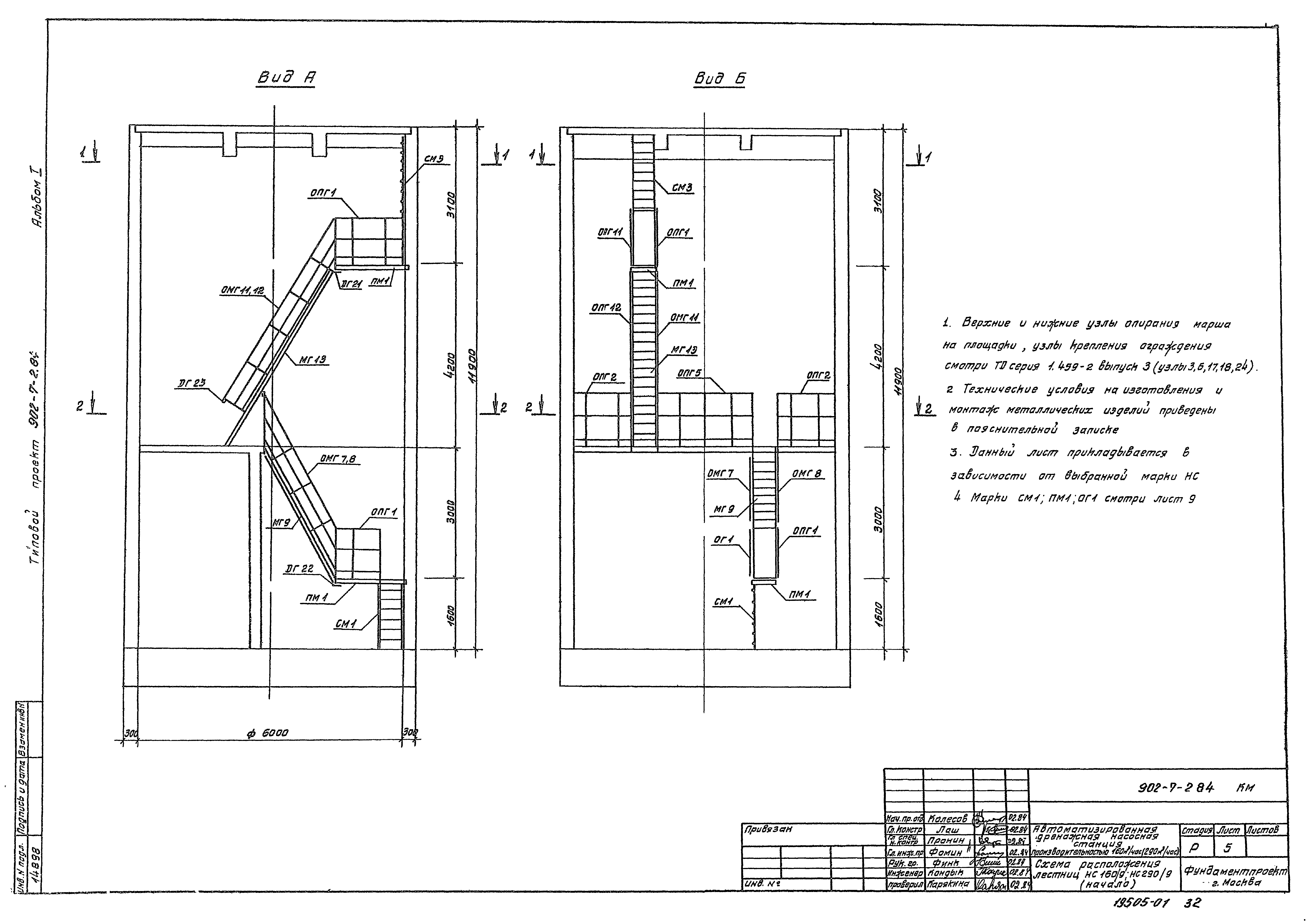
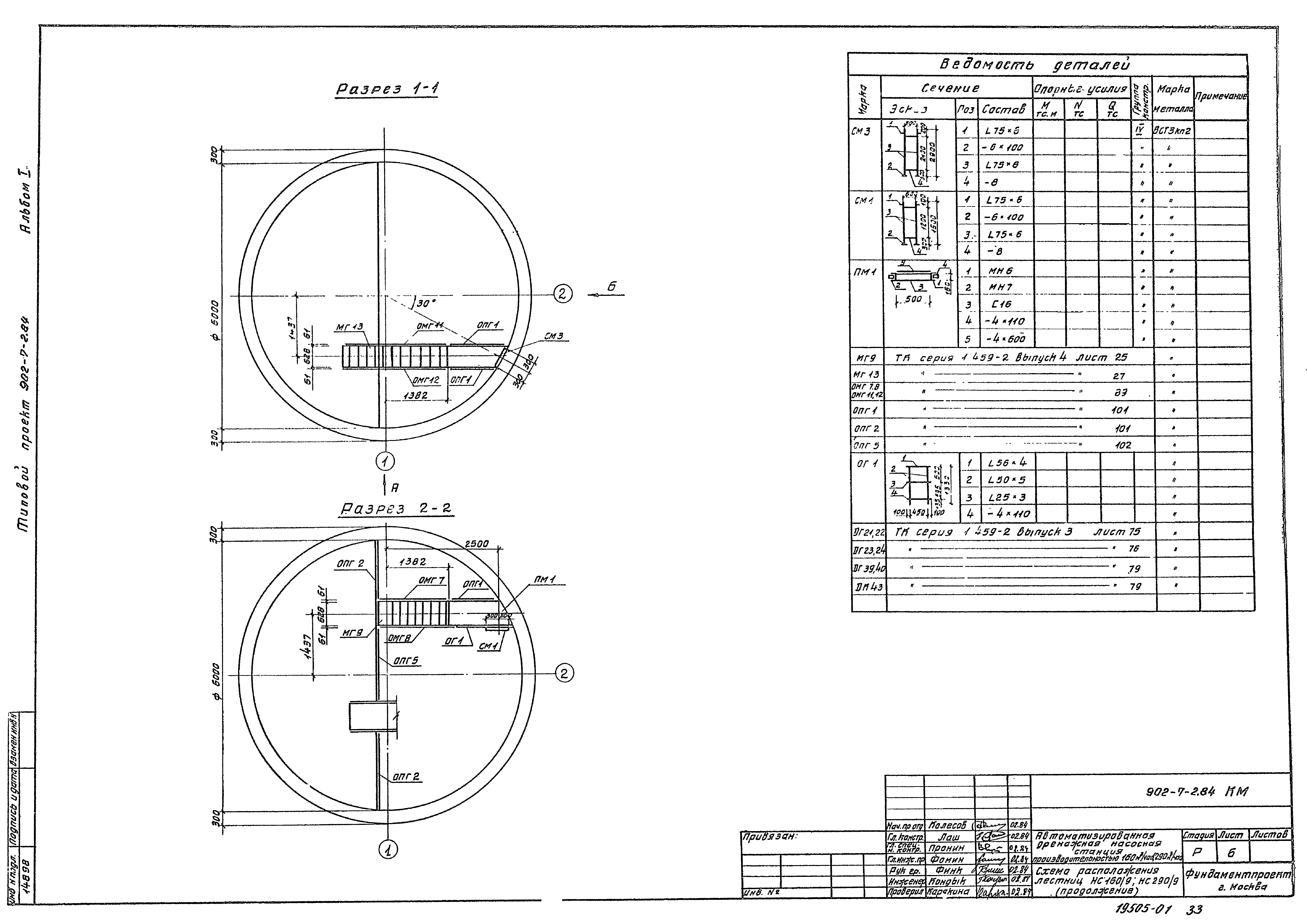
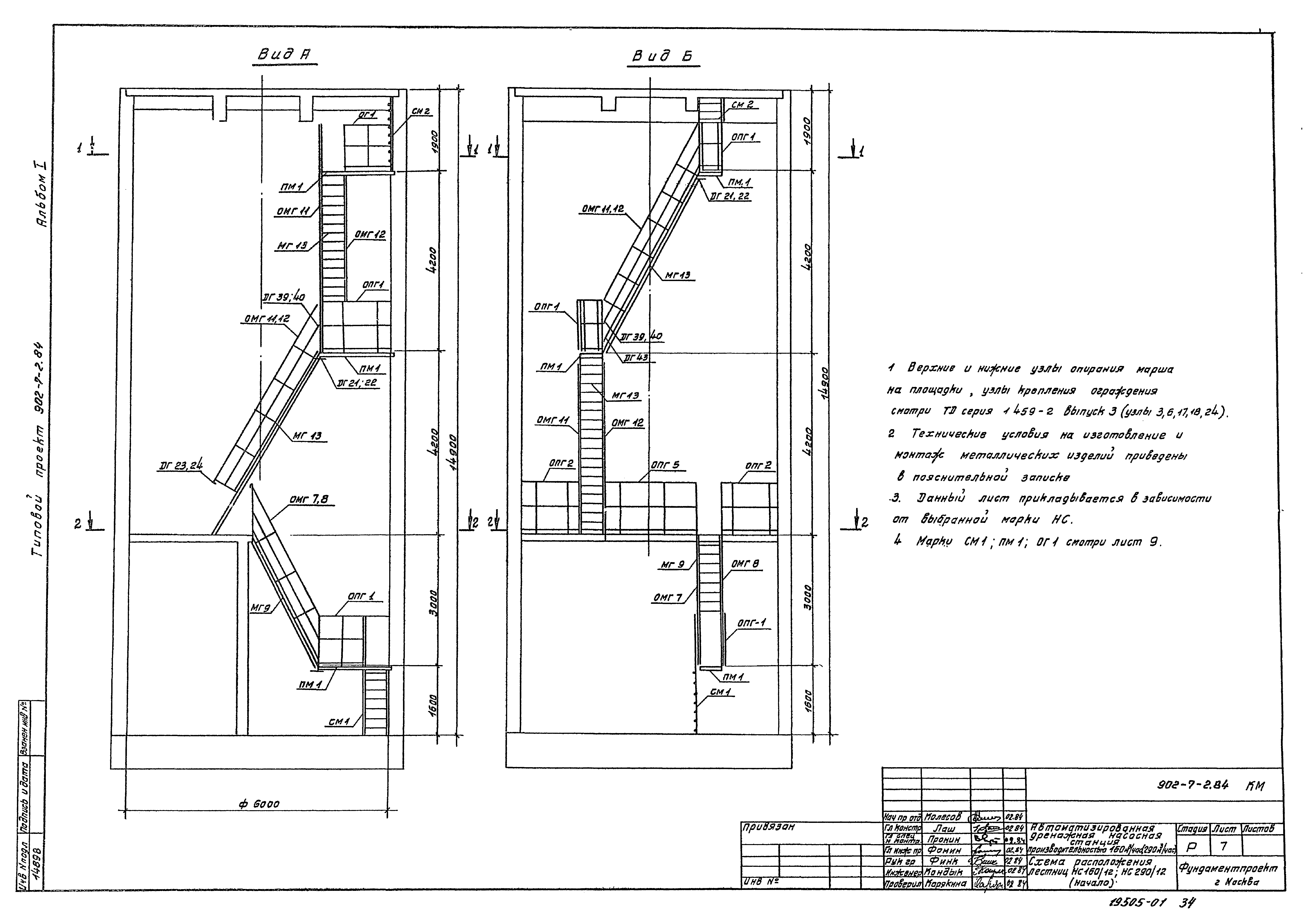
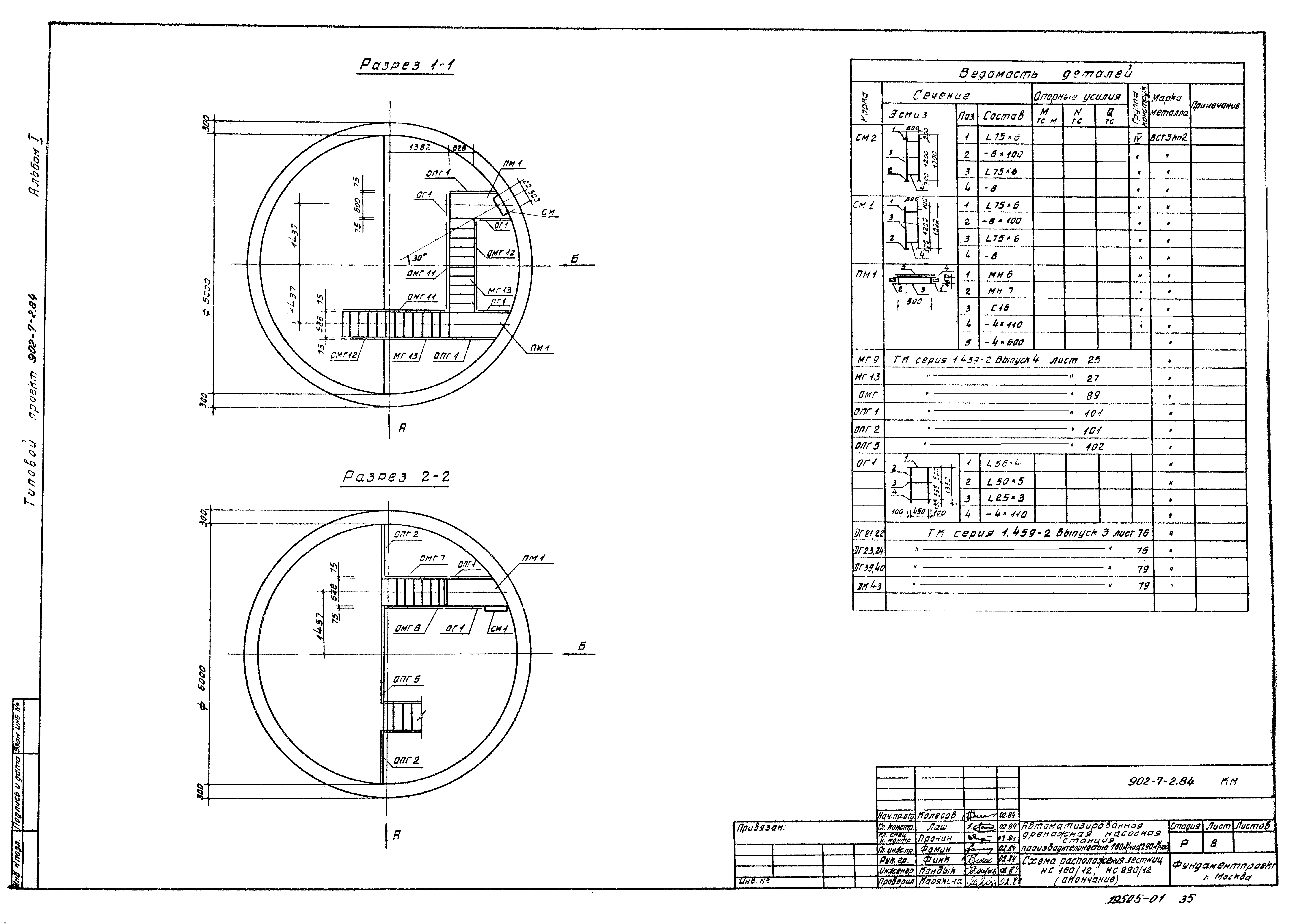
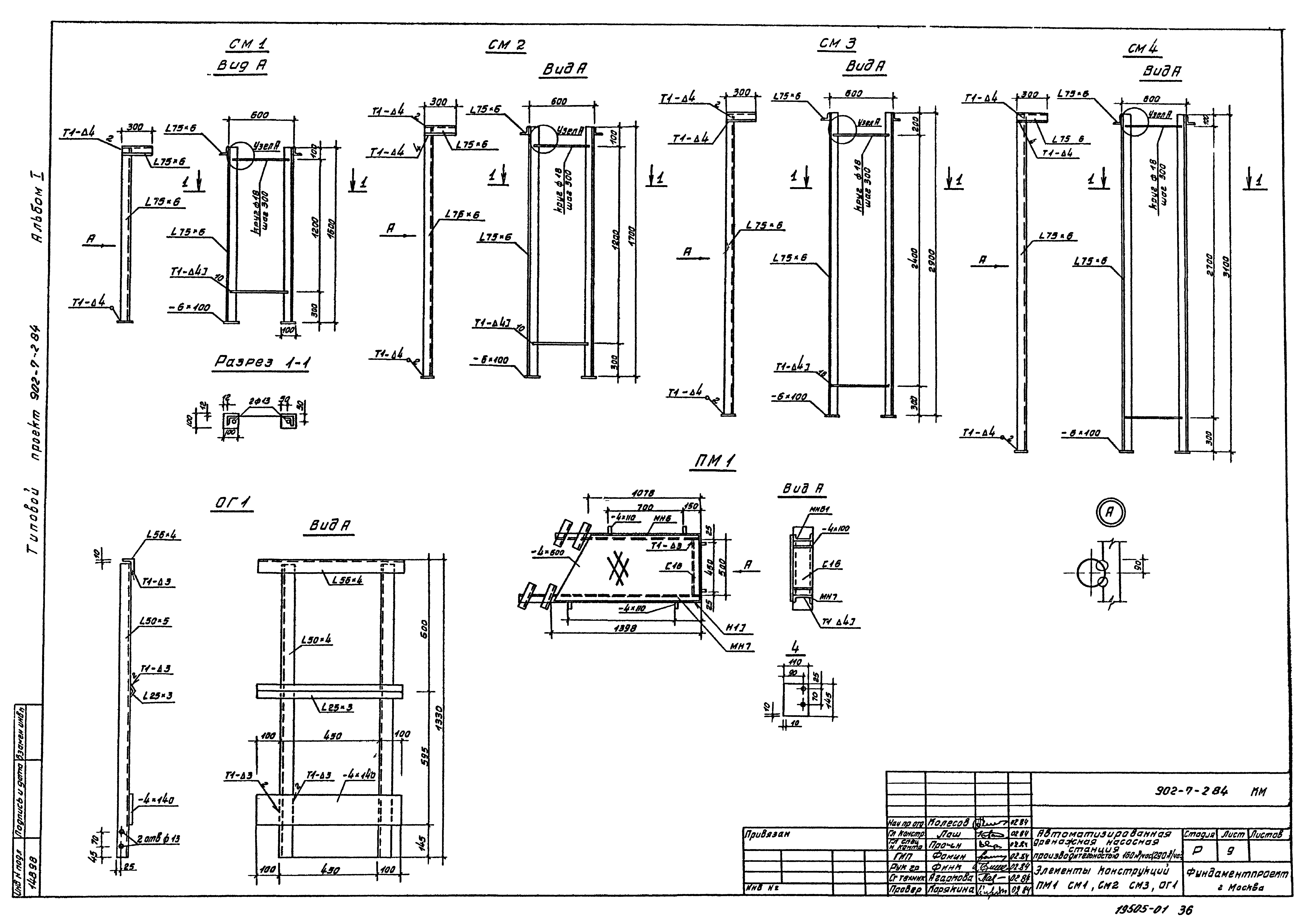
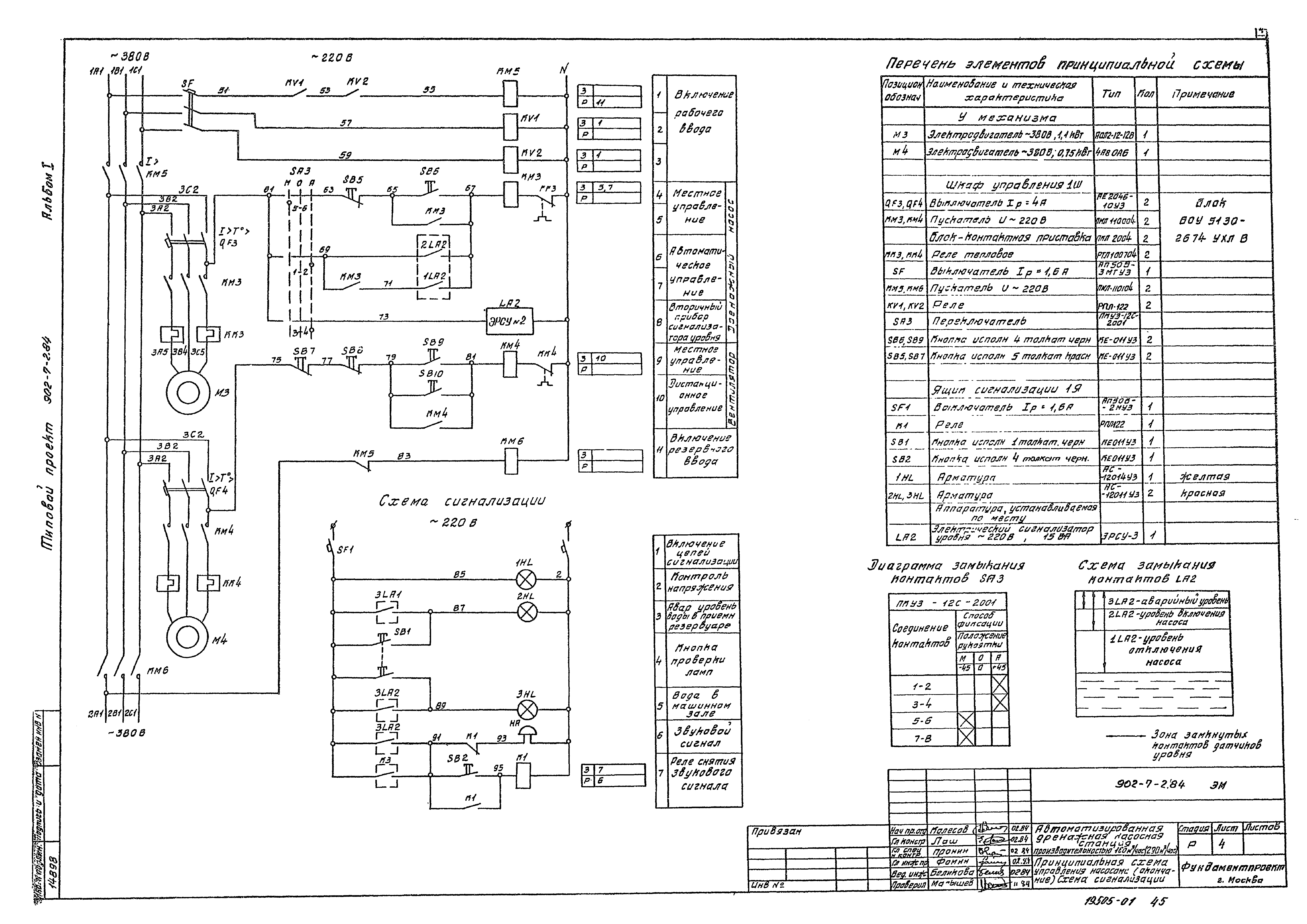
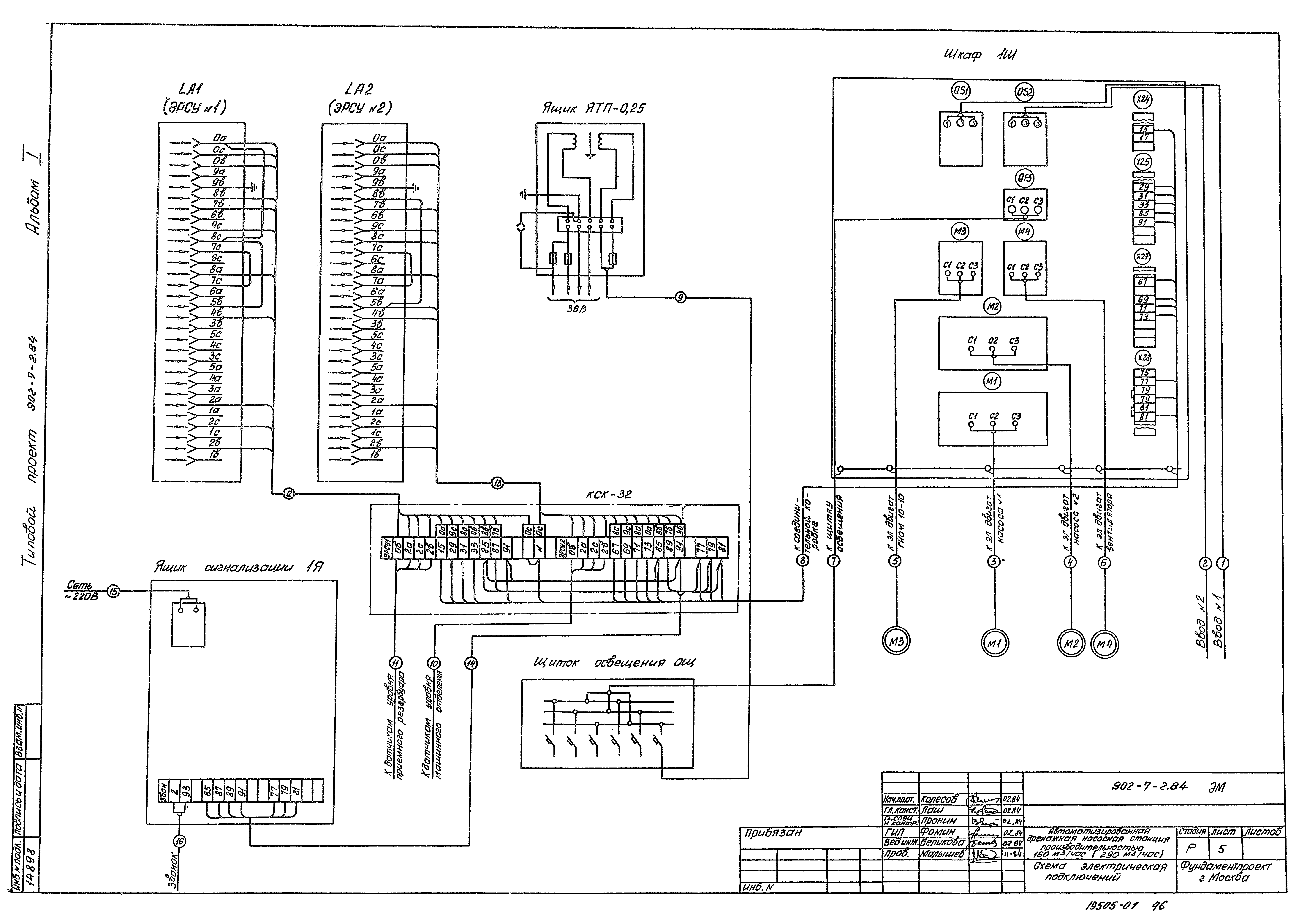
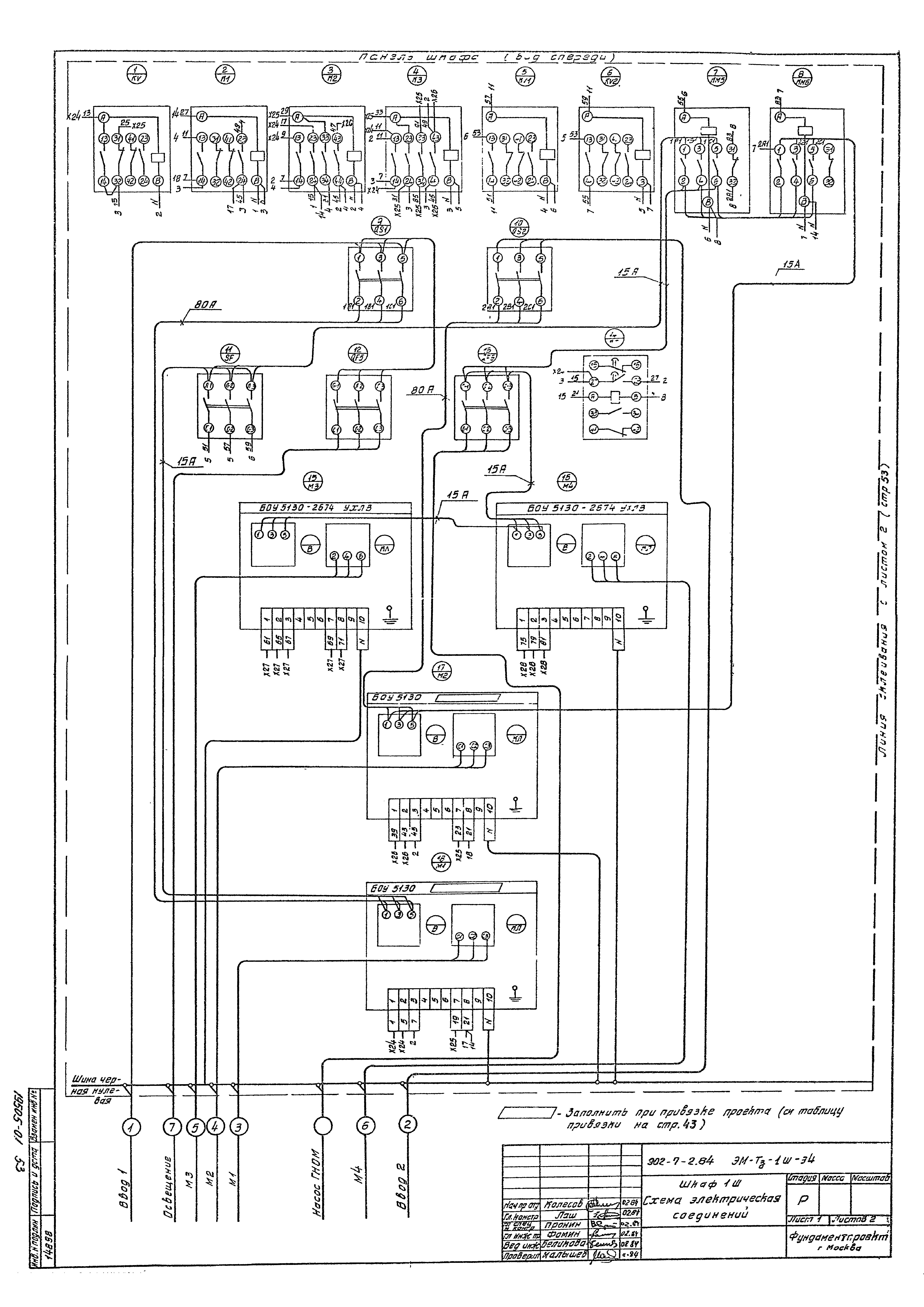
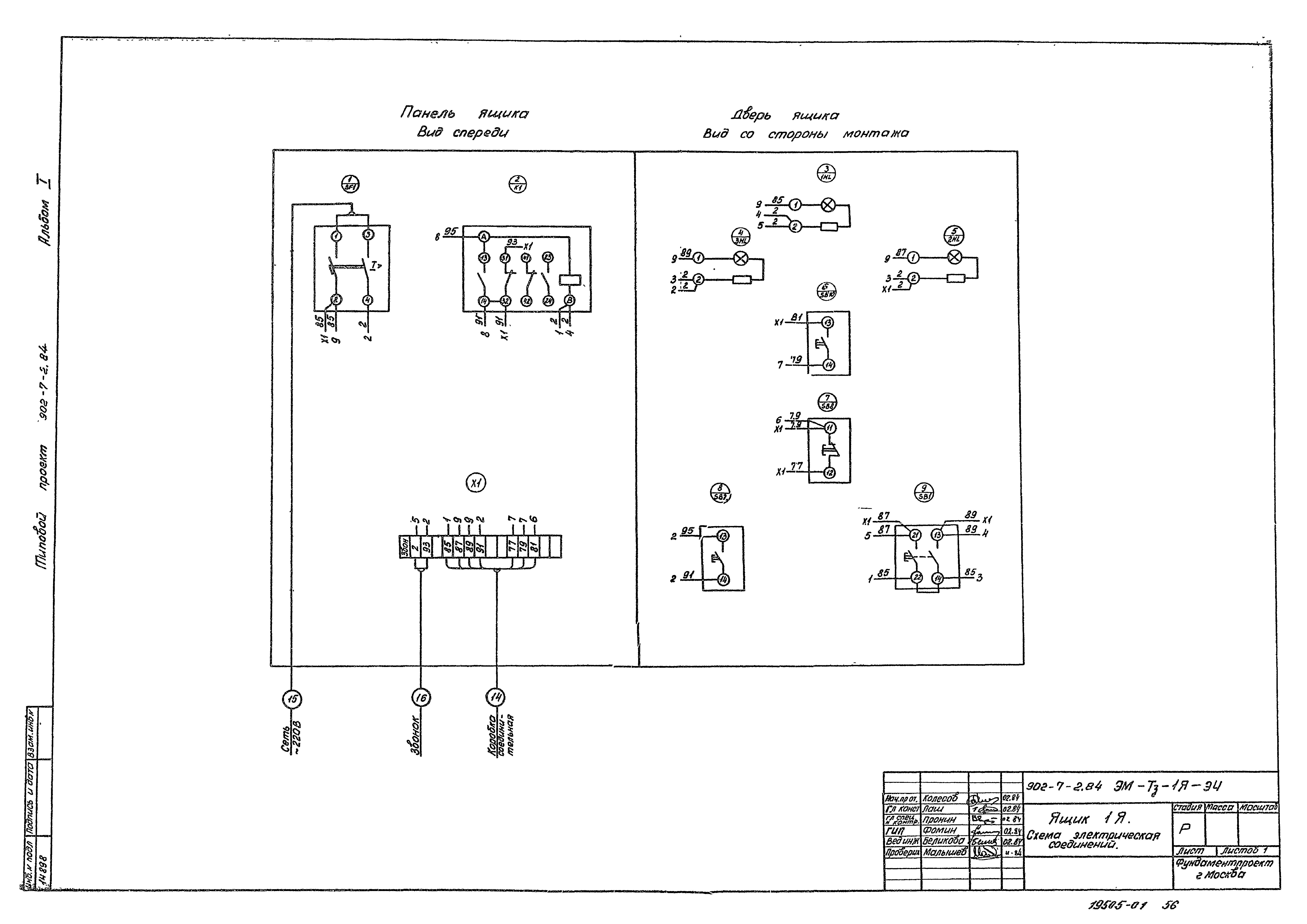
| Оглавление: | Содержание альбома Пояснительная записка Конструкции железобетонные Общие данные Схема расположения железобетонных элементов Разрезы 1-1, 2-2 Планы 3-3, 4-4, 5-5 Схема армирования Пм1 Схема армирования Пм1 (вариант опускного колодца) Схема армирования СТм1, СТм1-01 Схема армирования СТм2, СТм2-01 Схема армирования СТм3, СТм3-01 Схема армирования ножа (вариант опускного колодца) Схема армирования Пм2, СТм4, СТм4-01 Схема армирования РКм1 Конструкции металлические Общие данные Техническая спецификация металла на лестницы Техническая спецификация металла на люки Схема расположения элементов лестниц НС 160/5, НС290/5 Схема расположения элементов лестниц НС 160/9, НС290/9 Схема расположения элементов лестниц НС 160/12, НС290/12 Элементы конструкций ПМ2, ОГ1, СМ1, СМ2, СМ3, СМ4 Технологическая часть Общие данные Монтажный чертеж НС160/5, НС160/9, НС160/12 Монтажный чертеж НС290/5, НС290/9, НС290/12 Электротехническая часть Общие данные Ведомость электрооборудования, приборов, кабельных изделий и материалов Принципиальная схема управления насосами Схема сигнализации Схема электрическая подключений Кабельный журнал План с расположением электрооборудования и раскладкой кабеля Электрическое освещение Установка датчиков уровня Шкаф 1Ш. Задание заводу-изготовителю Ящик 1Я. Задание заводу-изготовителю Вентиляция Общие данные План. Разрезы. Схемы систем |
| Разработан: | Фундаментпроект |
| Утверждён: | 27.12.1982 Минмонтажспецстрой СССР (USSR Minmontazhspetsstroy ) |



























































