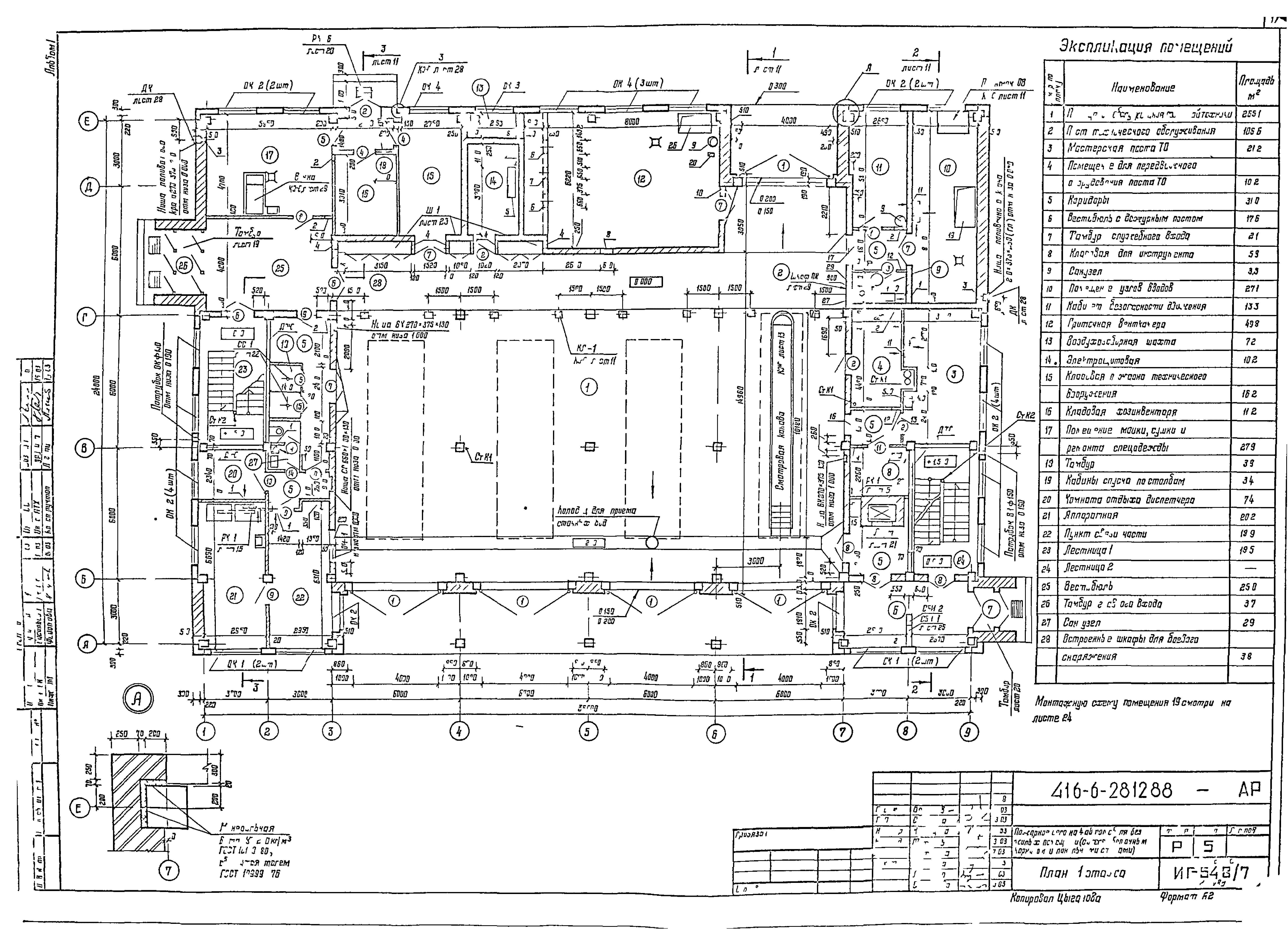
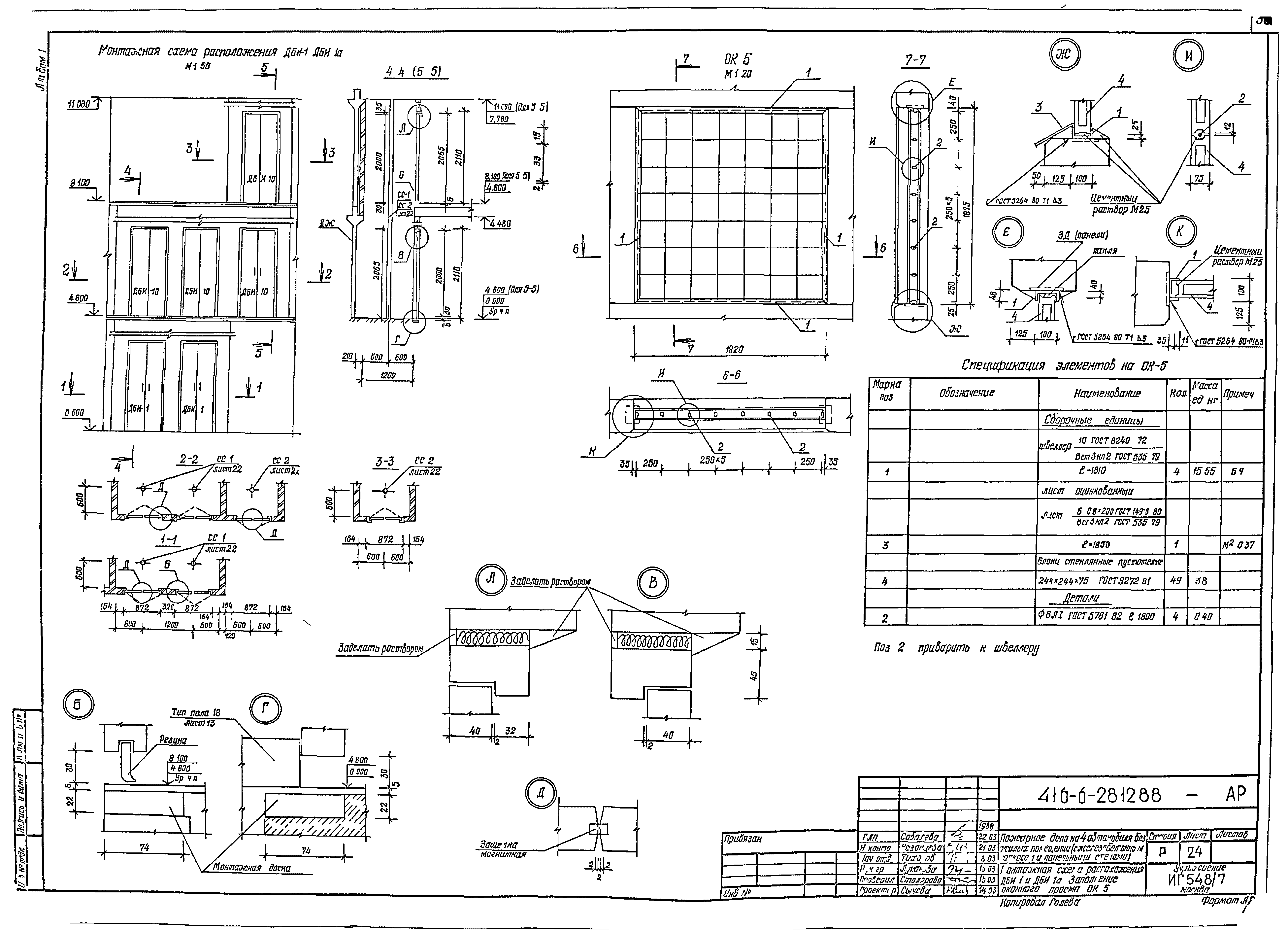
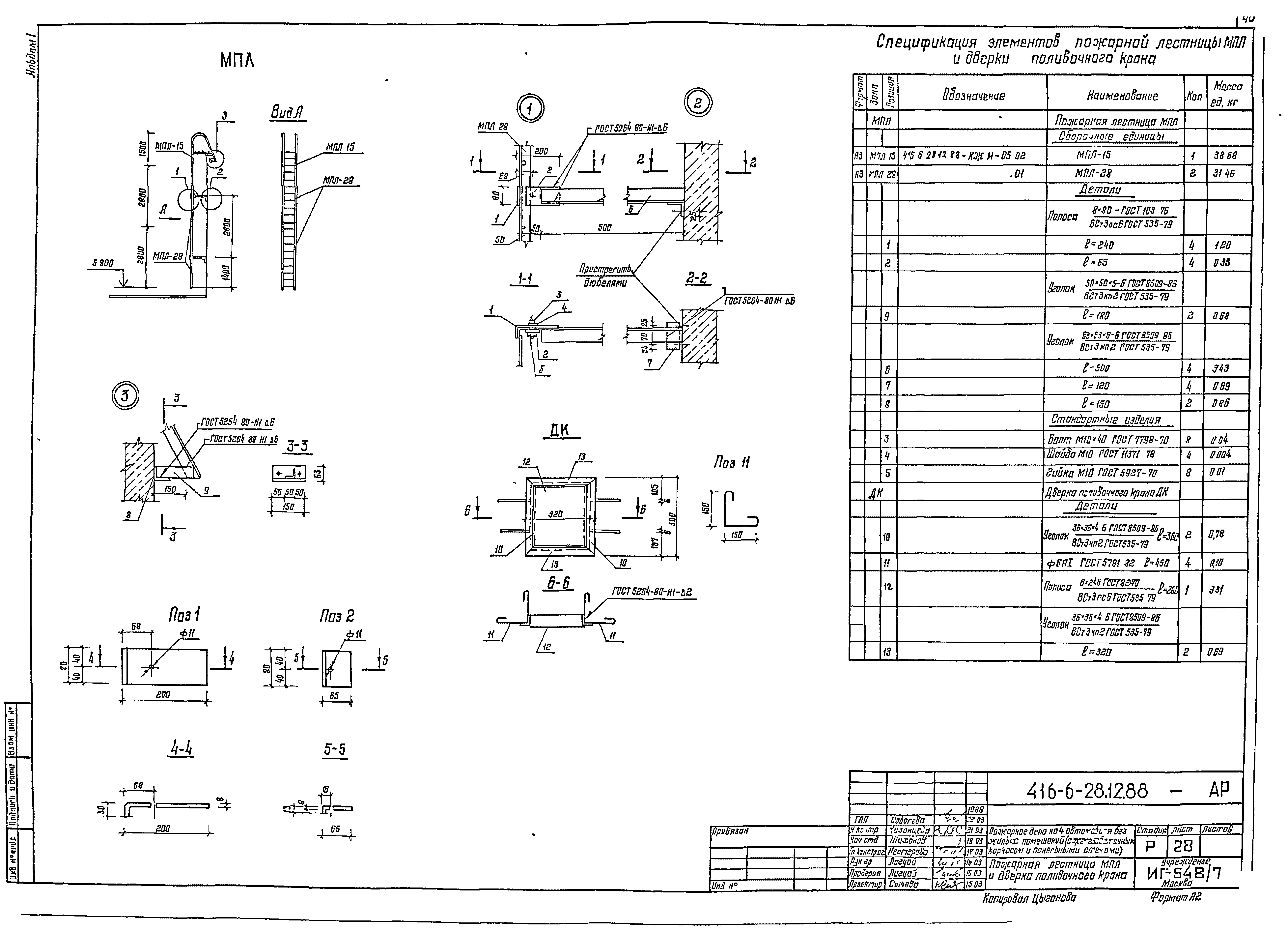
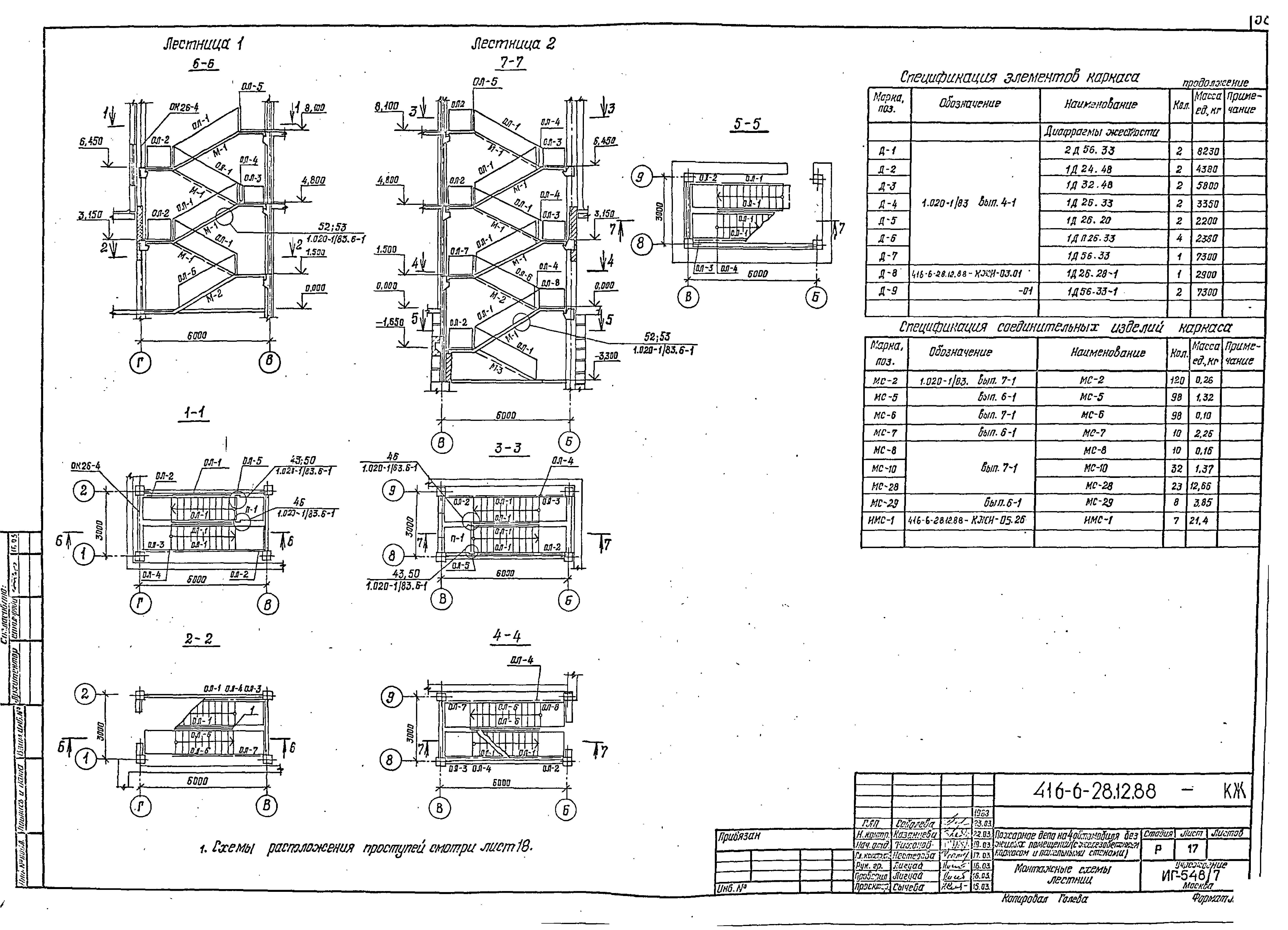
Скачать Типовой проект 416-6-28.12.88 Альбом 1. Пояснительная записка. Технологические решения. Архитектурные решения. Конструкции железобетонныеДата актуализации: 01.01.2021
|
| Обозначение: | Типовой проект 416-6-28.12.88 |
| Обозначение англ: | 416-6-28.12.88 |
| Статус: | не определен законодательством |
| Название рус.: | Альбом 1. Пояснительная записка. Технологические решения. Архитектурные решения. Конструкции железобетонные |
| Дата добавления в базу: | 01.09.2013 |
| Дата актуализации: | 01.01.2021 |
| Дата введения: | 17.06.1988 |
| Дата окончания срока действия: | 30.06.2003 |
| Разработан: | Учреждение ИГ-548/7 |
| Утверждён: | 17.06.1988 МВД СССР (USSR Ministry of Internal Affairs 50-88) |









































































