Скачать Серия 2.460-2 Выпуск 0. Указания по применению типовых монтажных деталейДата актуализации: 01.01.2021
|
| Обозначение: | Серия 2.460-2 |
| Обозначение англ: | Series 2.460-2 |
| Статус: | не действует |
| Название рус.: | Выпуск 0. Указания по применению типовых монтажных деталей |
| Дата добавления в базу: | 01.09.2013 |
| Дата актуализации: | 01.01.2021 |
| Дата введения: | 01.10.1971 |
| Дата окончания срока действия: | 01.12.1989 |
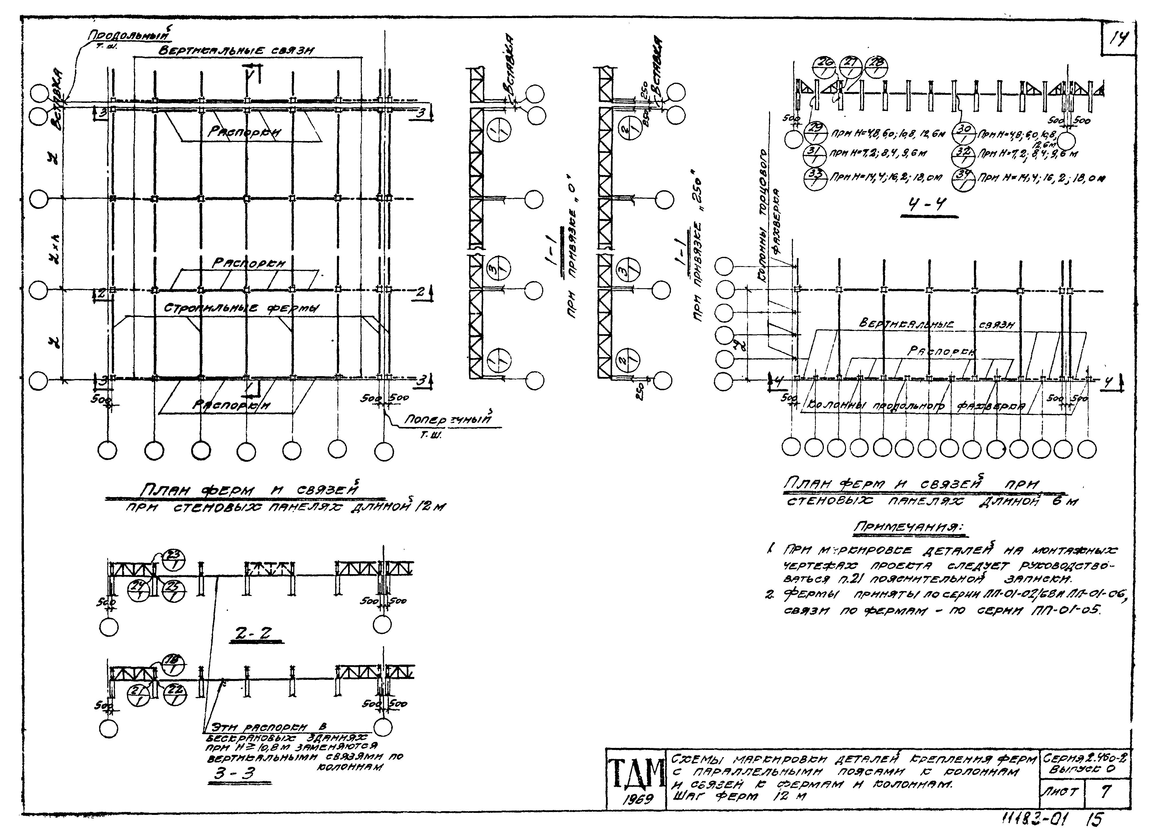
| Оглавление: | Пояснительная записка Схемы маркировки деталей крепления сегментных и безраскосных ферм к колоннам. Шаг ферм 6 и 12 м Схемы маркировки деталей крепления сегментных и безраскосных ферм к колоннам и подстропильным фермам. Шаг ферм 6 м по подстропильным фермам пролетом 12 м Схемы маркировки деталей крепления односкатных и двускатных балок к колоннам. Шаг балок 6 м Схемы маркировки деталей крепления двускатных балок к колоннам и подстропильным балкам. Шаг балок 6 м по подстропильным балкам пролетом 12 м Схемы маркировки деталей крепления ферм с параллельными поясами к колоннам и связей к фермам и колоннам. Шаг ферм 6 м Схемы маркировки деталей крепления ферм с параллельными поясами к колоннам и подстропильным фермам и связей к фермам и колоннам. Шаг ферм 6 м по подстропильным фермам пролетом 12 м Схемы маркировки деталей крепления ферм с параллельными поясами к колоннам и подстропильным фермам и связей к фермам и колоннам. Шаг ферм 12 м Схемы маркировки деталей крепления ферм с параллельными поясами к колоннам и связей к балкам и колоннам. Шаг балок 6 м Схемы маркировки деталей крепления ферм с параллельными поясами к колоннам и подстропильным балкам и связей к балкам и колоннам. Шаг балок 6 м по подстропильным балкам пролетом 12 м Схемы маркировки деталей приварки стальных изделий для крепления плит покрытия к стропильным фермам Схемы маркировки деталей приварки стальных изделий для крепления плит покрытия к подстропильным фермам при опирании на них сегментных и безраскосных ферм Схемы маркировки деталей приварки стальных изделий для крепления плит покрытия к стропильным балкам Схемы маркировки деталей приварки плит покрытия к стропильным и подстропильным конструкциям Схемы маркировки деталей заделки швов между плитами по сегментным и безраскосным фермам Схемы маркировки деталей заделки швов между плитами по фермам с параллельными поясами и по балкам Схемы маркировки деталей крепления стальных щитов в температурных швах Разбивка дополнительных закладных деталей в фермах и балках для крепления стен Разбивка дополнительных закладных деталей в плитах покрытия размером 3 х 6 м и 1,5 х 6 м Разбивка дополнительных закладных деталей в плитах покрытия размером 3 х 12 м и 1,5 х 12 м Дополнительные закладные детали с МД-1 по МД-8 Дополнительные закладные детали с МД-9 по МД-14 Дополнительные закладные детали с МД-15 по МД-20 |
| Разработан: | ЦНИИпромзданий |
| Утверждён: | 20.07.1971 Госстрой СССР (Государственный комитет Совета Министров СССР по делам строительства) (USSR Gosstroy 111) |
| Чем заменён: |































