Скачать Серия 3.904-15 Выпуск 0-1. Технические характеристики и данные для подбора камер типа 1ПК10 - 1ПК150Дата актуализации: 01.01.2021
|
| Обозначение: | Серия 3.904-15 |
| Обозначение англ: | Series 3.904-15 |
| Статус: | не действует |
| Название рус.: | Выпуск 0-1. Технические характеристики и данные для подбора камер типа 1ПК10 - 1ПК150 |
| Дата добавления в базу: | 01.09.2013 |
| Дата актуализации: | 01.01.2021 |
| Дата введения: | 01.07.1979 |
| Дата окончания срока действия: | 01.10.1982 |
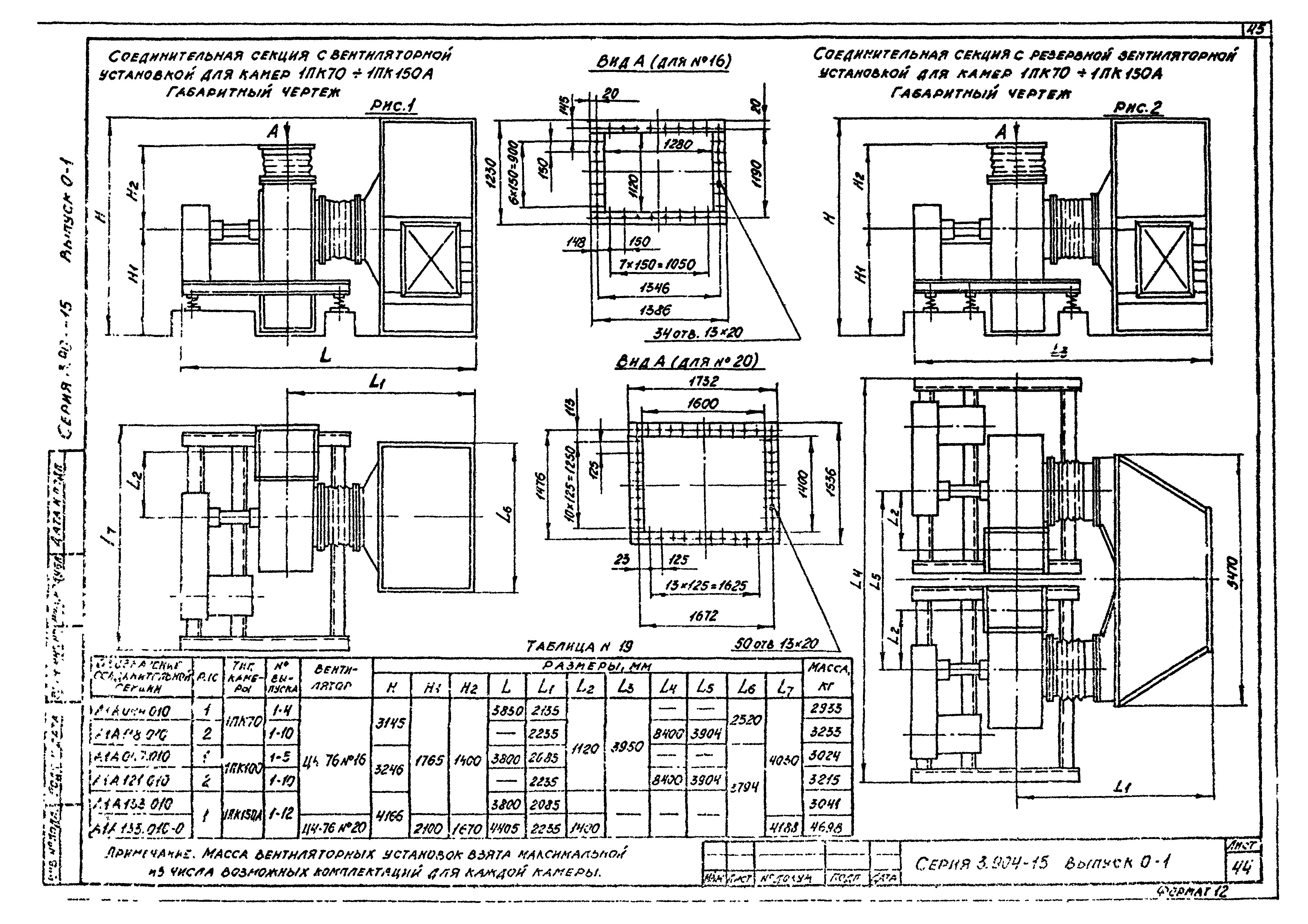
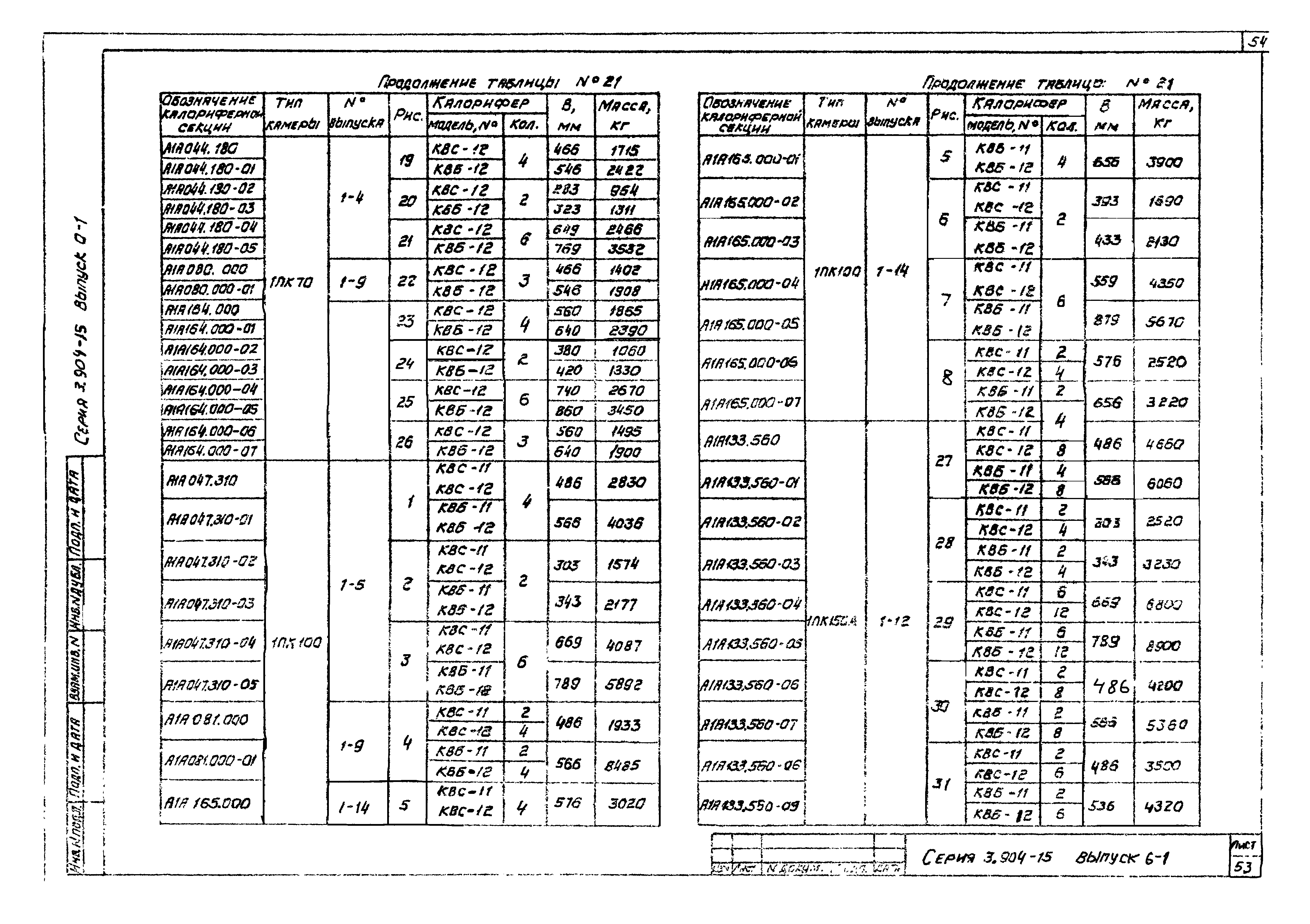
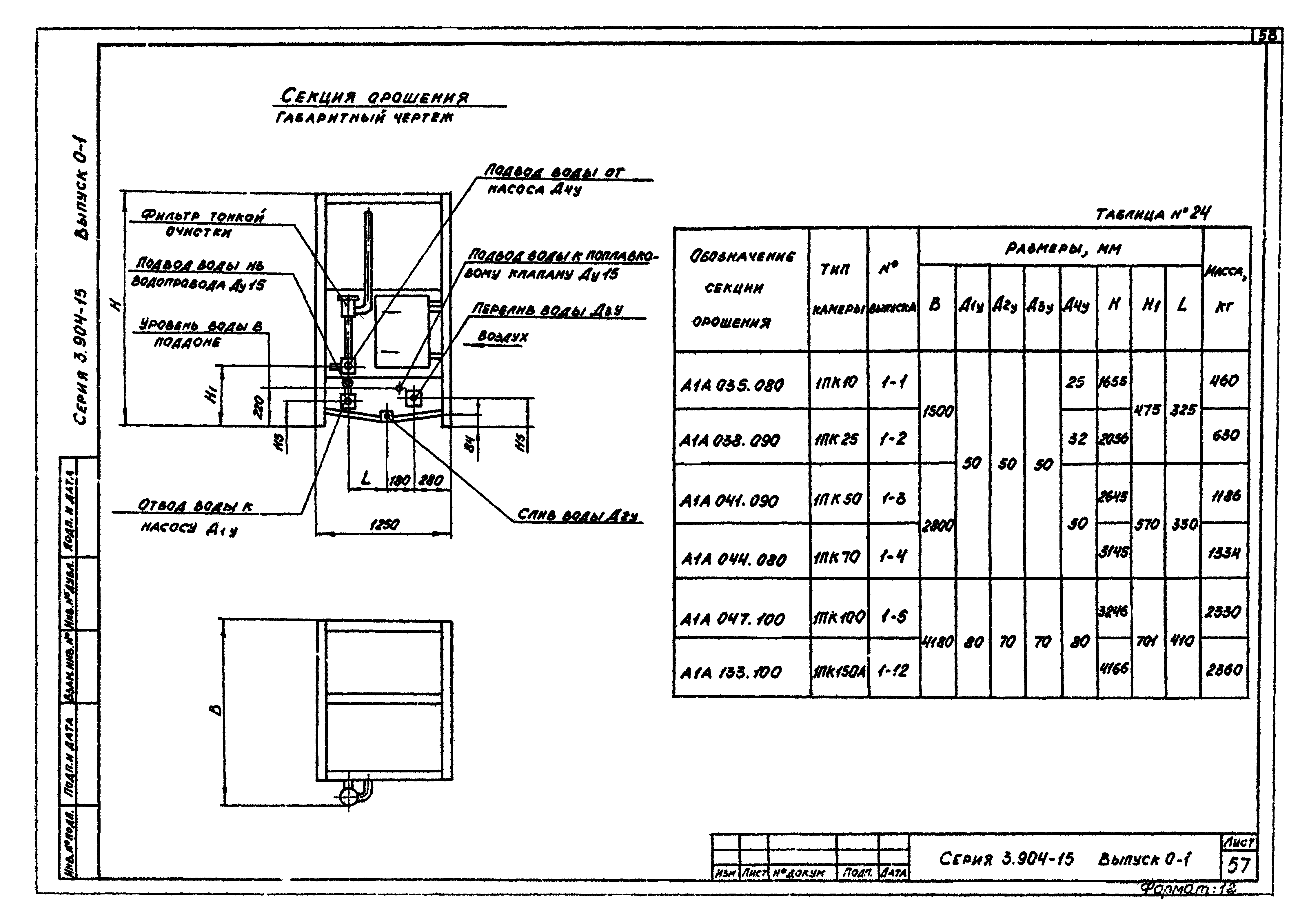
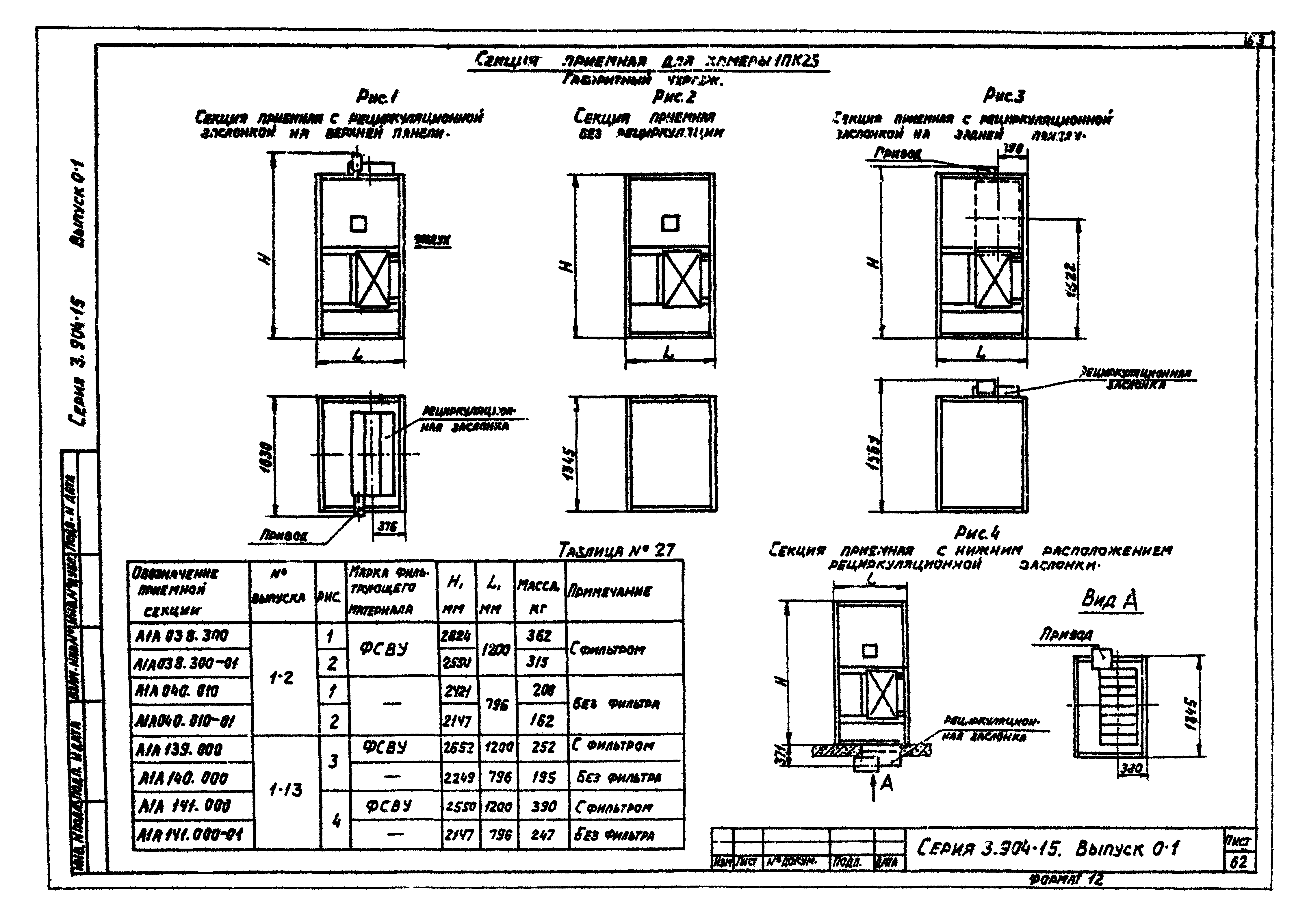
| Оглавление: | Введение Назначение камер Компоновка и комплектация Соединительные секции с вентиляторными установками Калориферные секции Калориферные секции с неполным вторым рядом калориферов Оросительные секции Приемные секции Утепленные заслонки приемных секций Фильтры с развитой поверхностью Характеристика фильтрующего материала Ограждающие конструкции. Аэродинамическое сопротивление камер. Автоматическое регулирование Общие указания по проектированию Бланк-заказ Схема компоновки приточной вентиляционной камеры 1ПК10 с полным набором секций. Габаритный чертеж Схема компоновки приточной вентиляционной камеры 1ПК10 без оросительной секции. Габаритный чертеж Схема компоновки приточной вентиляционной камеры 1ПК10 без фильтра и оросительной секции. Габаритный чертеж Схема компоновки приточной вентиляционной камеры 1ПК25 с полным набором секций. Габаритный чертеж Схема компоновки приточной вентиляционной камеры 1ПК25 без оросительной секции. Габаритный чертеж Схема компоновки приточной вентиляционной камеры 1ПК25 без фильтра и оросительной секции. Габаритный чертеж Схема компоновки приточной вентиляционной камеры 1ПК50 с полным набором секций. Габаритный чертеж Схема компоновки приточной вентиляционной камеры 1ПК50 без оросительной секции. Габаритный чертеж Схема компоновки приточной вентиляционной камеры 1ПК50 без фильтра и оросительной секции. Габаритный чертеж Схема компоновки приточной вентиляционной камеры 1ПК70 с полным набором секций. Габаритный чертеж Схема компоновки приточной вентиляционной камеры 1ПК70 без оросительной секции. Габаритный чертеж Схема компоновки приточной вентиляционной камеры 1ПК70 без фильтра и оросительной секции. Габаритный чертеж Схема компоновки приточной вентиляционной камеры 1ПК100 с полным набором секций. Габаритный чертеж Схема компоновки приточной вентиляционной камеры 1ПК100 без оросительной секции. Габаритный чертеж Схема компоновки приточной вентиляционной камеры 1ПК100 без фильтра и оросительной секции. Габаритный чертеж Схема компоновки приточной вентиляционной камеры 1ПК150А. Габаритный чертеж Соединительная секция с вентиляторной установкой для камеры 1ПК10. Габаритный чертеж. Соединительная секция с резервной вентиляторной установкой для камеры 1ПК10. Габаритный чертеж Секция соединительная с вентиляторной установкой для камер 1ПК25 и 1ПК50. Габаритный чертеж. Секция соединительная с резервной вентиляторной установкой для камер 1ПК25 и 1ПК50. Габаритный чертеж. Секция соединительная с вентиляторной установкой для камер 1ПК70...1ПК150. Габаритный чертеж. Секция соединительная с резервной вентиляторной установкой для камер 1ПК70...1ПК150. Габаритный чертеж. Техническая характеристика вентиляторов Аэродинамические характеристики вентиляторов Схема компоновки калориферов по ГОСТ 7201-70 в поперечном сечениях секций подогрева (верхнее расположение обводных заслонок) Схема компоновки калориферов по ГОСТ 7201-70 в поперечном сечениях секций подогрева (центральное расположение обводных заслонок) Калориферная секция. Габаритный чертеж Технические характеристики калориферной секции График для определения коэффициента теплопередачи и аэродинамического сопротивления пластинчатых калориферов типа КВС (средней модели) График для определения коэффициента теплопередачи и аэродинамического сопротивления пластинчатых калориферов типа КВБ (большой модели) Секция орошения. Габаритный чертеж Техническая характеристика секции орошения График для определения производительности форсунок с диаметром выходного отверстия 1,75 мм Секция приемная для камеры 1ПК10. Габаритный чертеж Секция приемная для камеры 1ПК25. Габаритный чертеж Секция приемная для камеры 1ПК50…1ПК150А. Габаритный чертеж Техническая характеристика приемной секции Секция фильтра с развитой поверхностью. Габаритный чертеж Техническая характеристика секции фильтра с развитой поверхностью Установка привода утепленных заслонок, вынесенного в отапливаемое помещение. Габаритный чертеж Заслонка воздушная утепленная. Схема аэродинамического сопротивления оборудования и секций камер |
| Разработан: | ГПИ Сантехпроект Госстроя СССР |
| Утверждён: | 27.06.1979 Главпромстройпроект Госстроя СССР (34) |
| Чем заменён: |
|














































































