Скачать Типовой проект 902-1-78.83 Альбом 2. Технологические решения. Внутренний водопровод и канализация. Отопление и вентиляцияДата актуализации: 01.01.2021
|
| Обозначение: | Типовой проект 902-1-78.83 |
| Обозначение англ: | 902-1-78.83 |
| Статус: | действует |
| Название рус.: | Альбом 2. Технологические решения. Внутренний водопровод и канализация. Отопление и вентиляция |
| Дата добавления в базу: | 01.09.2013 |
| Дата актуализации: | 01.01.2021 |
| Дата введения: | 06.02.1984 |
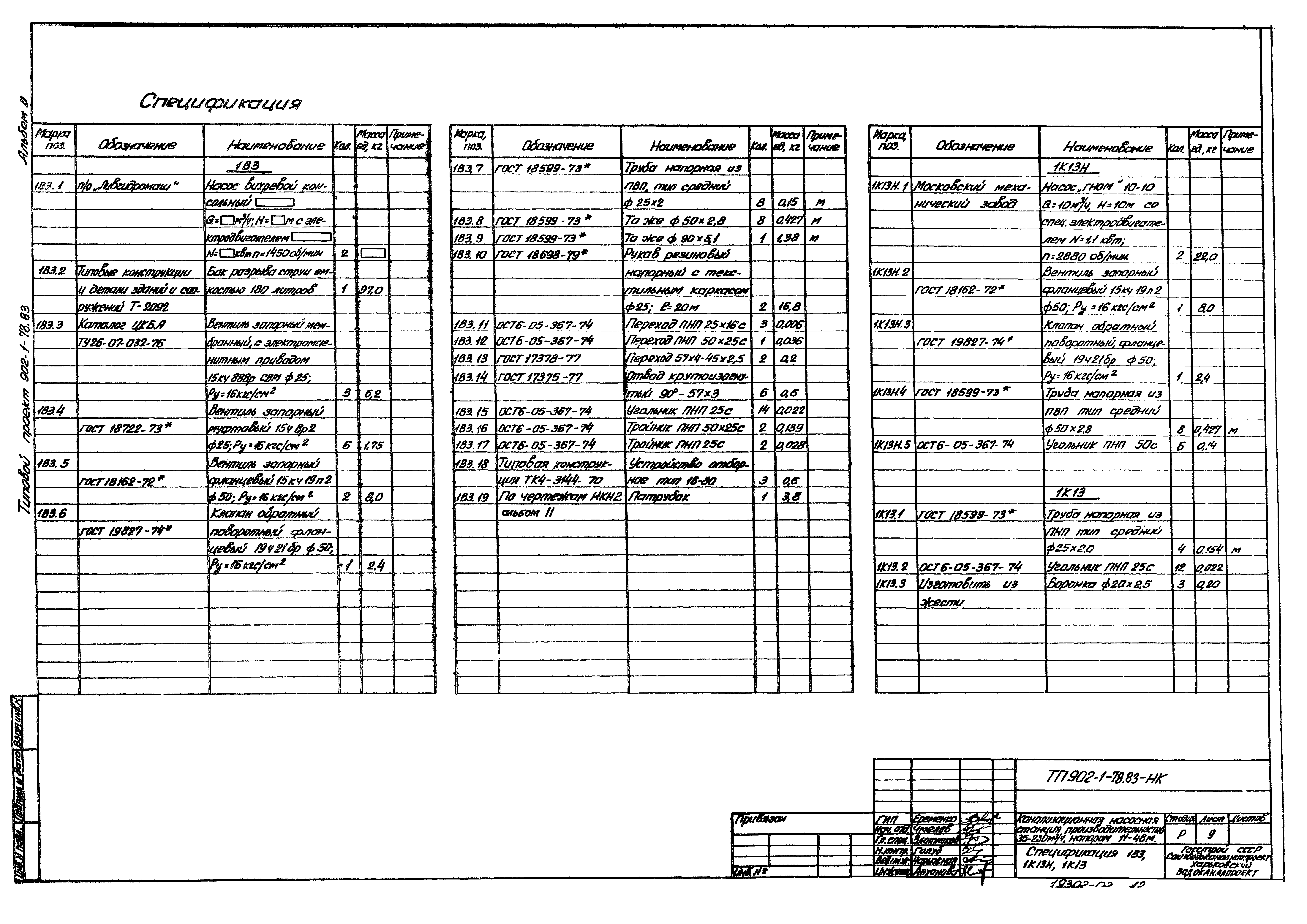
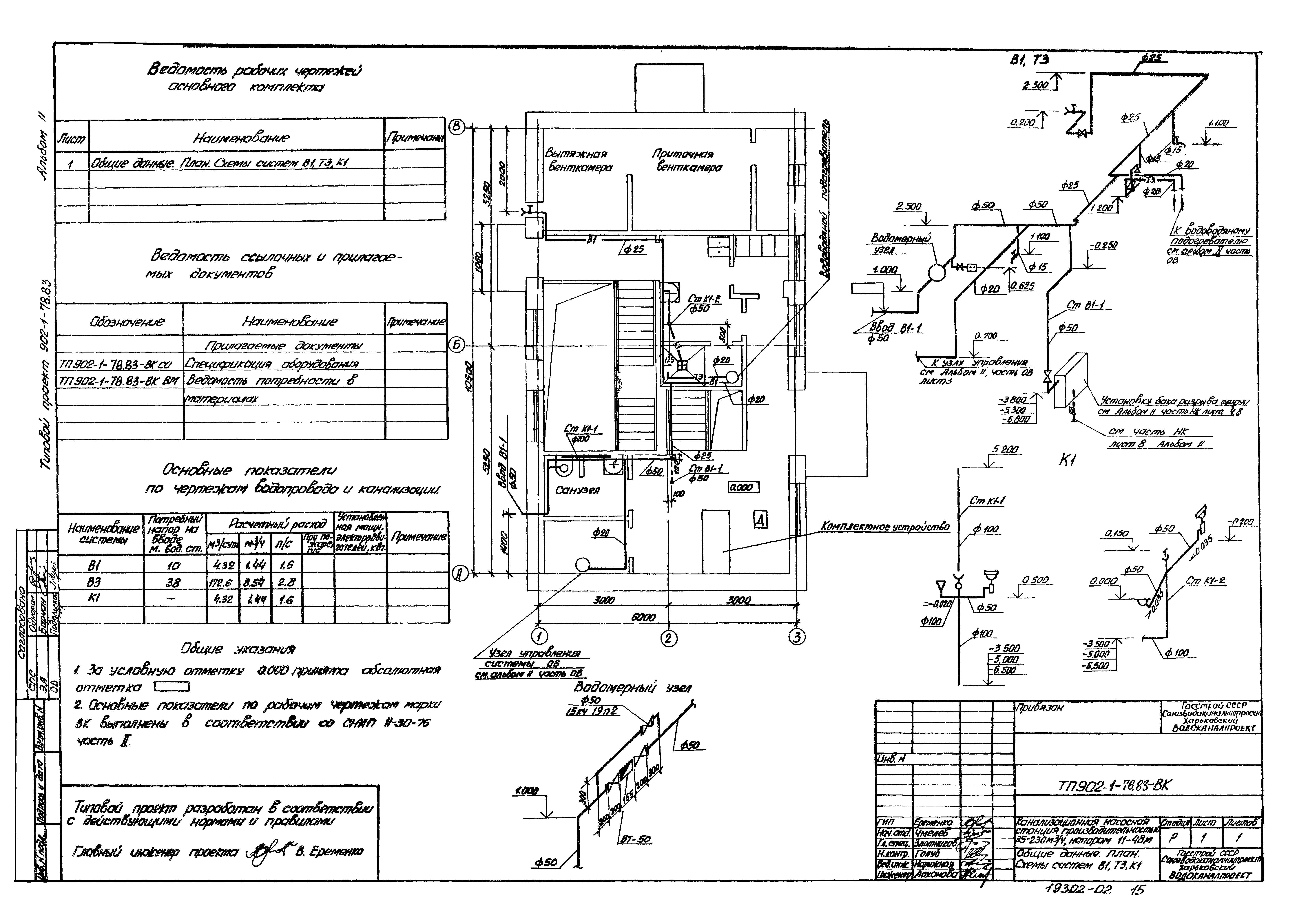
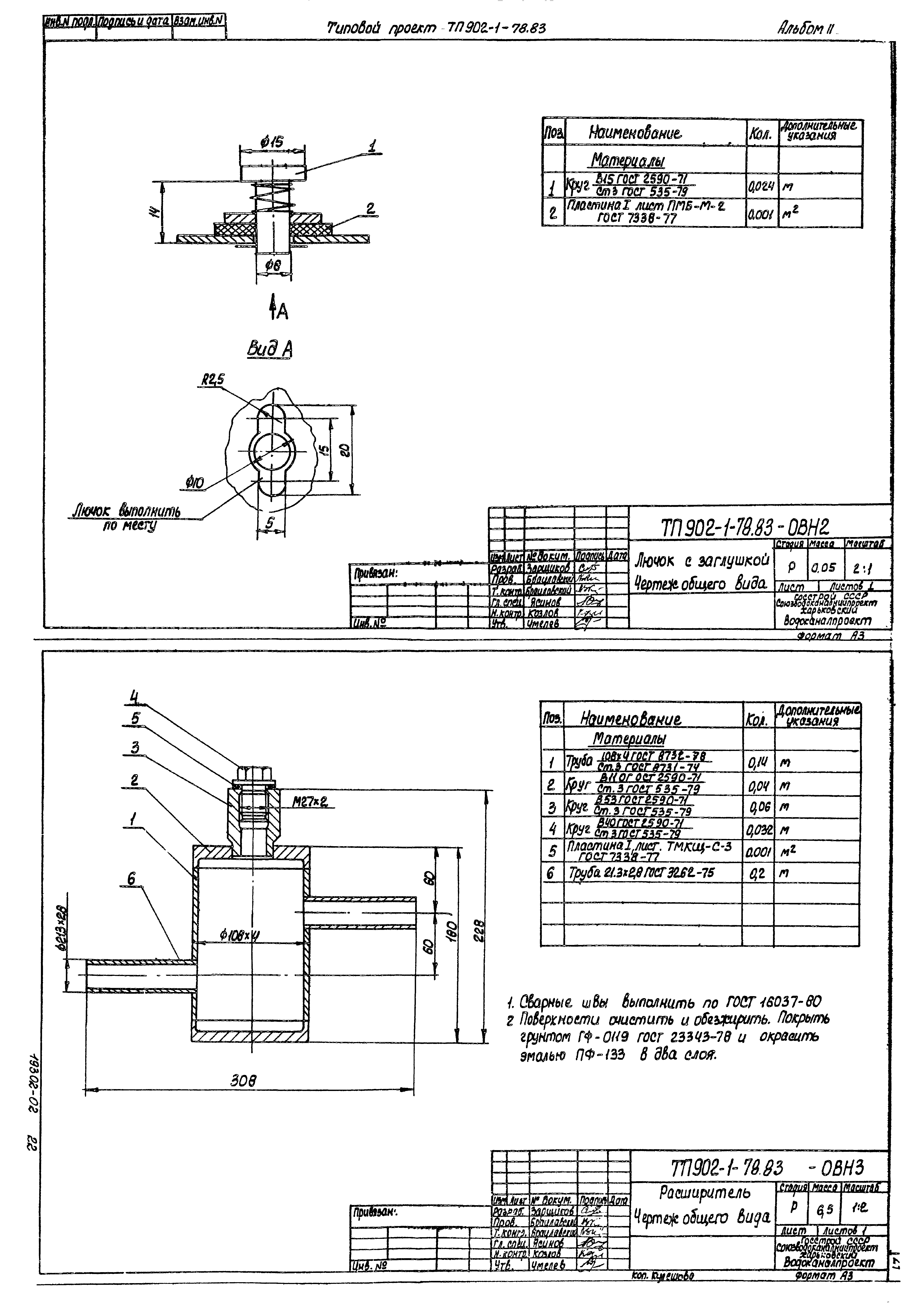
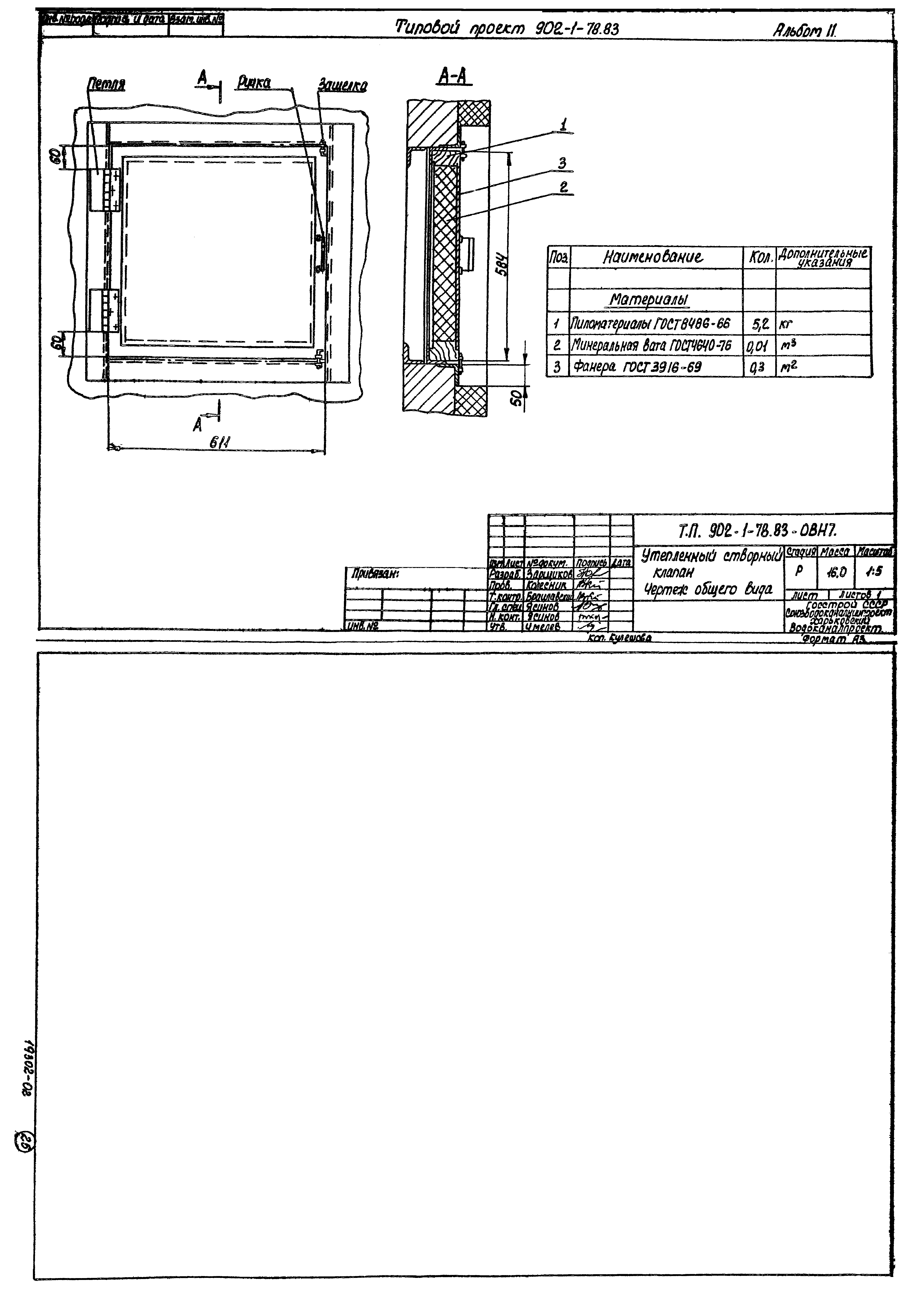
| Оглавление: | Содержание Основной комплект марки НК Общие данные План на отм. 0,000 План Разрез 1-1, 2-2 План приемного резервуара. Разрез 1-1 Аксонометрическая схема 1К1Н Спецификация 1К1, 1К1Н План на отм. ( ). Аксонометрические схемы 1ВЗ, 1К1З, 1К1ЗН Спецификация 1ВЗ, 1К1З, 1К1ЗН Общие виды нетиповых конструкций марки НКН Устройство отборное с разделительной мембраной для манометра Патрубок Основной комплект марки ВК Общие данные. План. Схемы В1, Т3, К1 Основной комплект марки ОВ Общие данные План подземной части и на отм. 0,000. Разрез 1-1, схемы систем П1.1Р; П2; В1.1р; В2; В4 Схемы систем отопления, теплоснабжения установок П1, П1р, теплоснабжения водоподогревателя узла управления Установка систем П1.1Р; П2; В1.1р; В2; В4 Общие виды нетиповых конструкций марки ОВН Рама для крепления калорифера. Чертеж общего вида Лючок с заглушкой. Чертеж общего вида Расширитель. Чертеж общего вида Зонт. Чертеж общего вида Вставка редукционная. Чертеж общего вида Короб распределительный. Чертеж общего вида Утепленный створный клапан. Чертеж общего вида |
| Разработан: | Харьковский Водоканалпроект |
| Утверждён: | 27.10.1983 Союзводоканалпроект (Soyuzvodokanalproject 59) |

























