Скачать Типовой проект 902-1-78.83 Альбом 4. Строительные решения. Подземная часть. Сборно-монолитный вариант (открытый способ в сухих и мокрых грунтах)Дата актуализации: 01.01.2021
|
| Обозначение: | Типовой проект 902-1-78.83 |
| Обозначение англ: | 902-1-78.83 |
| Статус: | действует |
| Название рус.: | Альбом 4. Строительные решения. Подземная часть. Сборно-монолитный вариант (открытый способ в сухих и мокрых грунтах) |
| Дата добавления в базу: | 01.09.2013 |
| Дата актуализации: | 01.01.2021 |
| Дата введения: | 06.02.1984 |
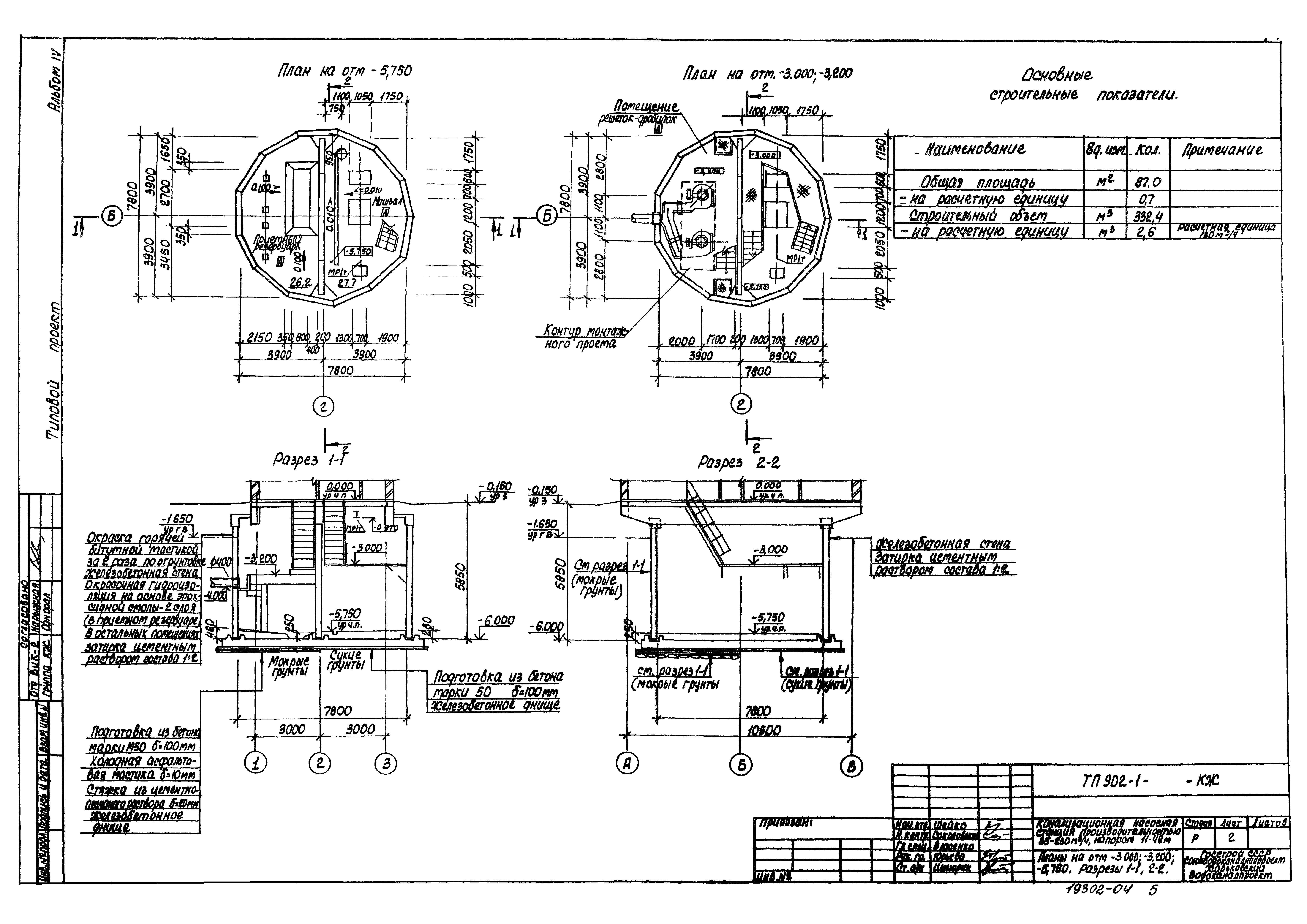
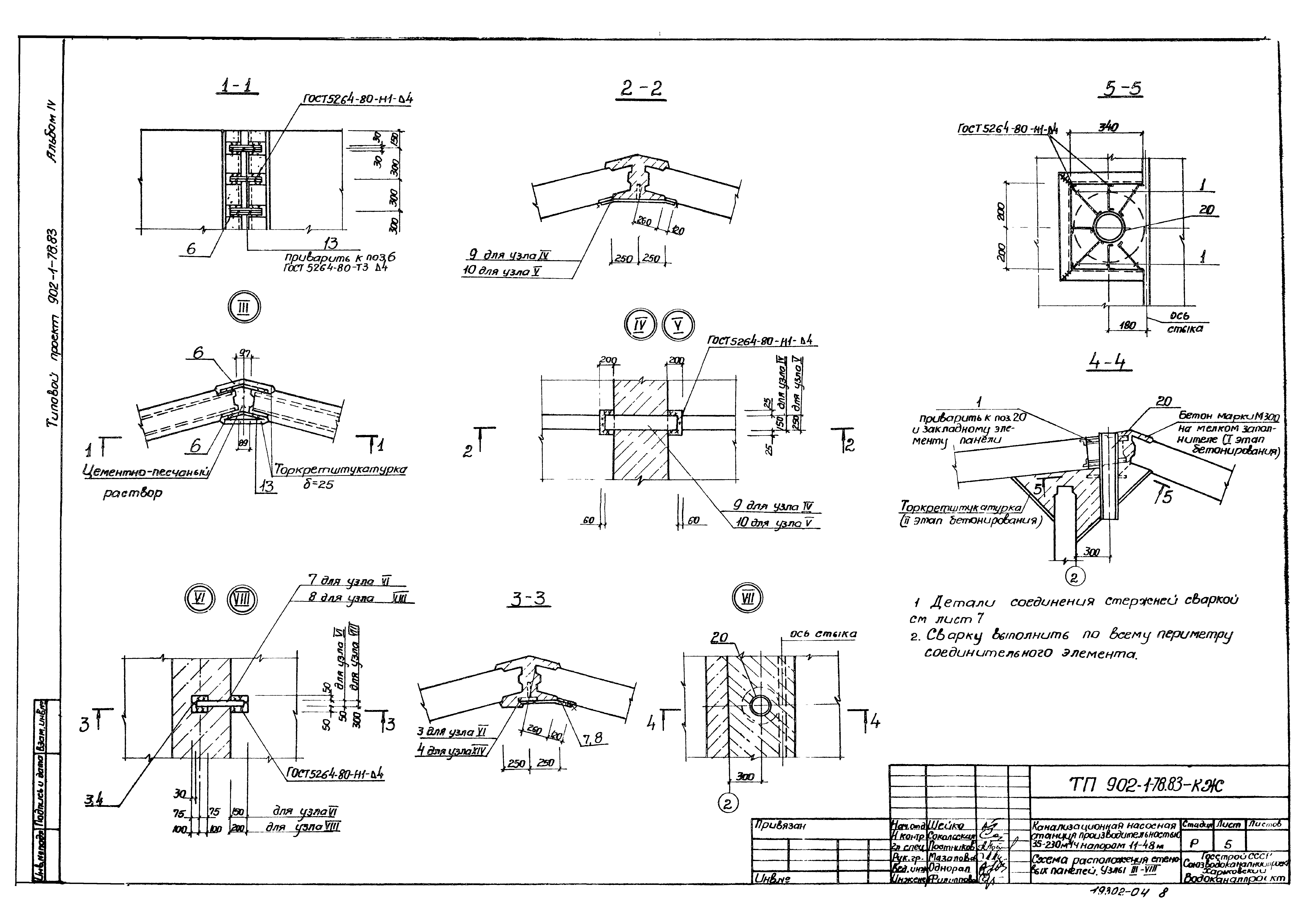
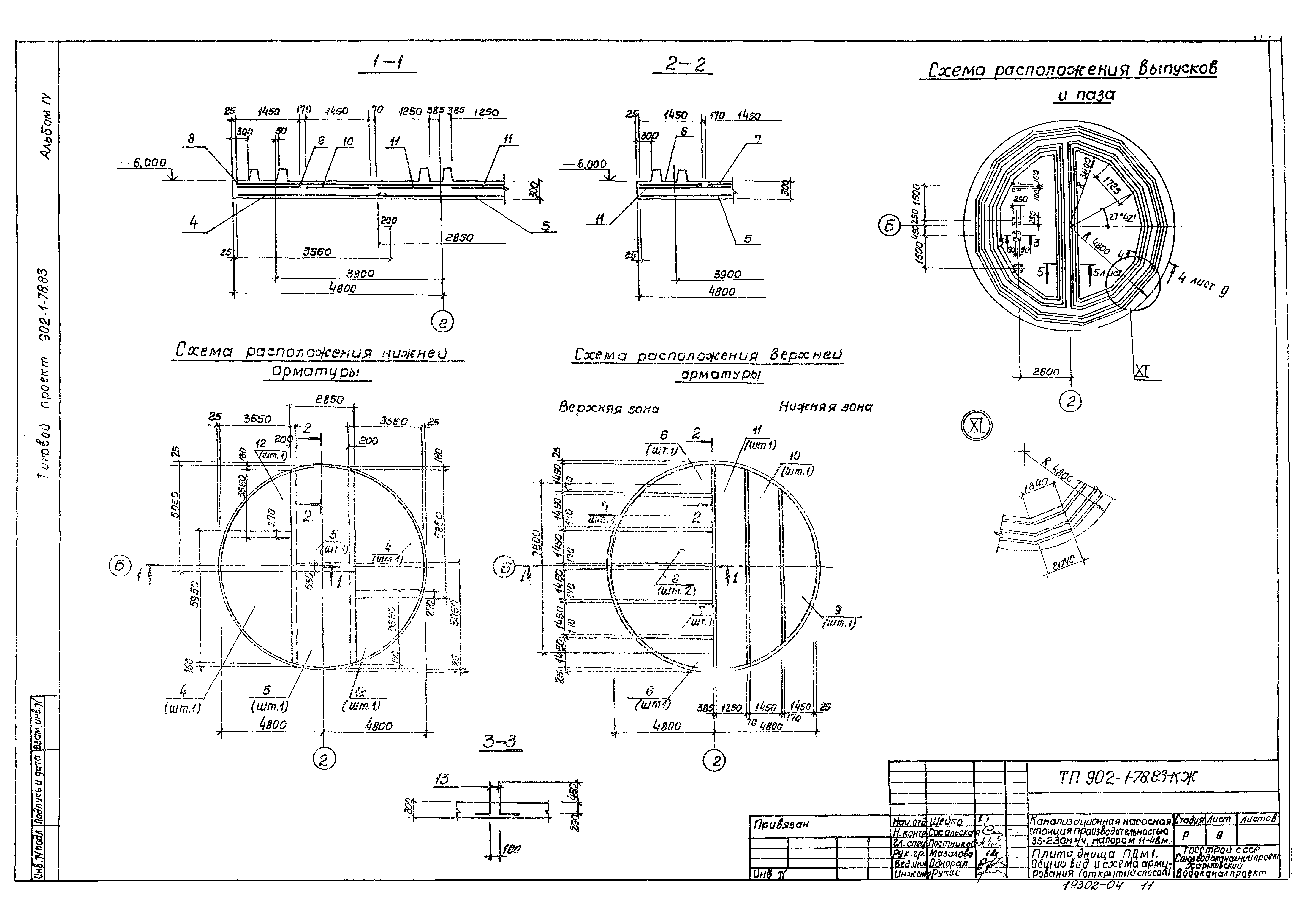
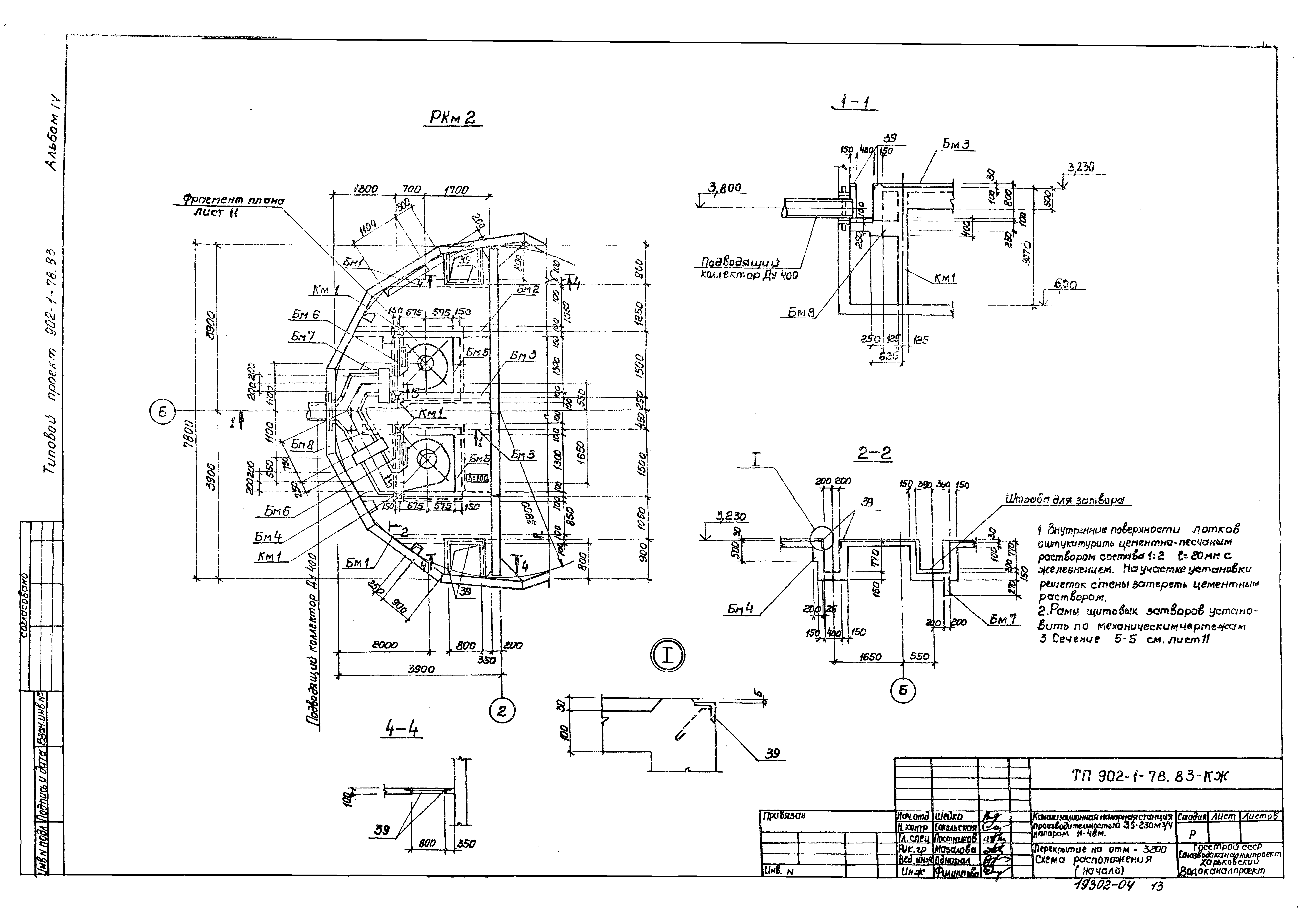
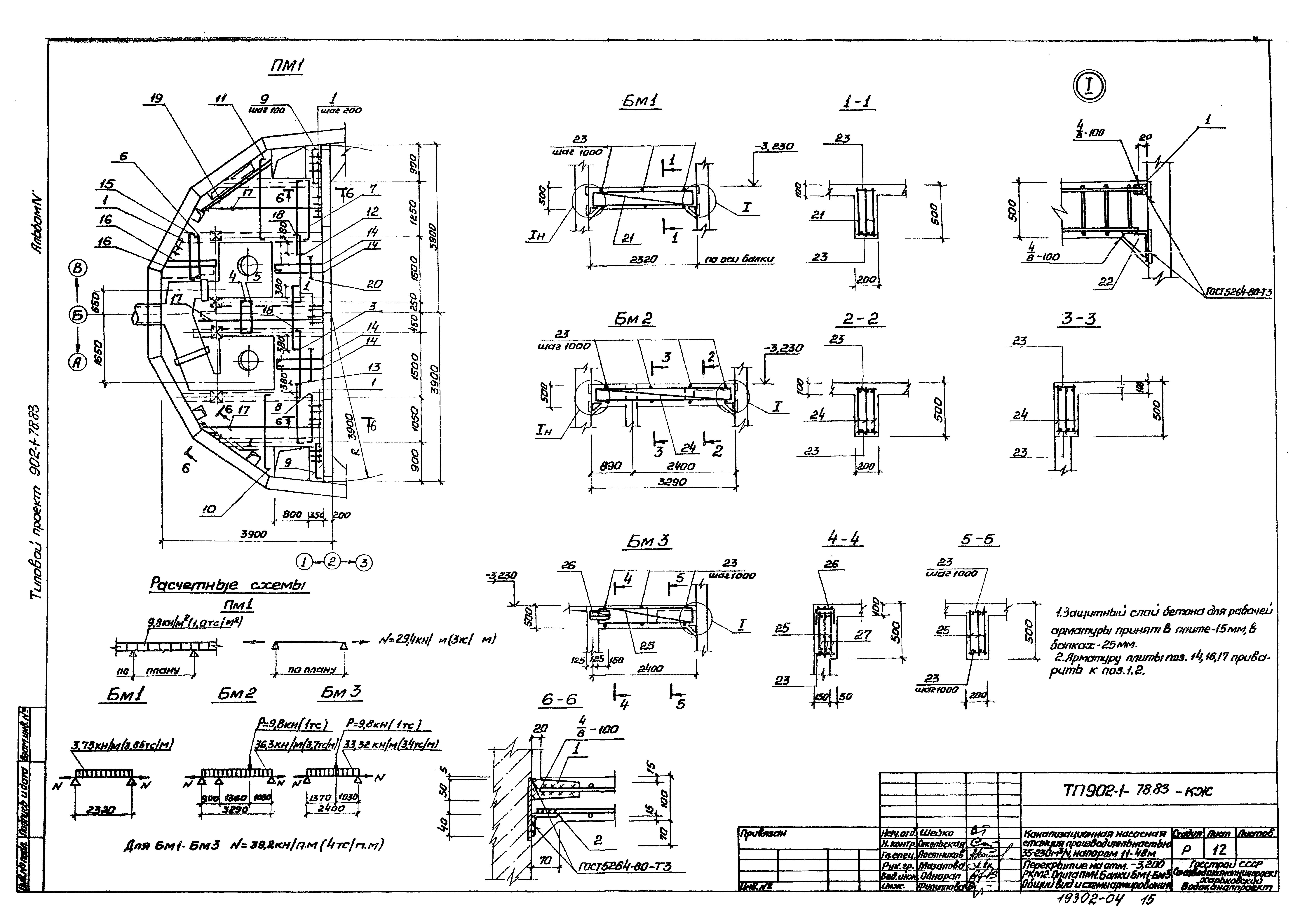
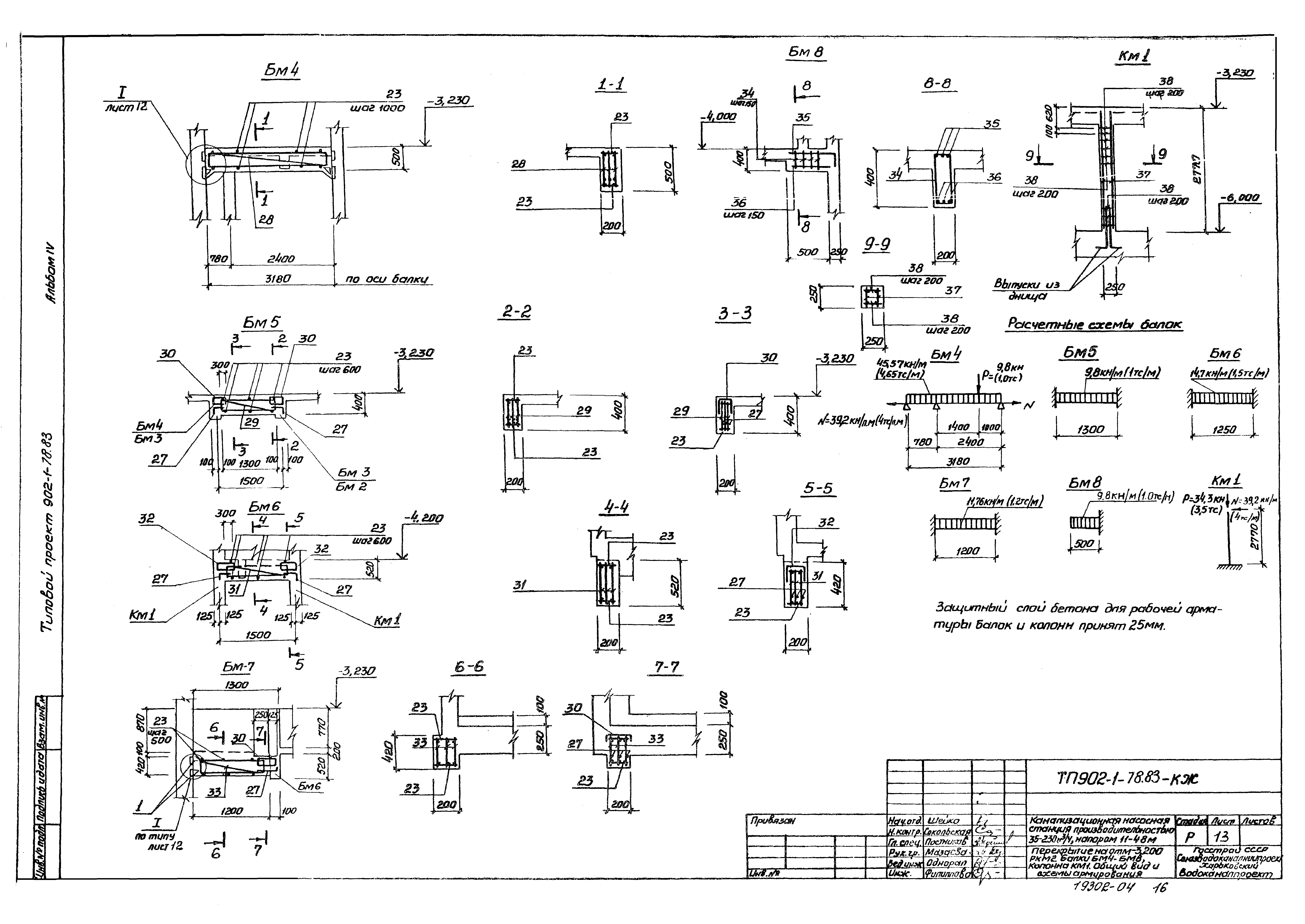
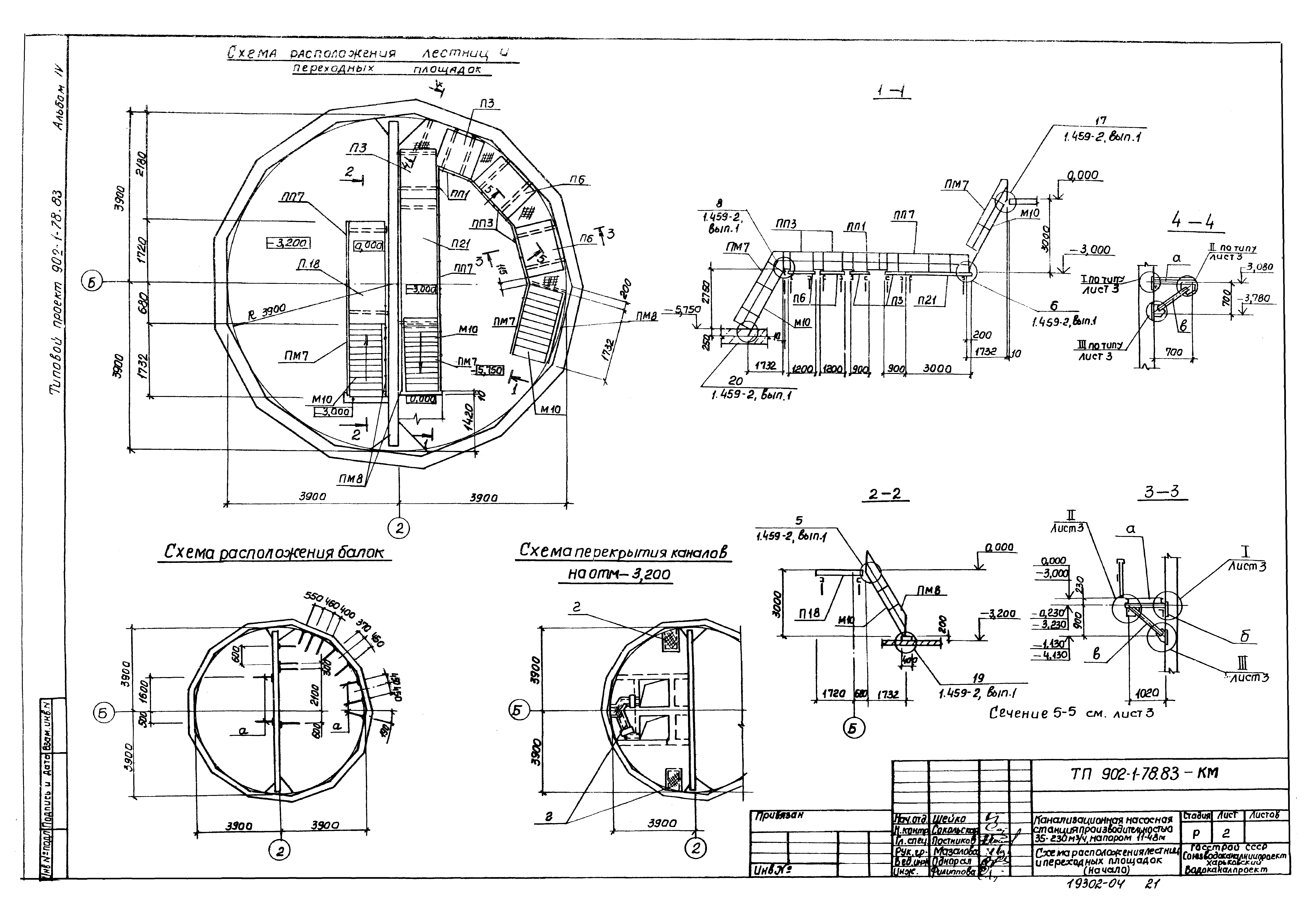
| Оглавление: | Содержание Основной комплект КЖ Общие данные Планы на отм. -3,000; -3,200; -5,700. Разрезы 1-1, 2-2 Схема расположения конструкций подземной части. Узлы 1 и 2 Схема расположения стеновых панелей Схема расположения стеновых панелей. Узлы 3…8 Схема расположения стеновых панелей. Узлы 9…13 Схема расположения стеновых панелей. Узлы 14, 15. Спецификация Плита днища ПДм1. Общий вид и схема армирования (открытый способ) Плита днища ПДм1. Схема расположения каркасов. Спецификация (открытый способ) Перекрытие на отм. -3,200 РКм2. Схема расположения Перекрытие на отм. -3,200 РКм2. Плита Пм1, балки Бм1…Бм3. Общий вид и схемы армирования Перекрытие на отм. -3,200 РКм2. Балки Бм4…Бм8, колонна КМ1. Общий вид и схемы армирования Перекрытие на отм. -3,200 РКм2. Лоток Лм1. Общий вид и схема армирования Перекрытие на отм. -3,200 РКм2. Спецификация Основной комплект КМ Общие данные Схема расположения лестниц и переходных площадок |
| Разработан: | Харьковский Водоканалпроект |
| Утверждён: | 27.10.1983 Союзводоканалпроект (Soyuzvodokanalproject 59) |






















