Скачать Типовой проект 902-1-78.83 Альбом 6. Электрооборудование и автоматизация. Технологический контрольДата актуализации: 01.01.2021
|
| Обозначение: | Типовой проект 902-1-78.83 |
| Обозначение англ: | 902-1-78.83 |
| Статус: | действует |
| Название рус.: | Альбом 6. Электрооборудование и автоматизация. Технологический контроль |
| Дата добавления в базу: | 01.09.2013 |
| Дата актуализации: | 01.01.2021 |
| Дата введения: | 06.02.1984 |
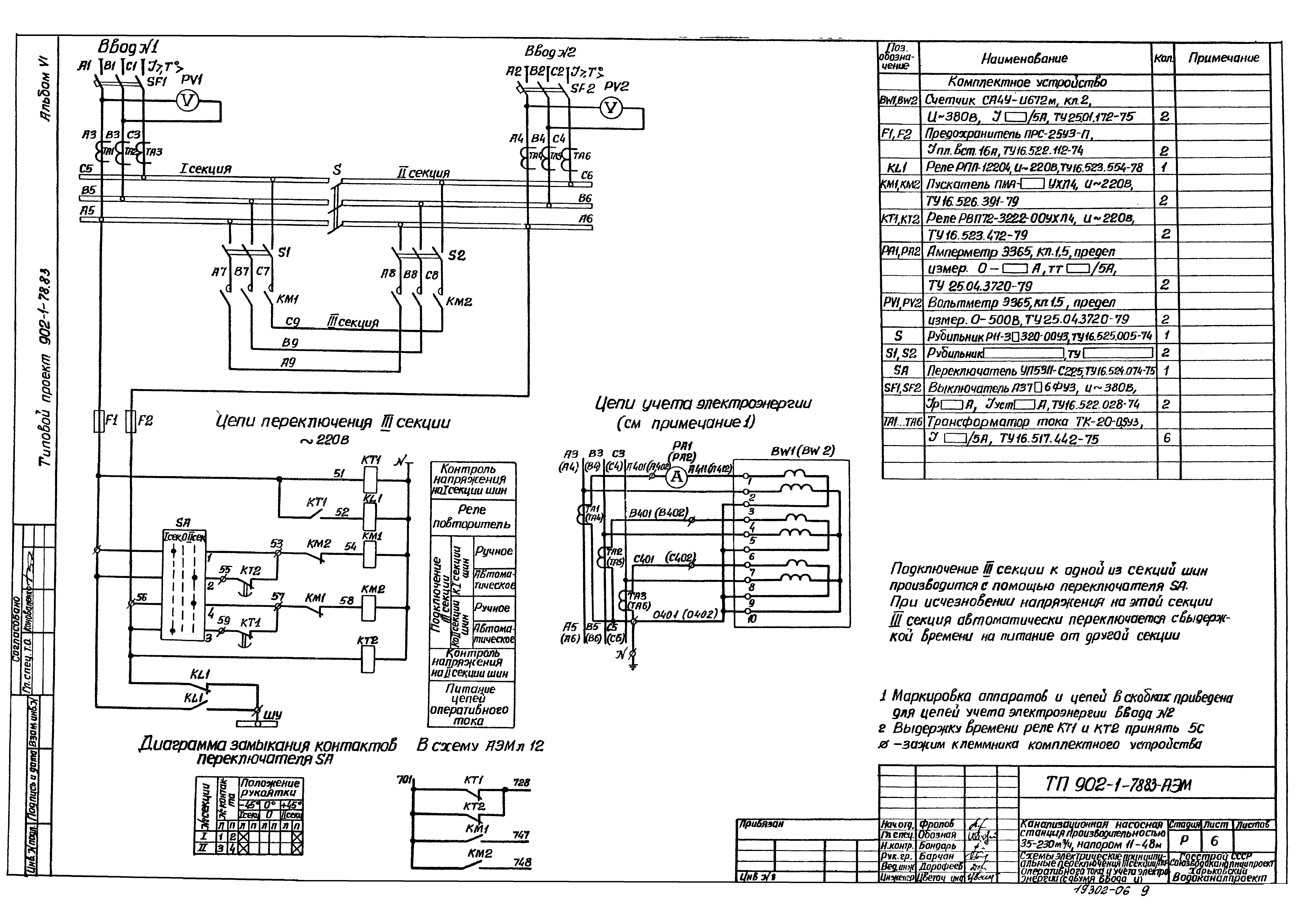
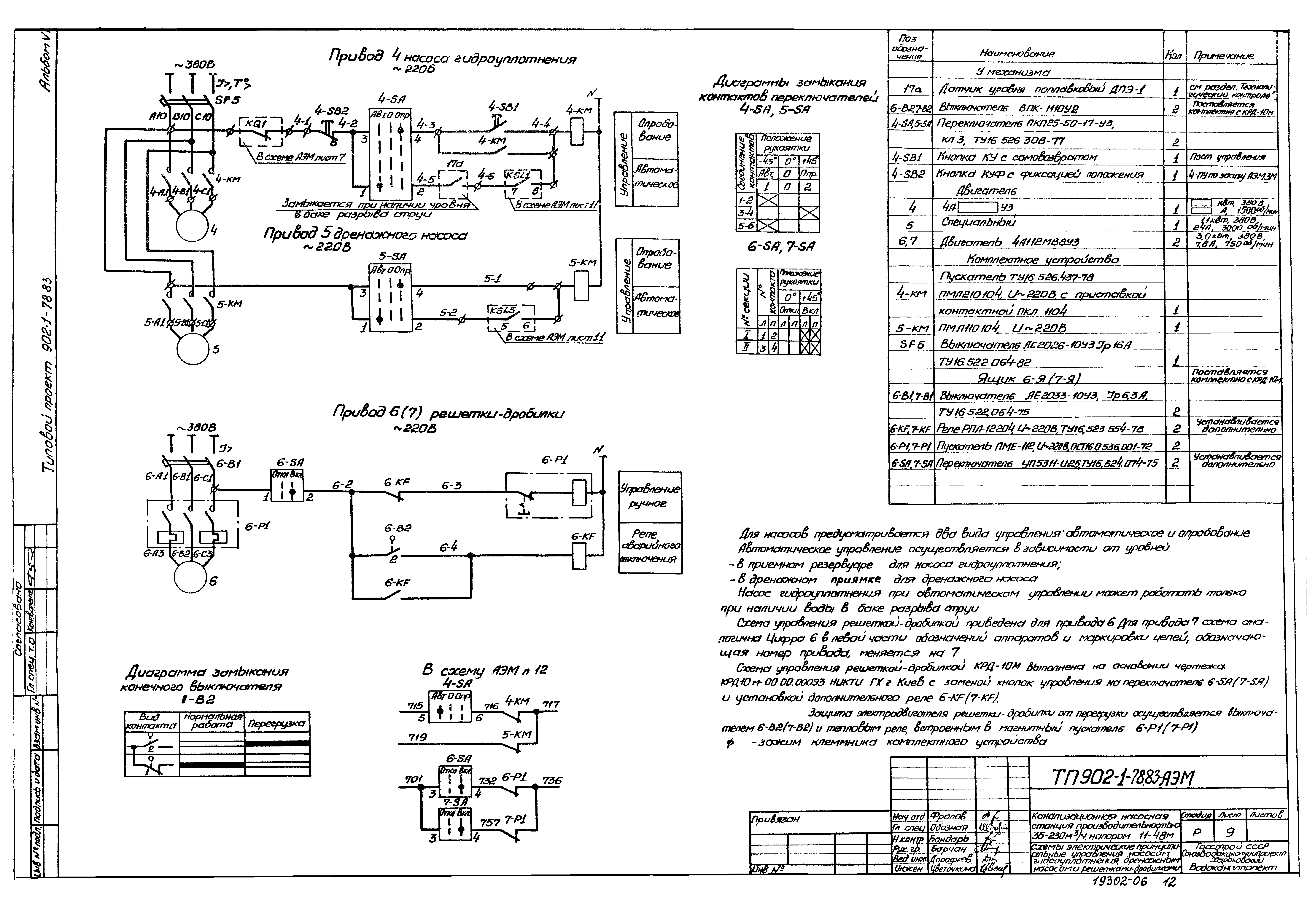
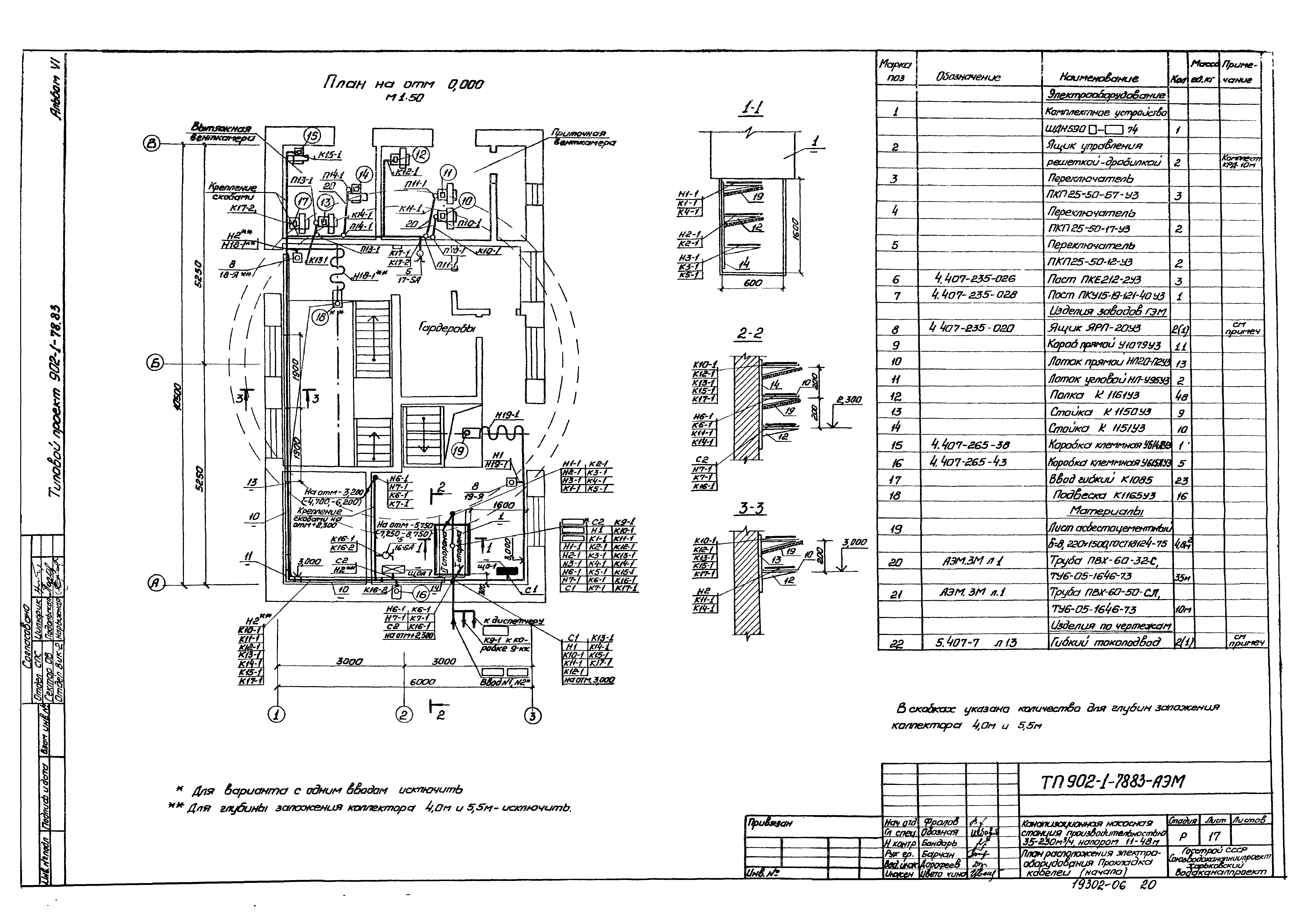
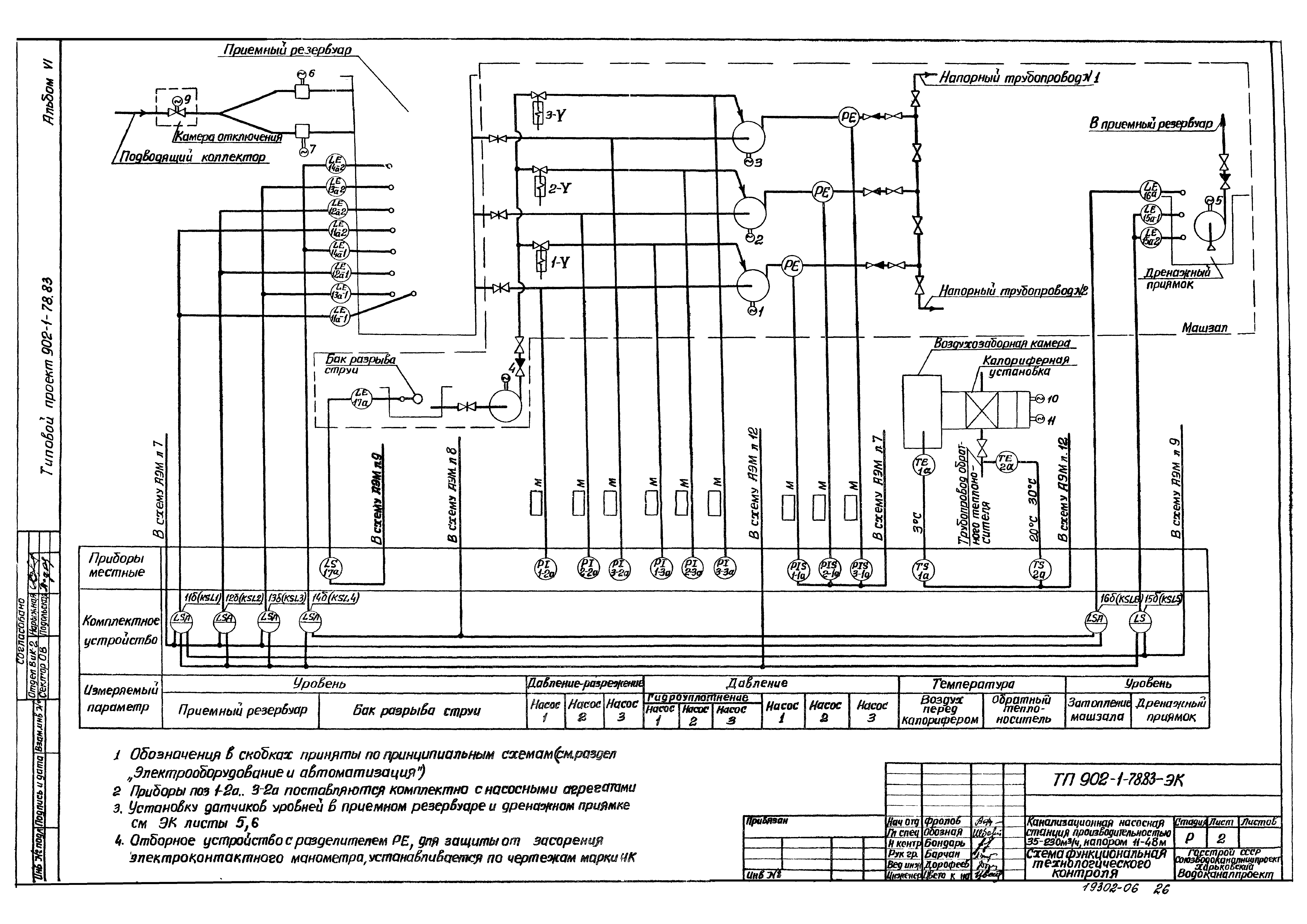
| Оглавление: | Содержание альбома Основной комплект марки АЭМ Общие данные Схема электрическая принципиальная однолинейная распределительной сети ~380/220 В (с двумя вводами) Схема электрическая принципиальная однолинейная распределительной сети ~380/220 В и учета электроэнергии (с одним вводом) Схемы электрические принципиальные переключения III секции, АВР оперативного тока и учета электроэнергии (с двумя вводами) Схема электрическая принципиальная управления насосами перекачки стоков Схема электрическая принципиальная управления задвижкой на подводящем коллекторе Схемы электрические принципиальные управления насосом гидроуплотнения, дренажным насосом и решетками-дробилками Схемы электрические принципиальные управления вентиляторами Схема электрическая принципиальная контроля уровней Схема электрическая принципиальная сигнализации Схема подключения электрооборудования Схема подключения комплектного устройства (с двумя вводами) Схема подключения комплектного устройства (с одним вводом) Кабельный журнал План расположения электрооборудования. Прокладка кабелей Зануление Электроосвещение Задание МЭЗ марки АЭМ, ЗМ Ведомости объемов электромонтажных и строительных работ марки АЭМ ВР Основной комплект марки ЭК Общие данные Схема функциональная технологического контроля Схема соединений внешних проводок. План расположения Статив датчиков СТ2. Монтажный чертеж Статив датчиков СТ1. Монтажный чертеж Кронштейн. Монтажный чертеж Стойка. Монтажный чертеж Ведомости объемов электромонтажных и строительных работ марки ЭК ВР |
| Разработан: | Харьковский Водоканалпроект |
| Утверждён: | 27.10.1983 Союзводоканалпроект (Soyuzvodokanalproject 59) |






























