Скачать Типовой проект 902-1-100.85 Альбом 2. Технологические решения. Внутренний водопровод и канализация. Отопление и вентиляция (из ТП 902-1-99.85)Дата актуализации: 01.01.2021
|
| Обозначение: | Типовой проект 902-1-100.85 |
| Обозначение англ: | 902-1-100.85 |
| Статус: | действует |
| Название рус.: | Альбом 2. Технологические решения. Внутренний водопровод и канализация. Отопление и вентиляция (из ТП 902-1-99.85) |
| Дата добавления в базу: | 01.09.2013 |
| Дата актуализации: | 01.01.2021 |
| Дата введения: | 18.09.1985 |
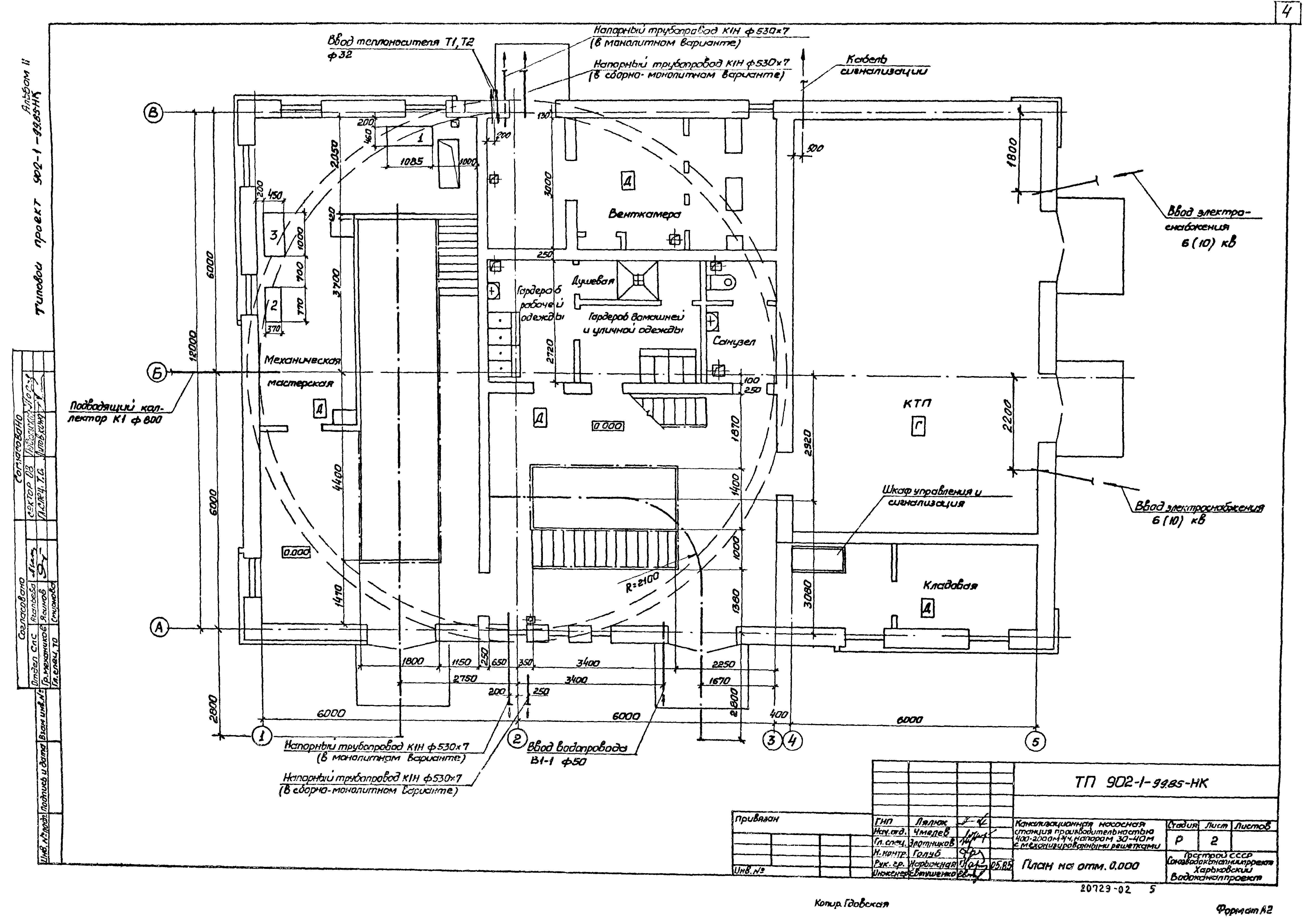
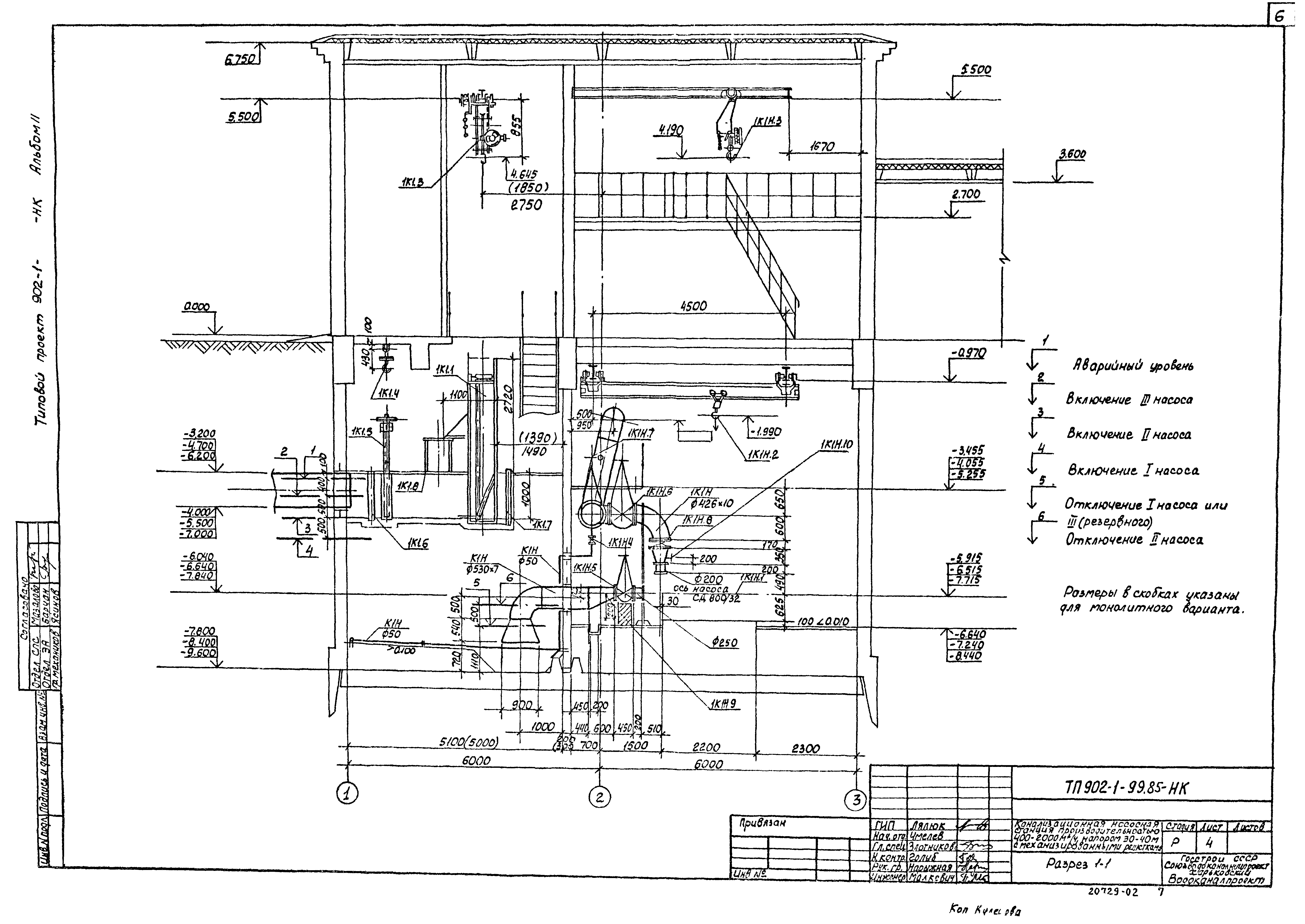
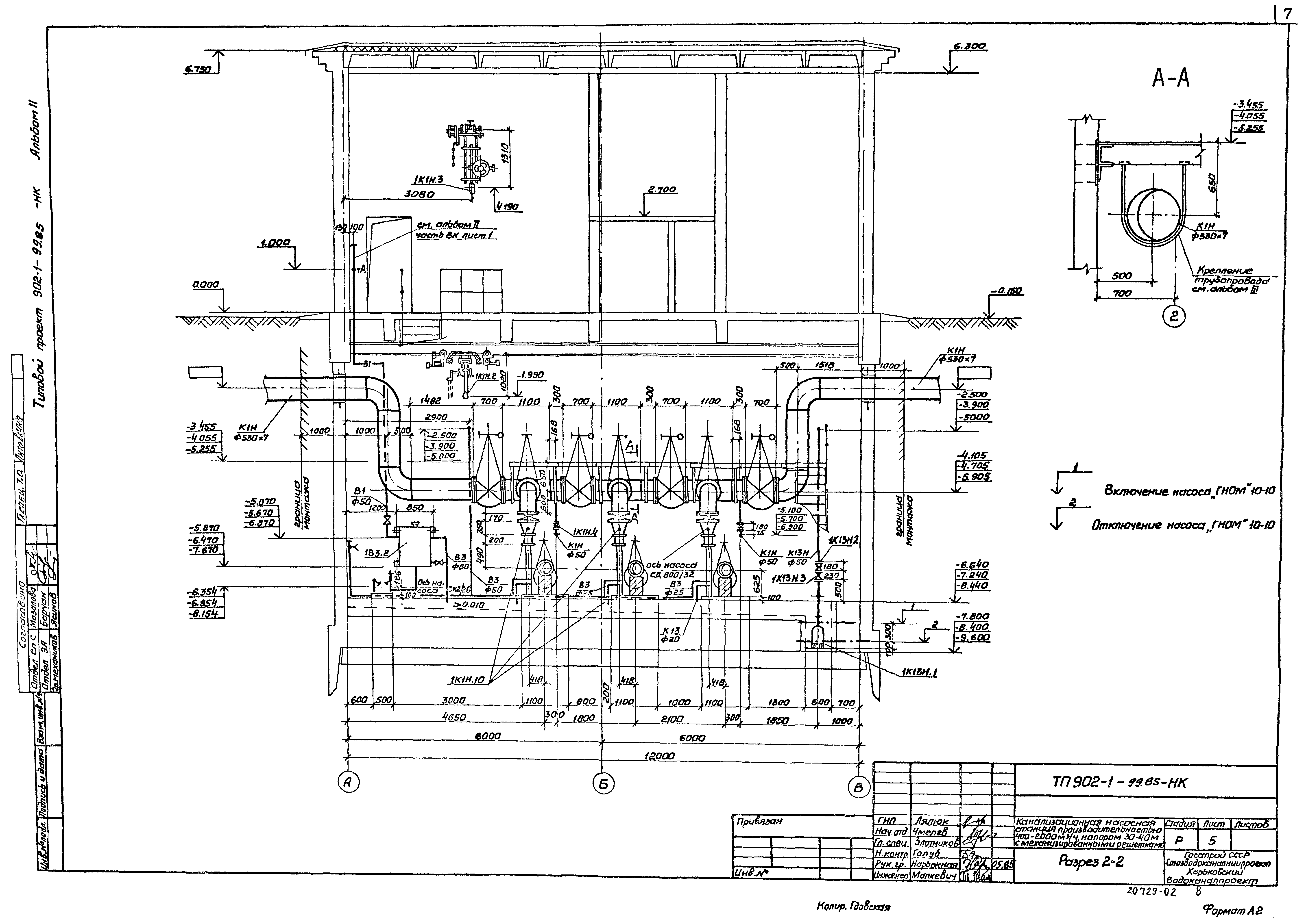
| Оглавление: | ТП 902-1-99.85 Содержание альбома II ТП 902-1-99.85-НК Основной комплект марки НК ТП 902-1-99.85-НК-1 Общие данные ТП 902-1-99.85-НК-2 План на отм. 0.000 ТП 902-1-99.85-НК-3 План ТП 902-1-99.85-НК-4 Разрез 1-1 ТП 902-1-99.85-НК-5 Разрез 2-2 ТП 902-1-99.85-НК-6 План приемного резервуара. Разрез 3-3 ТП 902-1-99.85-НК-7 Схема системы 1К1Н ТП 902-1-99.85-НК-8 План на отм. □. Схема систем 1В3,1К13,1К13Н ТП 902-1-99.85-НКН1 Эскизные чертежи общих видов нетиповых конструкций системы канализации ТП 902-1-99.85-НКН2 Решетка ремонтная. Чертеж общего вида ТП 902-1-99.85-НКН3 Шандор. Чертеж общего вида ТП 902-1-99.85-НКН4 Лоток загрузочный. Чертеж общего вида ТП 902-1-99.85-НКН5 Устройство отборное с разделительной мембраной для манометра. Чертеж общего вида ТП 902-1-99.85-НКН6 Патрубок. Чертеж общего вида ТП 902-1-99.85-НКН7 Патрубок монтажный. Чертеж общего вида ТП 902-1-99.85-ВК Основной комплект марки ВК ТП 902-1-99.85-ВК-1 Общие данные. План. Схемы систем В1,Т3,К1. Водомерный узел ТП 902-1-99.85-ОВ Основной комплект марки ОВ ТП 902-1-99.85-ОВ-1 Общие данные ТП 902-1-99.85-ОВ-2 Планы на отм. 0.000;2.700 подземной части. Разрез 1-1 ТП 902-1-99.85-ОВ-3 Схемы систем отопления, теплоснабжения водоподогревателя и установки П1. Узел управления. Схемы систем П1.1Р;ВЕ1 ТП 902-1-99.85-ОВ-4 Схемы систем П2;В1.1Р;В2.2Р;В5;ВЕ2;В4. Отсос. Элемент изоляции ТП 902-1-99.85-ОВ-5 Установки систем П1.1Р;П2 ТП 902-1-99.85-ОВ-6 Установки систем В1.1Р;В2.2Р;В4;В5 ТП 902-1-99.85-ОВН Эскизные чертежи общих видов нетиповых конструкций системы отопления и вентиляции ТП 902-1-99.85-ОВН1 Лючок с заглушкой. Чертеж общего вида ТП 902-1-99.85-ОВН2 Рама для крепления калорифера. Чертеж общего вида ТП 902-1-99.85-ОВН3 Грязевик. Чертеж общего вида ТП 902-1-99.85-ОВН4 Расширитель. Чертеж общего вида ТП 902-1-99.85-ОВН5 Вставка редукционная. Чертеж общего вида ТП 902-1-99.85-ОВН6 Зонт. Чертеж общего вида |
| Разработан: | Харьковский Водоканалпроект |
| Утверждён: | 21.05.1985 Госстрой СССР (Государственный комитет Совета Министров СССР по делам строительства) (USSR Gosstroy А4-23) |























