Скачать Типовой проект 902-1-100.85 Альбом 5. Строительные решения. Подземная частьДата актуализации: 01.01.2021
|
| Обозначение: | Типовой проект 902-1-100.85 |
| Обозначение англ: | 902-1-100.85 |
| Статус: | действует |
| Название рус.: | Альбом 5. Строительные решения. Подземная часть |
| Дата добавления в базу: | 01.09.2013 |
| Дата актуализации: | 01.01.2021 |
| Дата введения: | 18.09.1985 |
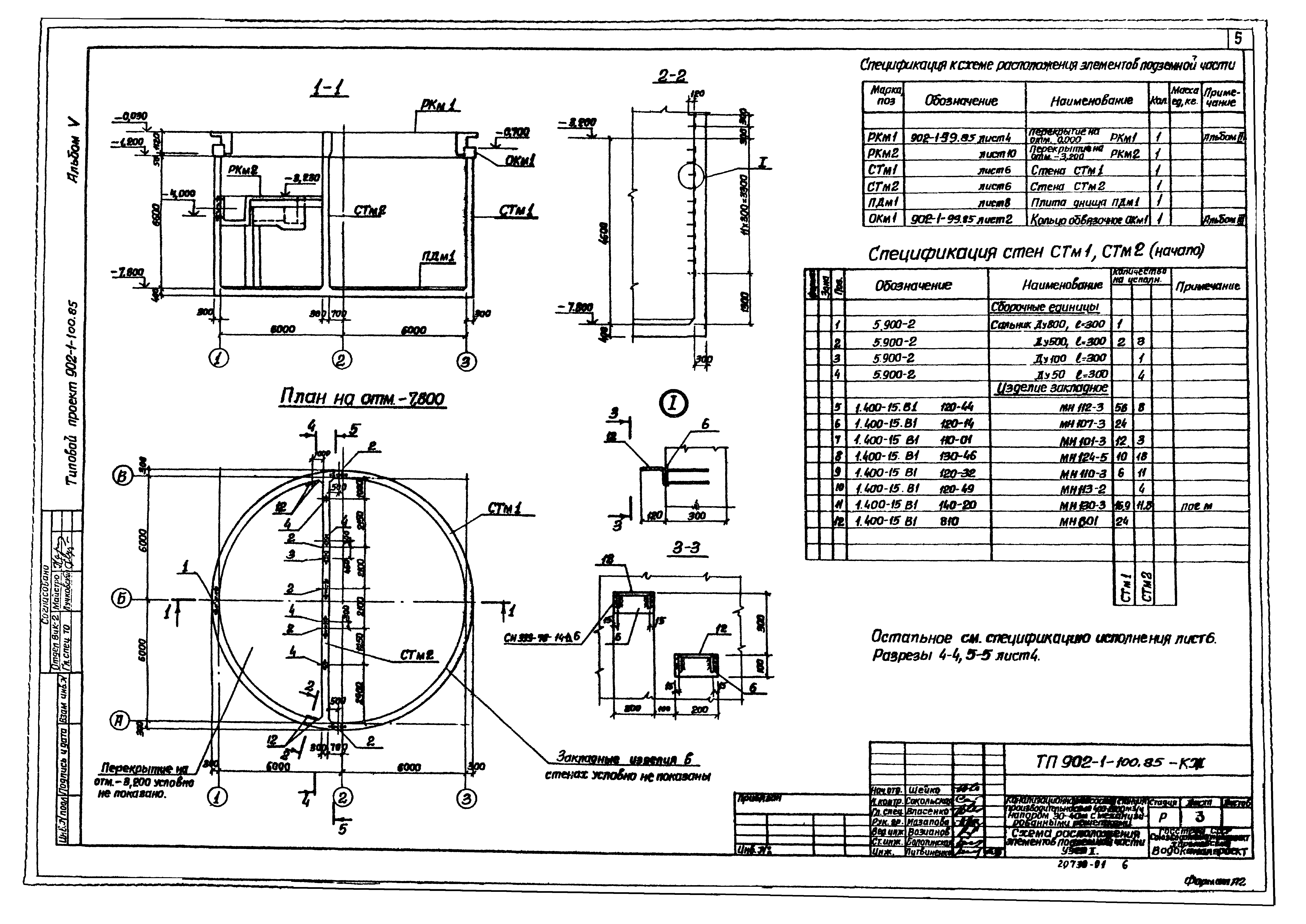
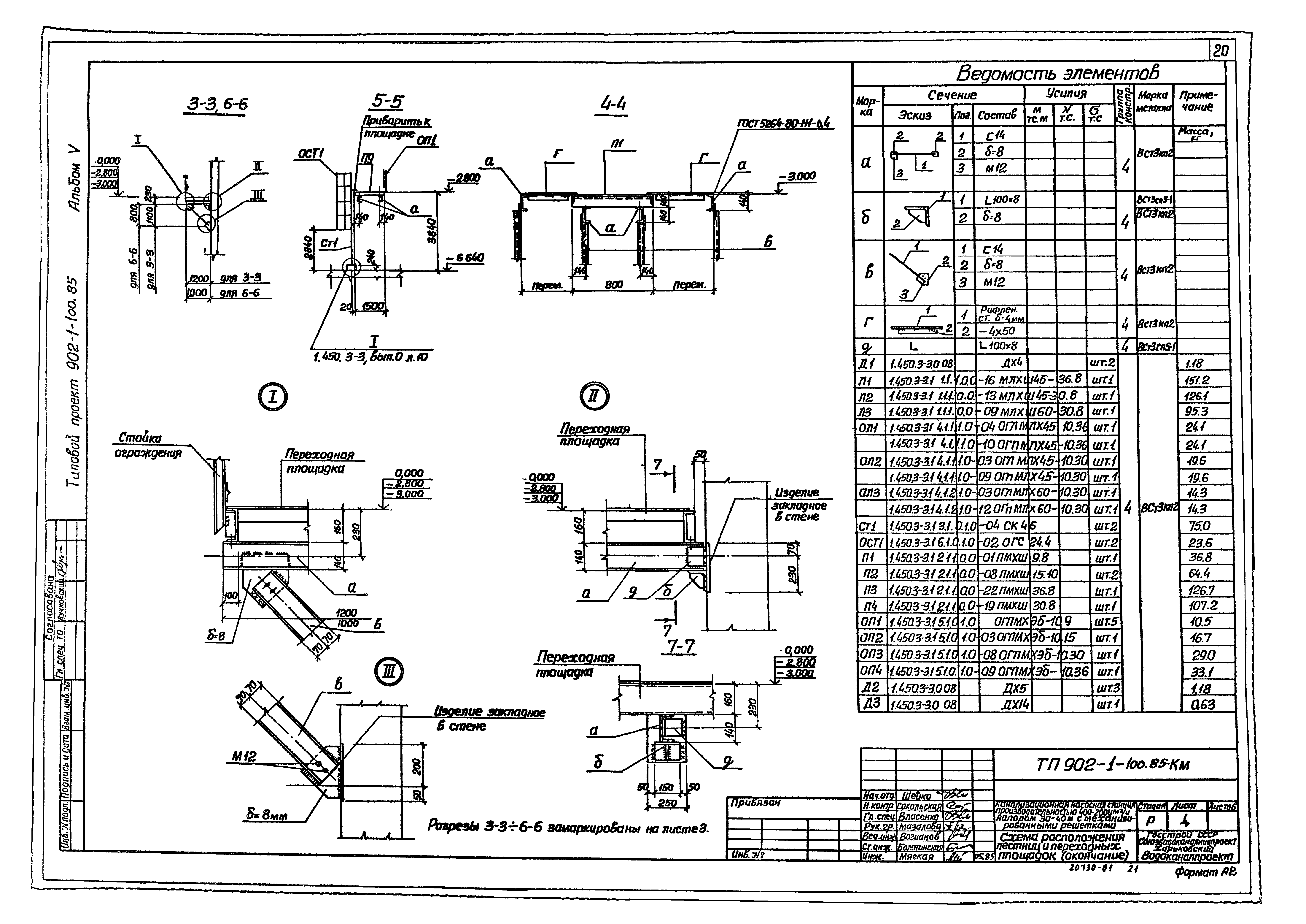
| Оглавление: | Содержание Основной комплект КЖ Общие данные Планы на отм. -6,640 и -3,200. Разрезы 1-1, 2-2 Схема расположения элементов подземной части. Узел 1 Стены СТм1, СТм2. Общие виды. Узел 2 Стены СТм1, СТм2. Схемы армирования Плита днища ПДм1. Схема армирования Перекрытие РКм2 на отм. -3,200. Общий вид Перекрытие РКм2 на отм. -3,200. Плита Пм1, балки Бм1…Бм4. Общие виды и схемы армирования Перекрытие РКм2 на отм. -3,200. Балки Бм1…Бм4. Колонна Км1. Общие виды и схема армирования Перекрытие РКм2 на отм. -3,200. Лоток ЛТм1. Схема армирования Перекрытие РКм2 на отм. -3,200. Спецификация Основной комплект КМ Общие данные Схема расположения лестниц и переходных площадок Изделия Опись документов Техническое описание и изготовление арматурных и закладных изделий Каркас плоский КР1 Каркас плоский КР (КР4…КР11). Сборочные чертежи Каркас плоский КР (КР4…КР11) Каркас плоский КР (КР2, КР3) Изделие соединительное МС1 Изделие соединительное МС2 Каркас плоский КР12 Изделие закладное МН (МН1, МН2) Изделие закладное МН (МН3, МН4) |
| Разработан: | Харьковский Водоканалпроект |
| Утверждён: | 21.05.1985 Госстрой СССР (Государственный комитет Совета Министров СССР по делам строительства) (USSR Gosstroy А4-23) |

























