Скачать Типовой проект 902-1-101.85 Альбом 5. Строительные решения. Подземная частьДата актуализации: 01.01.2021
|
| Обозначение: | Типовой проект 902-1-101.85 |
| Обозначение англ: | 902-1-101.85 |
| Статус: | действует |
| Название рус.: | Альбом 5. Строительные решения. Подземная часть |
| Дата добавления в базу: | 01.09.2013 |
| Дата актуализации: | 01.01.2021 |
| Дата введения: | 18.09.1985 |
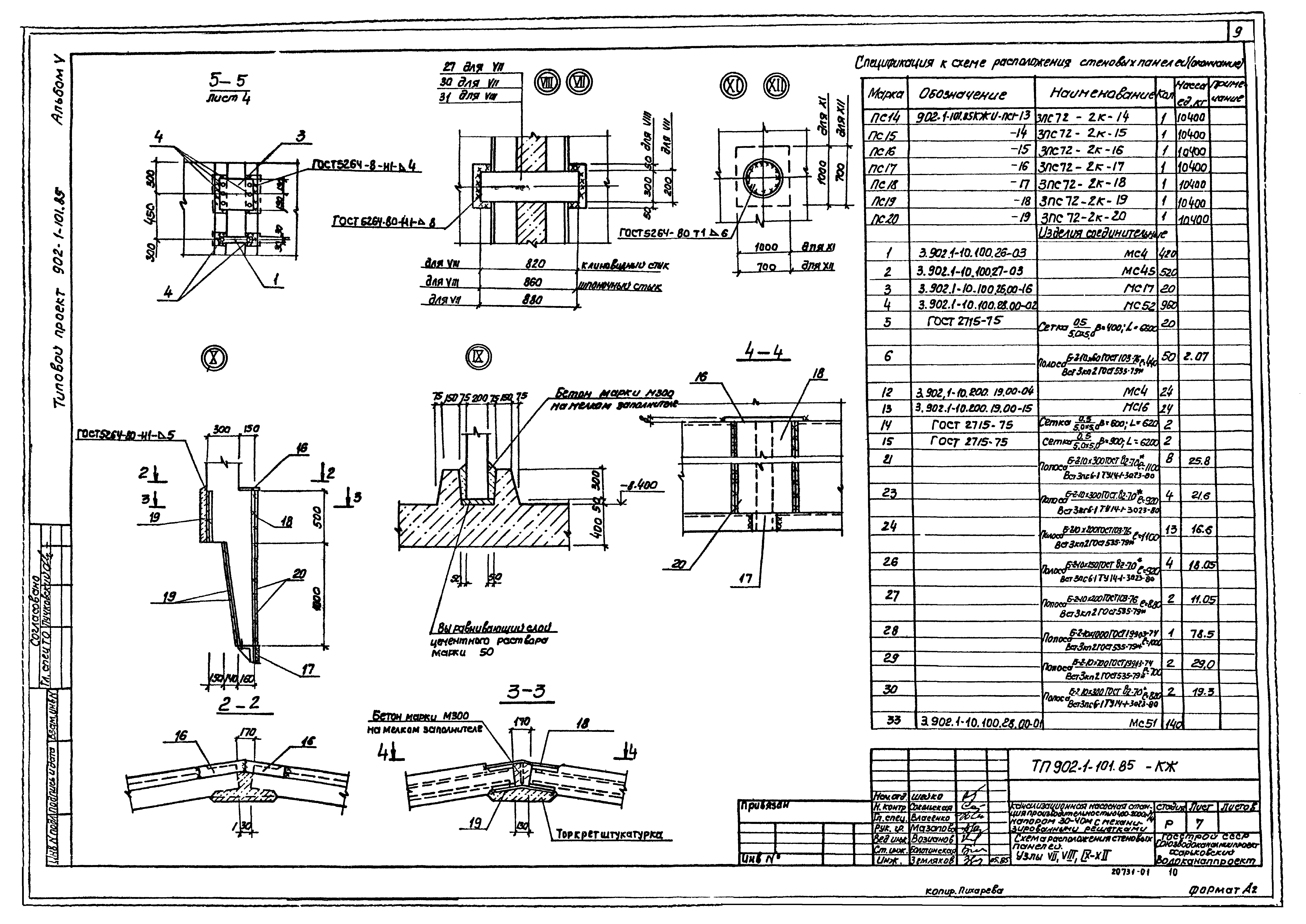
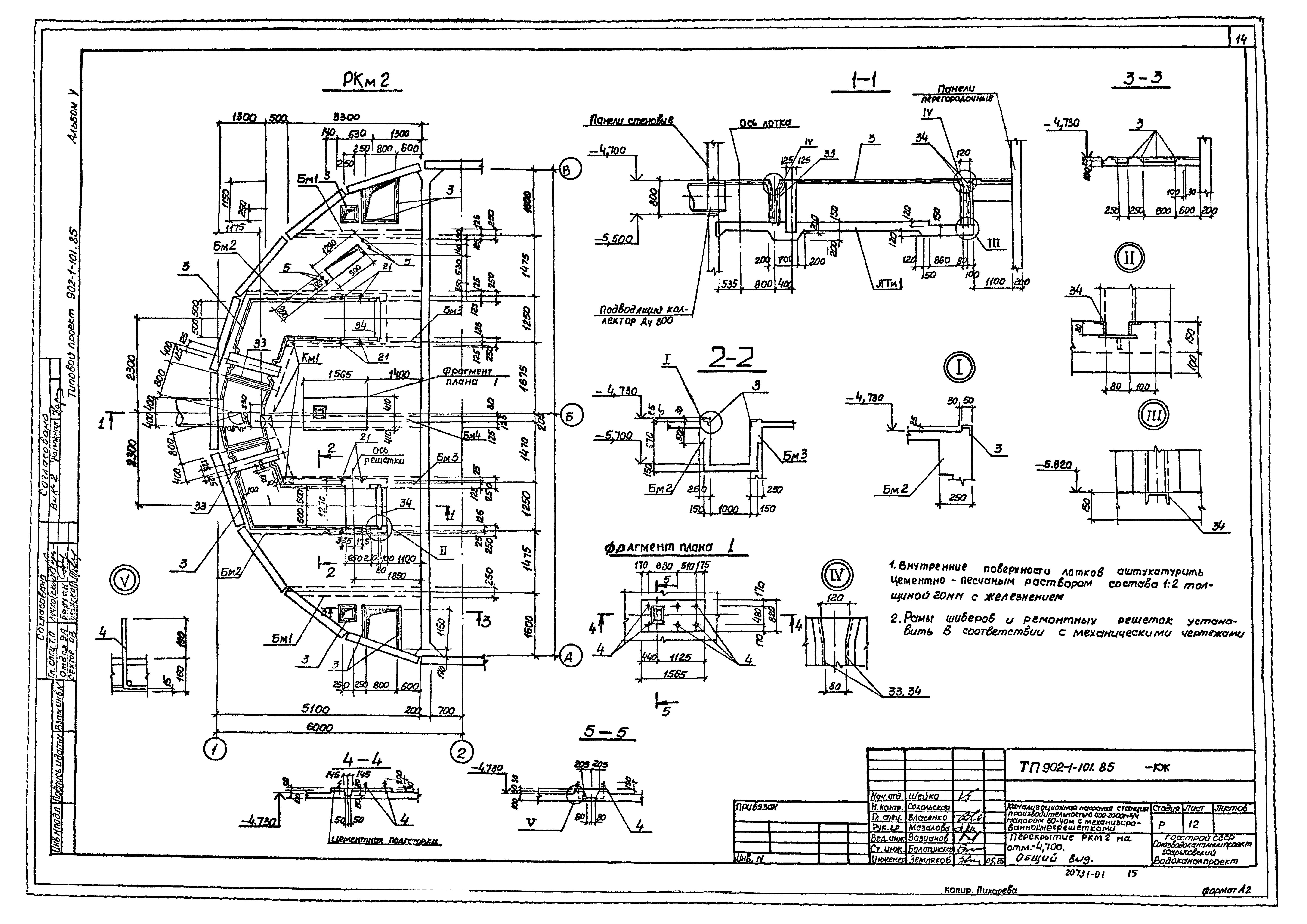
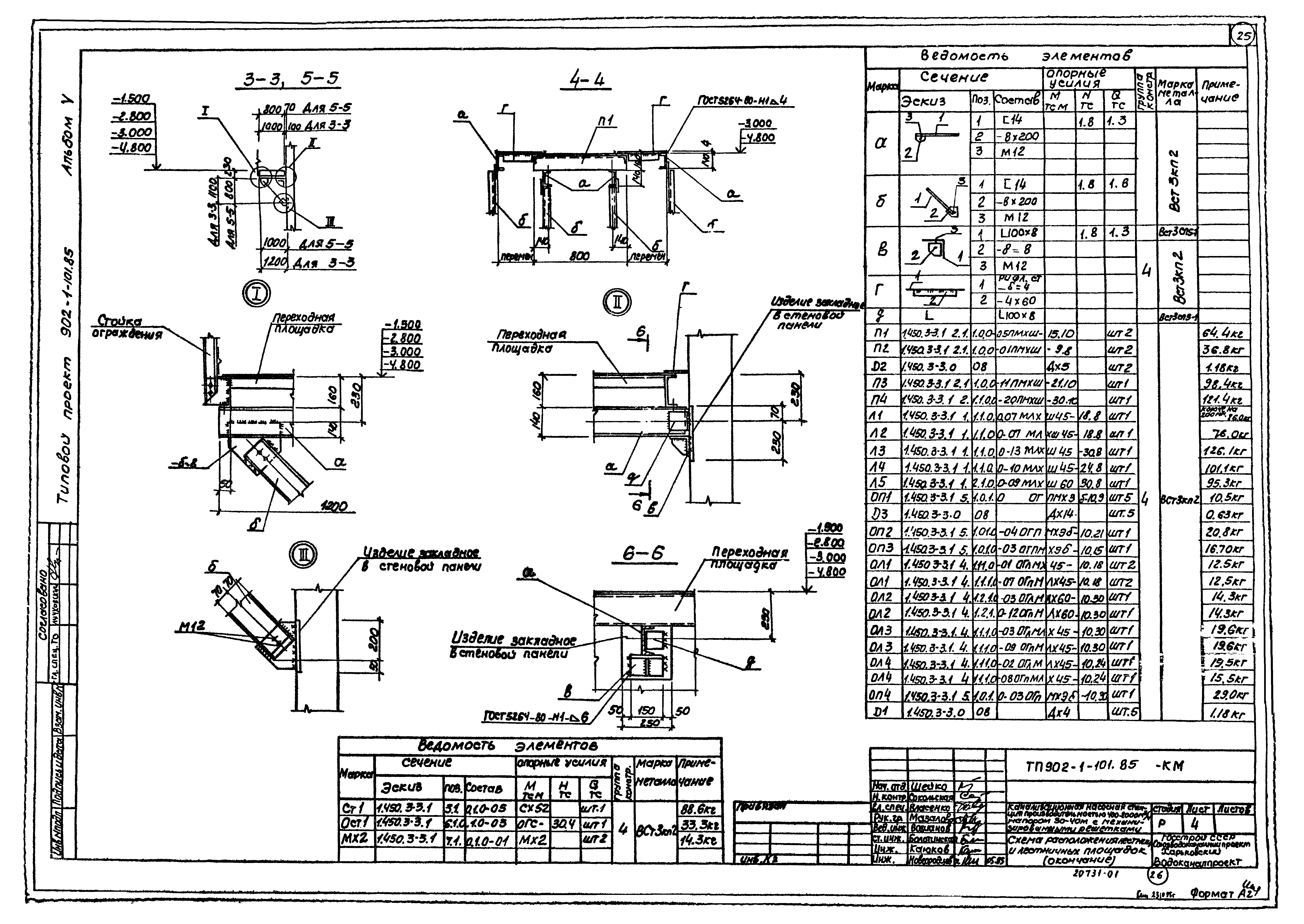
| Оглавление: | Содержание Основной комплект КЖ Общие данные Планы на отм. -7,240 и -4,700. Разрезы 1-1, 2-2 Схема расположения конструкций подземной части. Узлы 14, 15 Схема расположения стеновых панелей. Узел 1 Схема расположения стеновых панелей. Узлы 4…6, 8 Схема расположения стеновых панелей. Узлы 2, 3 Схема расположения стеновых панелей. Узлы 7, 8, 9…12 Схема расположения стеновых панелей. Спецификация Плита днища ПДм1. Общий вид и схема армирования Плита днища ПДм1. Схема расположения каркасов Плита днища ПДм1. Спецификация Перекрытие РКм2 на отм. -4,700. Общий вид Перекрытие РКм2 на отм. -4,700. Плита Пм1. Балки Бм1…Бм4. Общий вид и схема армирования Перекрытие РКм2 на отм. -4,700. Лоток ЛТм1. Схема армирования Перекрытие РКм2 на отм. -4,700. Балки Бм1…Бм4. Колонна Км1. Общие виды и схемы армирования Перекрытие РКм2 на отм. -4,700. Спецификация Схема расположения опорных лотков и форшахты (опускной способ) Схема расположения форшахты (метод "стена в грунте") Основной комплект КМ Общие данные Схема расположения лестниц и лестничных площадок |
| Разработан: | Харьковский Водоканалпроект |
| Утверждён: | 21.06.1985 Госстрой СССР (Государственный комитет Совета Министров СССР по делам строительства) (USSR Gosstroy А4-23) |


























