Скачать Типовой проект 902-2-255 Альбом 2. Производственно-вспомогательный блокДата актуализации: 01.01.2021
|
| Обозначение: | Типовой проект 902-2-255 |
| Обозначение англ: | 902-2-255 |
| Статус: | заменен |
| Название рус.: | Альбом 2. Производственно-вспомогательный блок |
| Дата добавления в базу: | 01.09.2013 |
| Дата актуализации: | 01.01.2021 |
| Дата введения: | 15.09.1975 |
| Дата окончания срока действия: | 01.06.1988 |
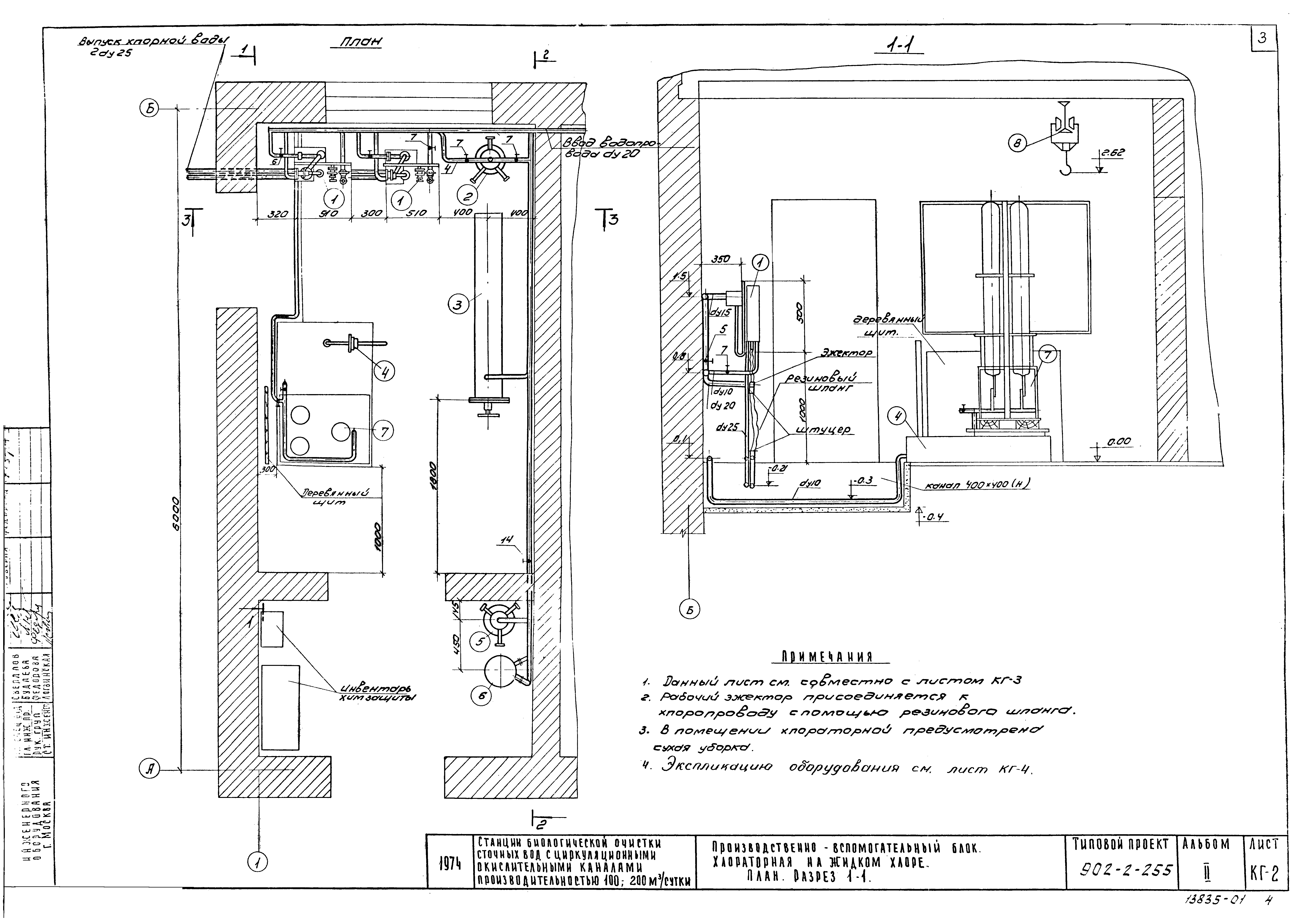
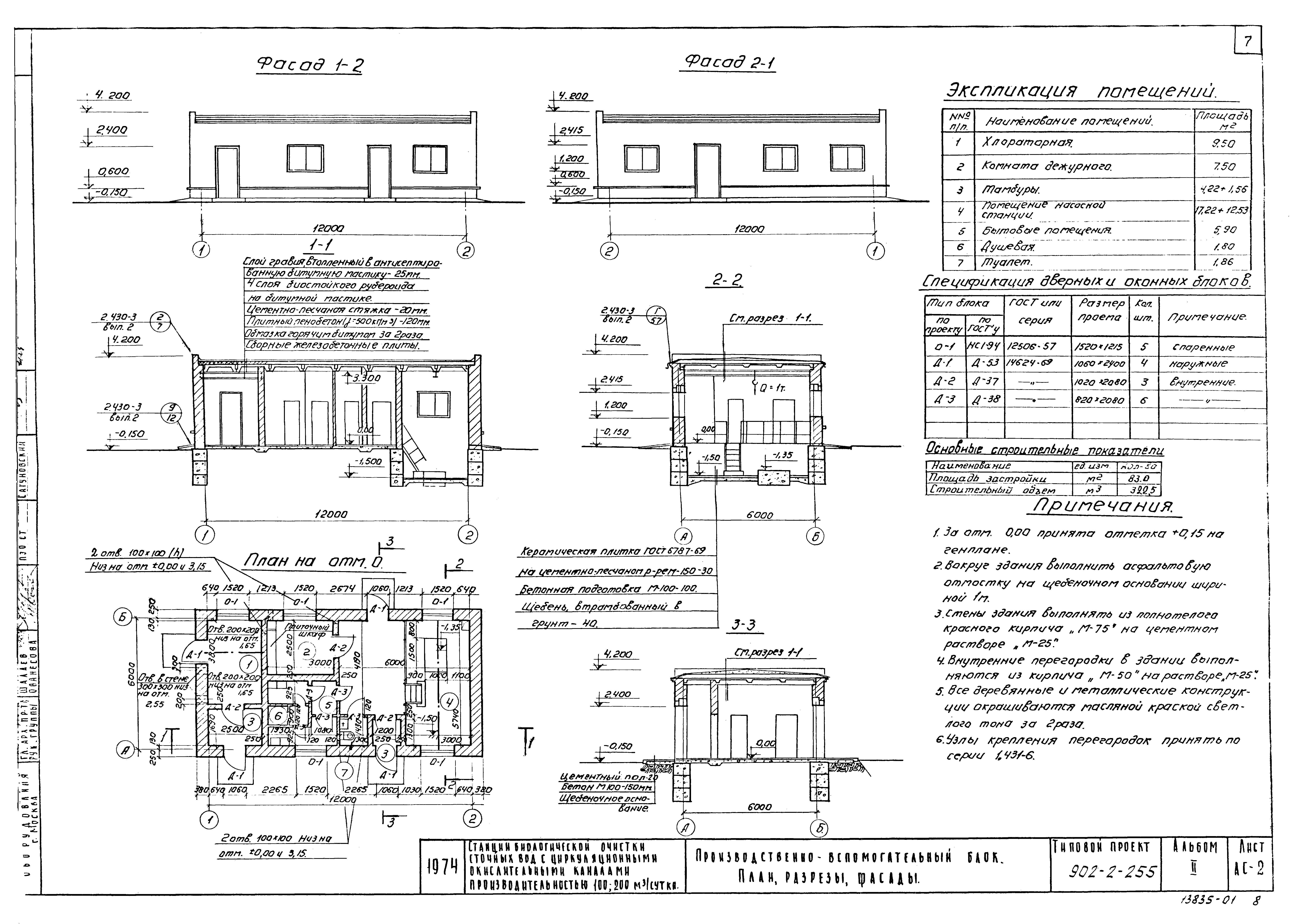
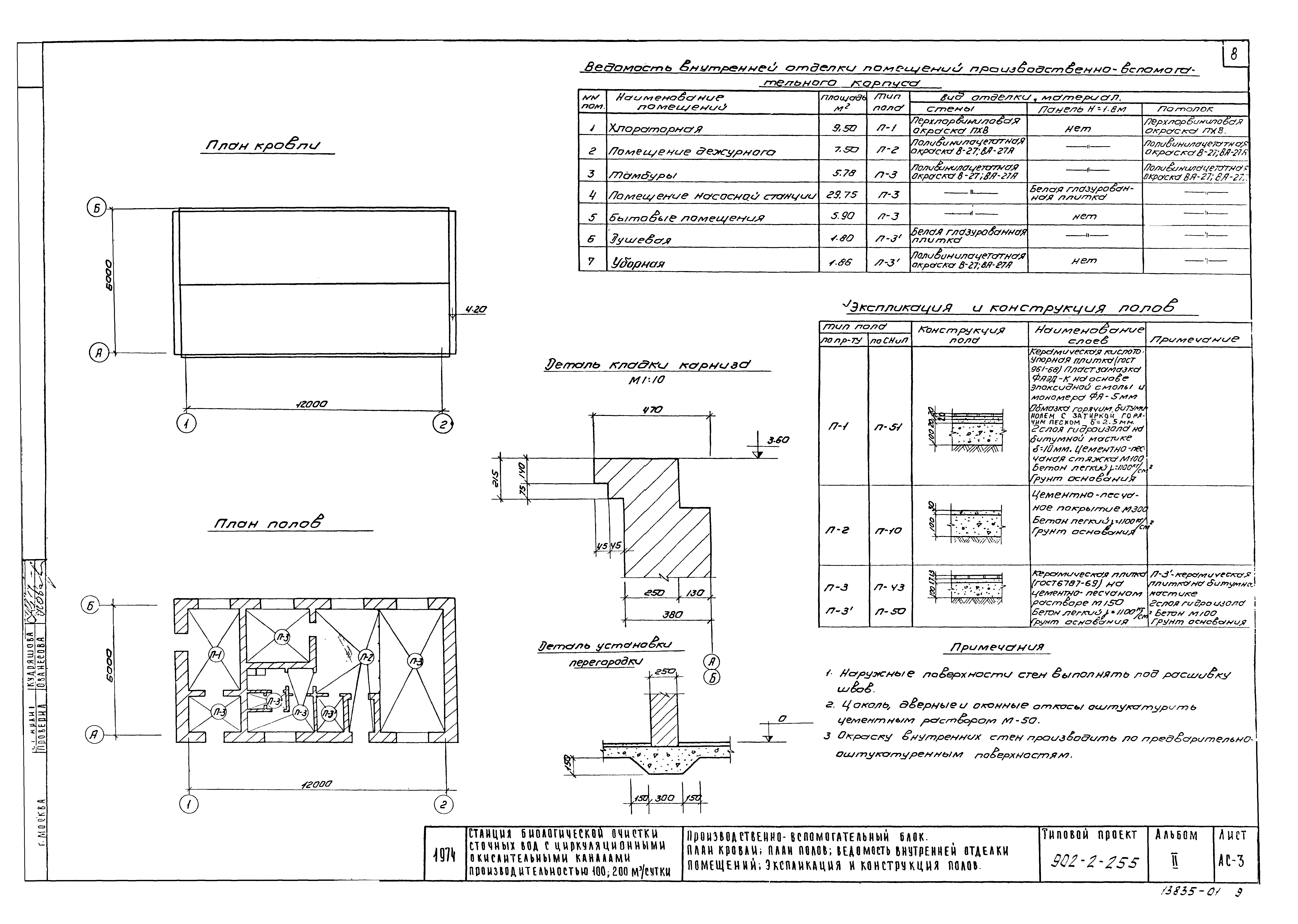
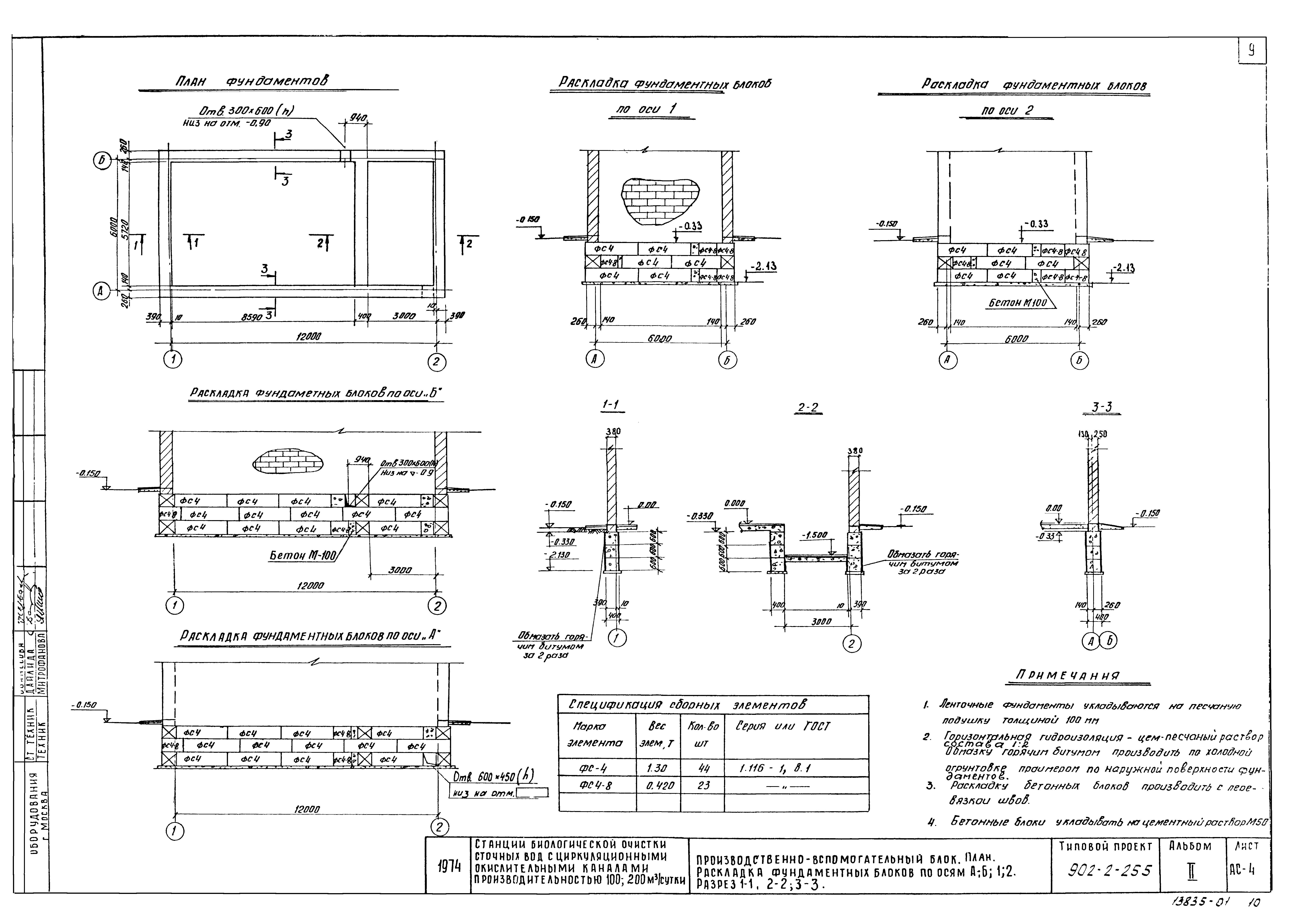
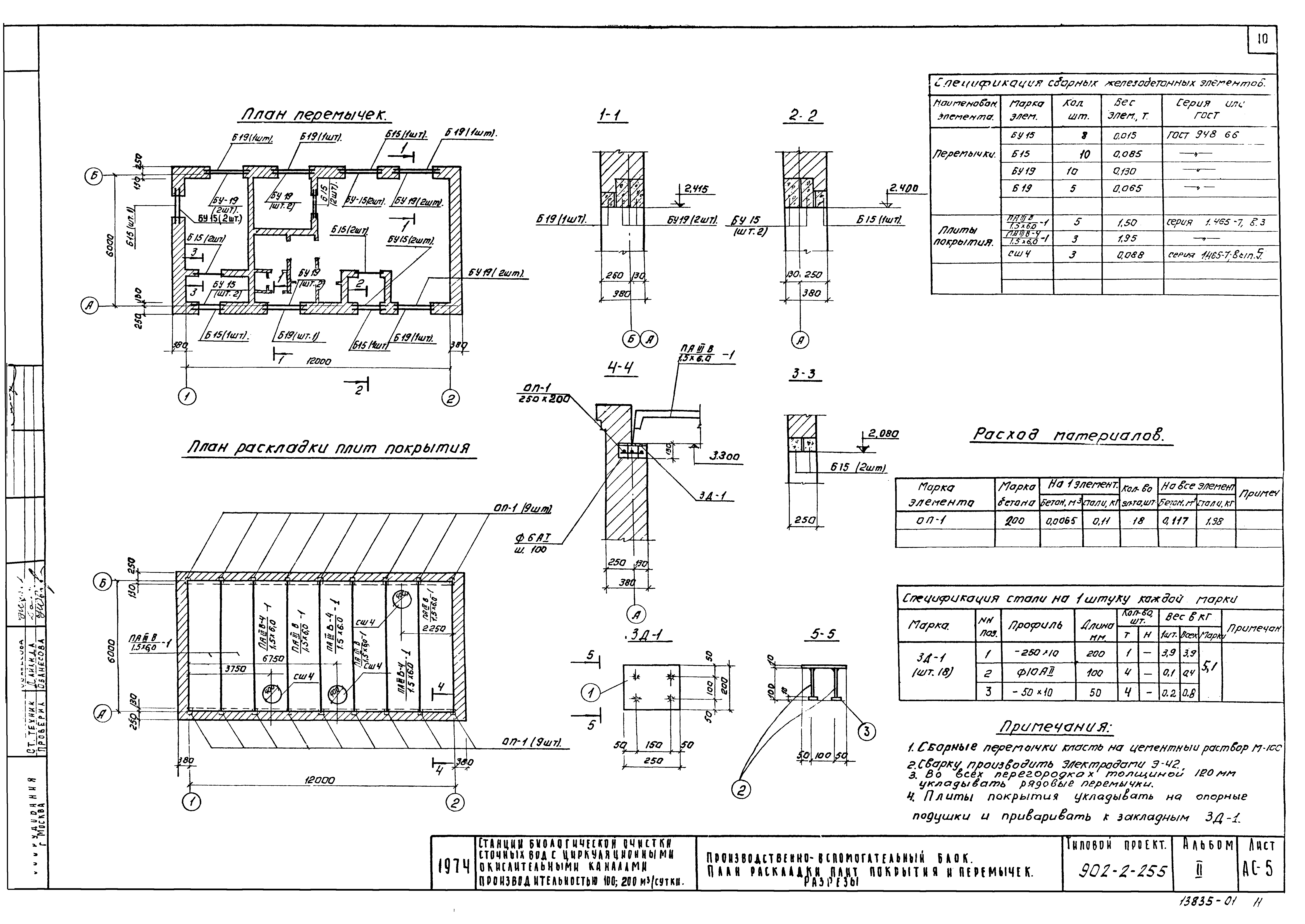
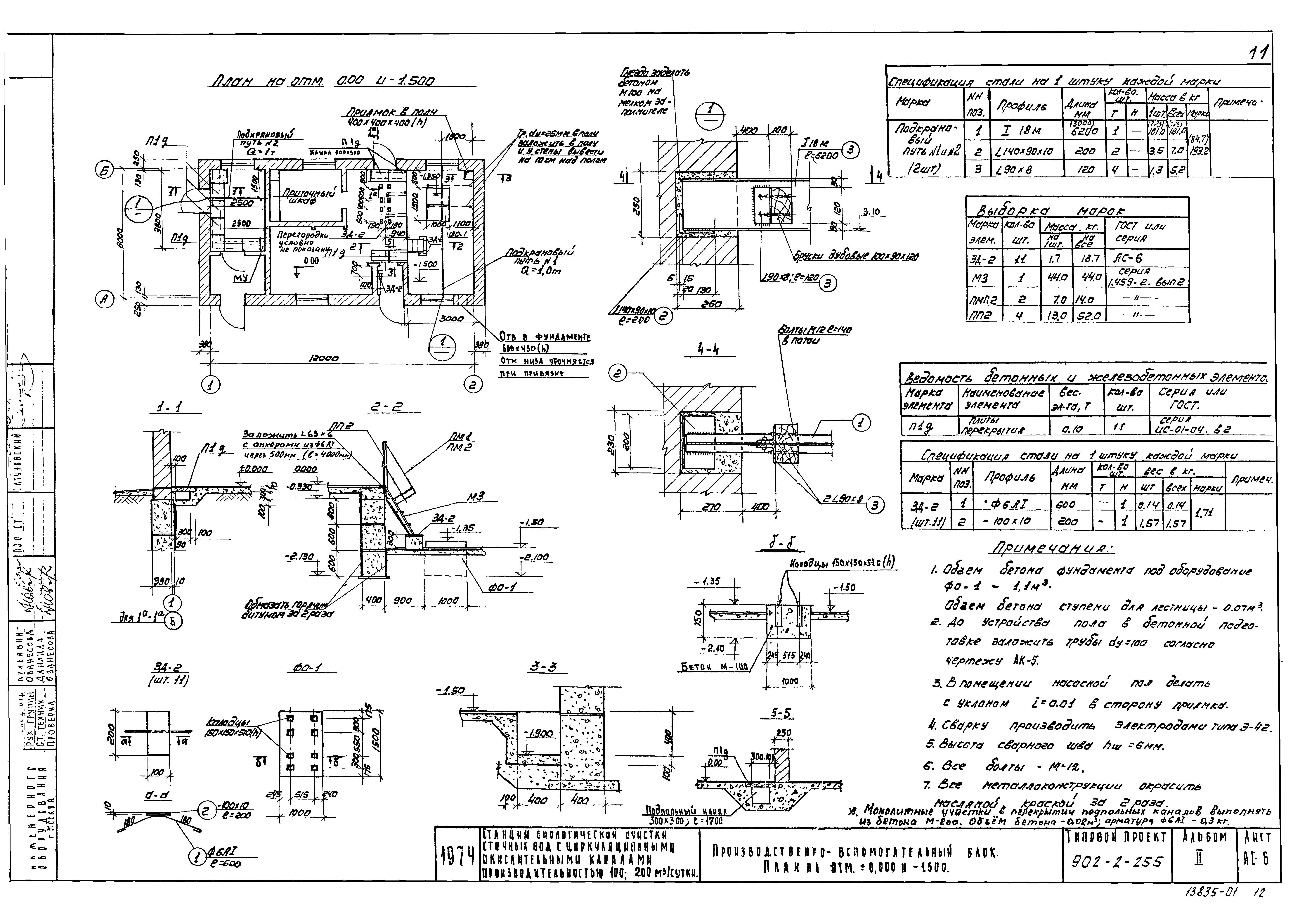
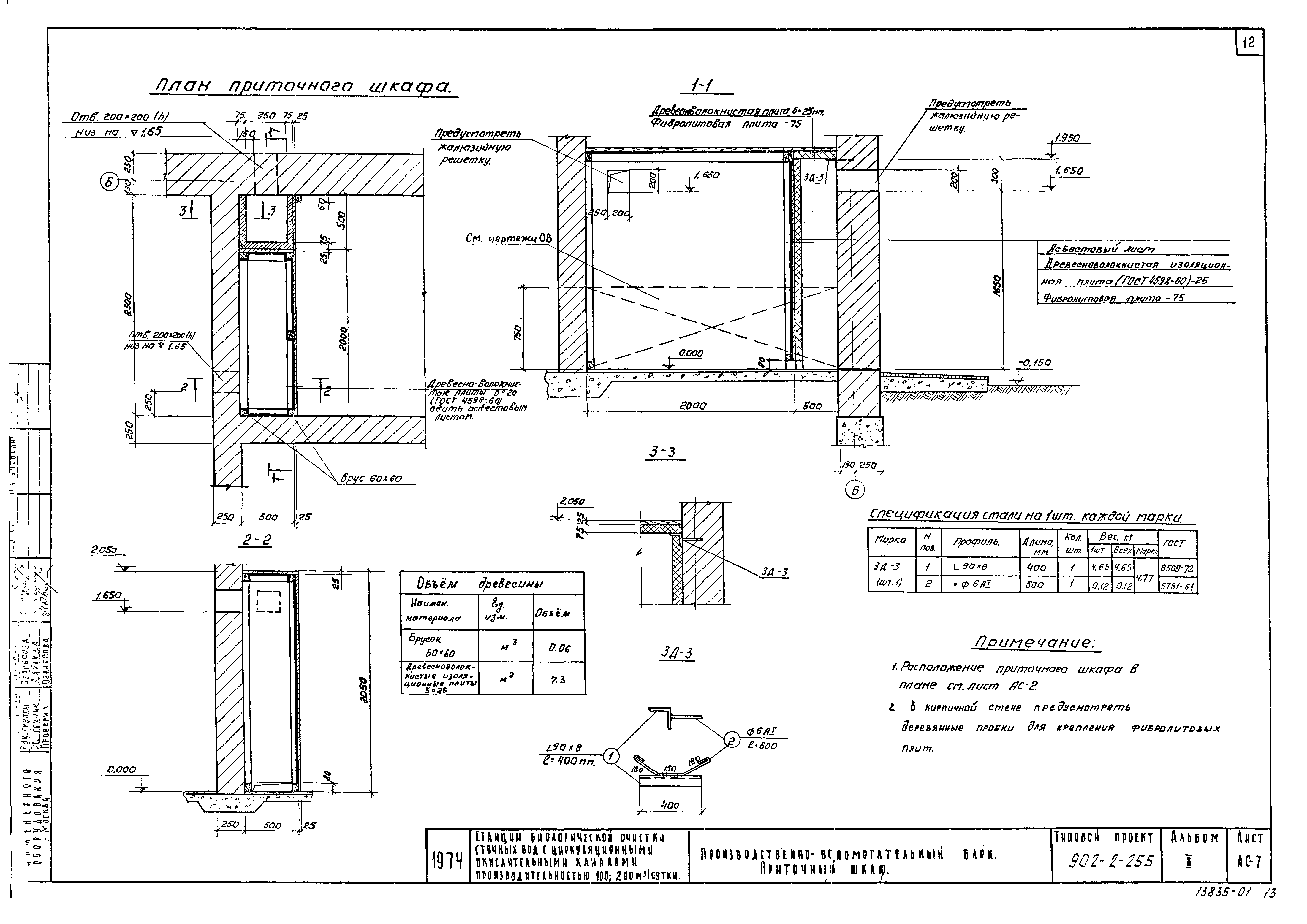
| Оглавление: | Технологические чертежи Производственно-вспомогательный блок. План и разрезы 1-1, 2-2 Хлораторная на жидком хлоре. План. Разрез 1-1 Хлораторная на жидком хлоре. Разрезы 2-2, 3-3 Хлораторная на жидком хлоре. Технологическая схема Строительные чертежи Выборка материалов План. Разрезы. Фасады План кровли. План полов. Ведомость внутренней отделки помещений; экспликация и конструкция полов Раскладка фундаментных блоков по осям А-б; 1-2. Разрез 1-1, 2-2, 3-3 План раскладки плит покрытия и перемычек. Разрезы План на отм. 0,000 и -1,500 Приточный шкаф Санитарно-технические чертежи Планы. Разрез. Схемы отопления и вентиляции Приточный шкаф. 1-й вариант - с электрическими печами. 2-й вариант - с ребристыми трубами Внутренний водопровод и канализация Электротехнические чертежи Питание электрооборудования. Схема принципиальная электрическая Схема подключения электрооборудования. Электроотопление. Схема принципиальная электрическая Строительное задание. Слаботочные устройства. Размещение электрооборудования и прокладка кабелей Кабельный журнал Электроосвещение. Заземление. План |
| Разработан: | ЦНИИЭП инженерного оборудования |
| Утверждён: | 31.07.1975 Госгражданстрой (Gosgrazhdanstroy 162) |
| Чем заменён: |





















