Скачать Типовой проект 902-2-255 Альбом 4. Циркуляционно-окислительный канал производительностью 100; 200 куб. м/суткиДата актуализации: 01.01.2021
|
| Обозначение: | Типовой проект 902-2-255 |
| Обозначение англ: | 902-2-255 |
| Статус: | заменен |
| Название рус.: | Альбом 4. Циркуляционно-окислительный канал производительностью 100; 200 куб. м/сутки |
| Дата добавления в базу: | 01.09.2013 |
| Дата актуализации: | 01.01.2021 |
| Дата введения: | 15.09.1975 |
| Дата окончания срока действия: | 01.06.1988 |
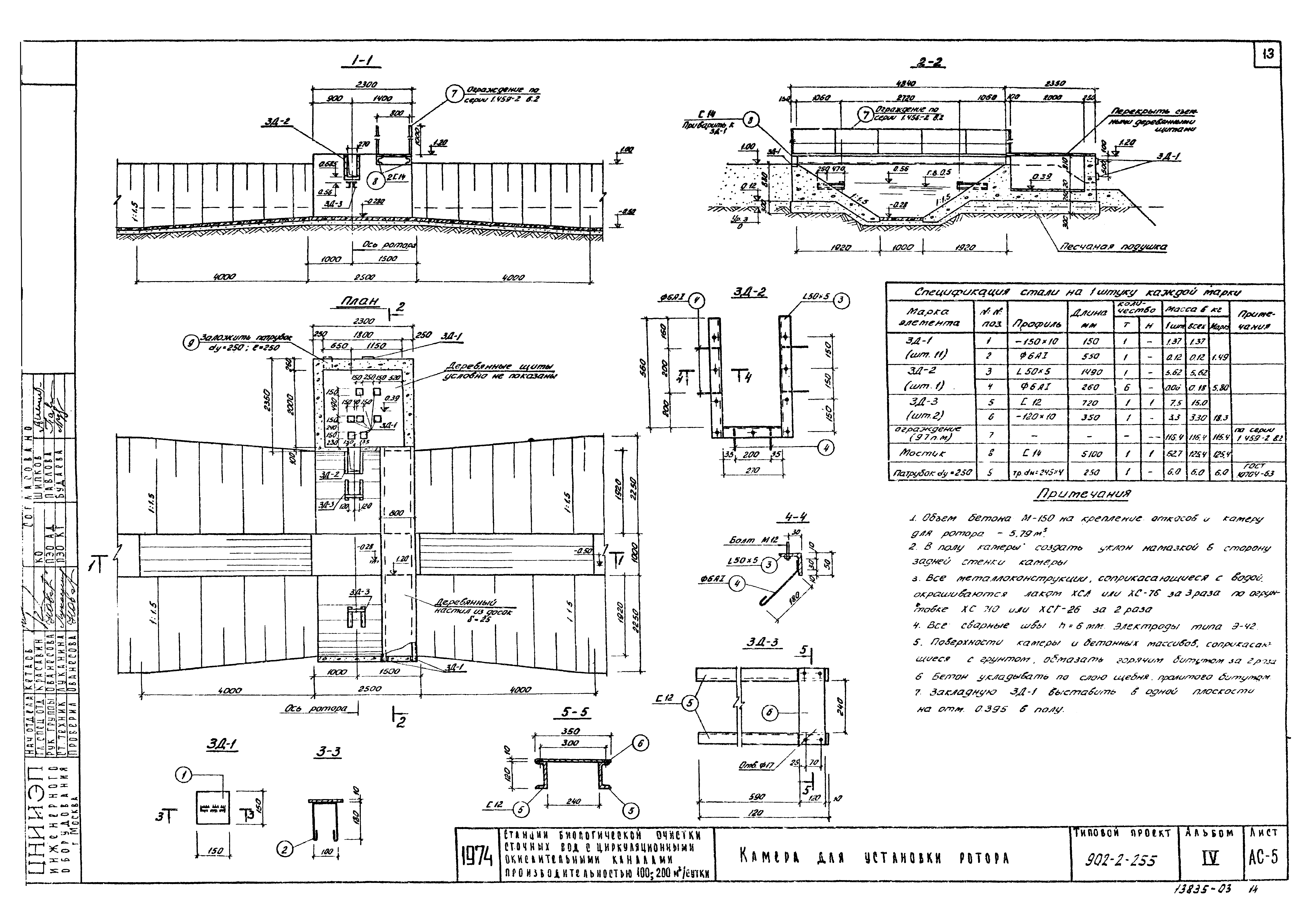
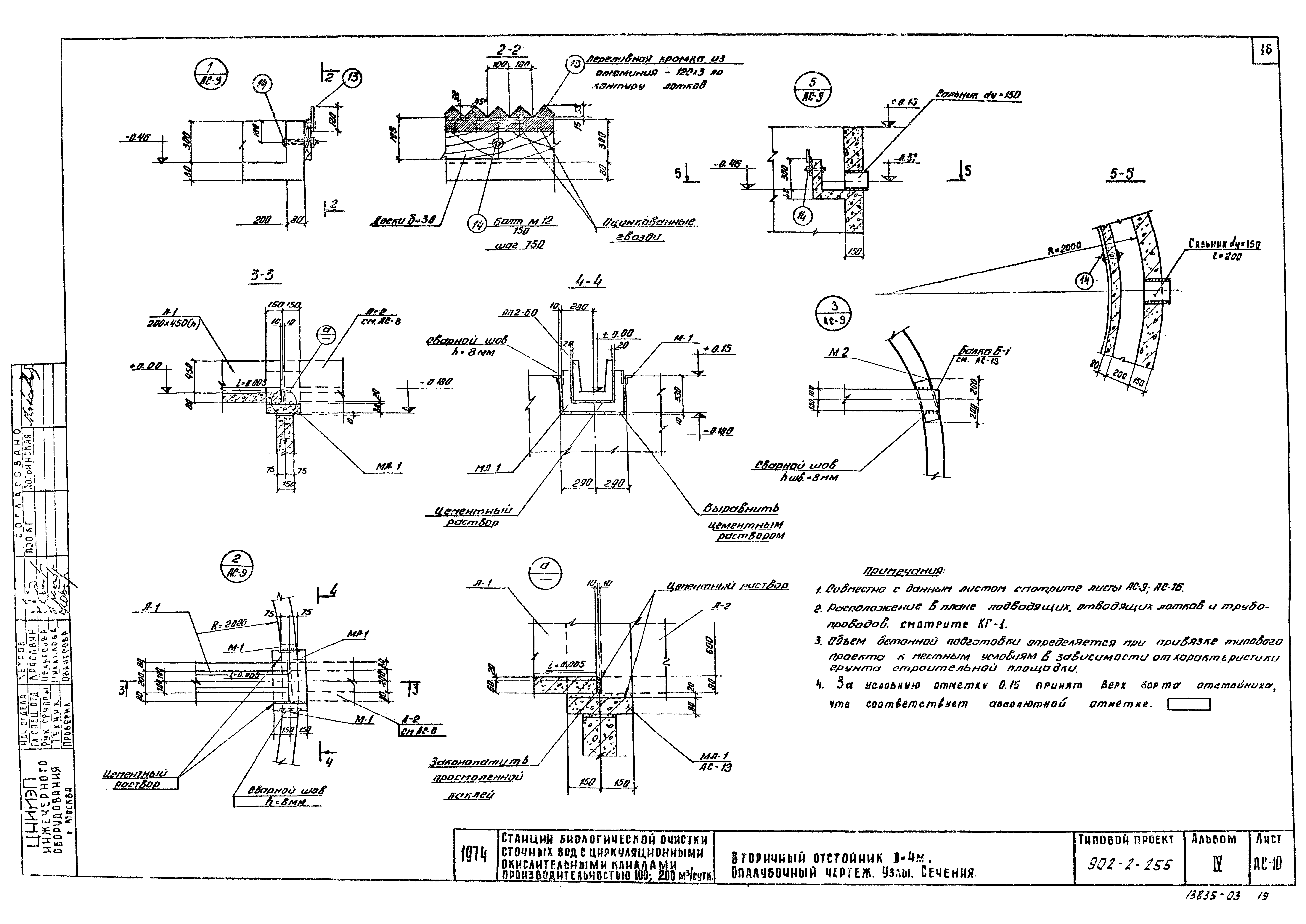
| Оглавление: | Технологические чертежи Примерный генплан с коммуникациями Циркуляционный окислительный канал Профиль движения воды Профили самотечного трубопровода циркуляционного активного ила, осадка из контактного резервуара и опорожнения канала Профили напорного трубопровода циркуляционного активного ила, трубопровода опорожнения и аварийного сброса Профили хоз.-питьевого водопровода, хлоропровода, трубопровода хоз.-фекальной канализации Вторичный отстойник диаметром 4 м. Контактный резервуар диаметром 2 м Строительные чертежи Примерный генплан Контактный резервуар. Колодец-смеситель. План. Разрез. Узел Камера водовыпуска Приемные камеры К-1-1 и К-1-2. Планы. Разрезы. Спецификация Камера для установки ротора Крепление откосов циркуляционного окислительного канала Лотки. Планы. Разрезы. Узлы Лоток Л-2. Опалубка и армирование. Вторичный отстойник диаметром 4 м Вторичный отстойник диаметром 4 м. Общий вид. План. Разрез Опалубочный чертеж. Узлы. Сечения Армирование отстойника. План и разрез Арматурный чертеж. Узлы. Спецификация арматуры Армирование балки Б-1 и муфты МЛ-1 Армирование лотка Л-1 Опалубочный чертеж. Сечения. Закладные элементы М-1…М-5 Лестница М-2. Спецификация и выборка Электротехнические чертежи План внецеховой кабельной сети |
| Разработан: | ЦНИИЭП инженерного оборудования |
| Утверждён: | 31.07.1975 Госгражданстрой (Gosgrazhdanstroy 162) |
| Чем заменён: |


























