Скачать Типовой проект 902-2-255 Альбом 5. Нестандартизированное оборудование и задание заводам-изготовителямДата актуализации: 01.01.2021
|
| Обозначение: | Типовой проект 902-2-255 |
| Обозначение англ: | 902-2-255 |
| Статус: | заменен |
| Название рус.: | Альбом 5. Нестандартизированное оборудование и задание заводам-изготовителям |
| Дата добавления в базу: | 01.09.2013 |
| Дата актуализации: | 01.01.2021 |
| Дата введения: | 15.09.1975 |
| Дата окончания срока действия: | 01.06.1988 |
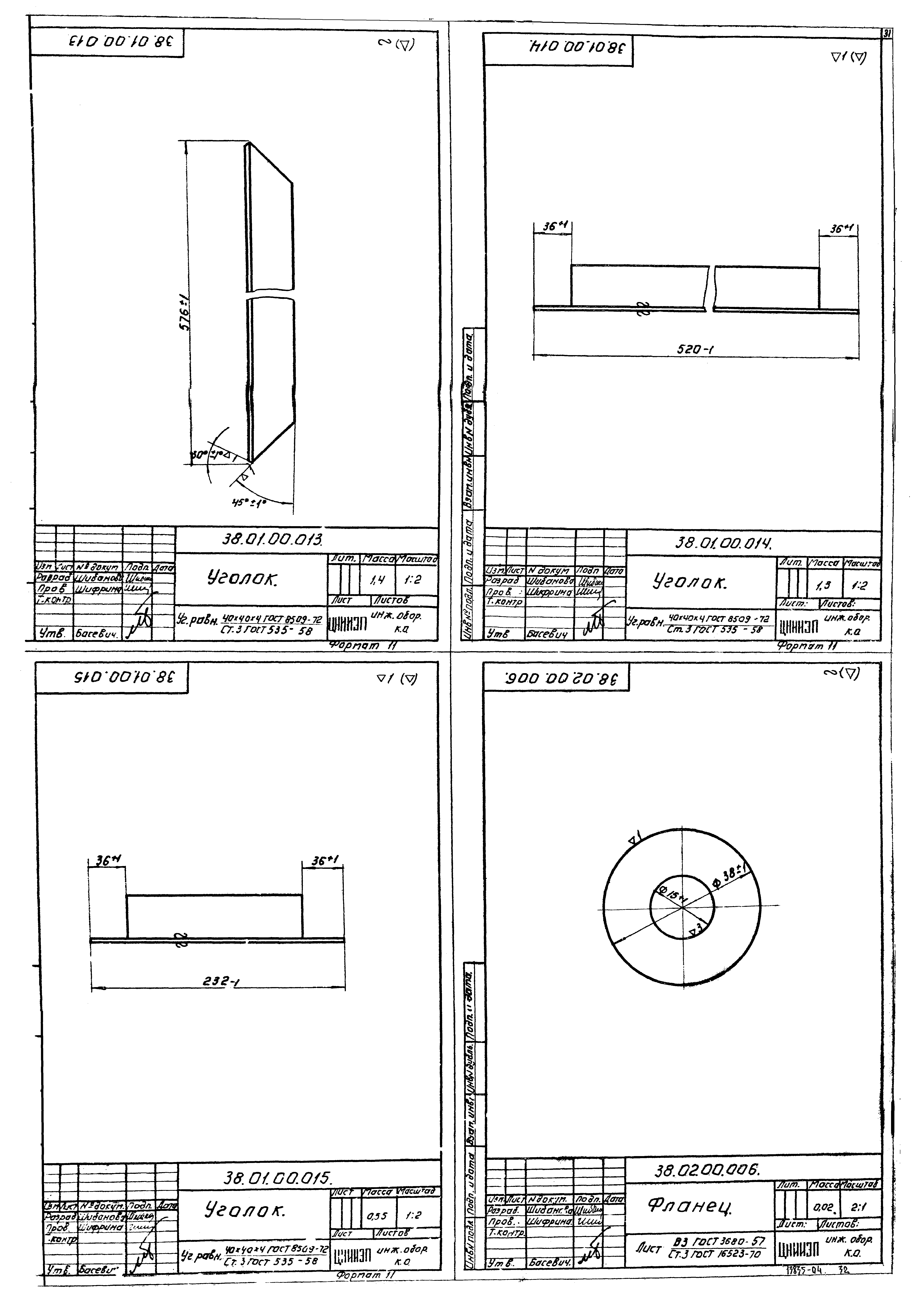
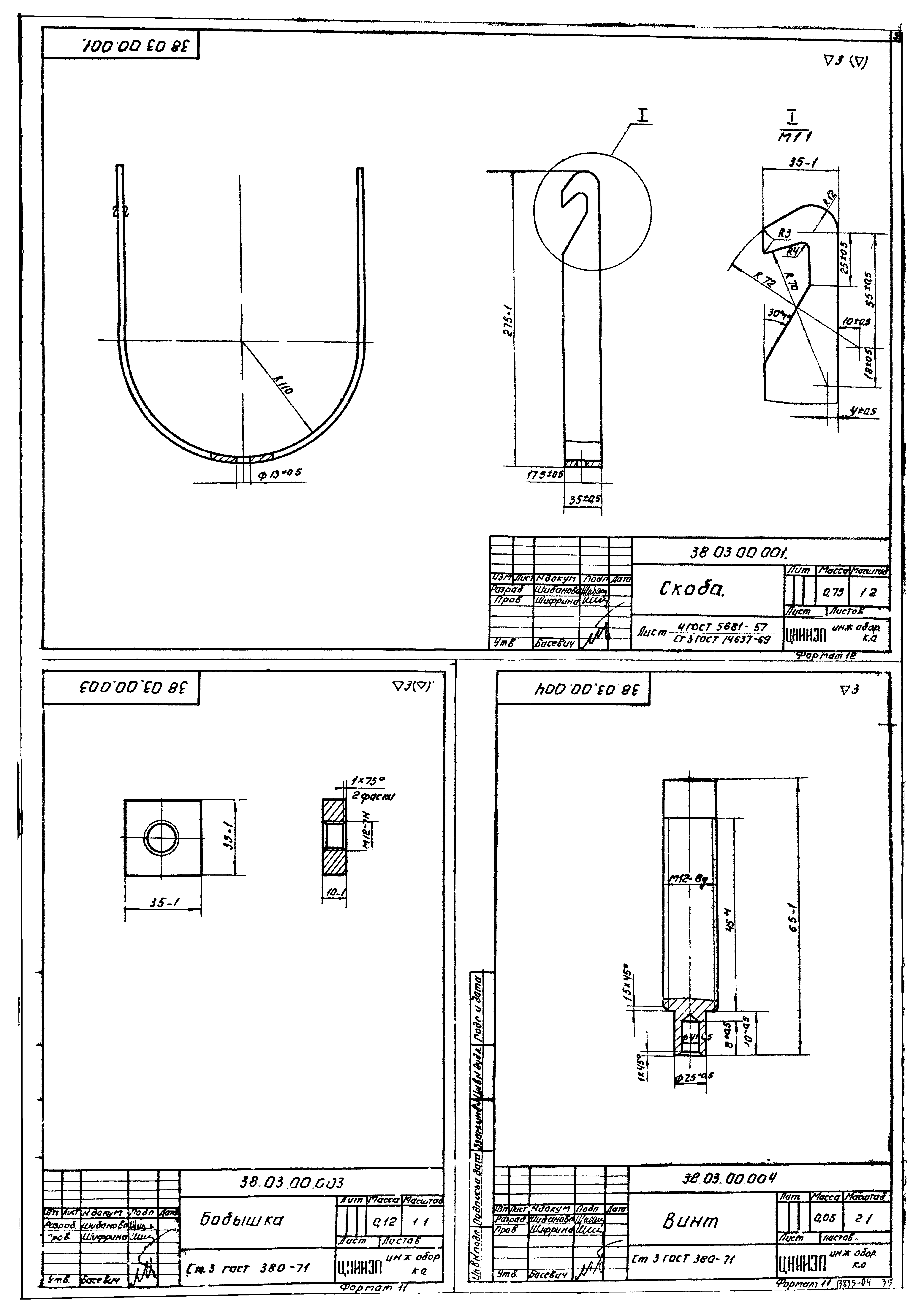
| Оглавление: | Содержание альбома 289.00.00.000 СБ Аэратор механический, лист 1 289.00.00.000 СБ Аэратор механический, лист 2 289.00.00.000 Спецификация 289.00.00.001 Вал 289.00.00.005 Шайба упорная 289.00.00.002 Шайба упорная 289.00.00.003 Крышка 289.00.00.007 Втулка упорная 289.00.00.004 Прокладка 289.00.00.006 Крышка 289.00.00.008 Плита 289.00.00.009 Прокладка 289.01.00.000 СБ Ротор в сборе 289.01.00.000 Спецификация 289.01.00.001 Ребро 289.01.00.002 Лопатка 289.01.00.003 Диск 289.01.00.004 Уголок 289.01.01.000 Спецификация 289.01.01.000 СБ Труба в сборе 289.01.01.001 Труба 289.01.01.002 Вал 289.01.01.003 Вал 289.02.00.000 Спецификация 289.02.00.000 СБ Рама 289.02.00.001 Ребро 289.02.00.002 Ребро 289.02.00.003 Швеллер 289.04.00.002 Ребро 289.04.00.000 Спецификация 289.04.00.003 Плита 289.04.00.000 Корпус подшипника 289.04.00.001 Ккорпус 289.05.00.000 Спецификация 289.05.00.003 Палец 289.05.00.000 СБ Муфта 289.05.00.001 Полумуфта 289.05.00.002 Полумуфта 289.05.00.004 Втулка упругая 289.05.00.005 Втулка распорная 319.00.00.000 СБ Труба цунтральная 319.00.00.005 Планка 319.00.00.003 Ребро 319.00.00.001 Труба 319.00.00.002 Фланец 319.00.00.006 Конус 319.00.00.000 Спецификация 319.00.00.004 Раструб 36.00.00.000 Корпус 36.00.00.000 СБ Нейтрализатор 36.00.00.000 Спецификация 36.01.00.000 Спецификация 36.02.00.000 Спецификация 36.03.00.000 Спецификация 36.01.00.001 Фланец 36.01.00.002 Труба 36.01.00.003 Обечайка 36.01.00.006 Ниппель 36.01.00.007 Гайка накидная 36.02.00.000 СБ Крышка 36.02.00.002 Упор 36.03.00.000 СБ Трубка 38.00.00.000 СБ Подставка на весах для 3-х баллонов 38.00.00.000 Спецификация 38.01.00.000 Спецификация 38.02.00.000 Спецификация 38.01.00.000 СБ Подставка 38.01.00.002 Уголок 38.01.00.003 Уголок 38.01.00.004 Пластина 38.01.00.005 Ребро 38.01.00.006 Ребро 38.01.00.007 Ребро 38.01.00.009 Пластина 38.01.00.011 Уголок 38.02.00.000 СБ Коллектор 38.01.00.013 Уголок 38.01.00.014 Уголок 38.01.00.015 Уголок 38.02.00.006 Фланец 38.00.00.000 СБ Подставка на весах для 3-х баллонов 38.03.00.000 Прижим 38.02.00.004 Труба 38.02.00.003 Труба 38.02.00.001 Труба 38.03.00.002 Упор 38.03.00.001 Скоба 38.03.00.003 Бобышка 38.03.00.004 Винт 45.00.00.000 СБ Грязевик для хлора 45.00.00.000 Спецификация 45.01.00.000 Спецификация 45.02.00.000 Спецификация 38.03.00.005 Рукоятка 45.01.00.000 СБ Головка баллона 45.01.00.001 Труба 45.01.00.002 Головка 45.02.00.000 Опора 45.02.00.001 Кольцо 45.02.00.003 Кольцо 45.02.00.004 Сифон 46.00.00.000 СБ Футляр для поврежденных баллонов 46.00.00.000 РР Спецификация 46.00.00.000 Спецификация 46.01.00.000 Спецификация 46.02.00.000 Спецификация 46.03.00.000 Спецификация 38.00.00.000 Спецификация 46.01.00.000 СБ Корпус 46.02.00.000 СБ Крышка 46.01.00.002 Труба 46.00.00.002 Шпиндель 46.01.00.003 Ребро 46.01.00.004 Фланец 46.01.00.005 Косынка 46.01.00.007 Стойка левая 46.01.00.009 Стойка правая 46.01.00.010 Стойка левая 46.01.00.011 Стойка правая 46.01.00.012 Штуцер 46.01.00.013 Штуцер 46.02.00.001 Втулка 46.02.00.002 Фланец 46.02.00.003 Кольцо 46.02.00.004 Вилка 46.03.00.000 Обойма 45.03.00.001 Пластина 46.03.00.002 Дно обоймы 46.00.00.001 Маховик 46.00.00.003 Гайка накидная 46.00.00.004 Втулка 46.00.00.007 Ось 47.00.00.000 СБ Захват для подъема баллонов 47.00.00.000 Спецификация 47.01.00.000 Спецификация 47.02.00.000 Спецификация 47.01.00.000 СБ Обод правый 47.02.00.000 СБ Обод левый 47.01.00.001 Обод 47.02.00.002 Обод 47.00.00.001 Втулка 47.00.00.002 Бобышка 47.00.00.003 Косынка 47.02.00.001 Скоба 318.00.00.000 СБ Установка ручной решетки и корыта 318.00.00.000 Спецификация 318.01.00.000 Спецификация 318.02.00.000 Спецификация 318.02.00.002 Змеевик 318.01.00.001 Козырек 318.01.00.002 Полоса 318.01.00.004 Ребра 318.02.00.001 Корпус 47.00.00.002 Стержень 47.00.00.003 Ось 318.01.00.000 Решетка 318.02.00.000 Корыто 318.00.00.001 Уголок 318.00.00.002 Болт 318.02.00.002 Стенка 318.03.00.000 СБ Шибер 318.03.00.001 Лист 318.03.00.000 Спецификация |
| Разработан: | ЦНИИЭП инженерного оборудования |
| Утверждён: | 31.07.1975 Госгражданстрой (Gosgrazhdanstroy 162) |
| Чем заменён: |































































