Скачать Типовой проект 902-2-388.85 Альбом 2. Технологическая, строительная и электротехническая частиДата актуализации: 01.01.2021
|
| Обозначение: | Типовой проект 902-2-388.85 |
| Обозначение англ: | 902-2-388.85 |
| Статус: | не определен законодательством |
| Название рус.: | Альбом 2. Технологическая, строительная и электротехническая части |
| Дата добавления в базу: | 01.09.2013 |
| Дата актуализации: | 01.01.2021 |
| Дата введения: | 01.12.1985 |
| Дата окончания срока действия: | 30.06.2003 |
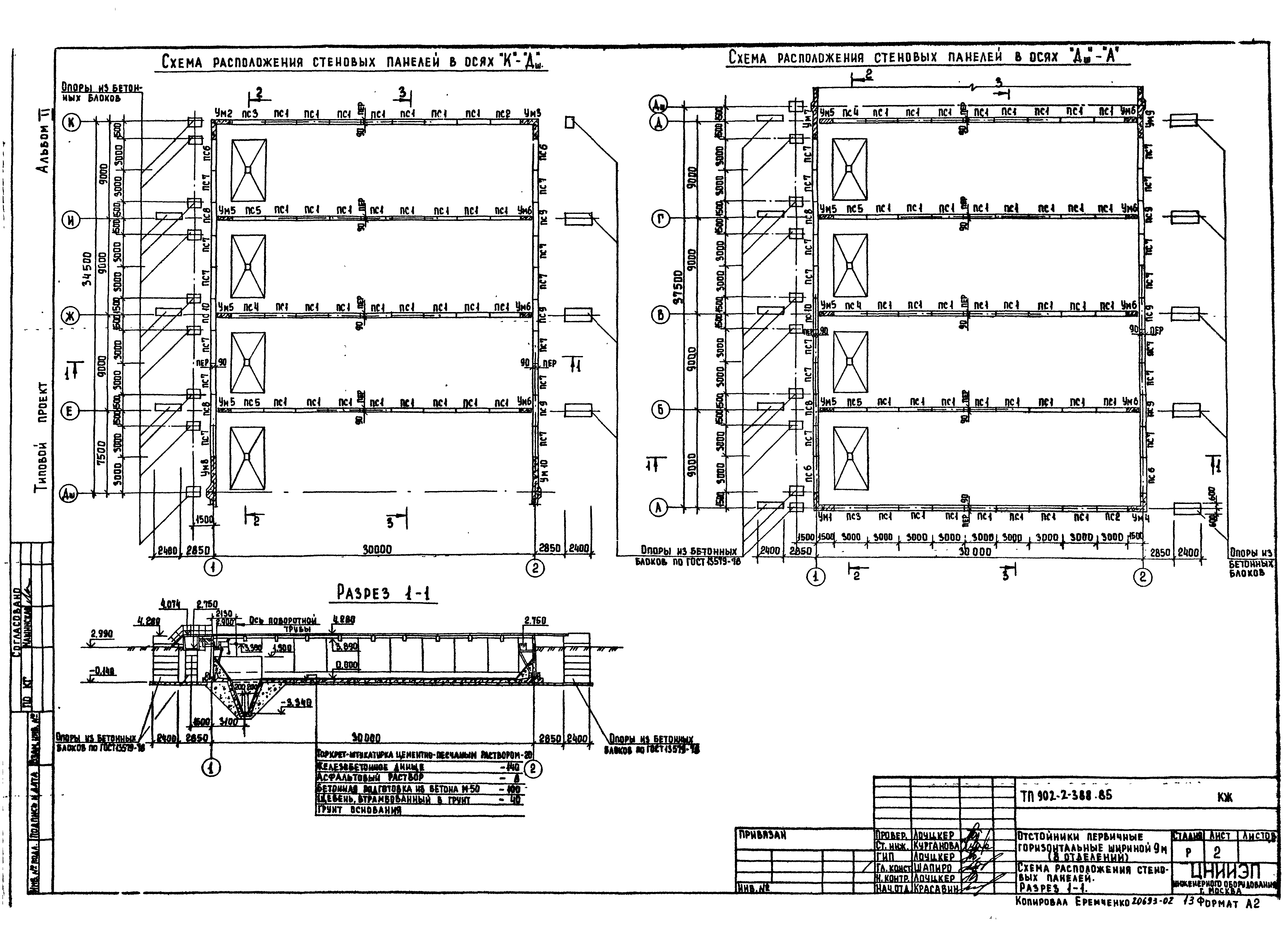
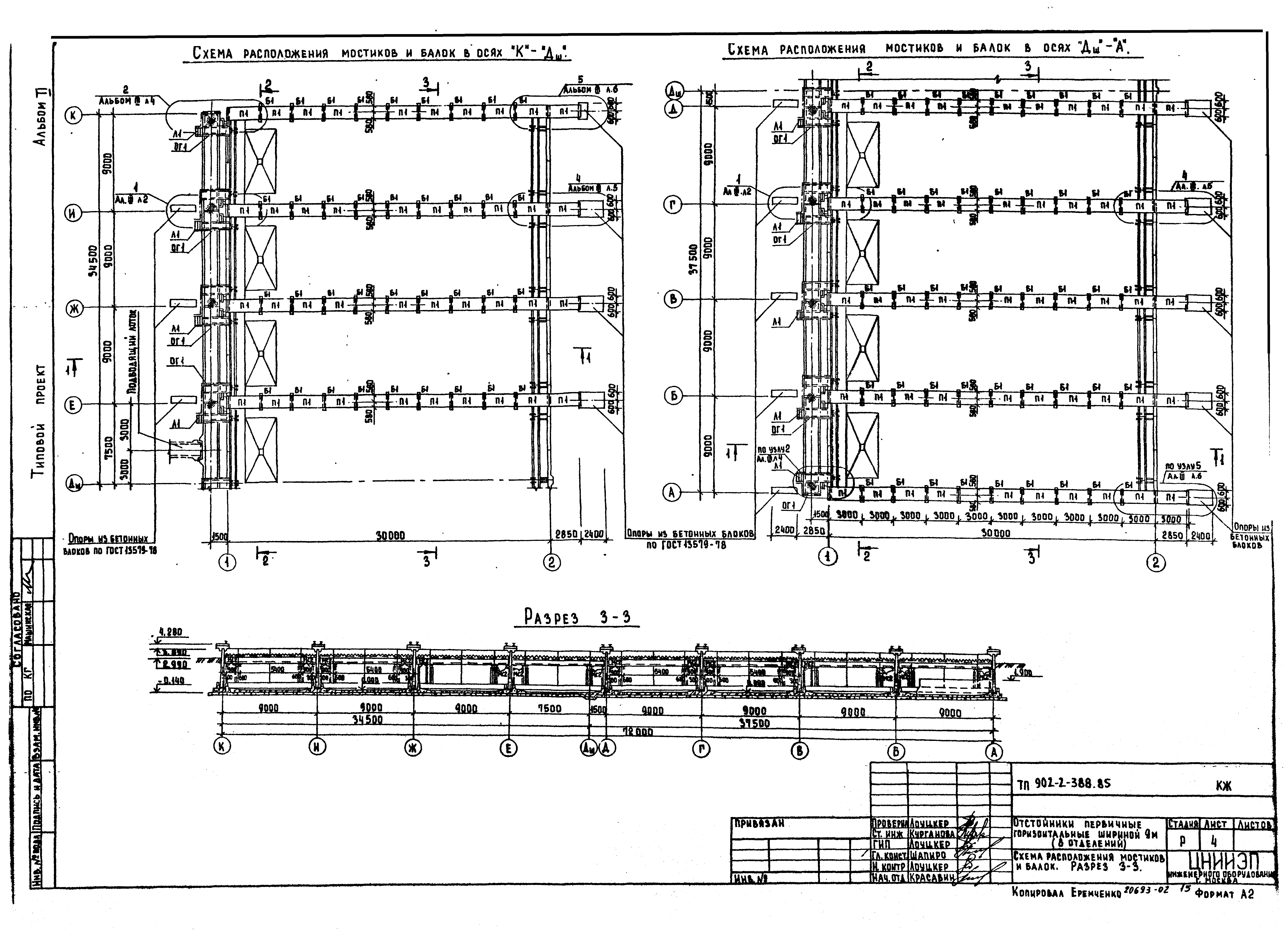
| Оглавление: | Содержание альбома Технологическая часть Общие данные План. Разрезы 1-1, 2-2 Разрез 3-3 Разрез 4-4 Разрез 5-5 Разрез 6-6 Разрезы 7-7…10-10. Вид "А" Планы. Разрезы 1-1, 2-2, 3-3. Деталь дырчатой трубы Конструкции железобетонные Общие данные Схема расположения стеновых панелей. Разрез 1-1 Схема расположения лотков. Разрез 2-2 Схема расположения мостиков и балок. Разрез 3-3 Спецификация к схемам расположения стеновых панелей, лотков, мостиков и балок Днище. Опалубочный чертеж. План. Разрезы Днище. Армирование. Схема расположения нижних сеток в осях "А" - "Дш" Днище. Армирование. Схема расположения нижних сеток в осях "Дш" - "К" Днище. Армирование. Схема расположения верхних сеток в осях "А" - "Дш" Днище. Армирование. Схема расположения верхних сеток в осях "Дш" - "К" Днище. Армирование. Разрезы 1-1…5-5 Электротехническая часть Общие данные. Схема подключения электрооборудования. Кабельный журнал. Прокладка кабеля |
| Разработан: | ЦНИИЭП инженерного оборудования |
| Утверждён: | 22.07.1974 Госгражданстрой (Gosgrazhdanstroy 164) |






















