Скачать Типовые проектные решения 902-3-058.87 Альбом 2. Технологическая, строительная части. АвтоматизацияДата актуализации: 01.01.2021
|
| Обозначение: | Типовые проектные решения 902-3-058.87 |
| Обозначение англ: | 902-3-058.87 |
| Статус: | справочные материалы, мп, тпр |
| Название рус.: | Альбом 2. Технологическая, строительная части. Автоматизация |
| Дата добавления в базу: | 01.09.2013 |
| Дата актуализации: | 01.01.2021 |
| Дата введения: | 01.06.1987 |
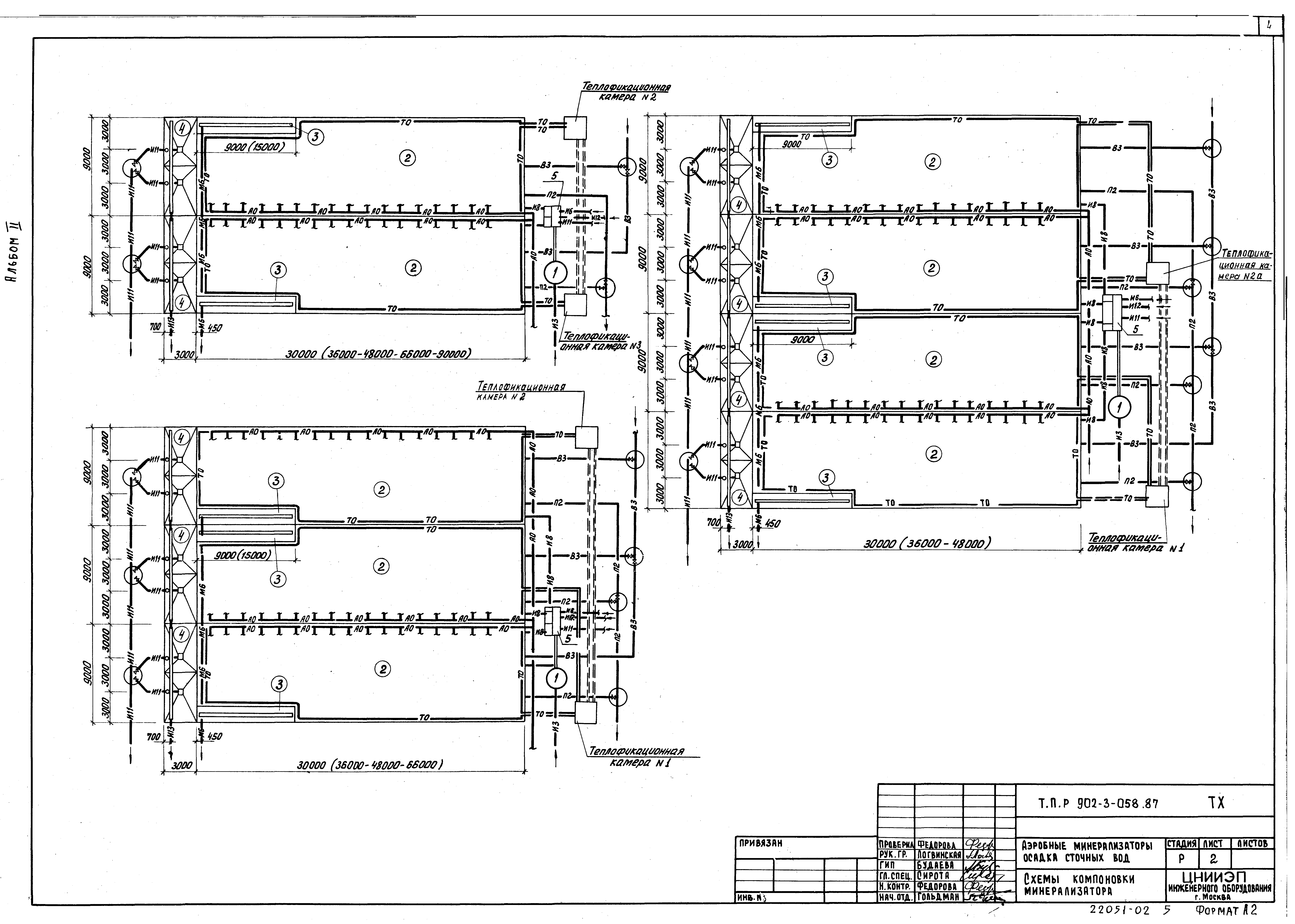
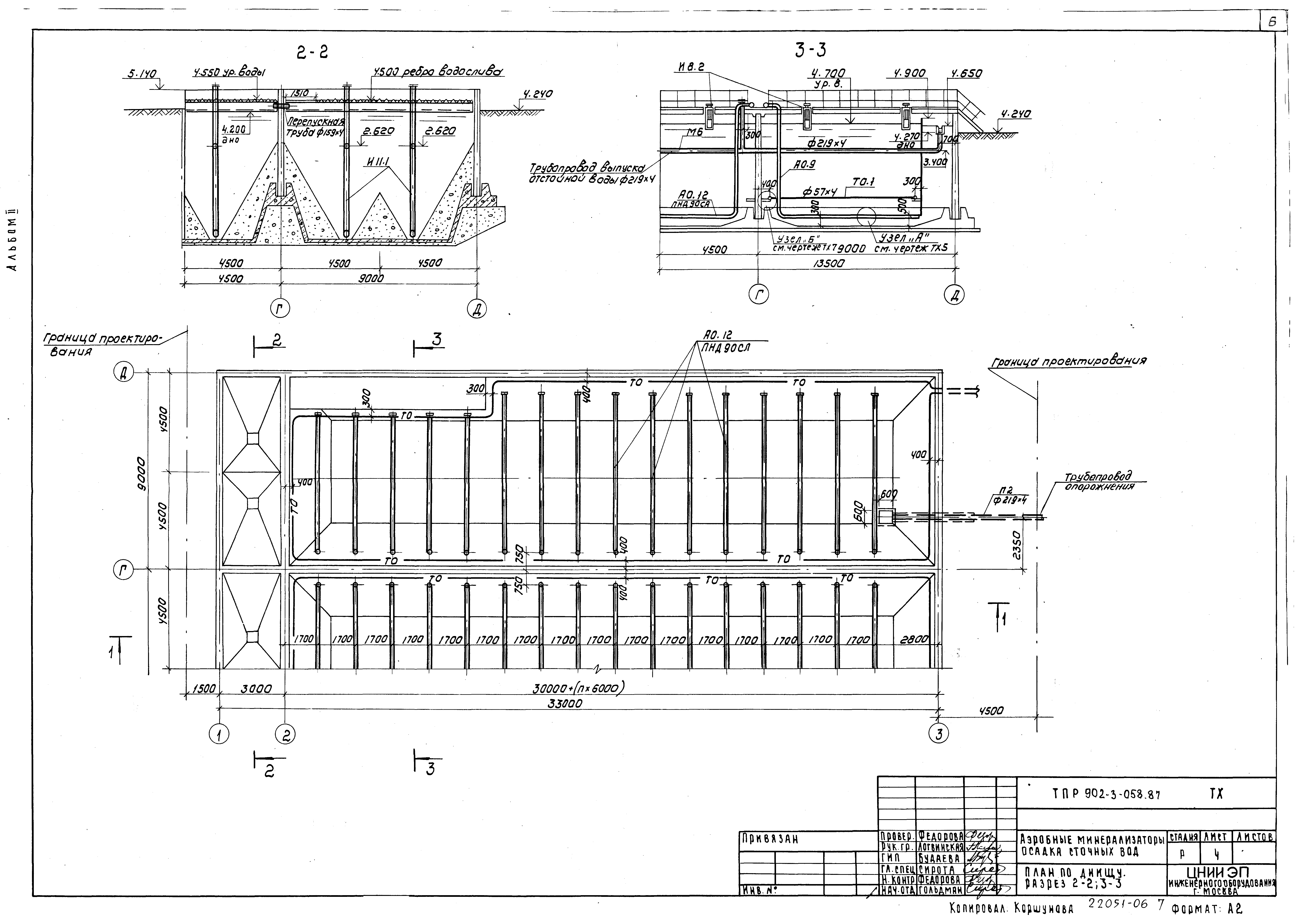
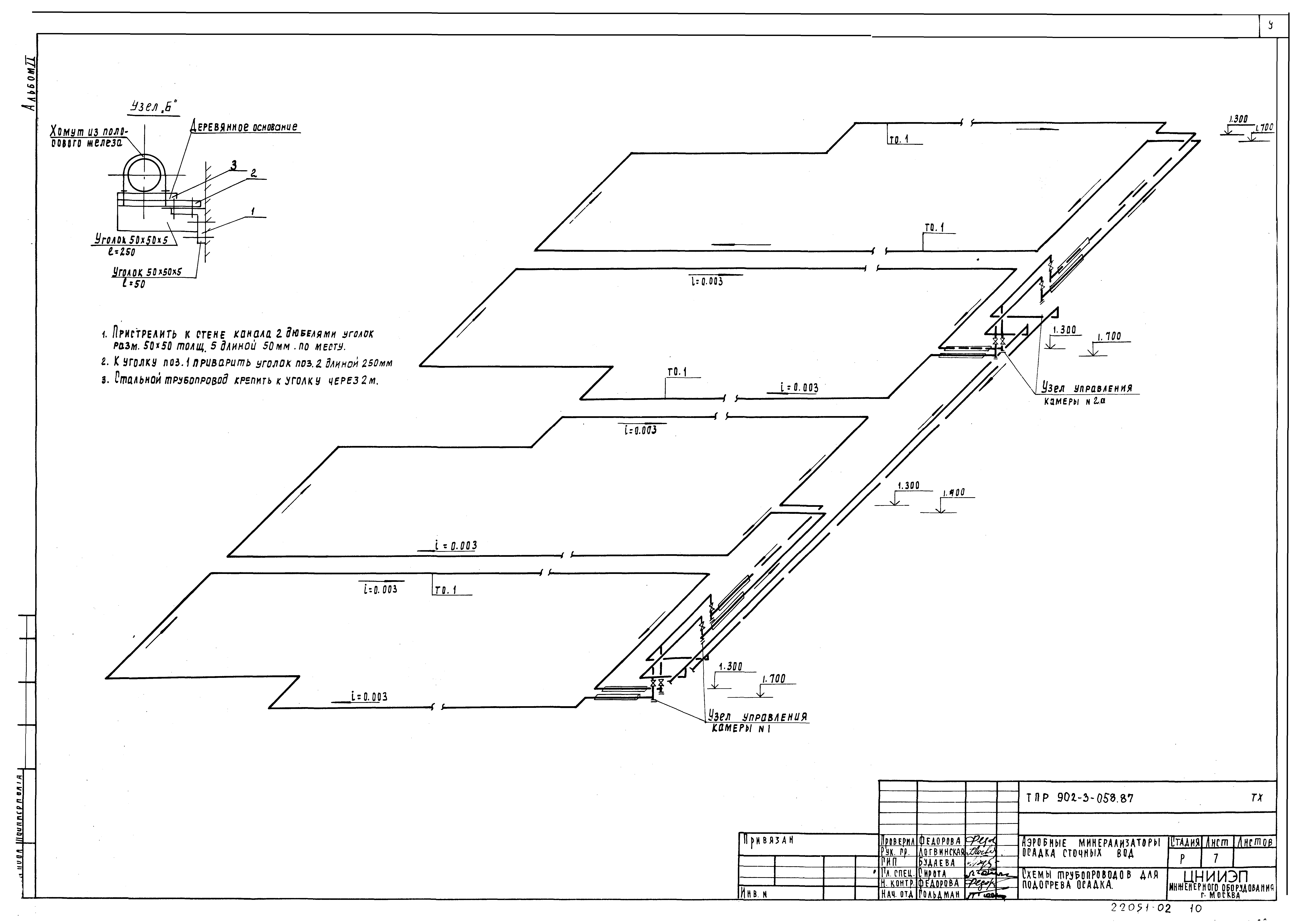
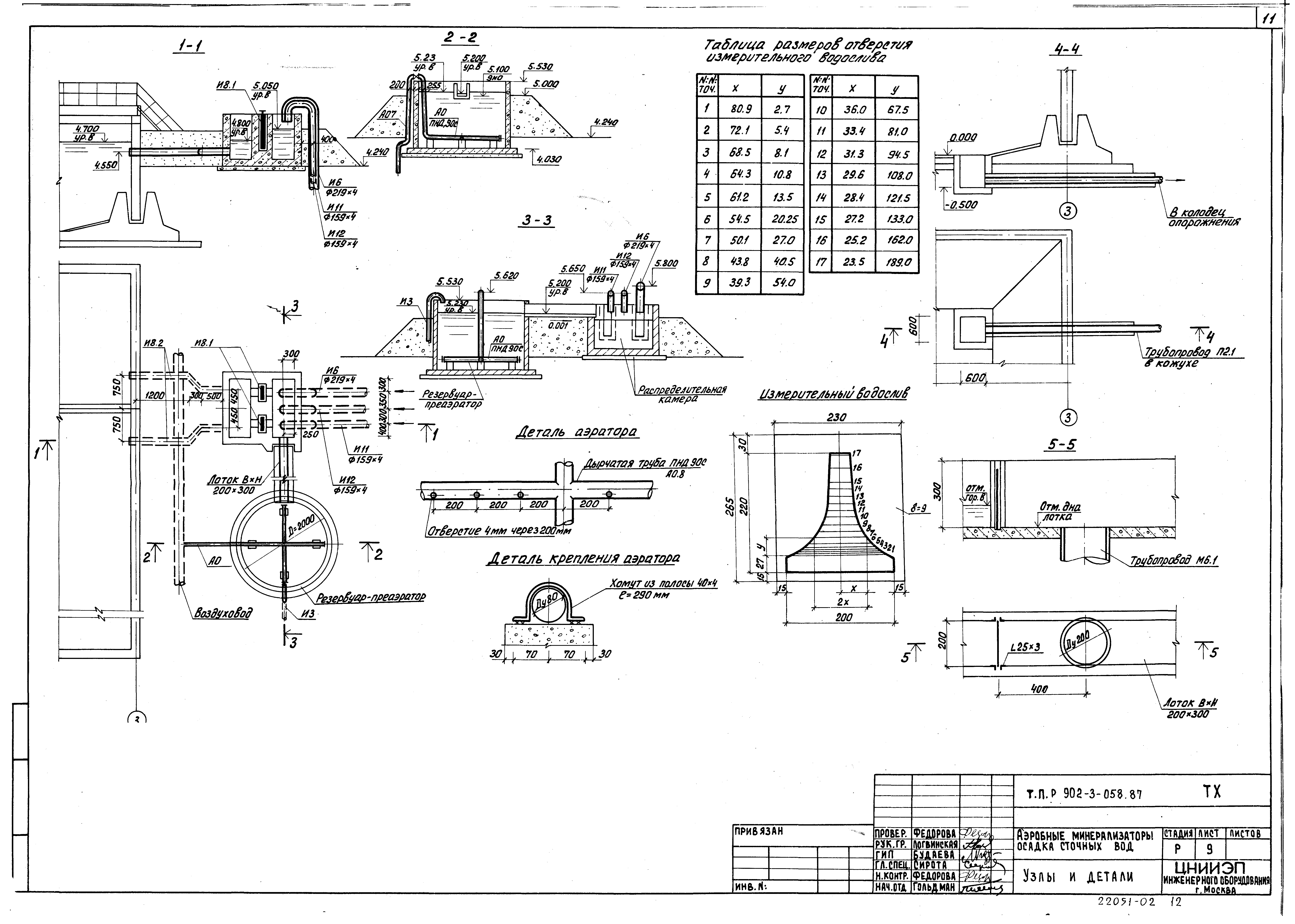
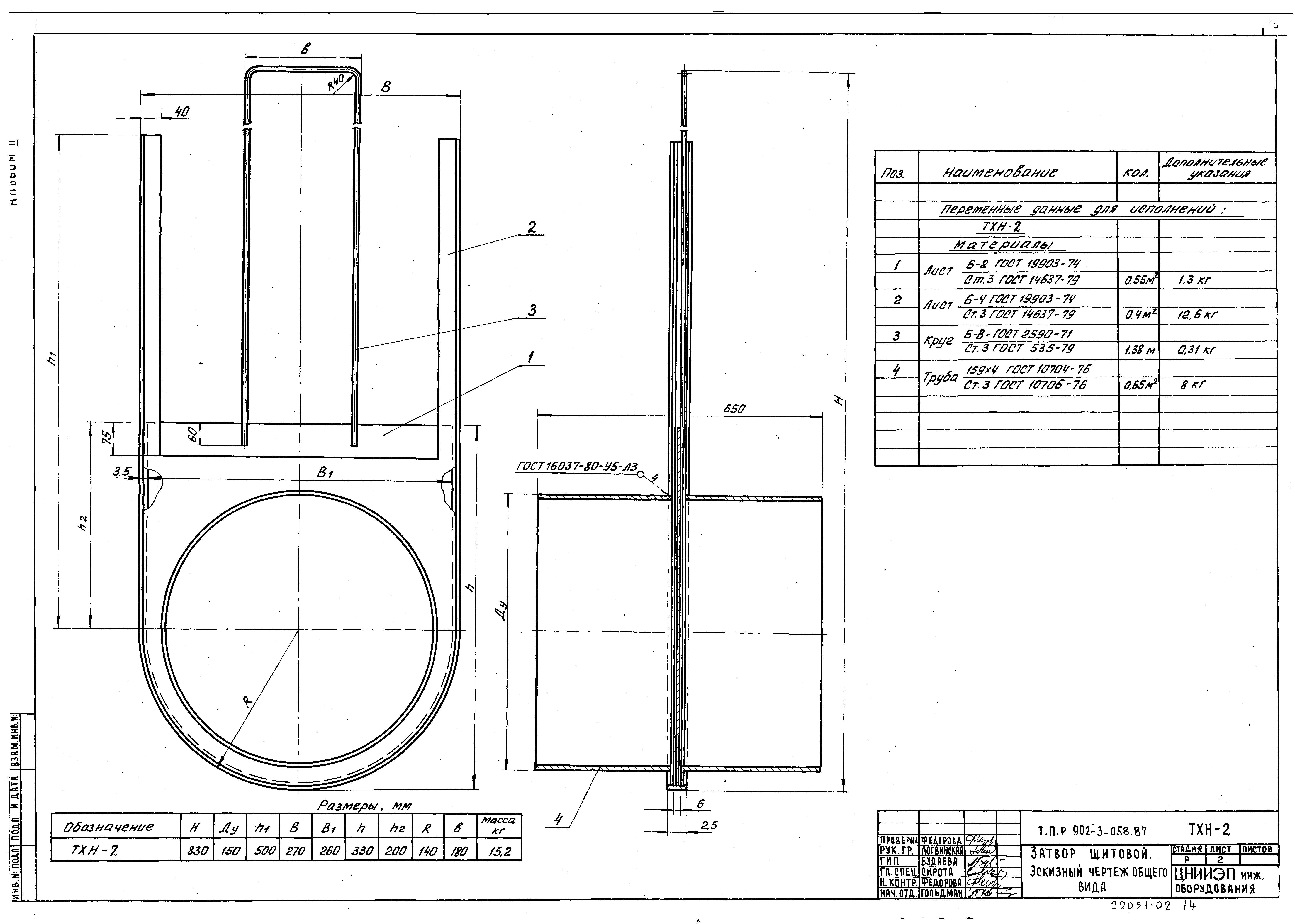
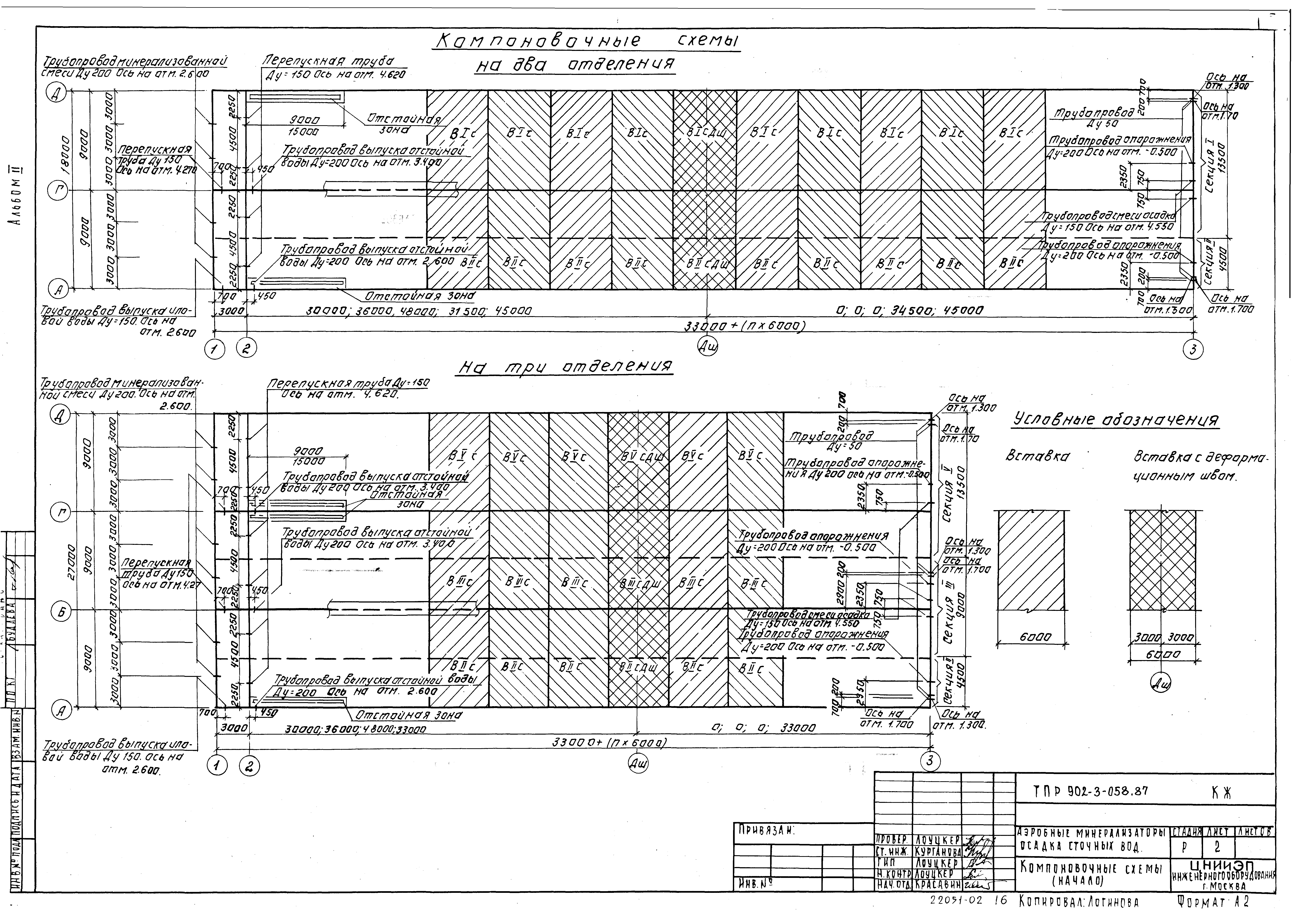
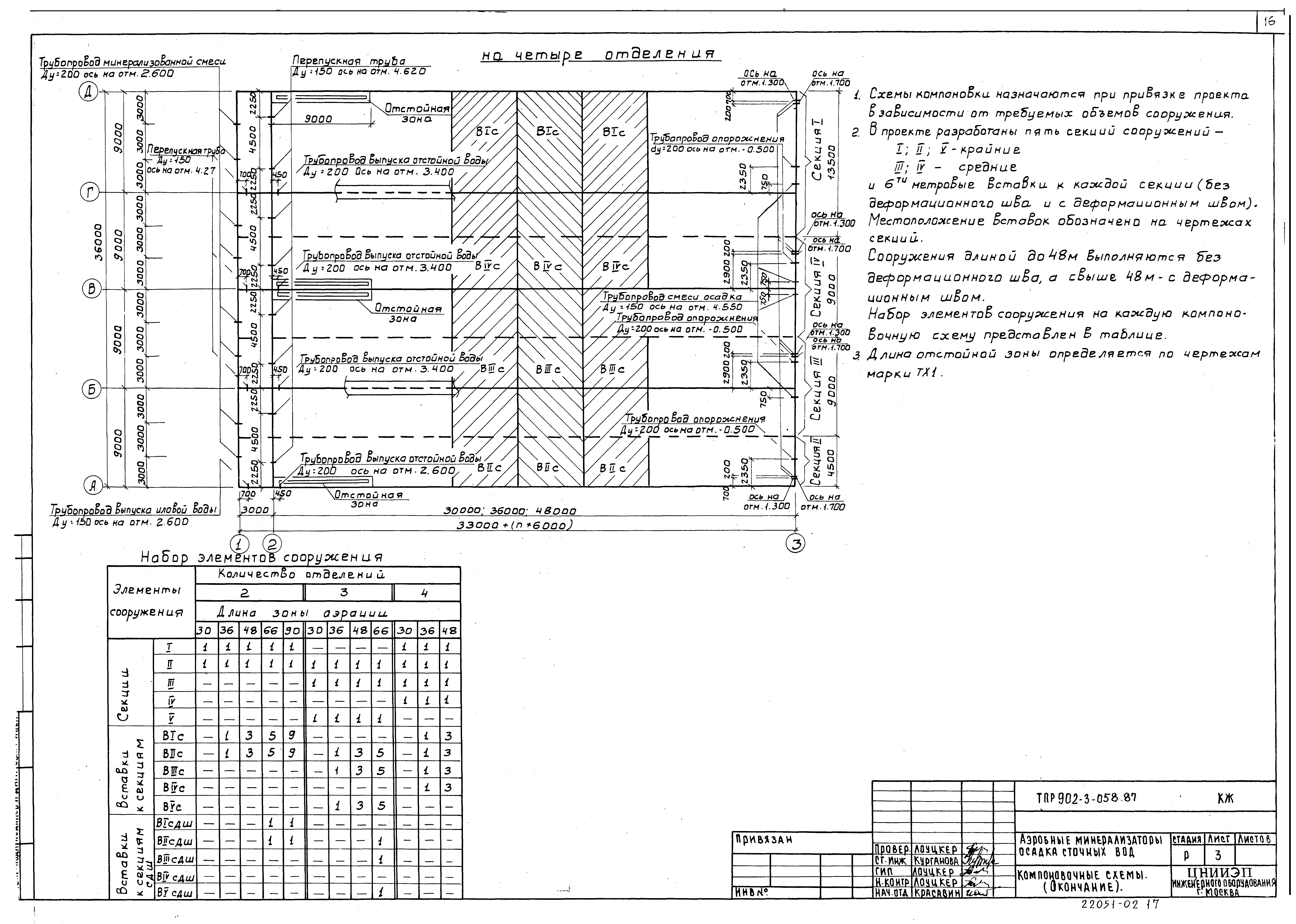
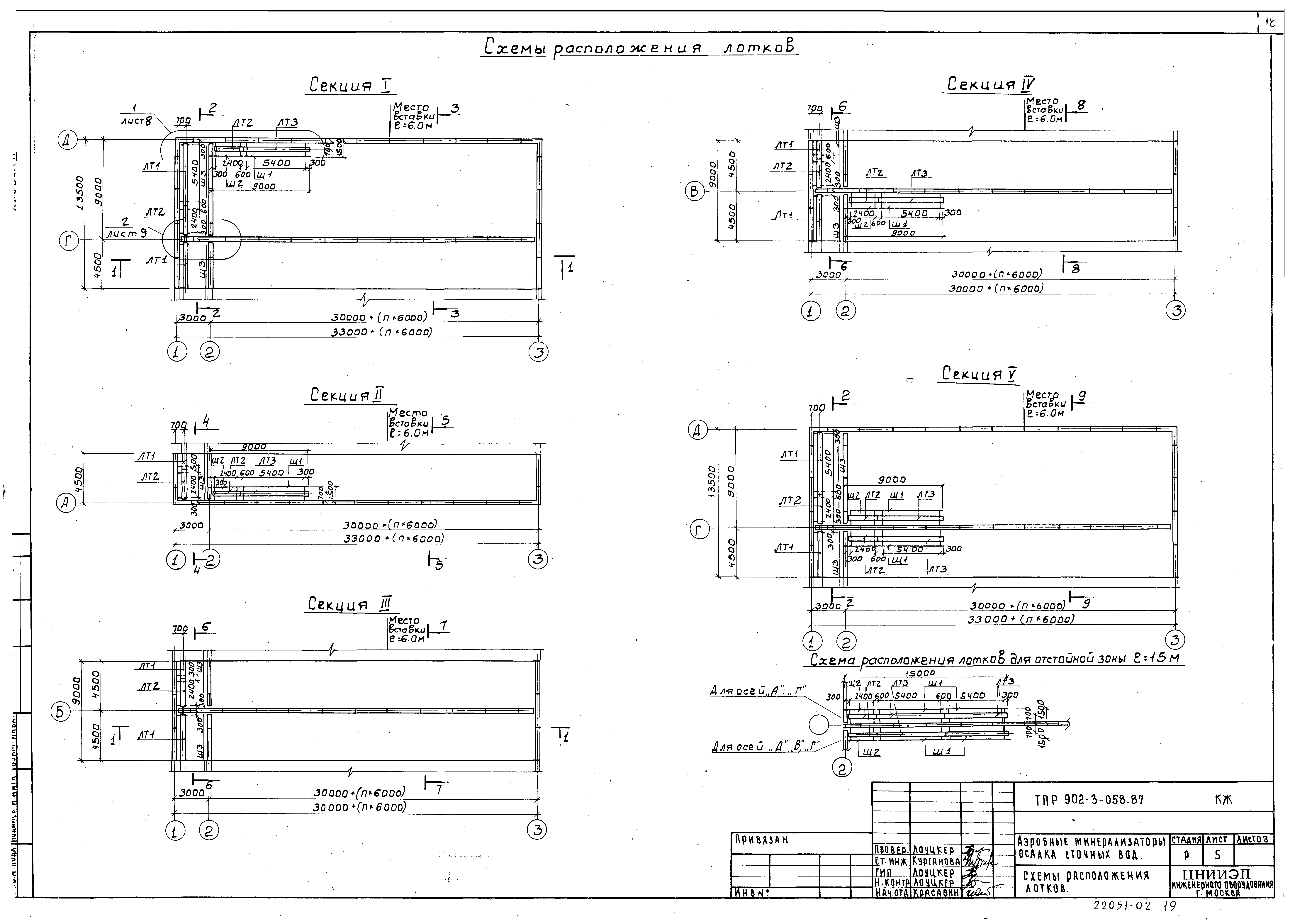
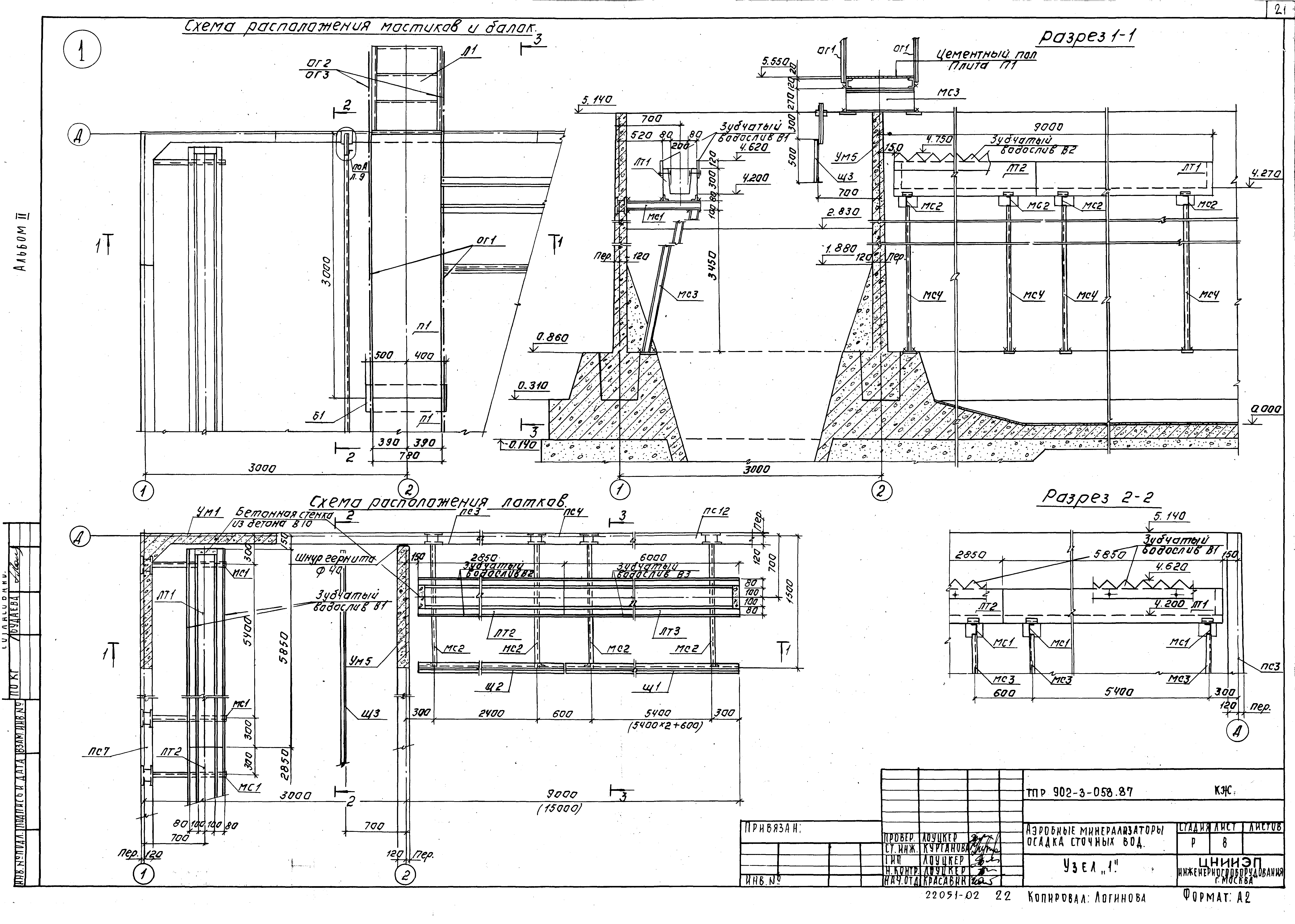
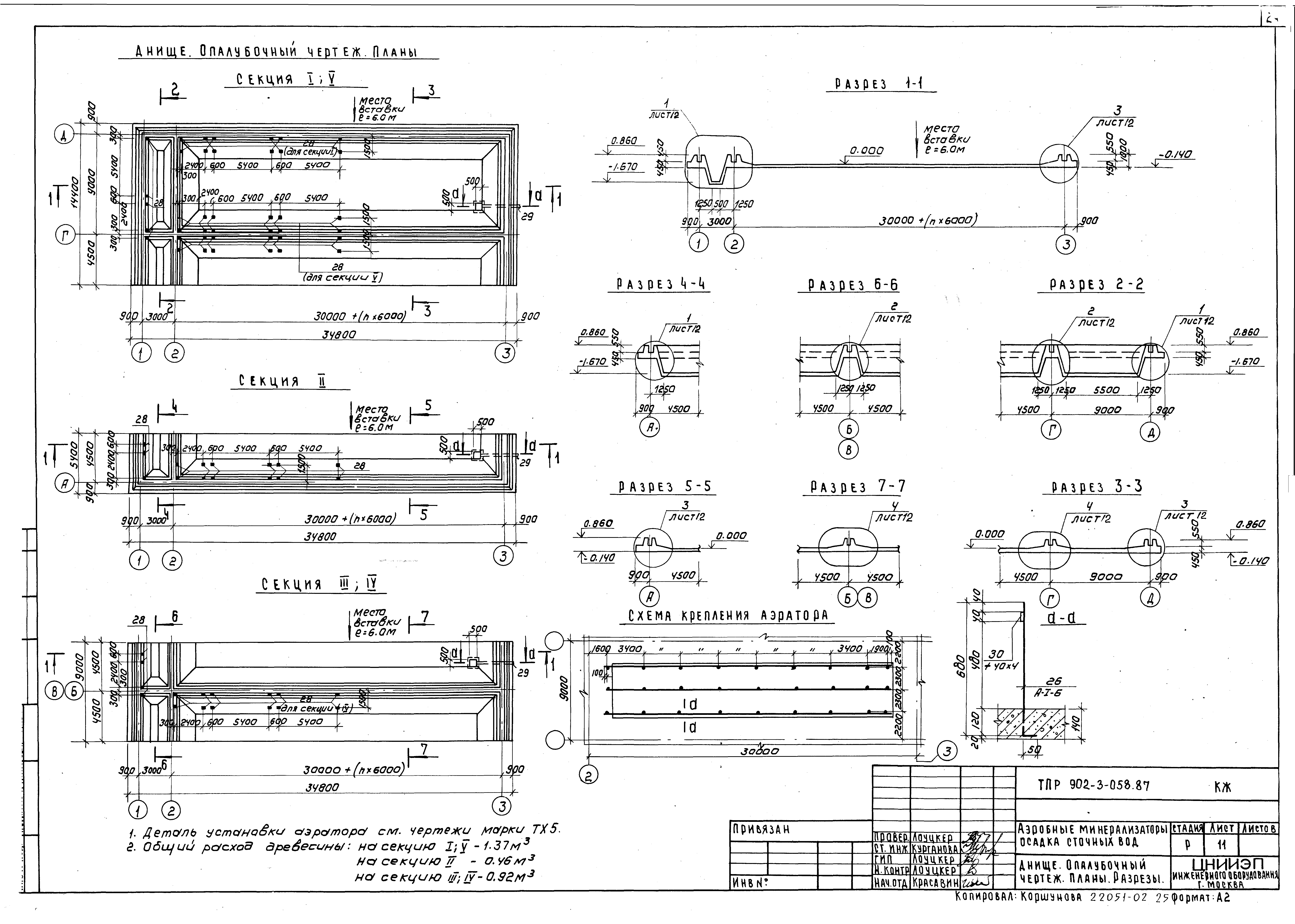
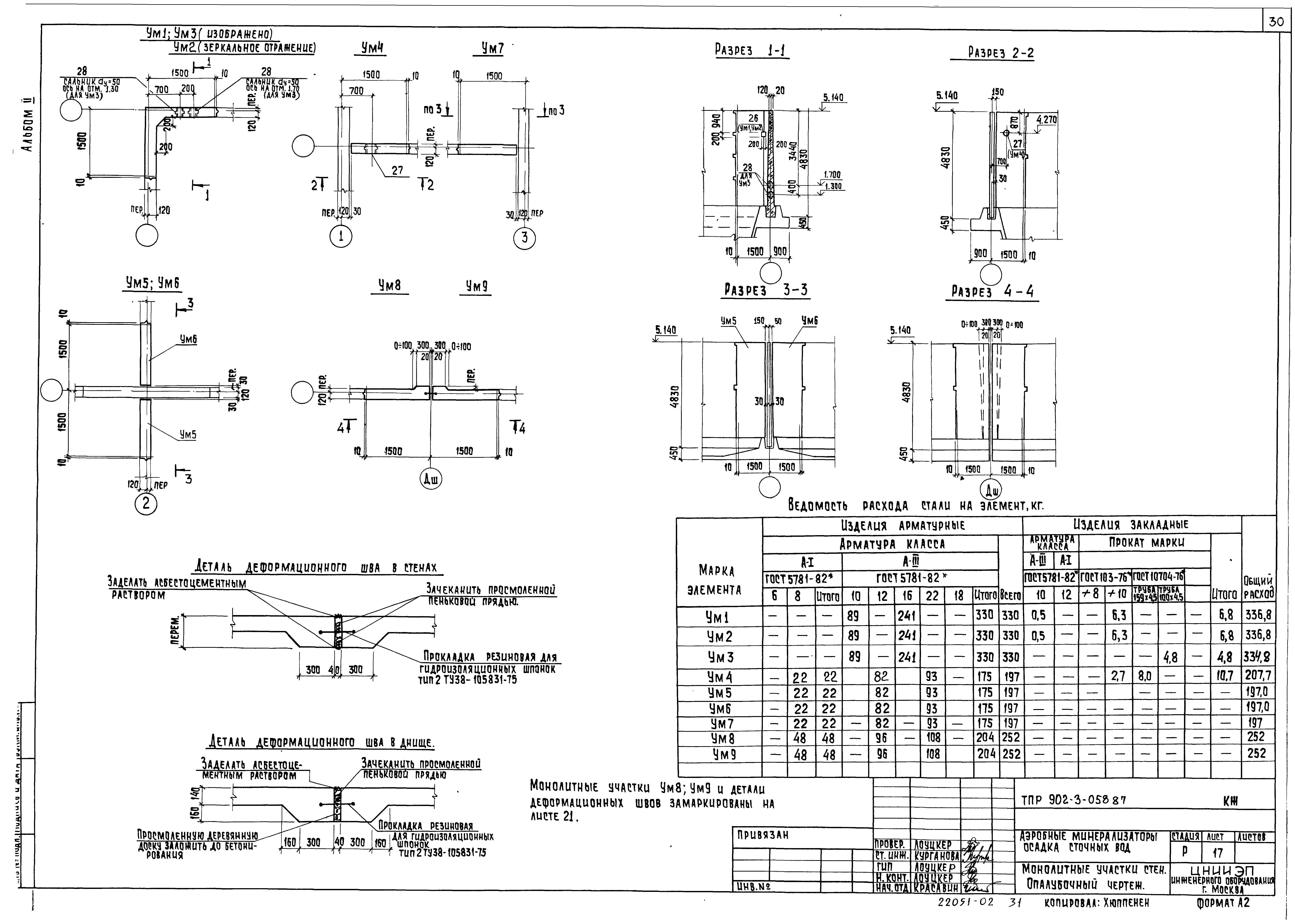
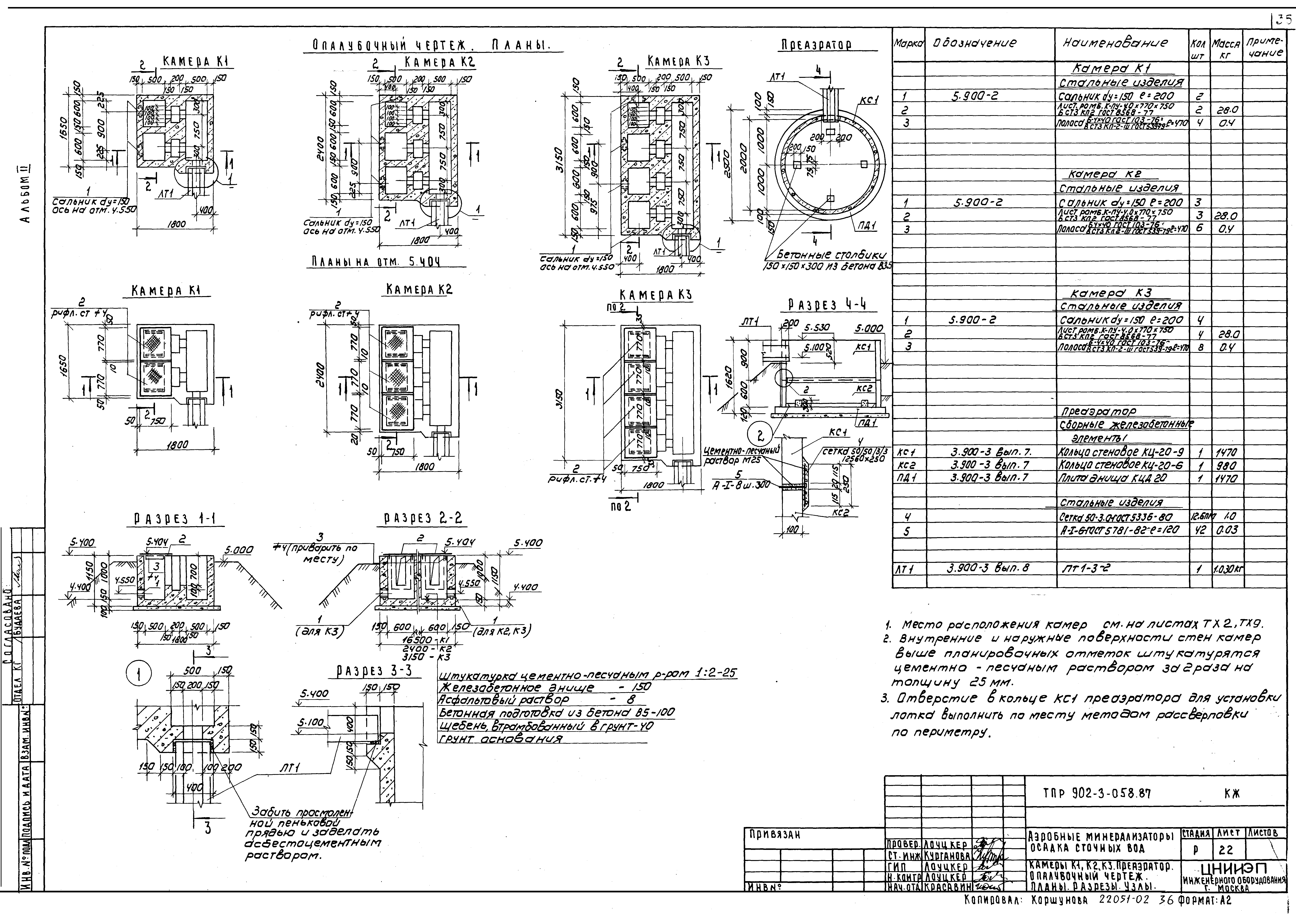
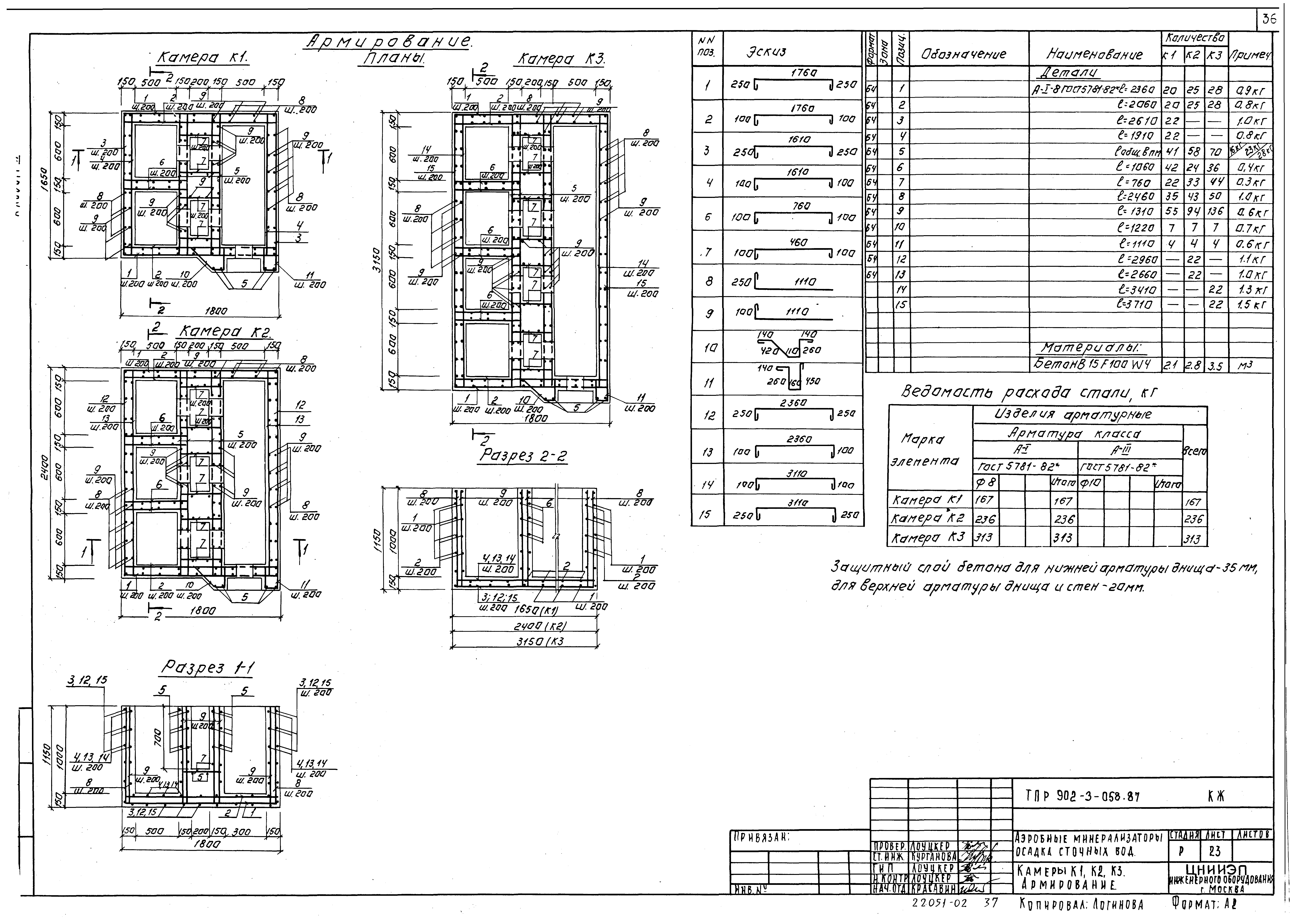
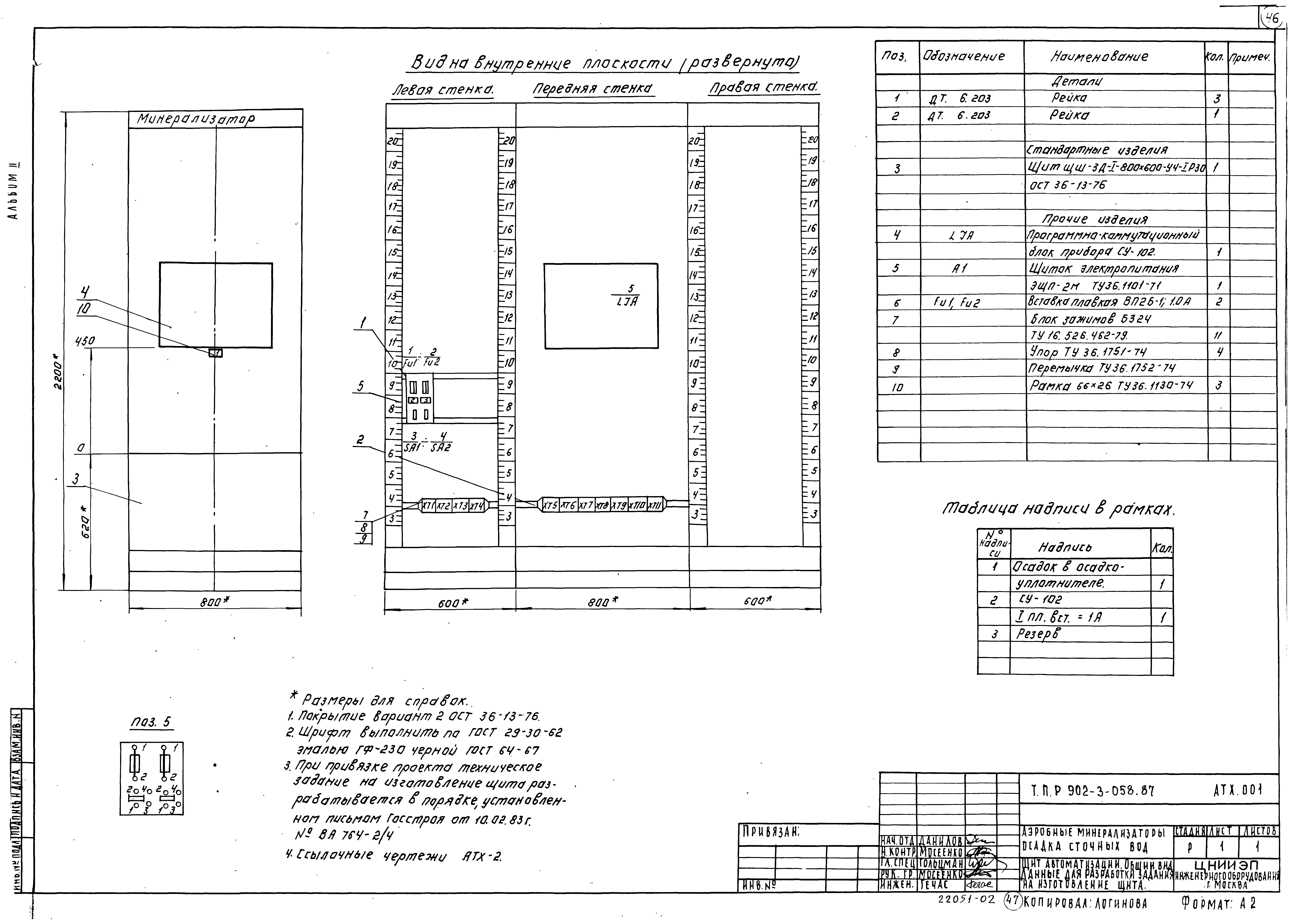
| Оглавление: | Содержание альбома Технологическая часть Общие данные Схемы компоновки минерализатора План по верху. Разрез 1-1 План по днищу. Разрез 2-2, 3-3 Схемы воздуховодов. Узел "А" Схемы воздуховодов Схемы трубопроводов для подогрева осадка Примерные схемы трубопроводов теплофикационных камер №1, 2, 2а, 3 Узлы и детали Установка трубки ПИТО. Эскизный чертеж общего вида Затвор щитовой. Эскизный чертеж общего вида Конструкции железобетонные Общие данные Компоновочные схемы Схемы расположения стеновых панелей Схемы расположения лотков Схемы расположения мостиков и балок Разрезы 1-1…9-9 Узел 1 Узел 2а. Деталь крепления ограждения Спецификация к схемам расположения стеновых панелей, лотков и балок Днище. Опалубочный чертеж. Планы. Разрезы Днище. Опалубочный чертеж. Узлы Днище. Армирование. Схемы расположения сеток и каркасов Днище. Армирование. Разрезы Днище. Армирование. Узлы Днище. Армирование. Спецификации Монолитные участки стен. Опалубочный чертеж Монолитные участки стен Ум1…Ум7. Армирование Монолитные участки стен Ум8, Ум9. Балка ВМ1. Армирование. Узлы. Спецификация Шестиметровая вставка минерализатора Шестиметровая вставка минерализатора с деформационным швом Камеры К1, К2, К3. Преаэратор. Опалубочный чертеж. Планы. Разрезы. Узлы Камеры К1, К2, К3. Армирование График производства работ на 2 отделения График производства работ на 3 отделения Автоматизация Общие данные. Схема автоматизации Схема соединений внешних проводок. План расположения Щит автоматизации. Данные для разработки задания на изготовление щита |
| Разработан: | ЦНИИЭП инженерного оборудования |
| Утверждён: | 11.12.1986 Госгражданстрой (Gosgrazhdanstroy 418) |














































