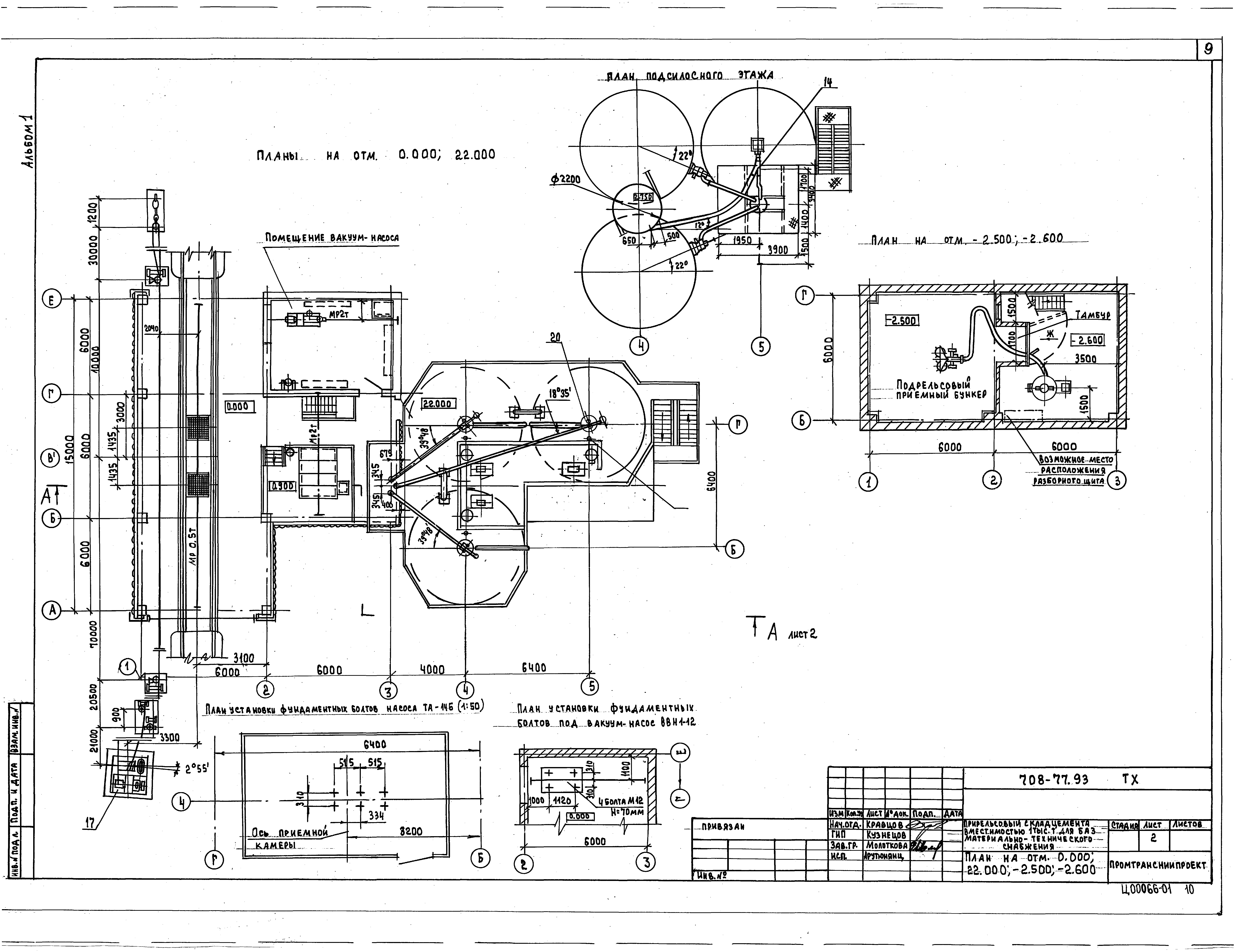
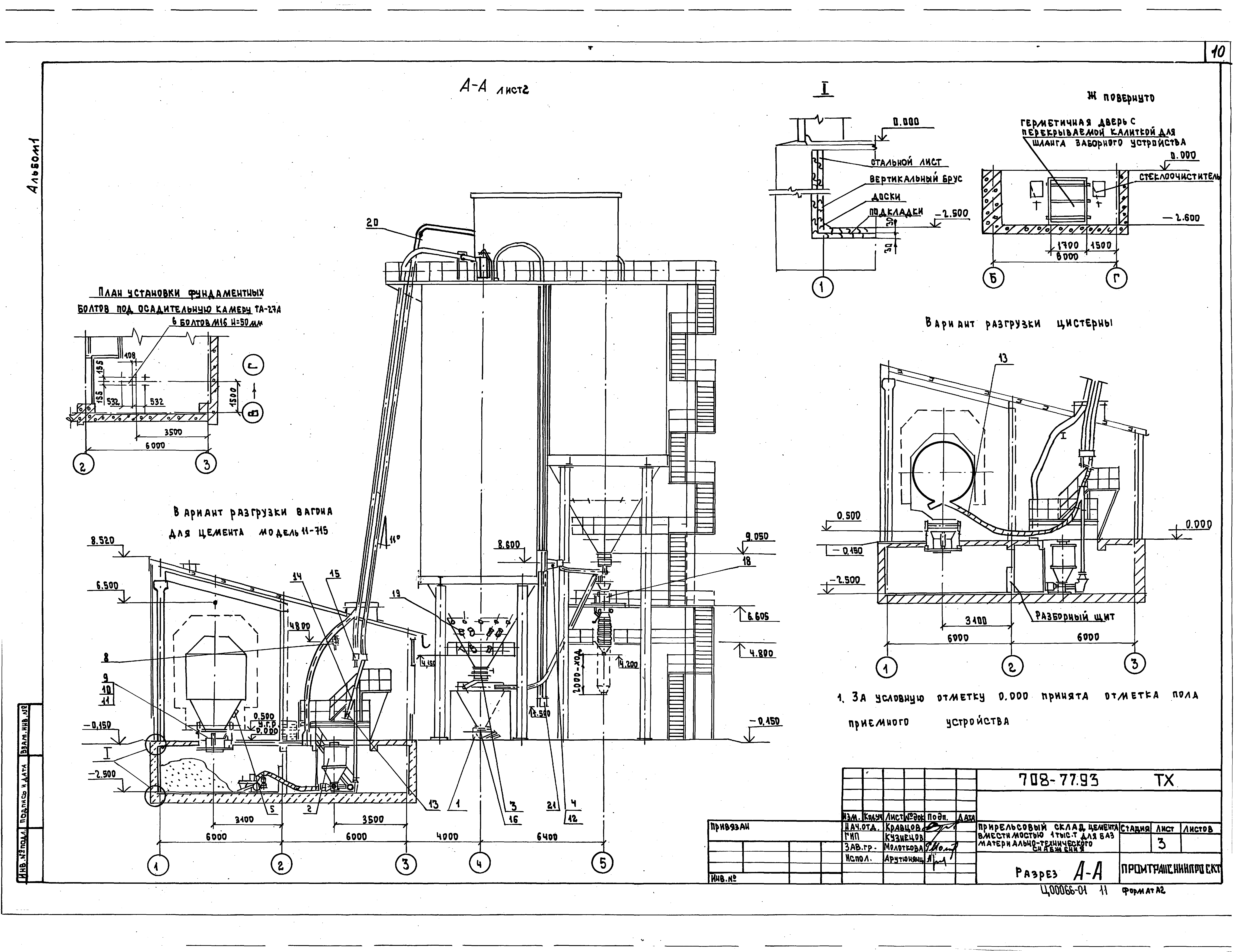
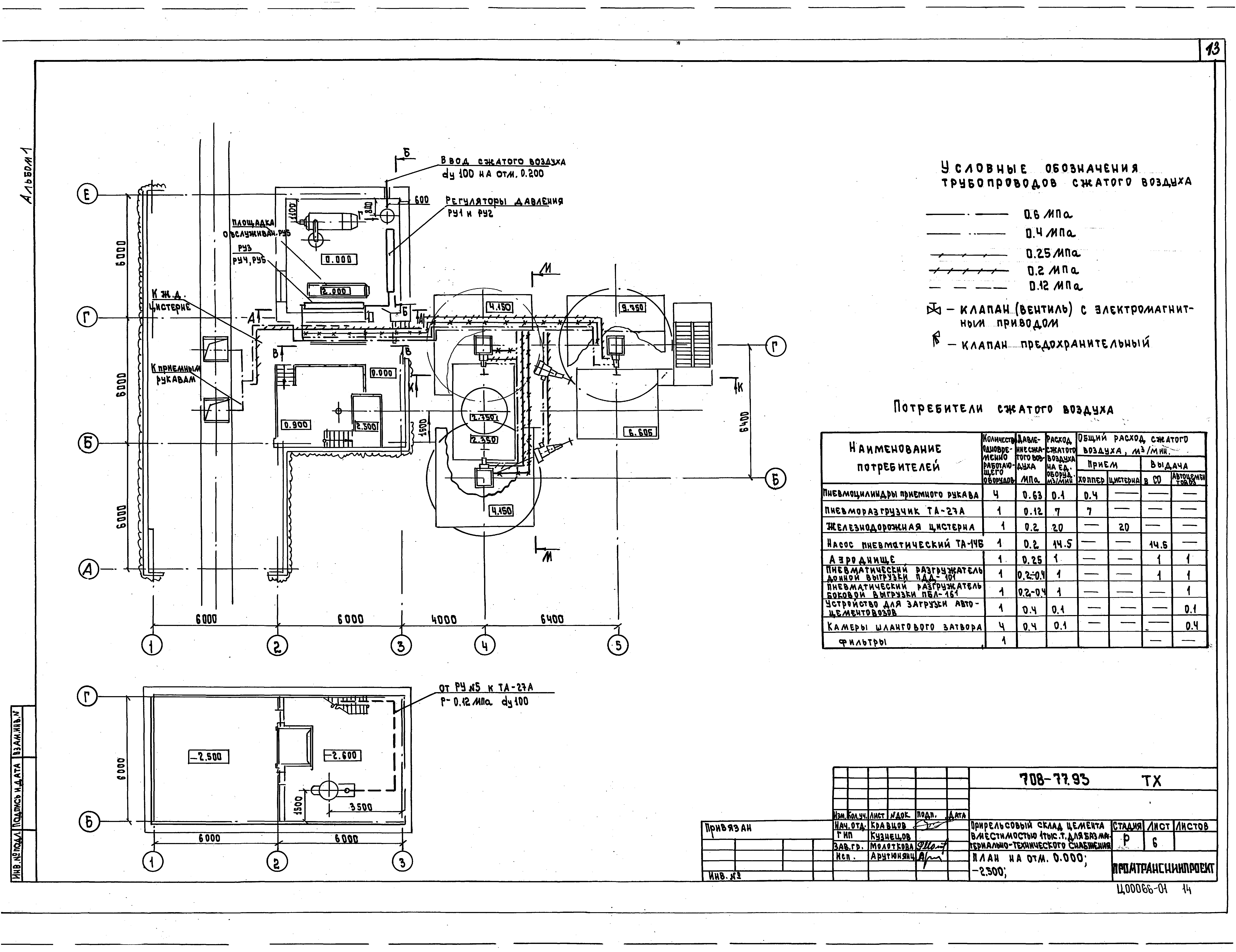
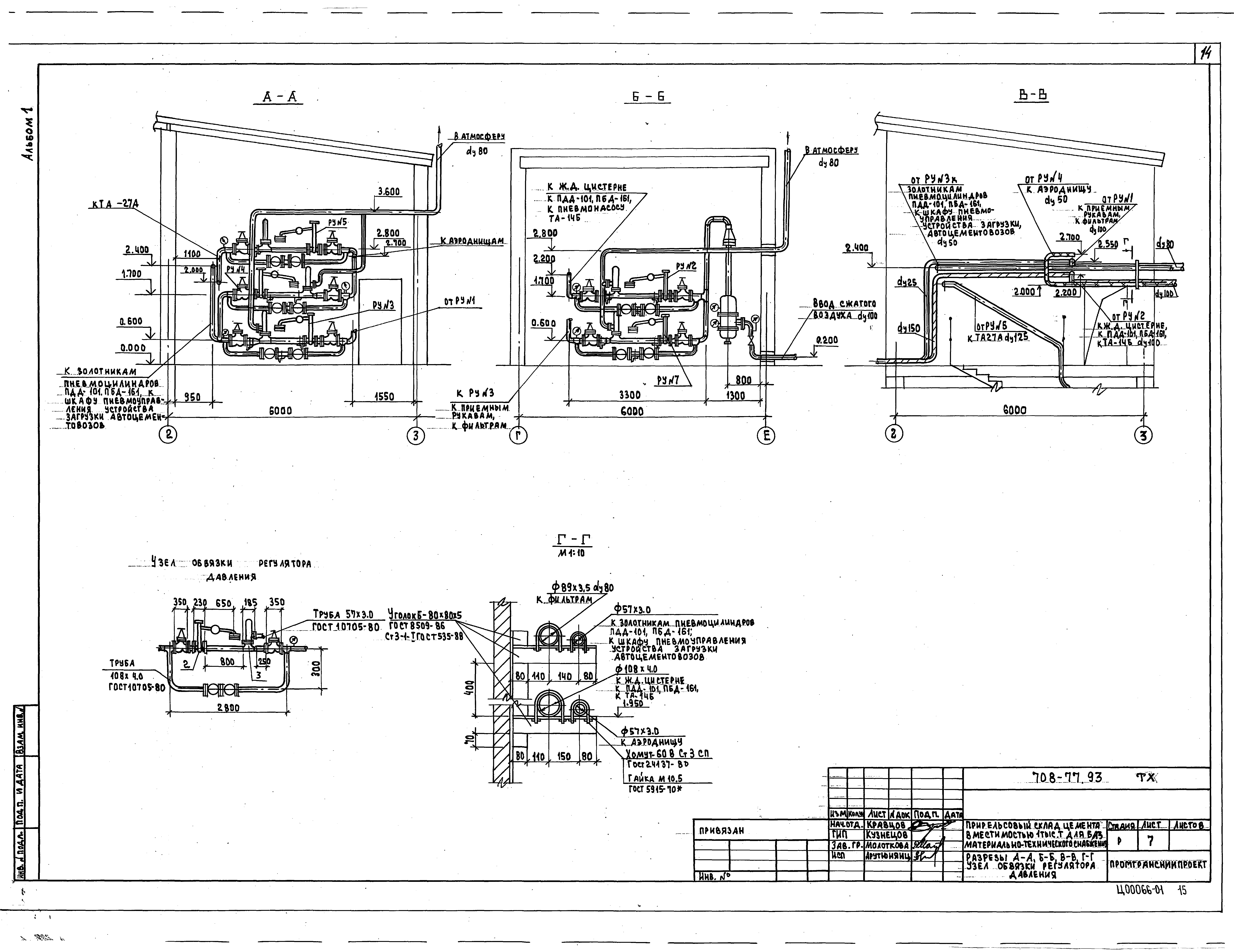
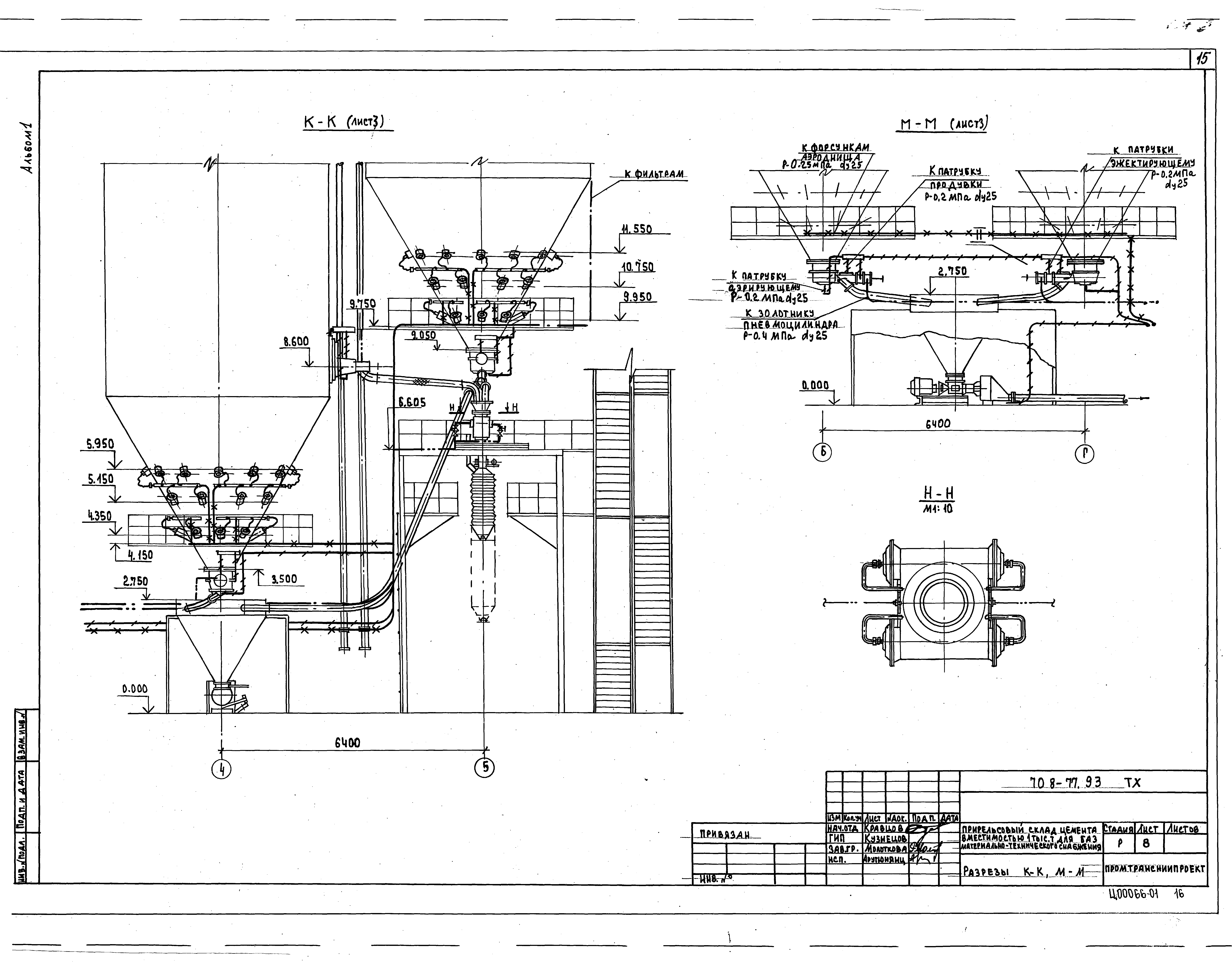
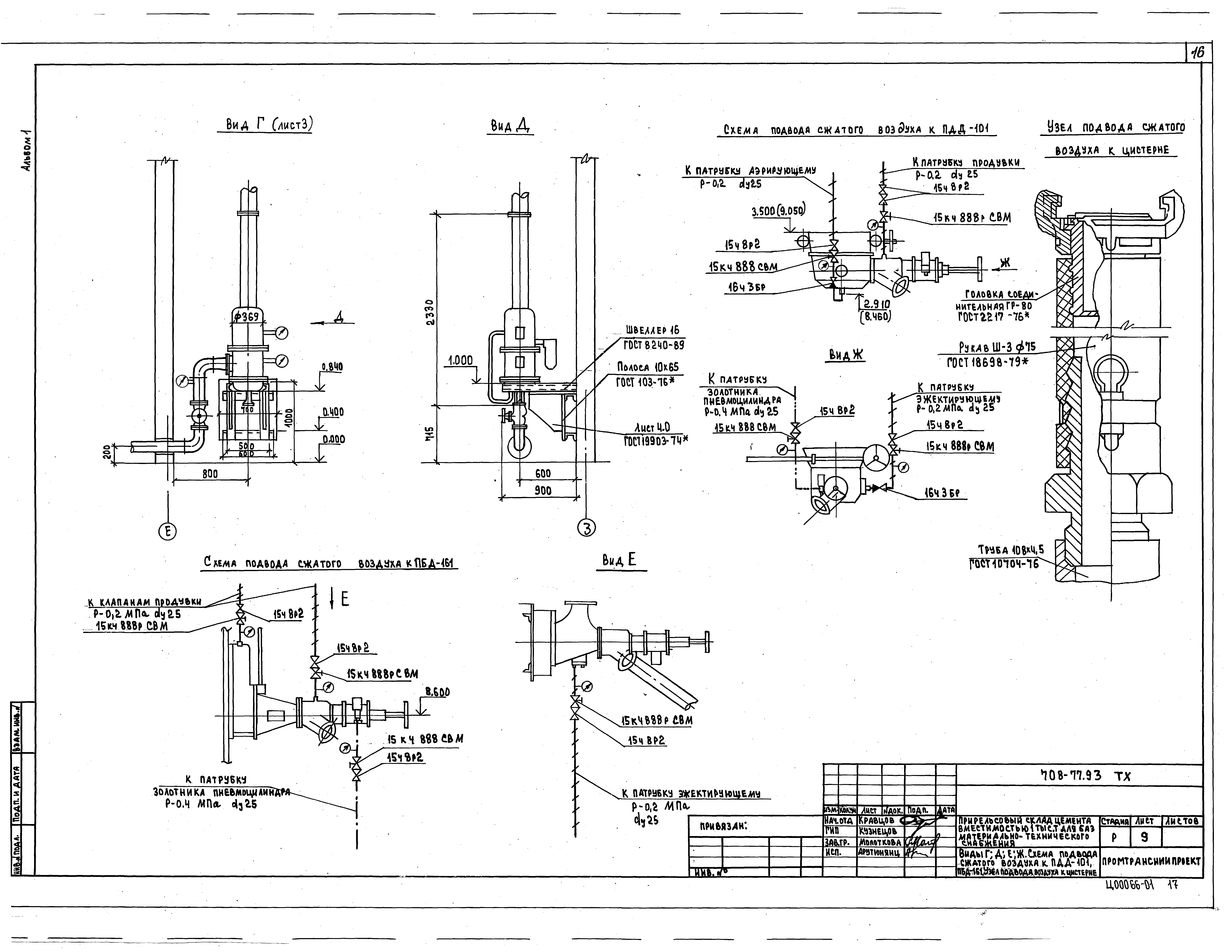
Скачать Типовой проект 708-77.93 Альбом 1. Пояснительная записка. Технология производства. Водопровод и канализацияДата актуализации: 01.01.2021 Типовой проект 708-77.93
Альбом 1. Пояснительная записка. Технология производства. Водопровод и канализация| Обозначение: | Типовой проект 708-77.93 | | Обозначение англ: | 708-77.93 | | Статус: | не определен законодательством | | Название рус.: | Альбом 1. Пояснительная записка. Технология производства. Водопровод и канализация | | Дата добавления в базу: | 01.09.2013 | | Дата актуализации: | 01.01.2021 | | Дата введения: | 29.12.1993 | | Дата окончания срока действия: | 30.06.2003 | | Разработан: | Промтрансниипроект
| | Утверждён: | 29.12.1993 Промтрансниипроект (Promtransniiproject 95)
|
                  
|