Скачать Серия 2.420-6 Унифицированные монтажные узлы стальных конструкций производственных зданий и сооружений на болтах, включая высокопрочные болты. Чертежи КМДата актуализации: 01.01.2021
|
| Обозначение: | Серия 2.420-6 |
| Обозначение англ: | Series 2.420-6 |
| Статус: | не действует |
| Название рус.: | Унифицированные монтажные узлы стальных конструкций производственных зданий и сооружений на болтах, включая высокопрочные болты. Чертежи КМ |
| Дата добавления в базу: | 01.09.2013 |
| Дата актуализации: | 01.01.2021 |
| Дата окончания срока действия: | 01.10.1989 |
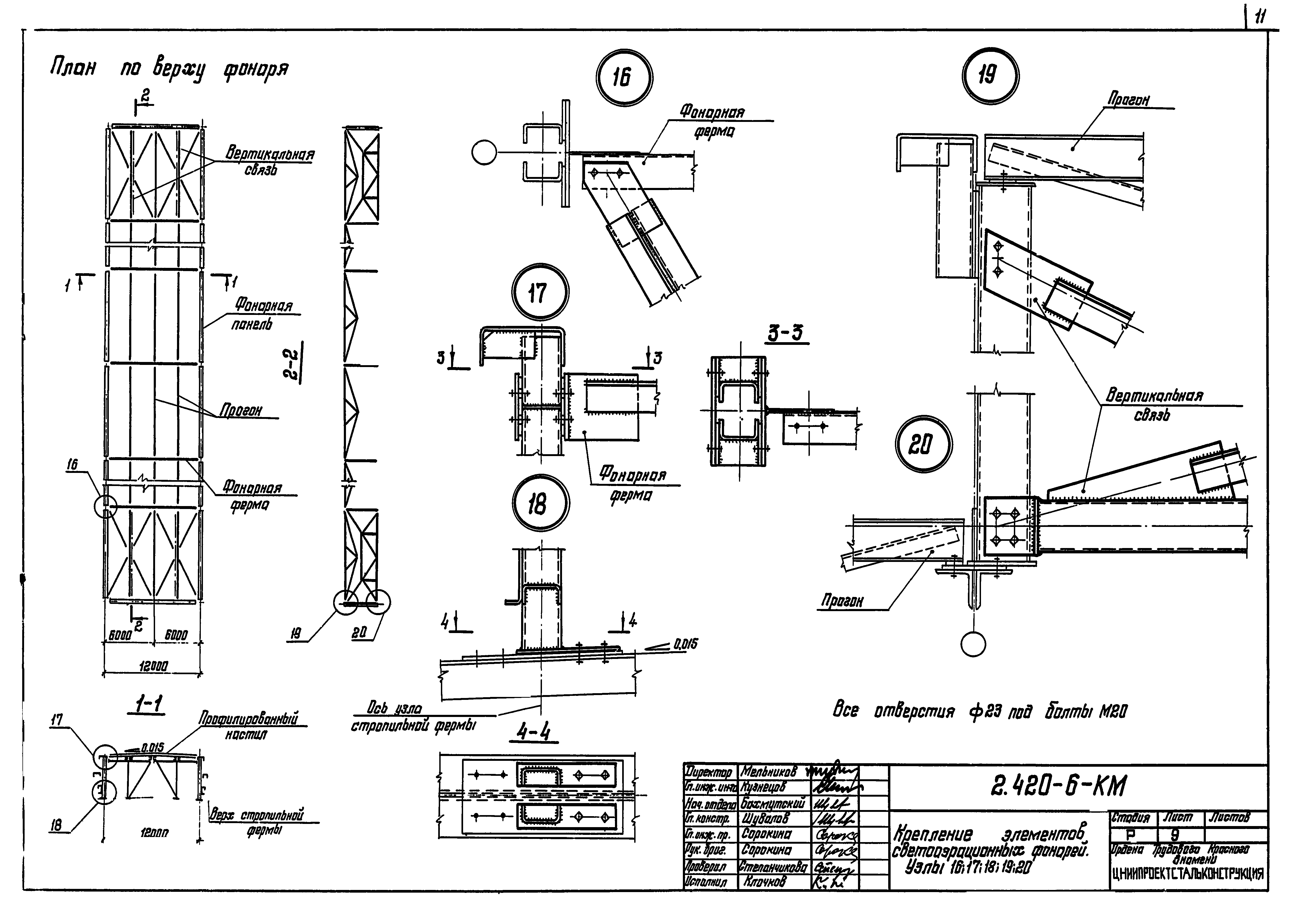
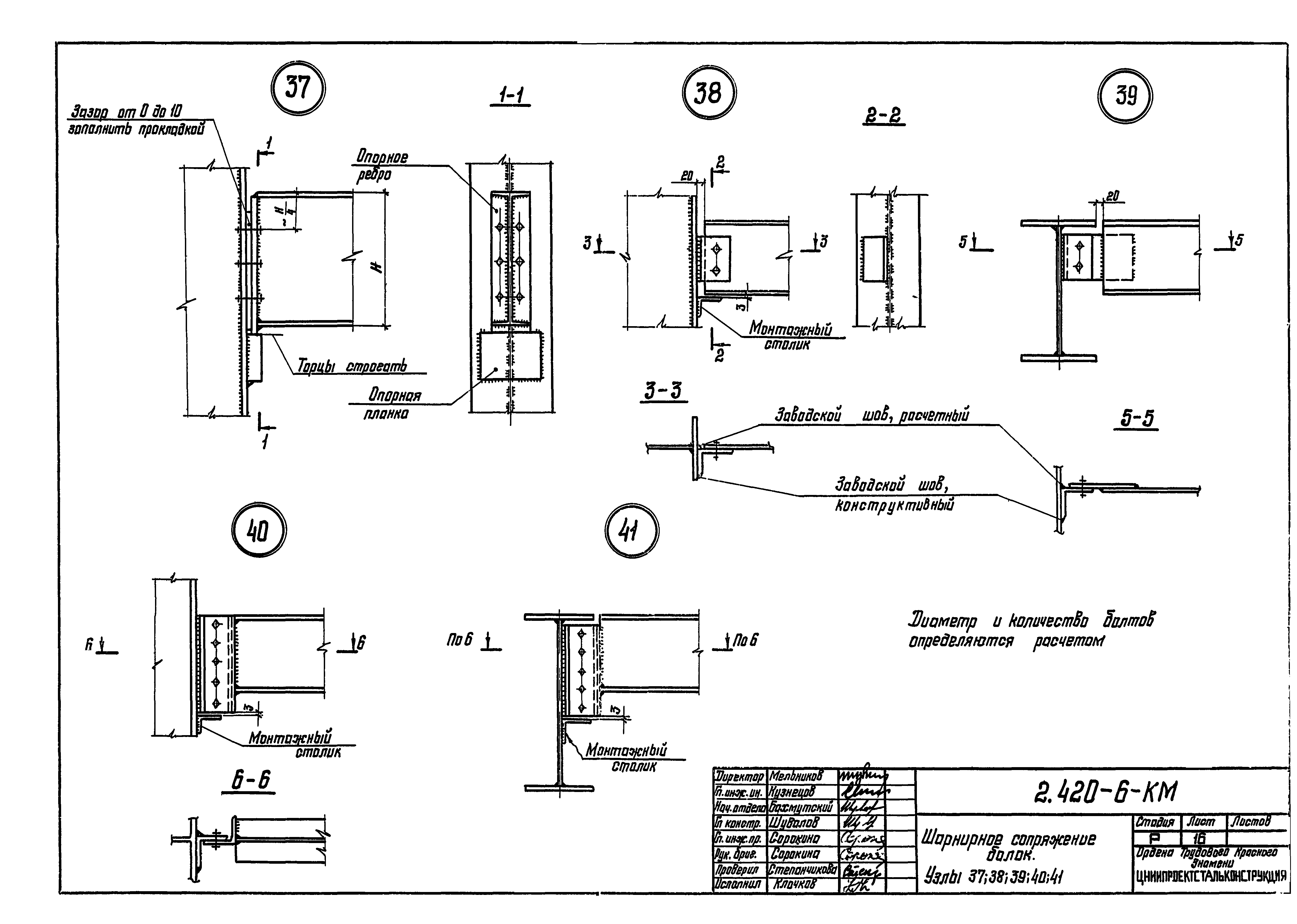
| Оглавление: | 2.420-6-КМ л.1 Пояснительная записка 2.420-6-КМ л.2 Стыки стропильных ферм с поясами из уголков. Узлы 1; 2 2.420-6-КМ л.3 Стыки стропильных ферм с поясами из широкополочных тавров. Узлы 3; 4 2.420-6-КМ л.4 Стыки стропильных ферм с поясами из широкополочных двутавров. Узлы 5; 6; 7 2.420-6-КМ л.5 Стыки стропильных ферм с поясами из круглых труб. Узлы 8; 9 2.420-6-КМ л.6 Стыки стропильных ферм при наличии подвесного транспорта. Узел 10 2.420-6-КМ л.7 Опирание прогонов. Узлы 11; 12 2.420-6-КМ л.8 Связи по нижним поясам стропильных ферм. Узлы 13; 14; 15 2.420-6-КМ л.9 Крепление элементов светоаэрационных фонарей. Узлы 16; 17; 18; 19; 20 2.420-6-КМ л.10 Опирание стропильных ферм на подстропильные. Узел 21 2.420-6-КМ л.11 Опирание стропильных ферм на стальные колонны. Узлы 22; 23 2.420-6-КМ л.12 Стыки колонн одноэтажных зданий. Узлы 24; 25 2.420-6-КМ л.13 Вертикальные связи по колоннам крайнего ряда. Узлы 26; 27; 28; 29; 30 2.420-6-КМ л.14 Вертикальные связи по колоннам среднего ряда. Узлы 31; 32; 33 2.420-6-КМ л.15 Стыки колонн многоэтажных зданий. Узлы 34; 35. Рамное соединение ригеля с колонной. Узел 36 2.420-6-КМ л.16 Шарнирное сопряжение балок. Узлы 37; 38; 39; 40; 41 2.420-6-КМ л.17 Крепление торцевого фахверка. Узел 42 2.420-6-КМ л.18 Крепление торцевого фахверка. Узел 43 2.420-6-КМ л.19 Крепление продольного фахверка. Узлы 44; 45; 46; 47 |
| Разработан: | ЦНИИпроектстальконструкция ВНИКТИстальконструкция Минмонтажспецстроя СССР ВНИПИ Промстальконструкция |
| Утверждён: | 20.06.1980 Госстрой СССР (Государственный комитет Совета Министров СССР по делам строительства) (USSR Gosstroy 50) |
| Издан: | ЦИТП Госстроя СССР (CITP, Gosstroy (USSR) 1981 г. ) |






















