Скачать Типовой проект 407-1-88.85 Альбом I. Общая пояснительная записка. Тепломеханическая часть. Электротехническая часть. Архитектурно-строительные решения. Отопление и вентиляция. Водопровод и канализацияДата актуализации: 01.01.2021
|
| Обозначение: | Типовой проект 407-1-88.85 |
| Обозначение англ: | 407-1-88.85 |
| Статус: | не определен законодательством |
| Название рус.: | Альбом I. Общая пояснительная записка. Тепломеханическая часть. Электротехническая часть. Архитектурно-строительные решения. Отопление и вентиляция. Водопровод и канализация |
| Дата добавления в базу: | 01.09.2013 |
| Дата актуализации: | 01.01.2021 |
| Дата введения: | 28.12.1984 |
| Дата окончания срока действия: | 30.06.2003 |
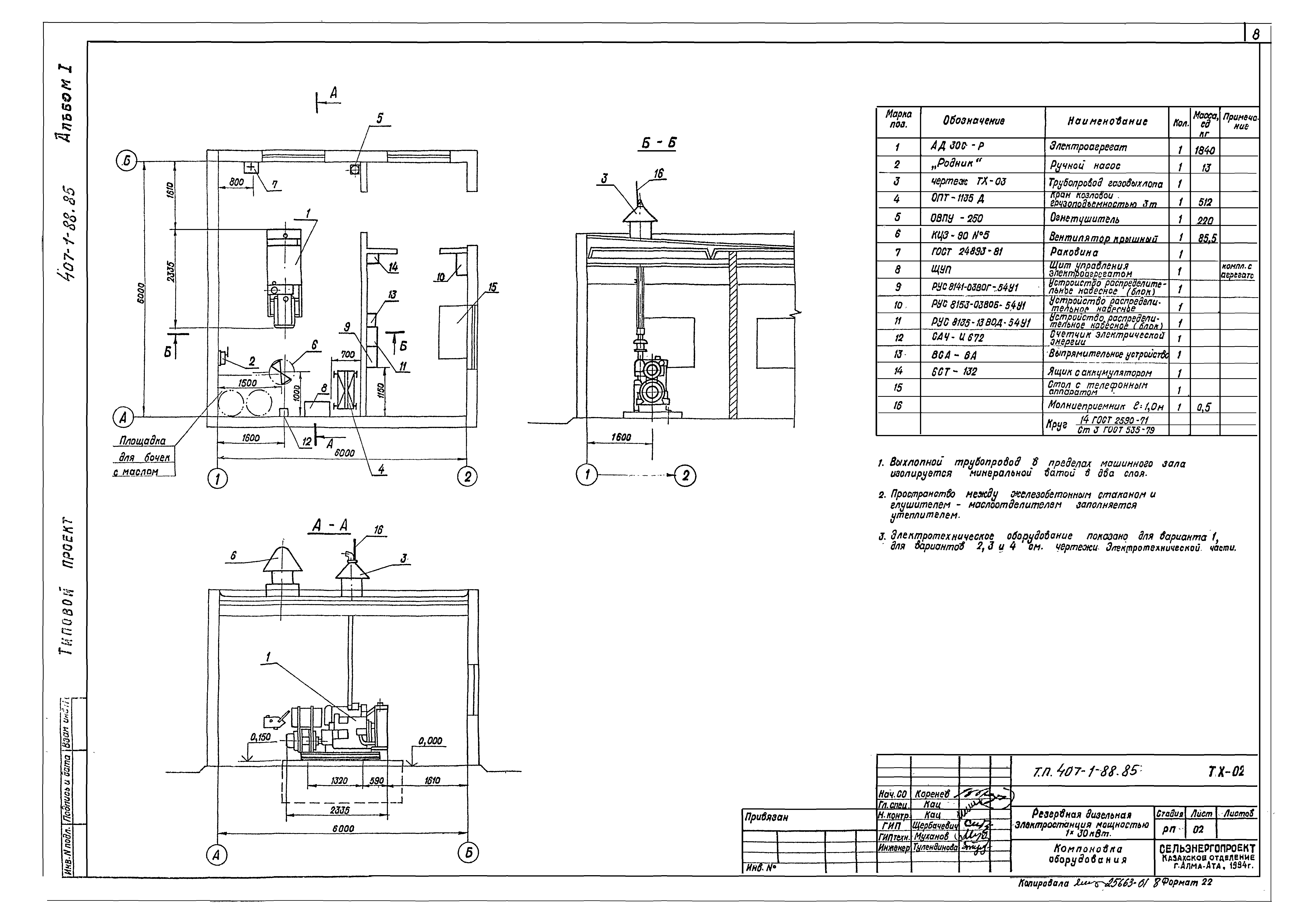
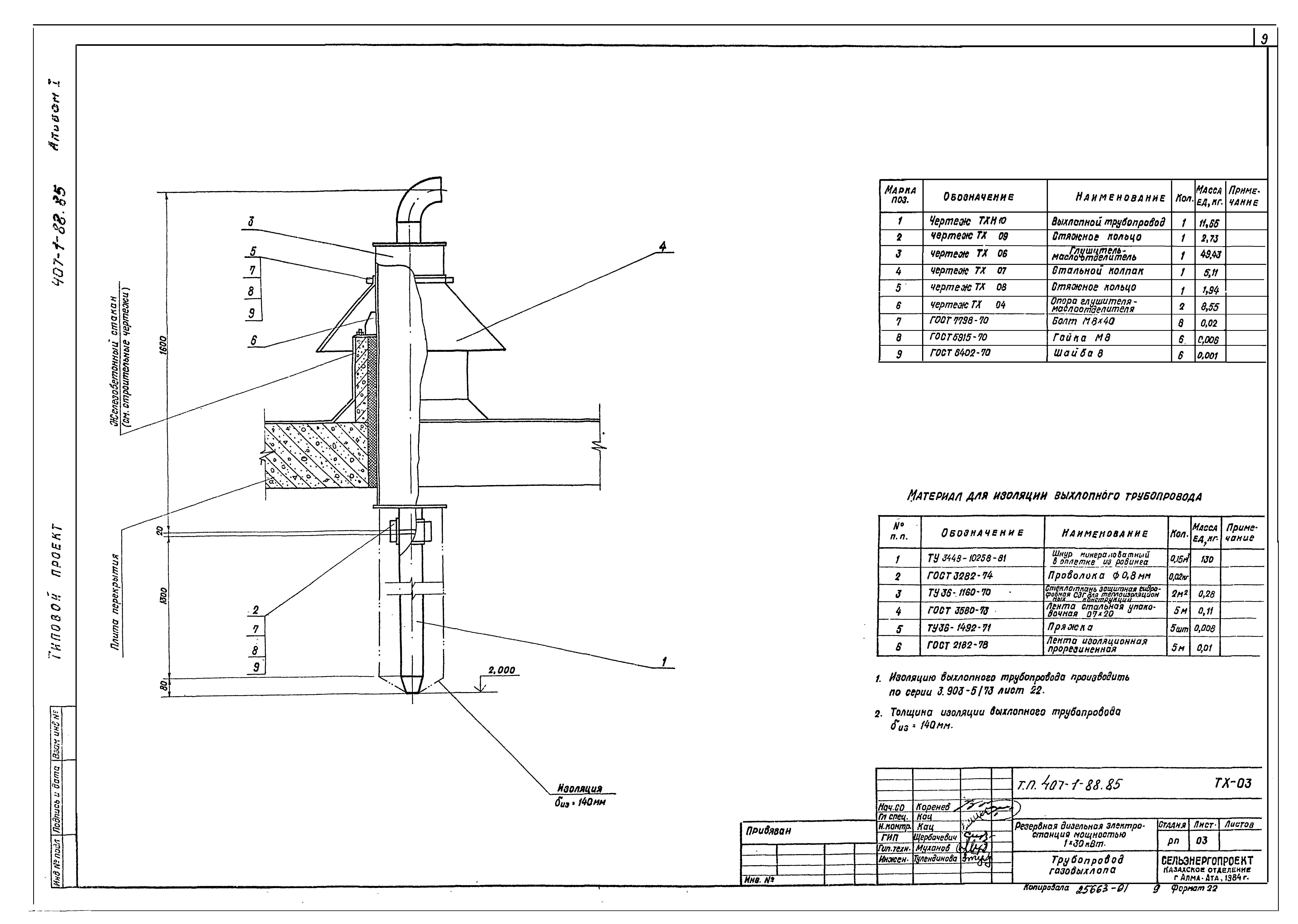
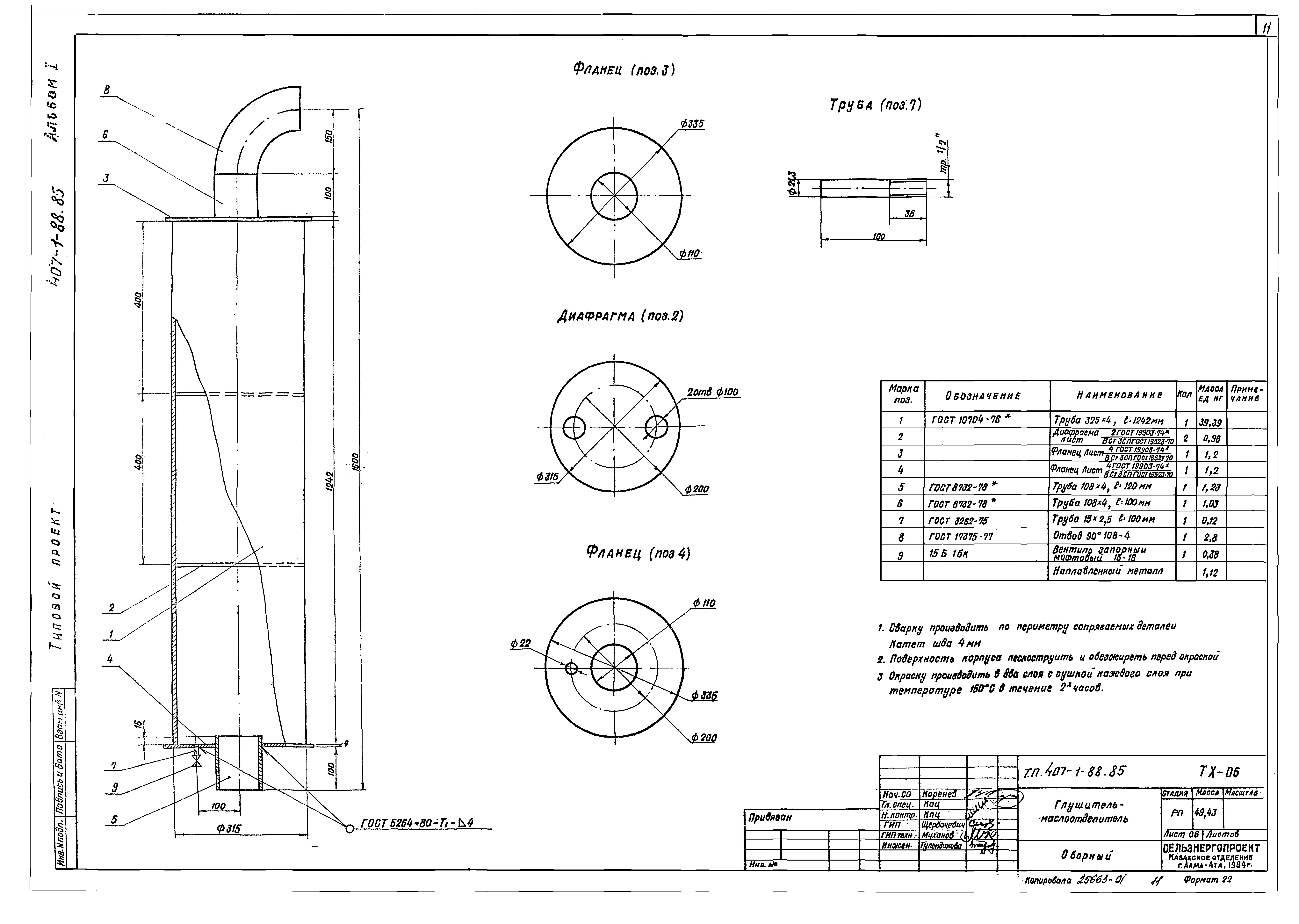
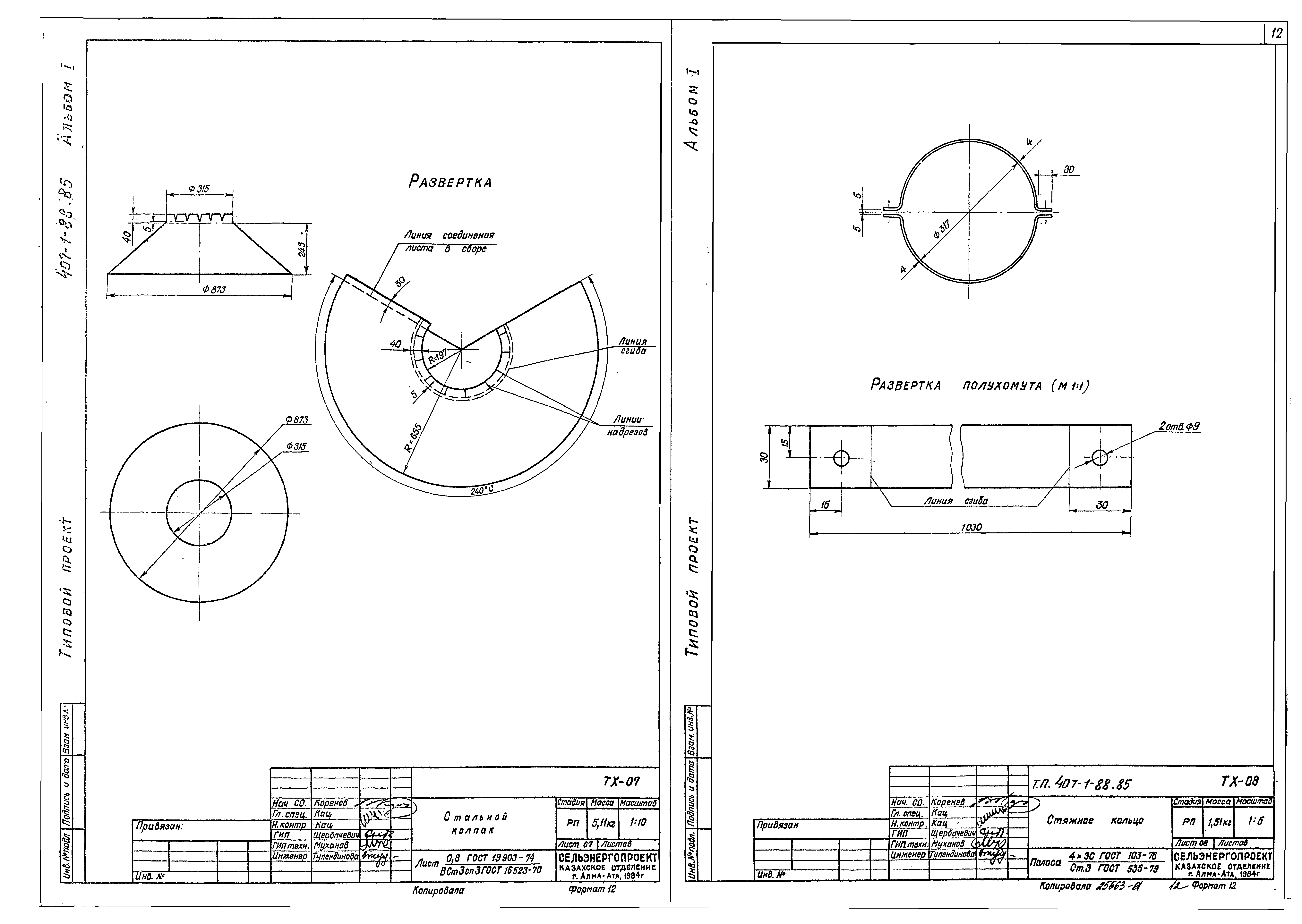
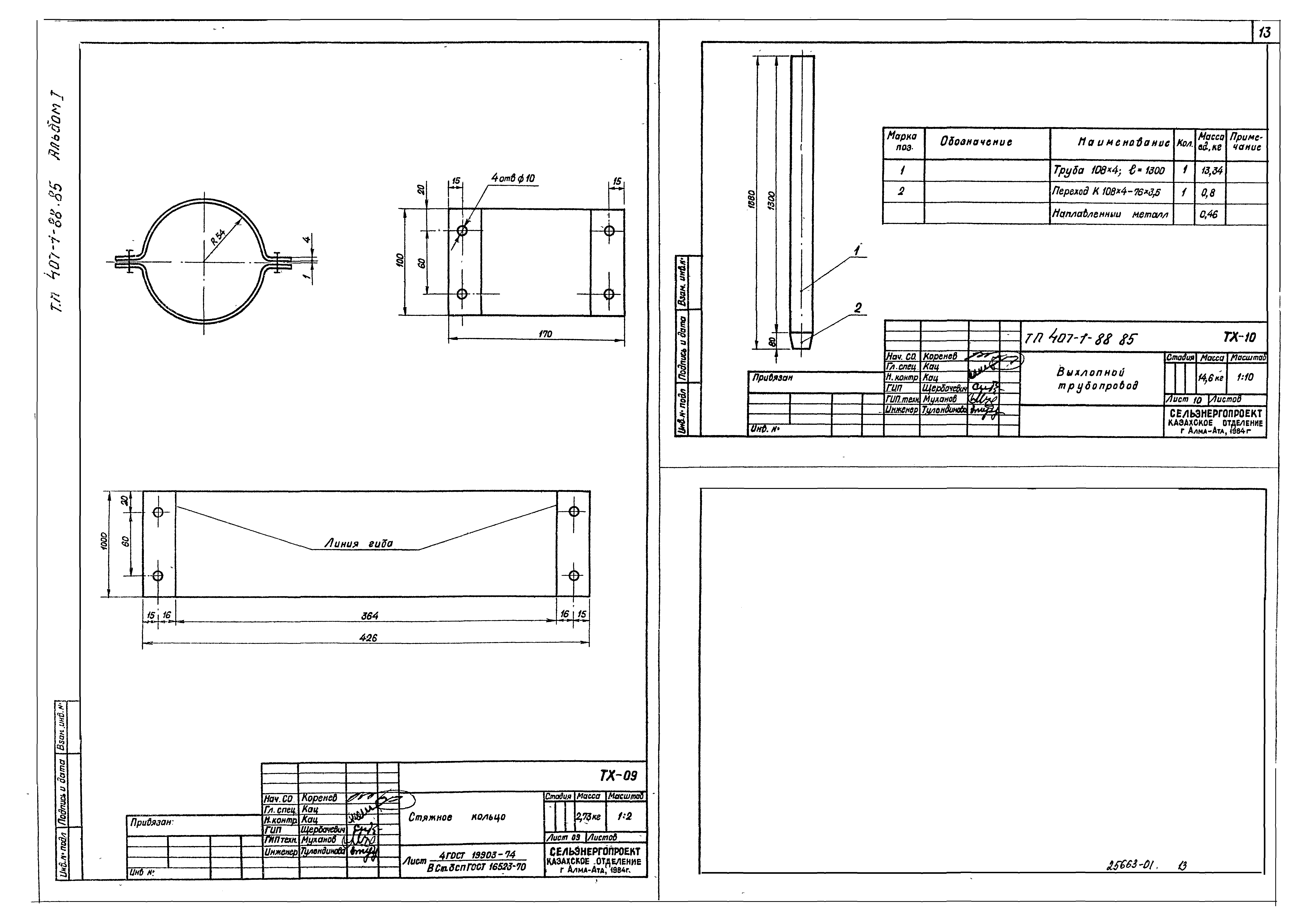
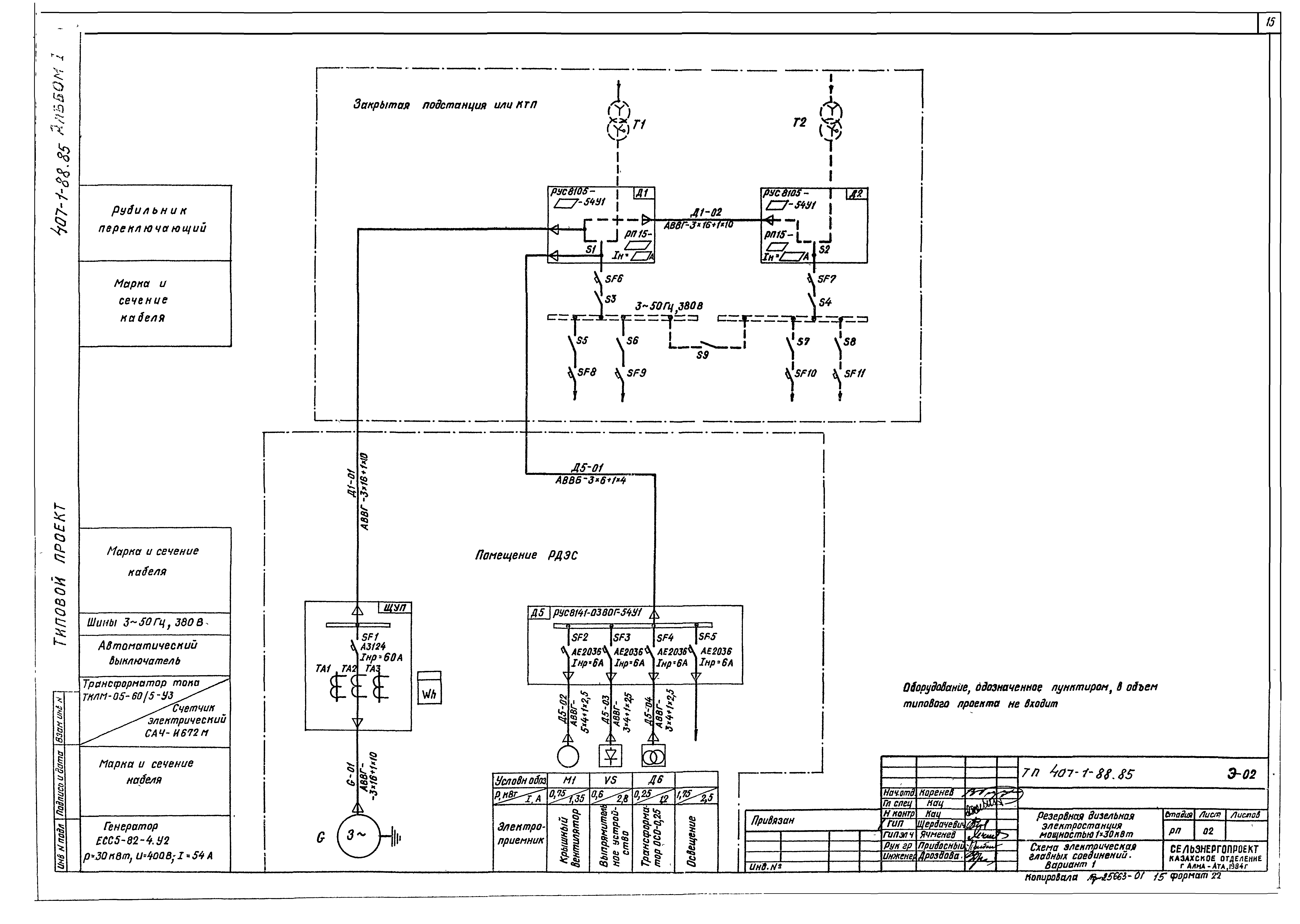
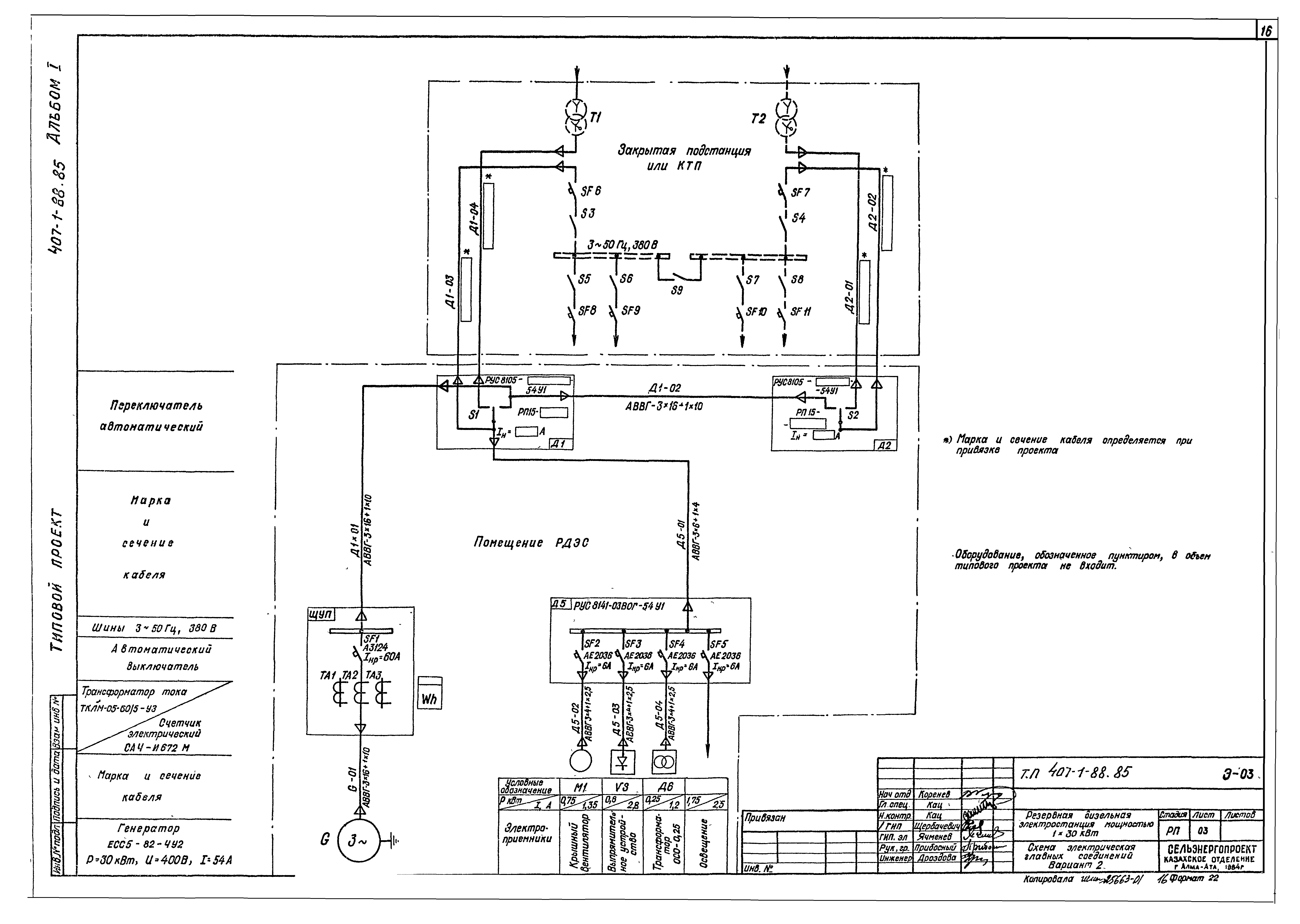
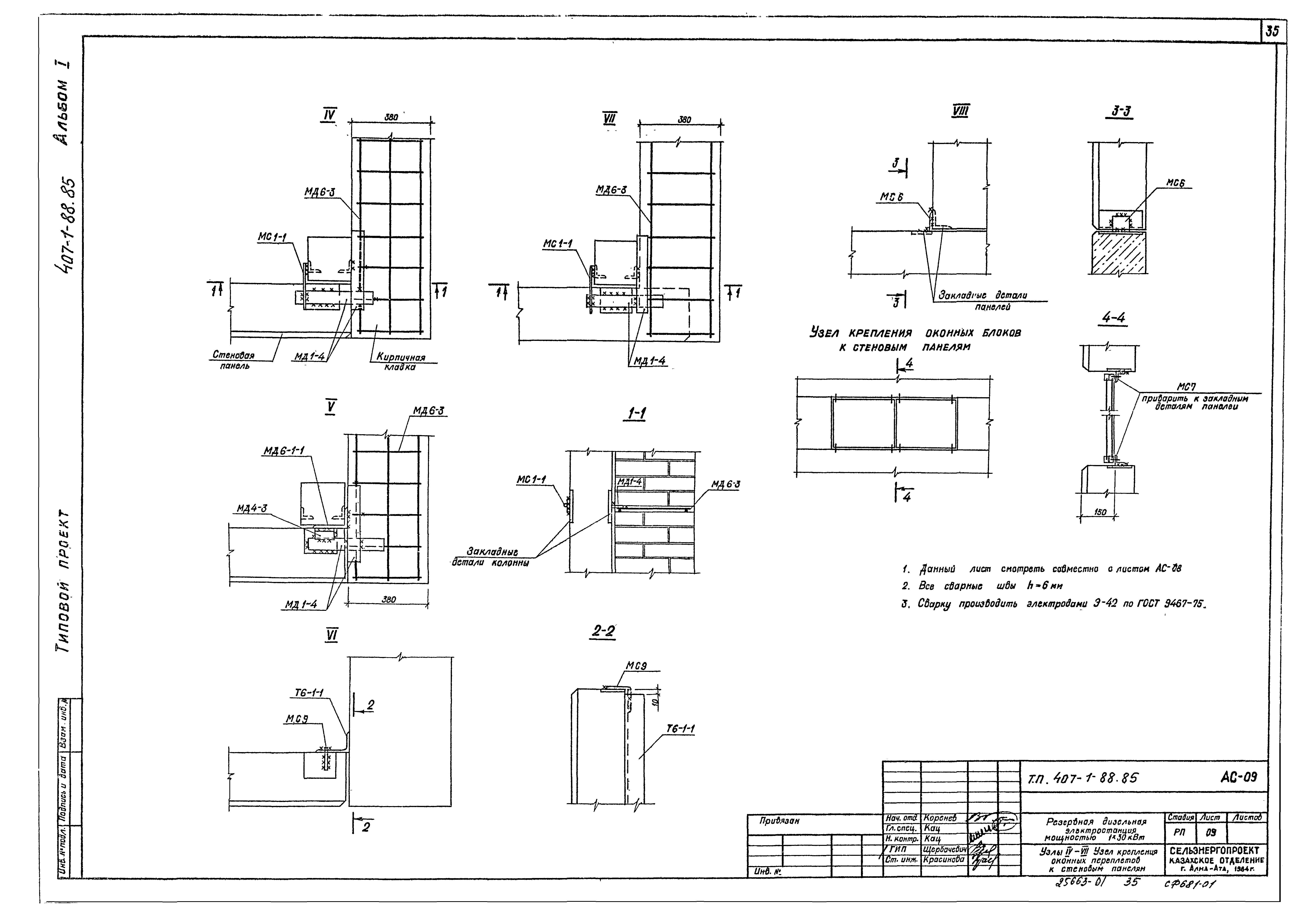
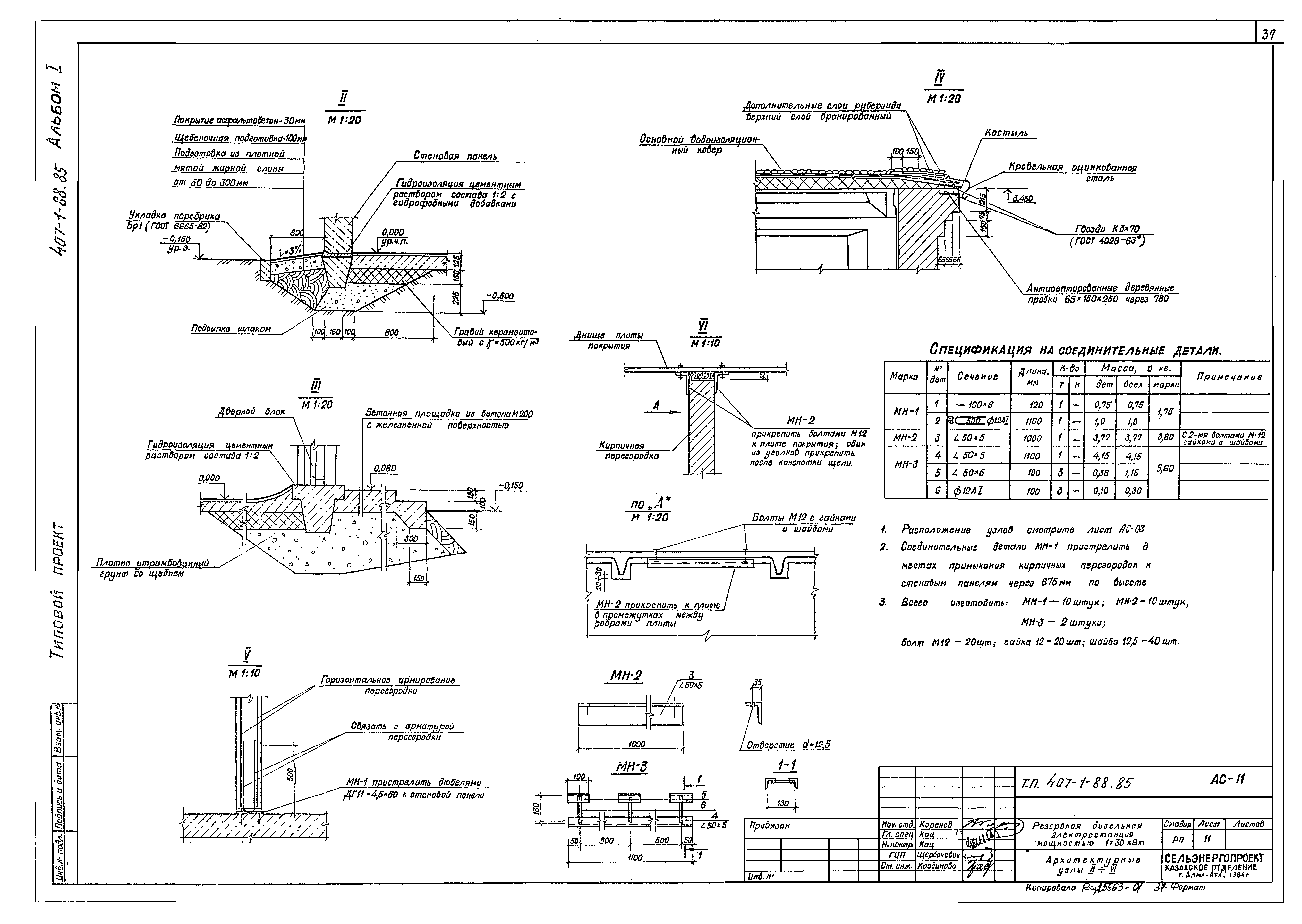
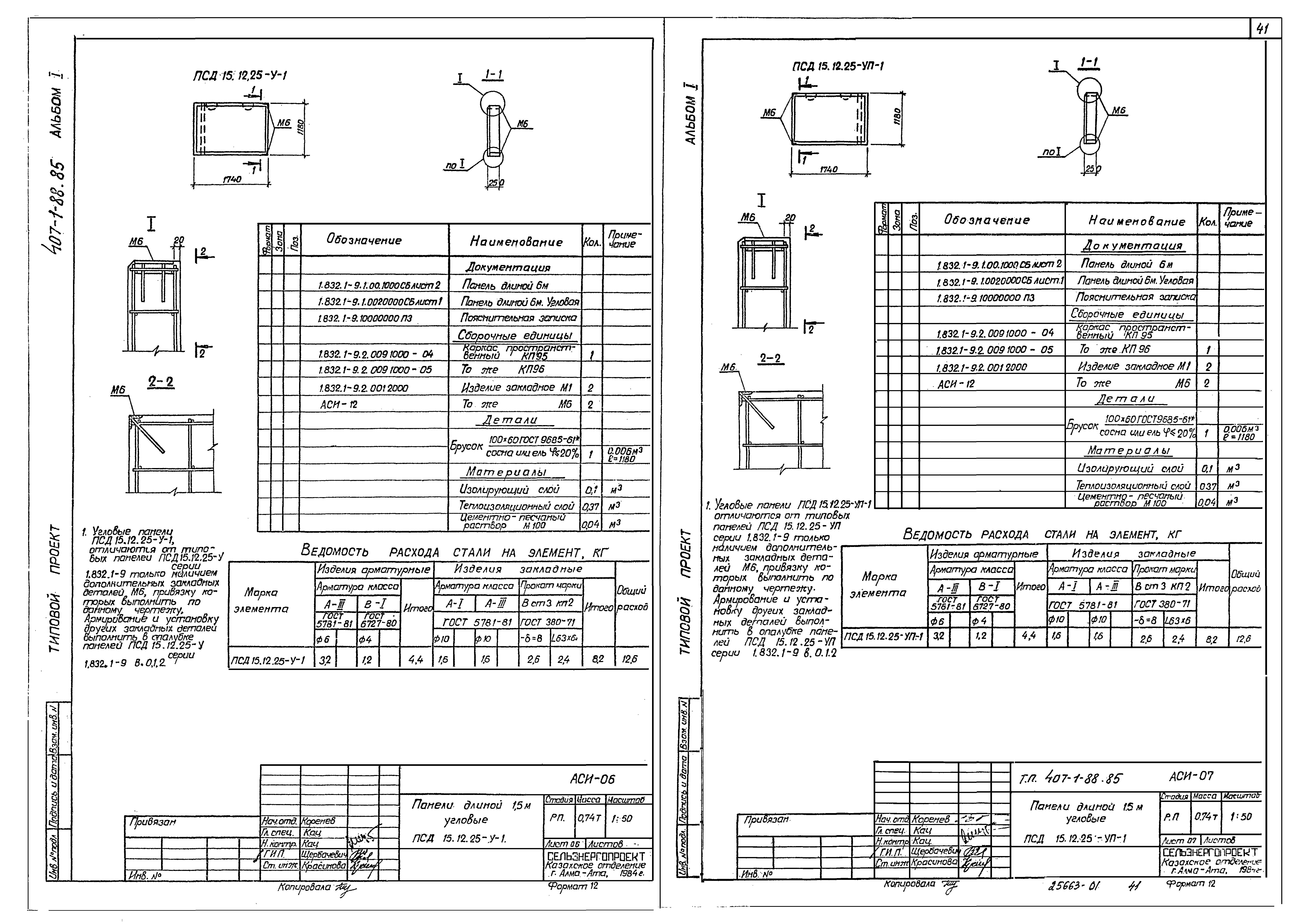
| Оглавление: | Общие данные. Общая пояснительная записка Чертежи основного комплекта ТХ Общие данные Компоновка оборудования Трубопровод газовыхлопа Опора глушителя - маслоотделителя Кронштейн для крепления ручного насоса "Родник" Глушитель-маслоотделитель Стальной колпак Стяжное кольцо Выхлопной трубопровод Чертежи основного комплекта Э Общие данные Схема электрическая главных соединений. Вариант 1 Схема электрическая главных соединений. Вариант 2 Схема электрическая главных соединений. Вариант 3 Схема электрическая главных соединений. Вариант 4 Постоянный ток. Схема электрическая Возбуждение и регулирование напряжения. Схема электрическая полная Схема внешних электрических подключений электроагрегата Раскладка кабелей. Кабельный журнал. Вариант 1 Раскладка кабелей. Кабельный журнал. Вариант 2 Раскладка кабелей. Кабельный журнал. Вариант 3 Раскладка кабелей. Кабельный журнал. Вариант 4 Электроосвещение План магистрали заземления. Вариант 1 План магистрали заземления. Вариант 2 План магистрали заземления. Вариант 3 План магистрали заземления. Вариант 4 Чертежи основного комплекта АС Общие данные Каркасно-панельный вариант План на отм. 0,000. Разрезы 1-1; 2-2 Фасады 1-2, 2-1, А-В, В-А Схема расположения элементов фундаментов. Узлы Раскладка труб. Варианты 1-4. План полов. План кровли Схема расположения колонн, балок и плит покрытия. Узел I Схемы расположения стеновых панелей. Узлы I - III Узлы IV - VII. Узел крепления оконных переплетов к стеновым панелям Фундамент ФО-1 под электроагрегат Архитектурные узлы II - VI Колонна железобетонная СК 2-33-2А Балка железобетонная 1БСТ6 - 4 А IV Т-1 Панель длиной 6 м угловая ПСД60. 12. 25-УП-1 Панель длиной 6 м угловая ПСД60. 9. 25-УП-1 Плита покрытия шириной 3 м с отверстиями диаметром 400 и 700 мм 1ПВ - 5 А IV Т-1 Панель длиной 1,5 м угловая ПСД 15. 12. 25-У-1 Панель длиной 1,5 м угловая ПСД 15. 12. 25-УП-1 Закладная деталь М-2 Закладная деталь М-3 Закладная деталь М-4 Закладная деталь М-5 Закладная деталь М-6 Кирпичный вариант План на отм. 0,000. Разрезы 1-1; 2-2. Фасады План фундаментов. Раскладка фундаментных блоков Схемы расположения плит покрытия, опорных подушек, парапетных плит. План полов. План кровли Схемы расположения приямков. Раскладка труб. Варианты 1-4 Чертежи основного комплекта ОВ Общие данные Отопление и вентиляция. План, разрез, схема системы отопления Самооткрывающиеся клапаны для крышных вентиляторов ВКР №5. Пояснительная записка Клапан АЗЕ 034. 000-01 Корпус клапана АЗЕ 034. 010-01 Клапан. Сборочный чертеж АЗЕ-034-000-01 Корпус клапана. Сборочный чертеж АЗЕ 034. 010-01 Полуось АЗЕ 034. 010-01 Болт АЗЕ 034. 002 Диск АЗЕ 034. 003-01 Обечайка АЗЕ 034. 005-01 Противовес АЗЕ 034. 004-01 Втулка АЗЕ 034. 006. Упор АЗЕ 034. 007 Чертежи основного комплекта ВК Общие данные. Водоснабжение и канализация. План, схемы систем В1, К1, Т3 Спецификация оборудования |
| Разработан: | Институт Сельэнергопроект |
| Утверждён: | 19.09.1984 Минэнерго СССР (USSR Minenergo 37) |




























































