Скачать Типовой проект 409-29-65 Альбом III. Строительные изделияДата актуализации: 01.01.2021
|
| Обозначение: | Типовой проект 409-29-65 |
| Обозначение англ: | 409-29-65 |
| Статус: | действует |
| Название рус.: | Альбом III. Строительные изделия |
| Дата добавления в базу: | 01.09.2013 |
| Дата актуализации: | 01.01.2021 |
| Дата введения: | 30.10.1979 |
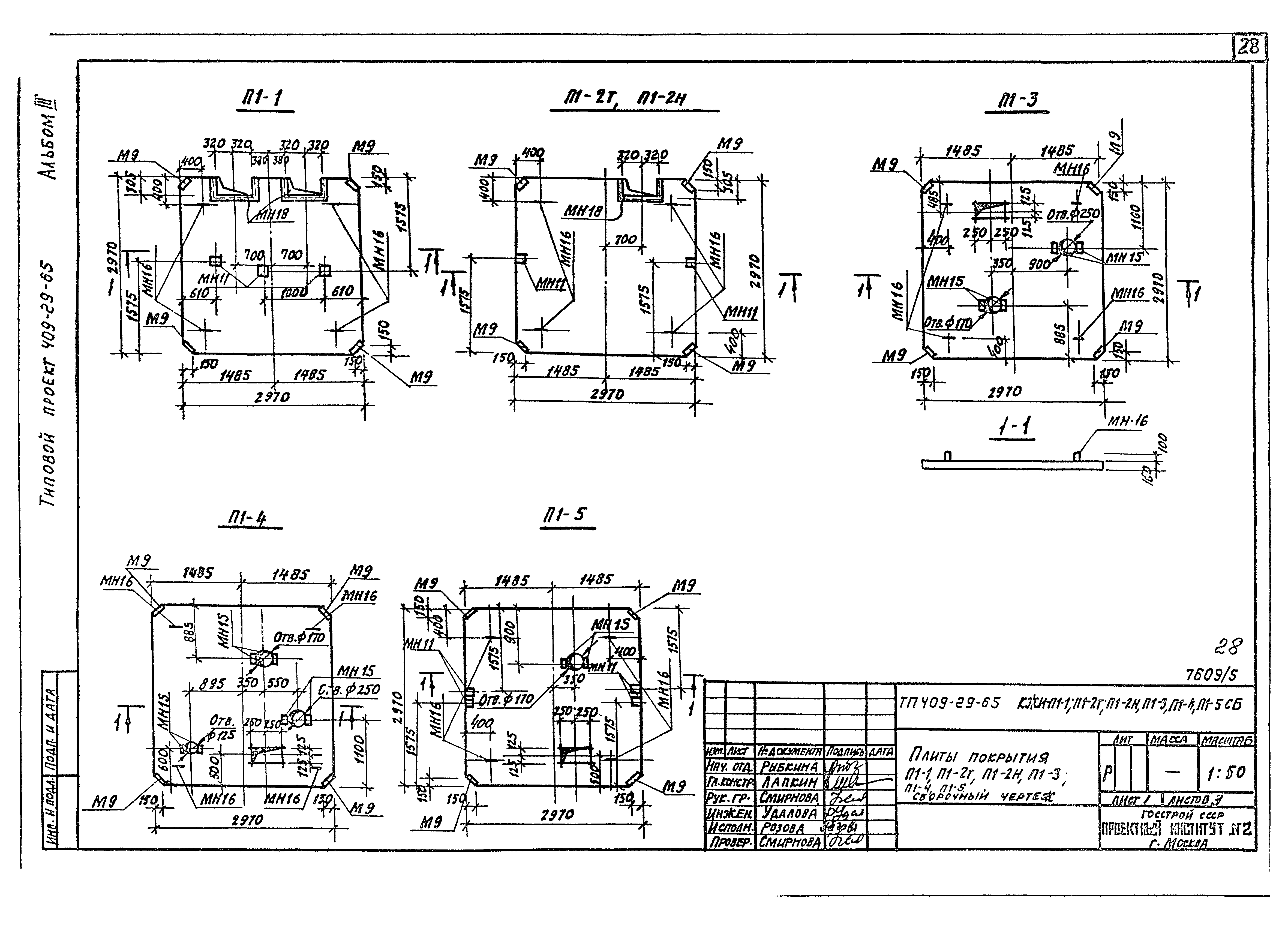
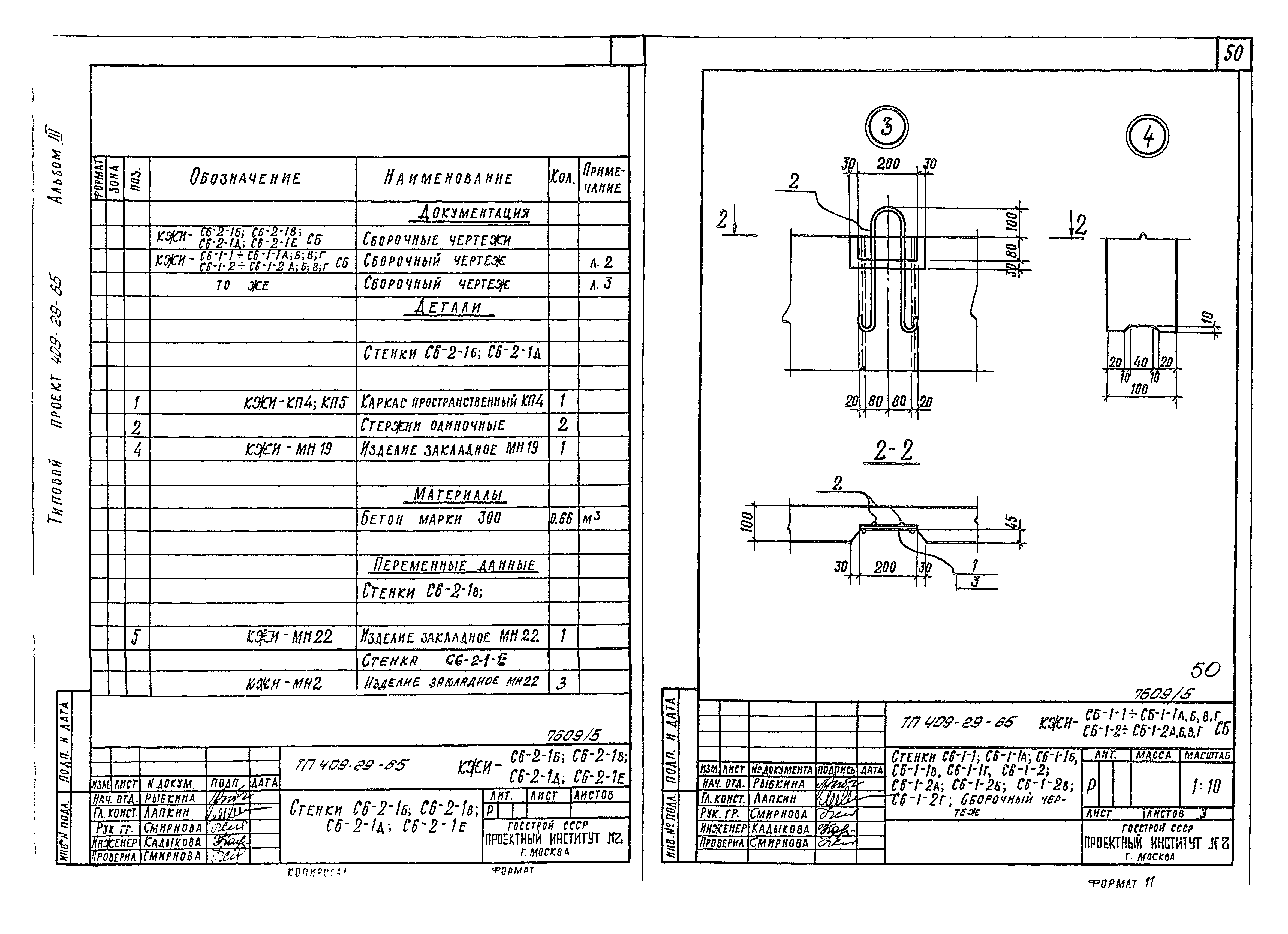
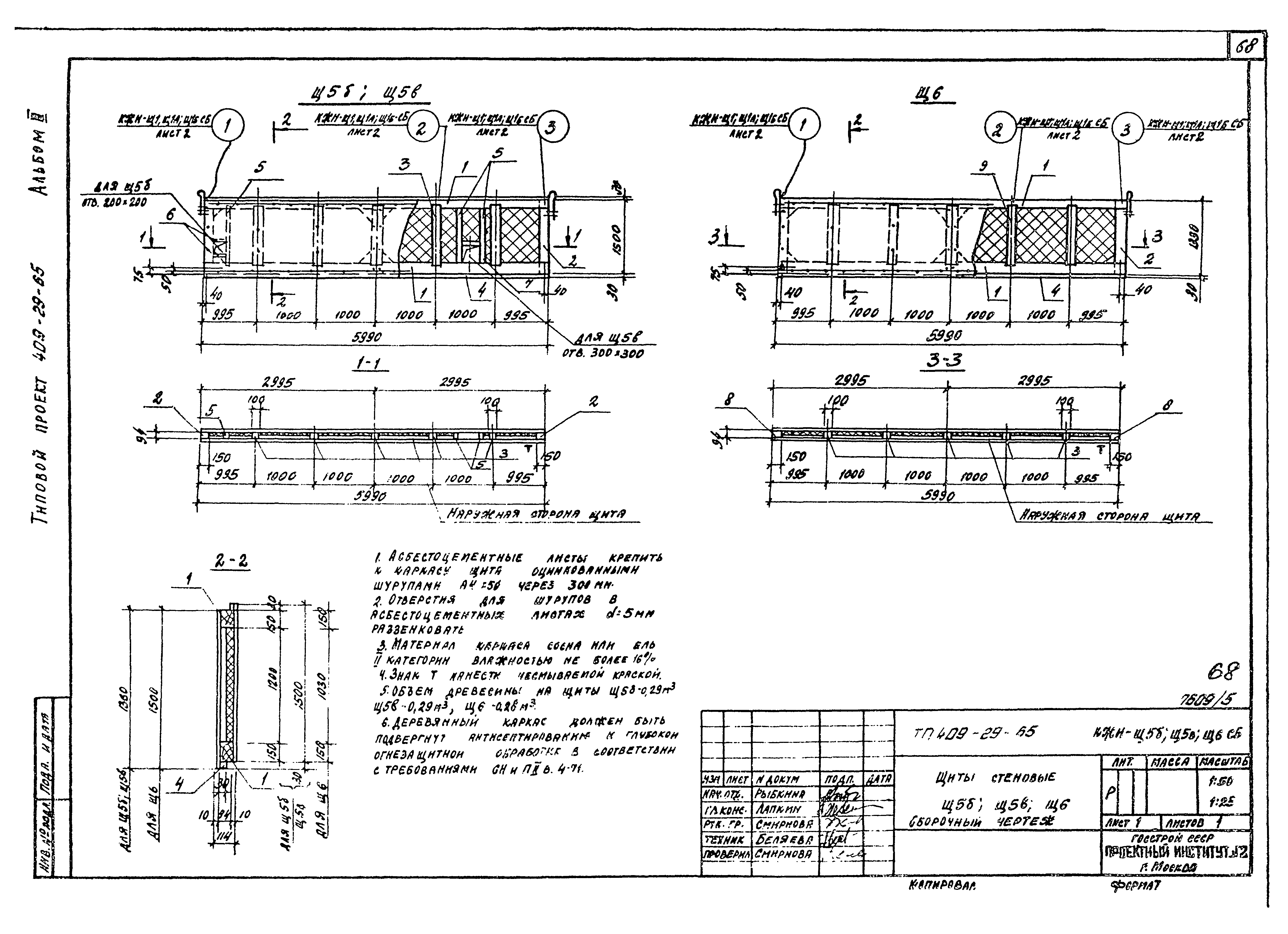
| Оглавление: | КЖИ С1, С2 Сетки арматурные С1; С2 КЖИ С3 - С5 Сетки арматурные С3; С4; С5 КЖИ С6 Сетка арматурная С6 КЖИ С7; С8; С8а Сетки арматурные С7; С8; С8а КЖИ С9; С10 Сетки арматурные С9; С10 КЖИ С11; С12; С11а; С12а Сетки арматурные С11; С12; С11а; С12а КЖИ КР1 Каркас плоский КР1 КЖИ С13 - С16 Сетки арматурные С13; С14; С15; С16 КЖИ С17; С18 Сетки арматурные С17; С18 КЖИ С19; С21 Сетки арматурные С19; С21 КЖИ С20; С20а; МН7 Сетка арматурная С20; С20а. Изделие закладное МН7 КЖИ МС1 - МС3 Изделия соединительные МС1; МС2; МС3 КЖИ С22 Сетка арматурная С22 КЖИ С24 Сетка арматурная С24 КЖИ КР5; Поз. 3 Каркас плоский Р5. Поз. 3 КЖИ С23 Сетка арматурная С23 КЖИ С25 Сетка арматурная С25 КЖИ С26 Сетка арматурная С26 КЖИ С27; С40 Сетки арматурные С27; С40 КЖИ С28 Сетка арматурная С28 КЖИ С29 Сетка арматурная С29 КЖИ С30 Сетка арматурная С30 КЖИ С31 Сетка арматурная С31 КЖИ С32 Сетка арматурная С32 КЖИ С33 Сетка арматурная С33 КЖИ С34; С35 Сетки арматурные С34; С35 КЖИ С36; С37 Сетки арматурные С36; С37 КЖИ С38; С39 Сетки арматурные С38; С39 КЖИ КП1 - КП3 Каркасы пространственные КП1; КП2; КП3 КЖИ КР2 - КР4 Каркасы плоские КР2; КР3; КР4 КЖИ КР6 Каркас плоский КР6 КЖИ КР7 Каркас плоский КР7 КЖИ Балка покрытия Б2 (ВС6-4а) КЖИ К1 Колонна К1 (К60-7-1) КЖИ ОП1 Опорная подушка ОП1 КЖИ КС10-1А Кольцо стеновое КС10-1А КЖИ МН14; МН18 Изделия закладные МН14; МН18 КЖИ ПАтV/(1/5х6)-2-1A; ПАтV/(1/5х6)-2-2A Плиты покрытия ПАтV/(1/5х6)-2-1A; ПАтV/(1/5х6)-2-2A КЖИ ПАтV/(1/5х6)-2-3A; ПАтV/(1/5х6)-2-4A Плиты покрытия ПАтV/(1/5х6)-2-3A; ПАтV/(1/5х6)-2-4A КЖИ П1-1; П1-2Т; П1-2Н; П1-3; П1-4; П1-5 Плиты покрытия П1-1; П1-2Т; П1-2Н; П1-3; П1-4; П1-5 КЖИ П1-1; П1-2Т; П1-2Н; П1-3; П1-4; П1-5 СБ Плиты покрытия П1-1; П1-2Т; П1-2Н; П1-3; П1-4; П1-5. Сборочный чертеж КЖИ П2Т-1; П2Н-1; П2Т-2; П2Н-2; П2Н-3; П2Н-4; П2Т-А; П2Т-Б Плиты покрытия П2Т-1; П2Н-1; П2Т-2; П2Н-2; П2Н-3; П2Н-4; П2Т-А; П2Т-Б КЖИ П2Т-1; П2Н-1; П2Т-2; П2Н-2; П2Н-3; П2Н-4; П2Т-А; П2Т-Б СБ Плиты покрытия П2Т-1; П2Н-1; П2Т-2; П2Н-2; П2Н-3; П2Н-4; П2Т-А; П2Т-Б. Сборочный чертеж КЖИ П1-А; П1-Б; П3-1; П3-А; П3-Б; П3 СБ Плиты покрытия П1-А; П1-Б; П3-1; П3-А; П3-Б; П3. Сборочный чертеж КЖИ П1-А; П1-Б; П3-1; П3-А; П3-Б; П3 Плиты покрытия П1-А; П1-Б; П3-1; П3-А; П3-Б; П3 КЖИ А1; А2; А3; А4; А6; МН26 Анкерные болты А1; А2; А3; А4; А6. Изделие закладное МН26 КЖИ А5; СК1; МН24 Анкерный болт А5. Скоба СК1. Изделие закладное МН24 КЖИ МН1; МН2 Изделия закладные МН1; МН2 КЖИ МН3; МН4 Изделия закладные МН3; МН4 КЖИ МН5 Изделие закладное МН5 КЖИ ЩС1 Щит стальной ЩС1 КЖИ МН9; МН10 Изделия закладные МН9; МН10 КЖИ МН6; МН8 Изделия закладные МН6; МН8 КЖИ ФЛ1; ФЛ6 Изделия закладные ФЛ1; ФЛ6 КЖИ ФЛ3 Изделие закладное ФЛ3 КЖИ ФЛ4 Изделие закладное ФЛ4 КЖИ ФЛ2 Изделие закладное ФЛ2 КЖИ МК1; ФЛ5; ФЛ7 Изделия закладные МК1; ФЛ5; ФЛ7 КЖИ ФЛ8 Изделие закладное ФЛ8 КЖИ МН17; МН17а Изделия закладные МН17; МН17а КЖИ КР8 Каркас плоский КР8 КЖИ КР9 Каркас плоский КР9 КЖИ С6-1-1 - С6-1-1А; Б; В; Г; С6-1-2 - С6-1-2А; Б; В; Г Стенки С6-1-1; С6-1-1А; С6-1-1Б; С6-1-1В; С6-1-1Г; С6-1-2; С6-1-2А; С6-1-2Б; С6-1-2В; С6-1-2Г КЖИ С6-2-1; С6-2-1А; С6-2-1Г; С6-2-1Ж Стенки С6-2-1; С6-2-1А; С6-2-1Г; С6-2-1Ж КЖИ С6-1-1 - С6-1-1А; Б; В; Г; С6-1-2 - С6-1-2А; Б; В; Г СБ Стенки С6-1-1; С6-1-1А; С6-1-1Б; С6-1-1В; С6-1-1Г; С6-1-2; С6-1-2А; С6-1-2Б; С6-1-2В; С6-1-2Г. Сборочный чертеж КЖИ С6-2-1Б; С6-2-1В; С6-2-1Д; С6-2-1Е Стенки С6-2-1Б; С6-2-1В; С6-2-1Д; С6-2-1Е КЖИ С6-2-1Б; С6-2-1В; С6-2-1Д; С6-2-1Е СБ Стенки С6-2-1Б; С6-2-1В; С6-2-1Д; С6-2-1Е. Сборочный чертеж КЖИ С6-2-1; С6-2-1А; С6-2-1Г; С6-2-1Ж СБ Стенки С6-2-1; С6-2-1А; С6-2-1Г; С6-2-1Ж. Сборочный чертеж КЖИ КП4; КП5 Каркасы пространственные КП4; КП5 КЖИ МН11; МН12; МН13; МН15; МН16 Изделия закладные МН11; МН12; МН13; МН15; МН16 КЖИ МС4; МС11; МС12; МС13 Изделия соединительные МС4; МС11; МС12; МС13 КЖИ МН25 Изделие закладное МН25 КЖИ МС5; МС6 Изделия соединительные МС5; МС6 КЖИ МС7 Изделие соединительное МС7 КЖИ МС8; МС9 Изделия соединительные МС8; МС9 КЖИ МС10 Изделие соединительное МС10 КЖИ МН22 Изделие закладное МН22 КЖИ МН19 Изделие закладное МН19 КЖИ МН20 Изделие закладное МН20 КЖИ МН21 Изделие закладное МН21 КЖИ С41; С42 Сетка арматурная С41; С42 КЖИ МН23 Изделие закладное МН23 КЖИ Щ1; Щ1А; Щ1Б Щиты стеновые Щ1; Щ1А; Щ1Б КЖИ Щ5Б; Щ5В; Щ6 Щиты стеновые Щ5Б; Щ5В; Щ6 КЖИ Щ1; Щ1А; Щ1Б СБ Щиты стеновые Щ1; Щ1А; Щ1Б. Сборочный чертеж КЖИ Щ2; Щ3 Щиты стеновые Щ2; Щ3 КЖИ Щ2; Щ3 СБ Щиты стеновые Щ2; Щ3. Сборочный чертеж КЖИ Щ4; Щ5; Щ5А Щиты стеновые Щ4; Щ5; Щ5А КЖИ Щ4; Щ5; Щ5А СБ Щиты стеновые Щ4; Щ5; Щ5А. Сборочный чертеж КЖИ Щ5Б; Щ5В; Щ6 СБ Щиты стеновые Щ5Б; Щ5В; Щ6. Сборочный чертеж КЖИ Щ7; Щ7А; Щ8; Щ8А; Щ9; Щ10 Щиты стеновые Щ7; Щ7А; Щ8; Щ8А; Щ9; Щ10 КЖИ Щ7; Щ7А; Щ8; Щ8А; Щ9; Щ10 СБ Щиты стеновые Щ7; Щ7А; Щ8; Щ8А; Щ9; Щ10. Сборочный чертеж КЖИ Щ11; Щ12 Щиты стеновые Щ11; Щ12 КЖИ Щ11; Щ12 СБ Щиты стеновые Щ11; Щ12. Сборочный чертеж КЖИ Щ13; Щ13А СБ Щит стеновой Щ13; Щ13А. Сборочный чертеж КЖИ Щ13; Щ13А Щит стеновой Щ13; Щ13А КЖИ Щ14; Щ15; Щ16; Щ17 Щиты покрытия Щ14; Щ15; Щ16; Щ17 КЖИ Щ14; Щ15; Щ16; Щ17 СБ Щиты покрытия Щ14; Щ15; Щ16; Щ17. Сборочный чертеж КЖИ Щ18; Щ19 Щиты покрытия Щ18; Щ19 КЖИ Щ18; Щ19 СБ Щиты покрытия Щ18; Щ19. Сборочный чертеж КЖИ Щ20 - Щ25 Щиты покрытия Щ20 - Щ25 КЖИ Щ20 - Щ25 СБ Щиты покрытия Щ20 - Щ25. Сборочный чертеж |
| Разработан: | Проектный институт N 2 (ПИ-2) Гипростроммаш Укрпроектстальконструкция |
| Утверждён: | 02.07.1979 Госстрой СССР (Государственный комитет Совета Министров СССР по делам строительства) (USSR Gosstroy 35) |















































































