Скачать Типовой проект 409-29-66 Альбом II. Выпуск 2. Архитектурно-строительная и санитарно-техническая части. Стационарный вариант (в сборном железобетоне)Дата актуализации: 01.01.2021
|
| Обозначение: | Типовой проект 409-29-66 |
| Обозначение англ: | 409-29-66 |
| Статус: | не определен законодательством |
| Название рус.: | Альбом II. Выпуск 2. Архитектурно-строительная и санитарно-техническая части. Стационарный вариант (в сборном железобетоне) |
| Дата добавления в базу: | 01.09.2013 |
| Дата актуализации: | 01.01.2021 |
| Дата введения: | 30.11.1979 |
| Дата окончания срока действия: | 30.06.2003 |
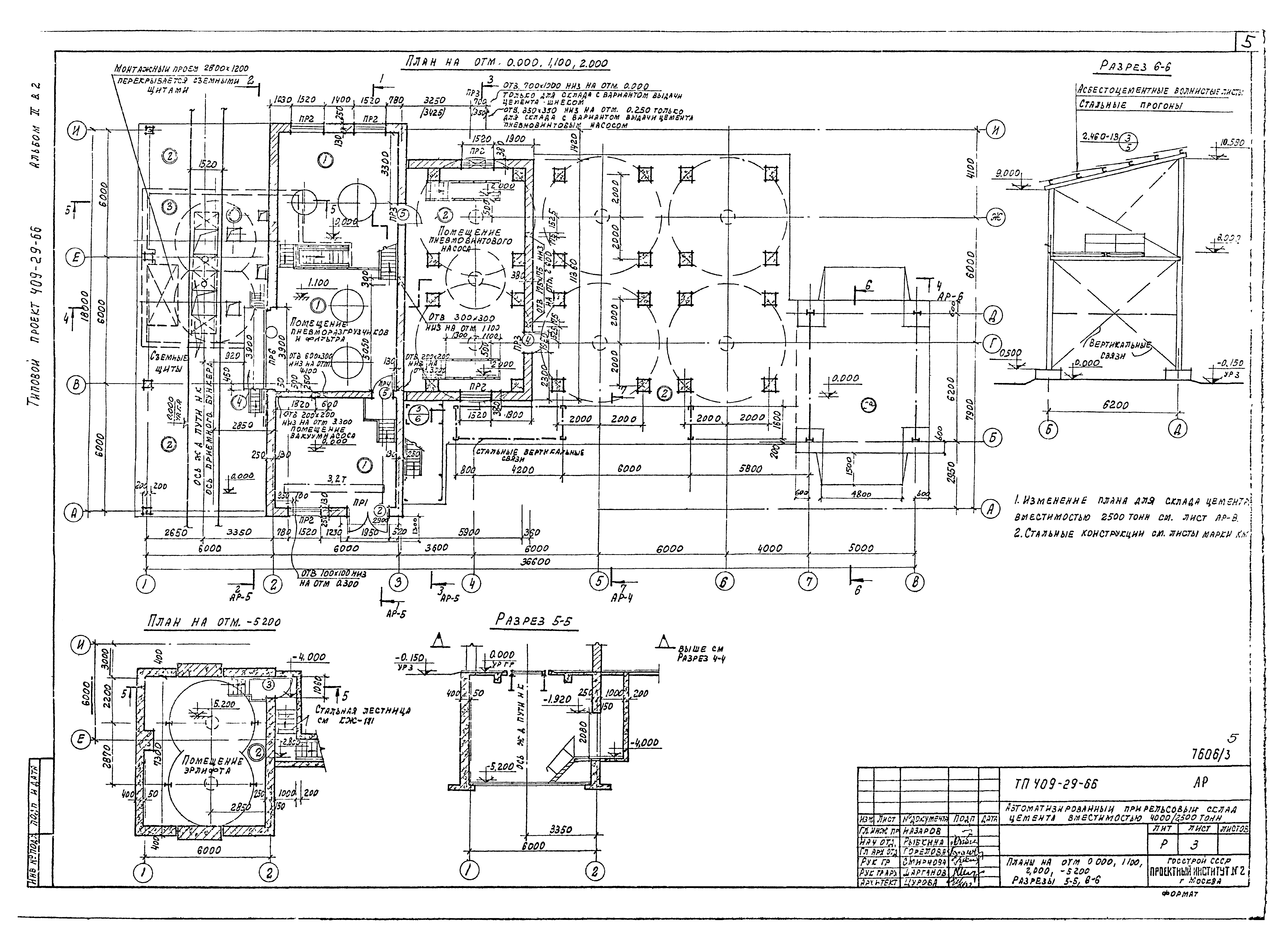
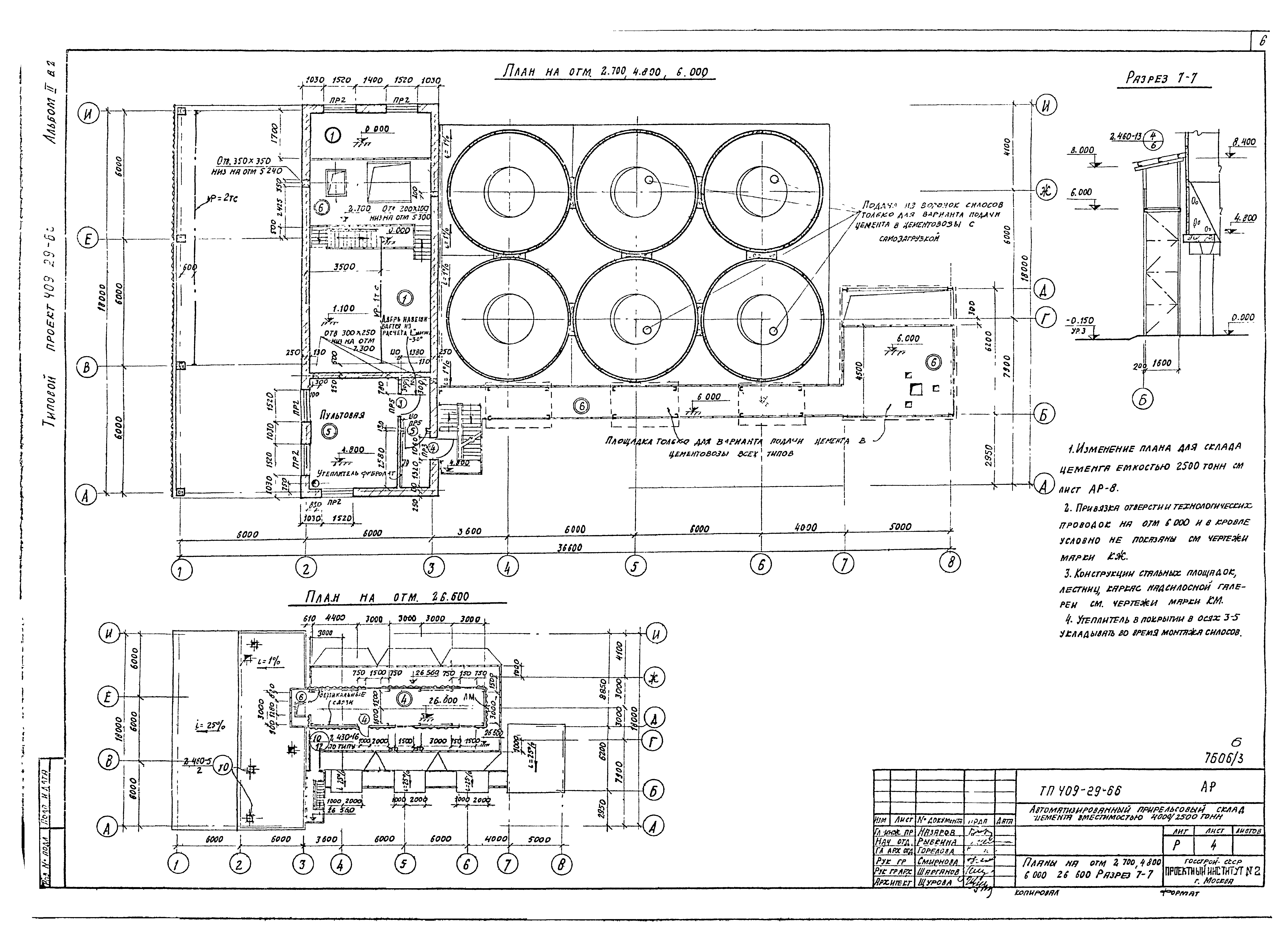
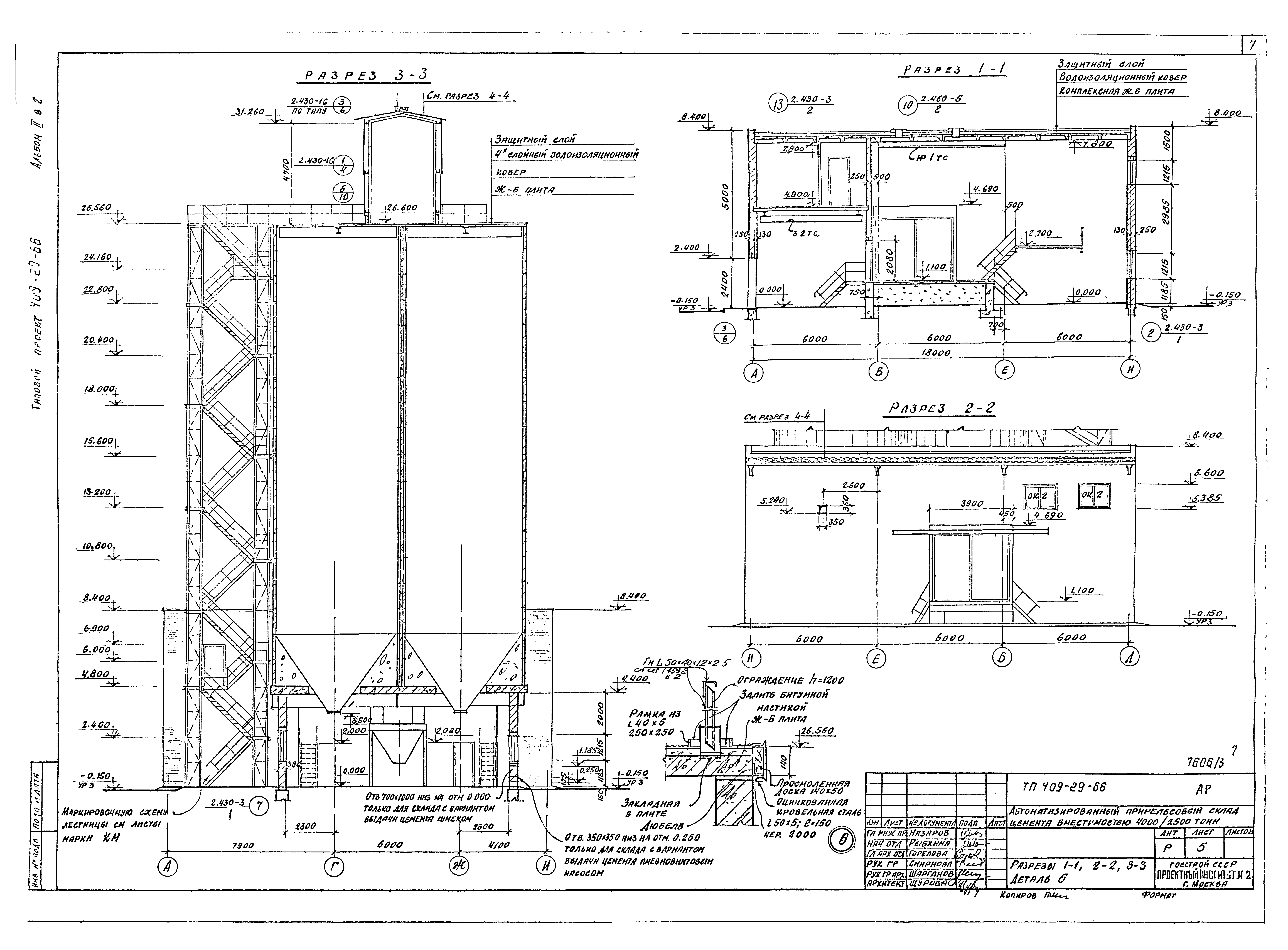
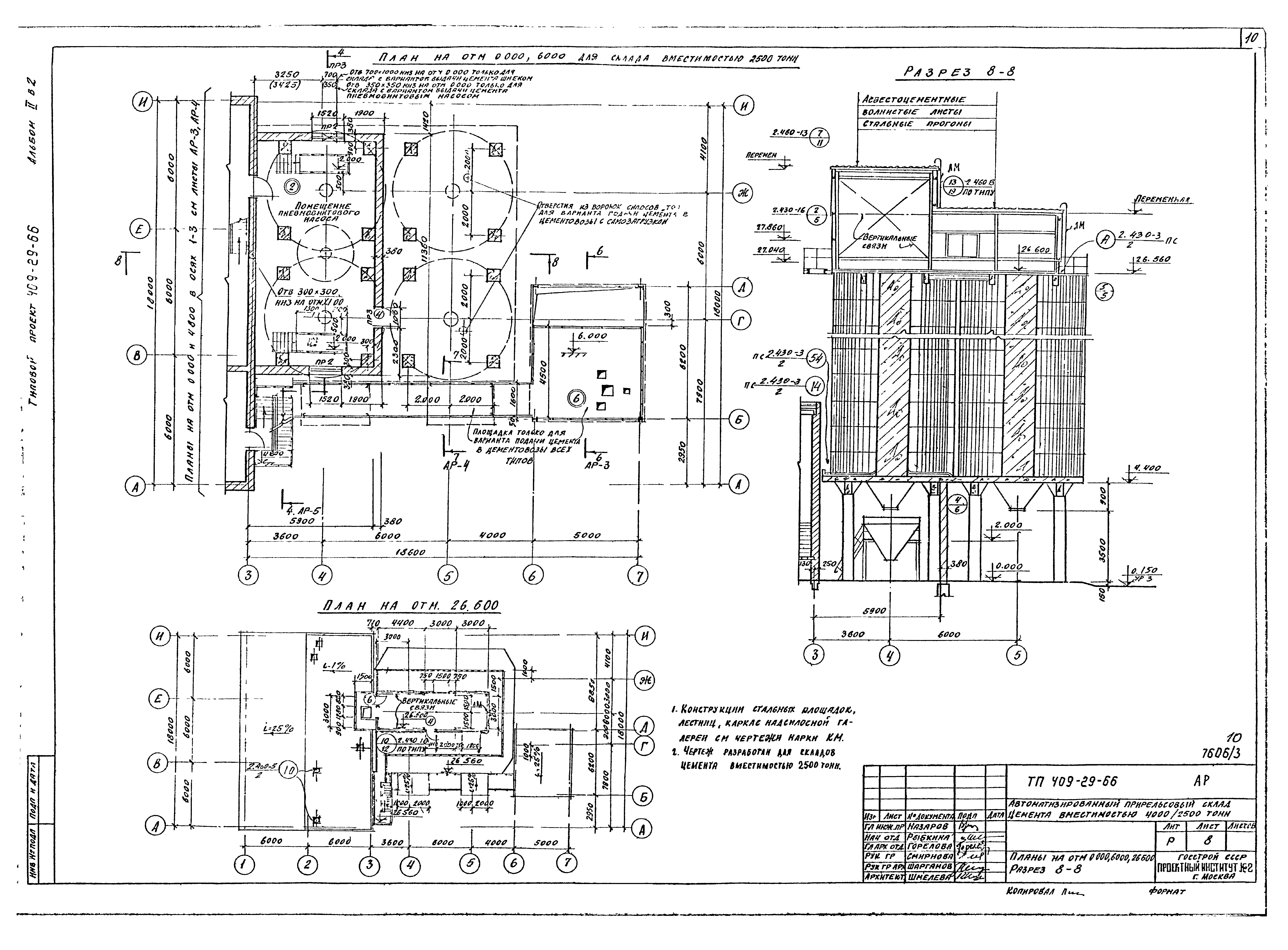
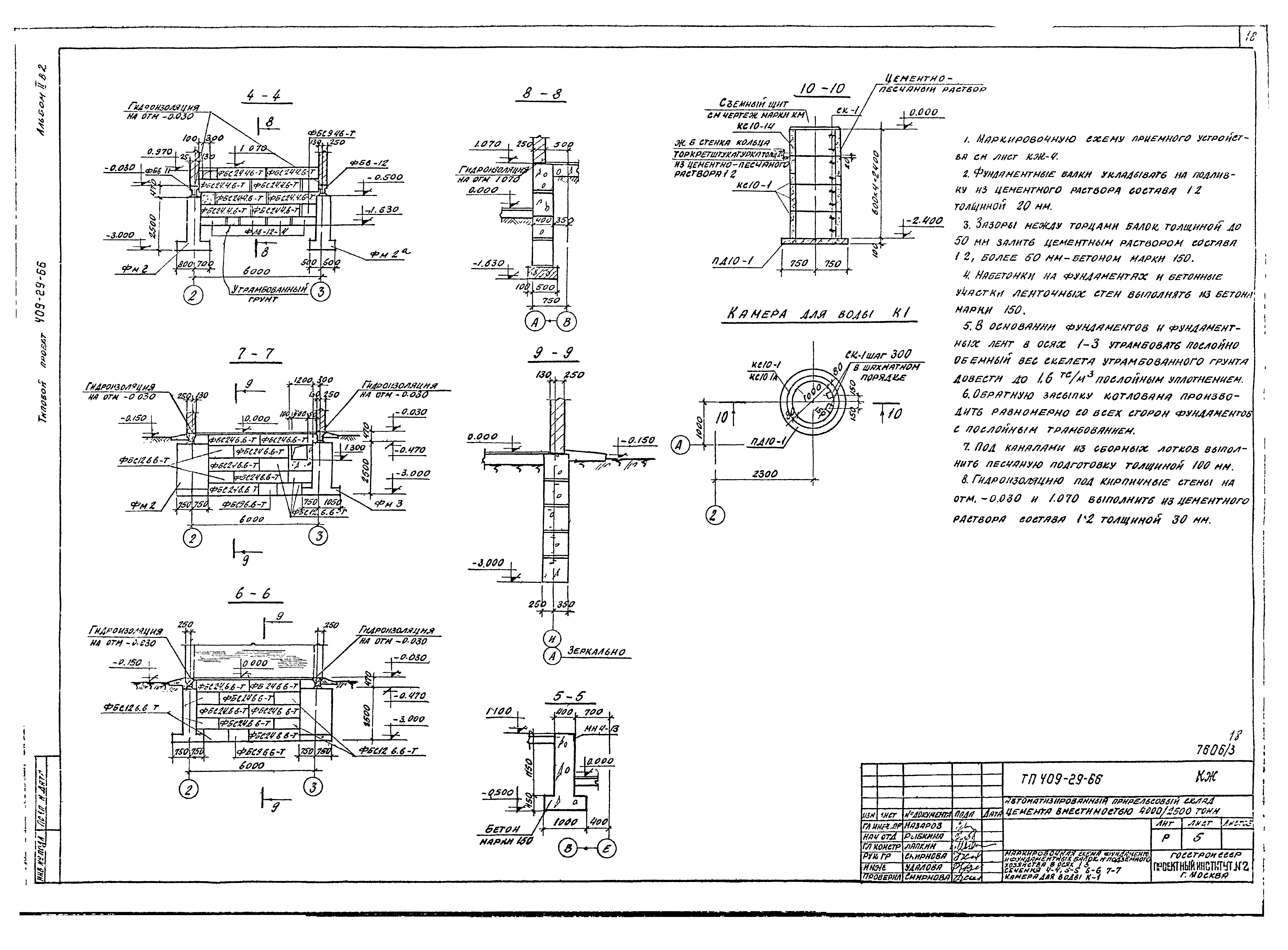
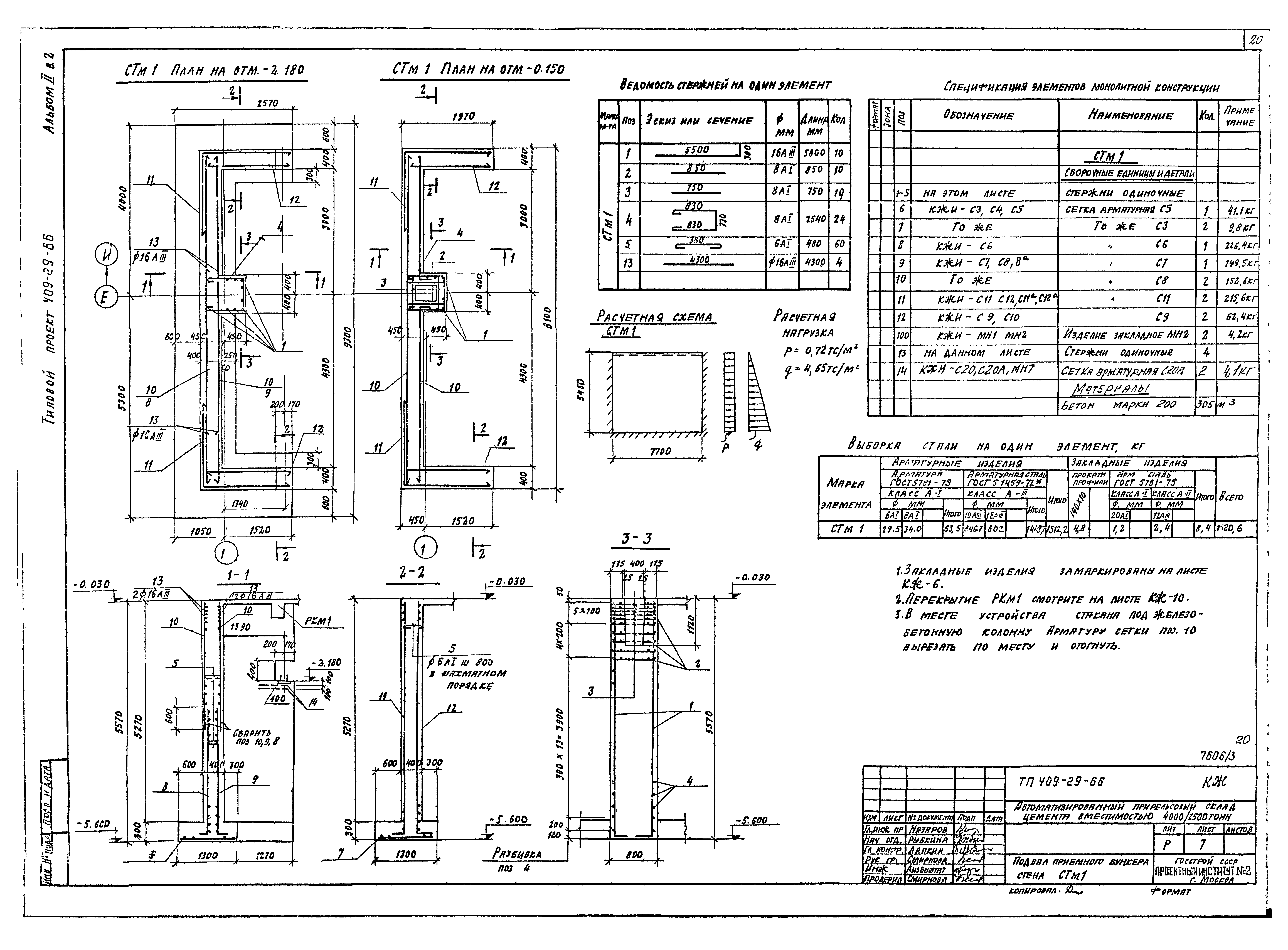
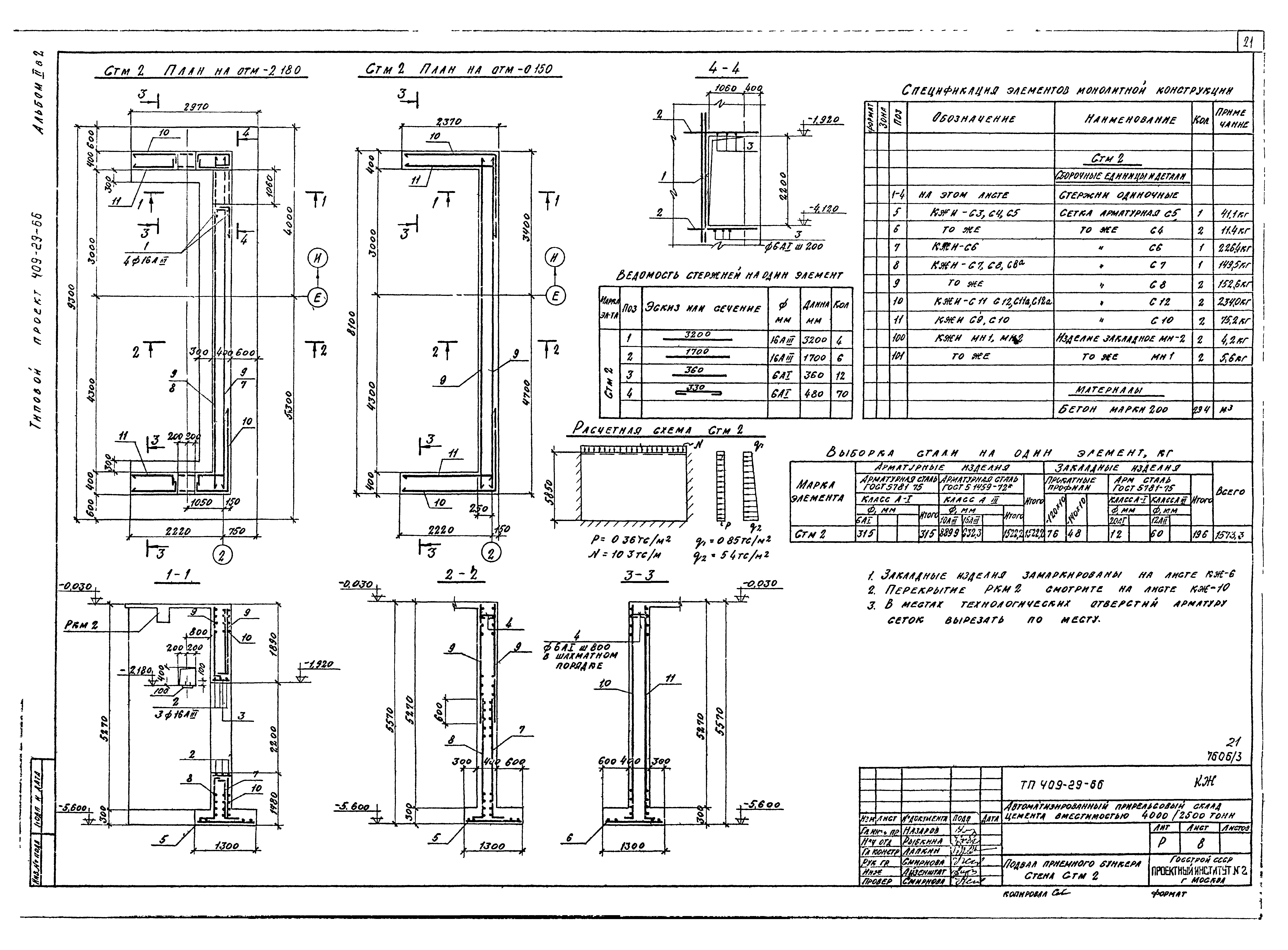
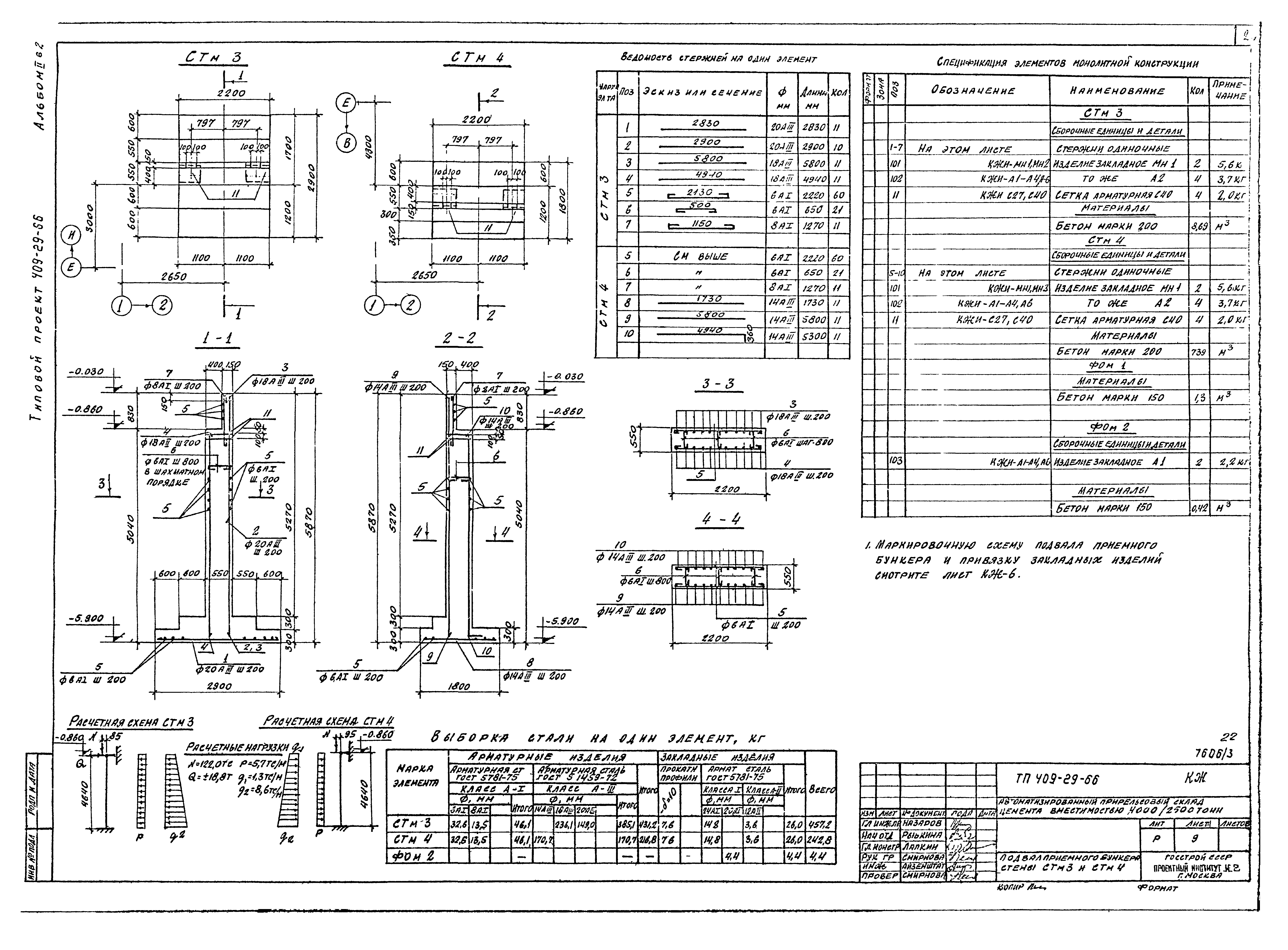
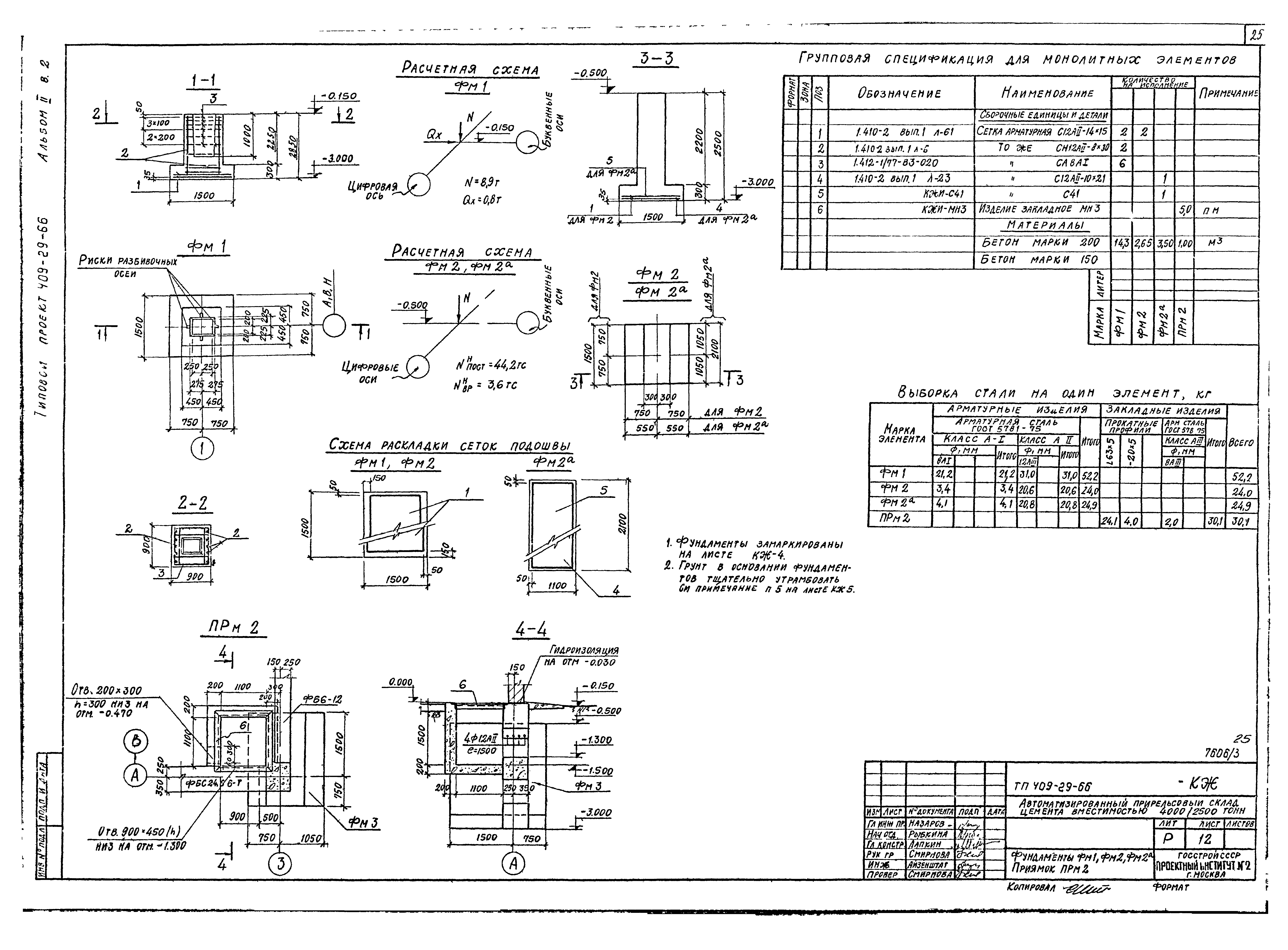
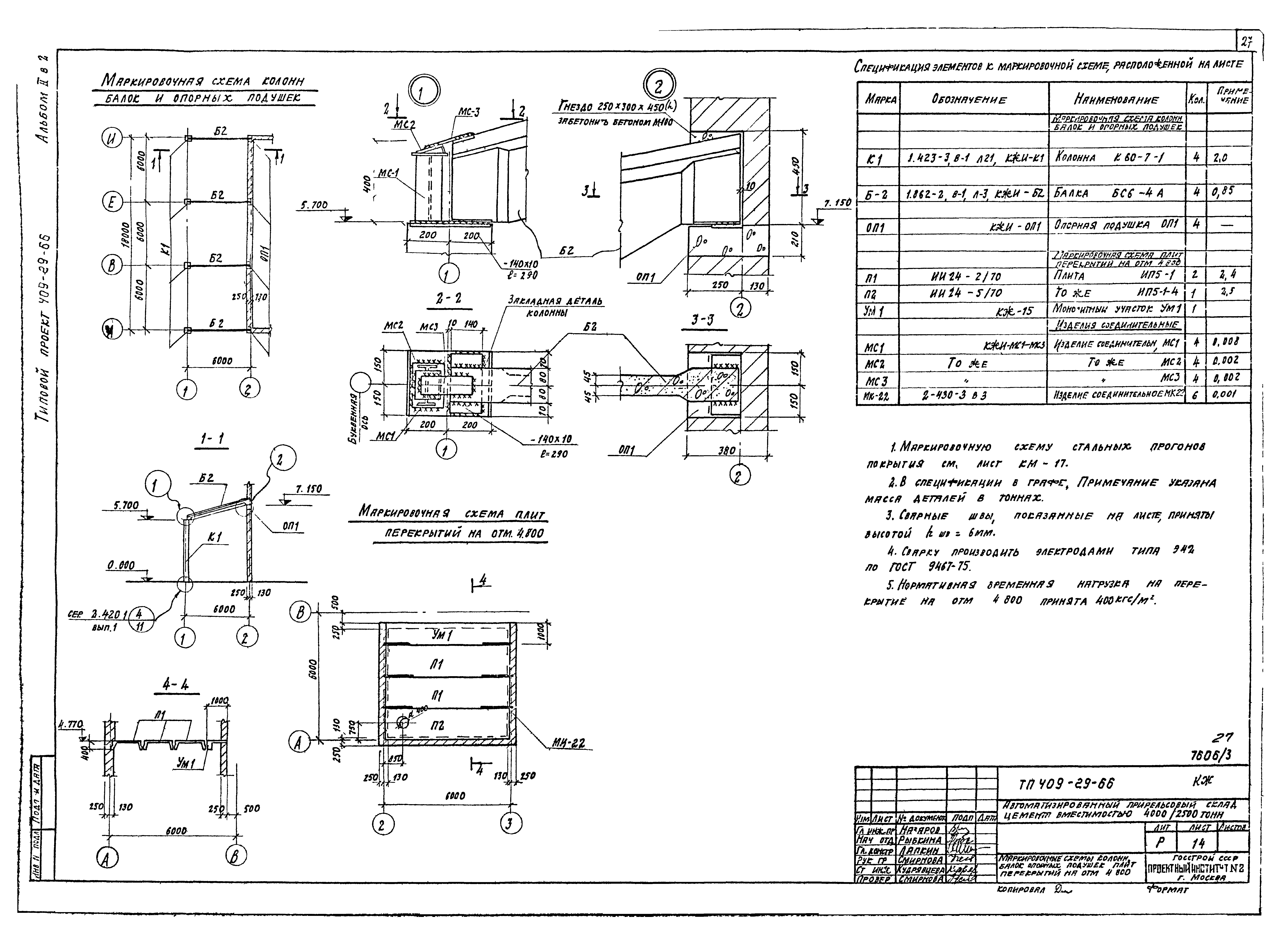
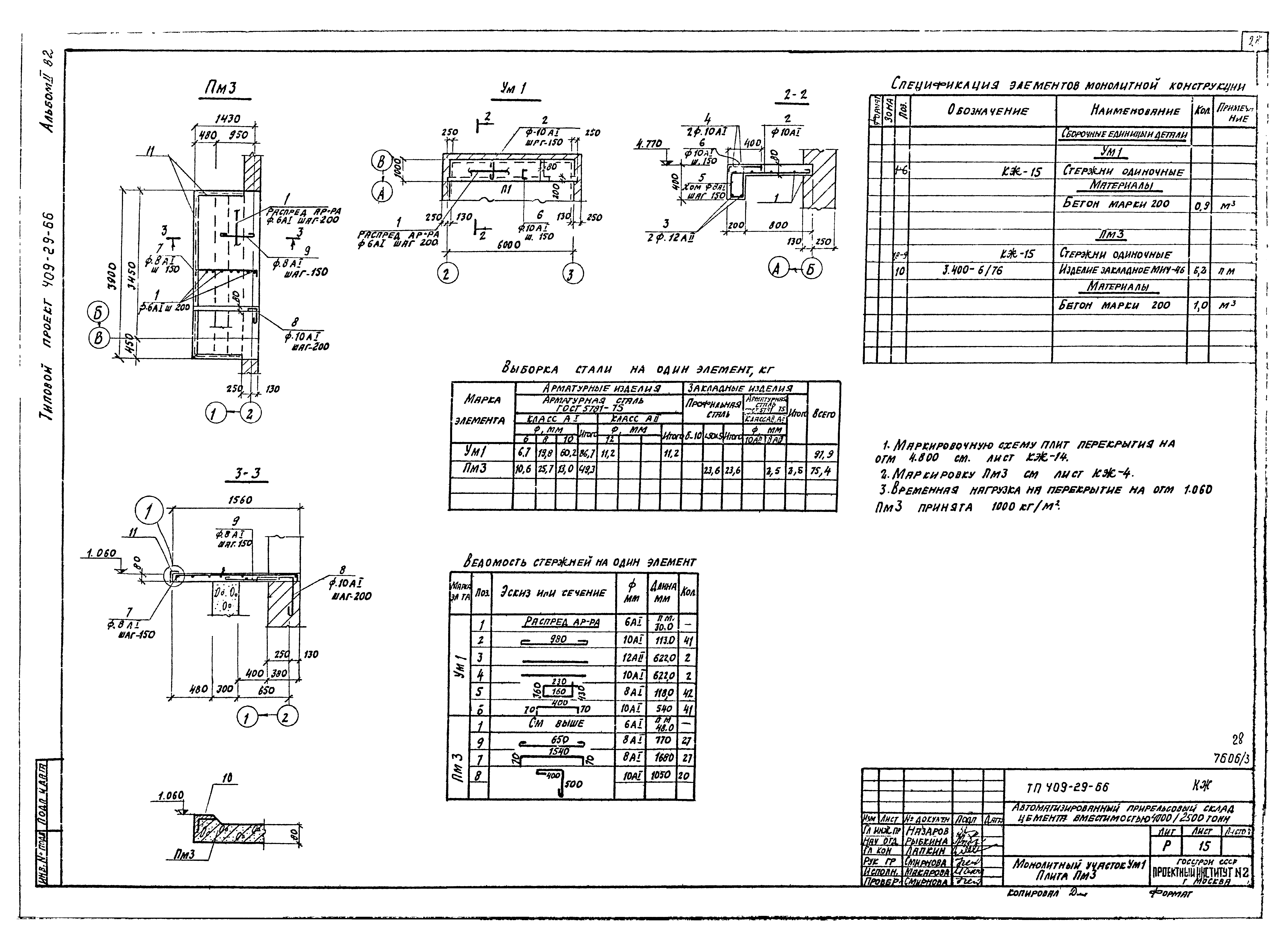
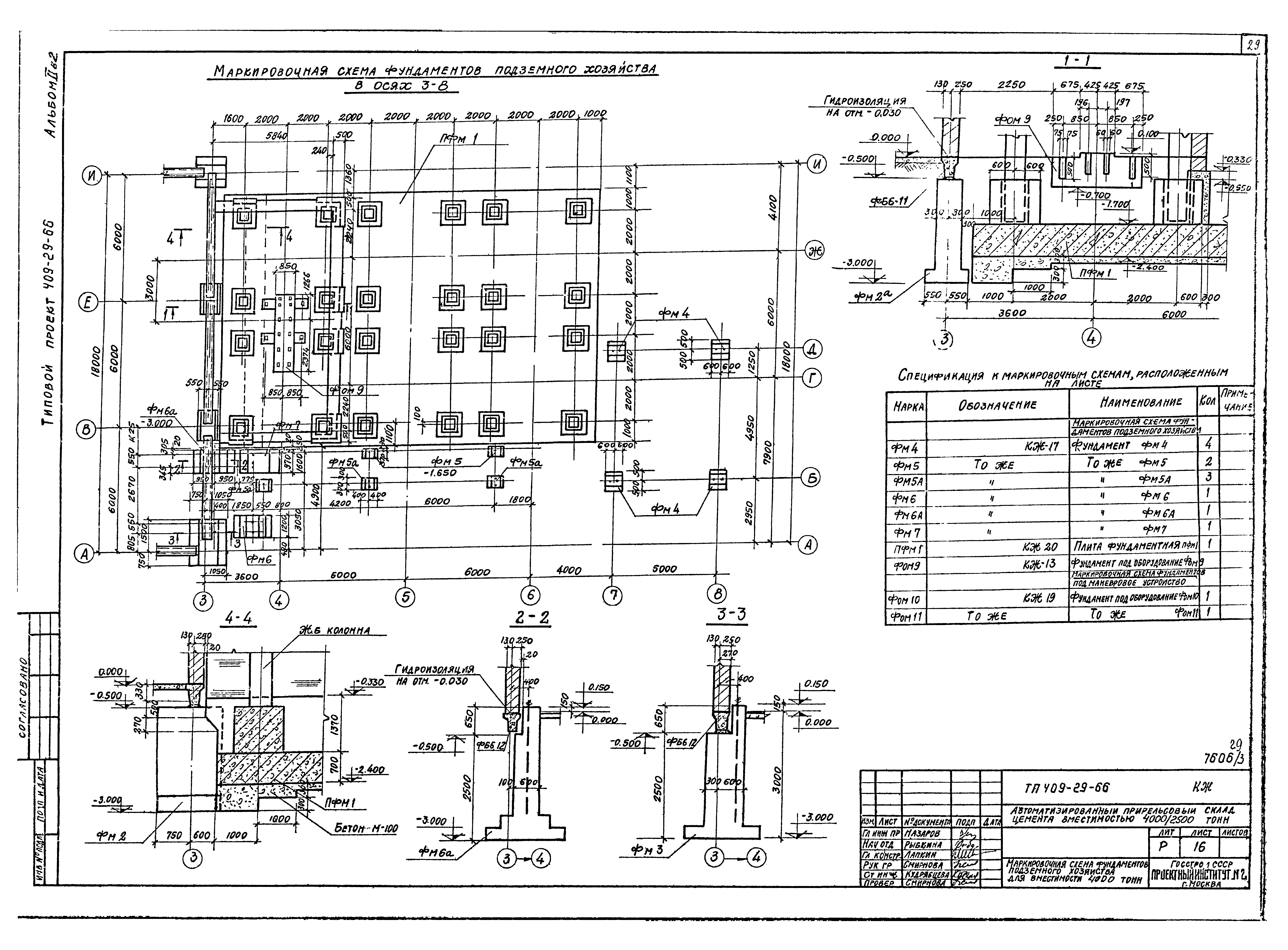
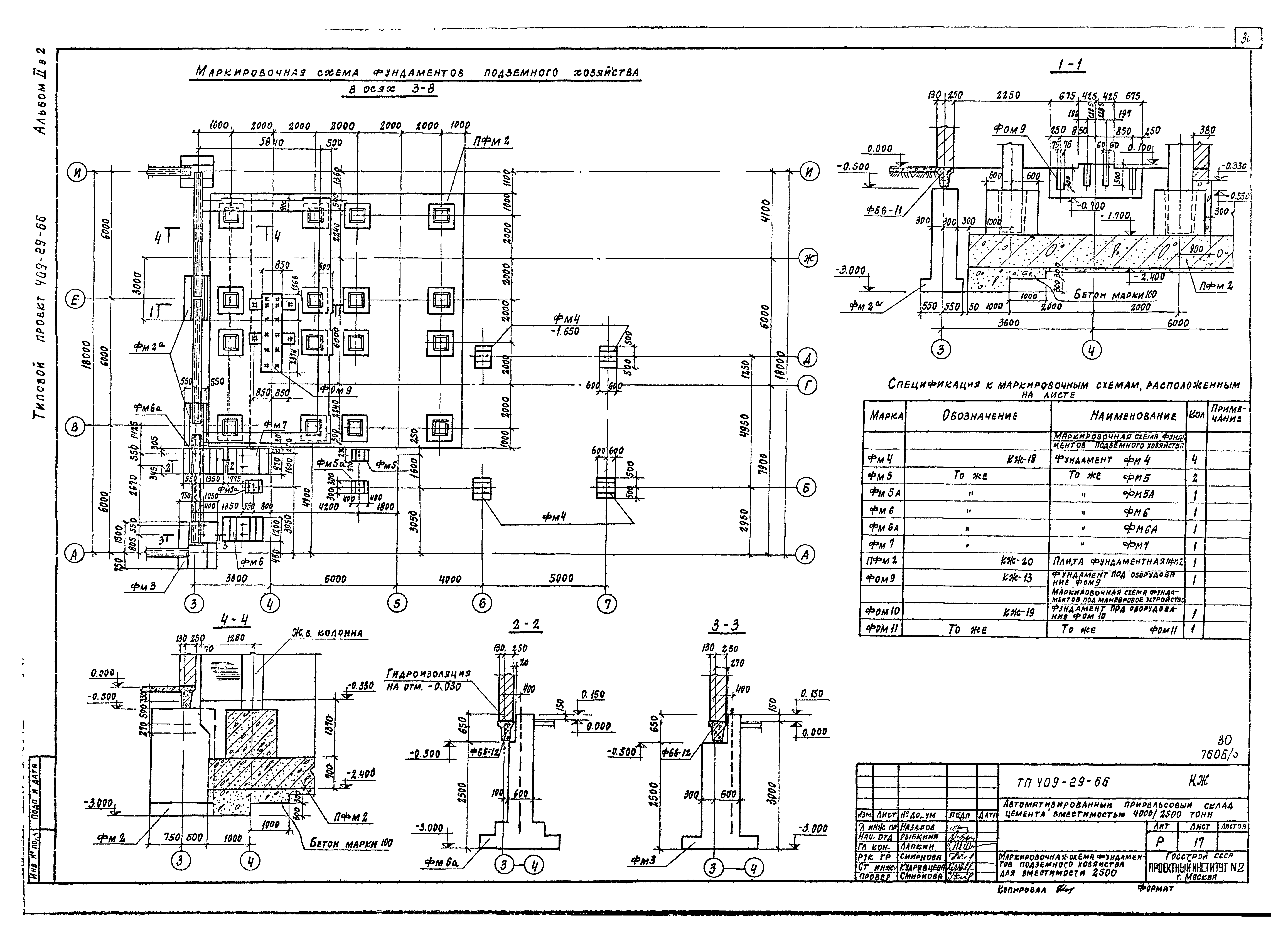
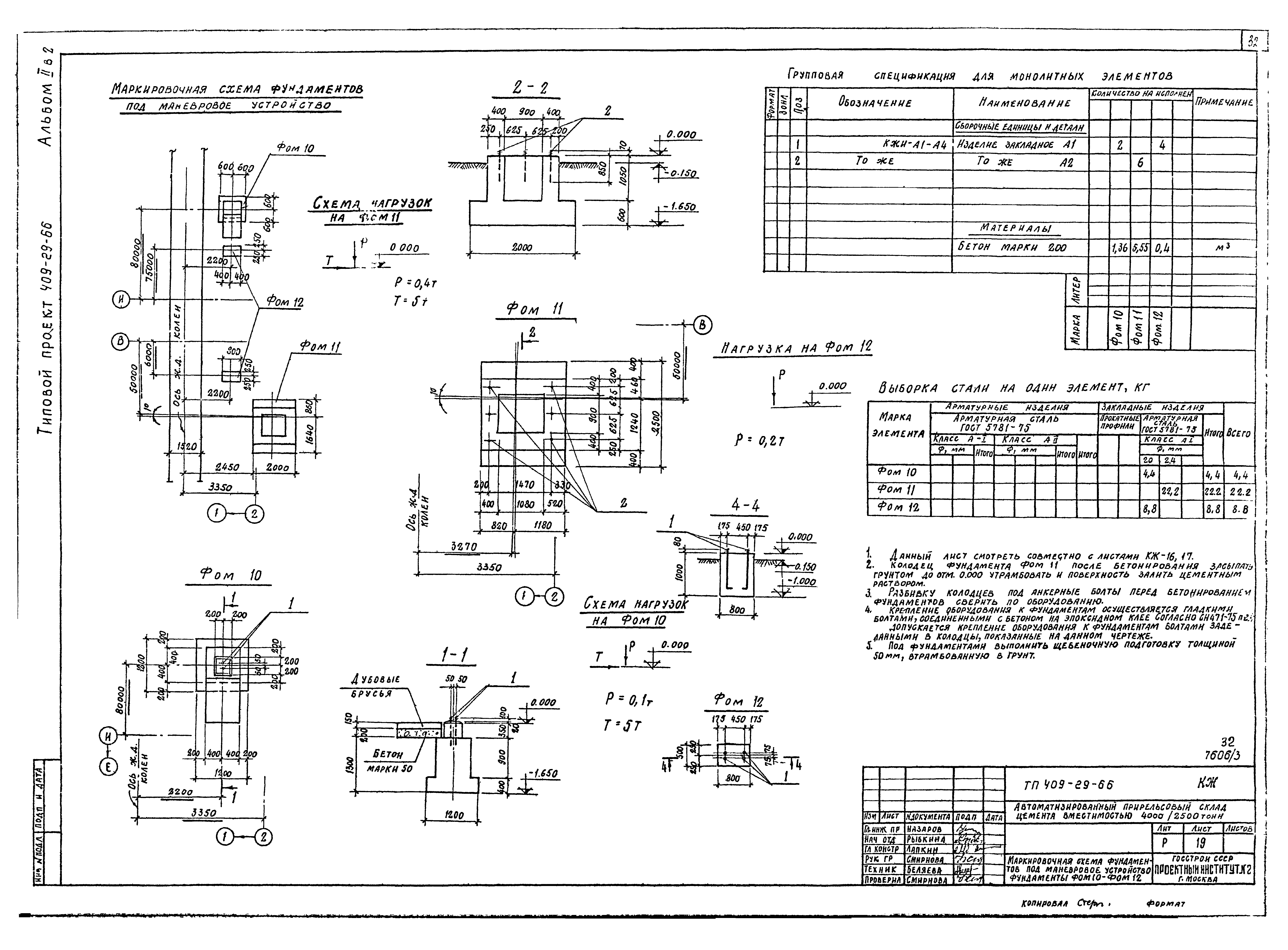
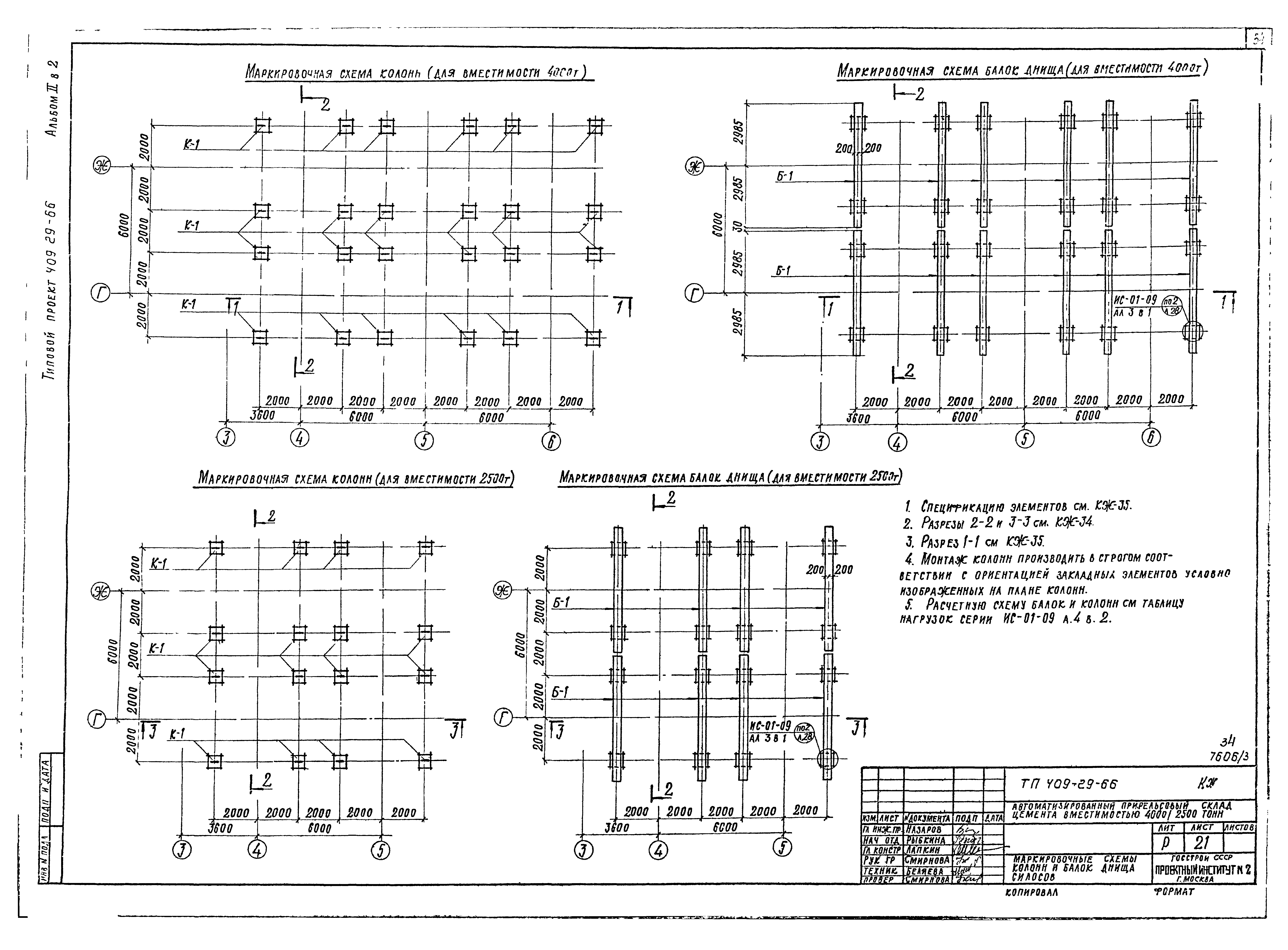
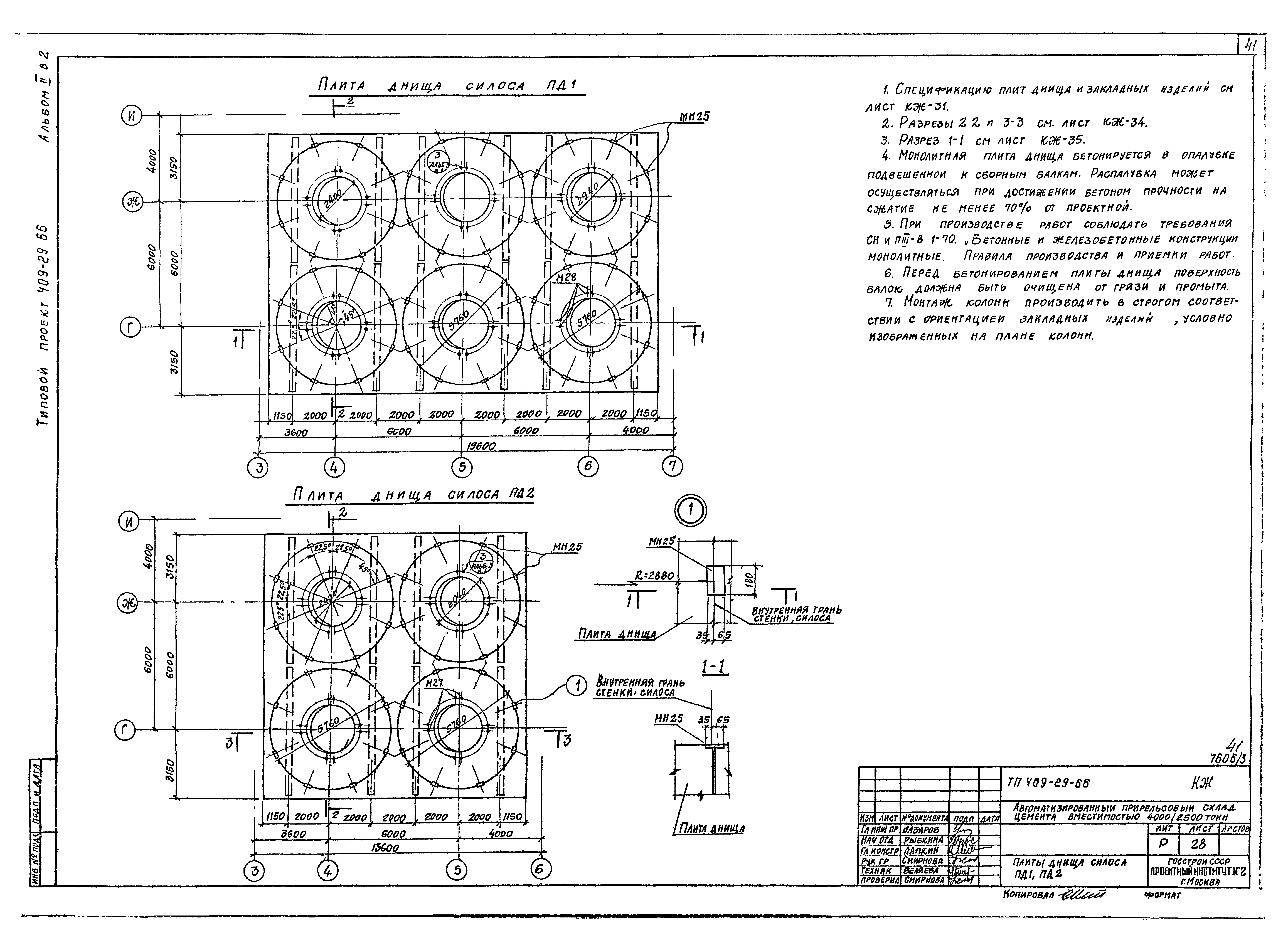
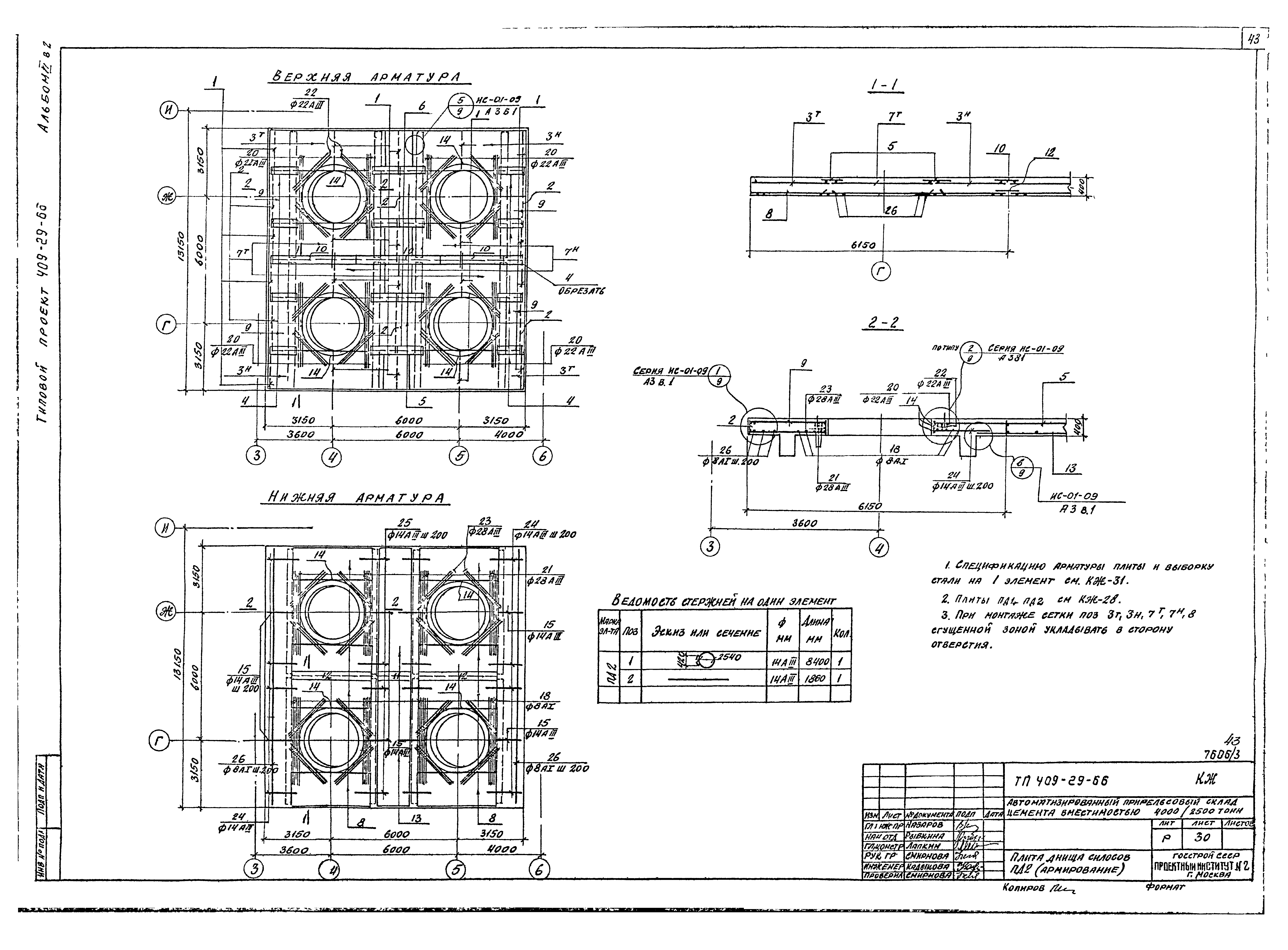
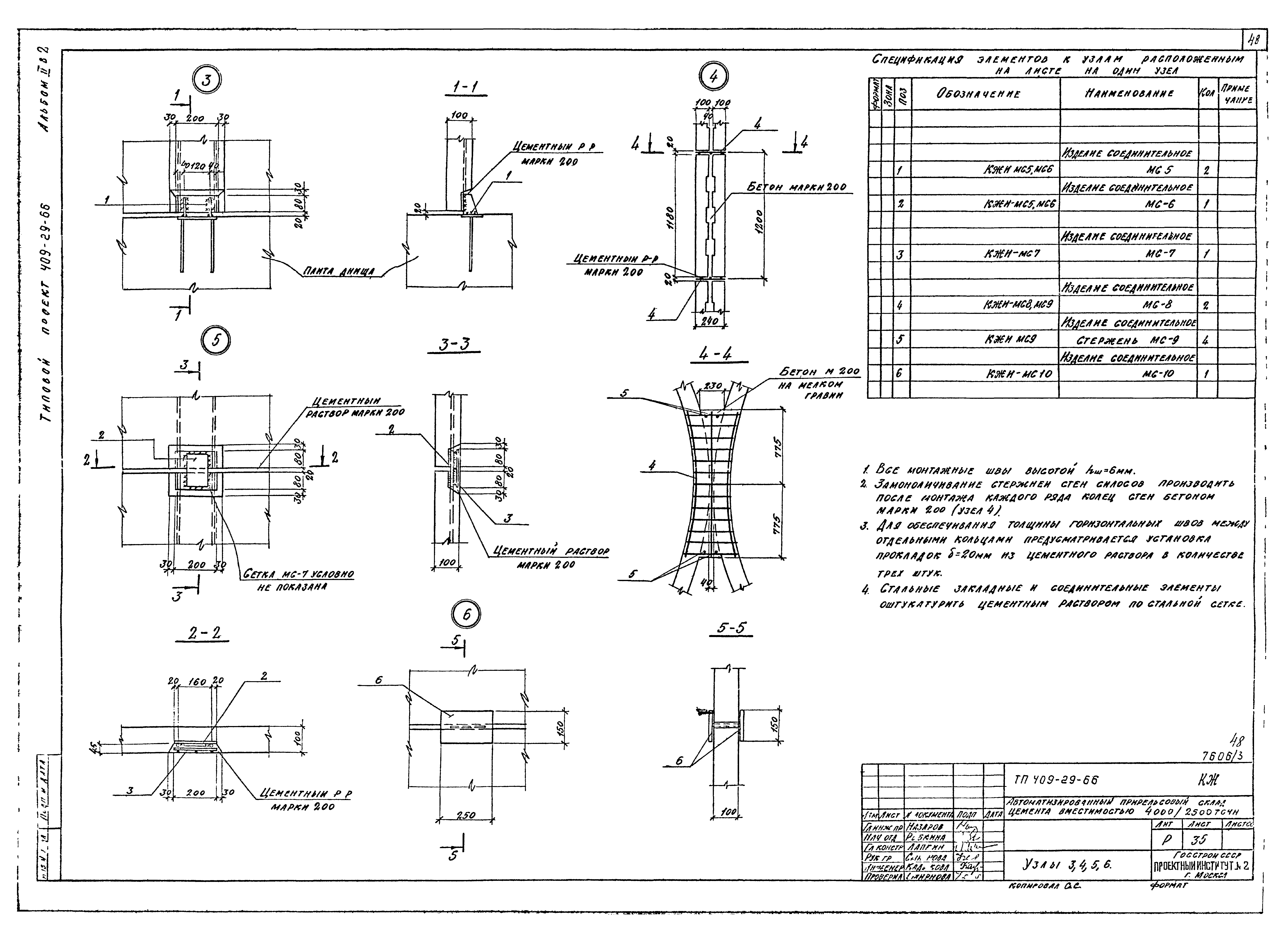
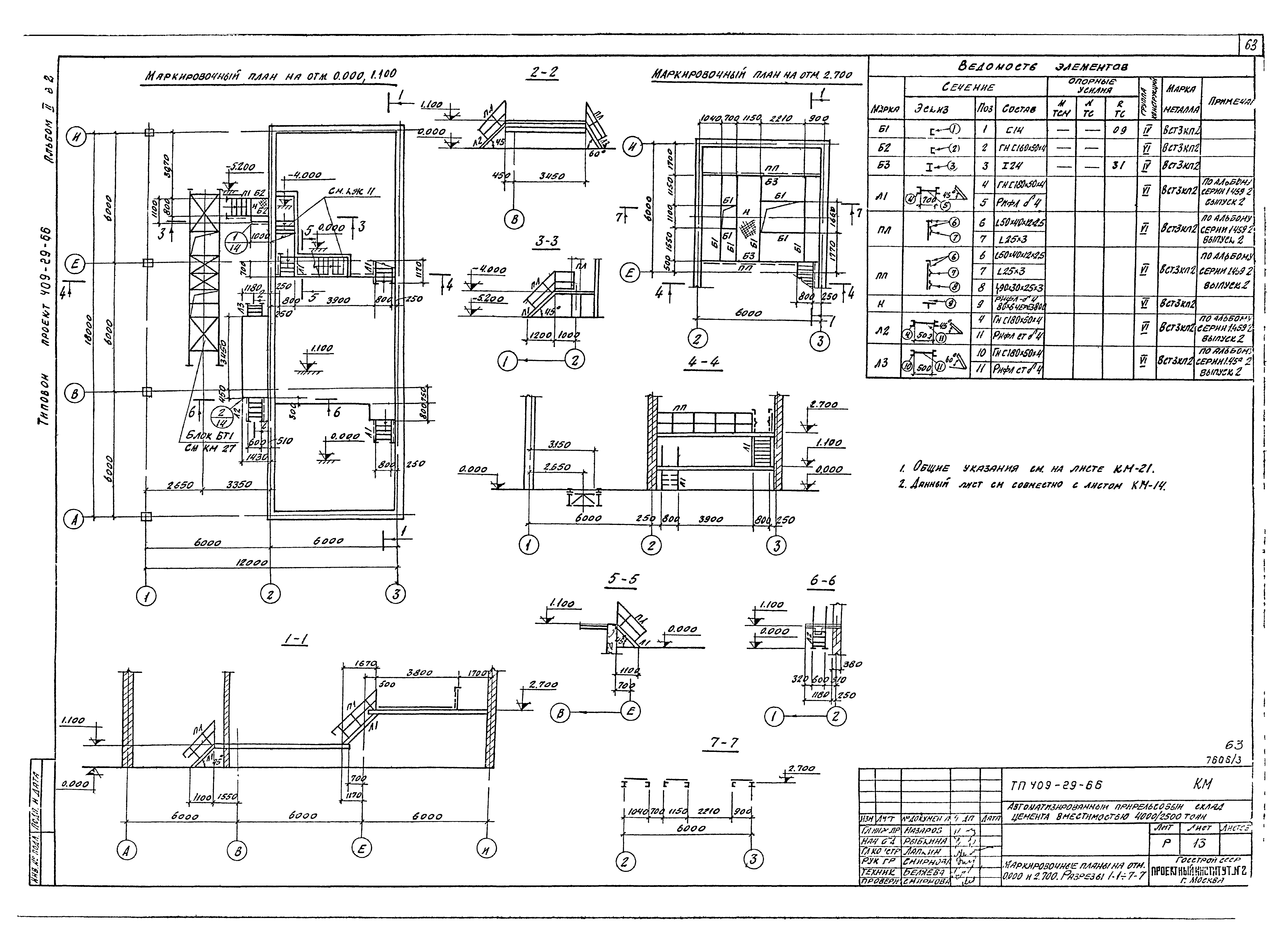
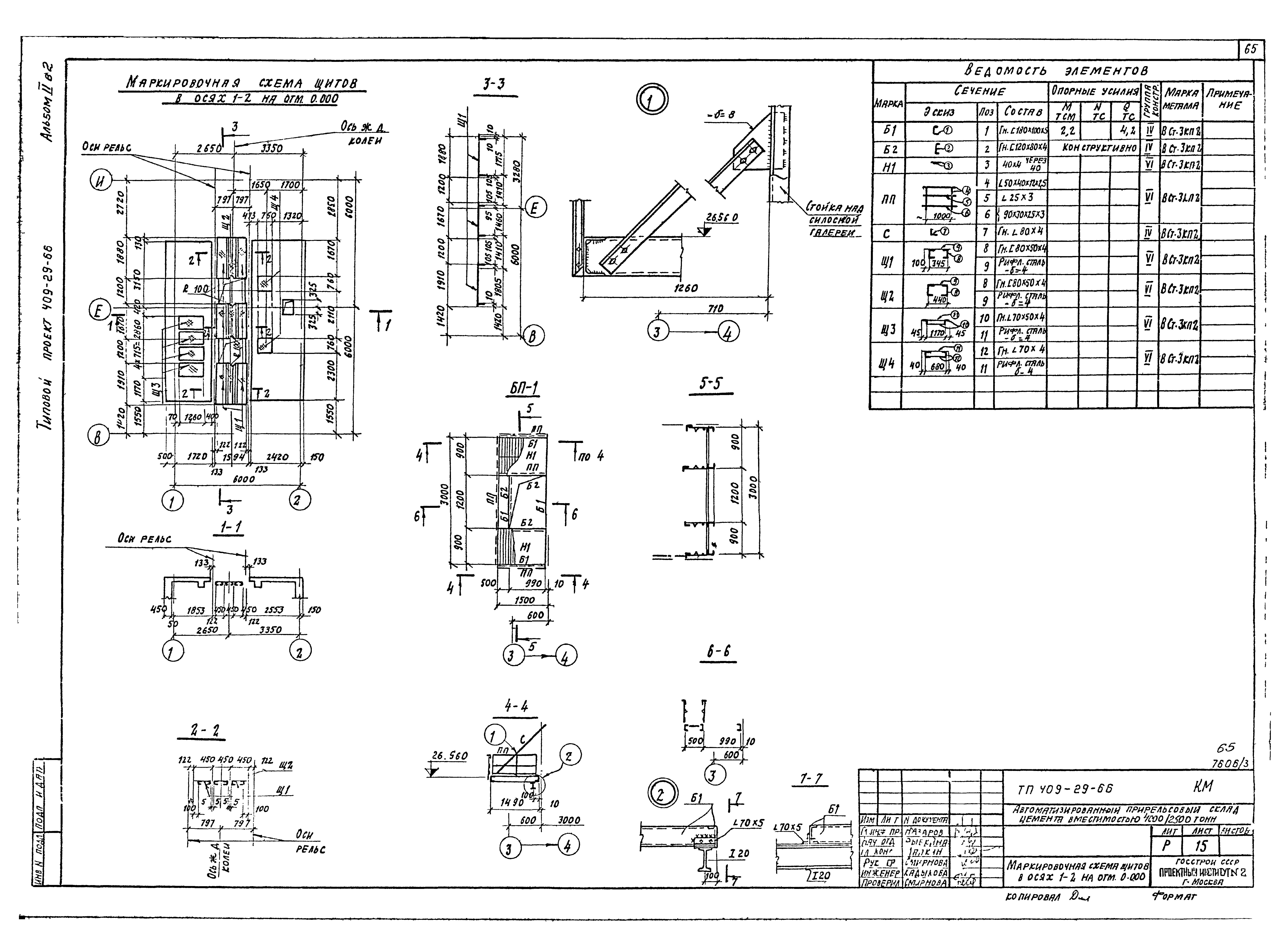
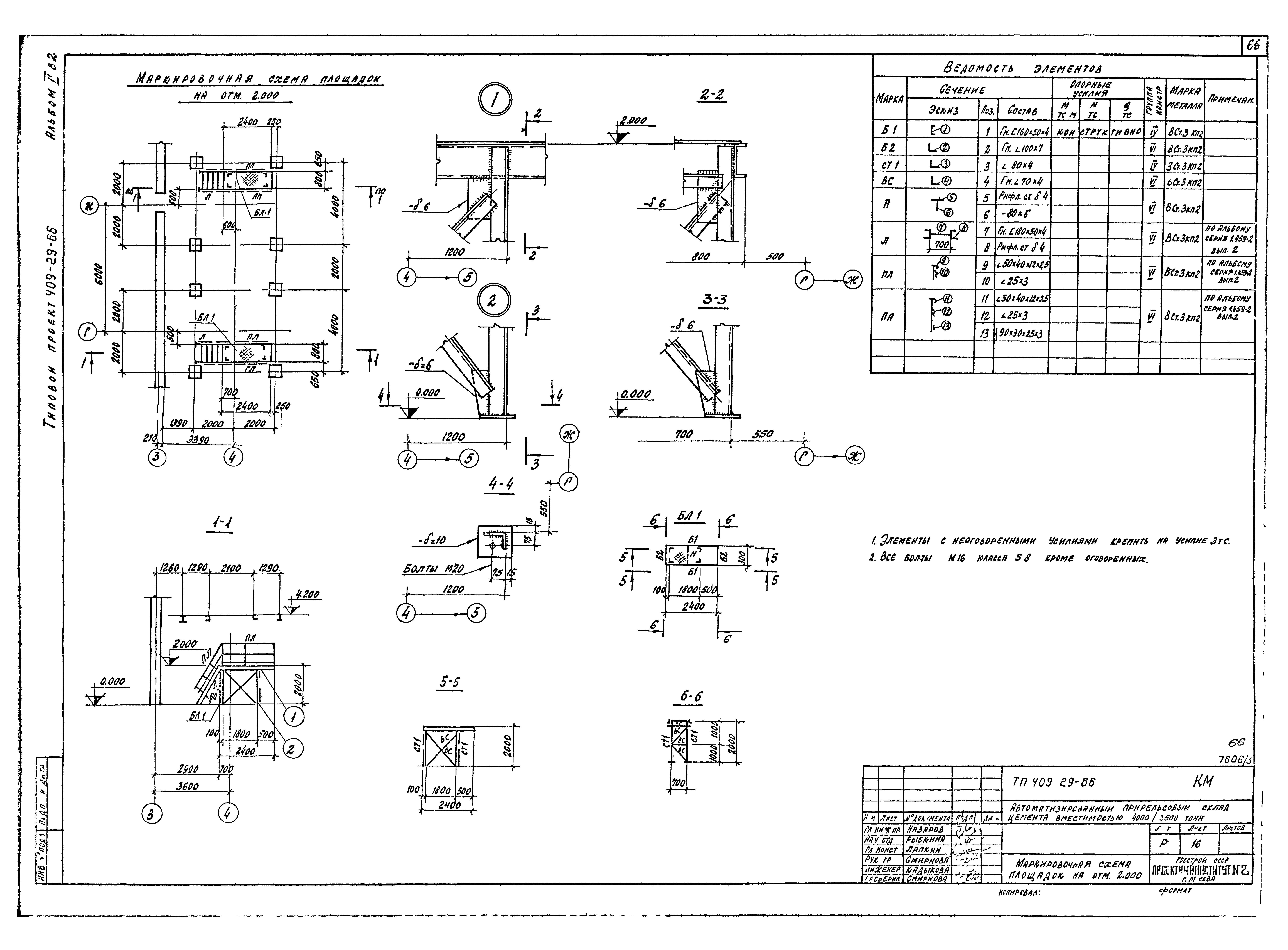
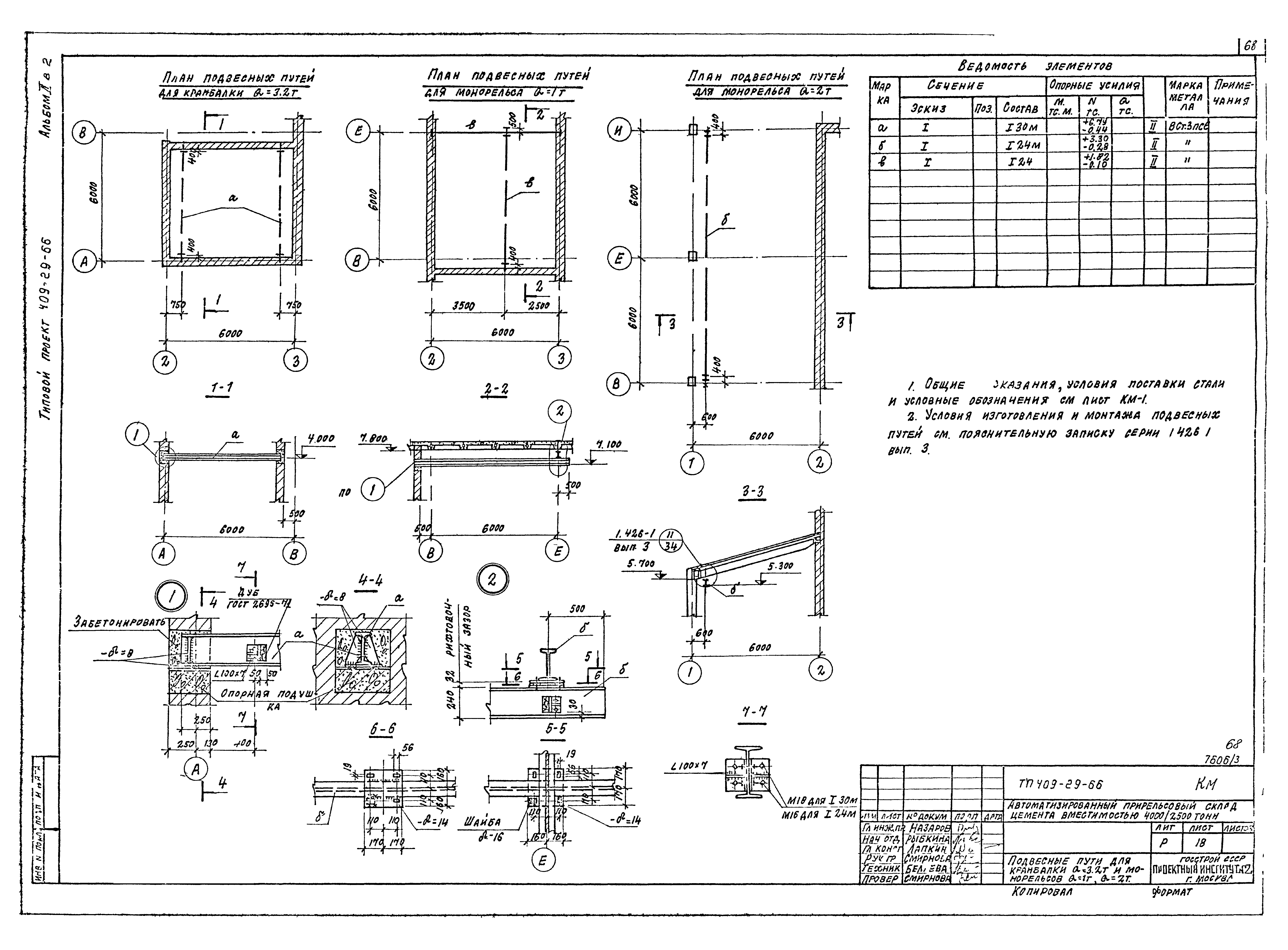
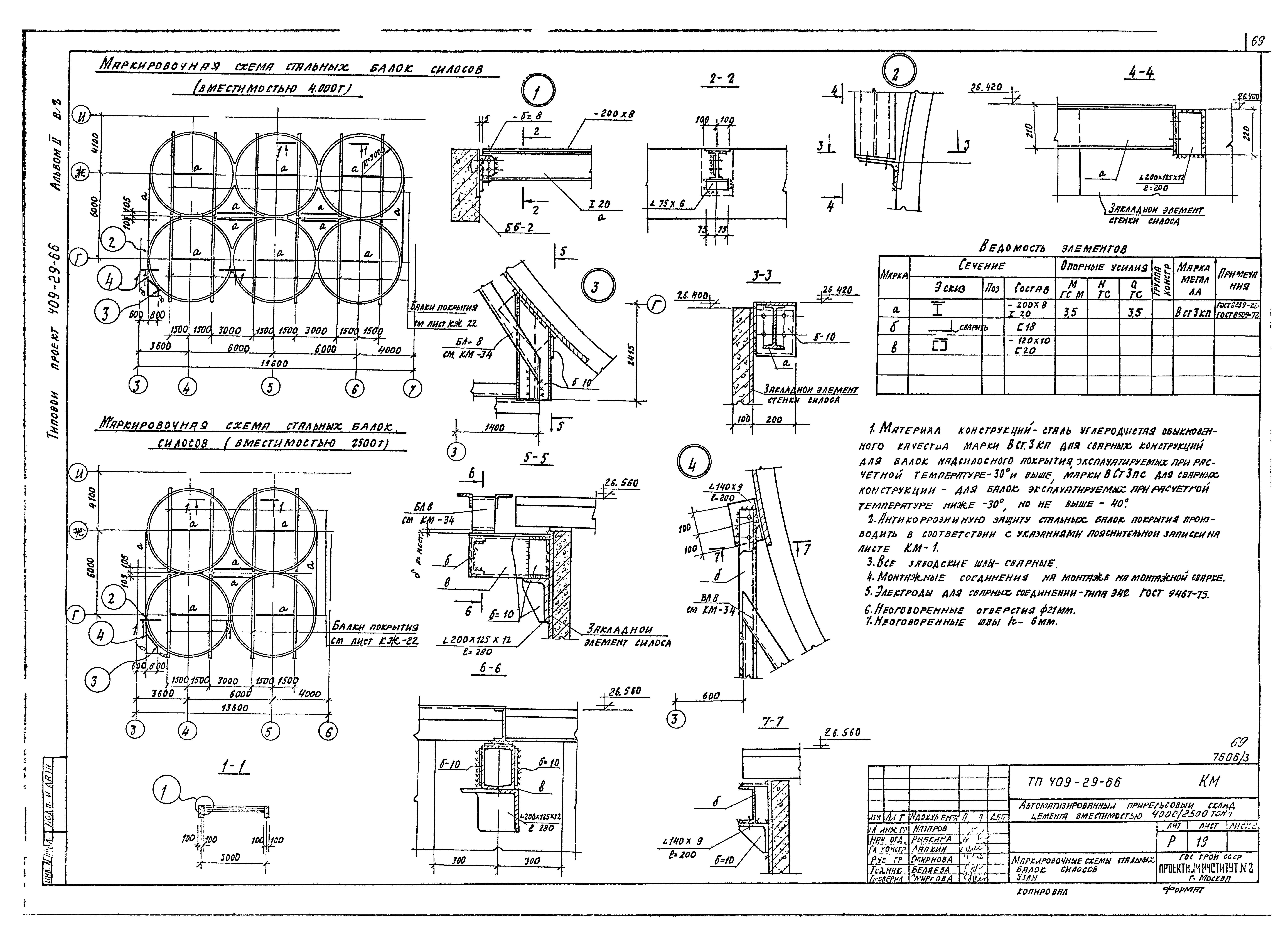
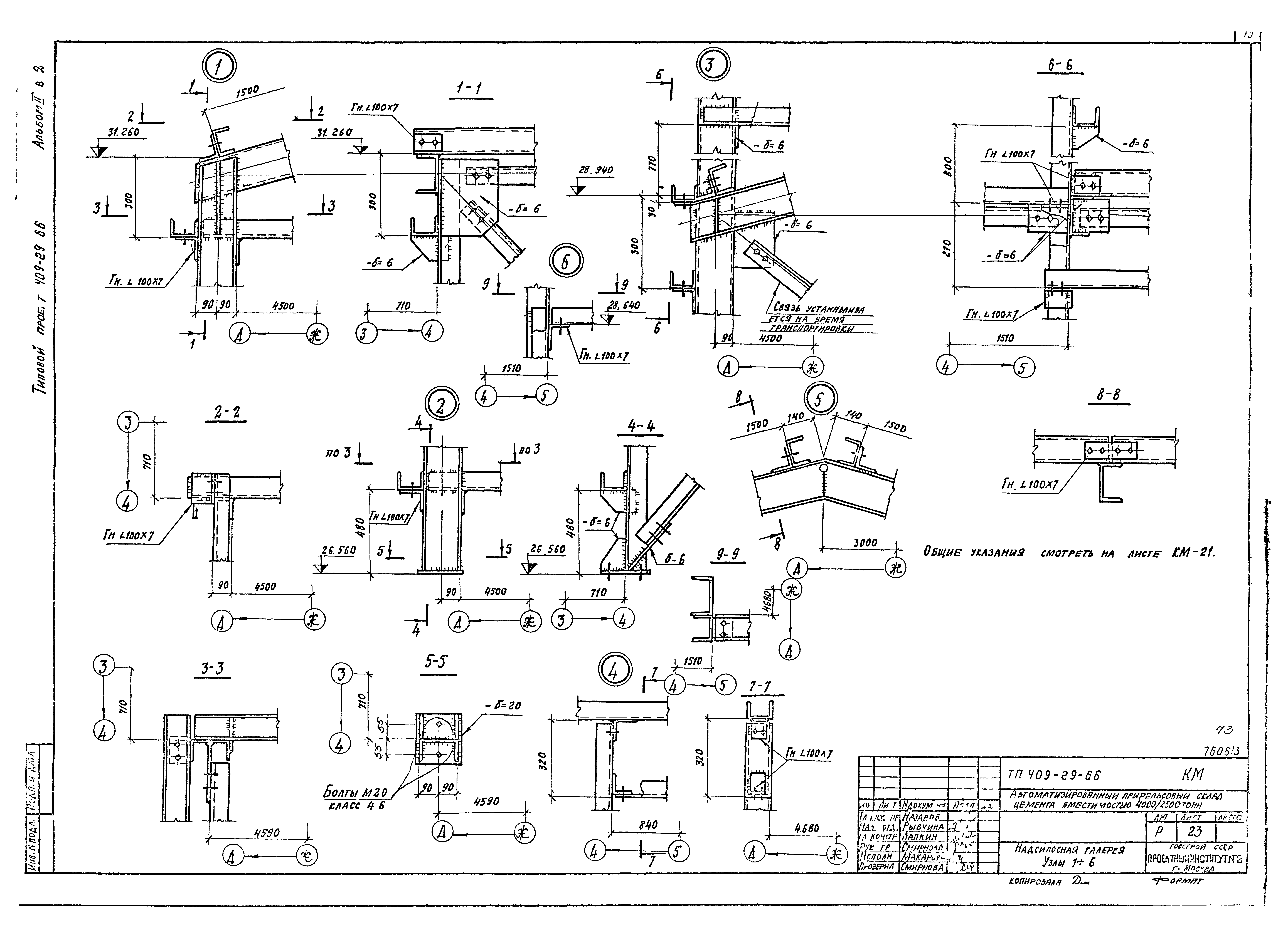
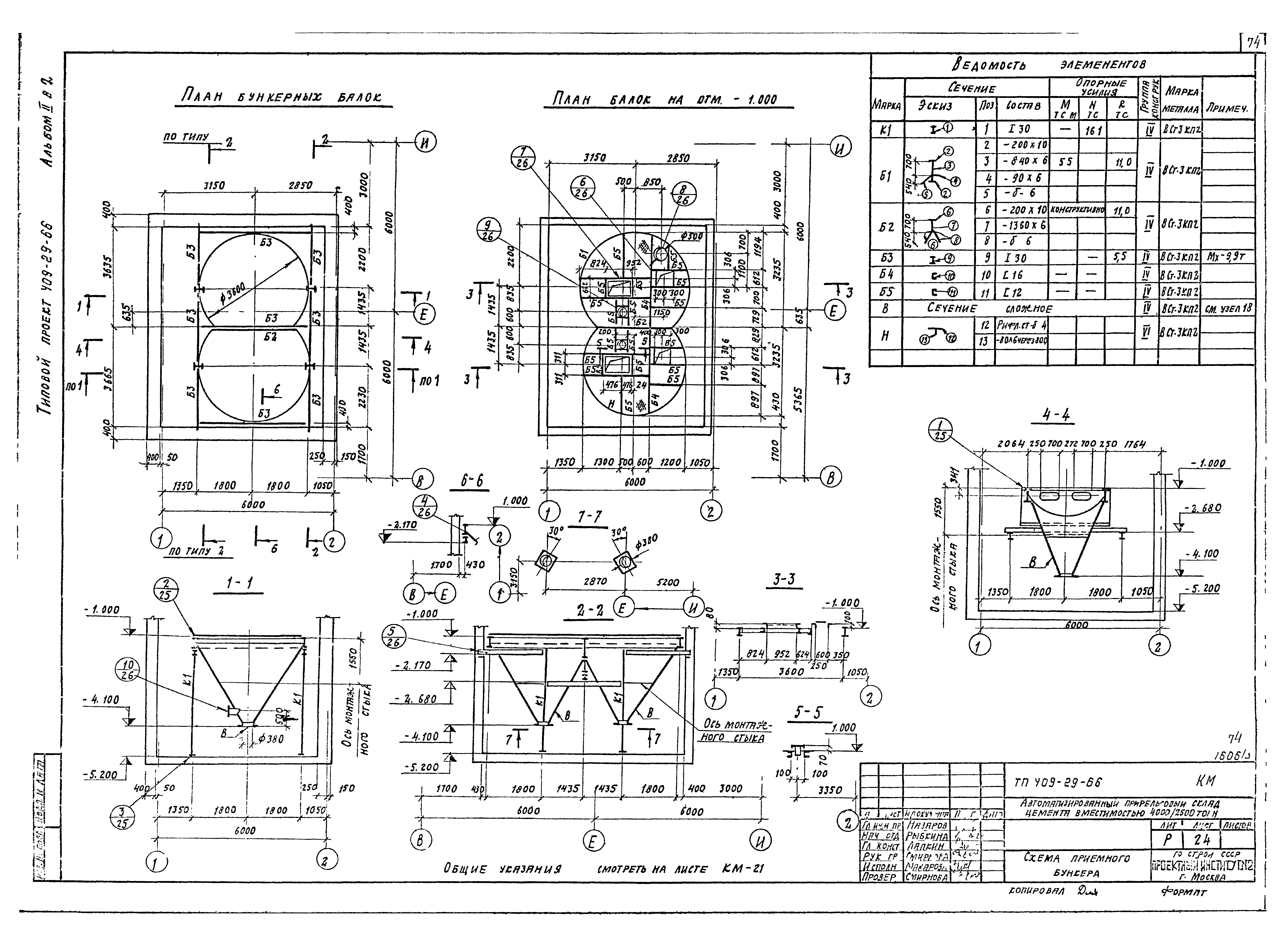
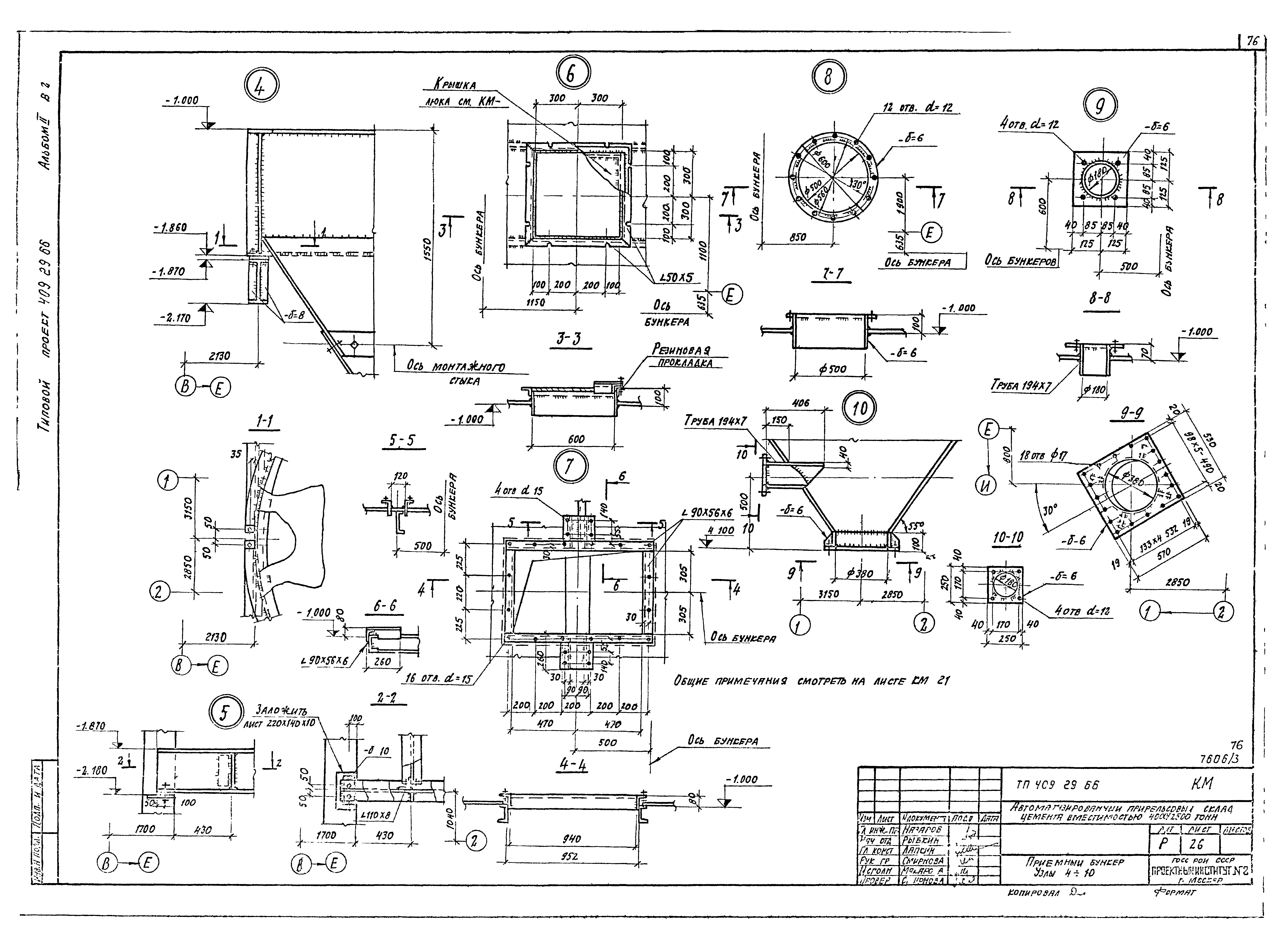
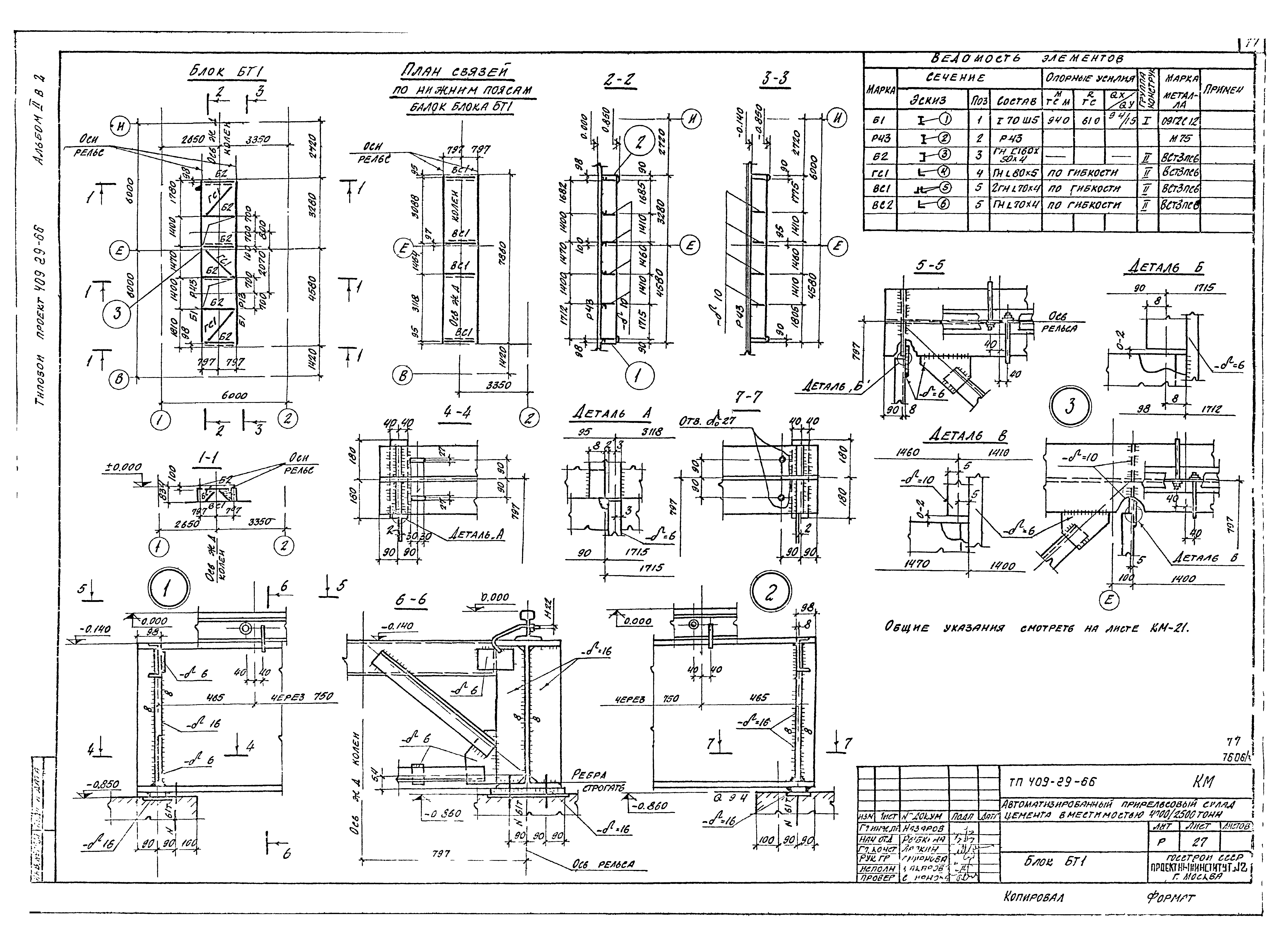
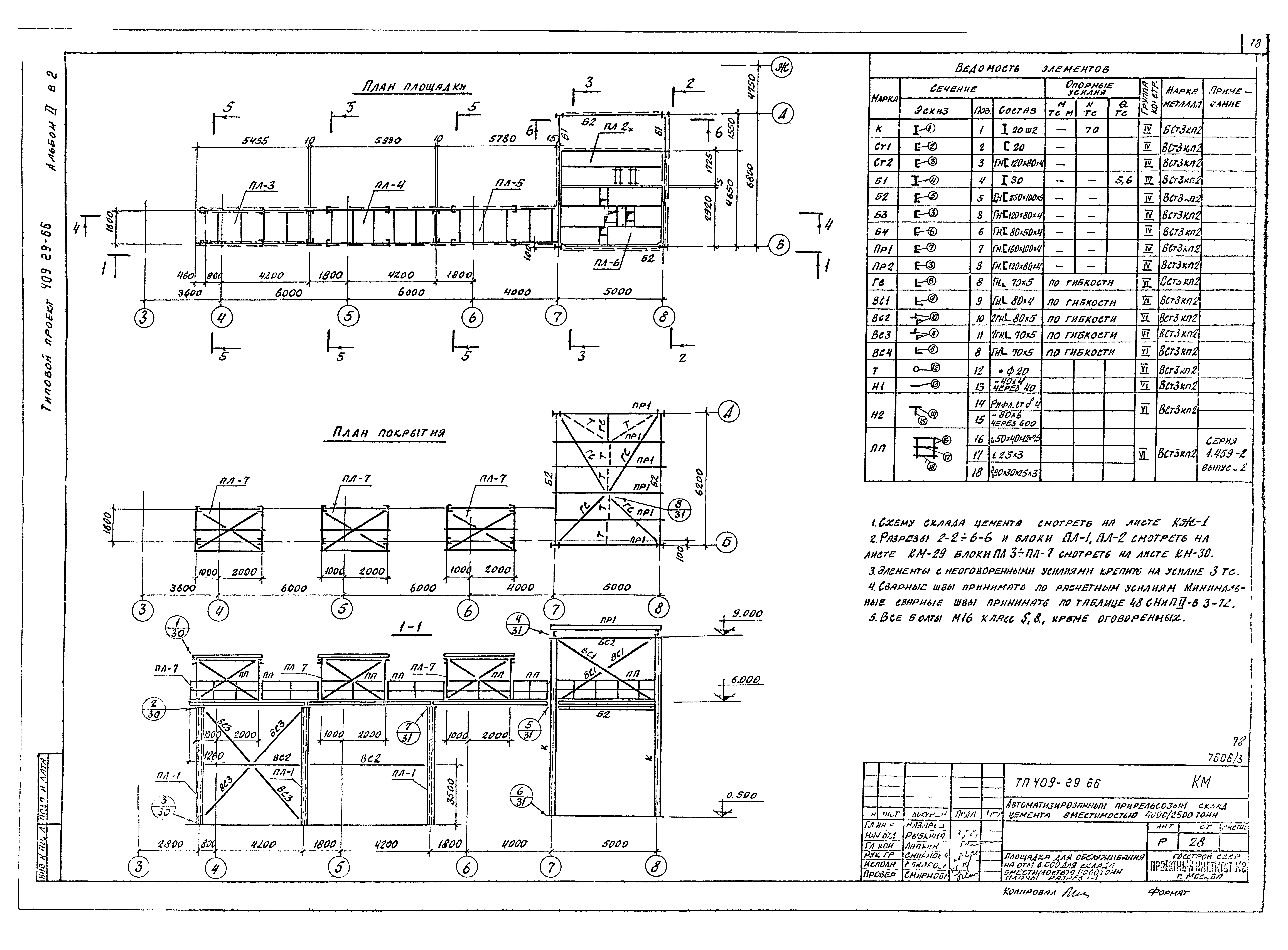
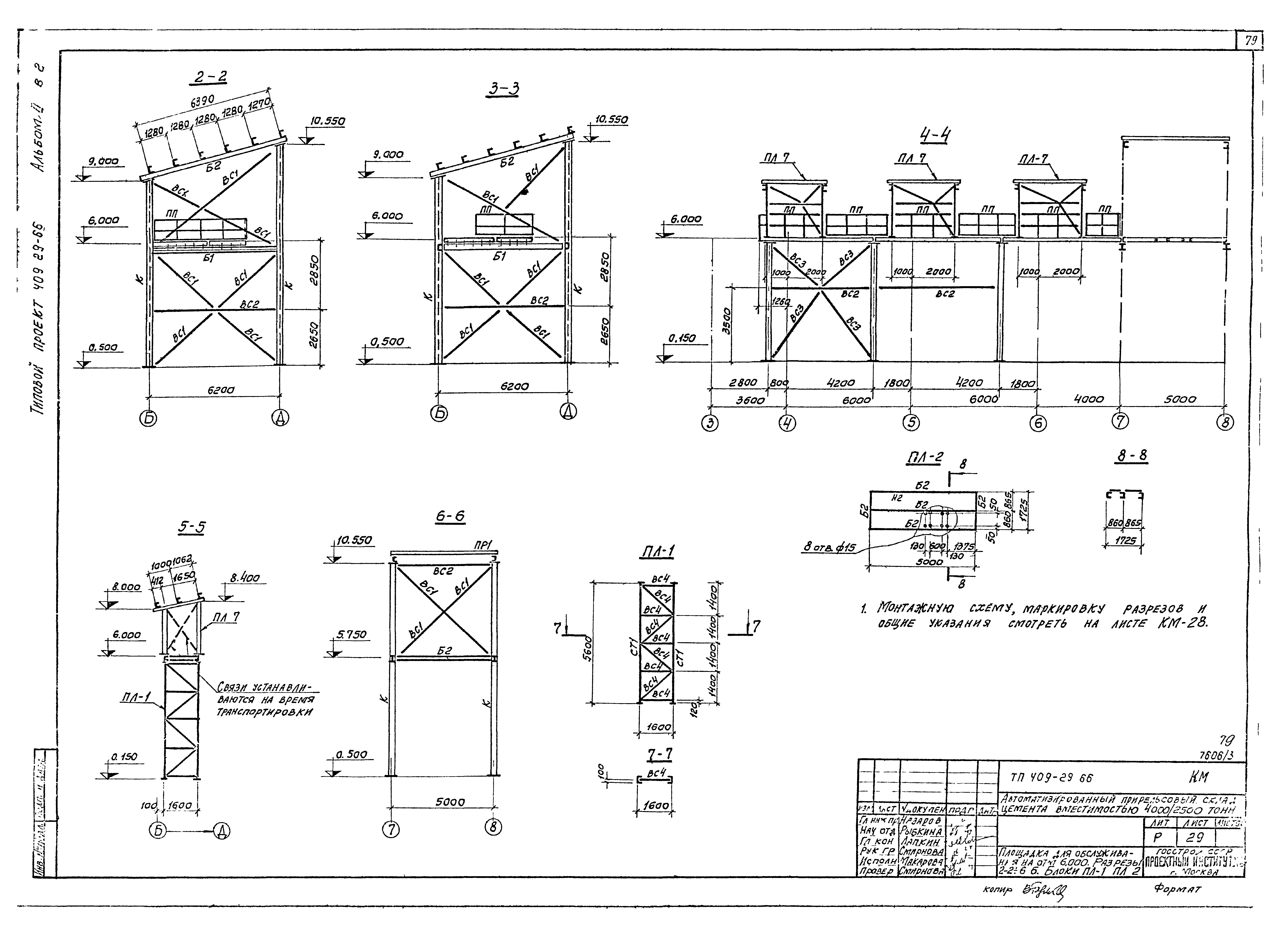
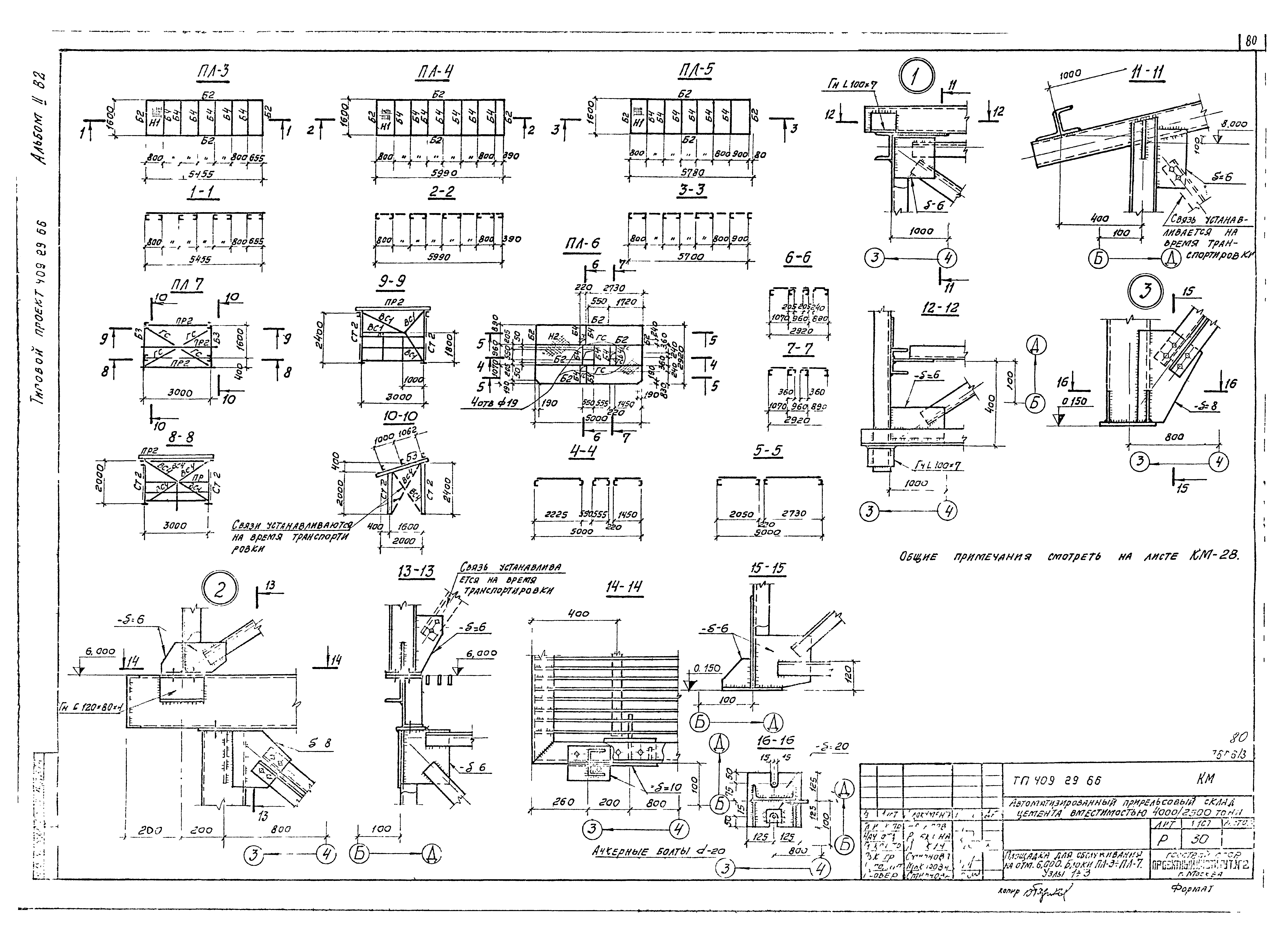
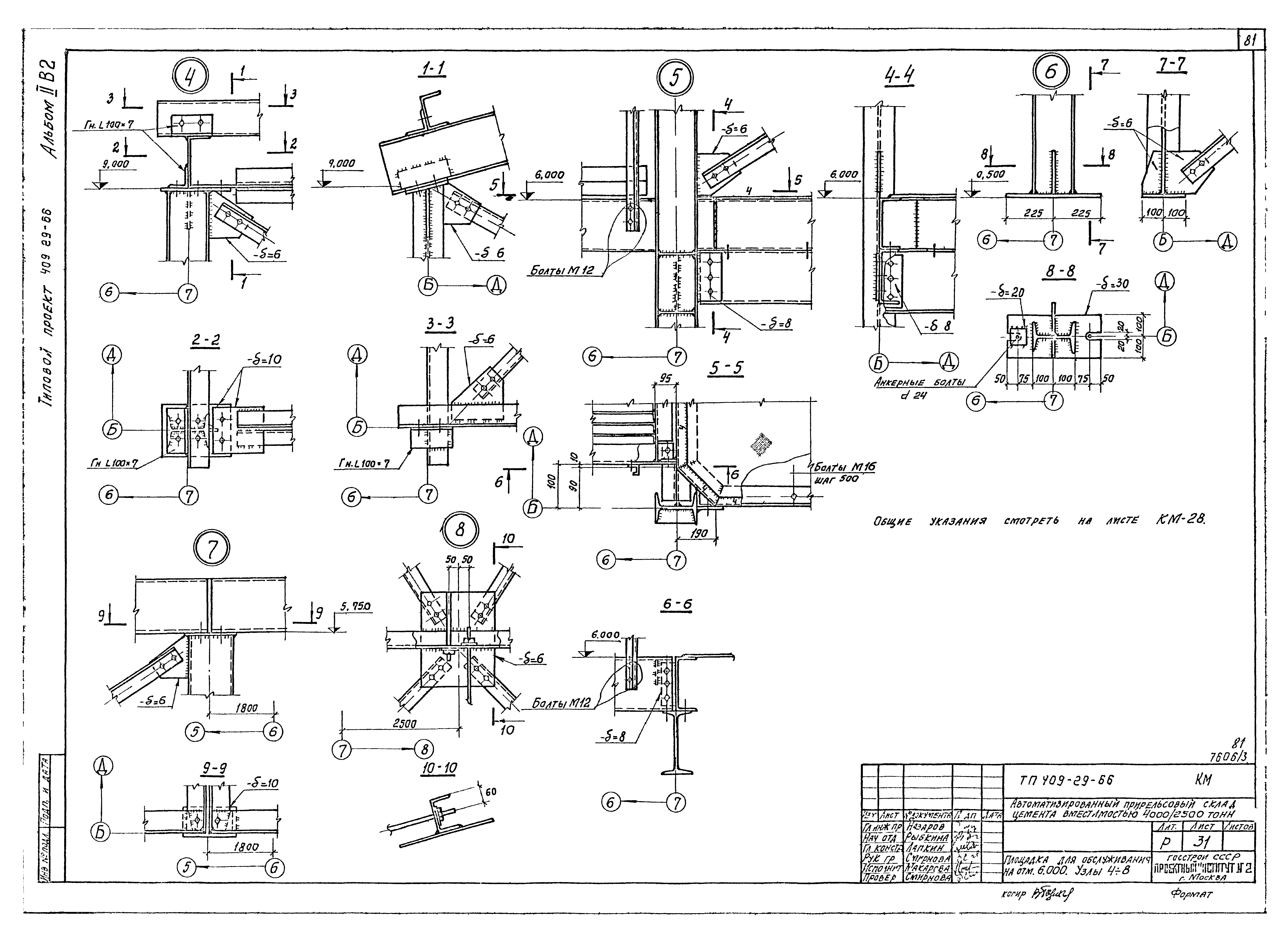
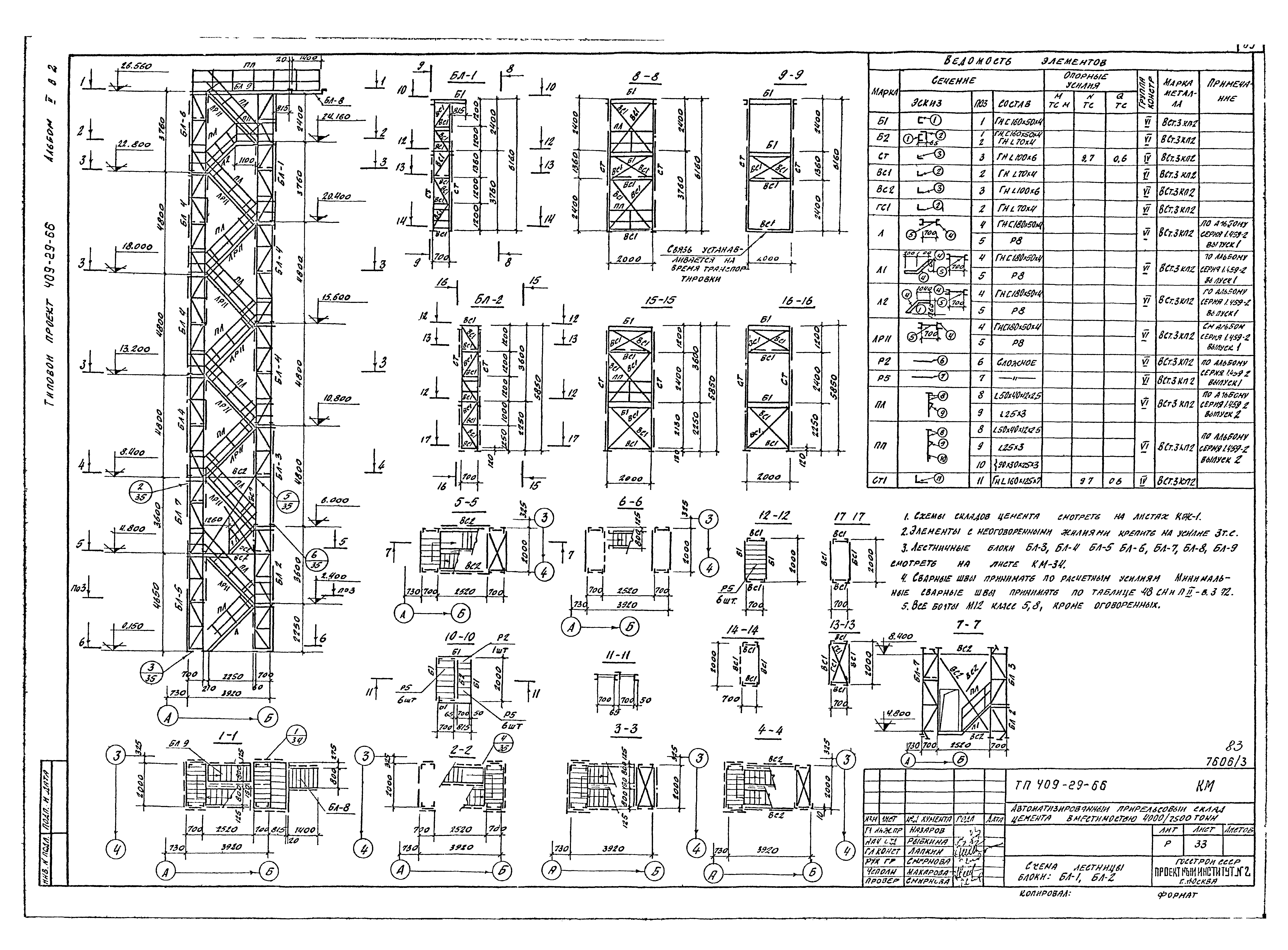
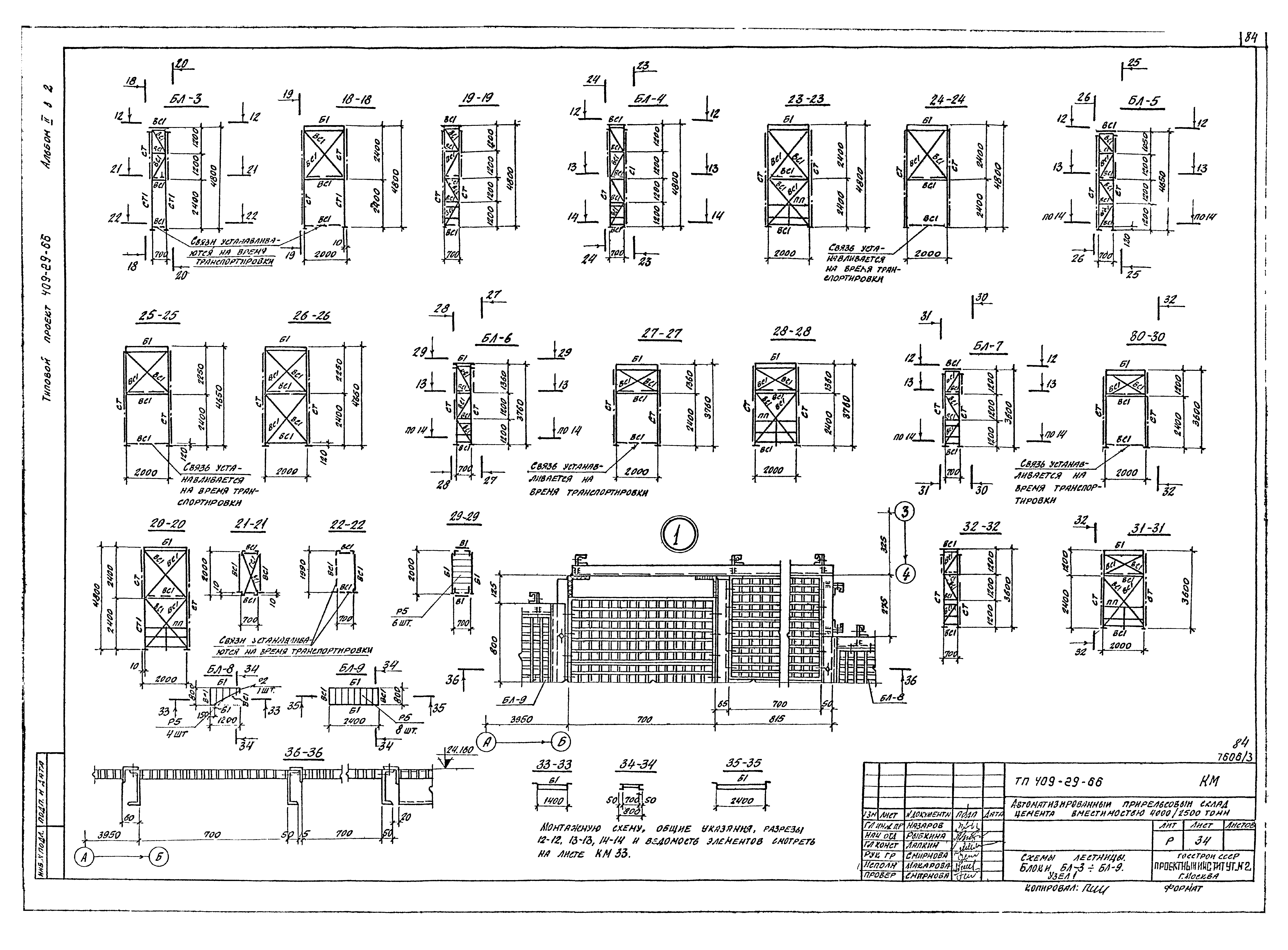
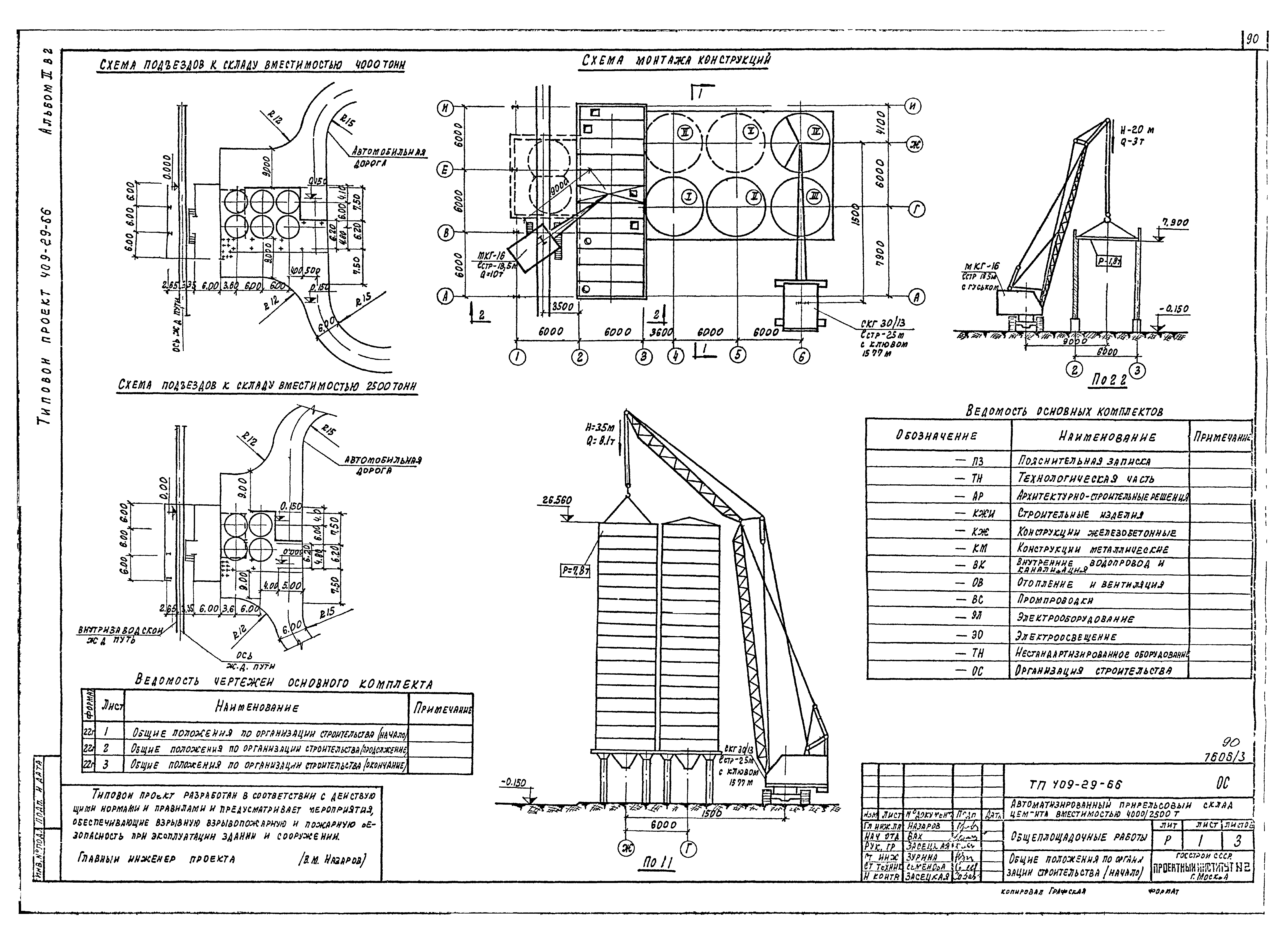
| Оглавление: | Архитектурно-строительные решения Общие данные Планы на отм. 0.000, 1.100, 2.000, - 5.200. Разрезы 5-5, 6-6 Планы на отм. 2.700, 4.800, 6.000, 26.600. Разрез 7-7 Разрезы 1-1, 2-2, 3-3. Деталь 6 Разрез 4-4. Детали 1 - 5 Фасады. Схемы заполнения оконных проемов Планы на отм. 0.000, 6.000, 26.600. Разрез 8-8 Маркировочные схемы раскладки листов и установки креплений в кровле и стенах галереи. Фасады 1 - 7, 7 - 1 Маркировочные схемы раскладки листов и установки креплений в кровле и стенах галереи Маркировочные схемы раскладки листов и установки креплений в кровле навесов и стене по оси 1 Конструкции железобетонные Общие данные Маркировочная схема фундаментов, фундаментных балок и подземного хозяйства в осях 1 - 3 Маркировочная схема фундаментов и фундаментных балок и подземного хозяйства в осях 1 - 3. Сечения 4-4 - 7-7. Камера для воды К-1 Маркировочная схема подвала приемного бункера. Фундаменты ФОМ1, ФОМ2 Подвал приемного бункера. Стена СТМ1 Подвал приемного бункера. Стена СТМ2 Подвал приемного бункера. Стены СТМ3 и СТМ4 Подвал приемного бункера. Перекрытие на отм. 0.000. РКМ1, РКМ2 Приямок входа в подвал приемного бункера ПРМ1 Фундаменты ФМ1, ФМ2, ФМ2а и приямок ПРМ2 Фундаменты ФОМ3 - ФОМ9 Маркировочные схемы колонн, балок, опорных подушек, плит перекрытия на отм. 4.800 Монолитный участок УМ1. Плита ПМ3 Маркировочная схема фундаментов подземного хозяйства в осях 3 - 8 для вместимости 4000 тонн Маркировочная схема фундаментов подземного хозяйства в осях 3 - 7 для вместимости 2500 тонн Фундаменты ФМ3, ФМ4, ФМ5, ФМ5а, ФМ6, ФМ6а, ФМ7 Маркировочная схема фундаментов под маневровое устройство. Фундаменты ФОМ10, ФОМ11, ФОМ12 Плиты фундаментные ПФМ1, ПФМ2 Маркировочные схемы колонн и балок днища силосов Маркировочные схемы балок покрытия силосов. Спецификация плит покрытия силосов вместимостью 2500 тонн Маркировочные схемы балок покрытия силосов. Спецификация плит покрытия силосов вместимостью 4000 тонн План покрытия силосов вместимостью 4000 тонн План покрытия силосов вместимостью 2500 тонн Плита фундаментная ПФМ1 (армирование) Плита фундаментная ПФМ2 (армирование) Плита днища силоса ПД1, ПД2 (опалубка) Плита днища силоса ПД1 (армирование) Плита днища силоса ПД2 (армирование) Плиты днища силосов ПД1, ПД2. Спецификация и выборки Маркировочные схемы стен силоса. Набетонка НМ1 Разрез 1-1 Разрезы 2-2, 3-3 Узлы 3, 4, 5, 6 Маркировочная схема колец Спецификация к маркировочным схемам колец Конструкции металлические Общие данные Общие данные для склада вместимостью 4000 тонн Общие данные для склада вместимостью 2500 тонн Маркировочные планы на отм. 0.000 и 2.700. Разрезы 1-1 - 7-7 Узлы 1 - 3 Маркировочная схема щитов в осях 1 - 2 на отм. 0.000 Маркировочная схема площадок на отм. 2.000 Маркировочная схема стальных прогонов кровли. Узлы 1 - 5 Планы подвесных путей для кранбалки Q = 3,2 т, монорельсов Q = 1 т, Q = 2 т Маркировочные схемы стальных балок покрытия силосов Воронка силоса Надсилосная галерея для склада вместимостью 4000 тонн Надсилосная галерея для склада вместимостью 2500 тонн Надсилосная галерея. Узлы 1 - 6 Схема приемного бункера Приемный бункер. Узлы 1 - 3 Приемный бункер. Узлы 4 - 10 Блок БТ1 Площадка для обслуживания на отм. 6.000 для склада вместимостью 4000 тонн. Планы. Разрез 1-1 Площадка для обслуживания на отм. 6.000. Разрезы 2-2 - 6-6. Блоки ПЛ1, ПЛ2 Площадка для обслуживания на отм. 6.000. Блоки ПЛ3 - ПЛ7. Узлы 1 - 3 Площадка для обслуживания на отм. 6.000. Узлы 4 - 8 Площадка для обслуживания на отм. 6.000 для склада вместимостью 2500 тонн. Планы. Разрезы Схема лестницы. Блоки БЛ1 - БЛ9. Узел 1 Схема лестницы. Узлы 2 - 6 Отопление и вентиляция Общие данные План и схемы систем отопления и вентиляции Внутренние водопровод и канализация Общие данные План на отм. 0.000, 1.100. Схемы систем В1, В5, В6, К3. Сводная спецификация. Организация строительства Общие положения по организации строительства Маркировочные схемы стенок колец СБ-1-2а-1 |
| Разработан: | Проектный институт N 2 (ПИ-2) Гипростроммашина Укрпроектстальконструкция |
| Утверждён: | 02.07.1979 Госстрой СССР (Государственный комитет Совета Министров СССР по делам строительства) (USSR Gosstroy 35) |
| Издан: | ЦИТП Госстроя СССР (CITP, Gosstroy (USSR) 1989 г. ) |





























































































