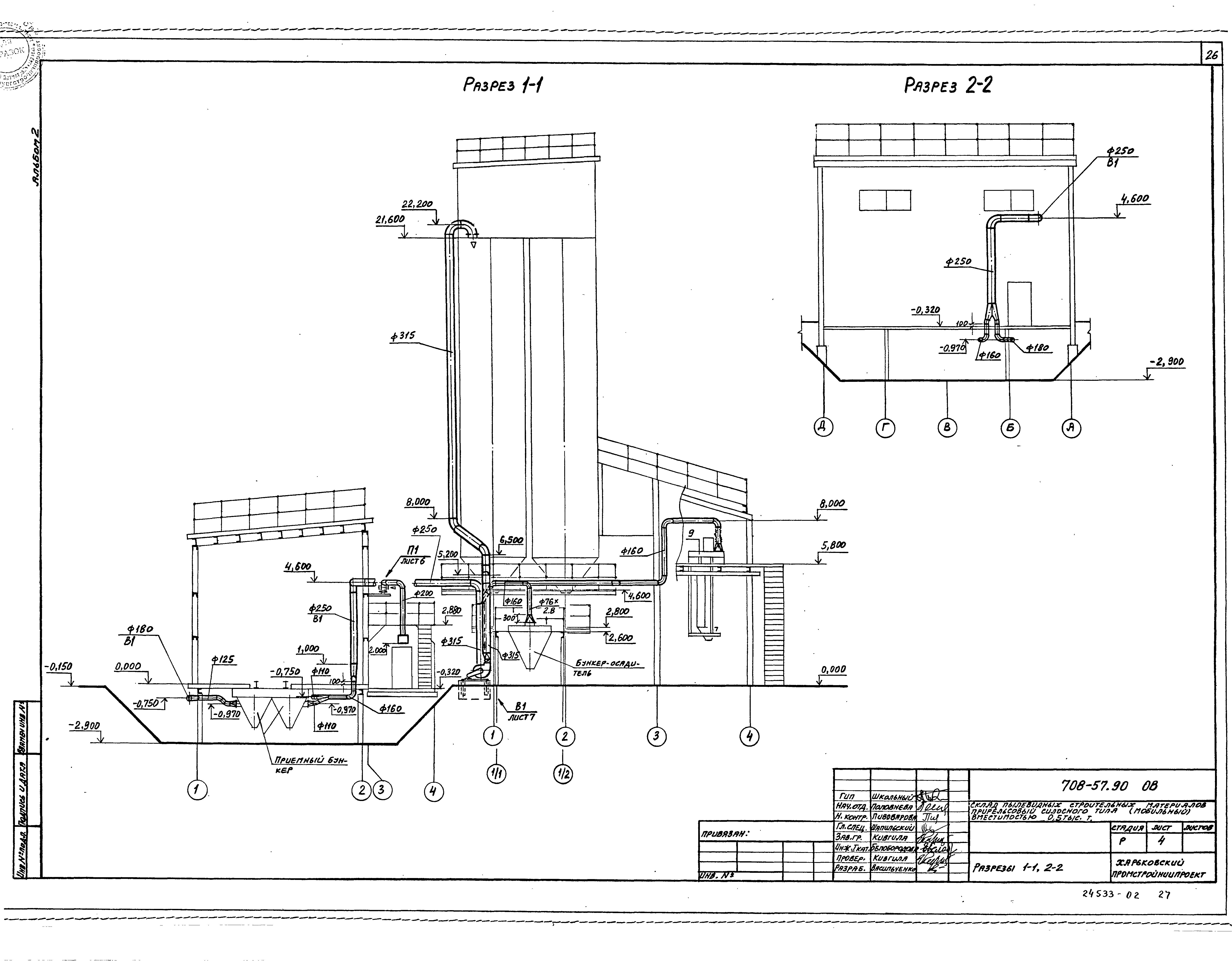
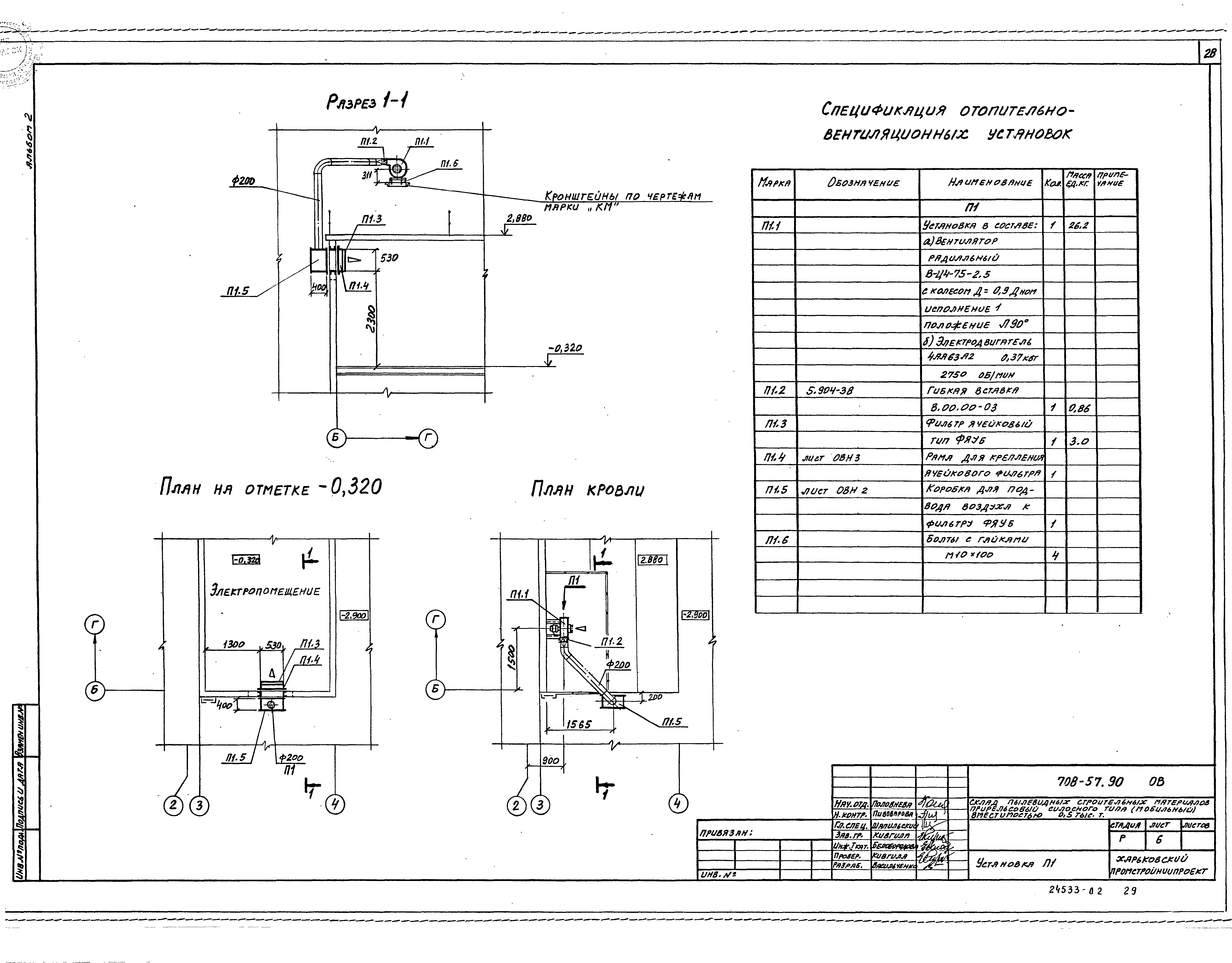
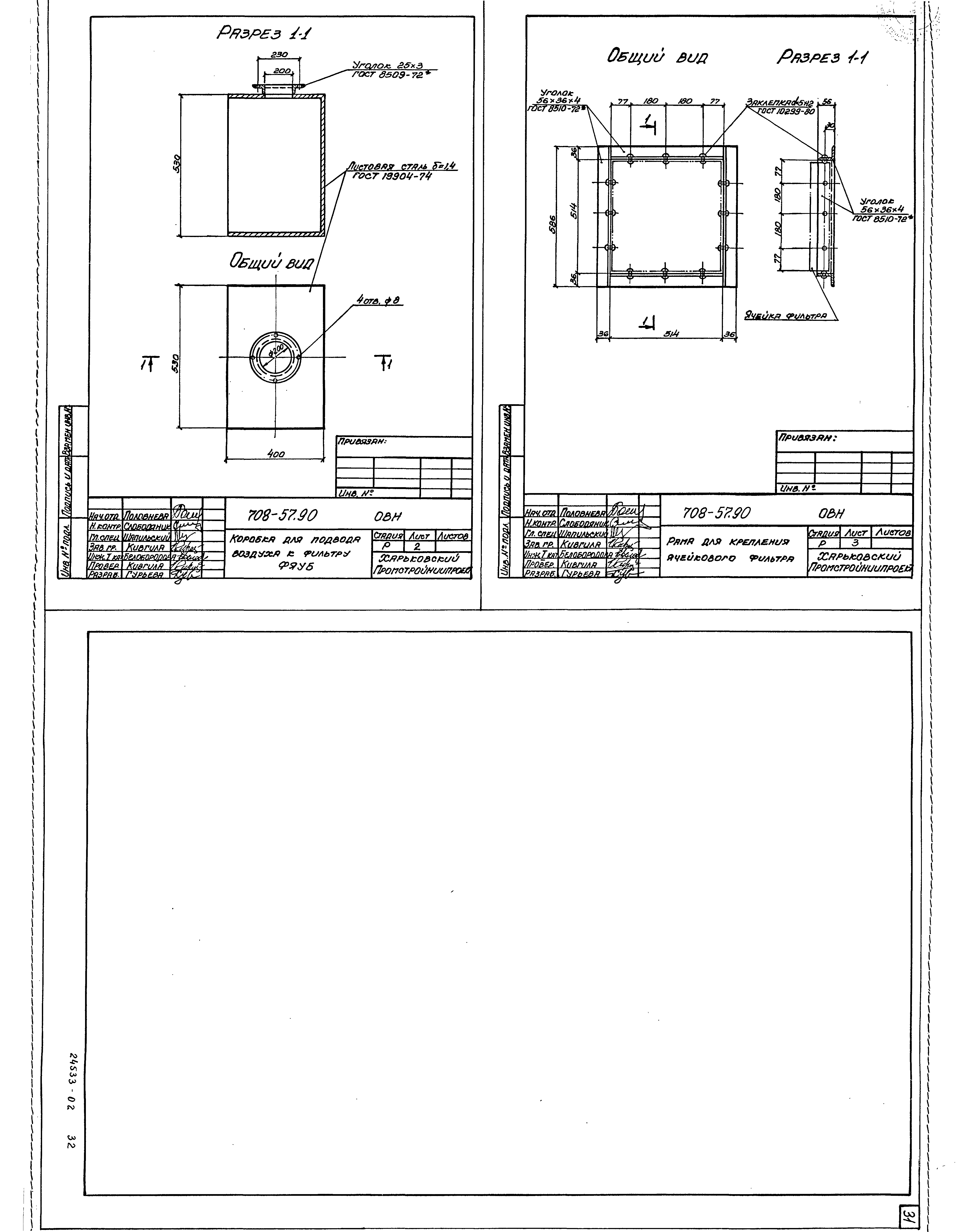
Скачать Типовой проект 708-57.90 Альбом 2. Архитектурные решения. Конструкции железобетонные. Строительные изделия. Отопление и вентиляция. Водопровод и канализацияДата актуализации: 01.01.2021
|
| Обозначение: | Типовой проект 708-57.90 |
| Обозначение англ: | 708-57.90 |
| Статус: | не определен законодательством |
| Название рус.: | Альбом 2. Архитектурные решения. Конструкции железобетонные. Строительные изделия. Отопление и вентиляция. Водопровод и канализация |
| Дата добавления в базу: | 01.09.2013 |
| Дата актуализации: | 01.01.2021 |
| Дата введения: | 29.08.1990 |
| Дата окончания срока действия: | 30.06.2003 |
| Разработан: | Харьковский Промстройниипроект Промтрансниипроект Укрниипроектстальконструкция Донецкое отделение Промтрансниипроекта Волгоградское отделение Тяжпромэлектропроекта |
| Утверждён: | 18.01.1990 Госстрой СССР (Государственный комитет Совета Министров СССР по делам строительства) (USSR Gosstroy 1) |
































