Скачать Типовой проект 901-1-91.88 Альбом III. Архитектурно-строительные решения (подземная часть), указания по производству строительных работДата актуализации: 01.01.2021
|
| Обозначение: | Типовой проект 901-1-91.88 |
| Обозначение англ: | 901-1-91.88 |
| Статус: | не определен законодательством |
| Название рус.: | Альбом III. Архитектурно-строительные решения (подземная часть), указания по производству строительных работ |
| Дата добавления в базу: | 01.09.2013 |
| Дата актуализации: | 01.01.2021 |
| Дата введения: | 05.07.1988 |
| Дата окончания срока действия: | 30.06.2003 |
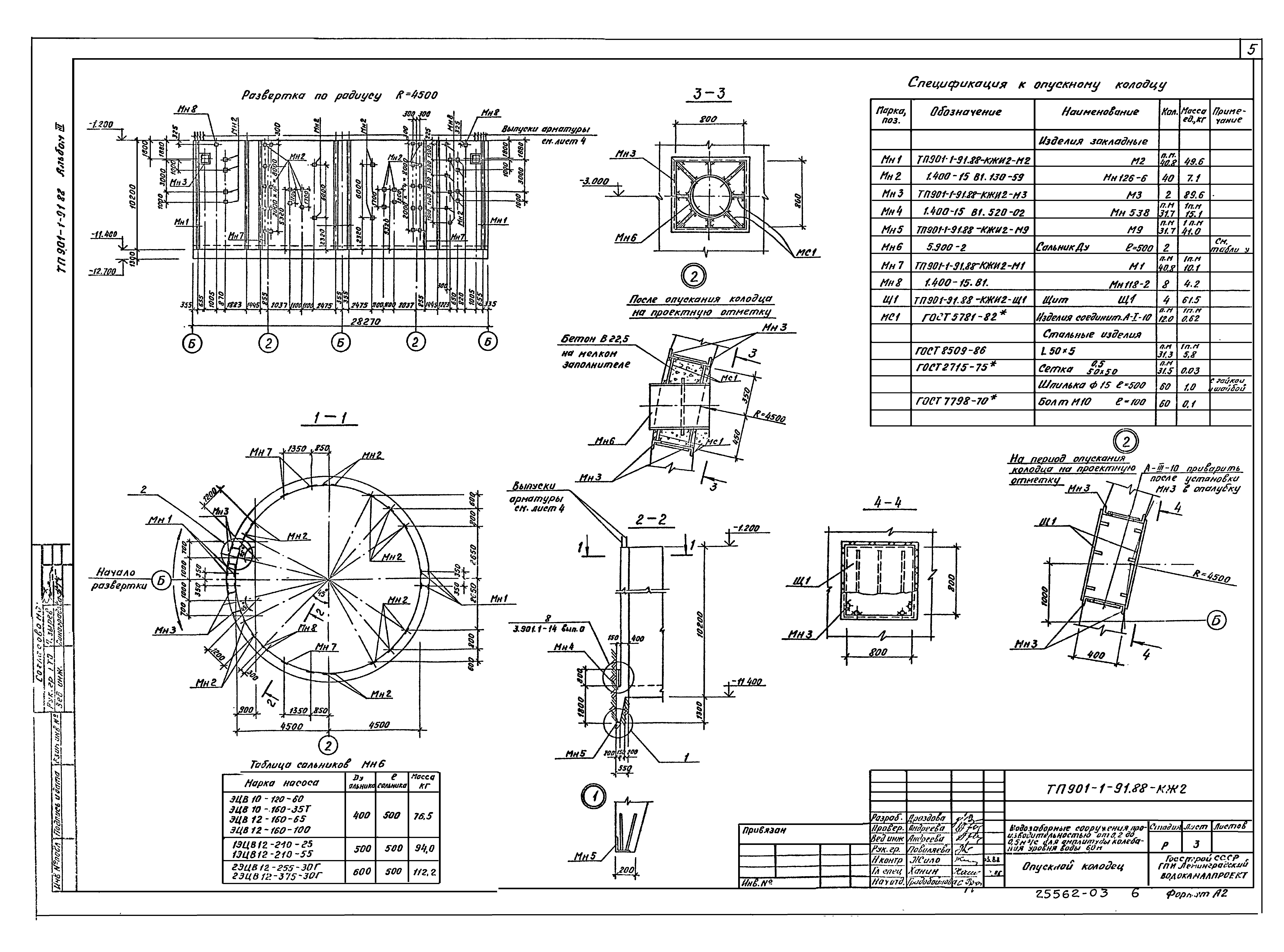
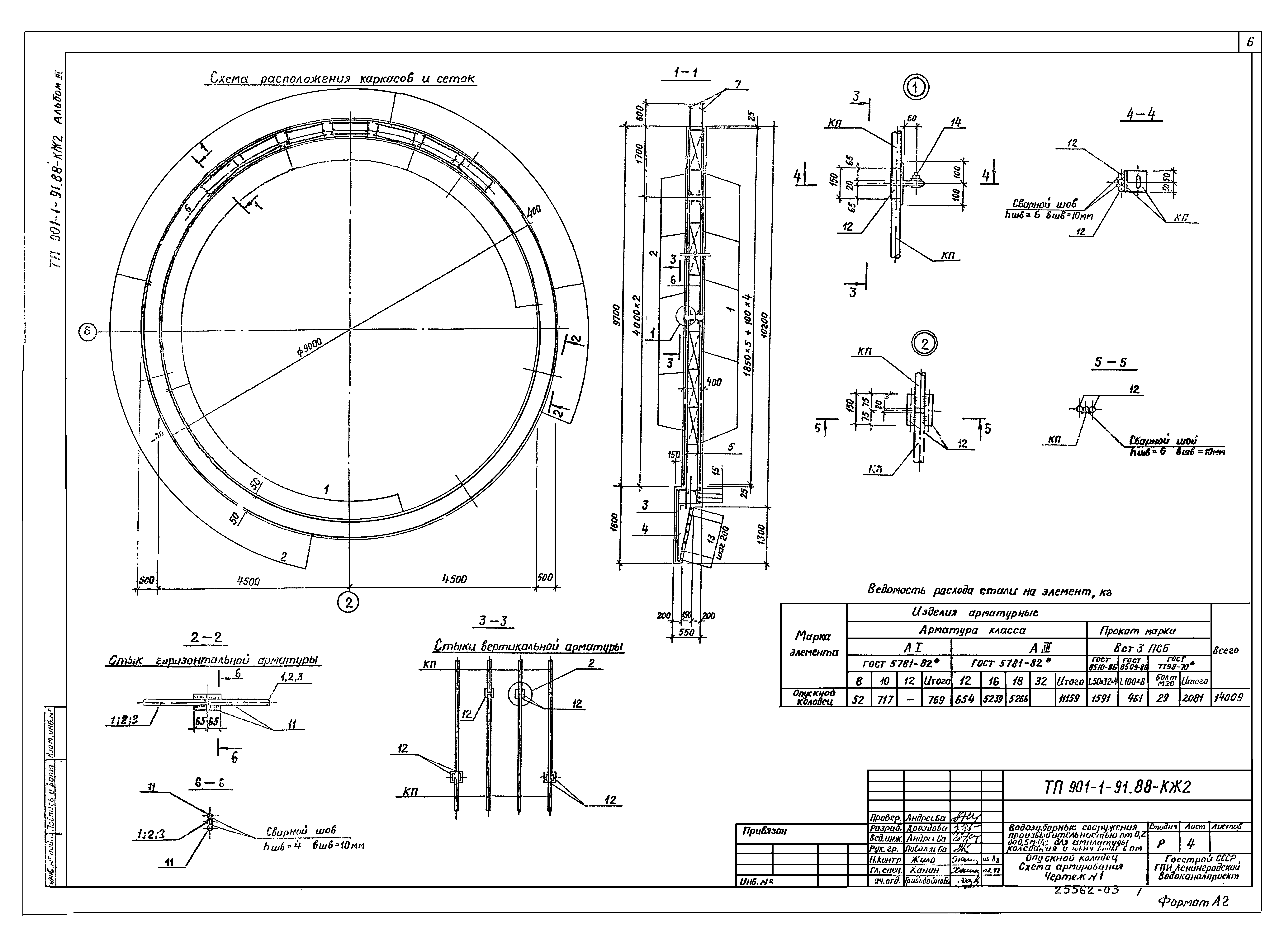
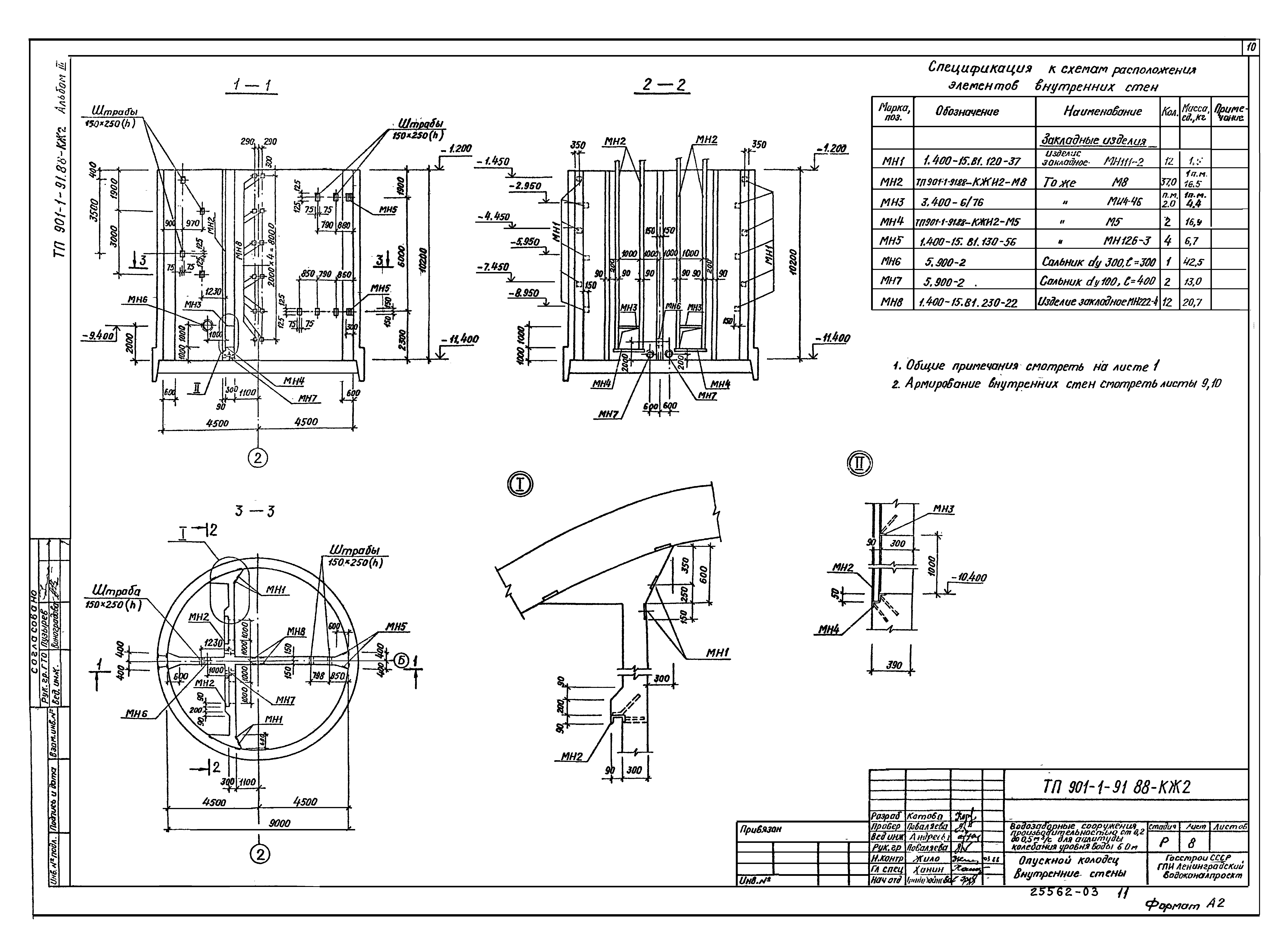
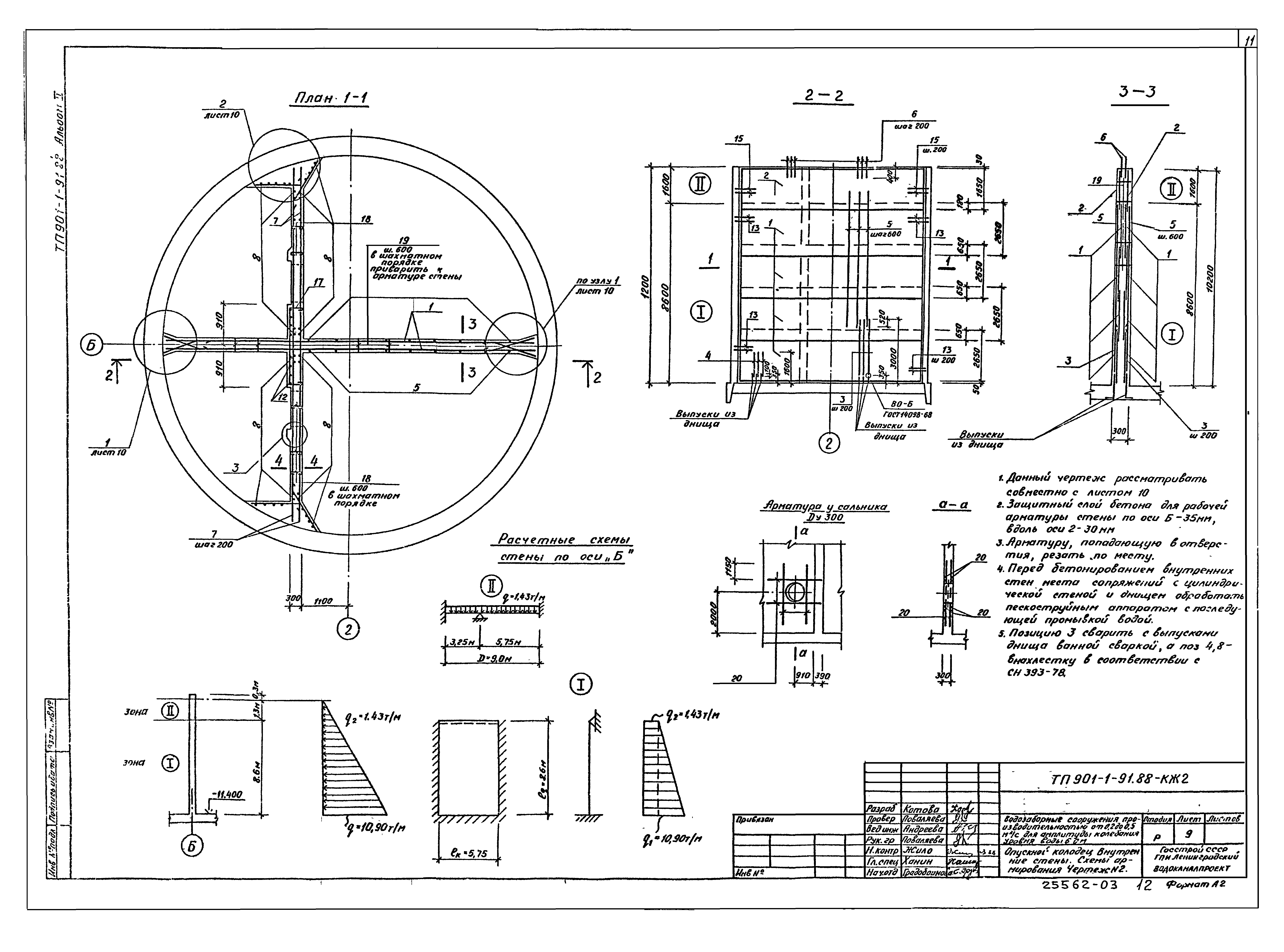
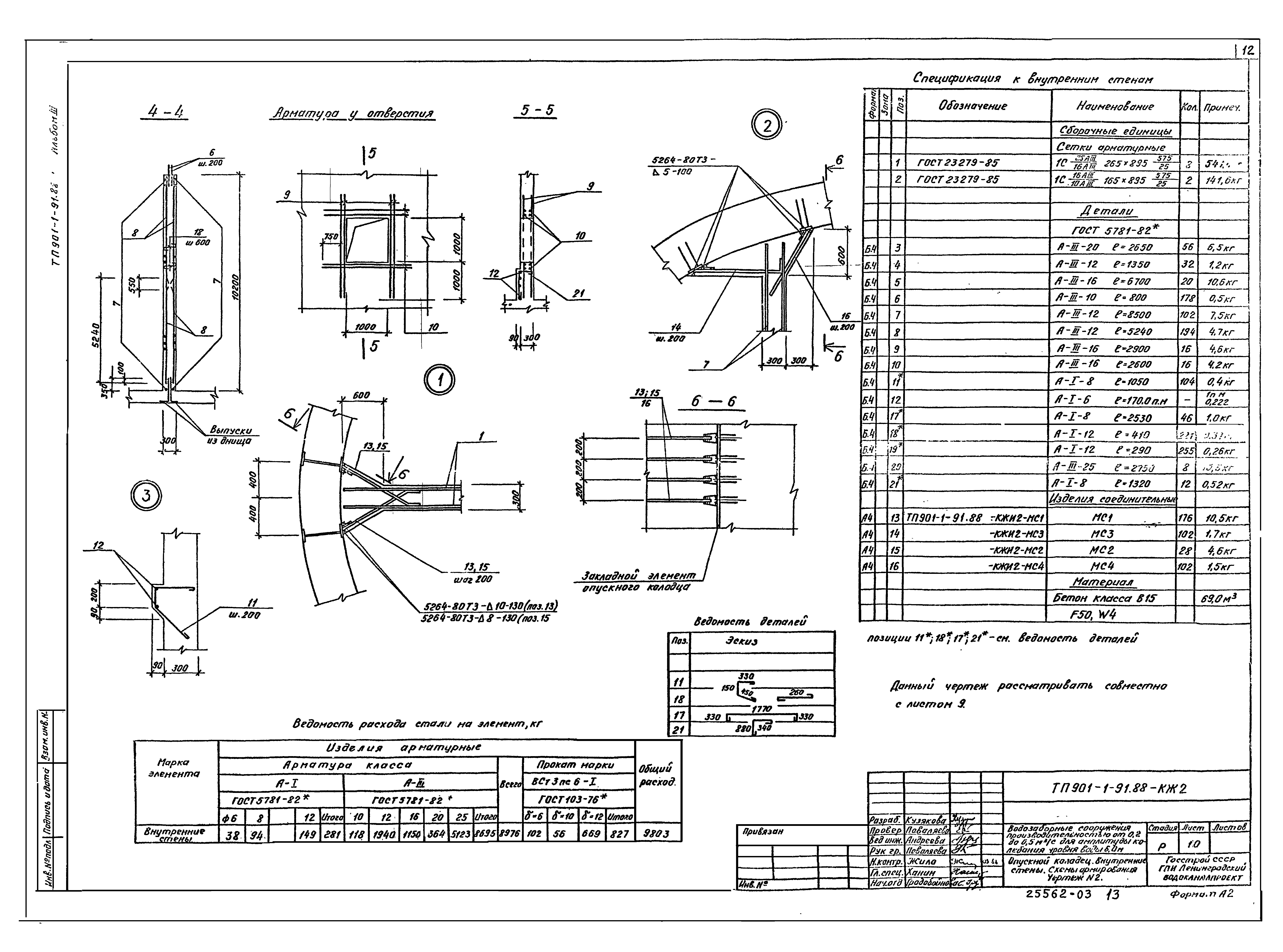
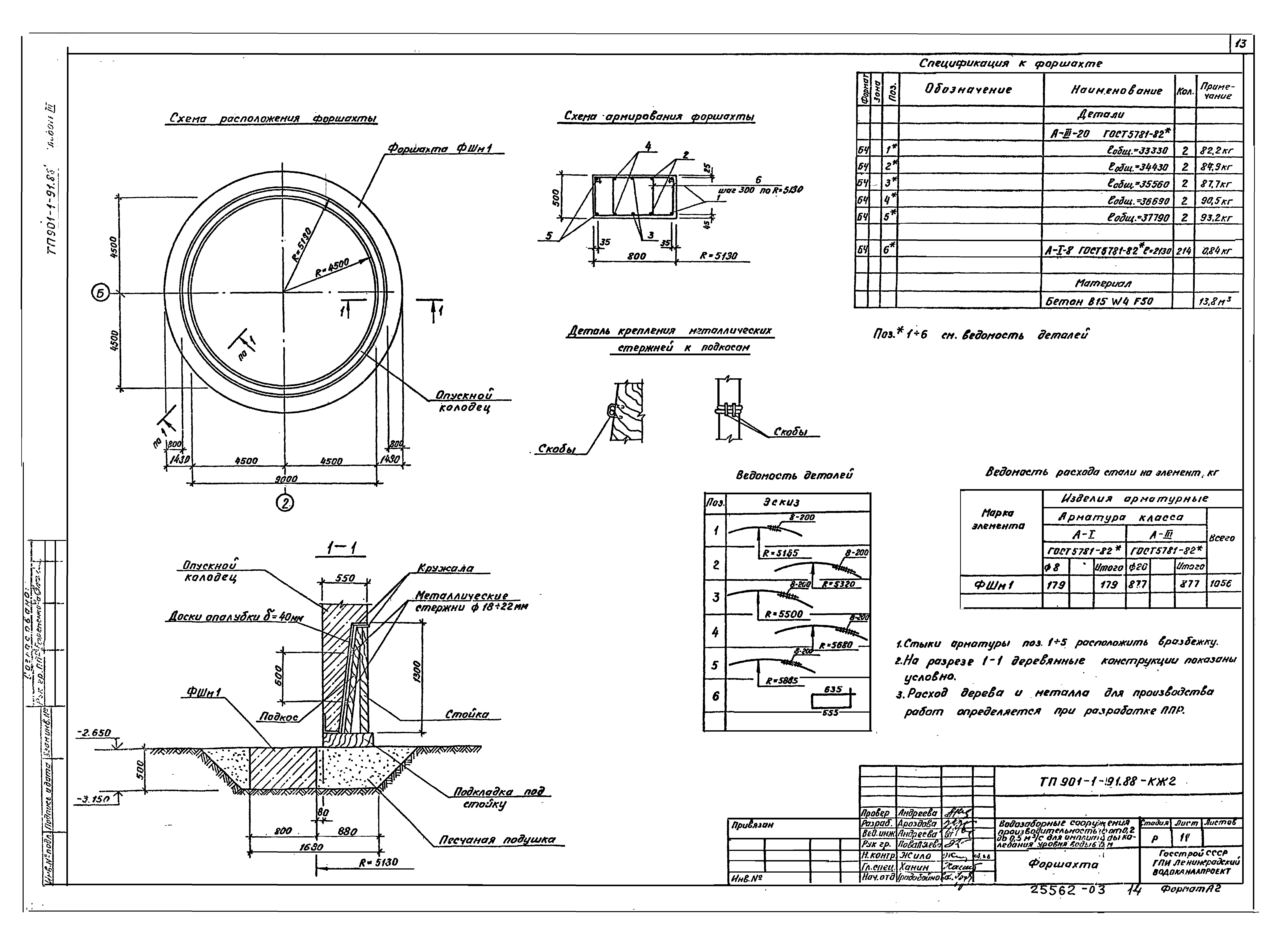
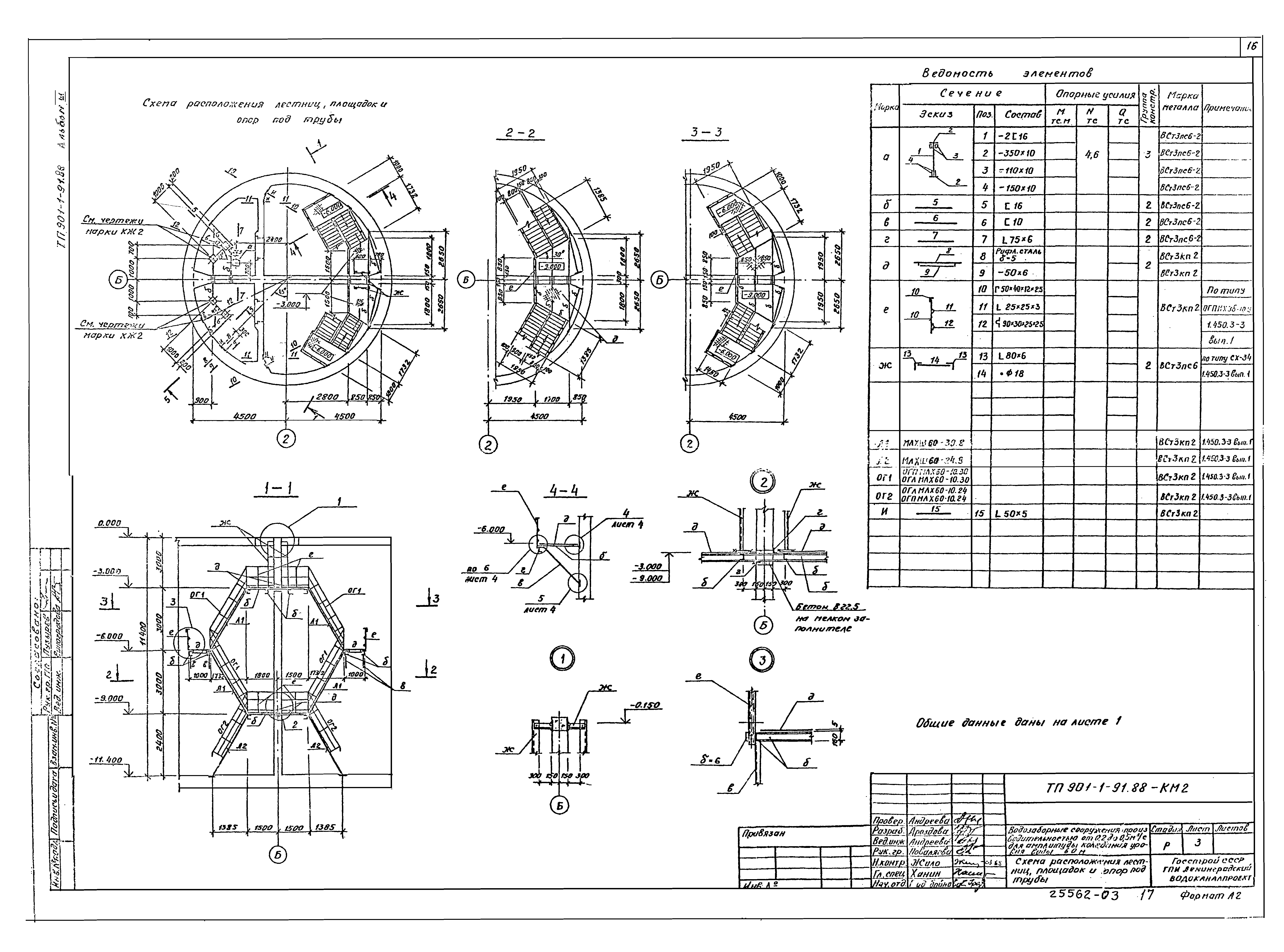
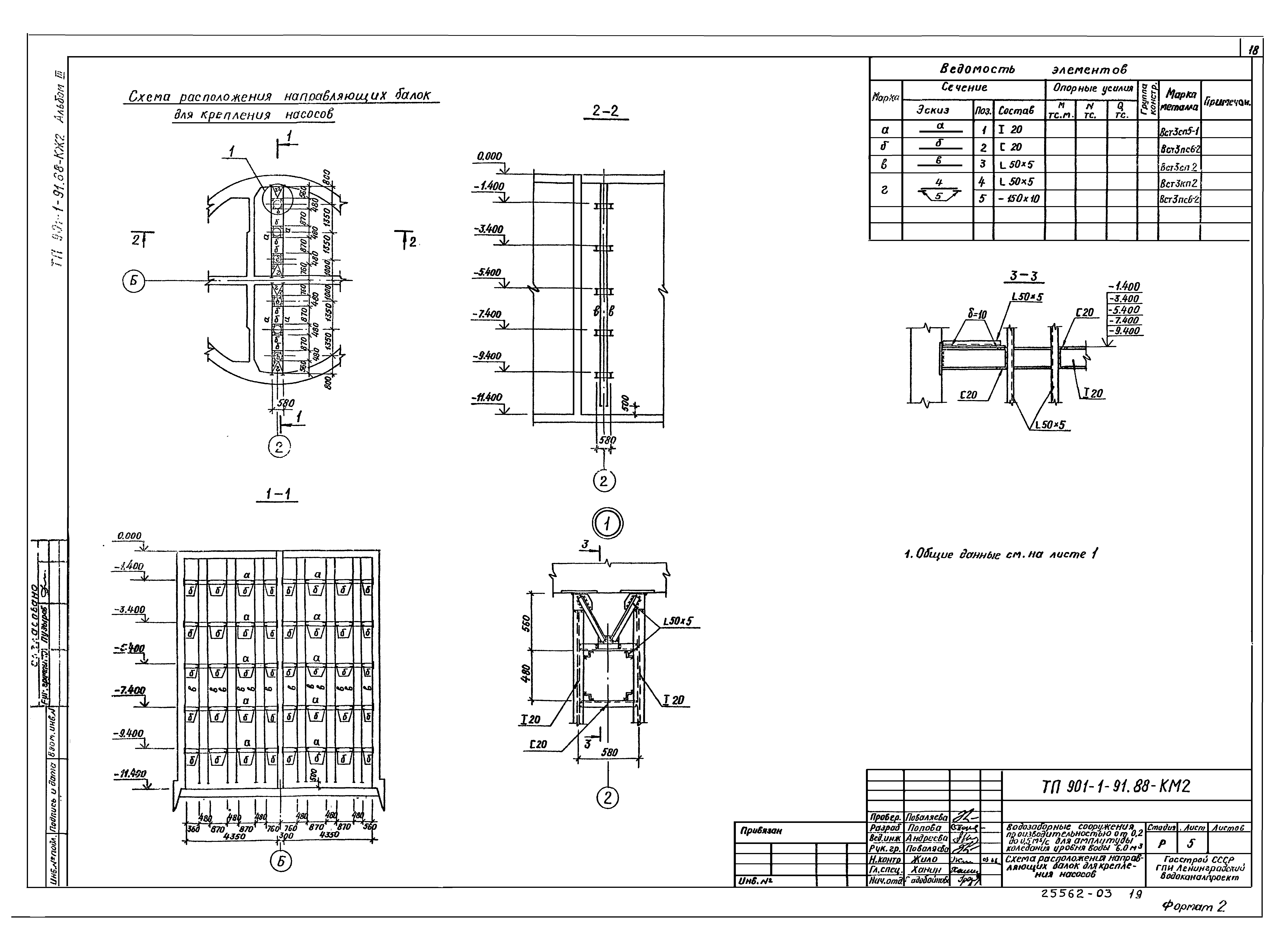
| Оглавление: | Конструкции железобетонные - КЖ2 1 Общие данные (начало) 2 Общие данные (окончание) 3 Опускной колодец 4 Опускной колодец. Схема армирования. Чертеж №1 5 Опускной колодец. Схема армирования. Чертеж №2 6 Опускной колодец. Днище 7 Опускной колодец. Днище. Схемы армирования 8 Опускной колодец. Внутренние стены 9 Опускной колодец. Внутренние стены. Схемы армирования. Чертеж №1 10 Опускной колодец. Внутренние стены. Схемы армирования. Чертеж №2 11 Форшахта Конструкции железобетонные - КМ2 1 Общие данные. Ведомость металлоконструкций по видам профилей 2 Техническая спецификация стали 3 Схема расположения лестниц, площадок и опор под трубы 4 Схема расположения лестниц, площадок и опор под трубы. Узлы 5 Схема расположения направляющих балок для крепления насосов Организация строительства - ОС 1 Общие данные (начало) 2 Общие данные (продолжение) 3 Общие данные (окончание) 4 Схемы производства работ. I этап 5 Схемы производства работ. II и III этапы 6 Схема производства свайных работ 7 Схемы производства монтажных работ. Надземная часть 8 График производства работ |
| Разработан: | Ленинградский Водоканалпроект |
| Утверждён: | 06.04.1988 Госстрой СССР (Государственный комитет Совета Министров СССР по делам строительства) (USSR Gosstroy 25) |
| Заменяет собой: |


























