Скачать Типовой проект 901-1-91.88 Альбом V. Строительные изделия (подземная часть)Дата актуализации: 01.01.2021
|
| Обозначение: | Типовой проект 901-1-91.88 |
| Обозначение англ: | 901-1-91.88 |
| Статус: | не определен законодательством |
| Название рус.: | Альбом V. Строительные изделия (подземная часть) |
| Дата добавления в базу: | 01.09.2013 |
| Дата актуализации: | 01.01.2021 |
| Дата введения: | 05.07.1988 |
| Дата окончания срока действия: | 30.06.2003 |
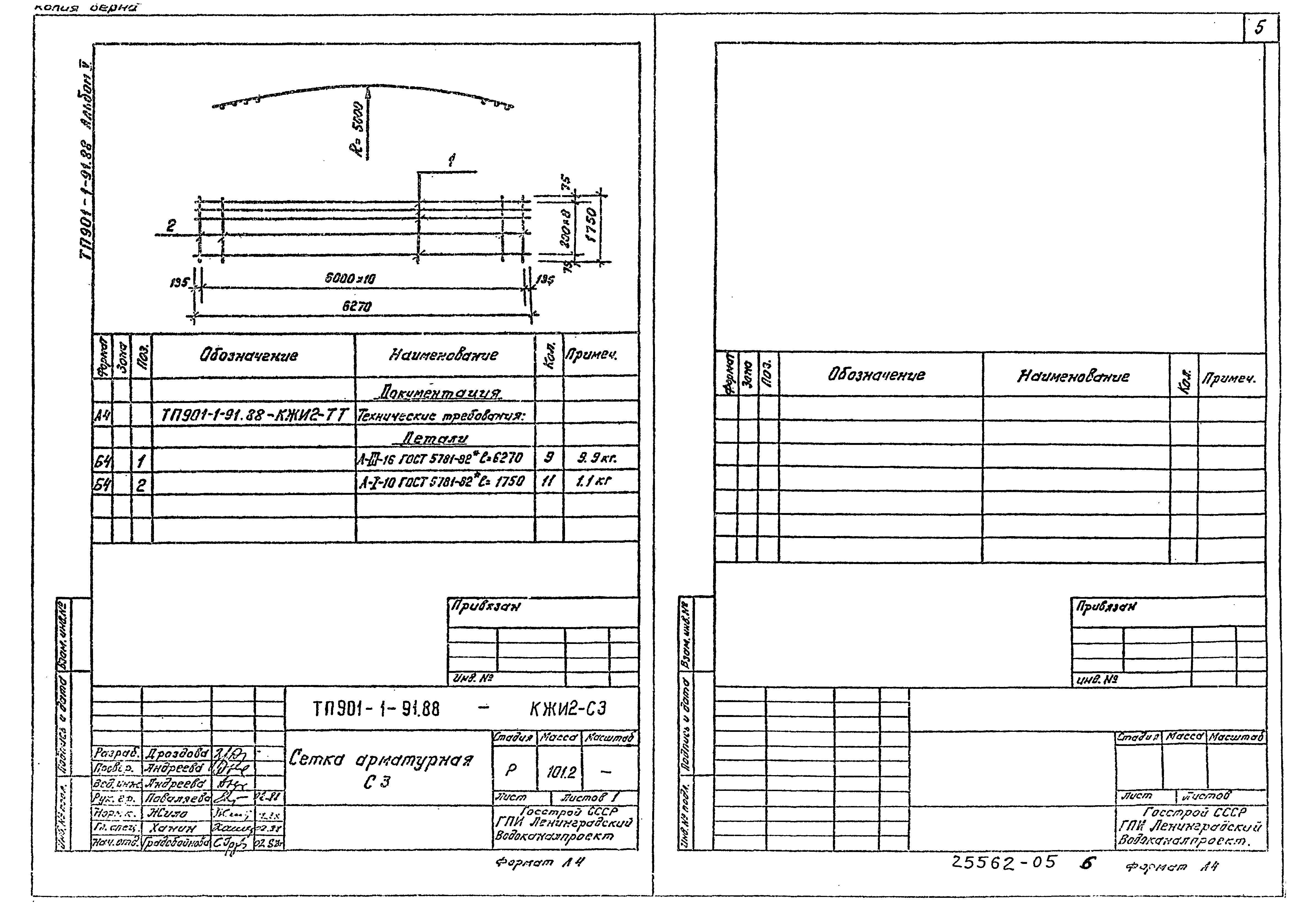
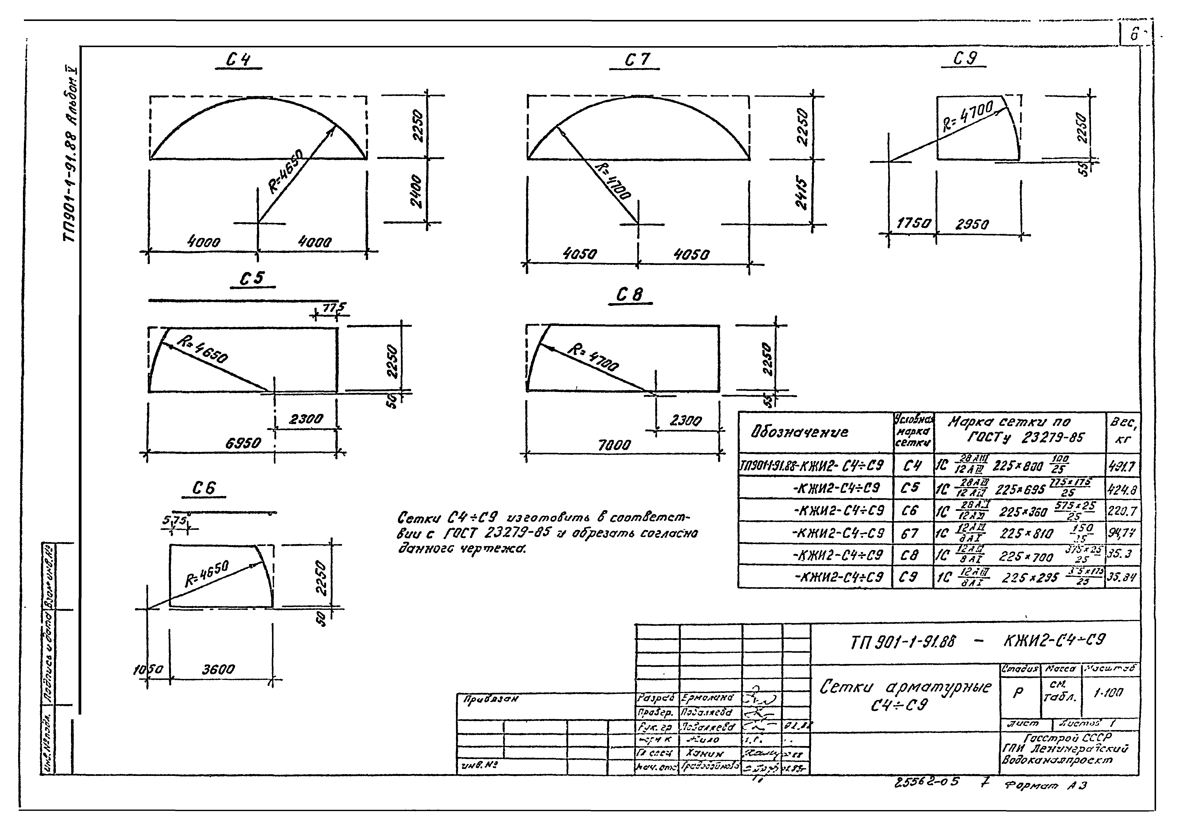
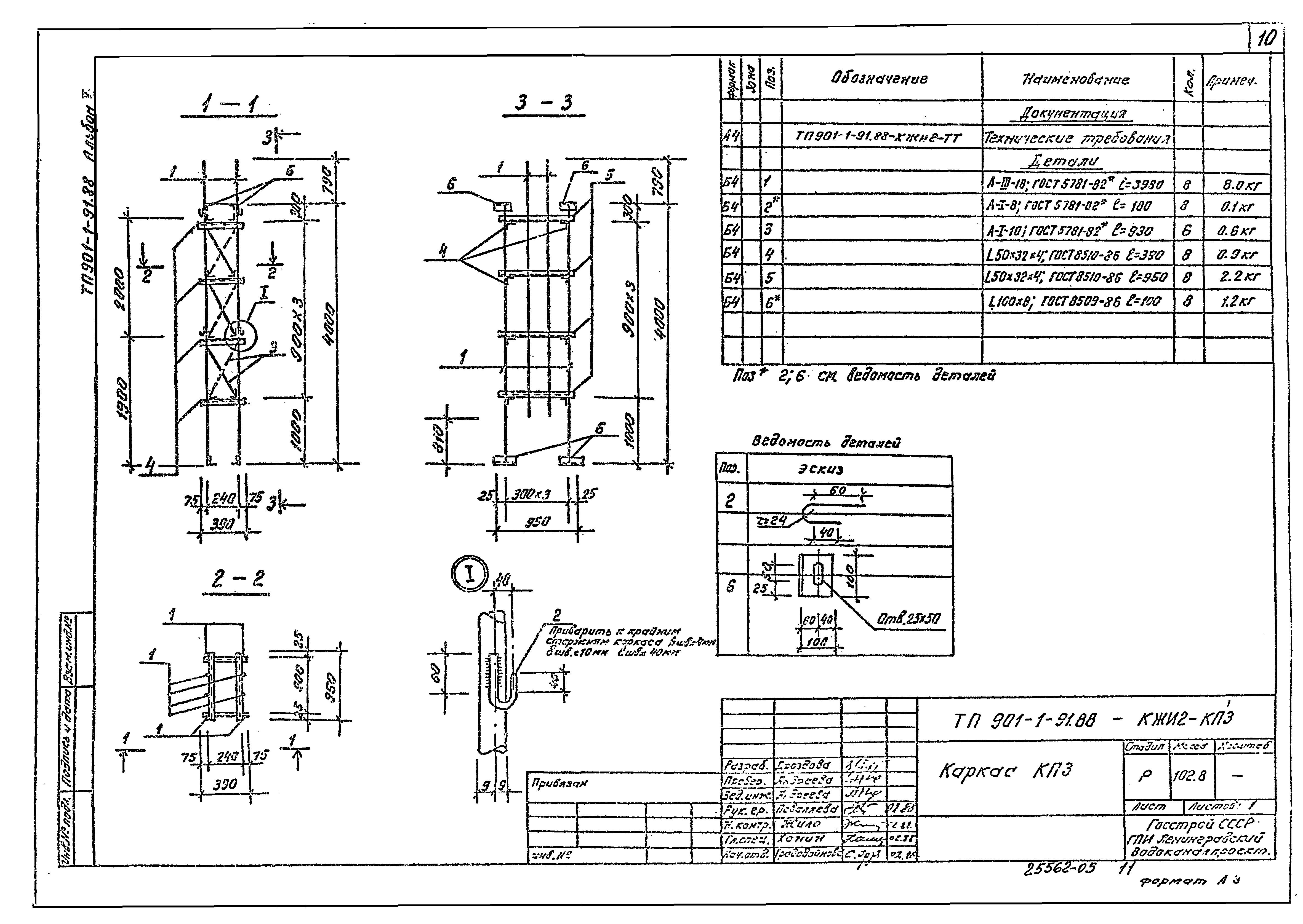
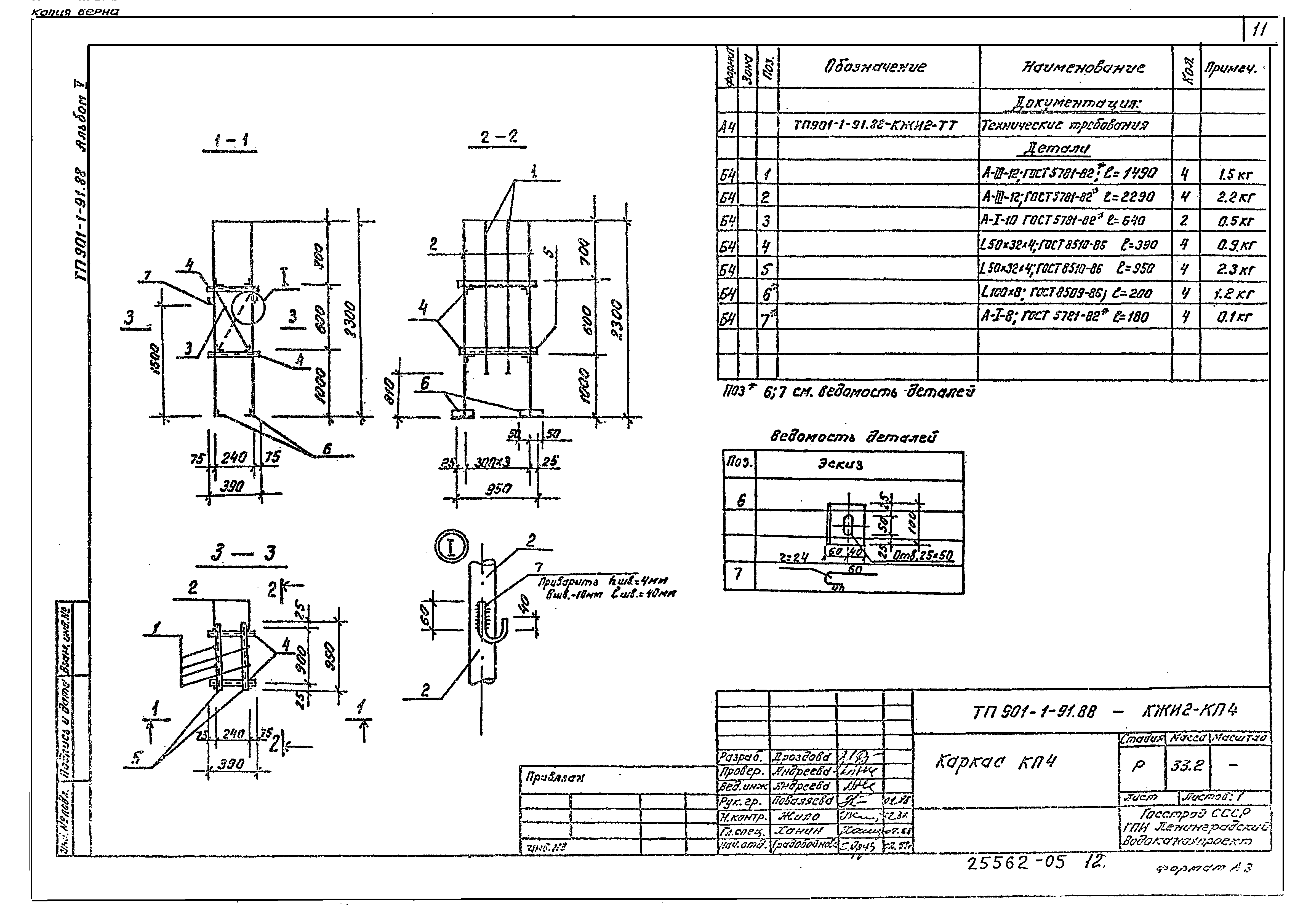
| Оглавление: | ТП901-1-91.88-КЖИ2-ДО Ведомость листов выпуска ТП901-1-91.88-КЖИ2-ТТ Технические требования на изготовление арматурных и закладных изделий ТП901-1-91.88-КЖИ2-С1 Сетка арматурная С1 ТП901-1-91.88-КЖИ2-С2 Сетка арматурная С2 ТП901-1-91.88-КЖИ2-С3 Сетка арматурная С3 ТП901-1-91.88-КЖИ2-С4?С9 Сетка арматурная С4 - С9 ТП901-1-91.88-КЖИ2-С10 Сетка арматурная С10 ТП901-1-91.88-КЖИ2-С11 Сетка арматурная С11 ТП901-1-91.88-КЖИ2-КП1 Каркас КП1 ТП901-1-91.88-КЖИ2-КП2 Каркас КП2 ТП901-1-91.88-КЖИ2-КП3 Каркас КП3 ТП901-1-91.88-КЖИ2-КП4 Каркас КП4 ТП901-1-91.88-КЖИ2-КП5 Каркас КП5 ТП901-1-91.88-КЖИ2-КП6 Каркас КП6 ТП901-1-91.88-КЖИ2-М1 Изделие закладное М1 ТП901-1-91.88-КЖИ2-М2 Изделие закладное М2 ТП901-1-91.88-КЖИ2-М3 Изделие закладное М3 ТП901-1-91.88-КЖИ2-Щ1 Щит Щ1 ТП901-1-91.88-КЖИ2-М4 Изделие закладное М4 ТП901-1-91.88-КЖИ2-М5 Изделие закладное М5 ТП901-1-91.88-КЖИ2-М6 Изделие закладное М6 ТП901-1-91.88-КЖИ2-М7 Изделие закладное М7 ТП901-1-91.88-КЖИ2-М8 Изделие закладное М8 ТП901-1-91.88-КЖИ2-М9 Изделие закладное М9 ТП901-1-91.88-КЖИ2-МС1 Изделие соединительное МС1 ТП901-1-91.88-КЖИ2-МС2 Изделие соединительное МС2 ТП901-1-91.88-КЖИ2-МС3 Изделие соединительное МС3 ТП901-1-91.88-КЖИ2-МС4 Изделие соединительное МС4 |
| Разработан: | Ленинградский Водоканалпроект |
| Утверждён: | 06.04.1988 Госстрой СССР (Государственный комитет Совета Министров СССР по делам строительства) (USSR Gosstroy 25) |
| Заменяет собой: |





















