Скачать Типовой проект 902-5-3 Альбом II. Технологическая, санитарно-техническая и электротехническая частиДата актуализации: 01.01.2021
|
| Обозначение: | Типовой проект 902-5-3 |
| Обозначение англ: | 902-5-3 |
| Статус: | не определен законодательством |
| Название рус.: | Альбом II. Технологическая, санитарно-техническая и электротехническая части |
| Дата добавления в базу: | 01.09.2013 |
| Дата актуализации: | 01.01.2021 |
| Дата введения: | 15.11.1982 |
| Дата окончания срока действия: | 30.06.2003 |
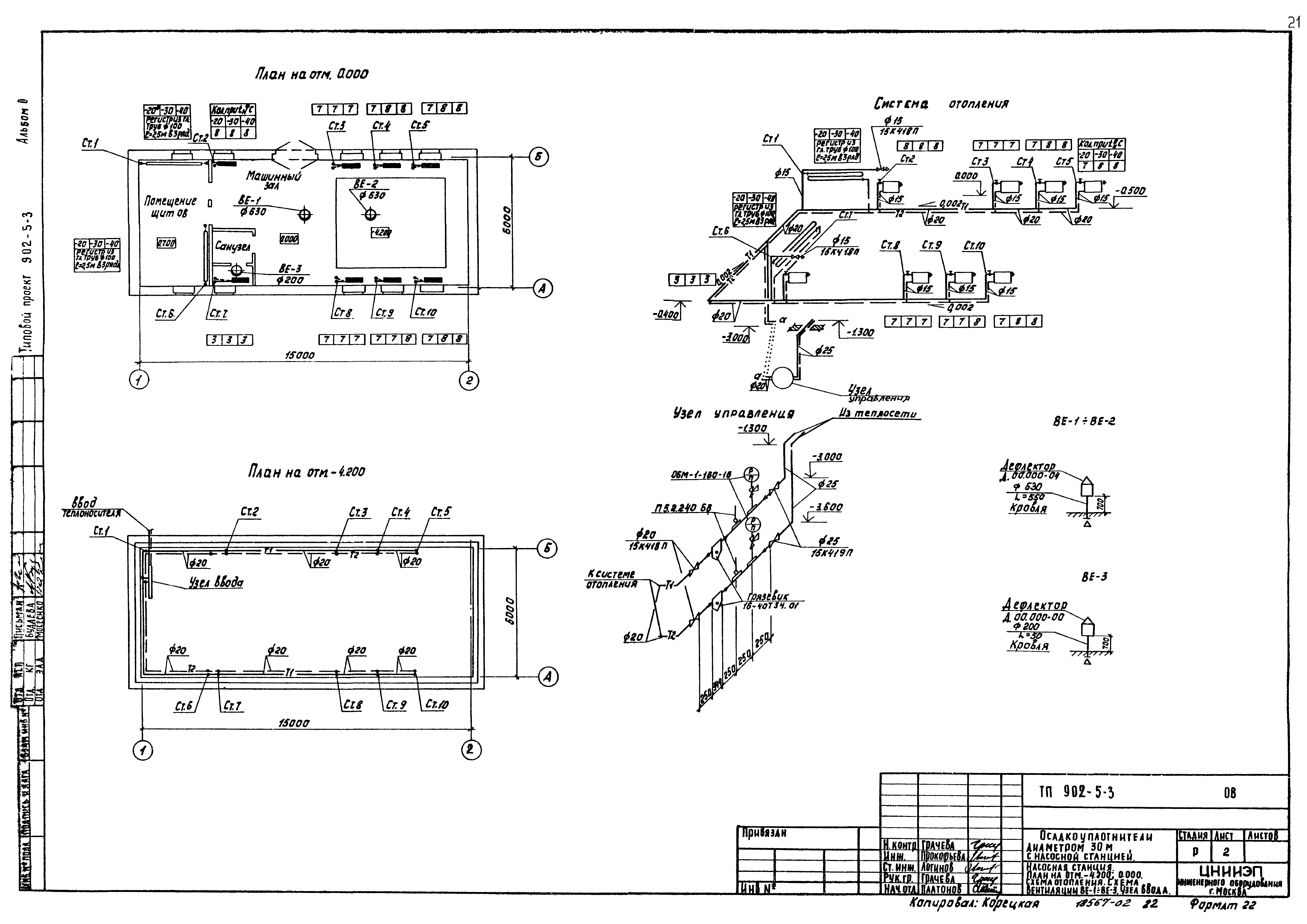
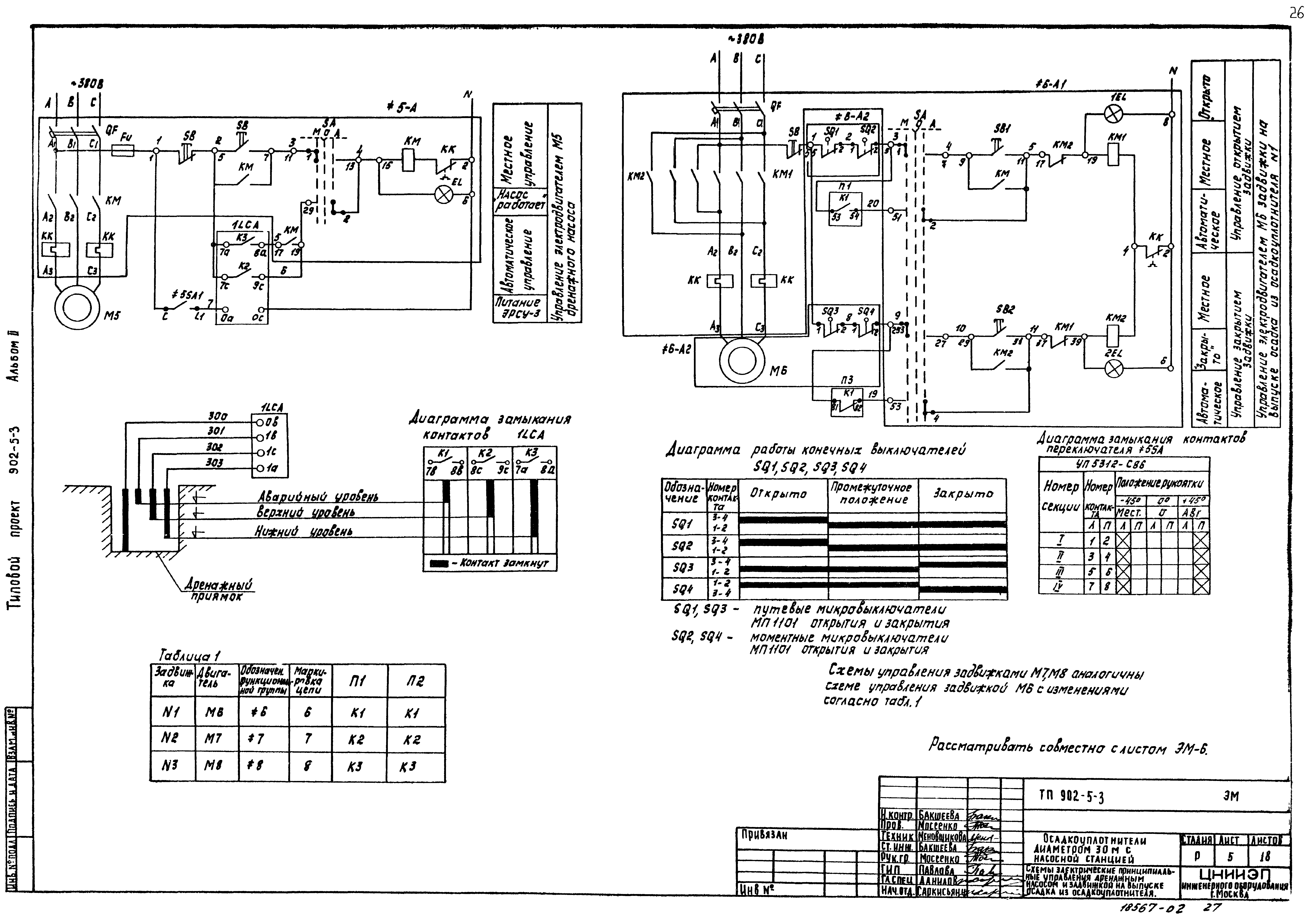
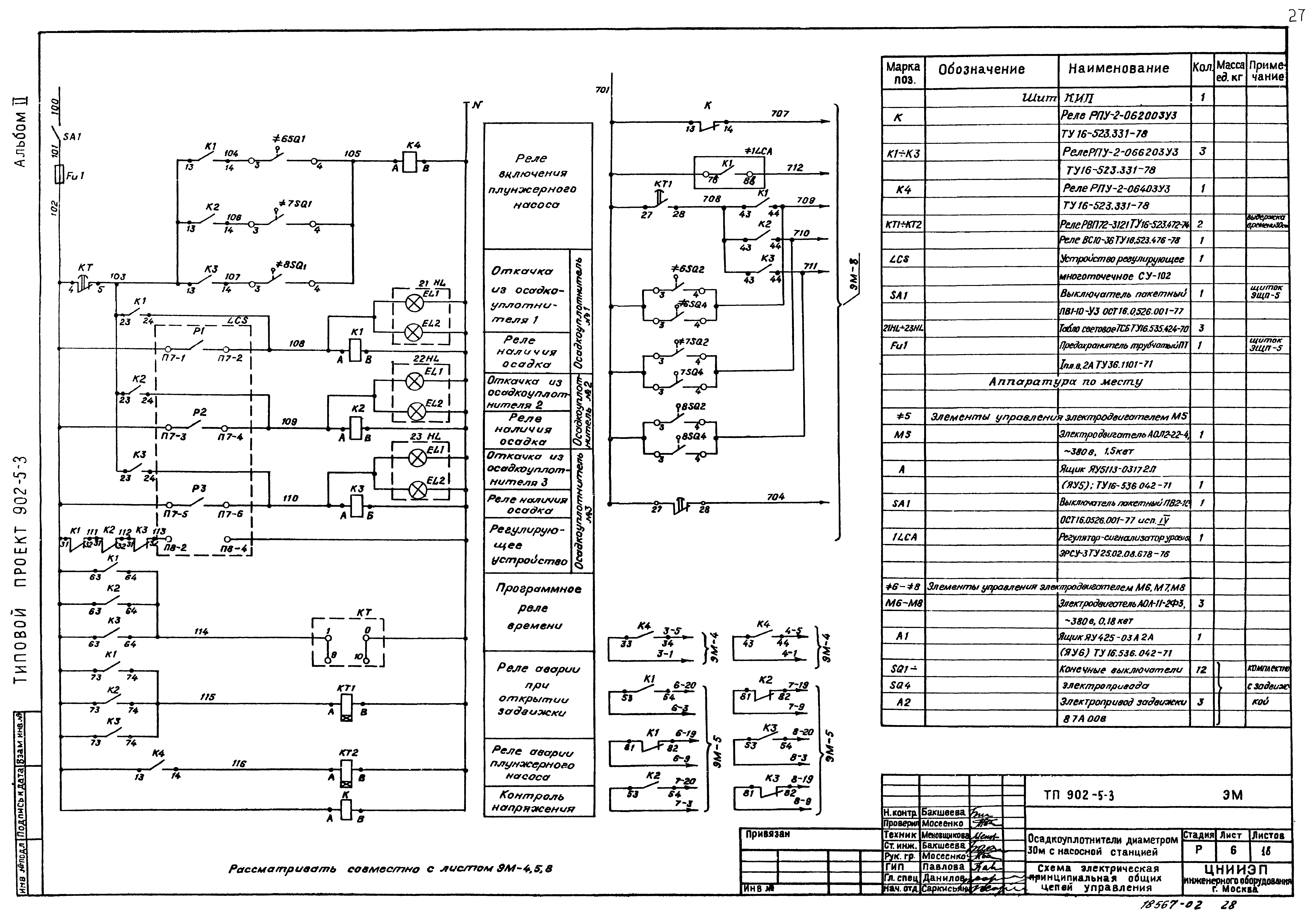
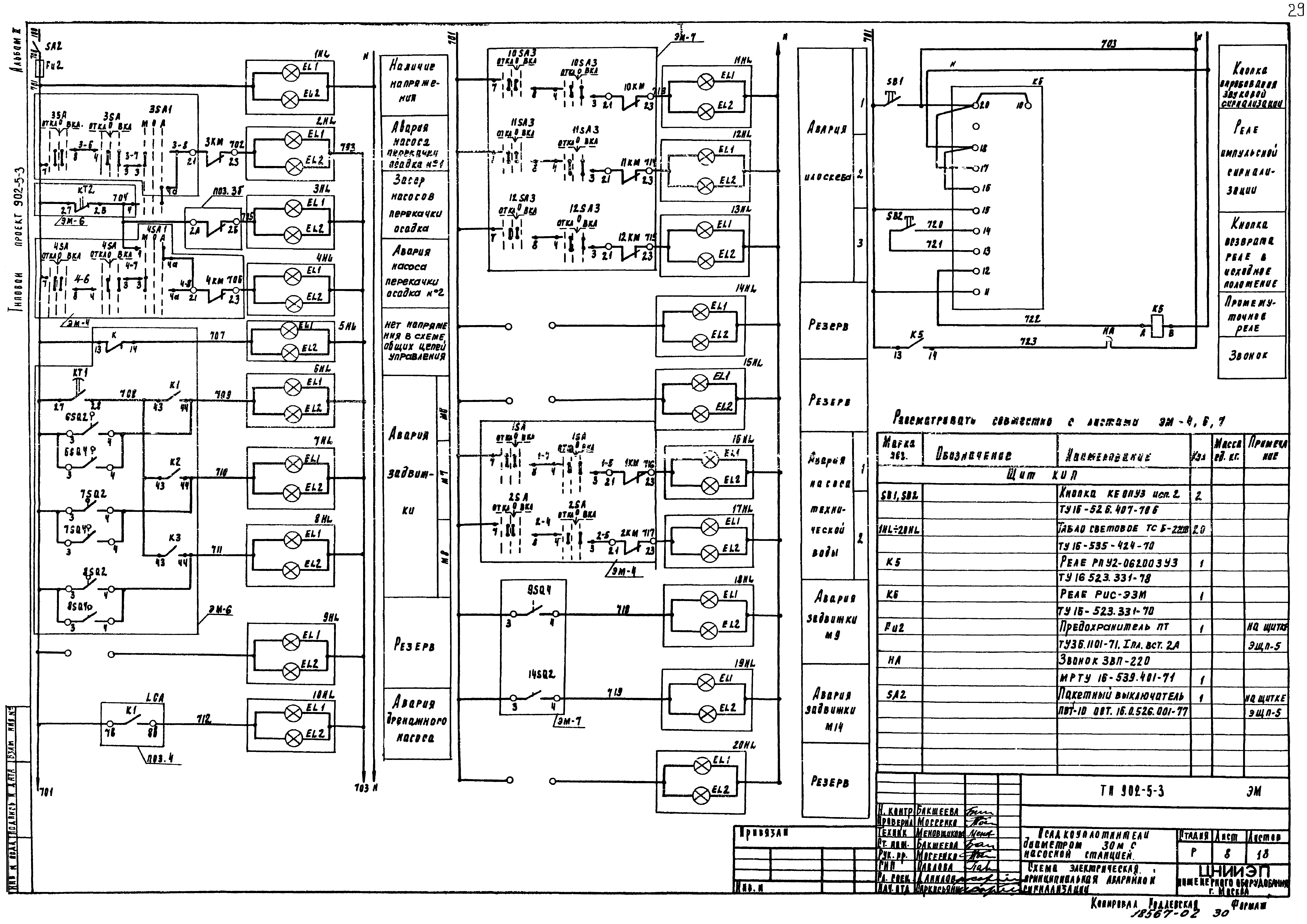
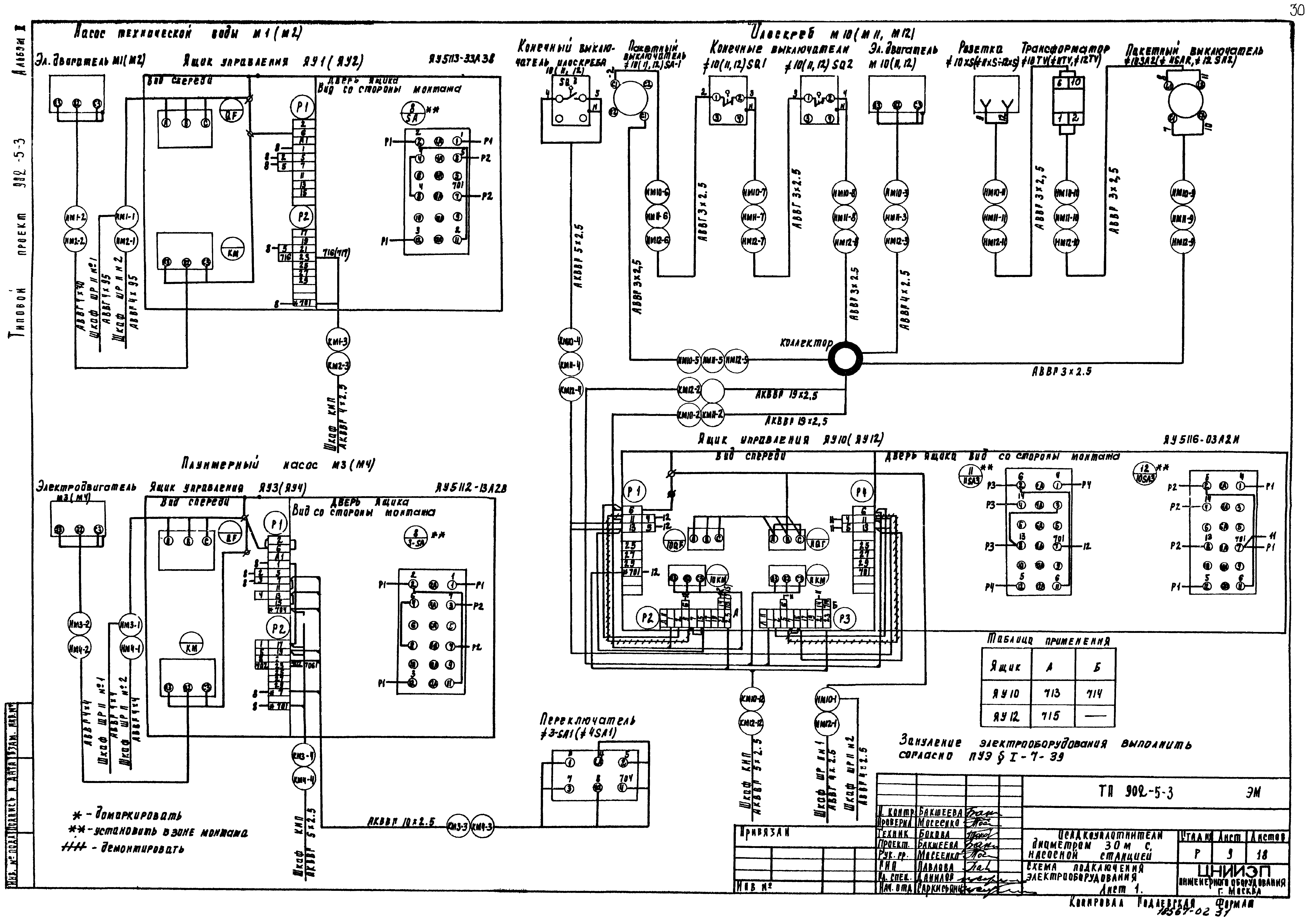
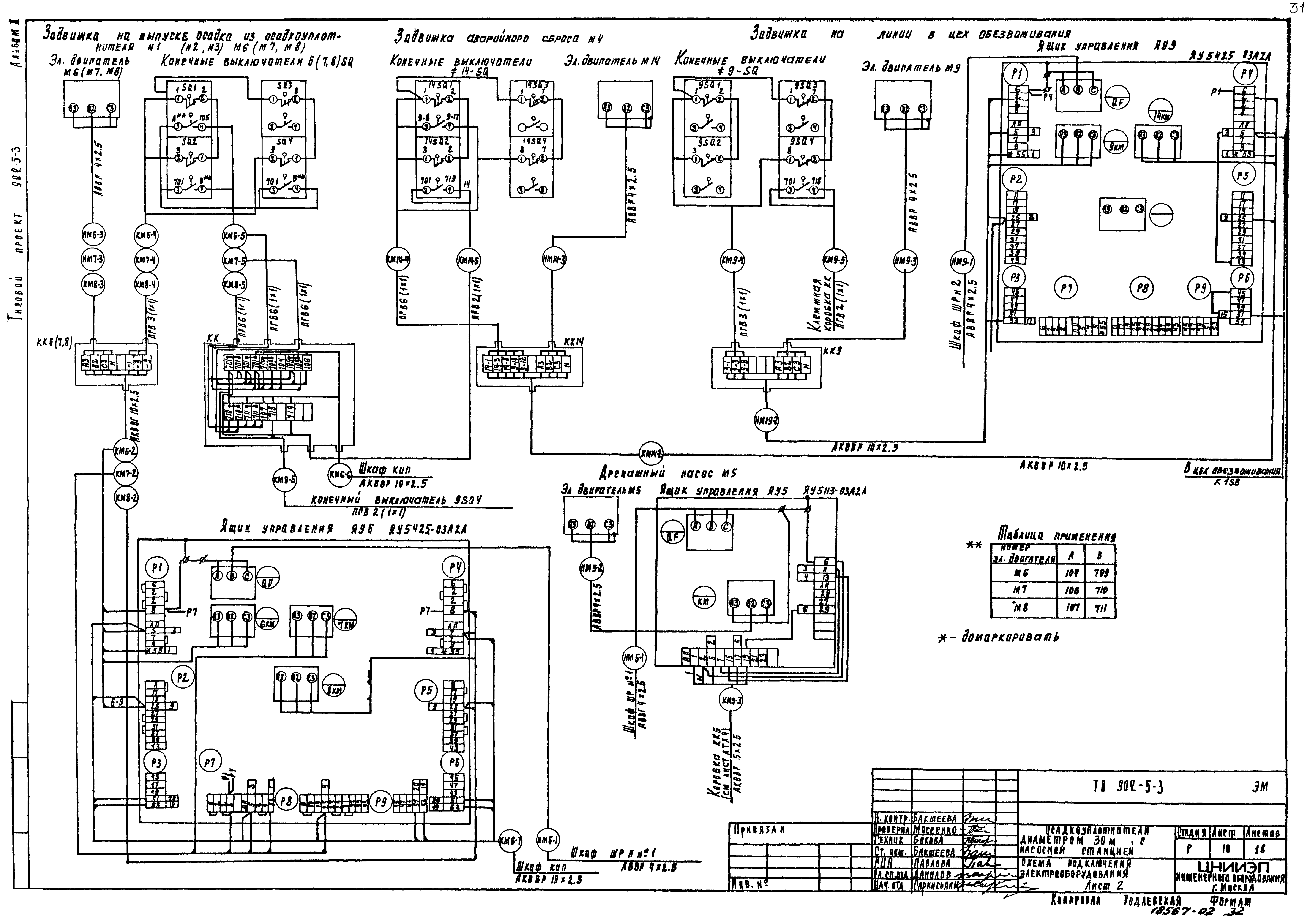
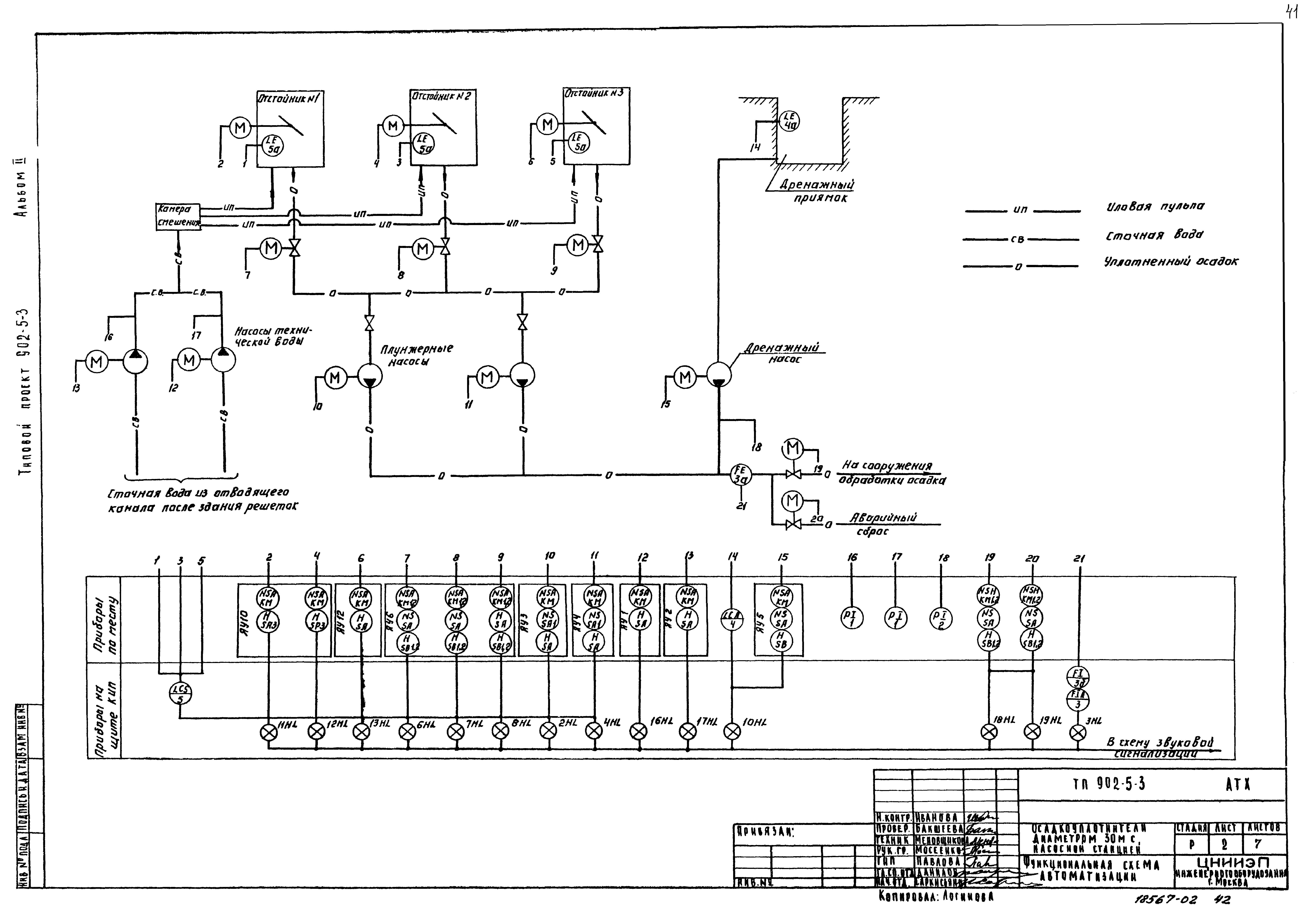
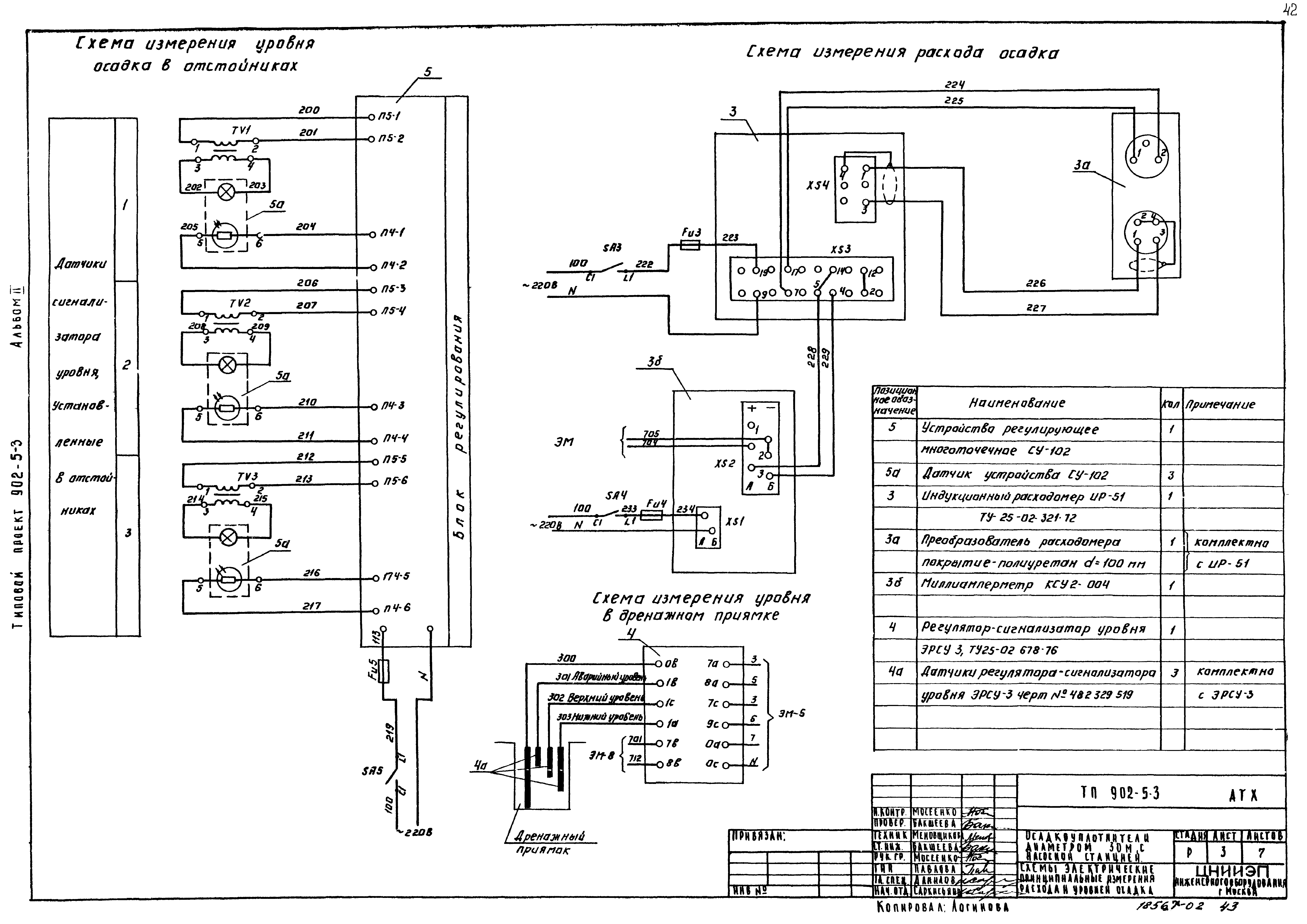
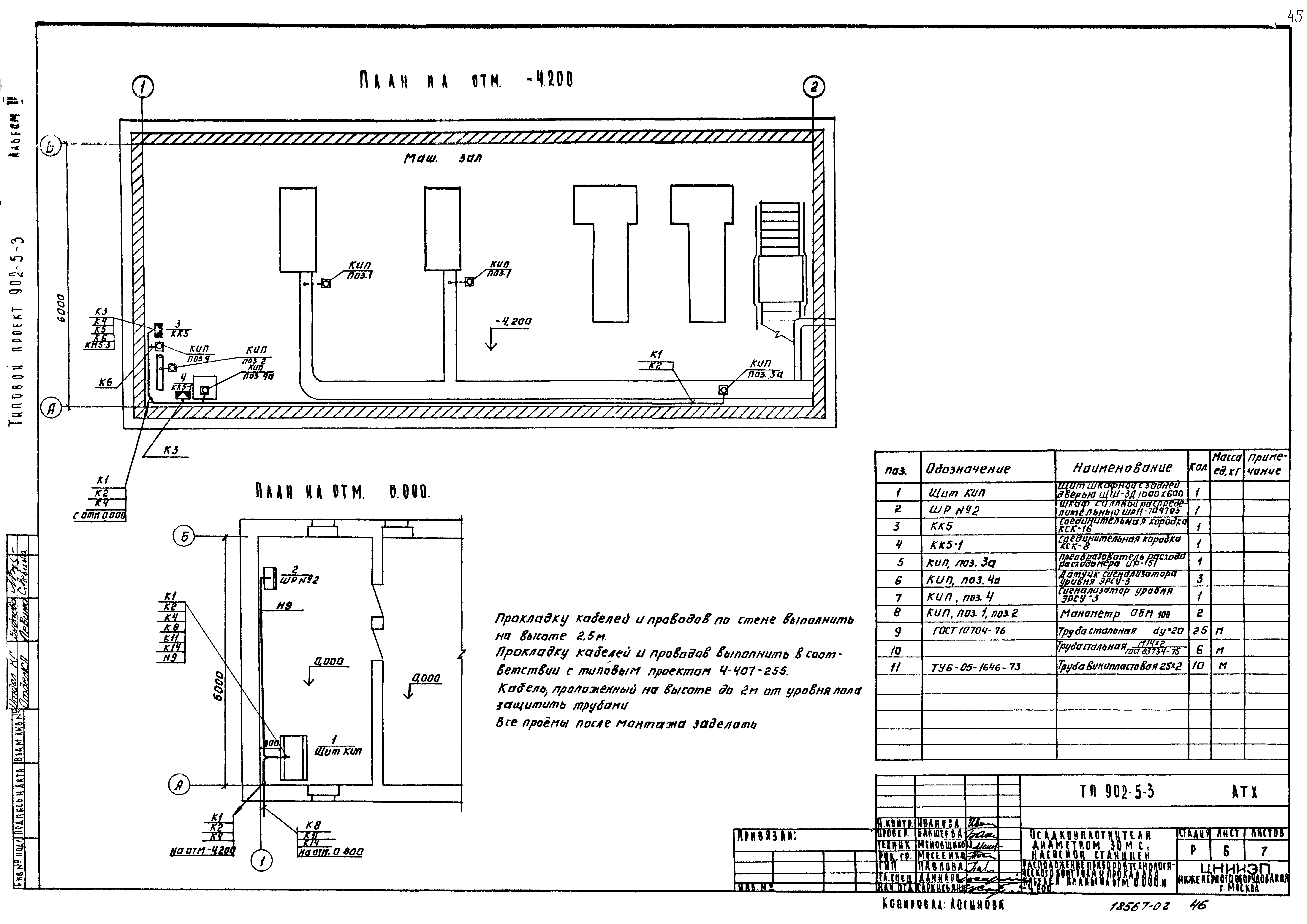
| Оглавление: | Содержание альбома Технологическая часть Общие данные Технологическая схема уплотнения смеси сырого осадка и избыточного активного ила План с коммуникациями Осадкоуплотнитель. План. Разрезы 1-1; 2-2; 3-3. Спецификация Осадкоуплотнитель. Монтажный чертеж Насосная станция. План на отм. -4.200. Разрезы Б-Б; В-В; А-А Насосная станция. Аксонометрическая схема технологических трубопроводов Внутренний водопровод и канализация. Планы на отм. 0.000; -4.200. Схемы В1, В3, К1, К2, К3. Спецификация Профиль подводящего трубопровода -И8- к осадкоуплотнителю №2, №3 Профиль подводящего трубопровода -И8- к осадкоуплотнителю №1 Профиль трубопровода -И11- от осадкоуплотнителей №1, №2 Профиль трубопровода -И11- от осадкоуплотнителя №3. Профиль трубопровода М4 Профиль трубопровода М8 Профиль трубопровода И2 Профиль трубопроводов И2, К1 Профиль трубопроводов В10 Таблица колодцев Отопление и вентиляция Общие данные Насосная станция. План на отм. -4.200; 0.000. Система отопления. Система вентиляции ВЕ-1 - ВЕ-3 Электротехническая часть. Силовое Электрооборудование Общие данные Схема электрическая принципиальная питания электрооборудования Схемы электрические принципиальные управления насосами технической воды и плунжерными насосами Схемы электрические принципиальные управления дренажным насосом и задвижкой на выпуске осадка из осадкоуплотнителя Схема электрическая принципиальная общих цепей управления Схемы электрические принципиальные управления илоскребами и задвижками на линиях в цех обезвоживания и аварийного сброса Схема электрическая принципиальная аварийной сигнализации Схема подключения электрооборудования Кабельный журнал Расположение электрооборудования и прокладка кабелей. Планы на отметке 0.000 и - 4.200 Электрическое освещение. Планы на отметке 0.000 и - 4.200 Внешние сети. Прокладка кабелей Ведомость электрооборудования и материалов Автоматизация Общие данные Функциональная схема автоматизации Схемы электрические принципиальные измерения расхода и уровней осадка Схемы питания и подключения приборов технологического контроля Схема подключения щита КИП Расположение приборов технологического контроля и прокладка кабелей. Планы на отм. 0.000 и - 4.200 Внешние сети. Расположение приборов технологического контроля и прокладка кабелей |
| Разработан: | ЦНИИЭП инженерного оборудования |
| Утверждён: | 19.08.1982 Госгражданстрой (Gosgrazhdanstroy 226) |
| Издан: | ЦИТП Госстроя СССР (CITP, Gosstroy (USSR) 1983 г. ) |















































