Скачать Типовые проектные решения 901-02-136.84 Альбом I. Технология производства. Силовое электрооборудование. Автоматизация технологии производстваДата актуализации: 01.01.2021
|
| Обозначение: | Типовые проектные решения 901-02-136.84 |
| Обозначение англ: | 901-02-136.84 |
| Статус: | справочные материалы, мп, тпр |
| Название рус.: | Альбом I. Технология производства. Силовое электрооборудование. Автоматизация технологии производства |
| Дата добавления в базу: | 01.09.2013 |
| Дата актуализации: | 01.01.2021 |
| Дата введения: | 21.11.1984 |
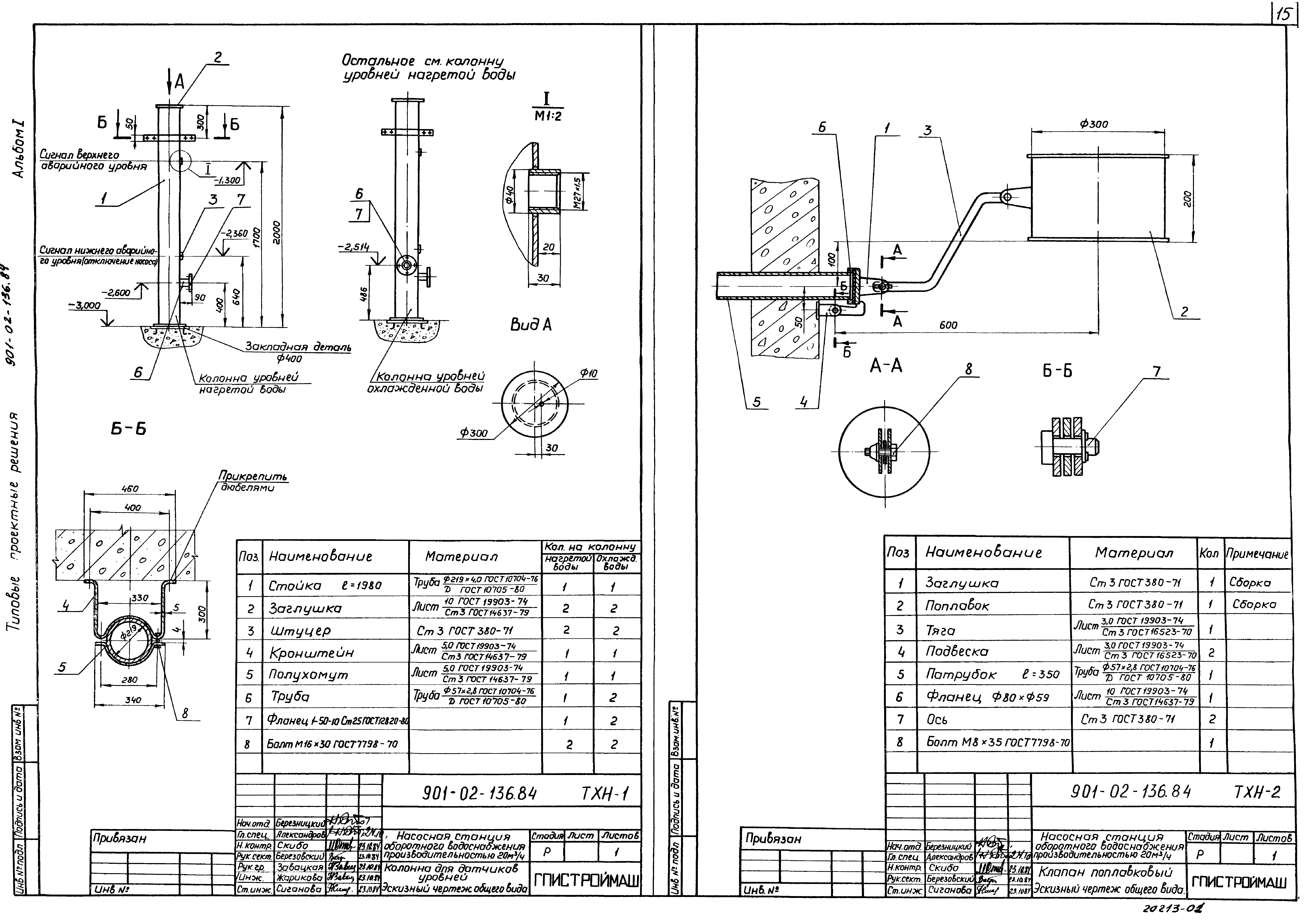
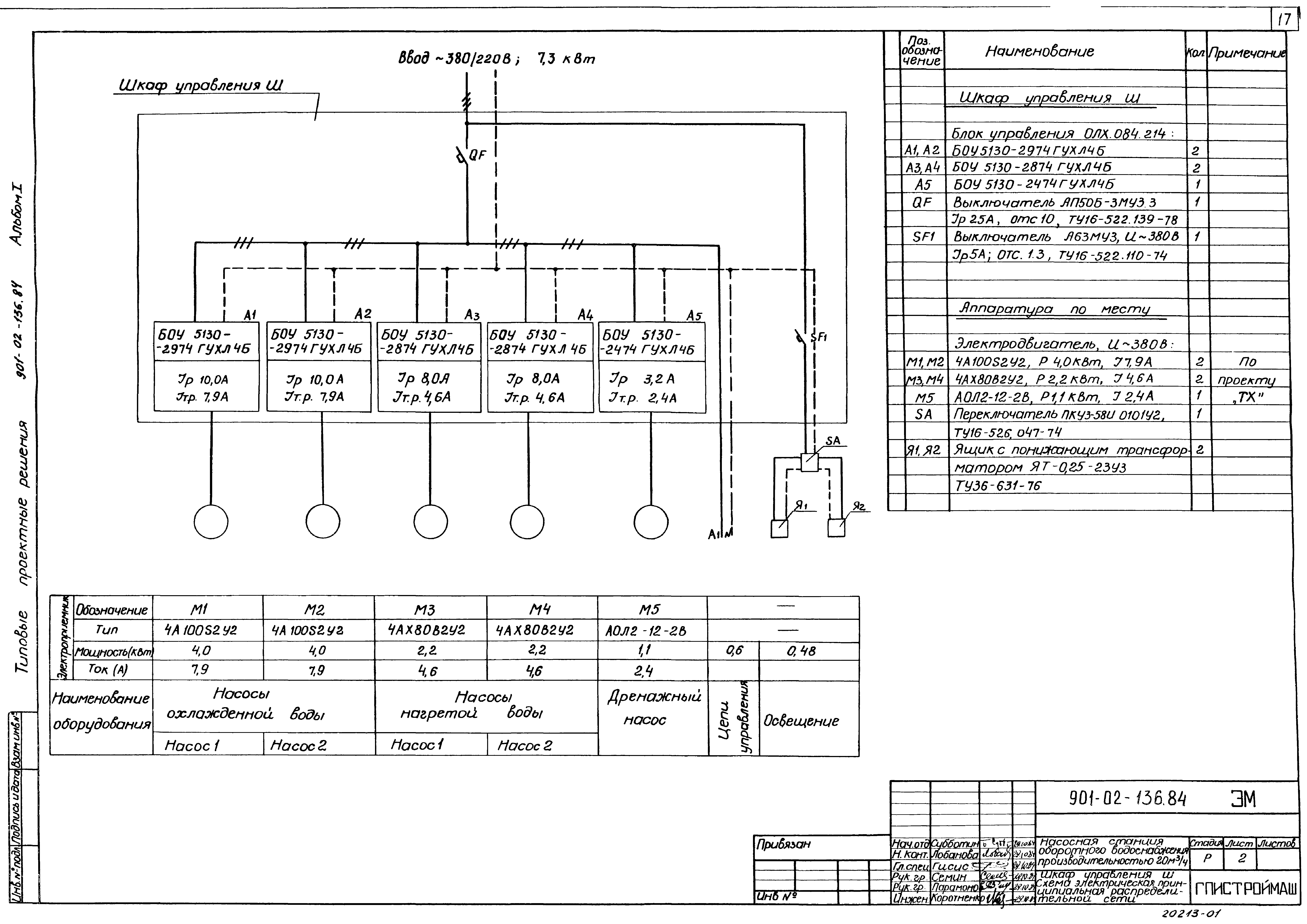
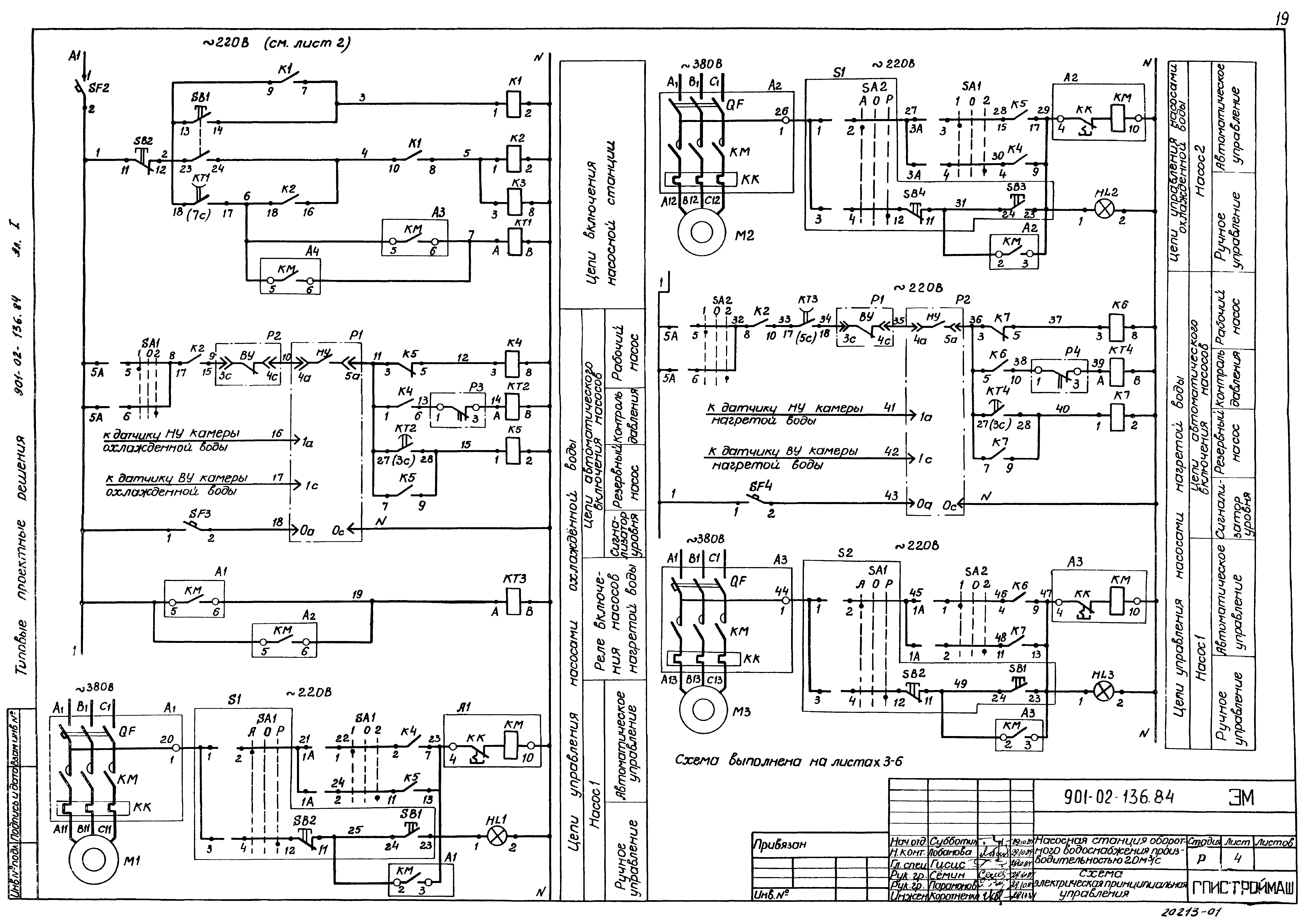
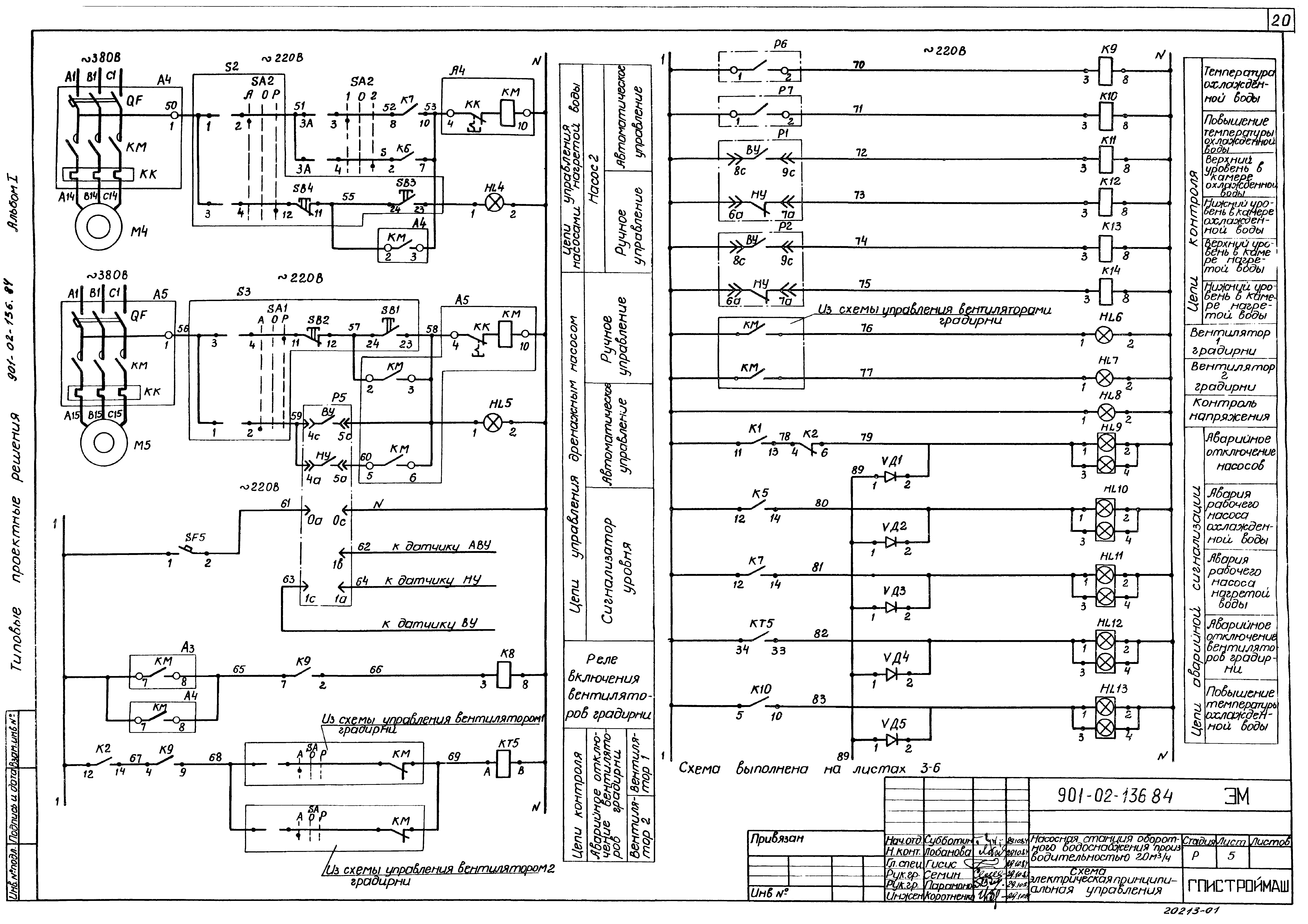
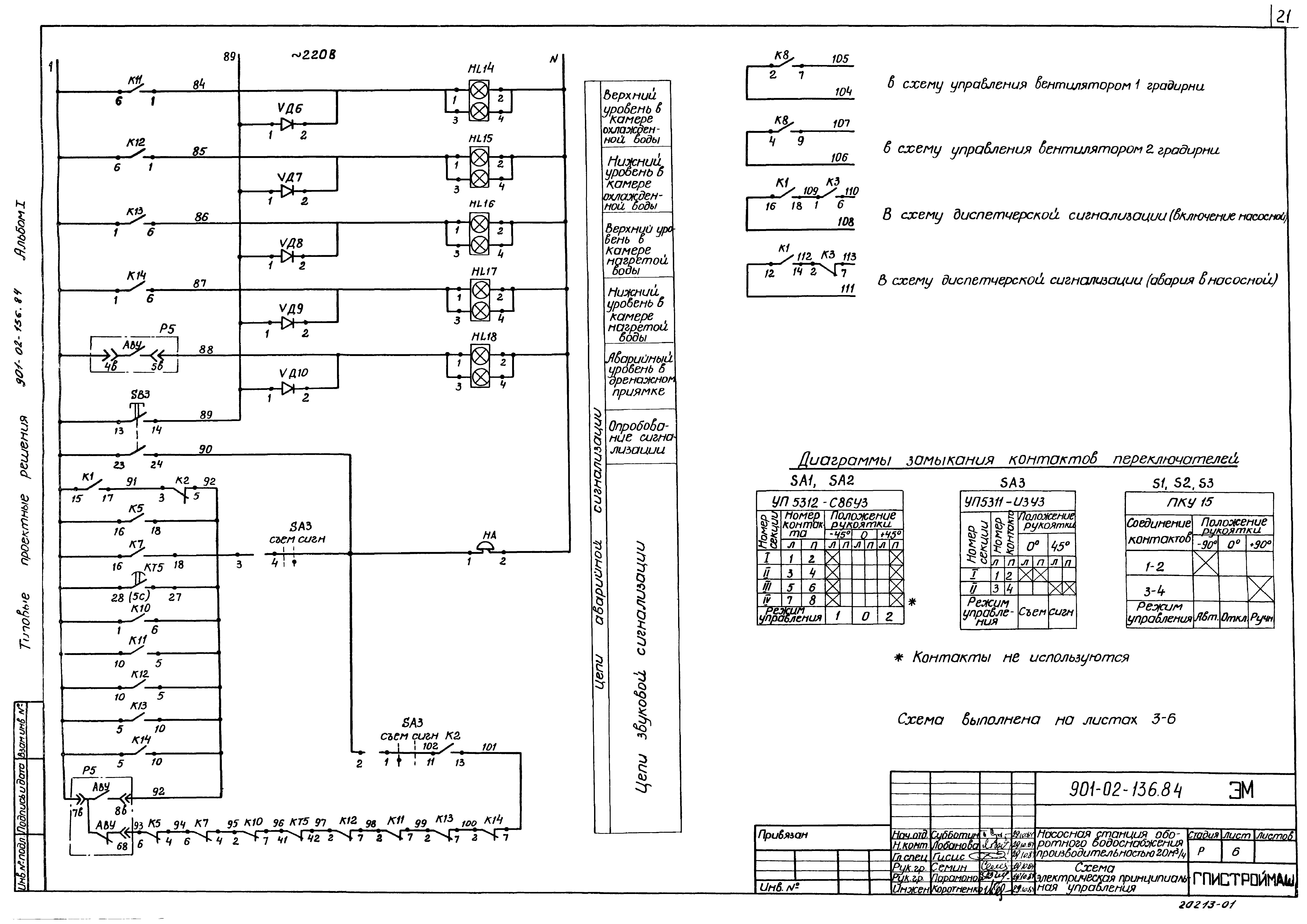
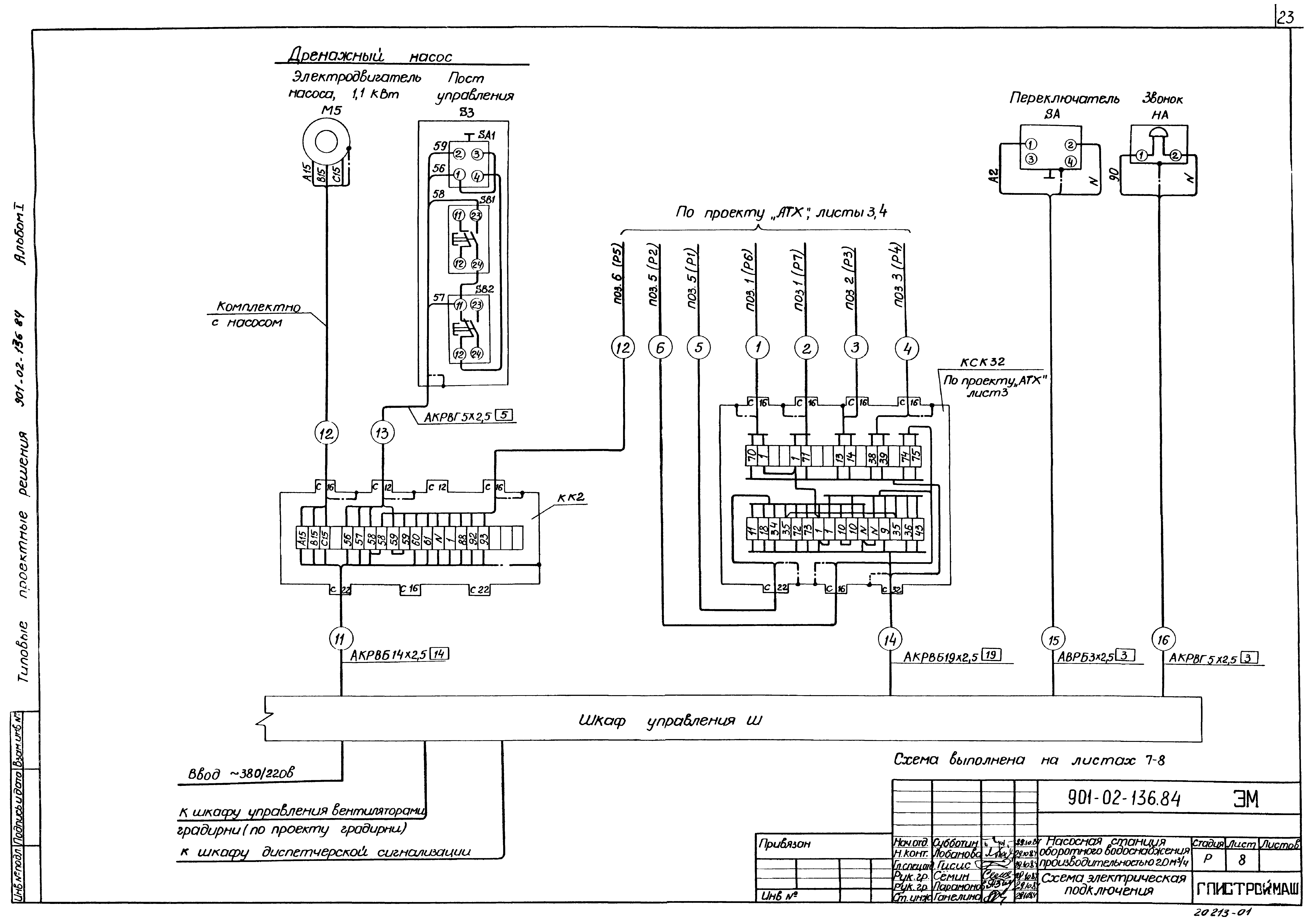
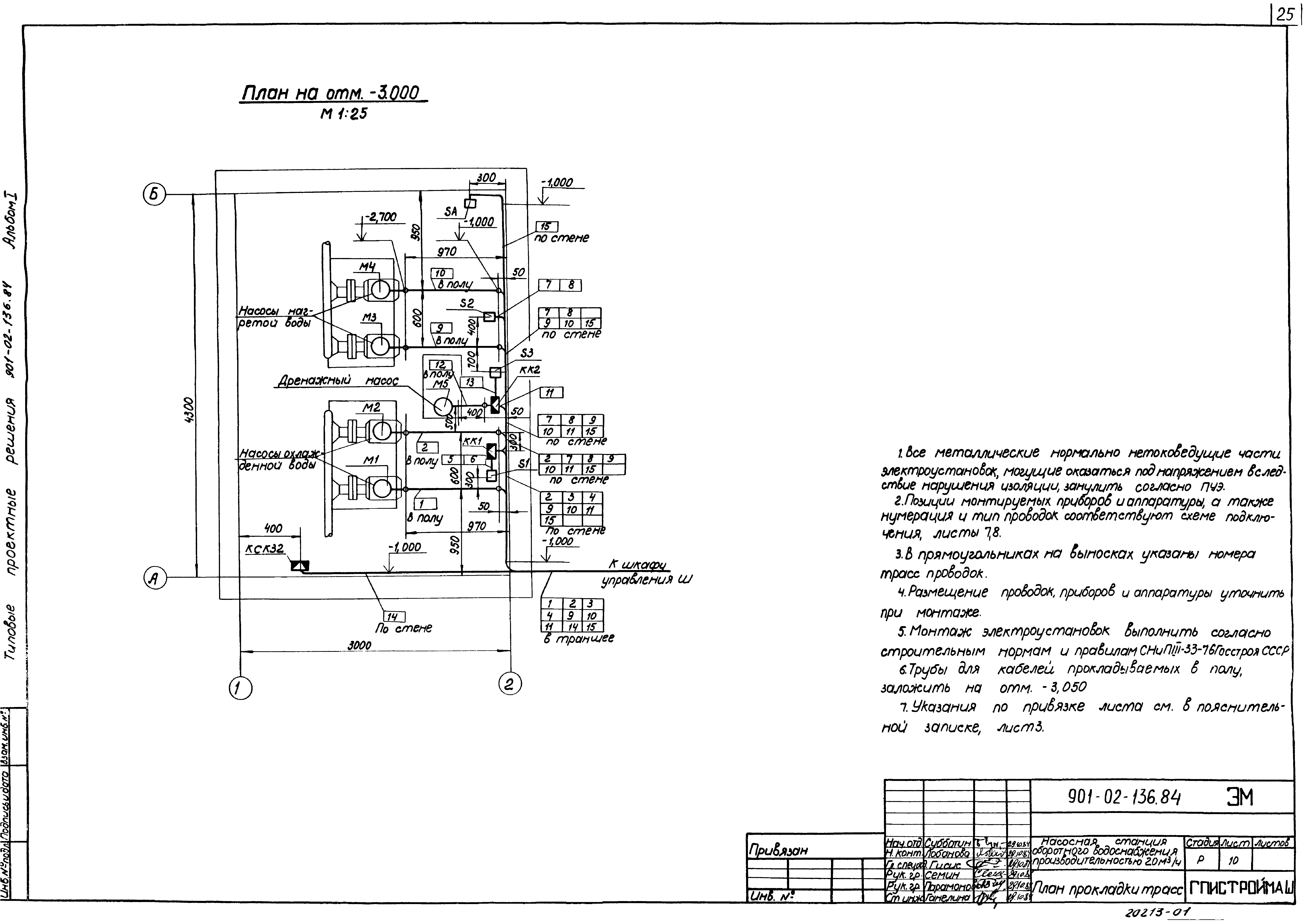
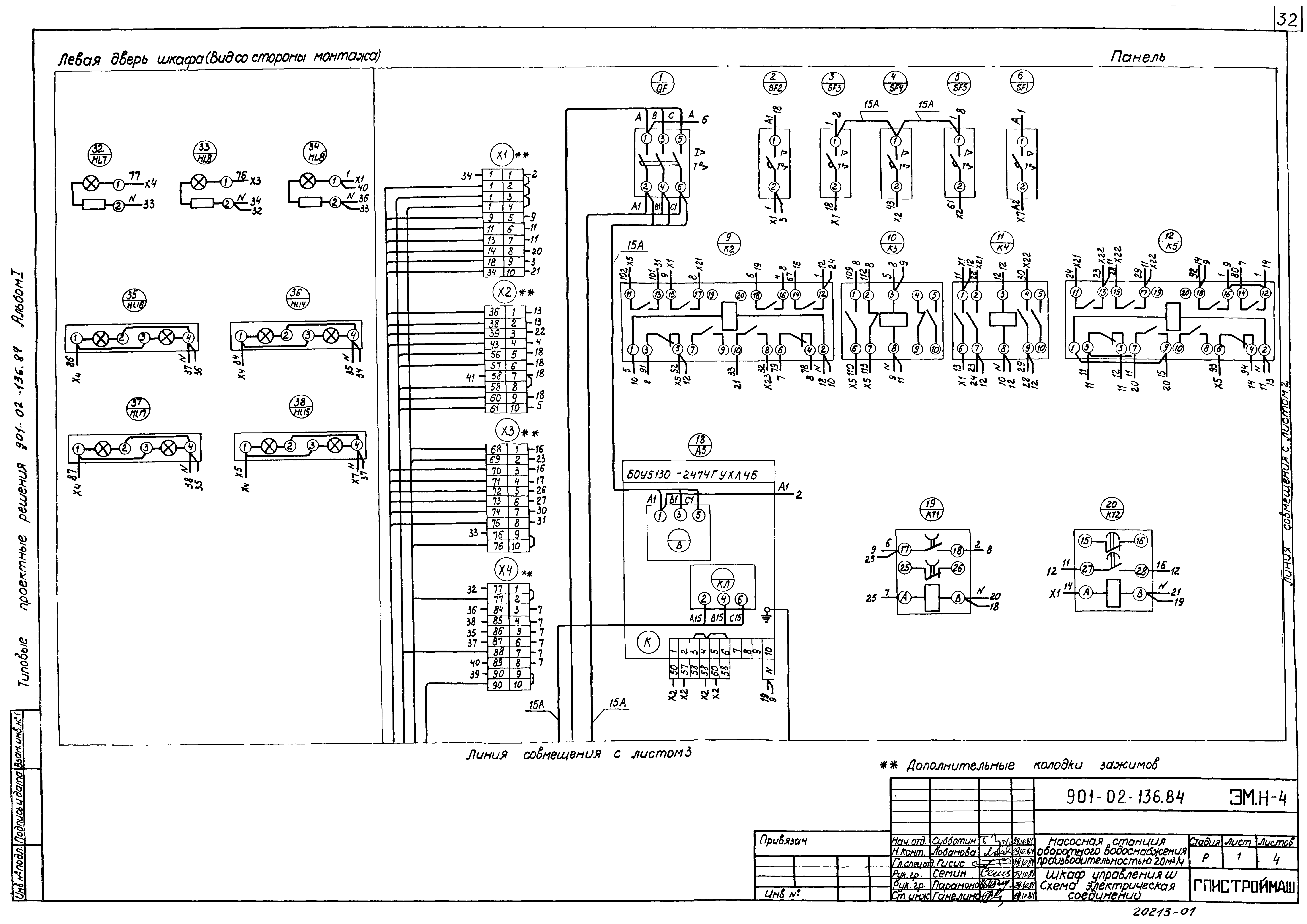
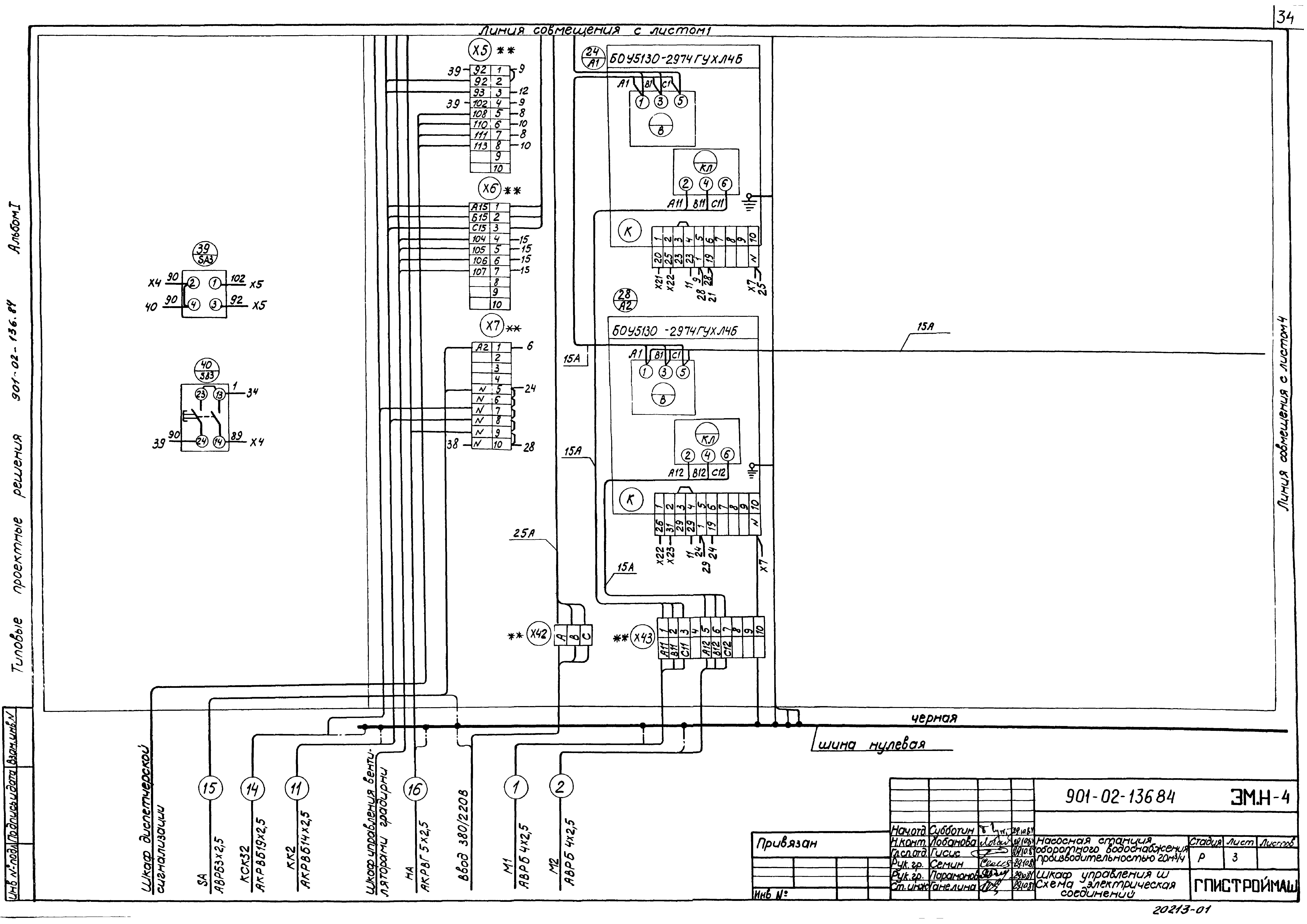
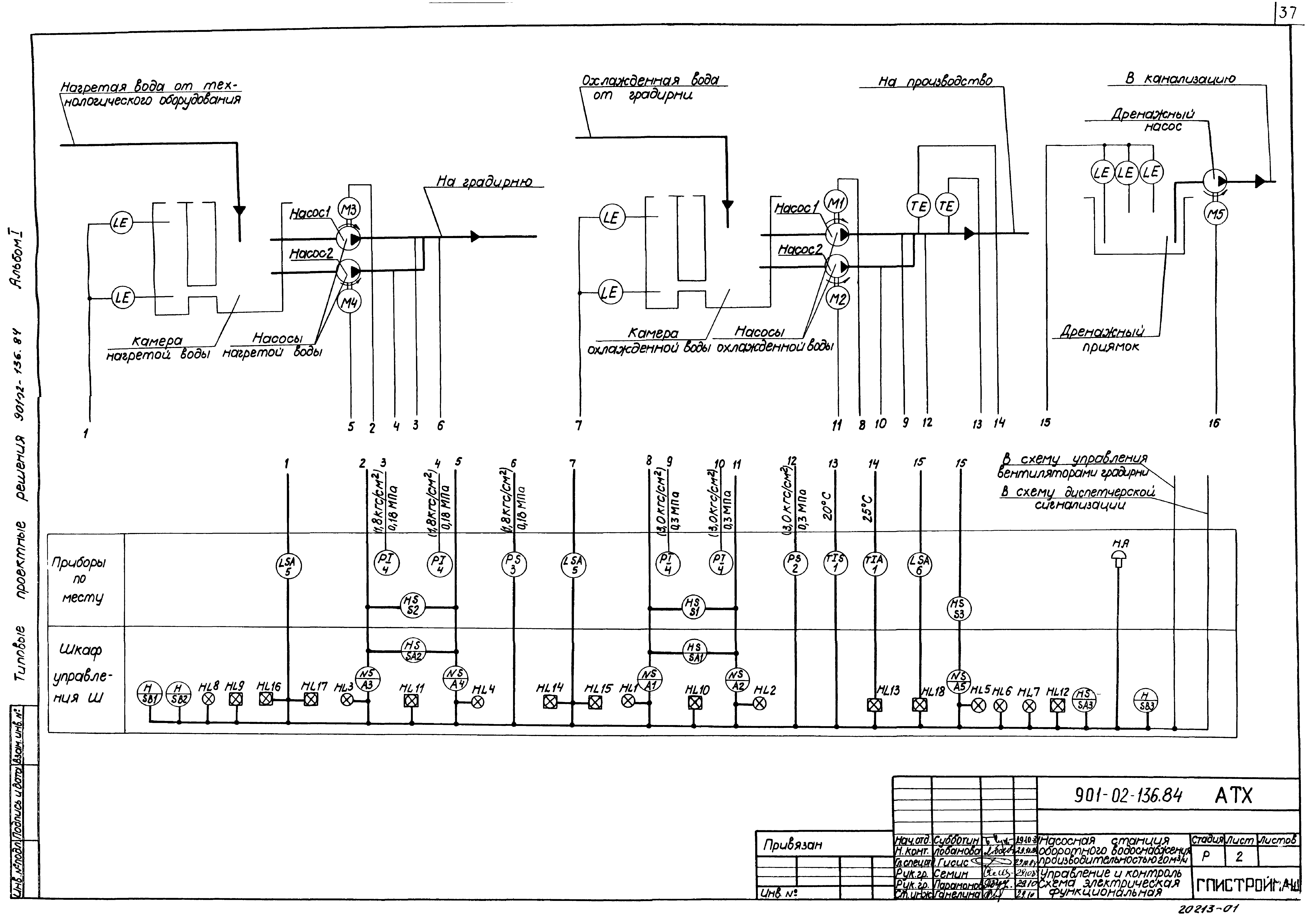
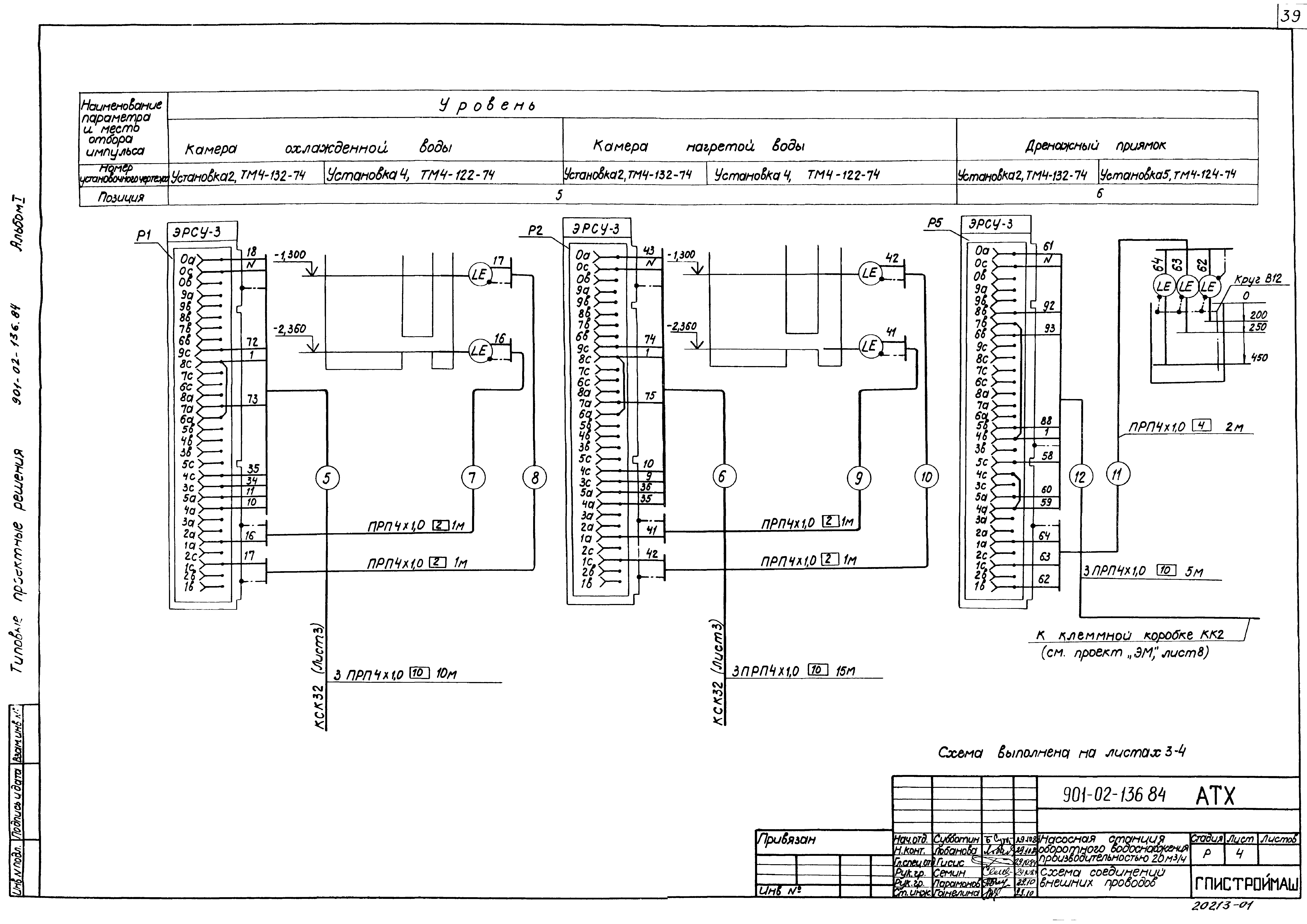
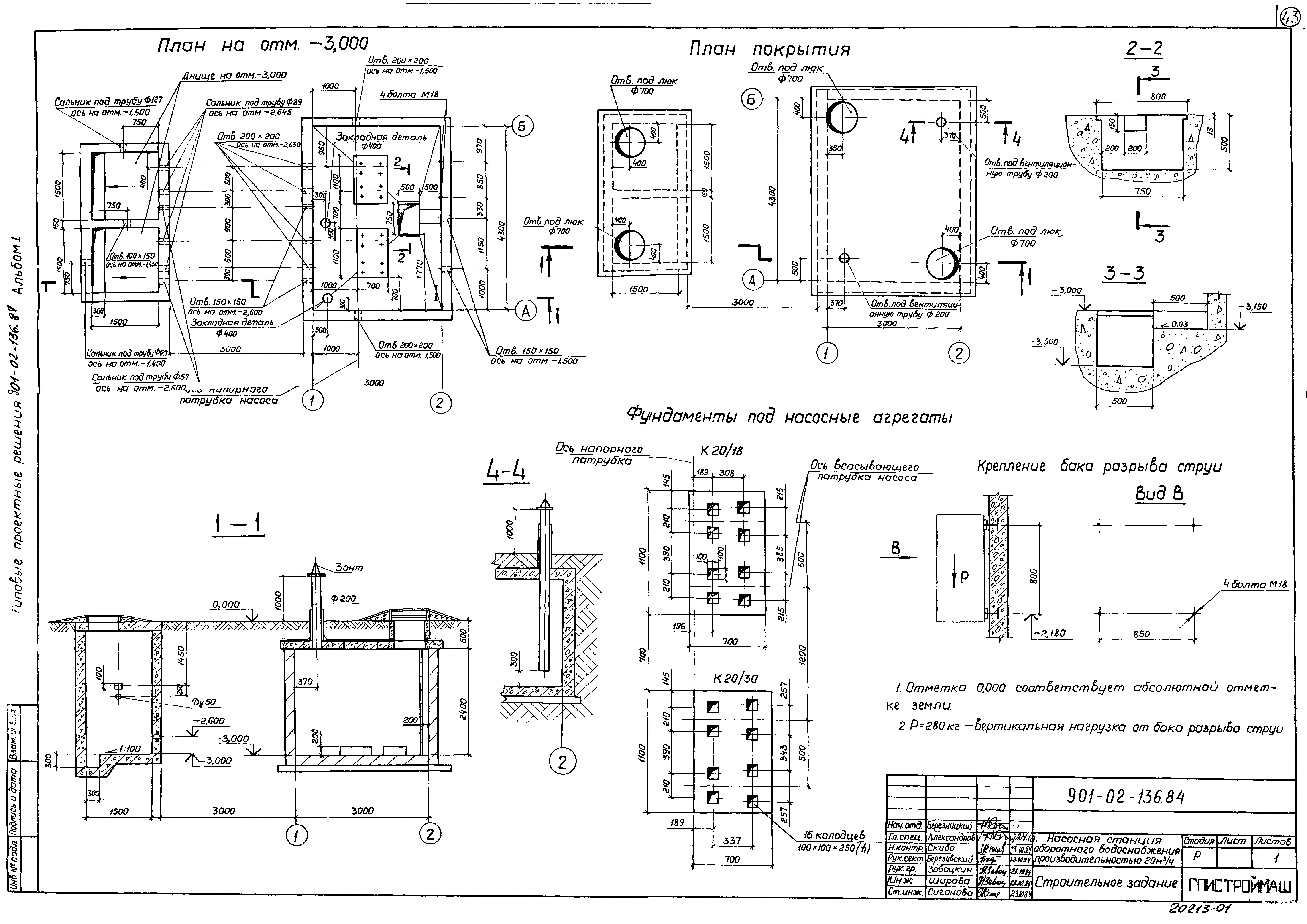
| Оглавление: | Пояснительная записка Технология производства Общие данные План на отм. -3.000. Разрезы 2-2; 3-3; 4-4 Разрез 1-1. Схемы систем В3; В4; В5; К3Н Спецификация оборудования Ведомость потребности в материалах Ведомость объемов строительных и монтажных работ Колонна для датчиков уровней. Эскизный чертеж общего вида Клапан поплавковый. Эскизный чертеж общего вида Силовое оборудование Общие данные Шкаф управления Ш. Схема электрическая принципиальная распределительной сети Схема электрическая принципиальная управления Схема электрическая подключения Кабельный журнал План прокладки трасс Сети электроосвещения. План Спецификация оборудования Ведомость потребности в материалах Ведомость объемов строительных и монтажных работ Шкаф управления Ш. Технические данные аппаратов Шкаф управления Ш. Чертеж общего вида Шкаф управления Ш. Таблица перечня надписей Шкаф управления Ш. Схема электрическая соединений Автоматизация технологии производства Общие данные Управление и контроль. Схема электрическая функциональная Схема соединений внешних проводок План расположения Спецификация оборудования Ведомость потребности в материалах Ведомость объемов строительных и монтажных работ Строительное задание |
| Разработан: | ГПИстроймаш |
| Утверждён: | 21.11.1984 Минстройдормаш (Minstroydormash 20/84) |
| Издан: | ЦИТП Госстроя СССР (CITP, Gosstroy (USSR) 1986 г. ) |












































