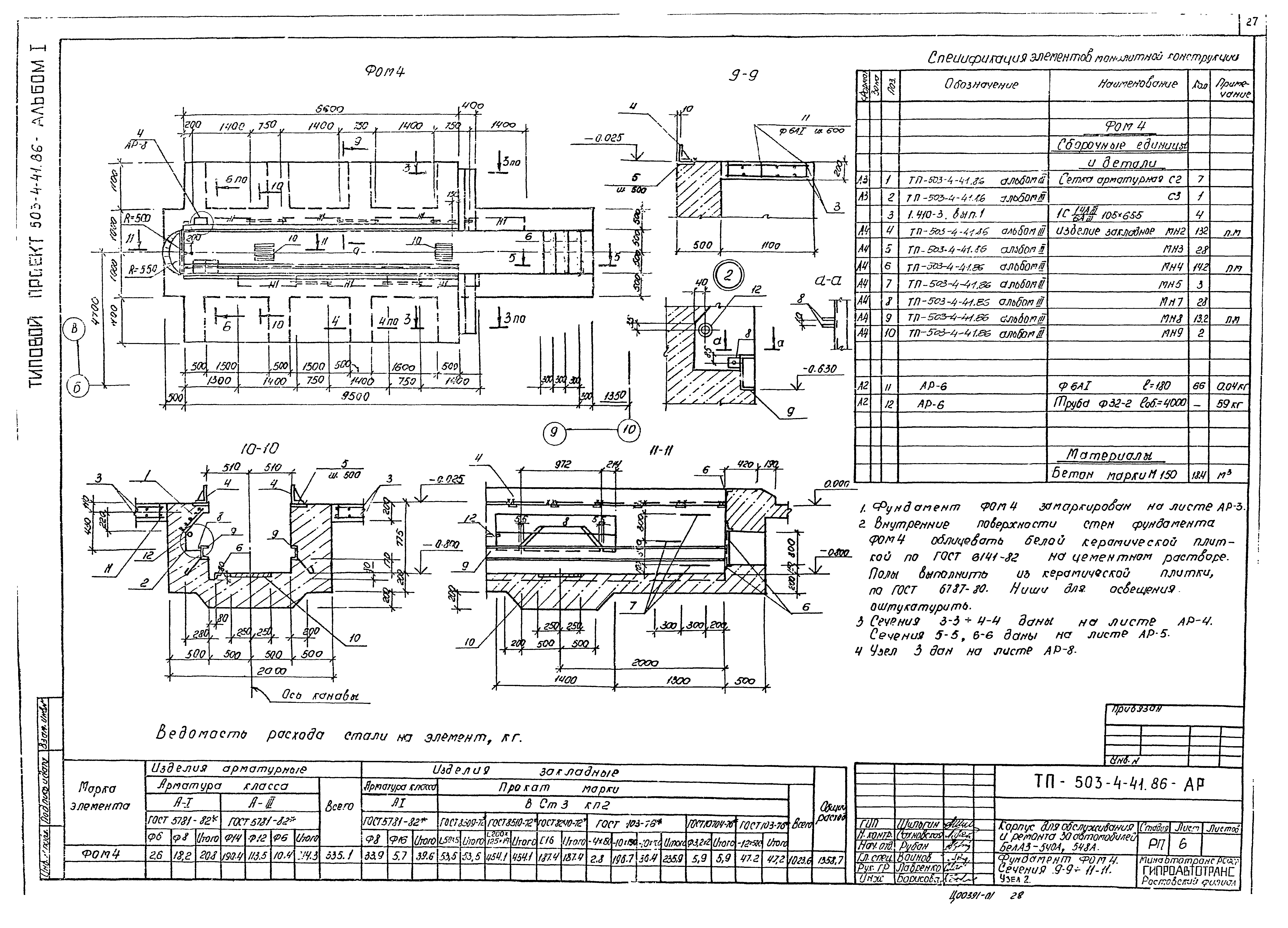
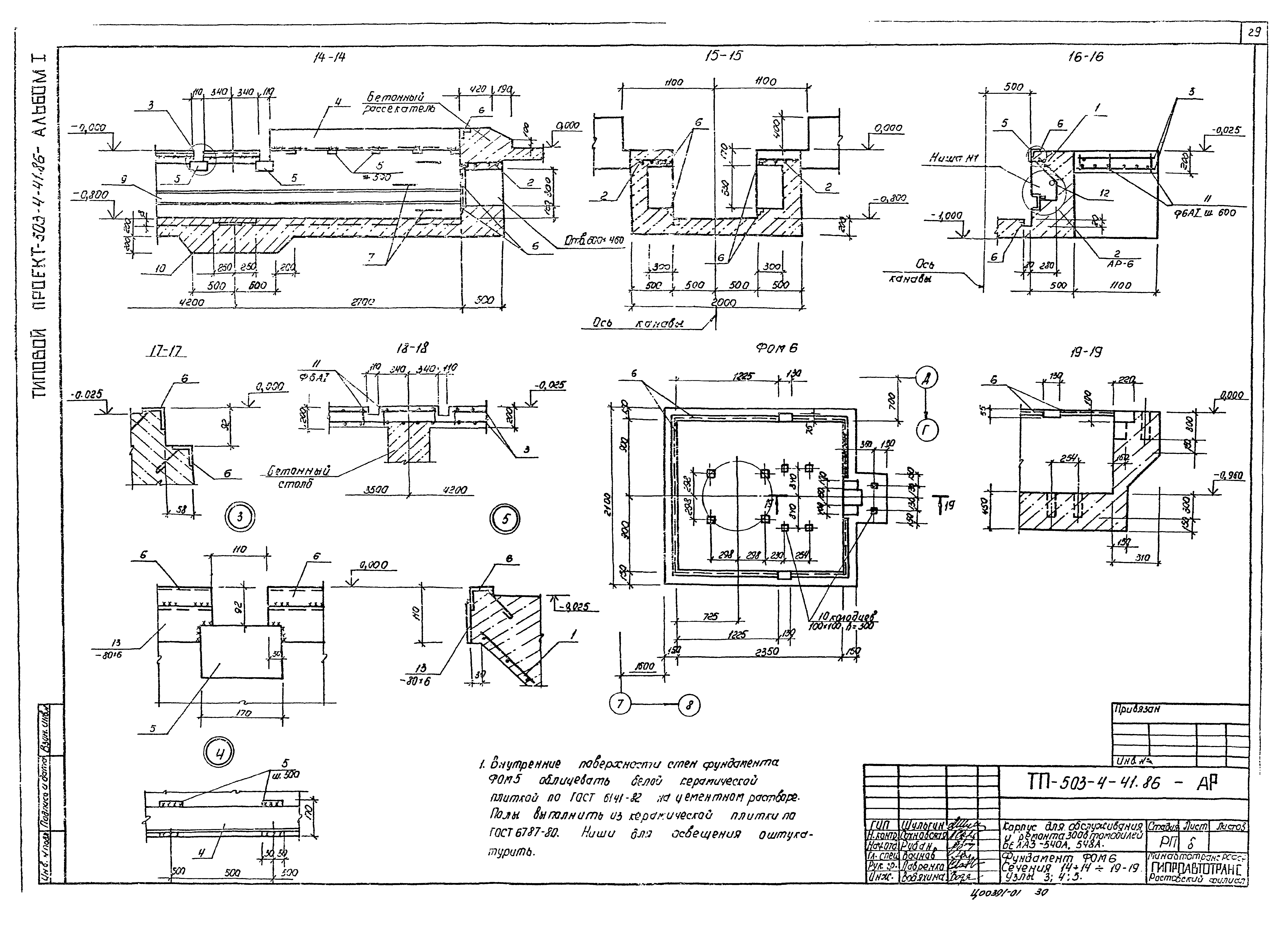
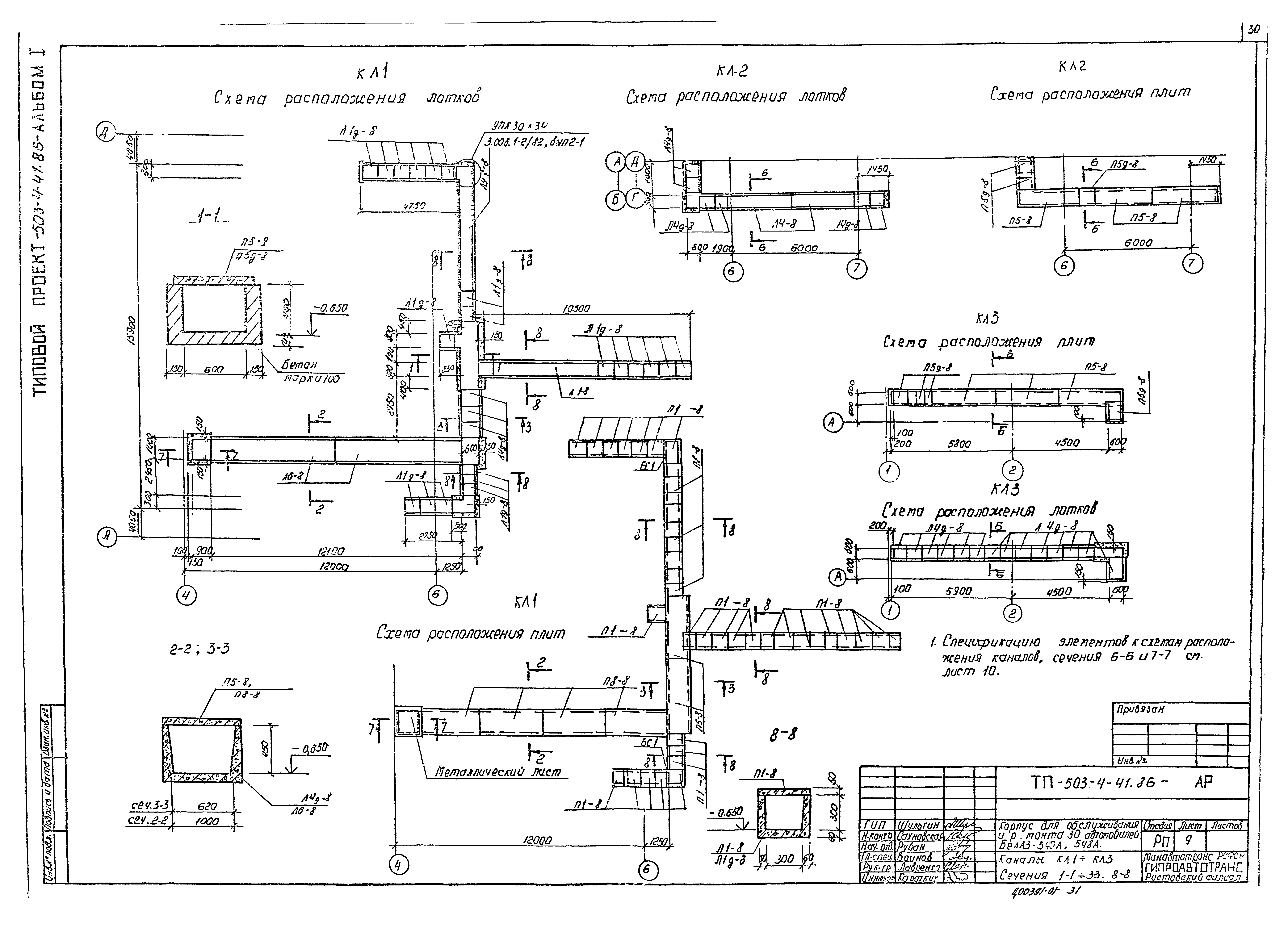
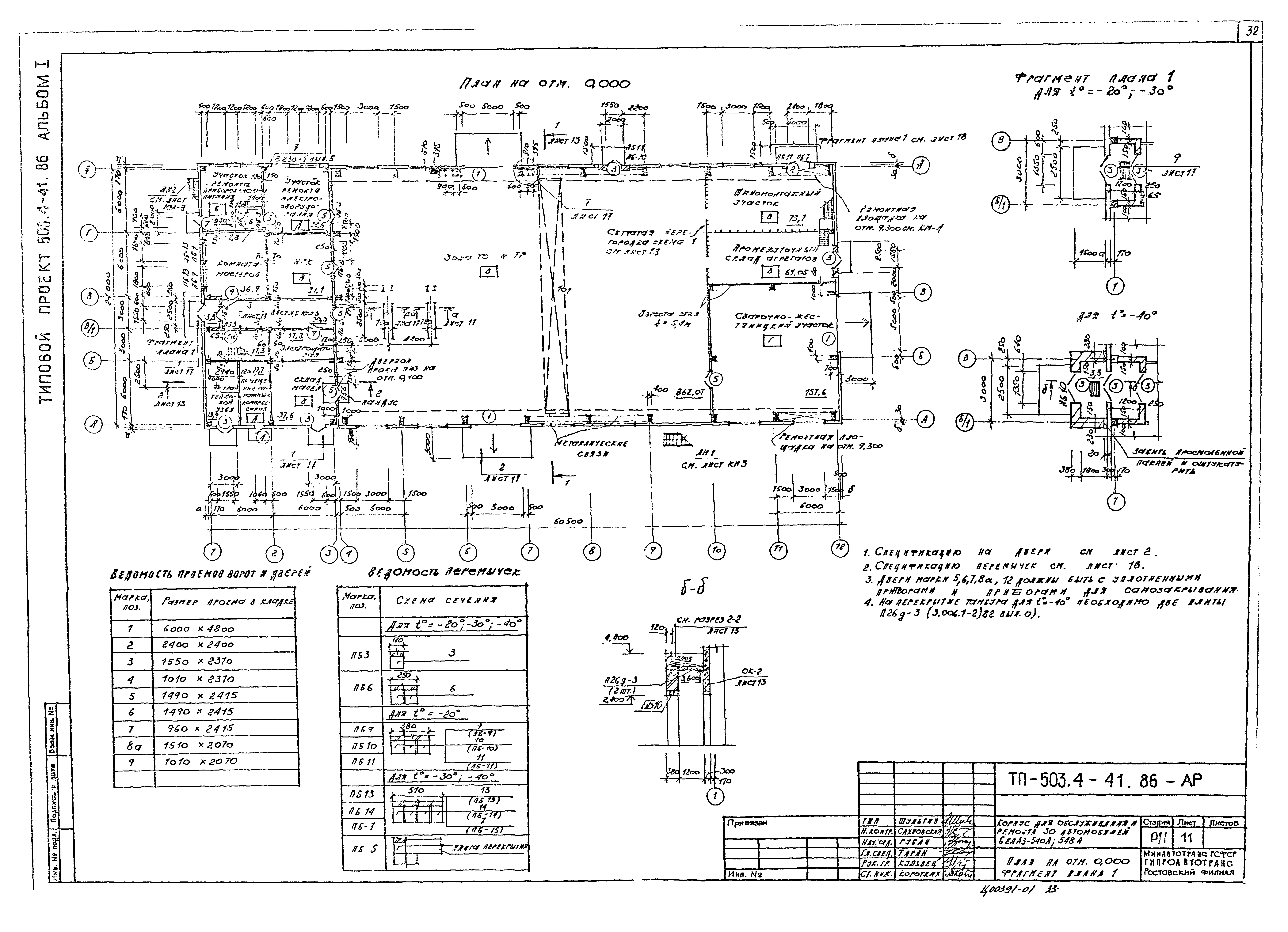
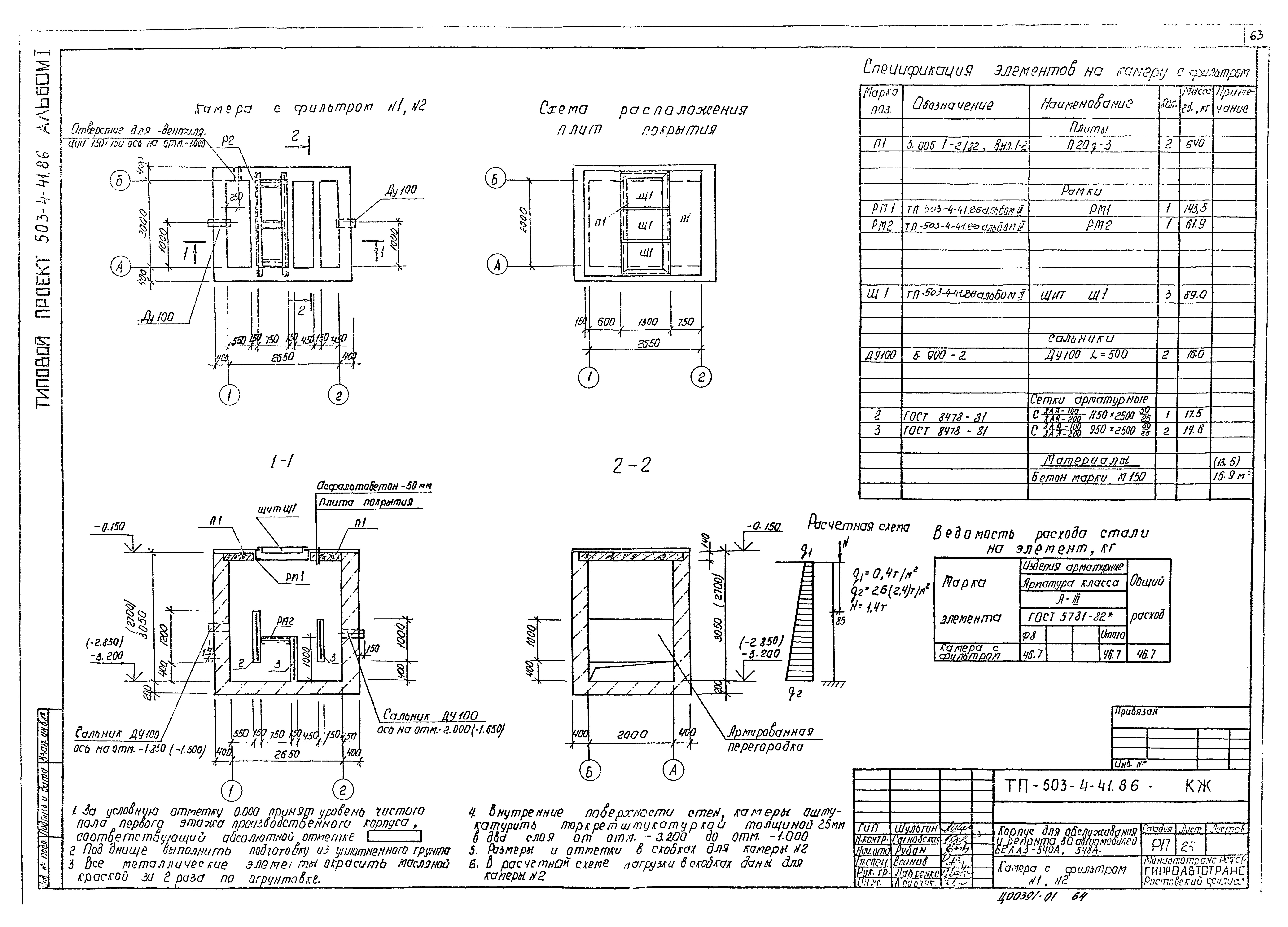
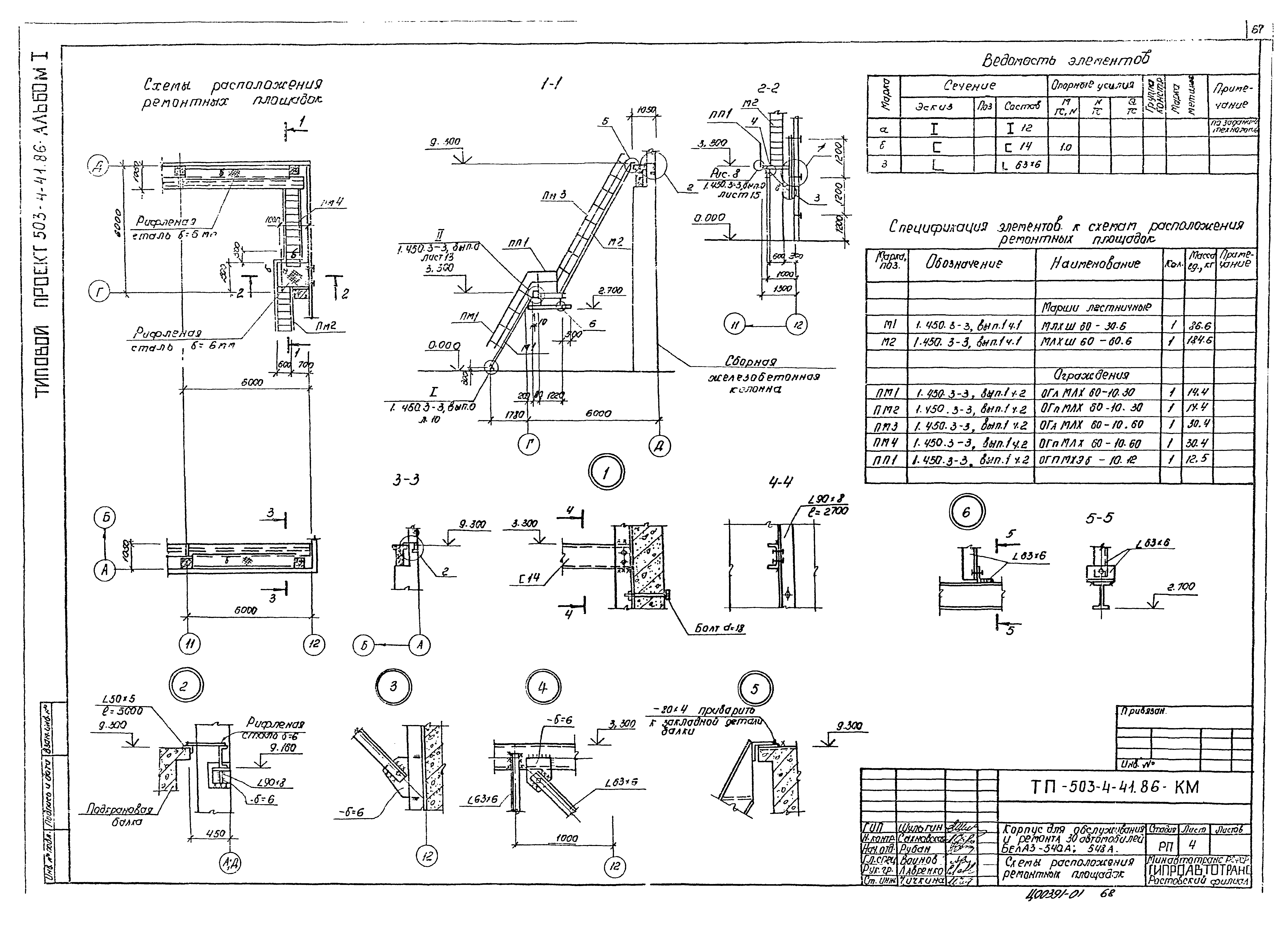
Скачать Типовой проект 503-4-41.86 Альбом I. Общая пояснительная записка. Технология производства. Архитектурные решения. Конструкции железобетонные. Конструкции металлическиеДата актуализации: 01.01.2021
|
| Обозначение: | Типовой проект 503-4-41.86 |
| Обозначение англ: | 503-4-41.86 |
| Статус: | не определен законодательством |
| Название рус.: | Альбом I. Общая пояснительная записка. Технология производства. Архитектурные решения. Конструкции железобетонные. Конструкции металлические |
| Дата добавления в базу: | 01.09.2013 |
| Дата актуализации: | 01.01.2021 |
| Дата введения: | 18.02.1986 |
| Дата окончания срока действия: | 30.06.2003 |
| Разработан: | Гипроавтотранс |
| Утверждён: | 18.02.1986 Минавтотранс РСФСР (Russian Federation Minavtotrans 8) |




































































