Скачать Типовой проект 810-1-13.86 Альбом II. Многопролетные теплицы. Отопление и вентиляция (вариант теплоснабжения от собственной котельной)Дата актуализации: 01.01.2021
|
| Обозначение: | Типовой проект 810-1-13.86 |
| Обозначение англ: | 810-1-13.86 |
| Статус: | не определен законодательством |
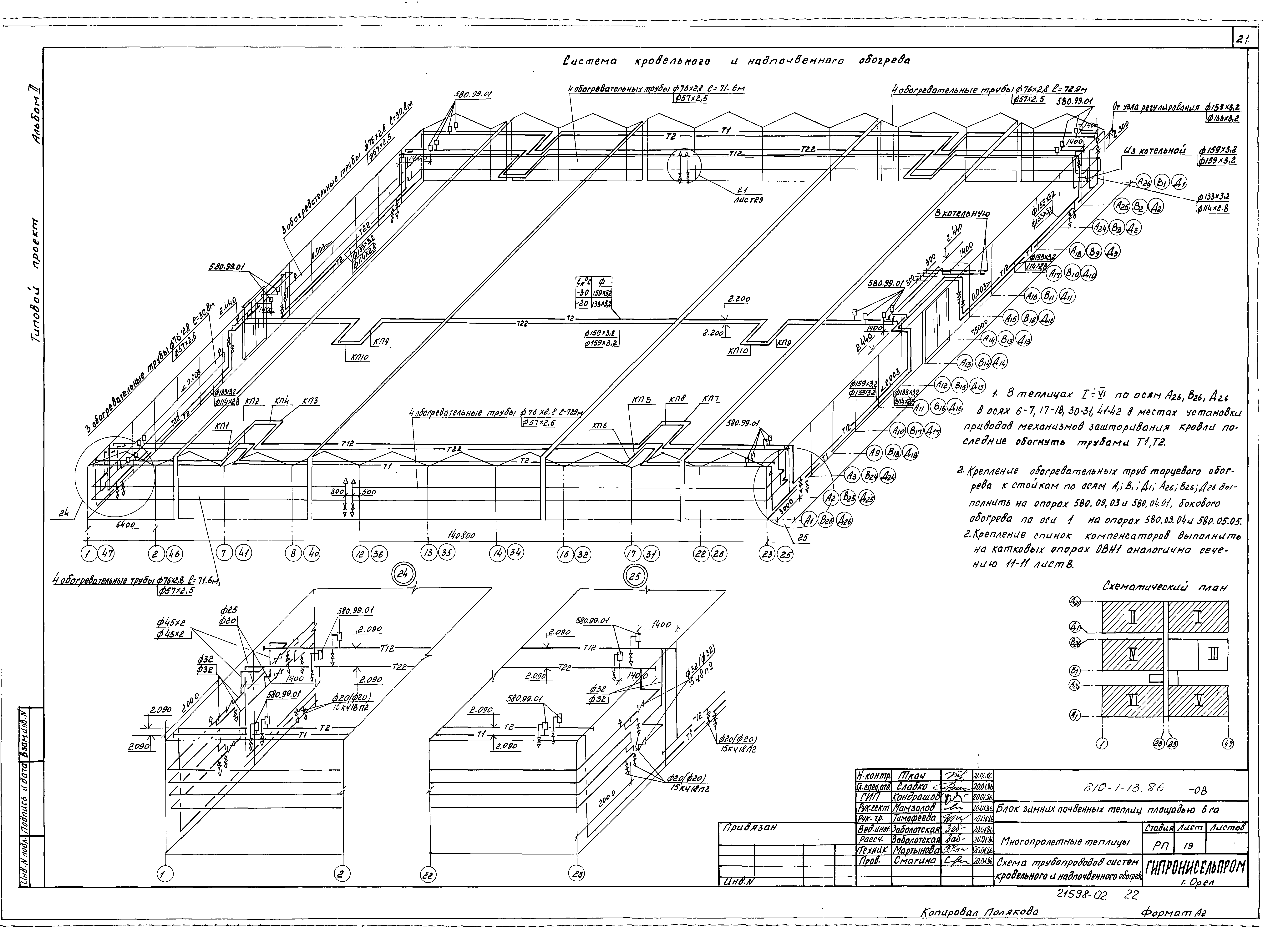
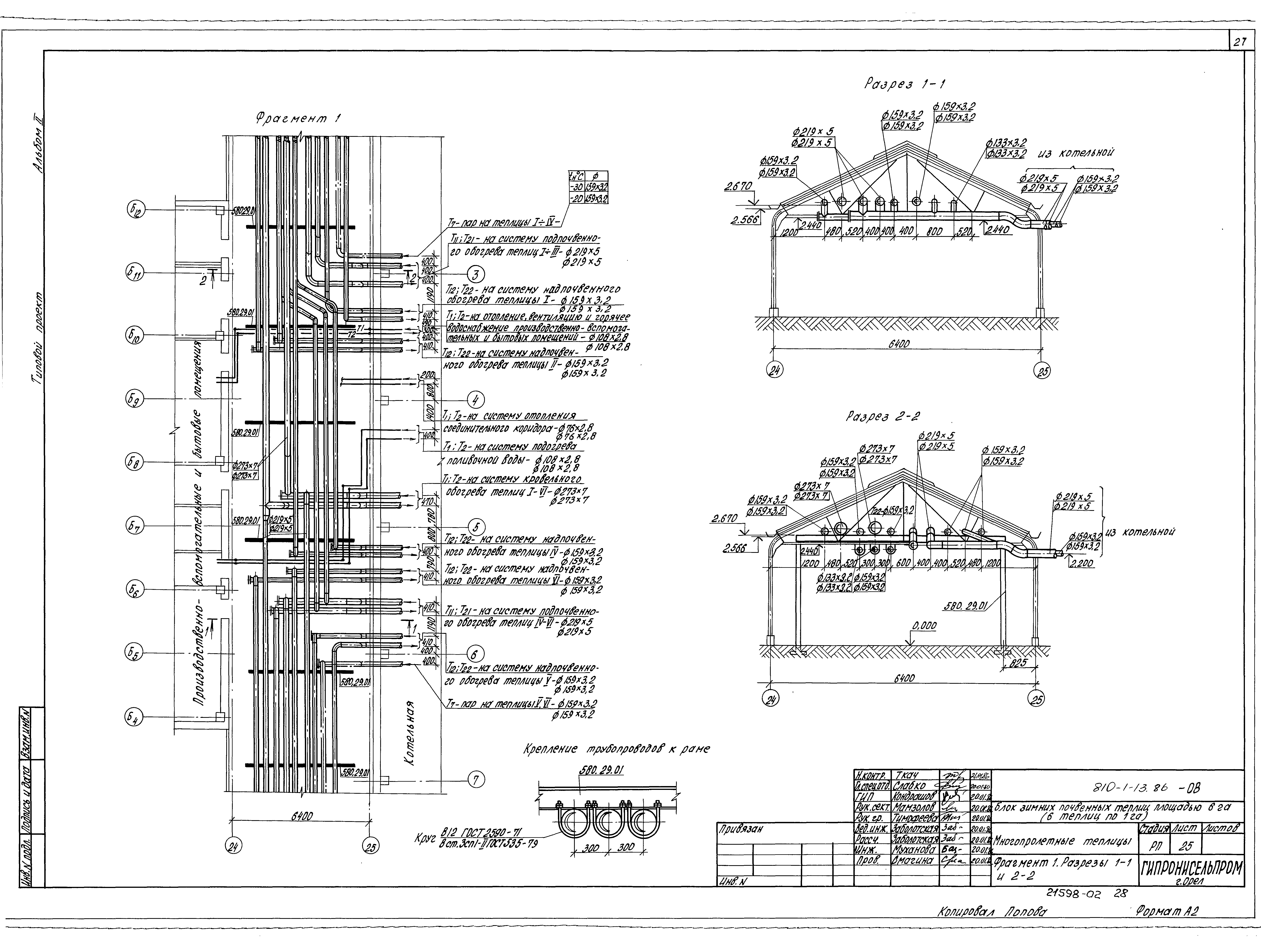
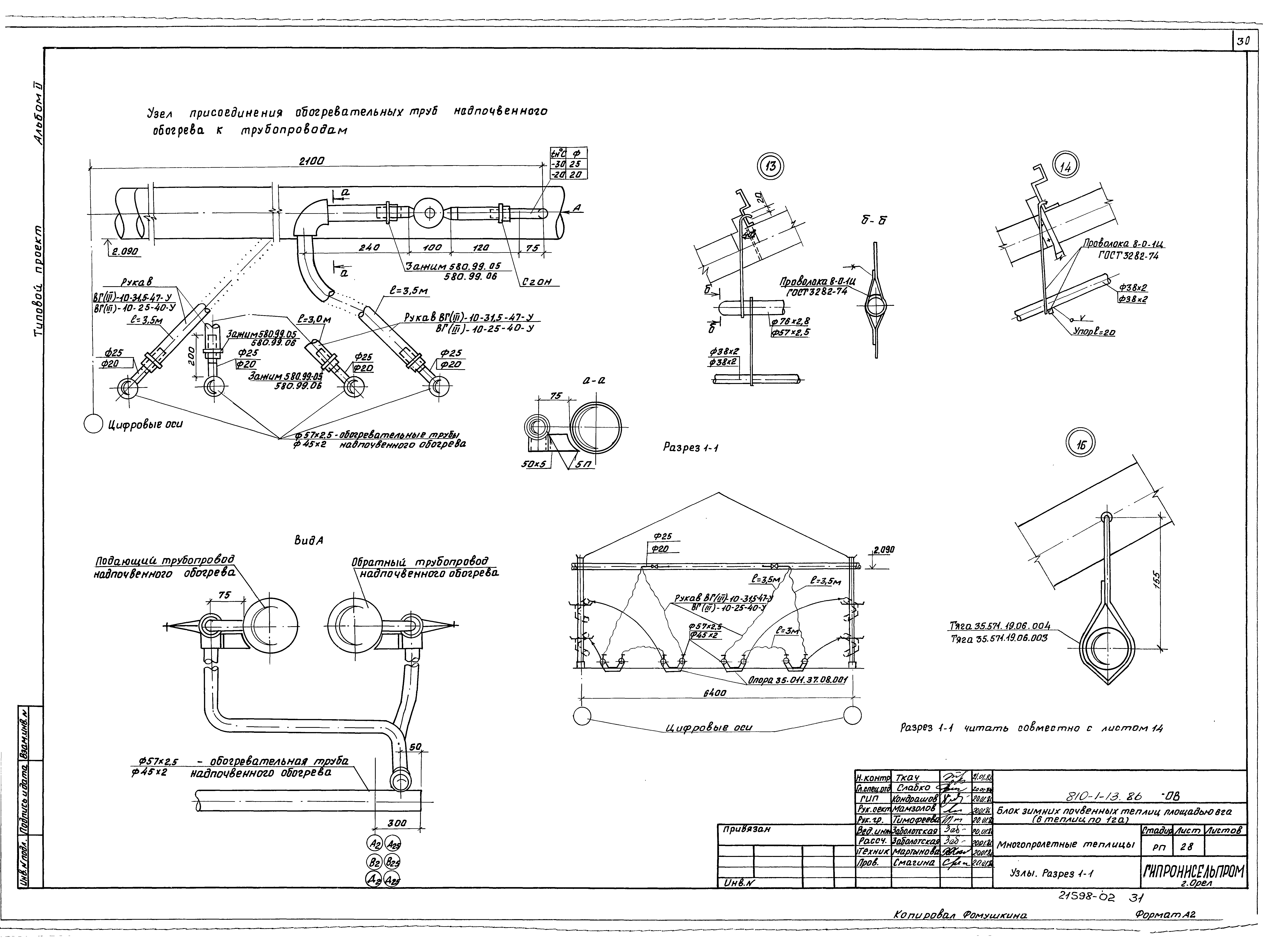
| Название рус.: | Альбом II. Многопролетные теплицы. Отопление и вентиляция (вариант теплоснабжения от собственной котельной) |
| Дата добавления в базу: | 01.09.2013 |
| Дата актуализации: | 01.01.2021 |
| Дата введения: | 18.12.1985 |
| Дата окончания срока действия: | 30.06.2003 |
| Разработан: | Гипронисельпром Минплодоовощхоза СССР |
| Утверждён: | 18.12.1985 Минплодоовощхоз СССР (03-32-51/7657) |





































