Скачать Типовые проектные решения 903-3-04с.91 Альбом 1. Пояснительная записка. Рабочие чертежиДата актуализации: 01.01.2021
|
| Обозначение: | Типовые проектные решения 903-3-04с.91 |
| Обозначение англ: | 903-3-04с.91 |
| Статус: | справочные материалы, мп, тпр |
| Название рус.: | Альбом 1. Пояснительная записка. Рабочие чертежи |
| Дата добавления в базу: | 01.09.2013 |
| Дата актуализации: | 01.01.2021 |
| Дата введения: | 17.12.1991 |
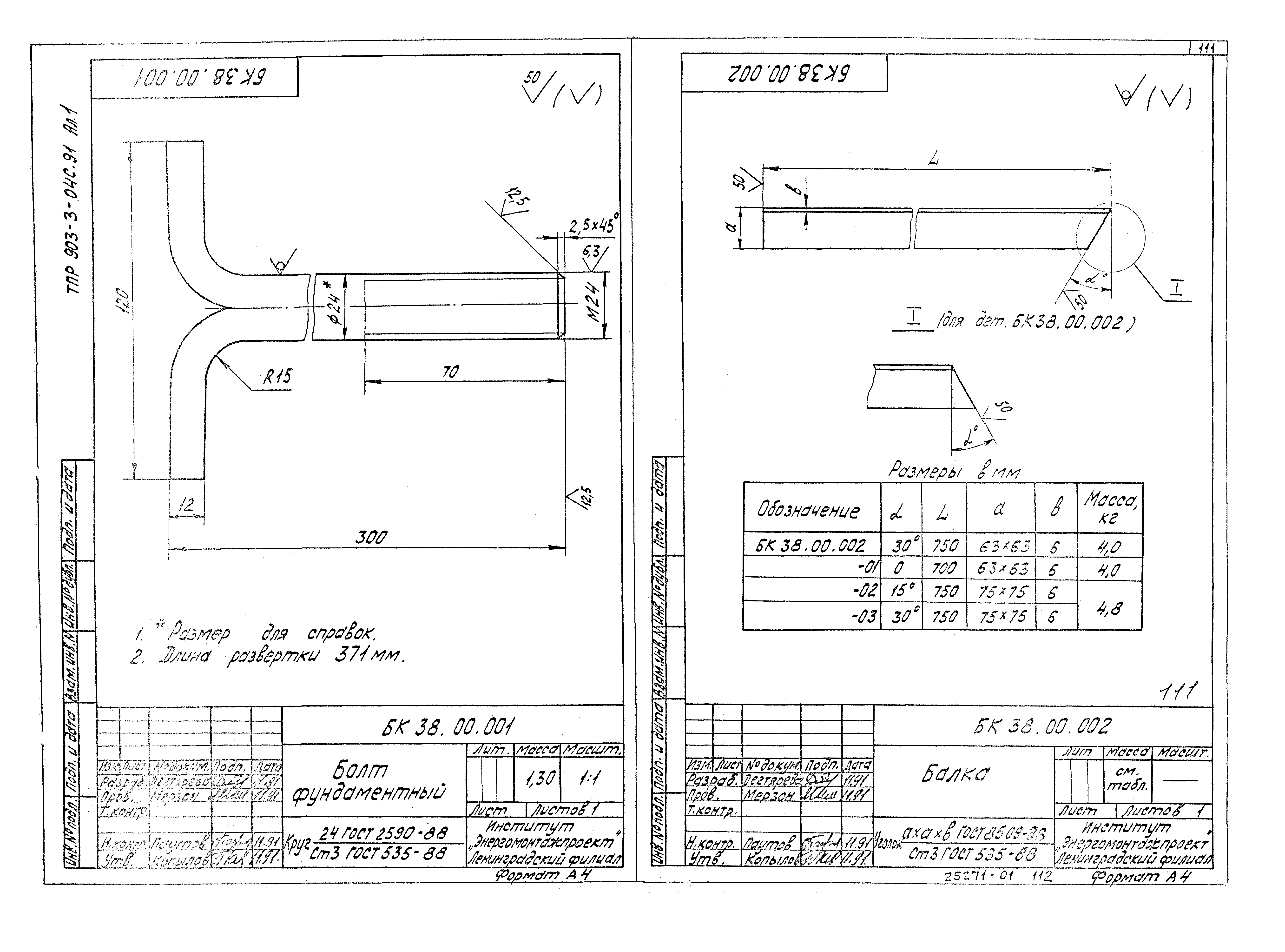
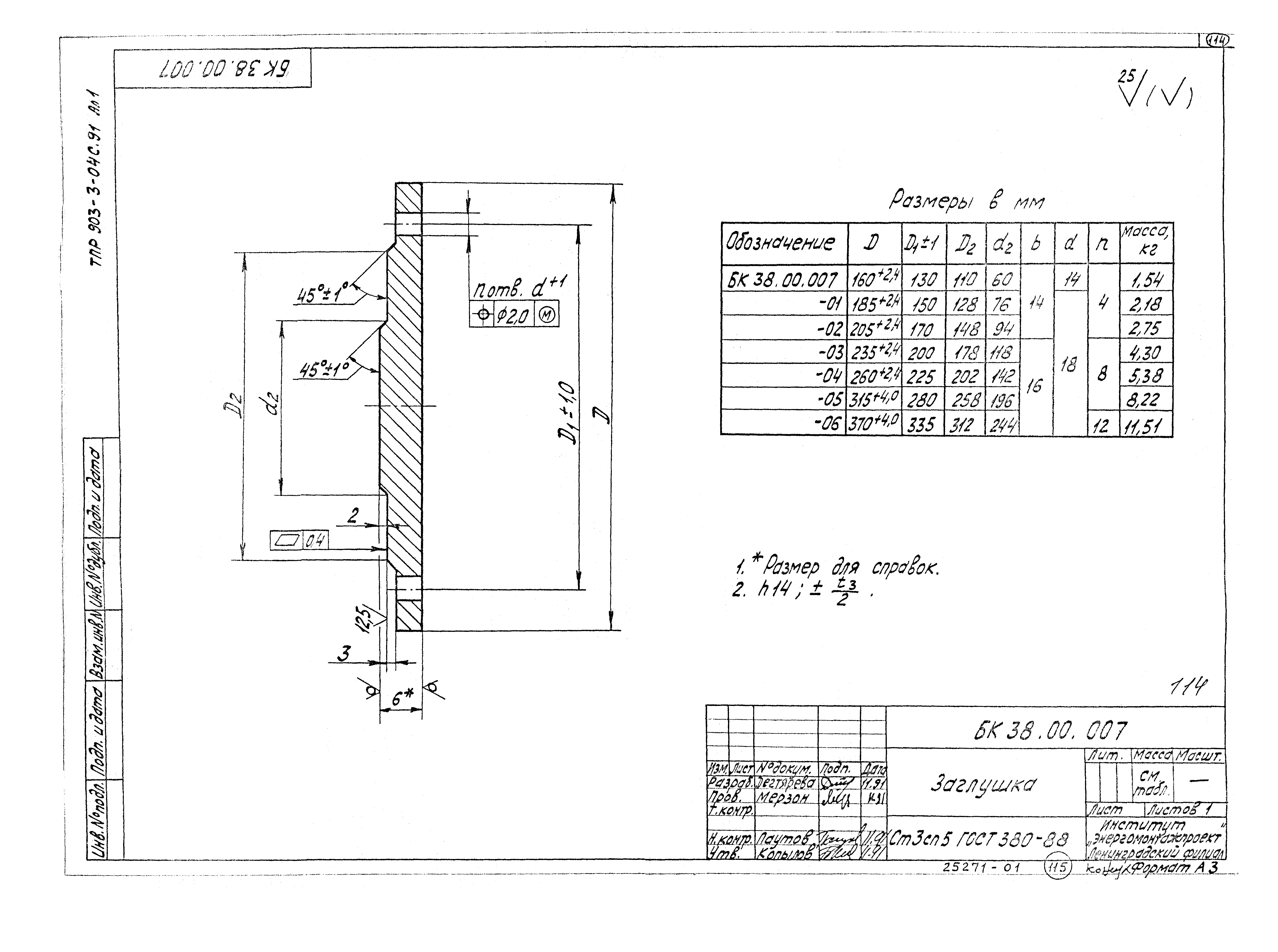
| Оглавление: | БК 38.00.000ПЗ Пояснительная записка БК 38.00.000 Бак конденсатный БК 38.01.000 Корпус БК 38.02.000 Площадка обслуживания БК 38.03.000 Опора БК 38.04.000 Плита опорная БК 38.05.000 Лестница БК 38.06.000 Крышка БК 38.07.000 Блок катковый |
| Разработан: | Ленэнергомонтажпроект |
| Утверждён: | 17.12.1991 Союзэнергомонтаж (81) |
| Издан: | АПП ЦИТП (1992 г. ) |

















































































































