Скачать Серия 3.407-104 Выпуск 2. Монтажные схемы, узлы и стальные конструкцииДата актуализации: 01.01.2021
|
| Обозначение: | Серия 3.407-104 |
| Обозначение англ: | Series 3.407-104 |
| Статус: | заменен |
| Название рус.: | Выпуск 2. Монтажные схемы, узлы и стальные конструкции |
| Дата добавления в базу: | 01.09.2013 |
| Дата актуализации: | 01.01.2021 |
| Дата введения: | 01.04.1975 |
| Дата окончания срока действия: | 01.06.1988 |
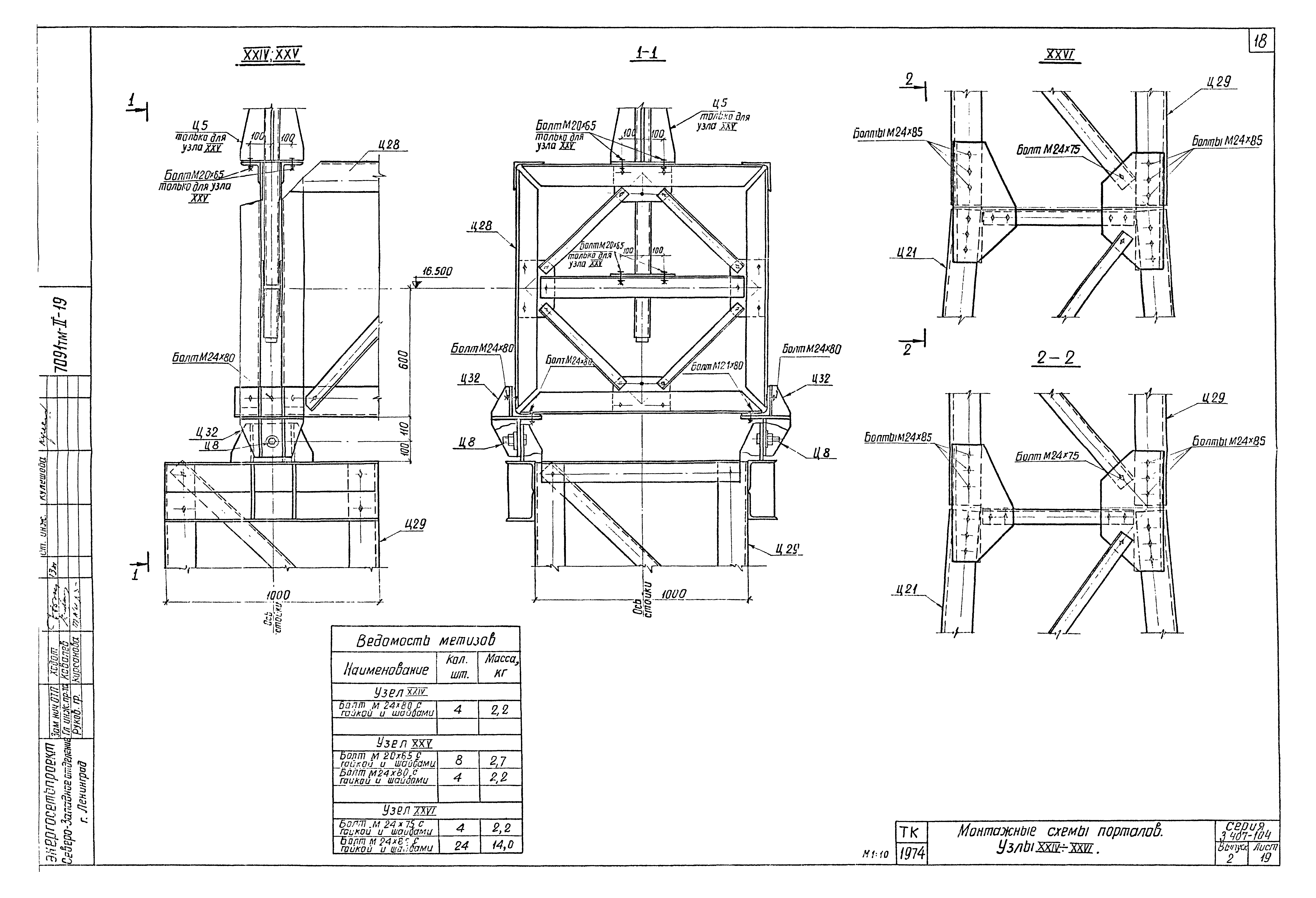
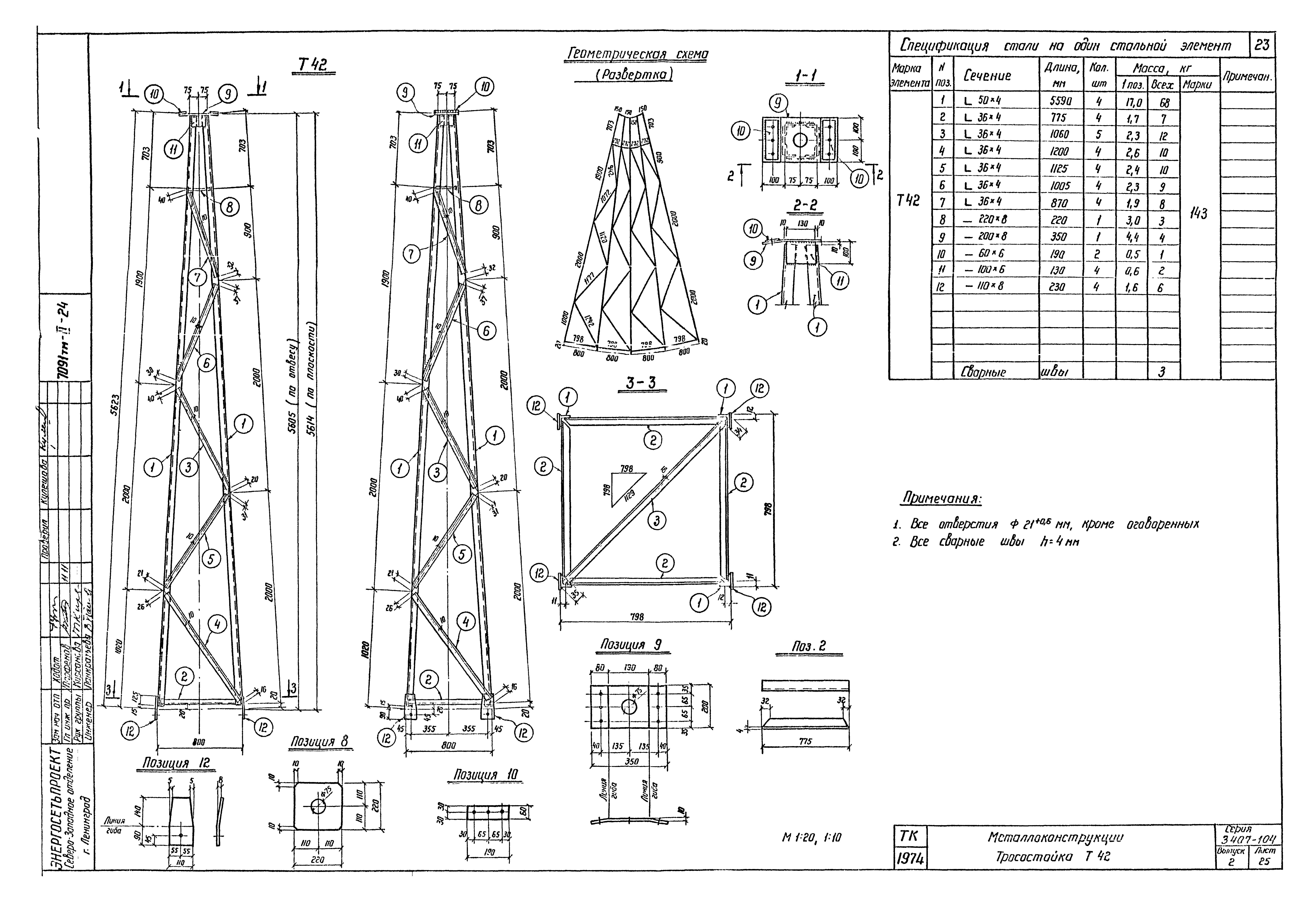
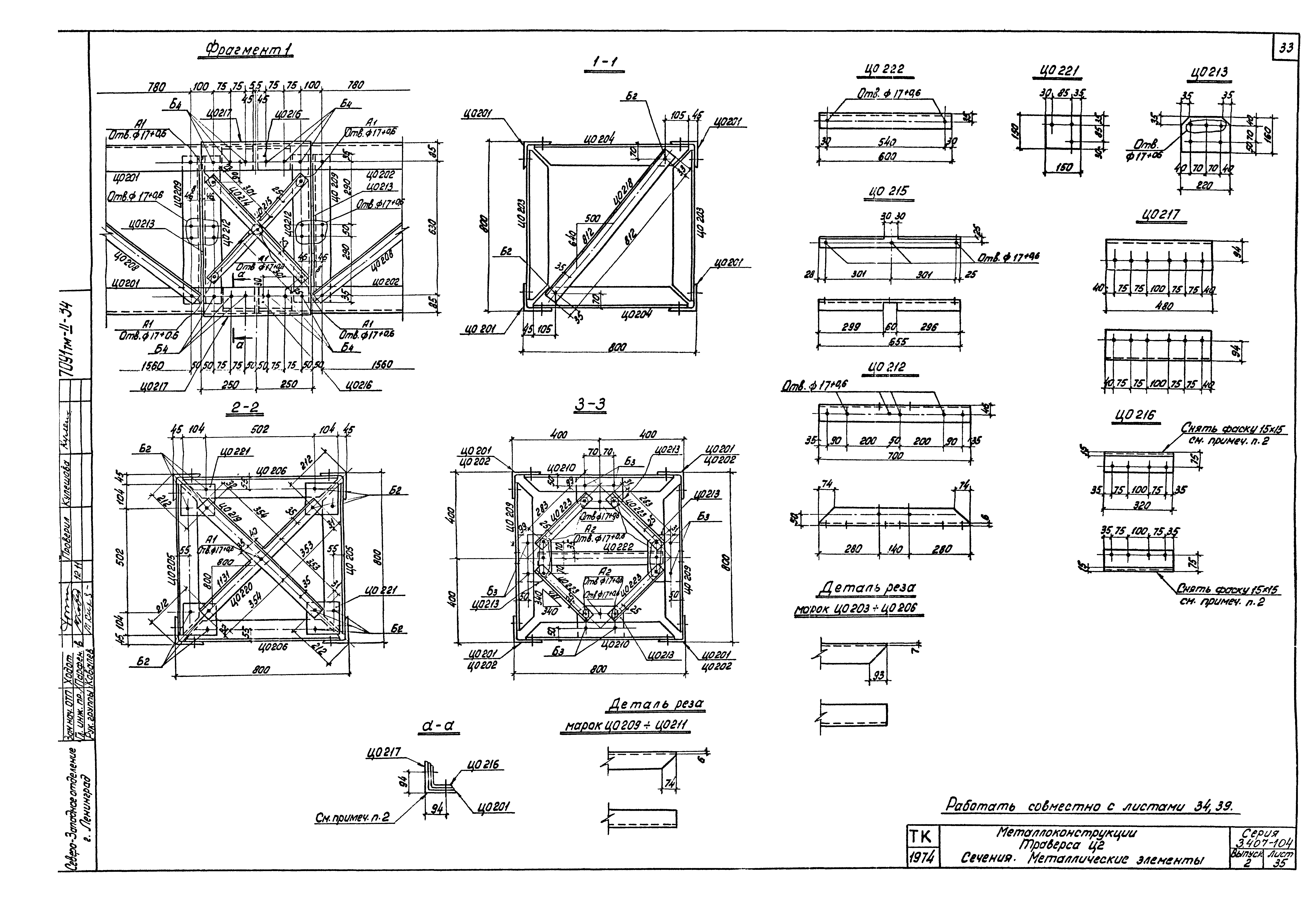
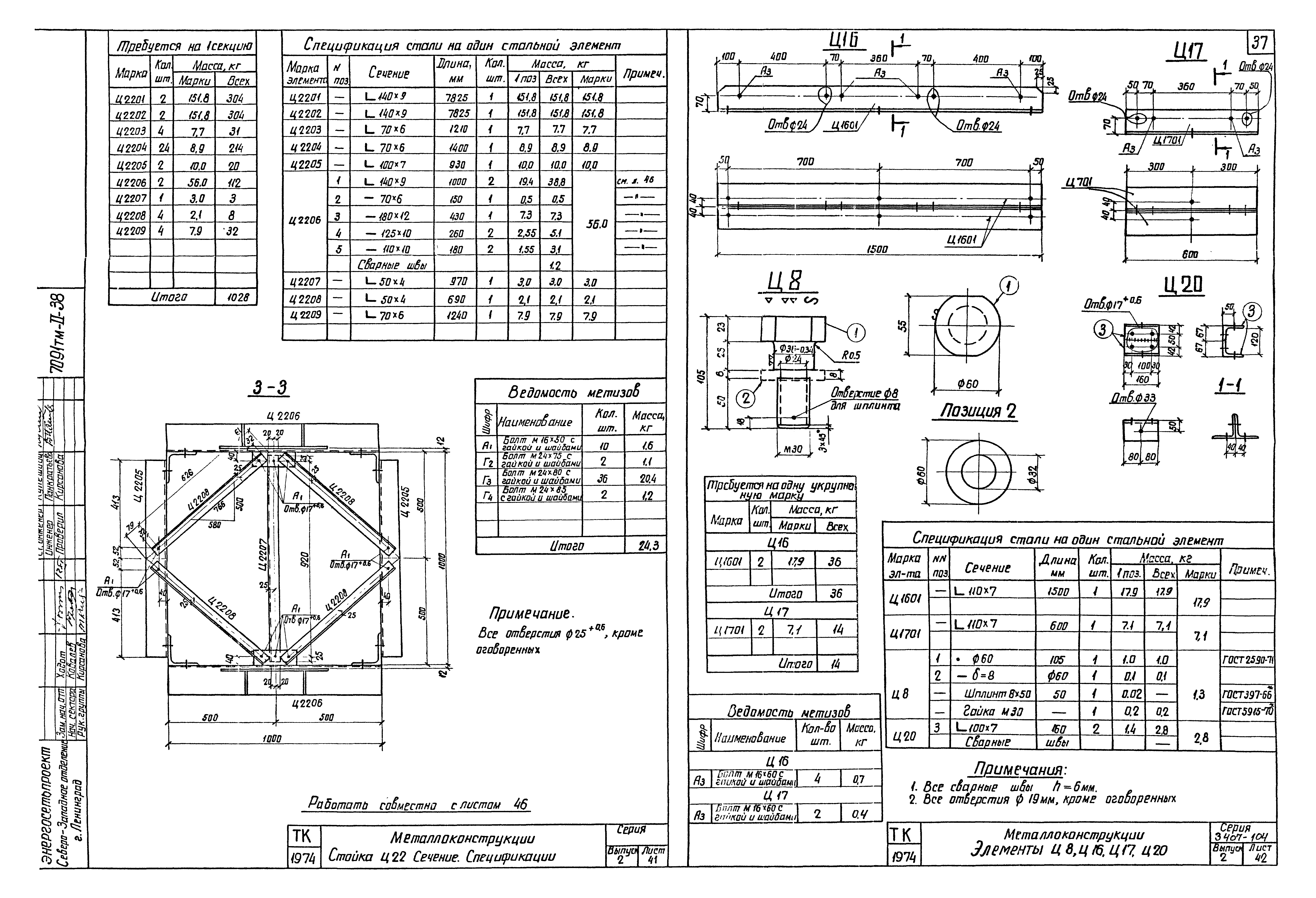
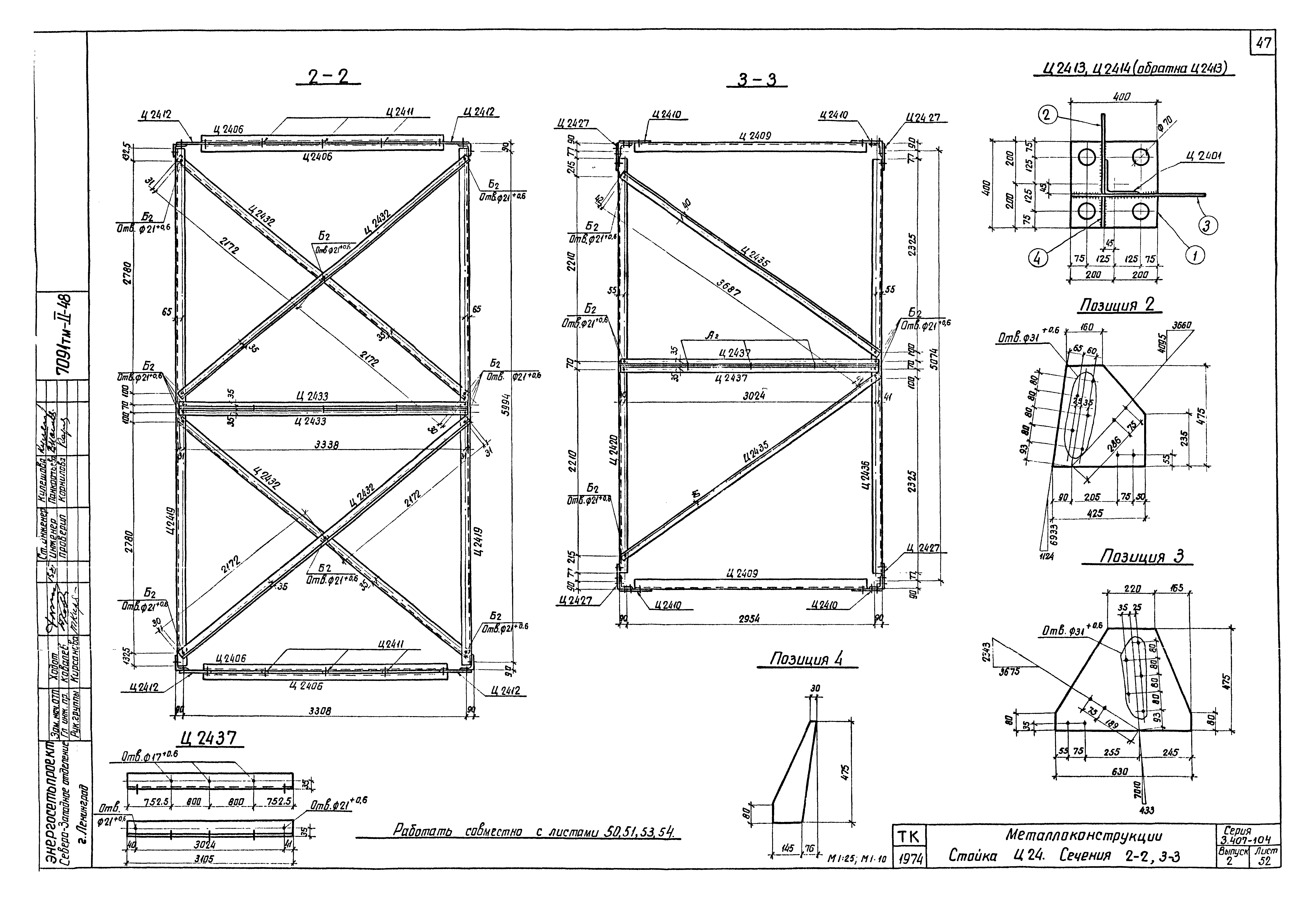
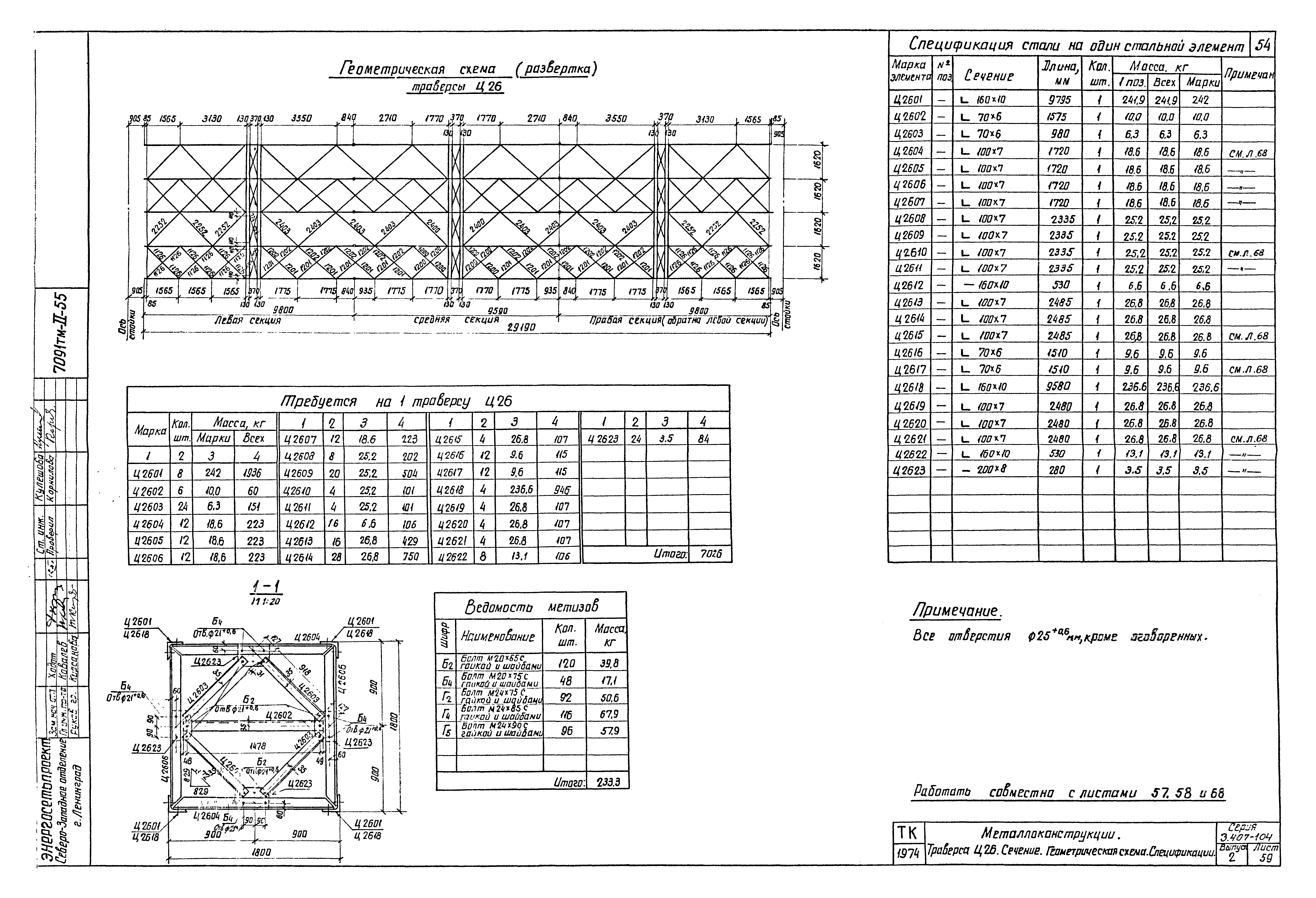
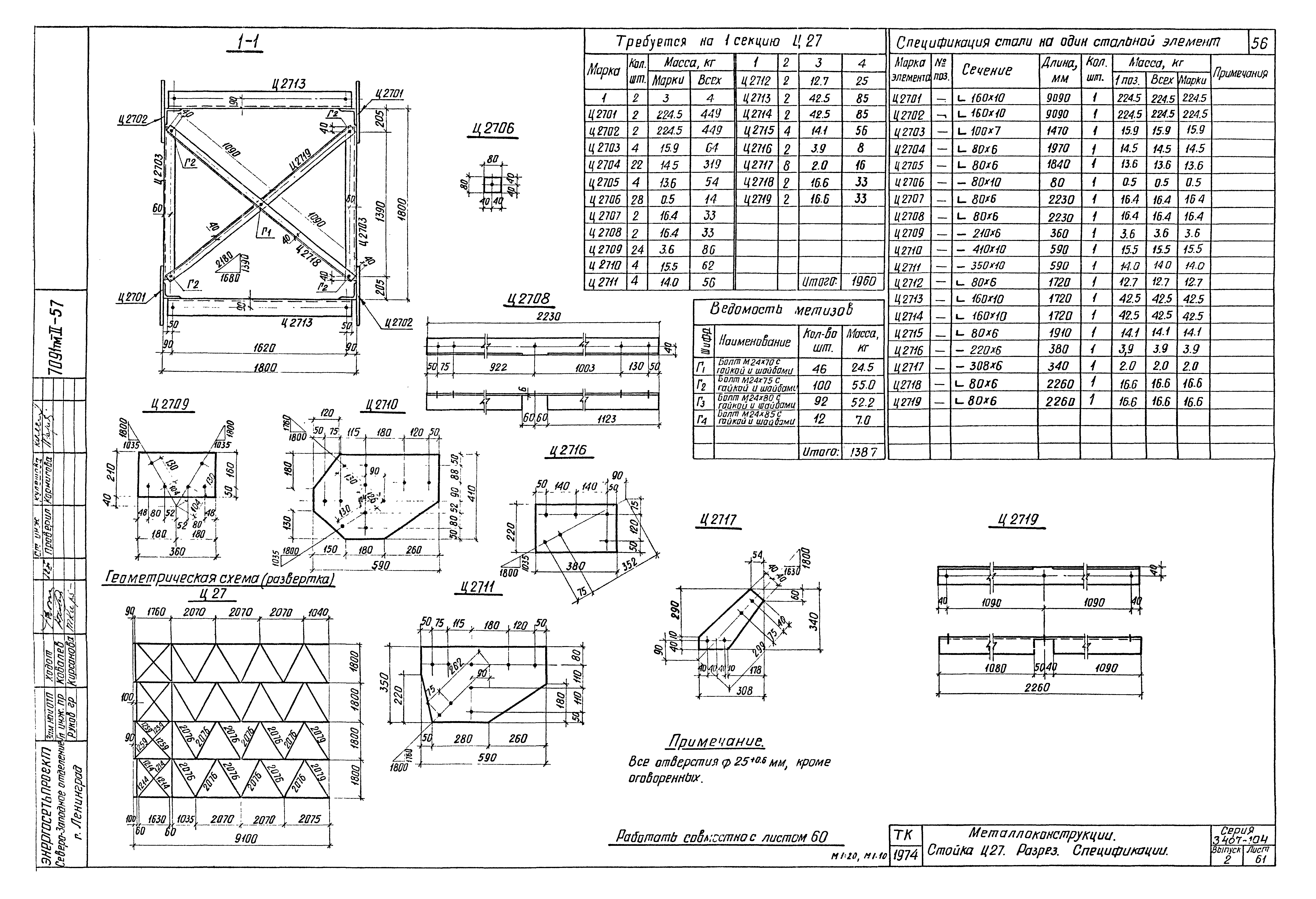
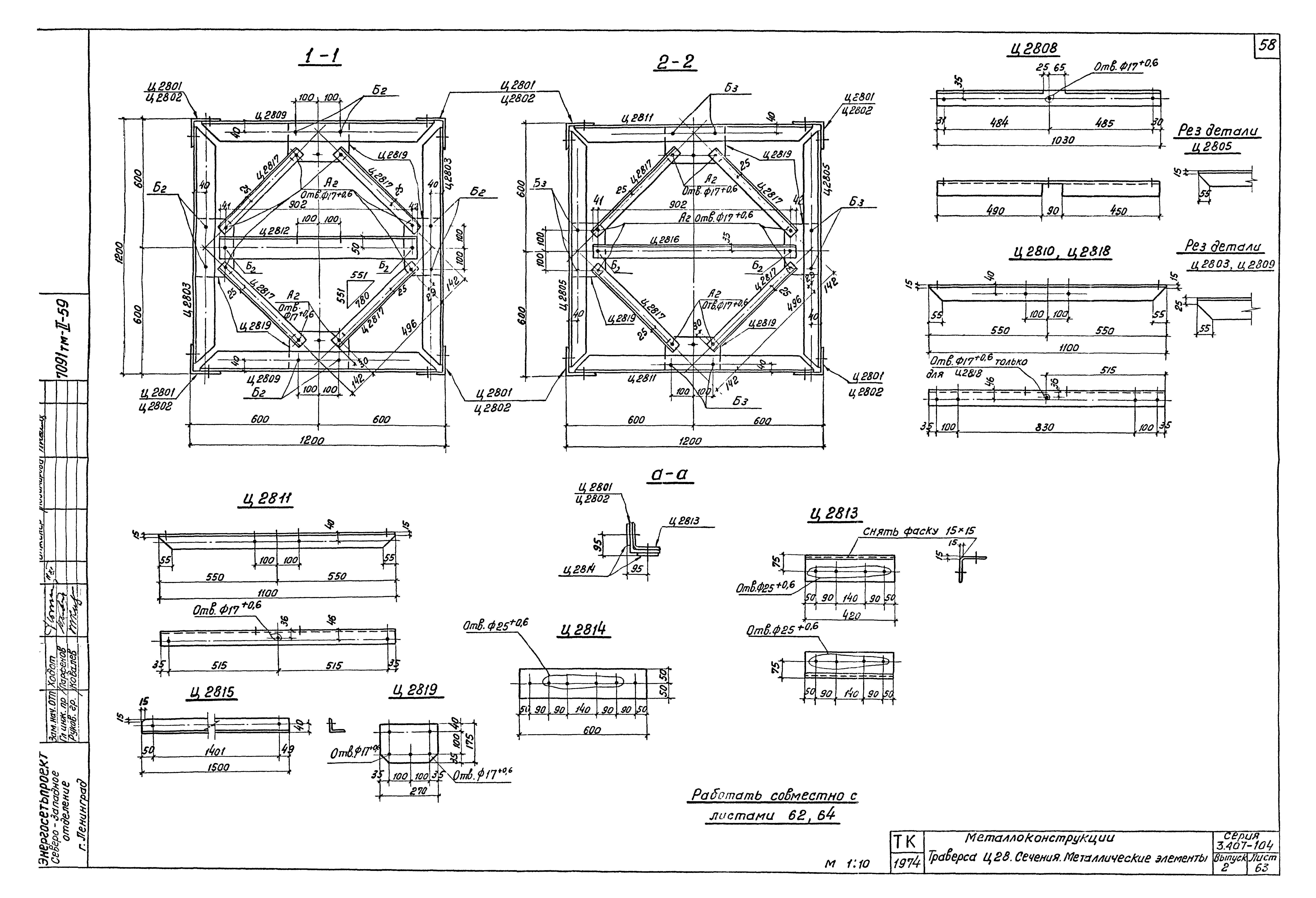
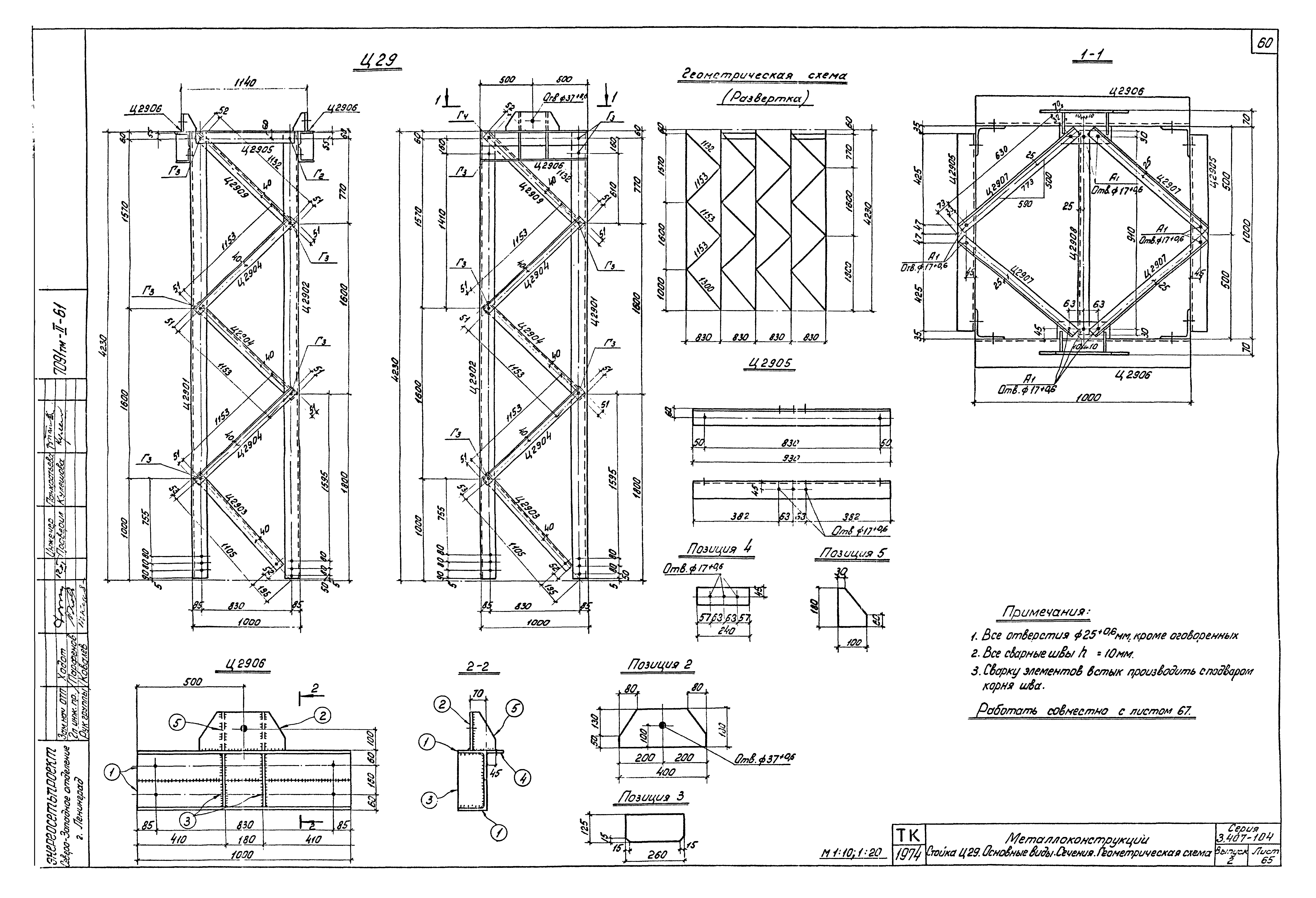
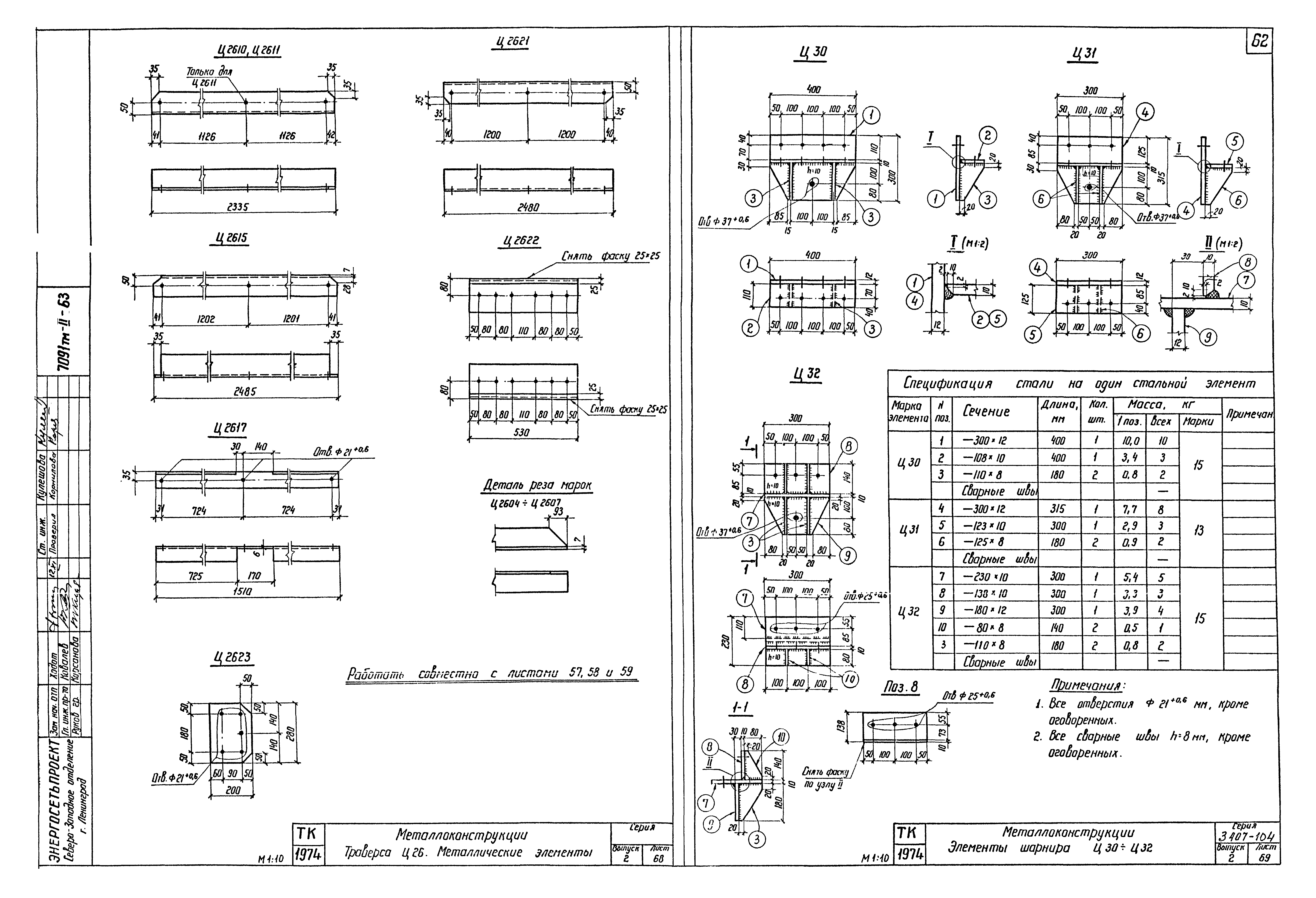
| Оглавление: | Титульный лист Перечень листов ОРУ 220 кВ. Монтажная схема ячейкового портала ПС-220Я ОРУ 220 кВ. Монтажная схема шинного портала ПС-220Ш1 ОРУ 330 кВ. Монтажные схемы ячейковых порталов типов ПС-220Я1 - ПС-330Я5 ОРУ 330 кВ. Монтажная схема дополнительных элементов на ячейковых порталах ОРУ 330 кВ. Монтажные схемы ячейковых порталов. Спецификация стальных элементов Ведомость метизов ОРУ 330 кВ. Монтажные схемы шинных порталов типов ПС-330Ш1, ПС-330Ш2 ОРУ 500 кВ. Монтажная схема ячейкового портала типа ПС-500Я ОРУ 500 кВ. Монтажная схема дополнительных элементов на ячейковых порталах Металлоконструкции. Опора под молниеприемник Ц33. Спецификации ОРУ 500 кВ. Монтажные схемы шинных порталов типов ПС-500Ш1, ПС-500Ш2 Монтажные схемы порталов. Узлы I - III Монтажные схемы порталов. Узлы IV, V Монтажные схемы порталов. Узлы VI, VII, XI Монтажные схемы порталов. Узлы VIII - X Монтажные схемы порталов. Узлы XII - XIV Монтажные схемы порталов. Узлы XV - XVIII Монтажные схемы порталов. Узлы XIX - XXIII Монтажные схемы порталов. Узлы XXIV - XXVI Металлоконструкции. Полутраверсы Т38, Т39. Основные виды Металлоконструкции. Полутраверсы Т38, Т39. Сечения. Спецификации Металлоконструкции. Полутраверсы Т40, Т45. Основные виды Металлоконструкции. Полутраверсы Т40, Т45. Сечения. Спецификации Металлоконструкции. Доборный элемент Т41 Металлоконструкции. Тросостойка Т42 Металлоконструкции. Стойка Т46. Основные виды Металлоконструкции. Стойка Т46. Сечения. Металлические элементы Металлоконструкции. Стойка Т46. Геометрическая схема. Спецификации Металлоконструкции. Стойка Т47 Металлоконструкции. Траверса Ц1. Основные виды Металлоконструкции. Траверса Ц1. Геометрическая схема. Спецификации Металлоконструкции. Траверса Ц1. Сечения 1-1 - 3-3. Фрагменты 1 и 2 Металлоконструкции. Траверса Ц1. Металлические элементы Металлоконструкции. Траверса Ц2. Основные виды Металлоконструкции. Траверса Ц2. Сечения. Металлические элементы Металлоконструкции. Молниеприемник Ц5 Металлоконструкции. Молниеприемники Ц6 и Ц6А Металлоконструкции. Тросостойка Ц9 Металлоконструкции. Траверса Ц2. Спецификации Металлоконструкции. Тросостойка Ц9. Спецификации Металлоконструкции. Тросостойка Ц22. Сечения. Спецификации Металлоконструкции. Элементы Ц8, Ц16, Ц17, Ц20 Металлоконструкции. Стойка Ц21. Основные виды Металлоконструкции. Стойка Ц21. Сечения. Металлические элементы Металлоконструкции. Стойка Ц21. Геометрическая схема. Спецификации Металлоконструкции. Стойка Ц22. Основные виды. Геометрическая схема Металлоконструкции. Стойка Ц23. Основные виды Металлоконструкции. Стойка Ц23. Узлы, разрезы Металлоконструкции. Стойка Ц23. Геометрическая схема. Спецификация Металлоконструкции. Стойка Ц24. Основной вид. Сечение 1-1 Металлоконструкции. Стойка Ц24. Вид А Металлоконструкции. Стойка Ц24. Сечения 2-2; 3-3 Металлоконструкции. Стойка Ц24. Сечение 4-4 Металлоконструкции. Стойка Ц24. Спецификации Металлоконструкции. Стойка Ц25. Основной вид. Сечение. Геометрическая схема Металлоконструкции. Стойка Ц25. Вид А Металлоконструкции. Траверса Ц26 (левая секция). Основные виды Металлоконструкции. Траверса Ц26 (средняя секция). Основные виды Металлоконструкции. Траверса Ц26. Сечение. Геометрическая схема. Спецификации Металлоконструкции. Стойка Ц27. Основные виды Металлоконструкции. Стойка Ц27. Разрезы. Спецификации Металлоконструкции. Траверса Ц28. Основные виды Металлоконструкции. Траверса Ц28. Сечения. Металлические элементы Металлоконструкции. Траверса Ц28. Геометрическая схема. Спецификации Металлоконструкции. Стойка Ц29. Основные виды. Сечения. Геометрическая схема Металлоконструкции. Стойка Ц25. Спецификации Металлоконструкции. Стойка Ц29. Спецификации Металлоконструкции. Траверса Ц26. Металлические элементы Металлоконструкции. Элементы шарнира Ц-30 - 32 Металлоконструкции. Опора под молниеприемник Ц33. Основные виды Фундаменты из подножников П-16 - П-24 Свайные фундаменты С-17 - С-24 |
| Разработан: | Северо-западное отделение института Энергосетьпроект |
| Утверждён: | 28.11.1974 Минэнерго СССР (USSR Minenergo 244) |
| Чем заменён: |






































































