Скачать Типовой проект 407-1-91.87 Альбом 4. Нестандартизированные изделияДата актуализации: 01.01.2021
|
| Обозначение: | Типовой проект 407-1-91.87 |
| Обозначение англ: | 407-1-91.87 |
| Статус: | не действует |
| Название рус.: | Альбом 4. Нестандартизированные изделия |
| Дата добавления в базу: | 01.09.2013 |
| Дата актуализации: | 01.01.2021 |
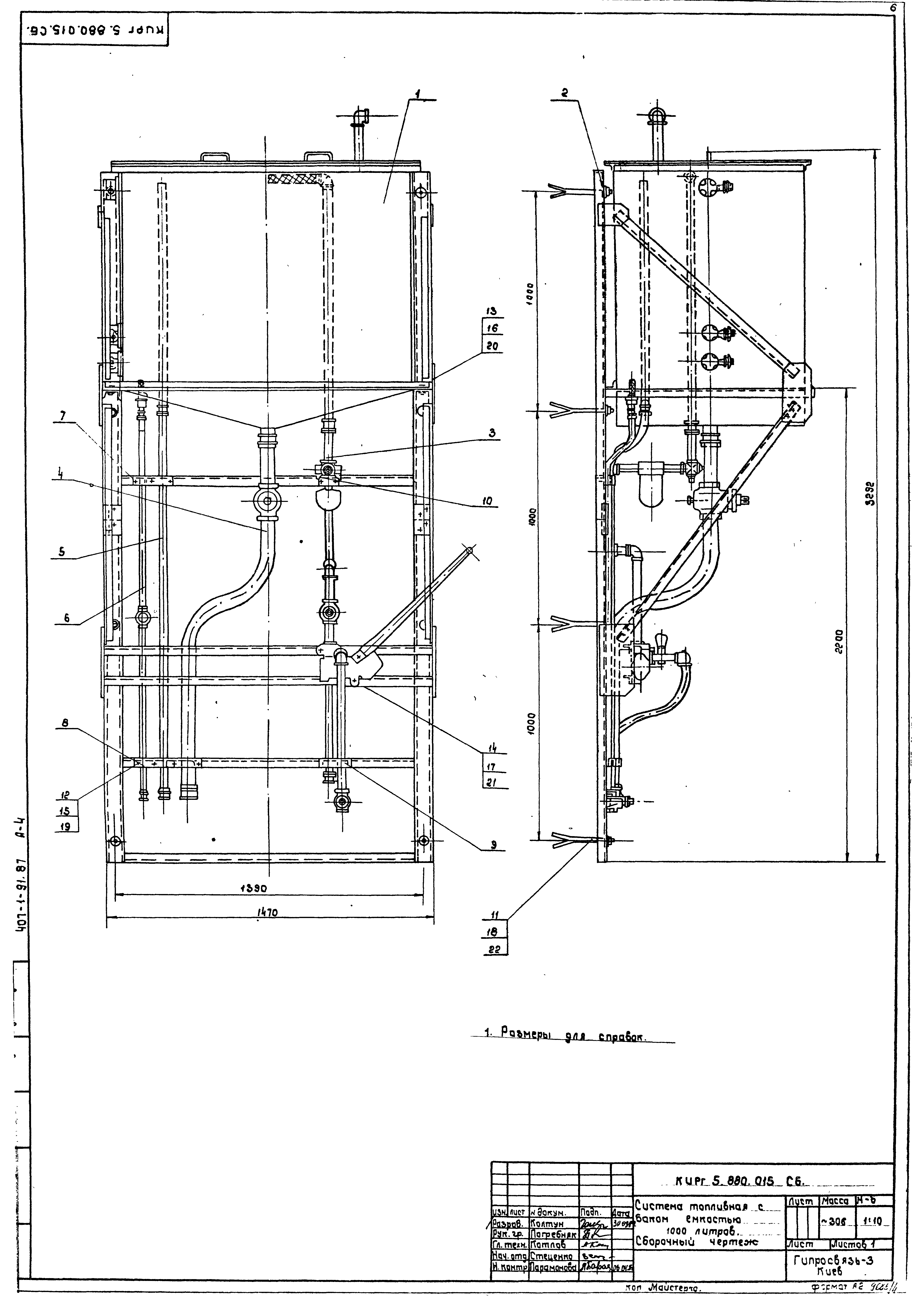
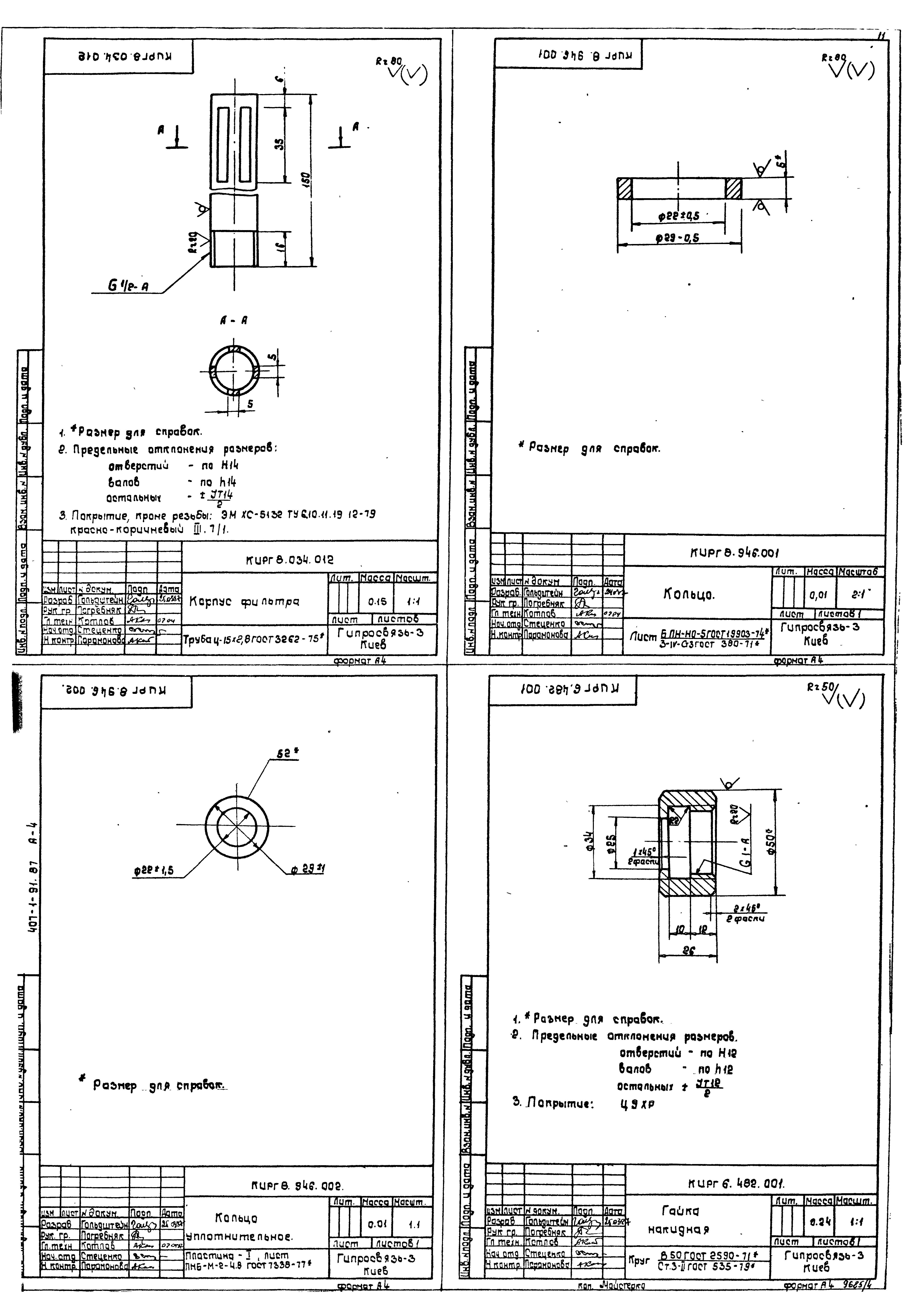
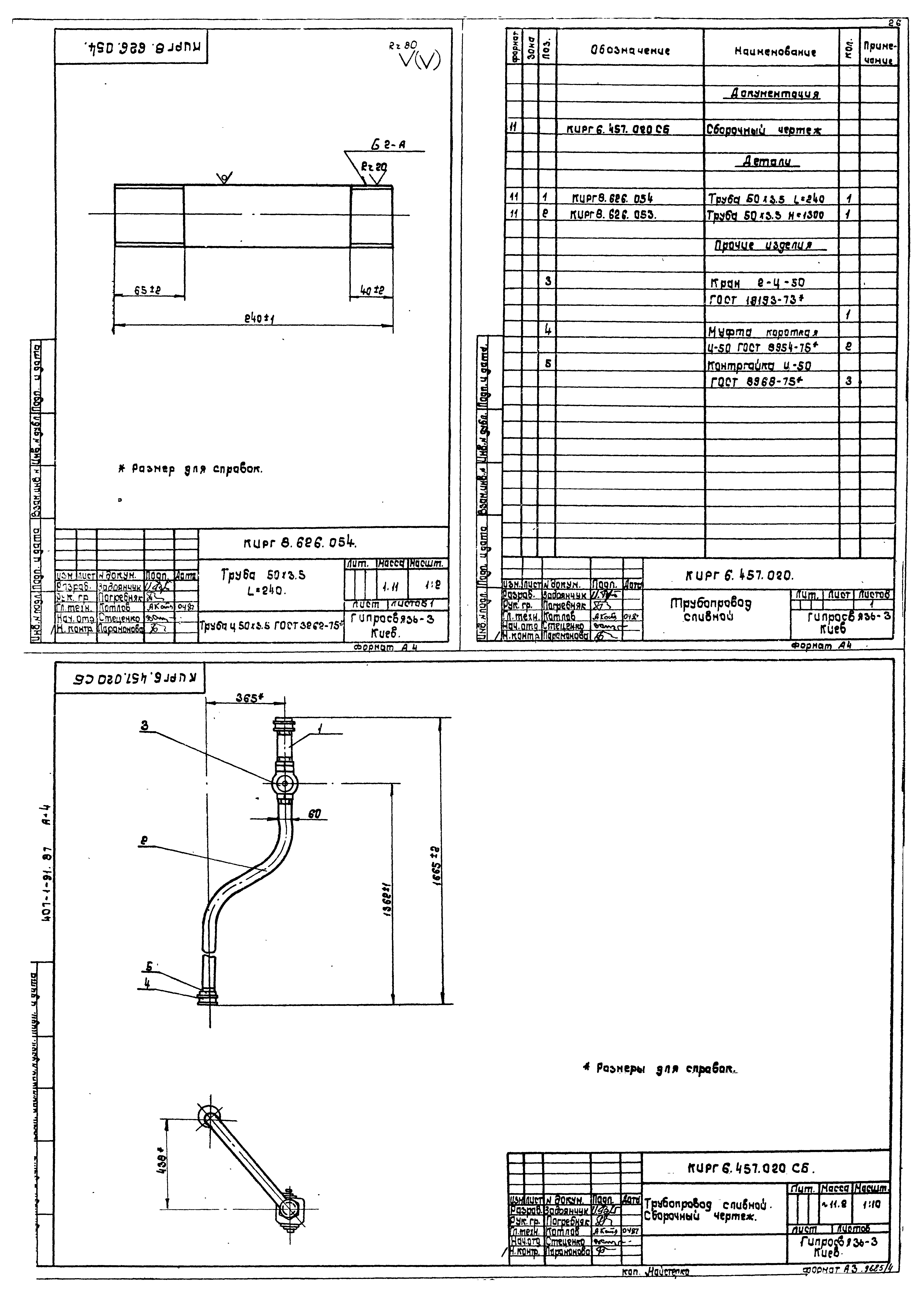
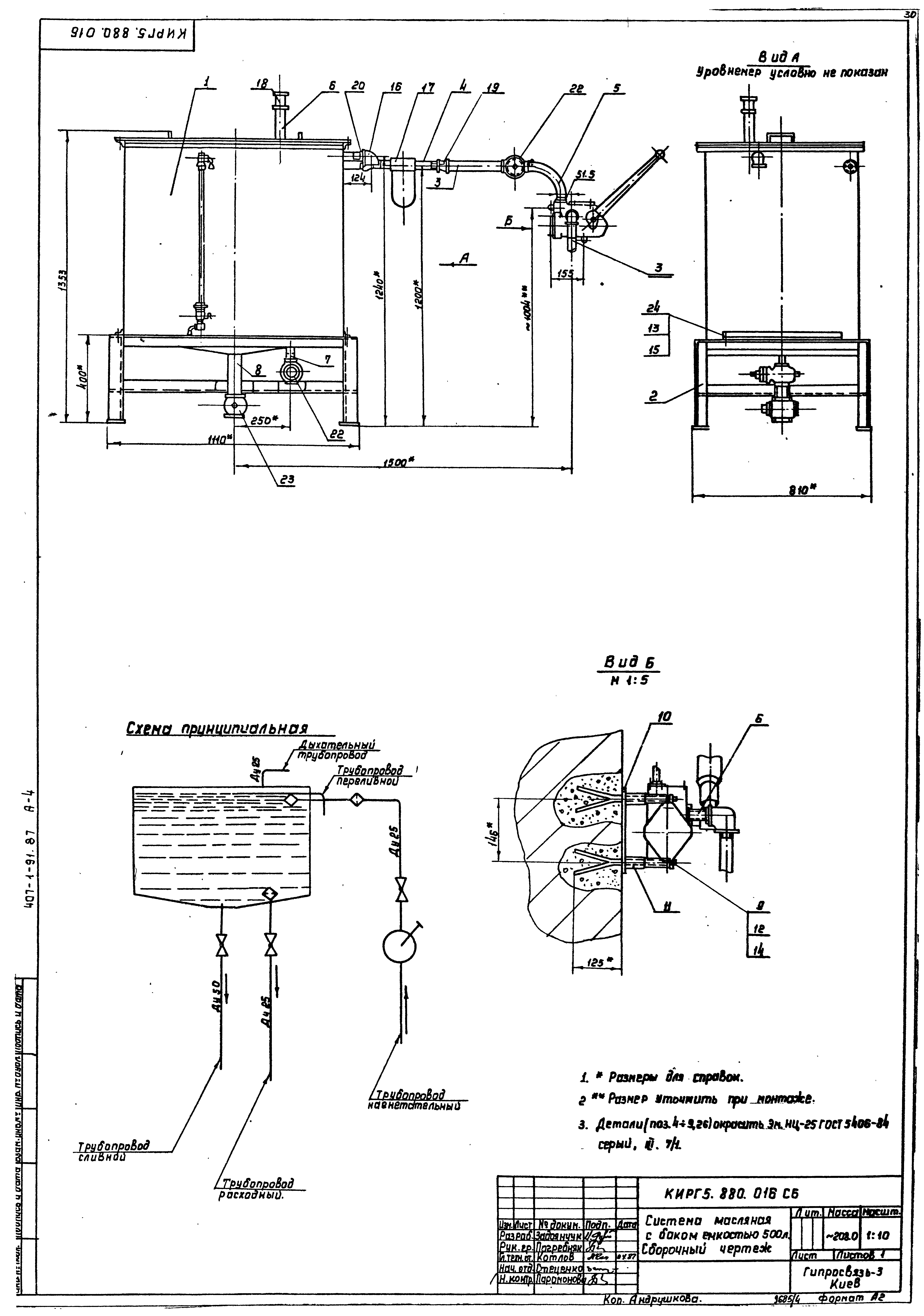
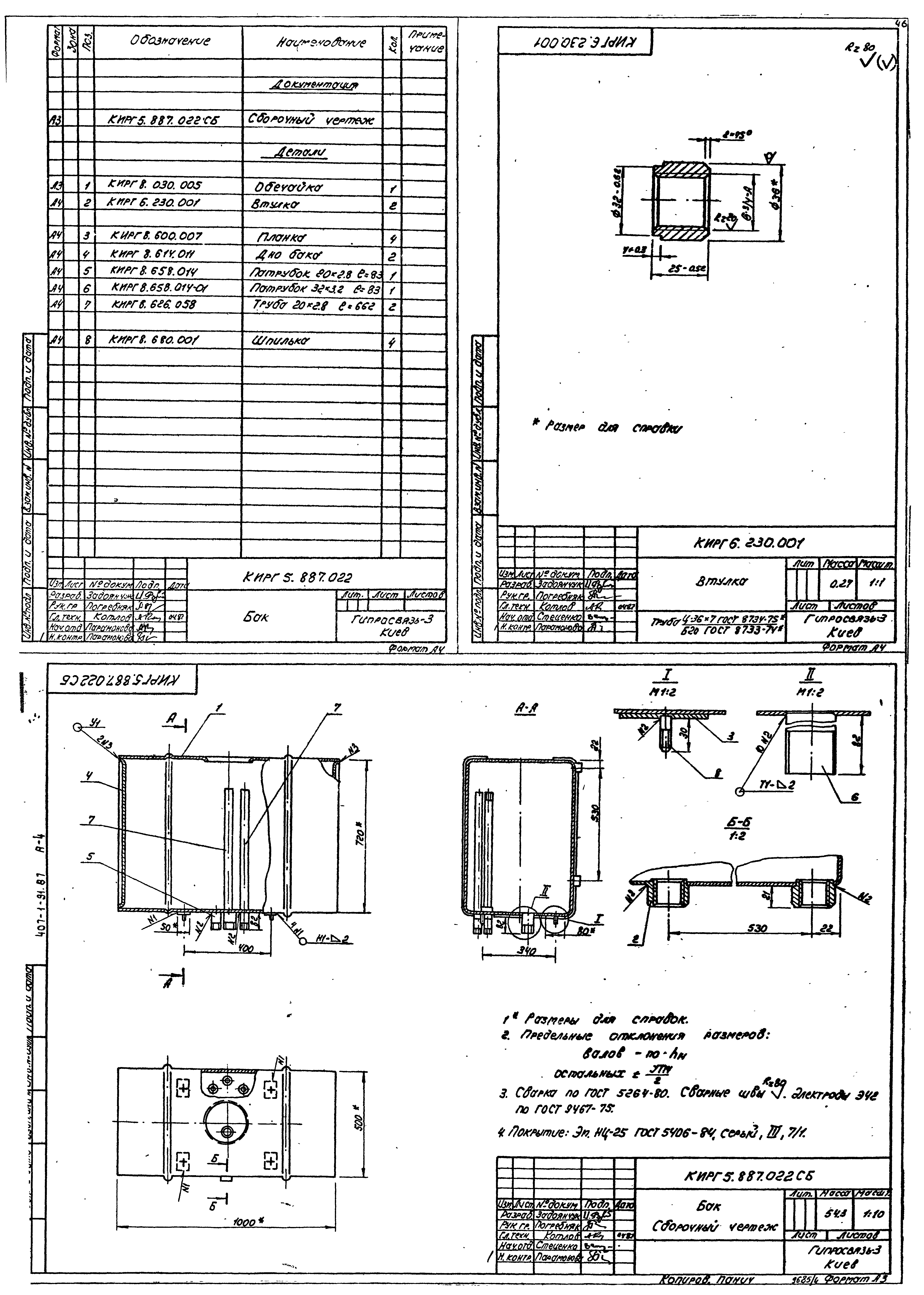
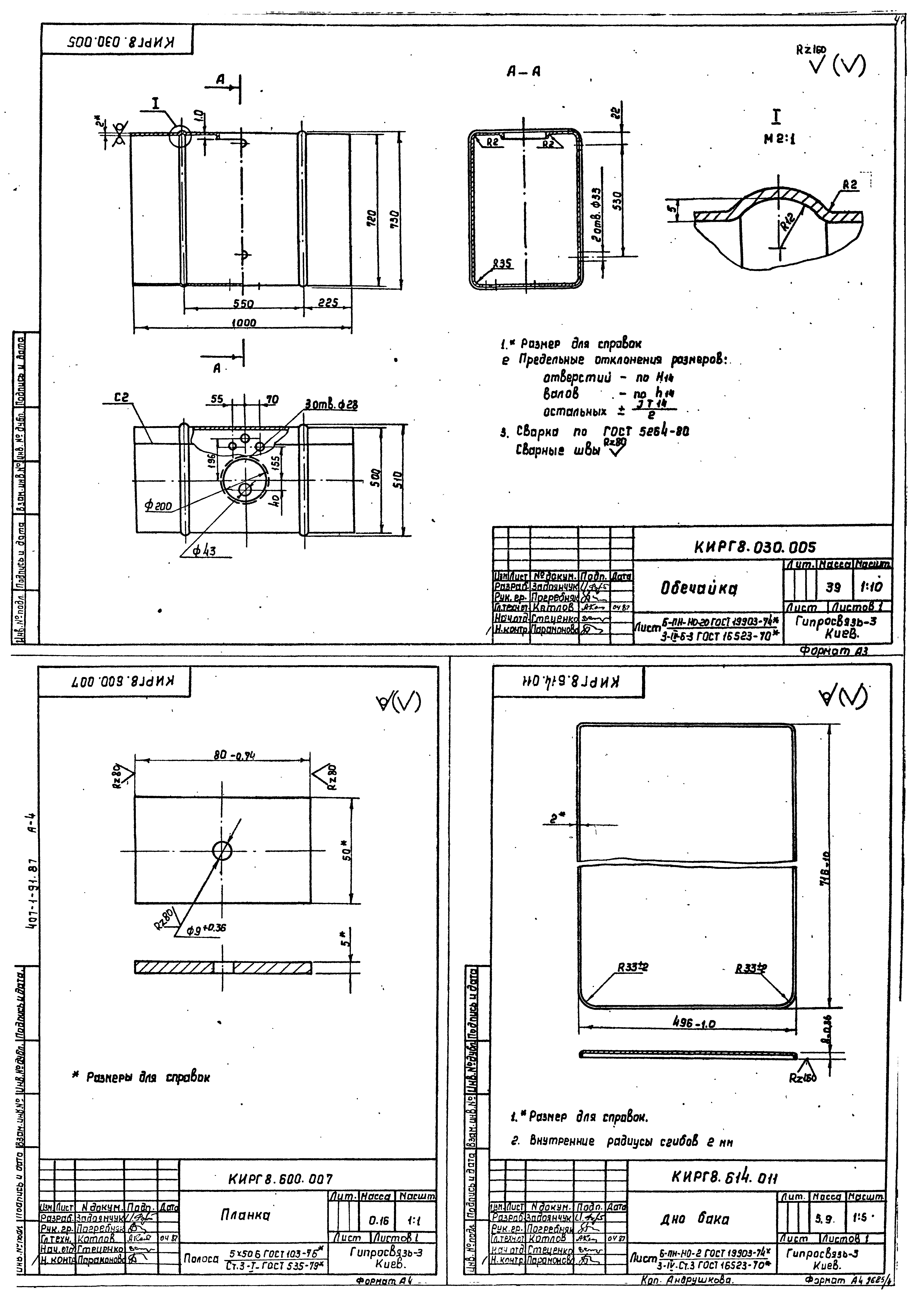
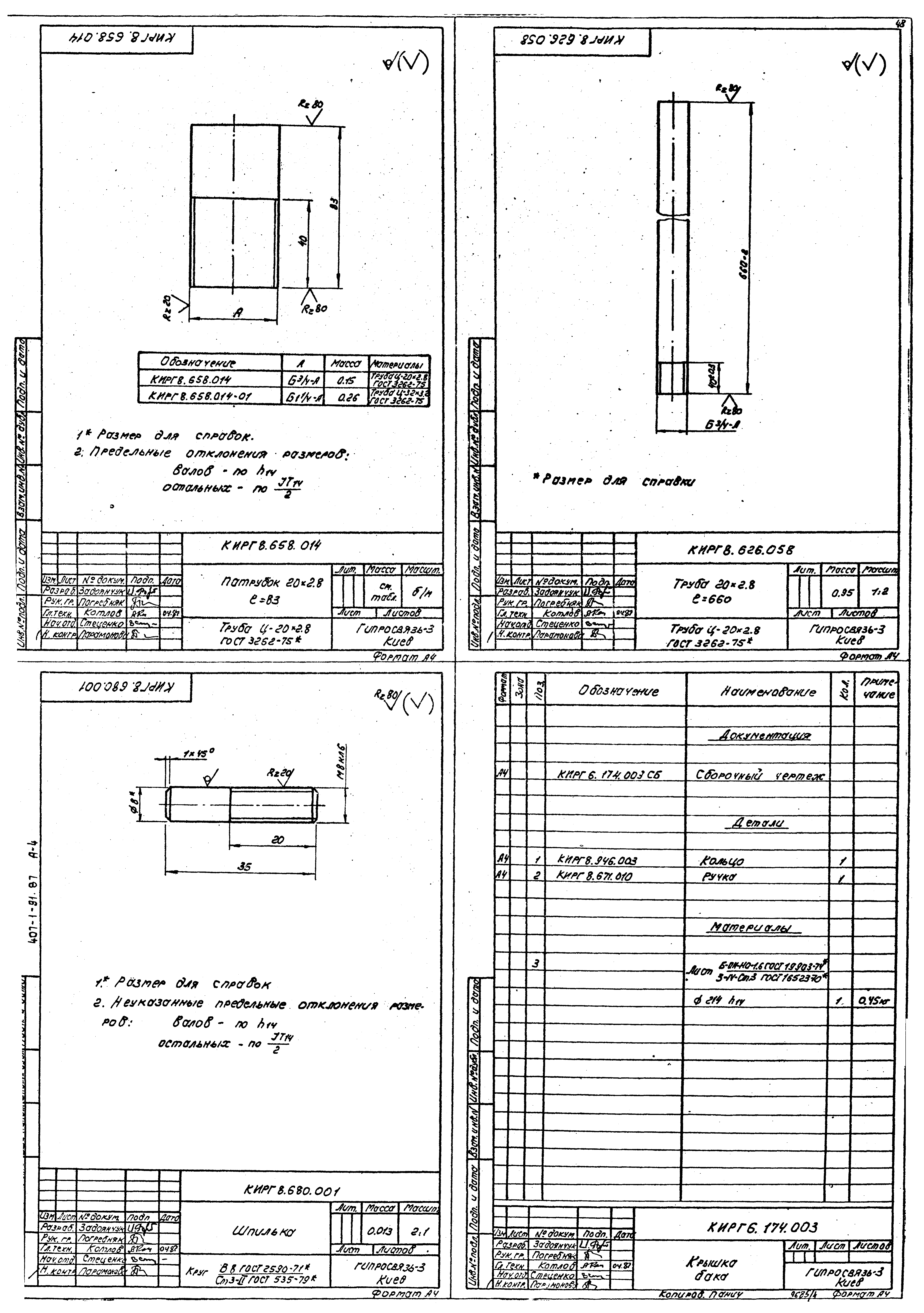
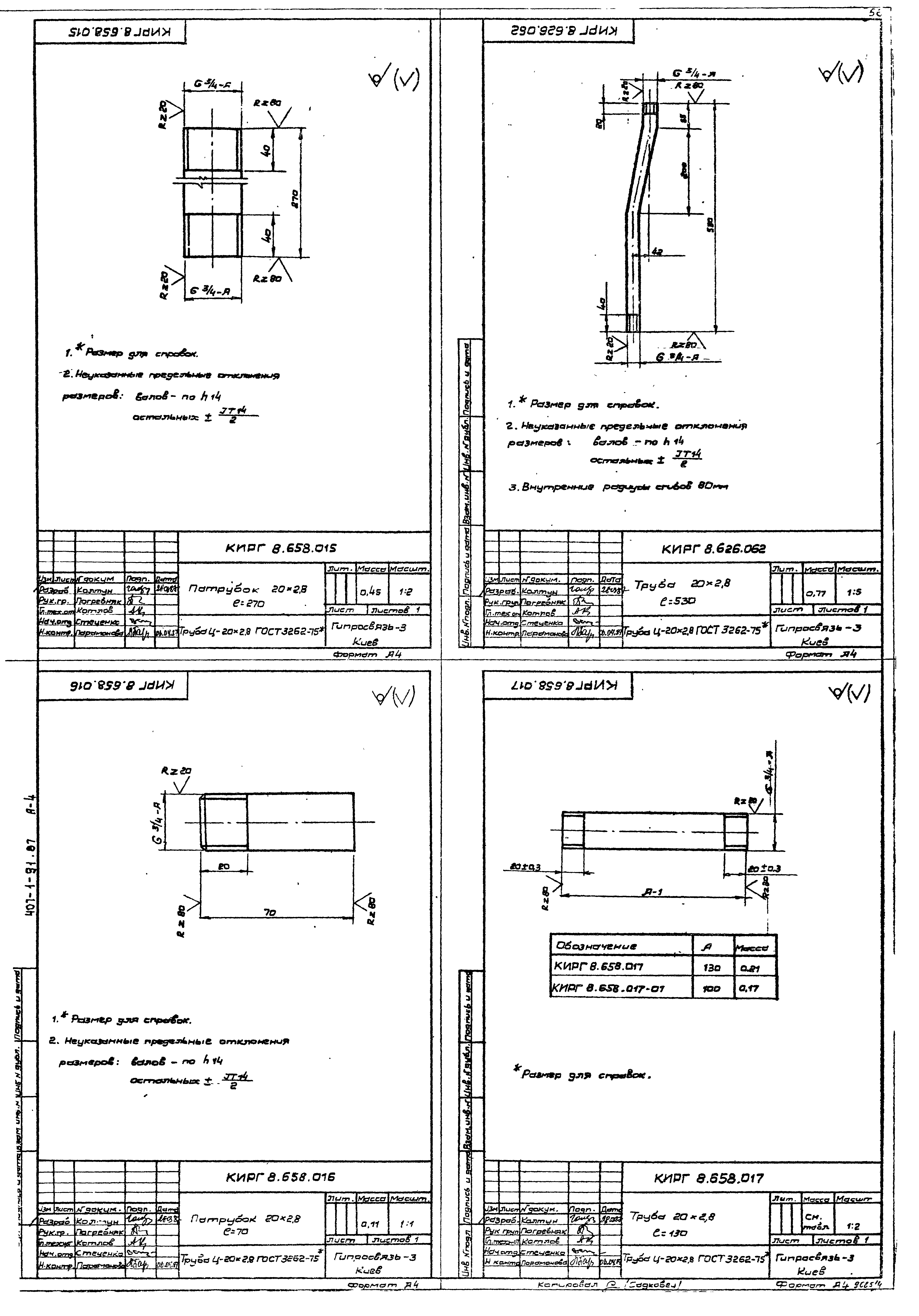
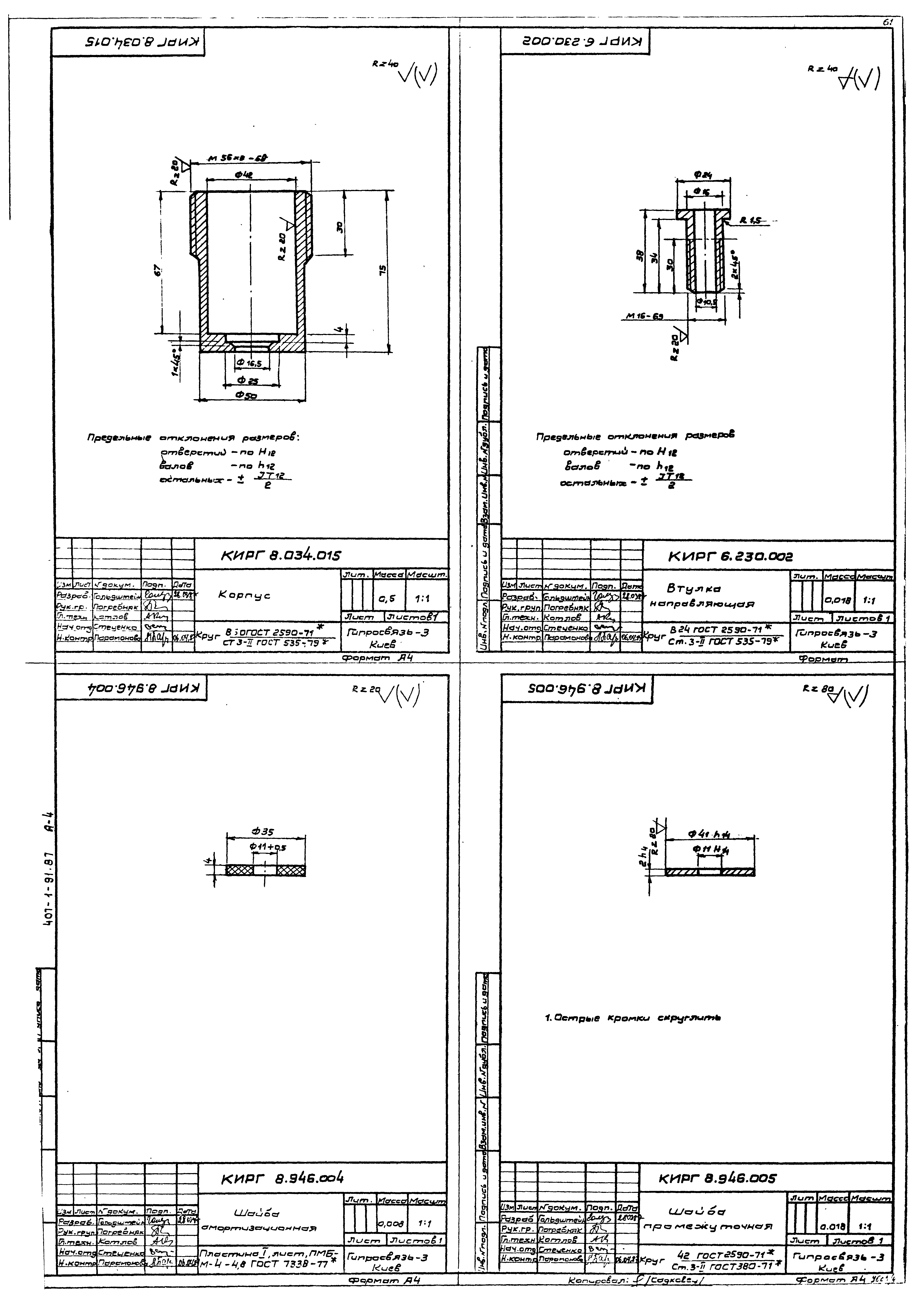
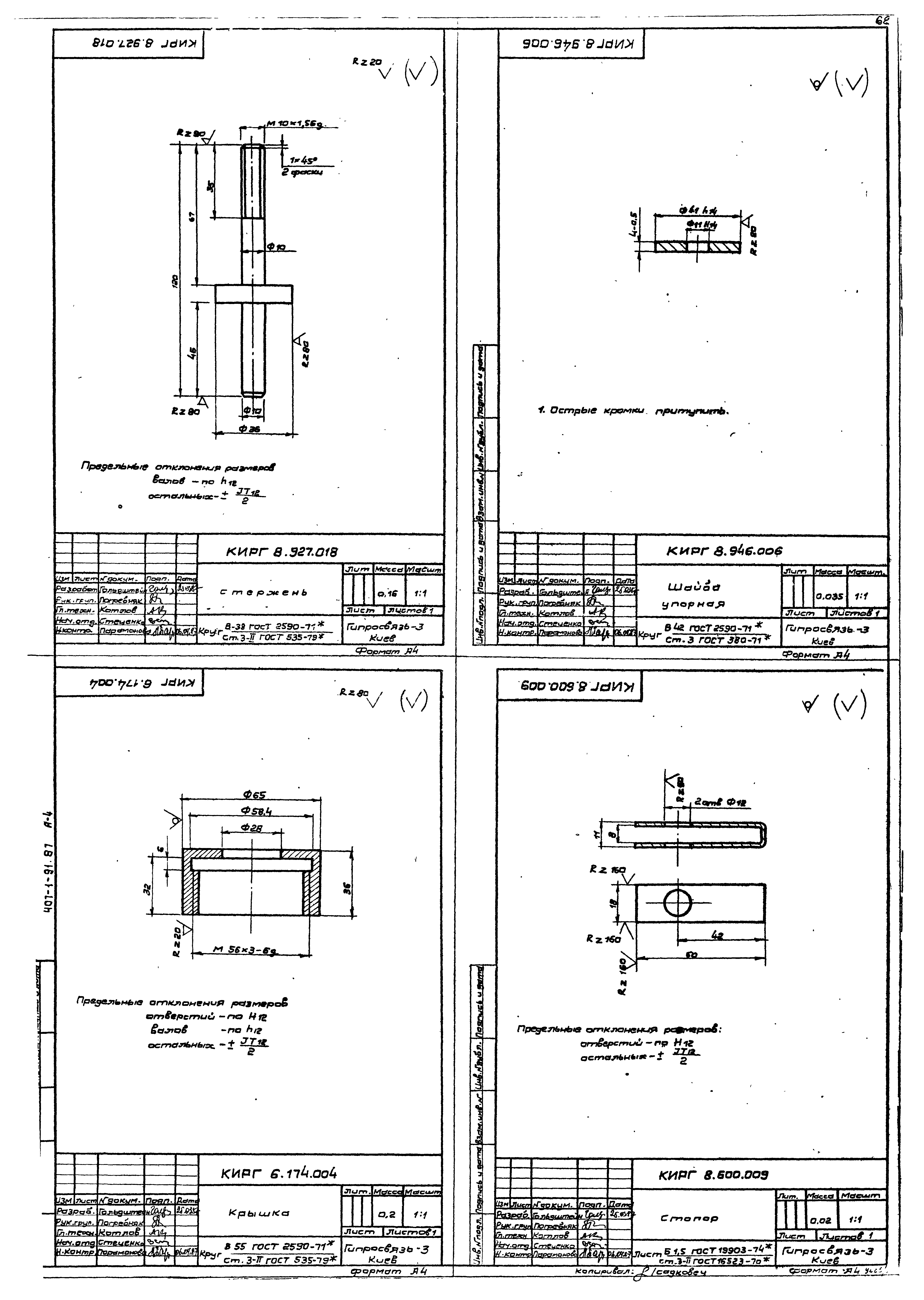
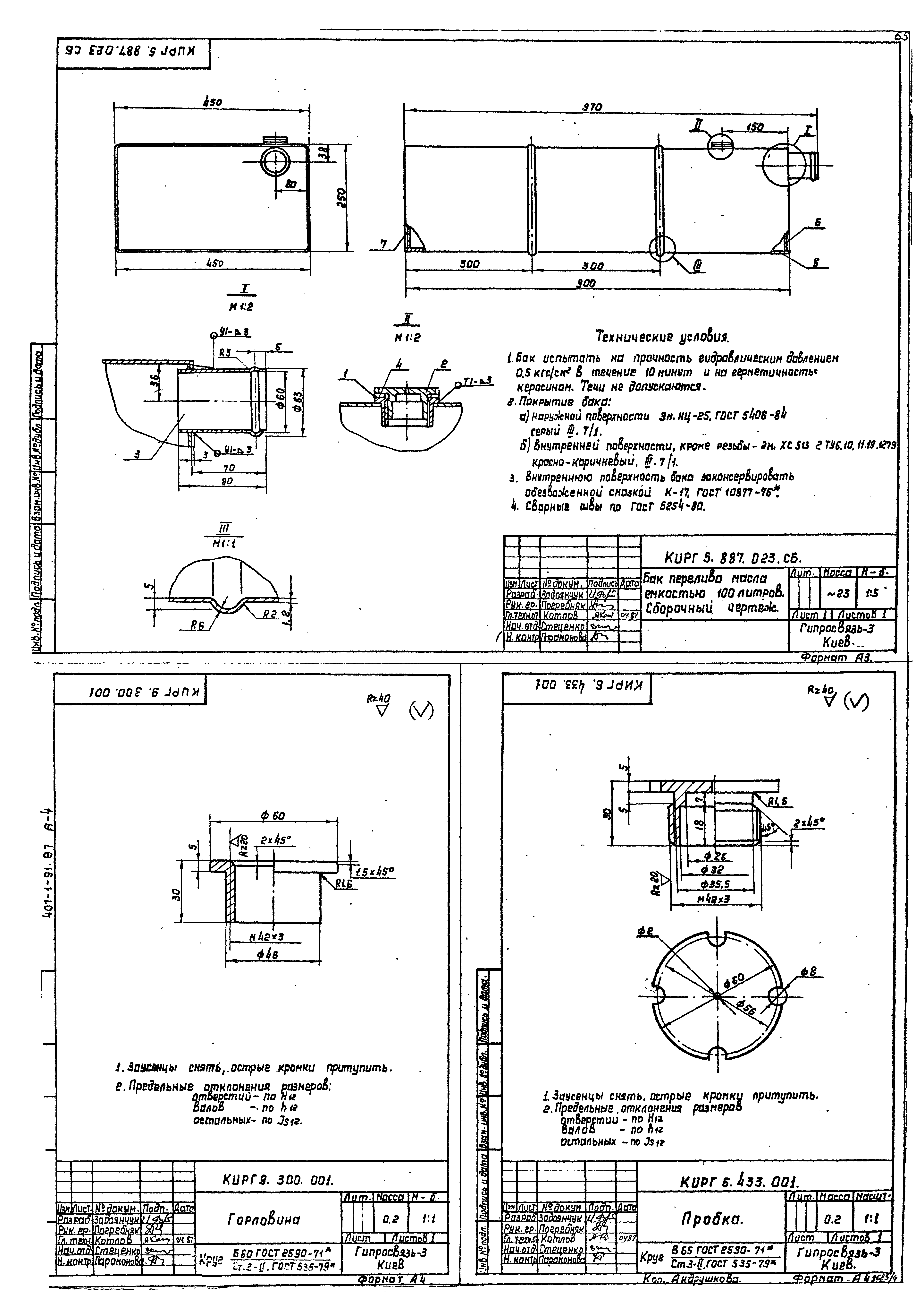
| Оглавление: | Содержание Система топливная с баком емкостью 1000л КИРГ 5.880.015 Система топливная с баком емкостью 1000л КИРГ 5.880.015г Система топливная с баком емкостью 1000л. Схема гидравлических соединений КИРГ 8.668.020 Скоба КИРГ 5.880.015СБ Система топливная с баком емкостью 1000л. Сборочный чертеж КИРГ 5.880.015ВП Система топливная с баком емкостью 1000л. Ведомость покупных изделий КИРГ 8.668.021 Скоба КИРГ 8.668.022 Скоба КИРГ 8.668.023 Скоба КИРГ 8.927.015 Ерш M16*50, l=260 КИРГ 8.034.011 Корпус фильтра КИРГ 5.887.017 Бак КИРГ 5.887.017СБ Бак. Сборочный чертеж КИРГ 5.886.010 Фильтр для заливки КИРГ 5.886.011 Фильтр расходный КИРГ 5.886.011СБ Фильтр расходный. Сборочный чертеж КИРГ 5.886.012 Фильтр КИРГ 8.034.012 Корпус фильтра КИРГ 8.946.001 Кольцо КИРГ 8.946.002 Кольцо уплотнительное КИРГ 6.482.001 Гайка накидная КИРГ 9.280.005 Бобышка КИРГ 8.607.015 Лист КИРГ 5.887.018 Бак КИРГ 5.887.018СБ Бак. Сборочный чертеж КИРГ 8.607.016 Лист КИРГ 8.614.008 Дно КИРГ 8.626.047 Труба 25*3.2 L=1034 КИРГ 8.626.048 Труба 25*3.2 L=1140 КИРГ 6.149.001 Угольник КИРГ 6.149.002 Угольник КИРГ 8.658.001 Патрубок 25*3.2 L=45 КИРГ 8.658.002 Патрубок 50*3.5 L=60 КИРГ 8.607.017 Лист КИРГ 6.174.001 Крышка КИРГ 6.174.001СБ Крышка. Сборочный чертеж КИРГ 8.071.008 Ручка КИРГ 6.501.001 Кронштейн КИРГ 6.180.008 Рама верхняя КИРГ 6.180.008СБ Рама верхняя. Сборочный чертеж КИРГ 6.501.001СБ Кронштейн. Сборочный чертеж КИРГ 8.122.001 Стойка КИРГ 6.180.009 Рама нижняя КИРГ 6.180.009СБ Рама нижняя. Сборочный чертеж КИРГ 6.410.002 Полка КИРГ 6.470.004 Прокладка КИРГ 6.470.002 Накладка КИРГ 6.470.003 Накладка КИРГ 6.426.003 Косынка КИРГ 6.426.004 Косынка КИРГ 6.149.003 Угольник КИРГ 6.426.005 Косынка КИРГ 6.149.004 Угольник КИРГ 6.149.005 Угольник КИРГ 6.149.006 Угольник КИРГ 6.149.007 Угольник КИРГ 6.457.019 Трубопровод нагнетательный КИРГ 6.457.019СБ Трубопровод нагнетательный. Сборочный чертеж КИРГ 8.626.049 Труба 25*3.2 L=345 КИРГ 8.626.050 Труба 25*3.2 L=570 КИРГ 8.626.051 Труба 25*3.2 L=395 КИРГ 8.626.052 Труба 25*3.2 Н=610 КИРГ 8.658.003 Патрубок 20*2.8 L=110 КИРГ 8.658.004 Патрубок 25*3.2 L=140 КИРГ 8.658.005 Патрубок 25*3.2 L=68 КИРГ 8.626.063 Труба 50*3.5 Н=1300 КИРГ 8.626.054 Труба 50*3.5 L=240 КИРГ 6.457.020 Трубопровод сливной КИРГ 6.457.020СБ Трубопровод сливной. Сборочный чертеж КИРГ 6.457.021 Трубопровод переливной КИРГ 6.457.021СБ Трубопровод переливной. Сборочный чертеж КИРГ 8.626.055 Труба 25*3.2 Н=1770 КИРГ 6.457.022 Трубопровод расходный КИРГ 6.457.022СБ Трубопровод расходный. Сборочный чертеж КИРГ 8.626.056 Труба 15*2.8 L=820 КИРГ 8.626.057 Труба 15*2.8 Н=915 Система топливная с баком емкостью 500л КИРГ 5.880.016 Система топливная с баком емкостью 500л КИРГ 5.880.016ВП Система топливная с баком емкостью 500л. Ведомость покупных изделий КИРГ 5.880.016СБ Система топливная с баком емкостью 500л. Сборочный чертеж КИРГ 5.886.013 Фильтр для заливки КИРГ 5.886.013СБ Фильтр для заливки. Сборочный чертеж КИРГ 5.887.019 Бак емкостью 500л КИРГ 5.887.019СБ Бак емкостью 500л. Сборочный чертеж КИРГ 5.886.014 Фильтр сетчатый КИРГ 5.886.014СБ Фильтр сетчатый. Сборочный чертеж КИРГ 6.164.001 Корпус фильтра КИРГ 6.164.001СБ Корпус фильтра. Сборочный чертеж КИРГ 8.034.013 Корпус фильтра КИРГ 8.665.011 Хомут КИРГ 8.034.014 Корпус КИРГ 8.614.009 Дно КИРГ 6.658.006 Патрубок 25; L=108 КИРГ 9.280.004 Бобышка КИРГ 5.887.020 Бак КИРГ 5.887.020СБ Бак. Сборочный чертеж КИРГ 8.607.018 Лист КИРГ 8.607.019 Лист КИРГ 8.607.020 Лист КИРГ 8.607.021 Лист КИРГ 8.614.010 Дно КИРГ 8.658.007 Патрубок 50; L=74 КИРГ 8.658.008 Патрубок 25; L=140 КИРГ 8.658.009 Патрубок 25; L=95 КИРГ 6.174.002 Крышка КИРГ 6.174.002СБ Крышка. Сборочный чертеж КИРГ 8.071.009 Ручка КИРГ 8.927.016 Ерш КИРГ 6.149.014 Угольник КИРГ 6.180.010 Рама КИРГ 6.180.010СБ Рама. Сборочный чертеж КИРГ 8.658.010 Патрубок 20; L=110 КИРГ 8.658.011 Патрубок 25 КИРГ 8.658.012 Патрубок 25; L=70 КИРГ 8.658.013 Патрубок 50; L=50 Система с баком емкостью 250л для воды КИРГ 5.880.017 Система с баком емкостью 250л для воды КИРГ 5.880.017ВП Система с баком емкостью 250л для воды. Ведомость покупных изделий КИРГ 5.880.017СБ Система с баком емкостью 250л для воды. Сборочный чертеж КИРГ 8.668.024 Верхняя скоба для крепления труб КИРГ 8.668.025 Нижняя скоба для крепления труб КИРГ 8.927.017 Ерш М16*50, l=260 КИРГ 5.887.021 Бак для воды емкостью 250л КИРГ 5.887.021СБ Бак для воды емкостью 250л. Сборочный чертеж КИРГ 5.887.022 Бак КИРГ 5.887.022СБ Бак. Сборочный чертеж КИРГ 6.230.001 Втулка КИРГ 8.030.005 Обечайка КИРГ 8.600.007 Планка КИРГ 8.614.011 Дно бака КИРГ 8.658.014 Патрубок 20*2.8; L=83 КИРГ 8.626.058 Труба 20*2.8; L=660 КИРГ 8.680.001 Шпилька КИРГ 6.174.003 Крышка бака КИРГ 6.174.003СБ Крышка бака. Сборочный чертеж КИРГ 8.671.010 Ручка КИРГ 8.946.003 Кольцо КИРГ 6.501.002 Кронштейн КИРГ 6.501.002СБ Кронштейн. Сборочный чертеж КИРГ 8.122.002 Стойка КИРГ 6.426.004 Косынка КИРГ 6.426.005 Косынка КИРГ 8.620.007 Подкос правый КИРГ 8.620.008 Подкос левый КИРГ 6.149.008 Угольник поперечный КИРГ 6.149.009 Угольник поперечный КИРГ 6.149.010 Угольник поперечный КИРГ 6.149.011 Угольник КИРГ 6.149.012 Угольник КИРГ 6.149.013 Угольник КИРГ 6.457.023 Трубопровод слива КИРГ 6.457.023СБ Трубопровод слива. Сборочный чертеж КИРГ 8.626.059 Труба 32*3.2; L=130 КИРГ 6.457.024 Трубопровод нагнетательный, всасывающий и расходный КИРГ 8.626.060 Труба 20*2.8; L=617 КИРГ 8.626.061 Труба 20*2.8; L=698 КИРГ 6.457.024СБ Трубопровод нагнетательный, всасывающий и расходный. Сборочный чертеж КИРГ 8.626.062 Труба 20*2.8; L=530 КИРГ 8.658.015 Патрубок 20*2.8; L=270 КИРГ 8.658.016 Патрубок 20*2.8; L=70 КИРГ 8.658.017 Патрубок 20*2.8; L=130 КИРГ 6.457.025 Трубопровод переливной КИРГ 6.457.025СБ Трубопровод переливной. Сборочный чертеж КИРГ 8.626.063 Труба 20*2.8; L=1450 КИРГ 8.626.064 Труба 32*3.2; L=1222 КИРГ 8.658.018 Патрубок 20*2.8; L=280 КИРГ 8.626.065 Труба 20*2.8; L=400 КИРГ 6.470.005 Прокладка КИРГ 8.607.022 Лист Подвеска для выхлопного трубопровода КИРГ 6.427.002 Подвеска для выхлопного трубопровода КИРГ 6.427.002СБ Подвеска для выхлопного трубопровода. Сборочный чертеж КИРГ 6.427.001 Стяжка КИРГ 8.665.012 Хомут КИРГ 8.668.026 Скоба КИРГ 8.668.027 Скоба КИРГ 6.401.001 Амортизатор КИРГ 6.401.001СБ Амортизатор. Сборочный чертеж КИРГ 8.034.015 Корпус КИРГ 6.230.002 Втулка направляющая КИРГ 8.946.004 Шайба амортизационная КИРГ 8.946.005 Шайба промежуточная КИРГ 8.927.018 Стержень КИРГ 8.946.006 Шайба упорная КИРГ 6.174.004 Крышка КИРГ 8.600.009 Стопор Кронштейн крепления вытяжного трубопровода КИРГ 6.501.003 Кронштейн крепления вытяжного трубопровода КИРГ 6.501.003СБ Кронштейн крепления вытяжного трубопровода. Сборочный чертеж КИРГ 8.668.028 Скоба КИРГ 8.600.008 Планка КИРГ 8.607.023 Зонт КИРГ 6.470.006 Прокладка КИРГ 6.426.006 Косынка Бак перелива масла емкостью 100л КИРГ 5.887.023 Бак перелива масла емкостью 100л КИРГ 5.887.023СБ Бак перелива масла емкостью 100л. Сборочный чертеж КИРГ 9.300.001 Горловина КИРГ 6.433.001 Пробка КИРГ 6.457.026 Наконечник вентиляционный КИРГ 6.457.026СБ Наконечник вентиляционный. Сборочный чертеж |
| Разработан: | Гипросвязь - 3 |
| Утверждён: | 13.04.1987 Минсвязи СССР (USSR Minsvyazi 186) |
| Заменяет собой: |
|



































































