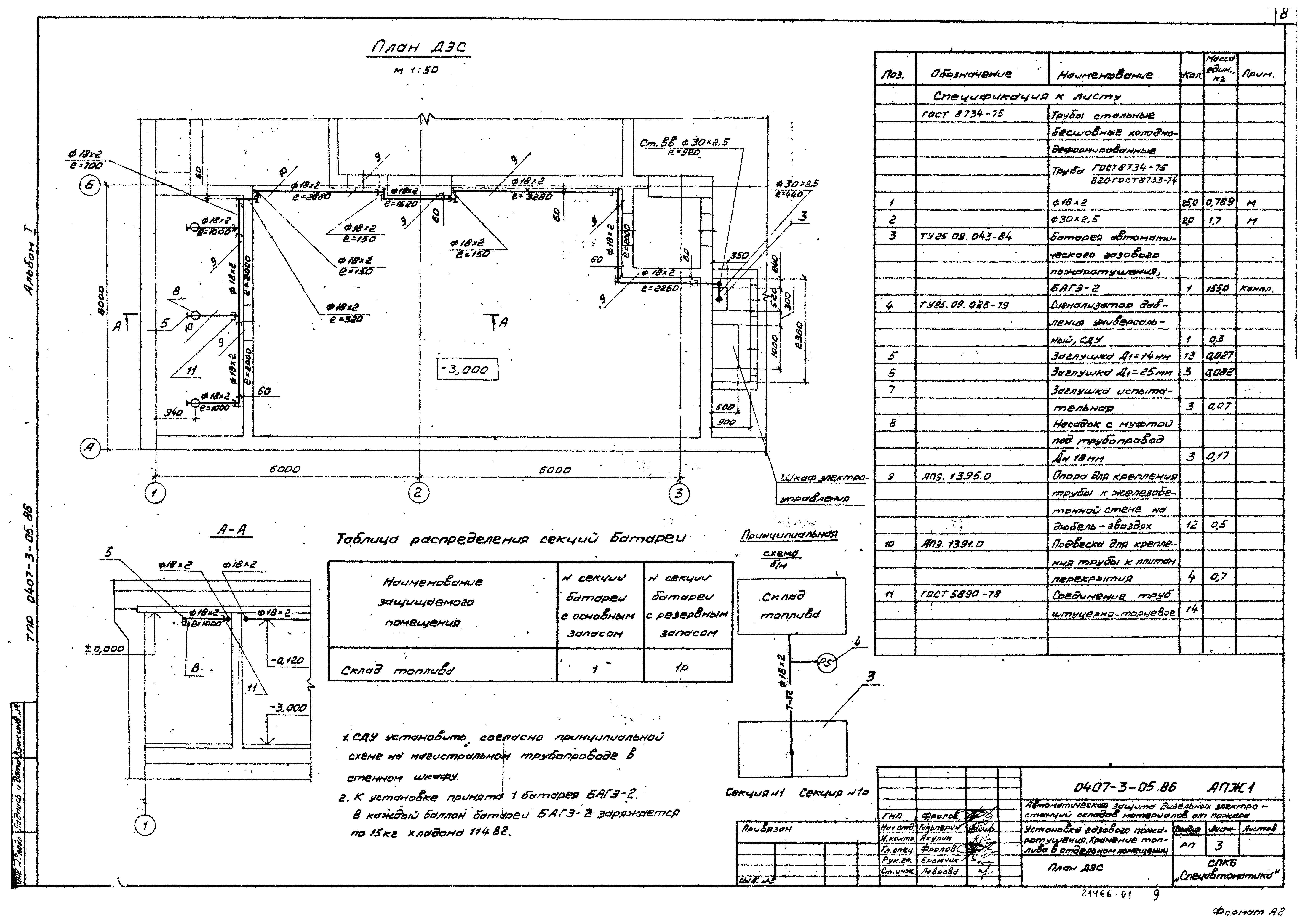
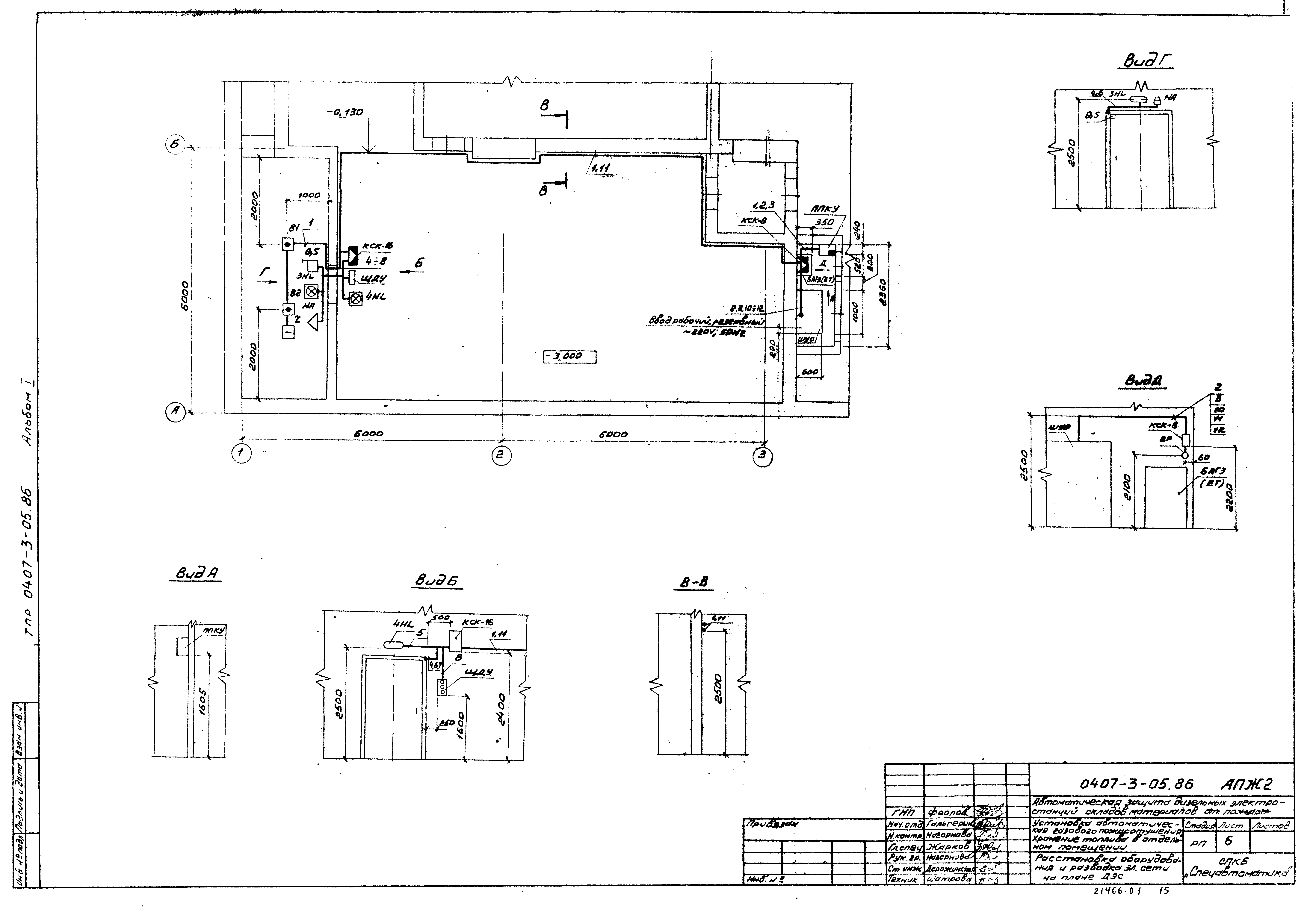
Скачать Типовые проектные решения 0407-3-05.86 Альбом 1. Пояснительная записка. Технологическая и электротехническая частиДата актуализации: 01.01.2021
|
| Обозначение: | Типовые проектные решения 0407-3-05.86 |
| Обозначение англ: | 0407-3-05.86 |
| Статус: | справочные материалы, мп, тпр |
| Название рус.: | Альбом 1. Пояснительная записка. Технологическая и электротехническая части |
| Дата добавления в базу: | 01.09.2013 |
| Дата актуализации: | 01.01.2021 |
| Дата окончания срока действия: | 16.12.1985 |
| Разработан: | СПКБ Спецавтоматика Минприбора |
| Утверждён: | 16.12.1985 Минприбор СССР (USSR Minpribor ) |

















