Скачать Типовой проект 407-3-13 Альбом 5. Комплектная трансформаторная подстанция мощностью 560 кВА Армянского электромашиностроительного завода (отдельностоящая, встроенная, внутрицеховая). Электрическая частьДата актуализации: 01.01.2021
|
| Обозначение: | Типовой проект 407-3-13 |
| Обозначение англ: | 407-3-13 |
| Статус: | не действует |
| Название рус.: | Альбом 5. Комплектная трансформаторная подстанция мощностью 560 кВА Армянского электромашиностроительного завода (отдельностоящая, встроенная, внутрицеховая). Электрическая часть |
| Дата добавления в базу: | 01.09.2013 |
| Дата актуализации: | 01.01.2021 |
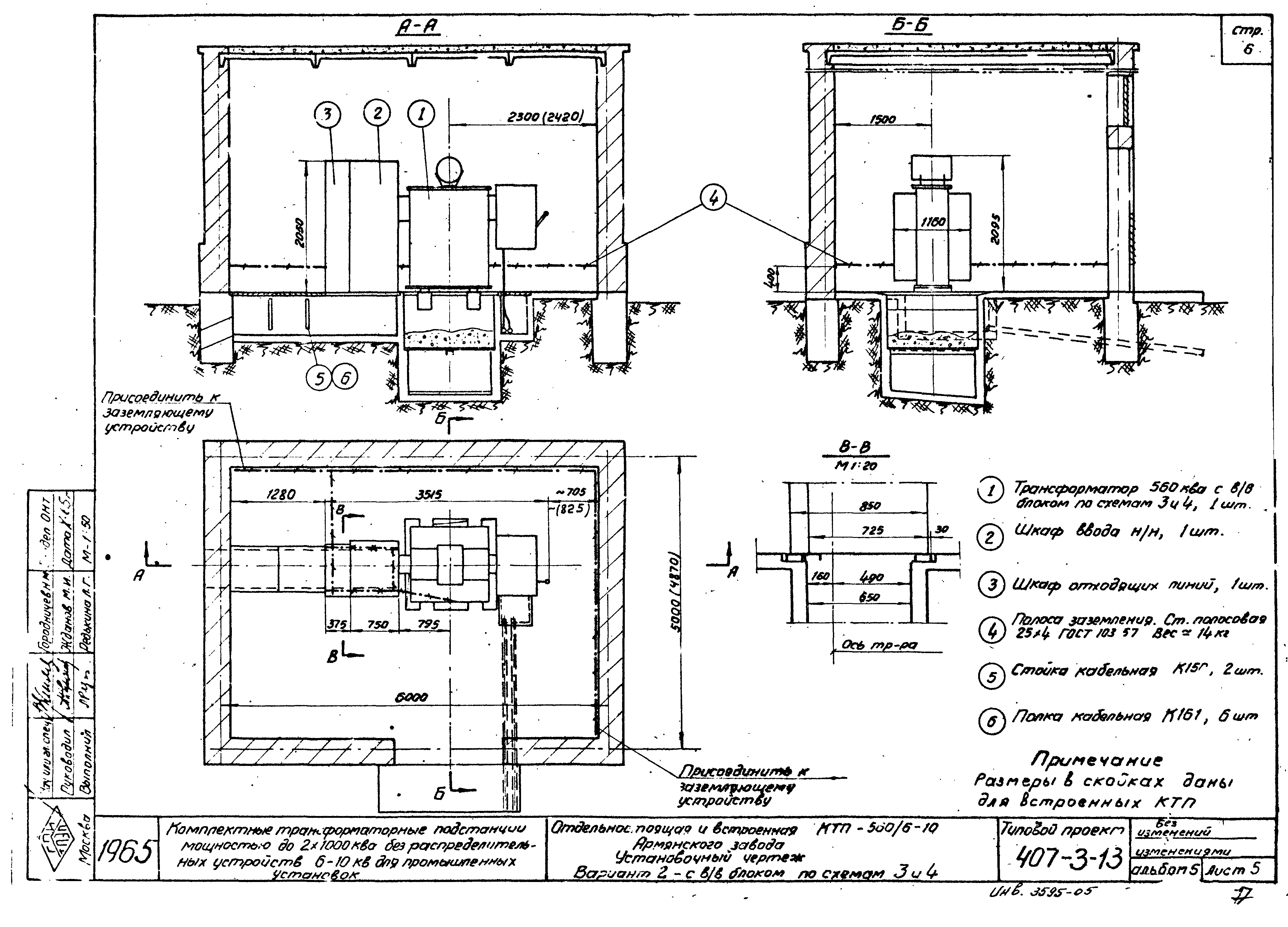
| Оглавление: | Содержание альбома № 5 Общие чертежи для отдельностоящей, встроенной и внутрицеховой подстанций Принципиальная однолинейная схема Спецификация подстанционного электрооборудования Чертежи для отдельностоящей и встроенной подстанций Установочный чертеж Электрическое освещение Спецификация электрооборудования и материалов для электрического освещения Чертежи для внутрицеховой подстанции Установочный чертеж Сметы |
| Разработан: | Тяжпромэлектропроект |
| Утверждён: | 30.11.1965 Тяжпромэлектропроект (1426) |






























