Скачать Типовой проект 407-3-16 Альбом 15. Общие материалы. Строительная частьДата актуализации: 01.01.2021
|
| Обозначение: | Типовой проект 407-3-16 |
| Обозначение англ: | 407-3-16 |
| Статус: | не действует |
| Название рус.: | Альбом 15. Общие материалы. Строительная часть |
| Дата добавления в базу: | 01.09.2013 |
| Дата актуализации: | 01.01.2021 |
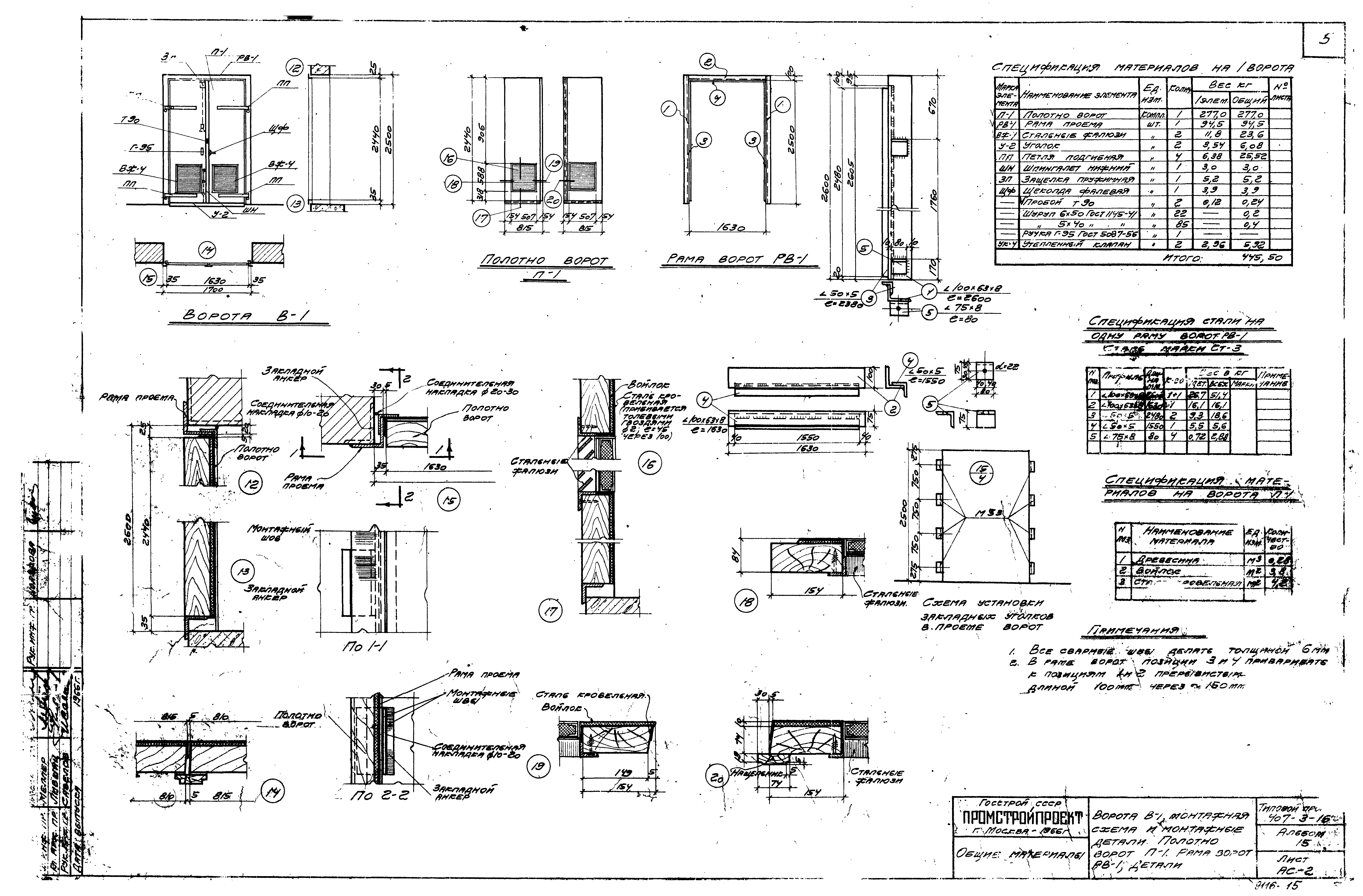
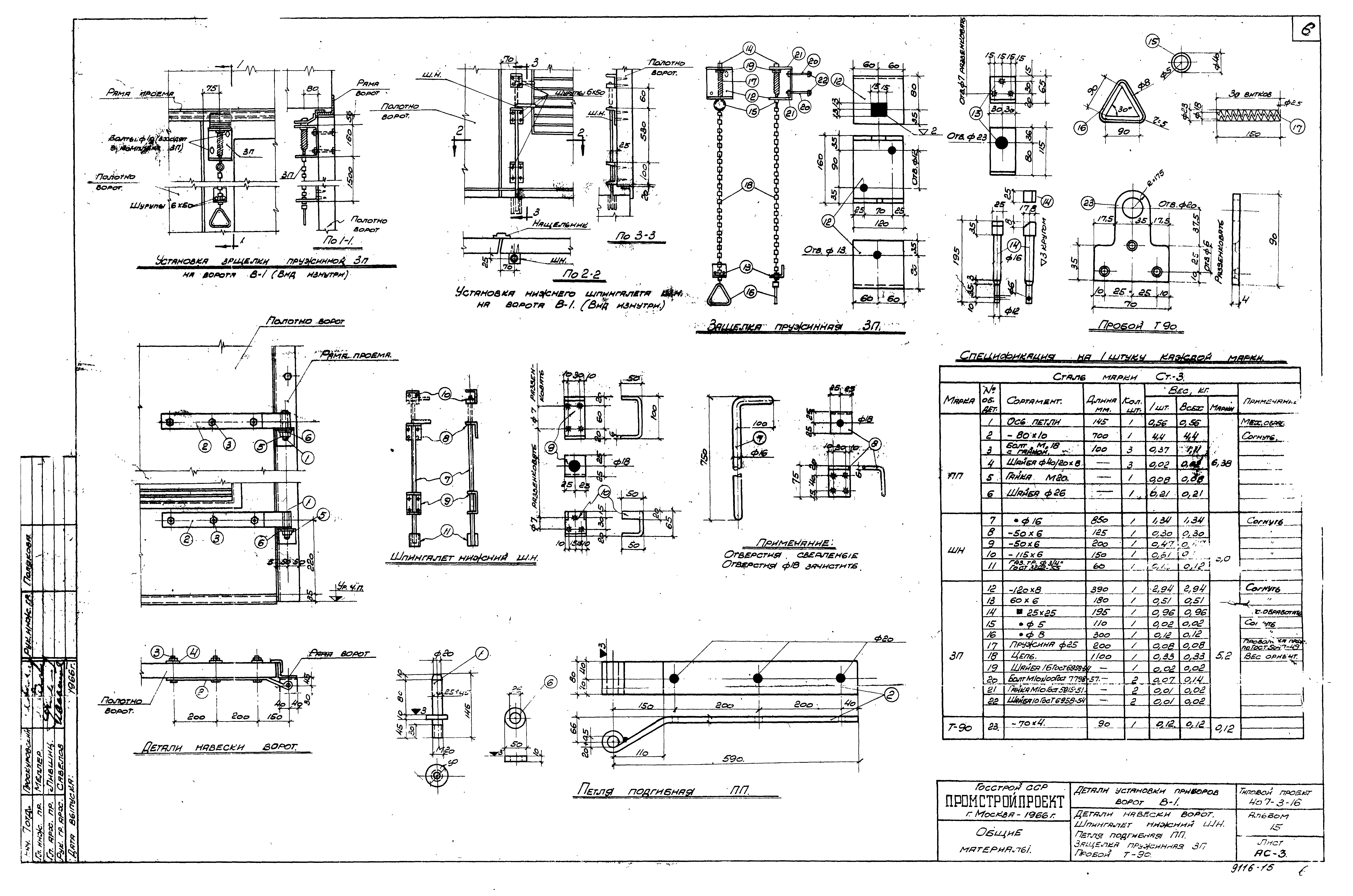
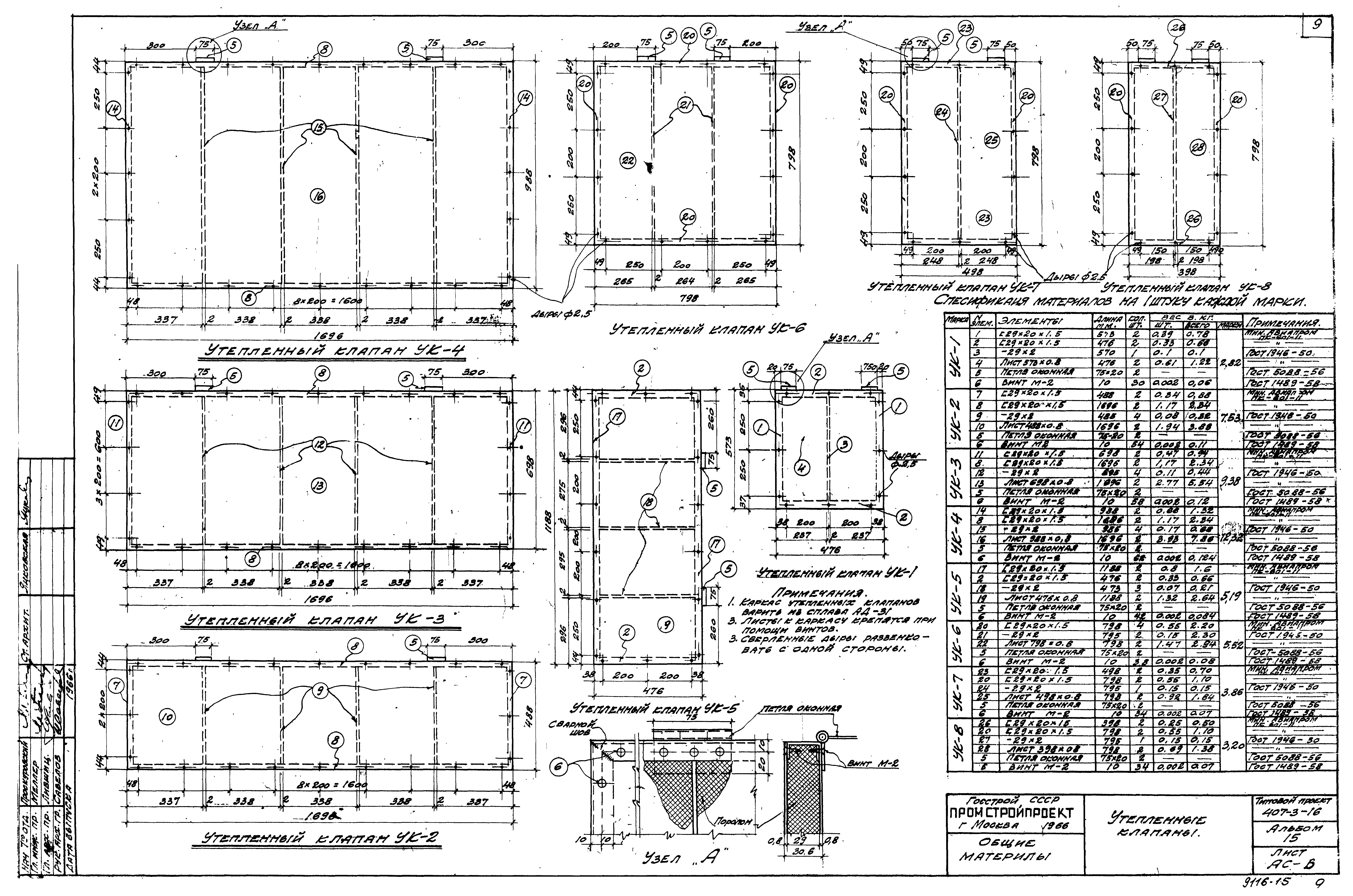
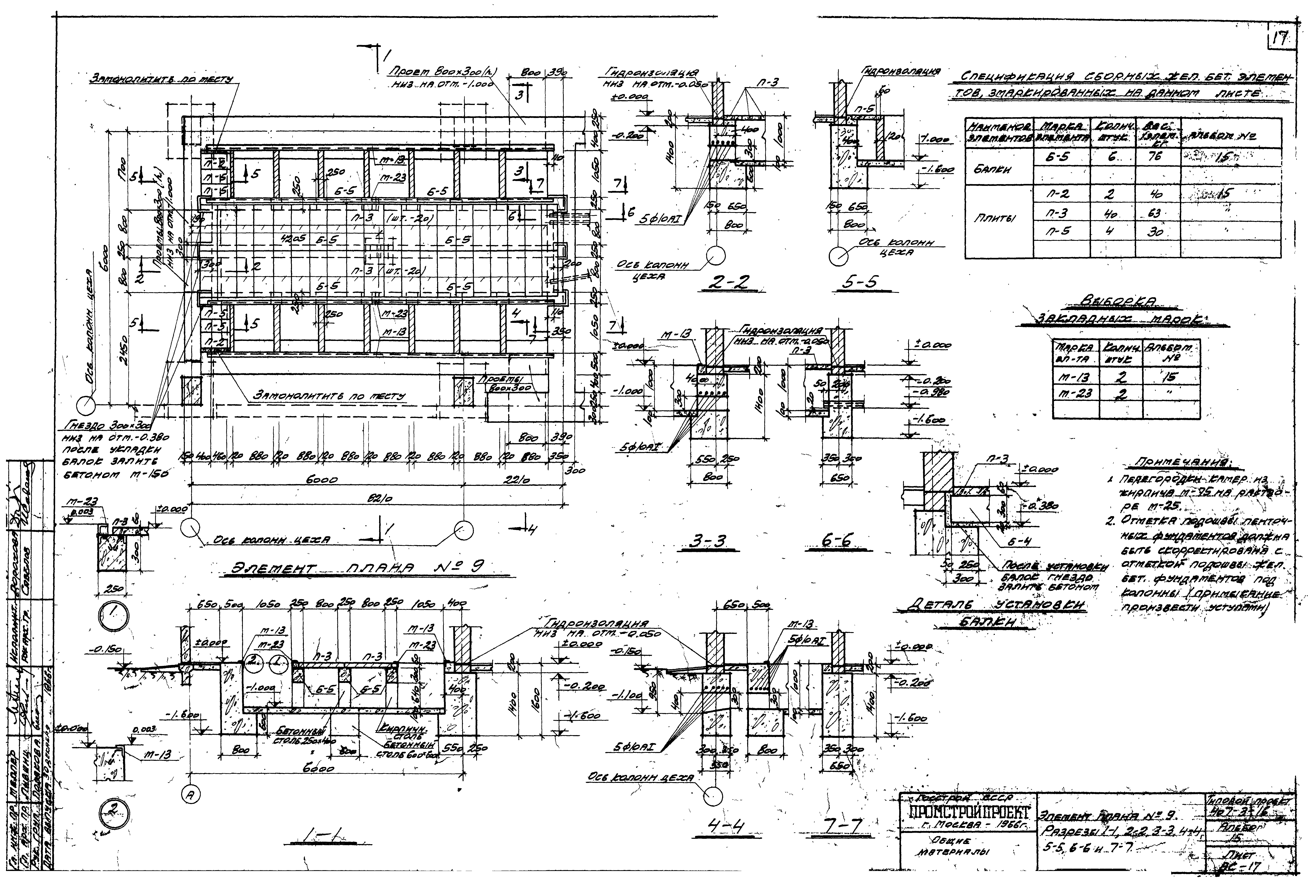
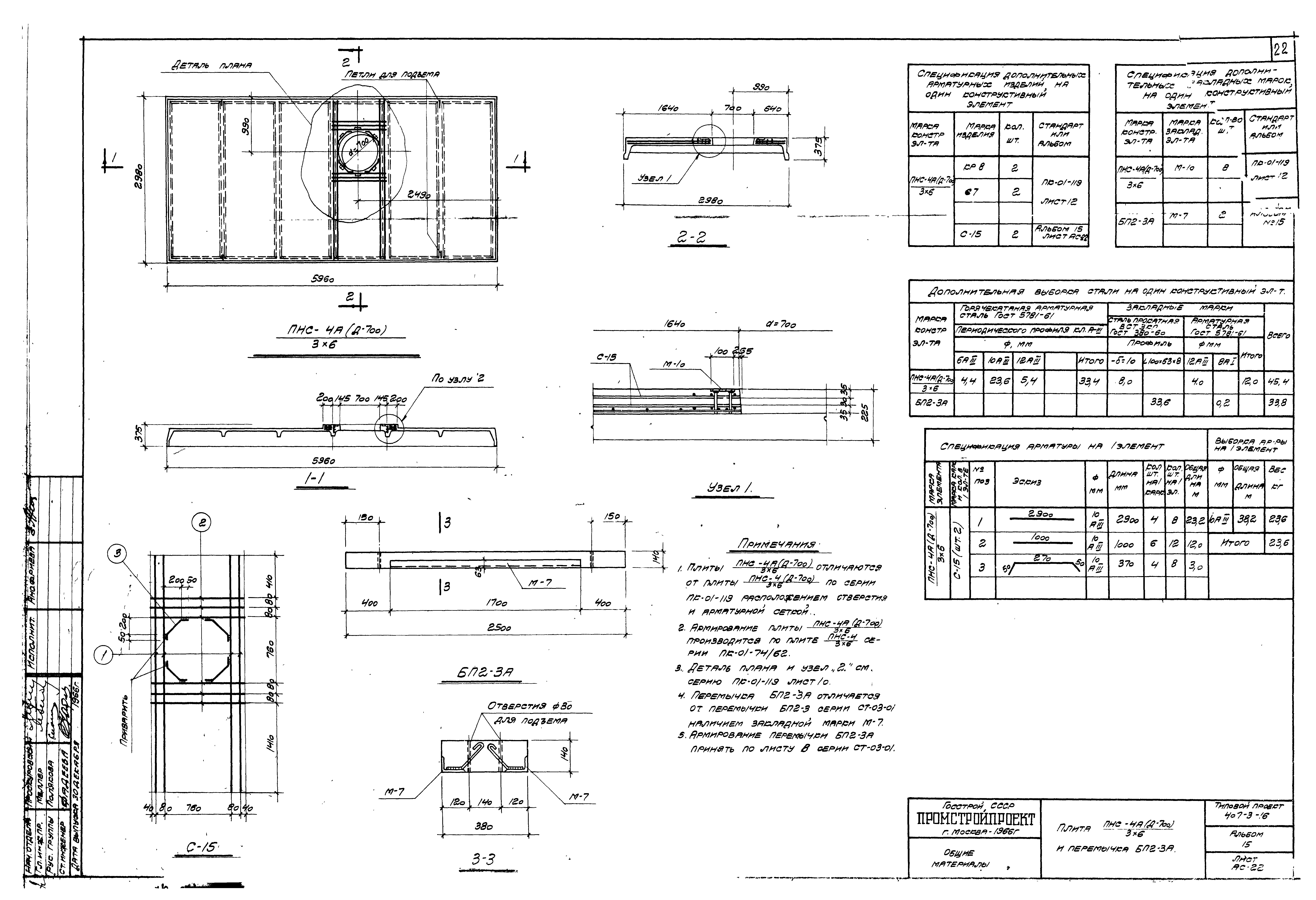
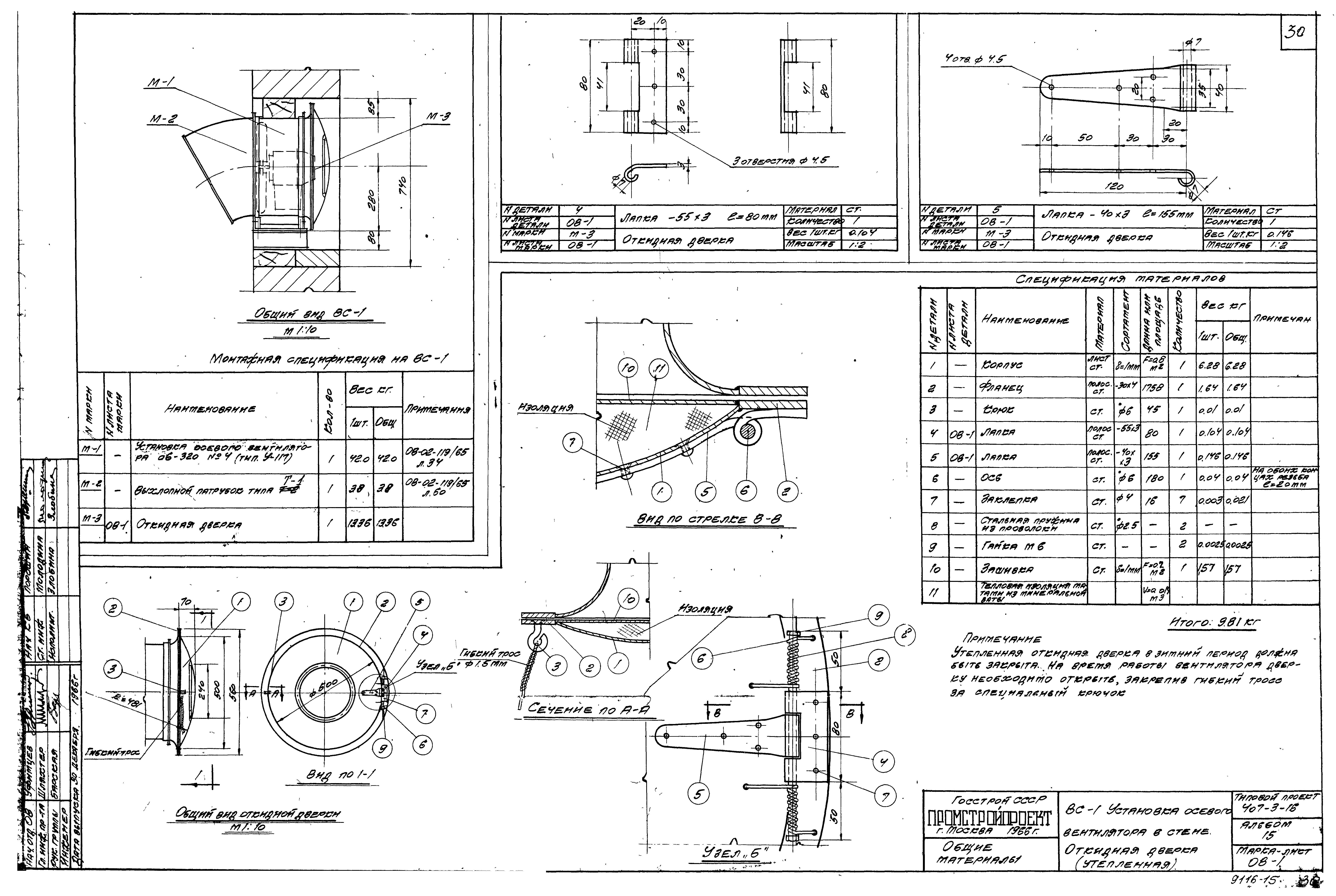
| Оглавление: | Содержание альбома Перечень альбомов строительной части. Пояснительная записка АС-1 Детали с 1 по 10 АС-2 Ворота В-1; монтажная схема и монтажные детали. Полотно П-1. Рама ворот РВ-1. Детали АС-3 Детали установки приборов ворот В-1; детали навески ворот. Шпингалет нижний ШН; петля подгибная ПП. Защелка пружинная ЗП. Пробой Т-90 АС-4 Двери Д-1; Д-2; Д-3. Детали 21-27. Щеколда фалевая ЩФ. Уголок защитный У-2. Жалюзийная решетка ВЖ-5 АС-5 Стальные жалюзи ВЖ-1; ВЖ-2; ВЖ-3; ВЖ-4 АС-6 Утепленные клапаны УК-1; УК-2; УК-3; УК-4; УК-5; УК-6; УК-7; УК-8 АС-10 Элемент плана №1; разрезы 1-1; 2-2; 3-3; 4-4. Узел "А" АС-11 Элемент плана №2; разрезы 1-1; 2-2; 3-3; 4-4. Спецификации АС-12 Элемент плана №3; разрезы 1-1; 2-2; 3-3; 4-4. Спецификации АС-13 Элемент плана №4; разрезы 1-1; 2-2; 3-3; 4-4; 5-5. Спецификации АС-14 Элемент плана №6; разрезы 1-1; 2-2; 3-3. Узел "А" АС-15 Элемент плана №7; разрезы 1-1; 2-2; 3-3; 4-4; 5-5. Спецификации АС-16 Элемент плана №8; разрезы 1-1; 2-2; 3-3; 4-4; 5-5; 6-6. Спецификации АС-17 Элемент плана №9; разрезы 1-1; 2-2; 3-3; 4-4; 5-5; 6-6; 7-7. Спецификации АС-18 Балки Б-1 и Б-2 АС-19 Балки Б-3; Б-4; Б-5 АС-20 Плиты П-1; П-2; П-3; П-4 АС-21 Плиты П-5; П-6; П-7; П-8 АС-22 Плита (ПНС-4А (Д-70))/(3*6) и перемычка БП2-3А АС-23 Закладные марки с М-1 по М-9 АС-24 Закладные марки с М-10 по М-20 АС-25 Закладные марки с М-21 по М-27 АС-26 Закладные марки с М-28 по М-34 АС-27 Стальные решетки Р-1; Р-2; Р-3; Р-4; Р-5; Р-6 АС-28 Стальные решетки Р-7; Р-8; Р-9; Р-10 АС-29 Щиты Щ-1; Щ-3; Щ-6; Щ-7; Щ-11 ОВ-1 ВС-1 Установка осевого вентилятора в стене. Откидная дверка (утепленная) ОВ-2 Ш-1 и Ш-2 Поддоны к вытяжным шахтам d=495 и d=595 |
| Разработан: | Промстройпроект |
| Утверждён: | 24.02.1967 Тяжпромэлектропроект (35) |































