Скачать Типовой проект 407-3-16 Альбом 60. РУ-6/10 кВ типа КСО-266 на 16 камер (отдельностоящая). Строительная частьДата актуализации: 01.01.2021
|
| Обозначение: | Типовой проект 407-3-16 |
| Обозначение англ: | 407-3-16 |
| Статус: | не действует |
| Название рус.: | Альбом 60. РУ-6/10 кВ типа КСО-266 на 16 камер (отдельностоящая). Строительная часть |
| Дата добавления в базу: | 01.09.2013 |
| Дата актуализации: | 01.01.2021 |
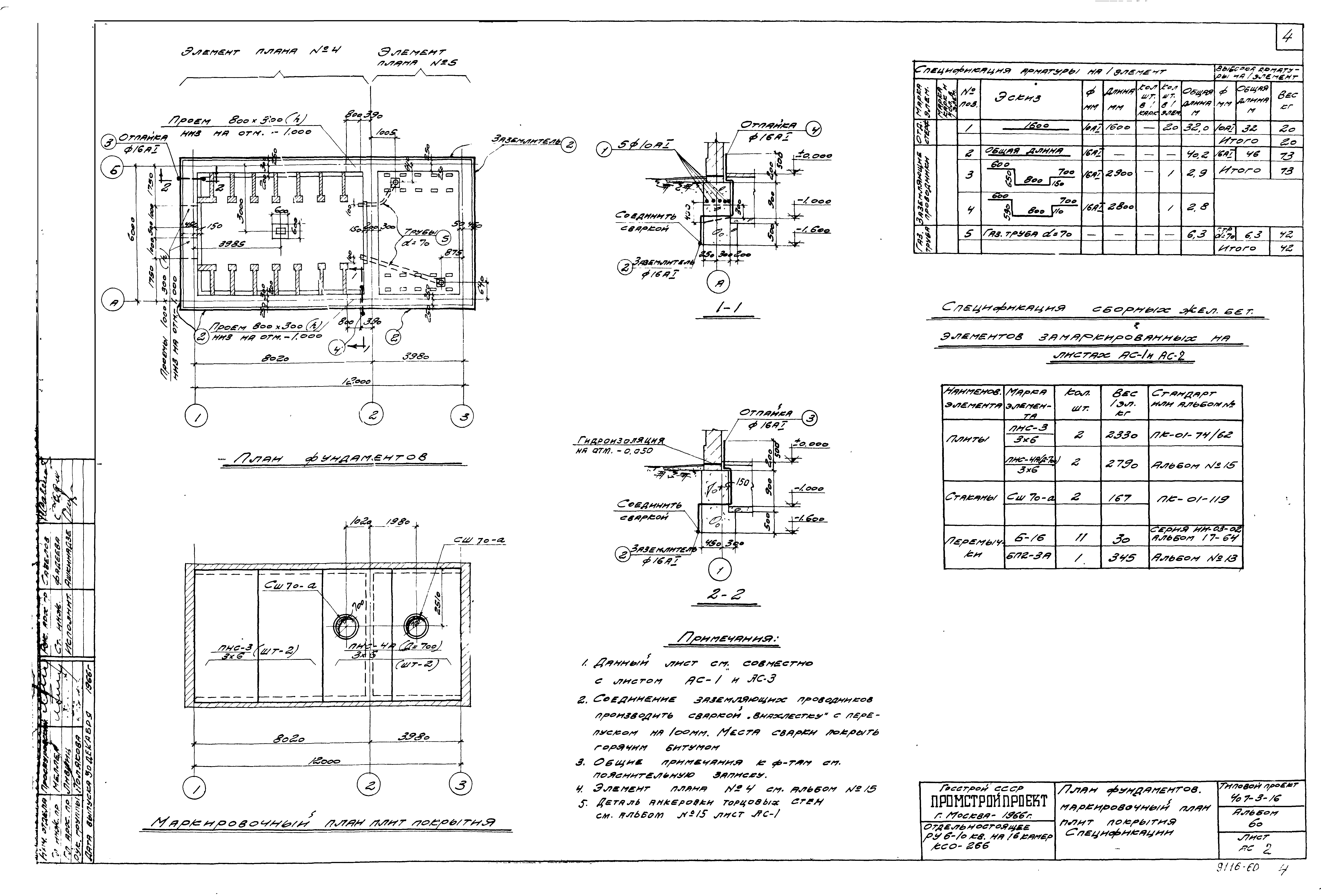
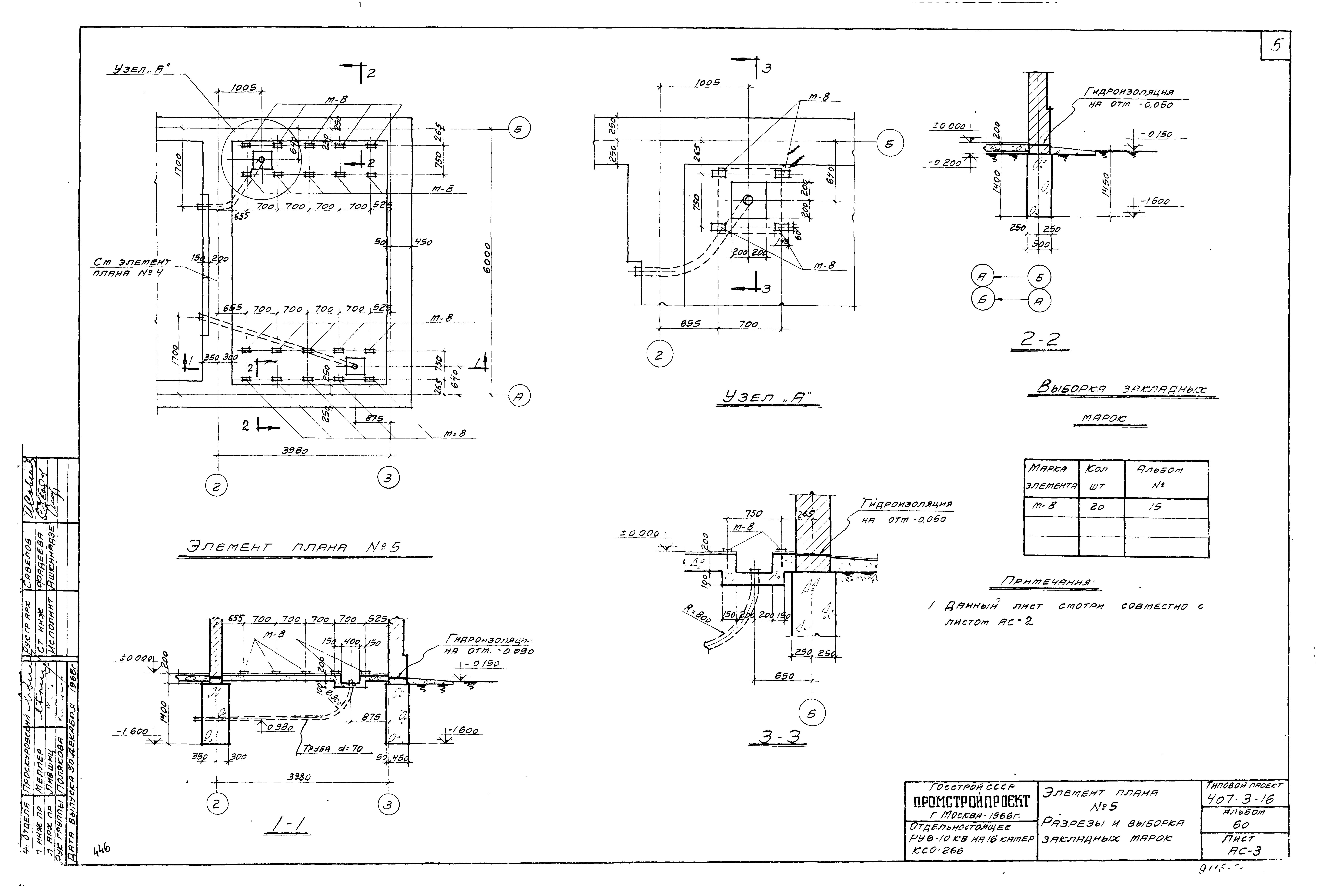
| Оглавление: | Содержание альбома. Общие указания АС-1 Фасады. Разрезы 1-1; 2-2. План на отм. ±0.000 АС-2 План фундаментов. Маркировочный план плит покрытия. Спецификации АС-3 Элемент плана №5. Разрез и выборка закладных марок АС-4 Спецификация сборных железобетонных изделий. Расход материалов. Спецификация стальных и деревянных изделий. Перечень стандартов Сметы |
| Разработан: | Промстройпроект |
| Утверждён: | 24.02.1967 Тяжпромэлектропроект (35) |










