Скачать Типовой проект 407-3-103 Альбом 2. ЧертежиДата актуализации: 01.01.2021
|
| Обозначение: | Типовой проект 407-3-103 |
| Обозначение англ: | 407-3-103 |
| Статус: | не действует |
| Название рус.: | Альбом 2. Чертежи |
| Дата добавления в базу: | 01.09.2013 |
| Дата актуализации: | 01.01.2021 |
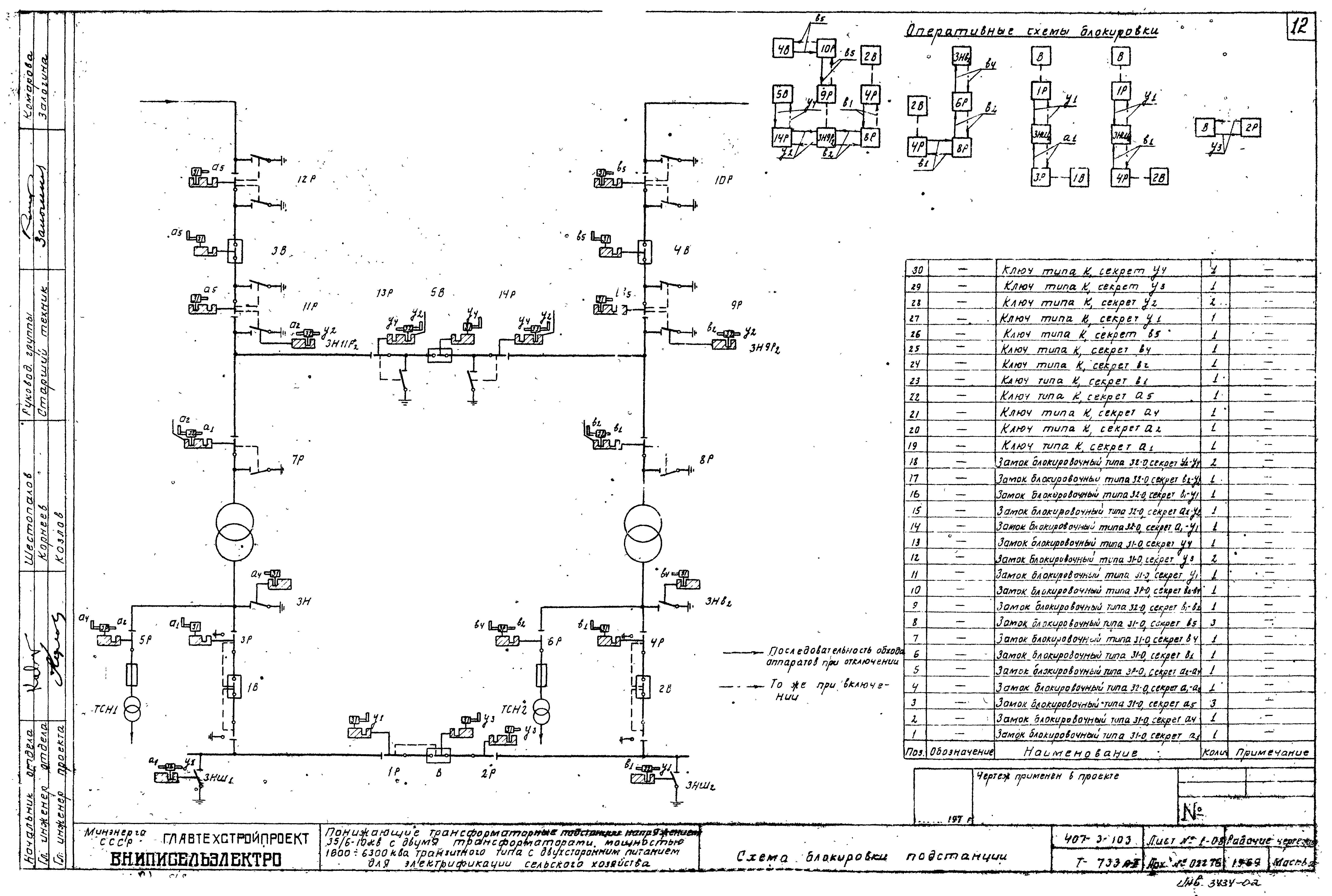
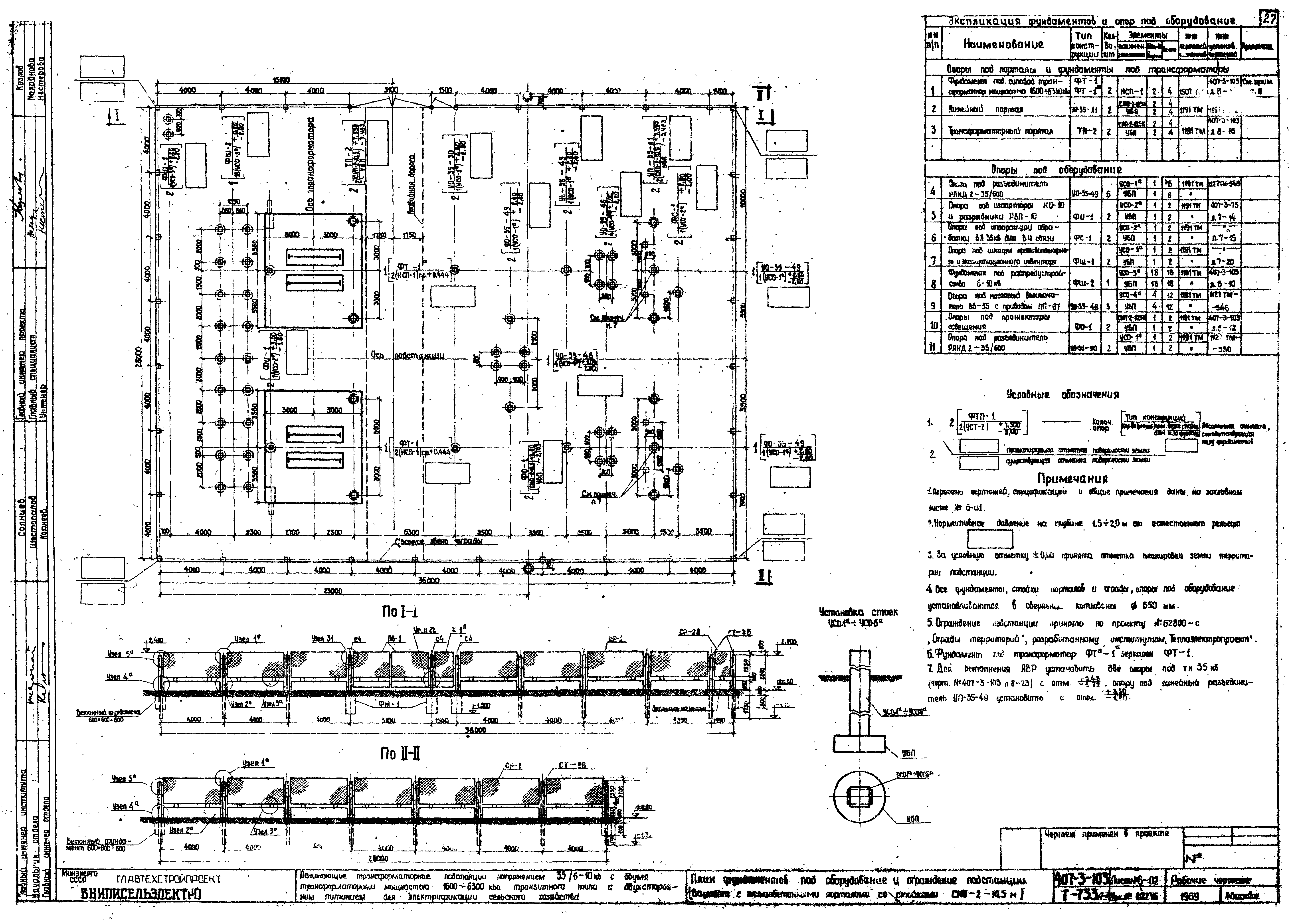
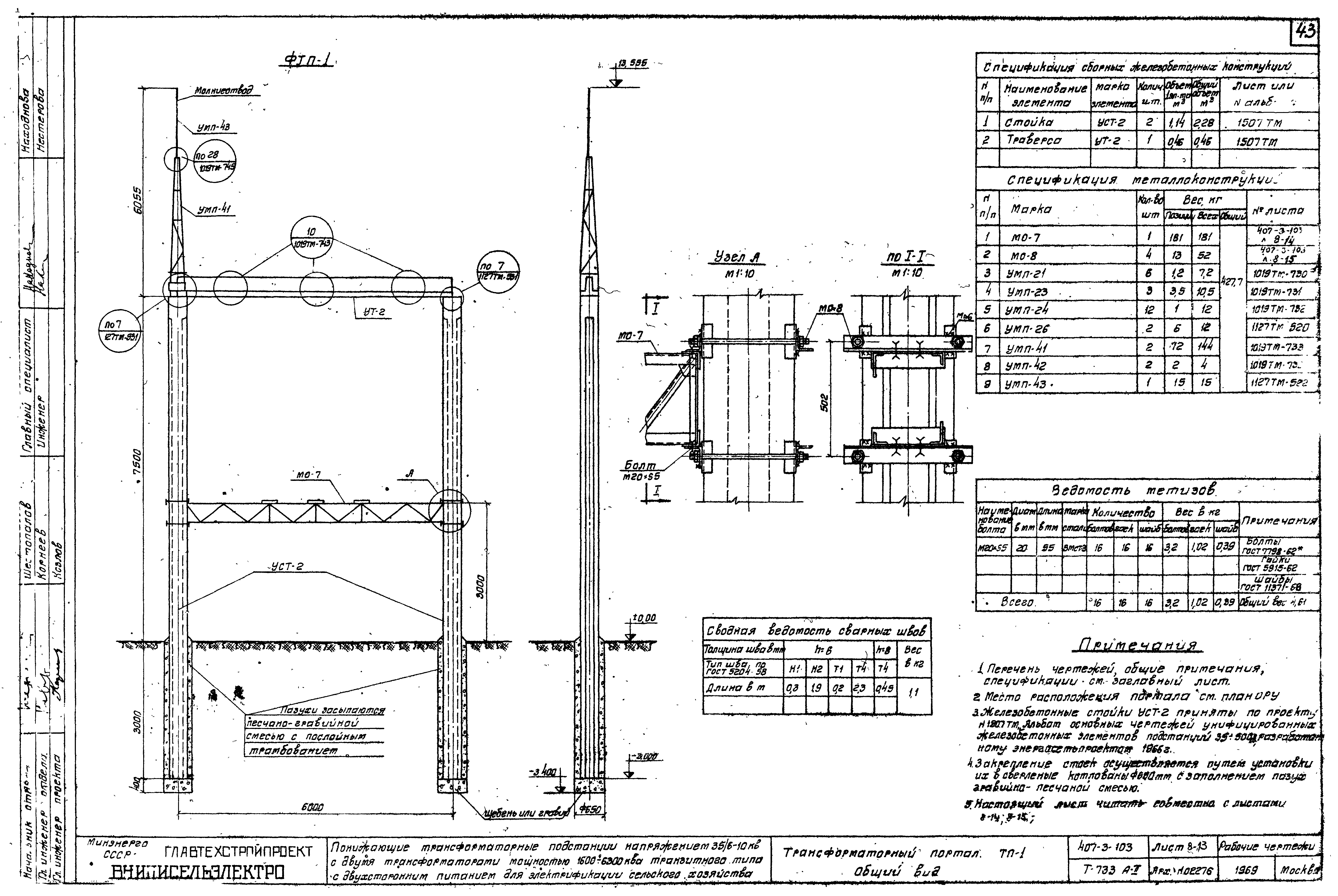
| Оглавление: | Титульный лист Состав проекта Аннотация Содержание альбома II Узел "Схемы первичных соединений и общие чертежи" Заглавный лист Схема электрических соединений подстанции Общий вид подстанции (вариант компоновки 1) Общий вид подстанции (вариант компоновки 2) Схема защиты подстанции от грозовых перенапряжений Освещение подстанции (вариант компоновки 1) Освещение подстанции (вариант компоновки 2) Схема блокировки подстанции Заземляющее устройство подстанции Узел "Релейная защита и автоматика элементов подстанции" Заглавный лист Схема размещения защит и устройств автоматики Узел "Задание заводу на - СКТП 35/6-10-2х -14" Заглавный лист Опросный лист Узел "Вторичные соединения и кабельное хозяйство" Заглавный лист Журнал контрольных кабелей (вариант с АВР на МВ линии) Журнал контрольных кабелей (вариант с АВР на МВ перемычки) Журнал силовых кабелей План раскладки силовых и контрольных кабелей (вариант с АВР на МВ линии) План раскладки силовых и контрольных кабелей (вариант с АВР на МВ перемычки) Узел "Нулевой цикл". Вариант с железобетонными порталами со стойками УСТ-2 Заглавный лист План фундаментов и ограждение подстанции Узел "Нулевой цикл". Вариант с железобетонными порталами со стойками СНП-2-10,5Н Заглавный лист План фундаментов и ограждение подстанции Узел "Нулевой цикл". Вариант с металлическими порталами Заглавный лист План фундаментов под порталы, оборудование и ограждение подстанции (вариант с металлическими порталами) План порталов ошиновки Узел "Установочные чертежи, опоры и фундаменты под оборудование" (дополнение) Установка разрядников типа РВС-35 Установка масляного выключателя типа ВМ(ВБ)-35 с приводом ПП-61К (ПП-67) Детали передачи от привода ПП-61К (ПП-67) на вал выключателя 35 кВ Валы разъединителя 35кв и привода Установка разъединителя типа РЛНД 2-35/600 на ж/б опоре (Н = 3,5) Установка светильников типа СЗЛ и прожекторов типа ПЗС-25 Установка изолятора типа ОНС-35-500 и кронштейн трансформатора Узлы крепления ошиновки оборудования 35 и 10 кВ Ограда территории. Доборная рамка СР-2Д Фундамент под распредустройство 6-10 кв ФШ-2 Фундамент под трансформатор ФТ-1 Опора под прожекторы освещения Трансформаторный портал ТП-1. Общий вид Трансформаторный портал ТП-1. Траверса МО-7 Трансформаторный портал ТП-1. Марка МО-8 Трансформаторный портал ТП-2. Общий вид Трансформаторный портал, марки МО-12, МО-13 Линейный портал УПМ-35-1а. Монтажная схема Трансформаторный портал УПМ-35-1б. Монтажная схема. Узел А Трансформаторный портал, траверса МО-9, марка МО-10 Установка трансформатора напряжения типа НОМ-35-66 Шина и узлы крепления ошиновки трансформатора напряжения НОМ-35-66 Опора ФТ-2 под трансформатор напряжения НОМ-35-66 |
| Разработан: | ВНИПИсельэлектро |
| Утверждён: | 04.07.1969 ВНИПИсельэлектро (55п) |





















































