Скачать Типовой проект 407-3-191 Альбом 3. Электротехническая часть. Тип 3. ГПП-110-II-2х16-А2. Тип 4. ГПП-110-II-2х25-Б2. Принципиальные и монтажные схемыДата актуализации: 01.01.2021
|
| Обозначение: | Типовой проект 407-3-191 |
| Обозначение англ: | 407-3-191 |
| Статус: | действует |
| Название рус.: | Альбом 3. Электротехническая часть. Тип 3. ГПП-110-II-2х16-А2. Тип 4. ГПП-110-II-2х25-Б2. Принципиальные и монтажные схемы |
| Дата добавления в базу: | 01.09.2013 |
| Дата актуализации: | 01.01.2021 |
| Дата введения: | 15.08.1971 |
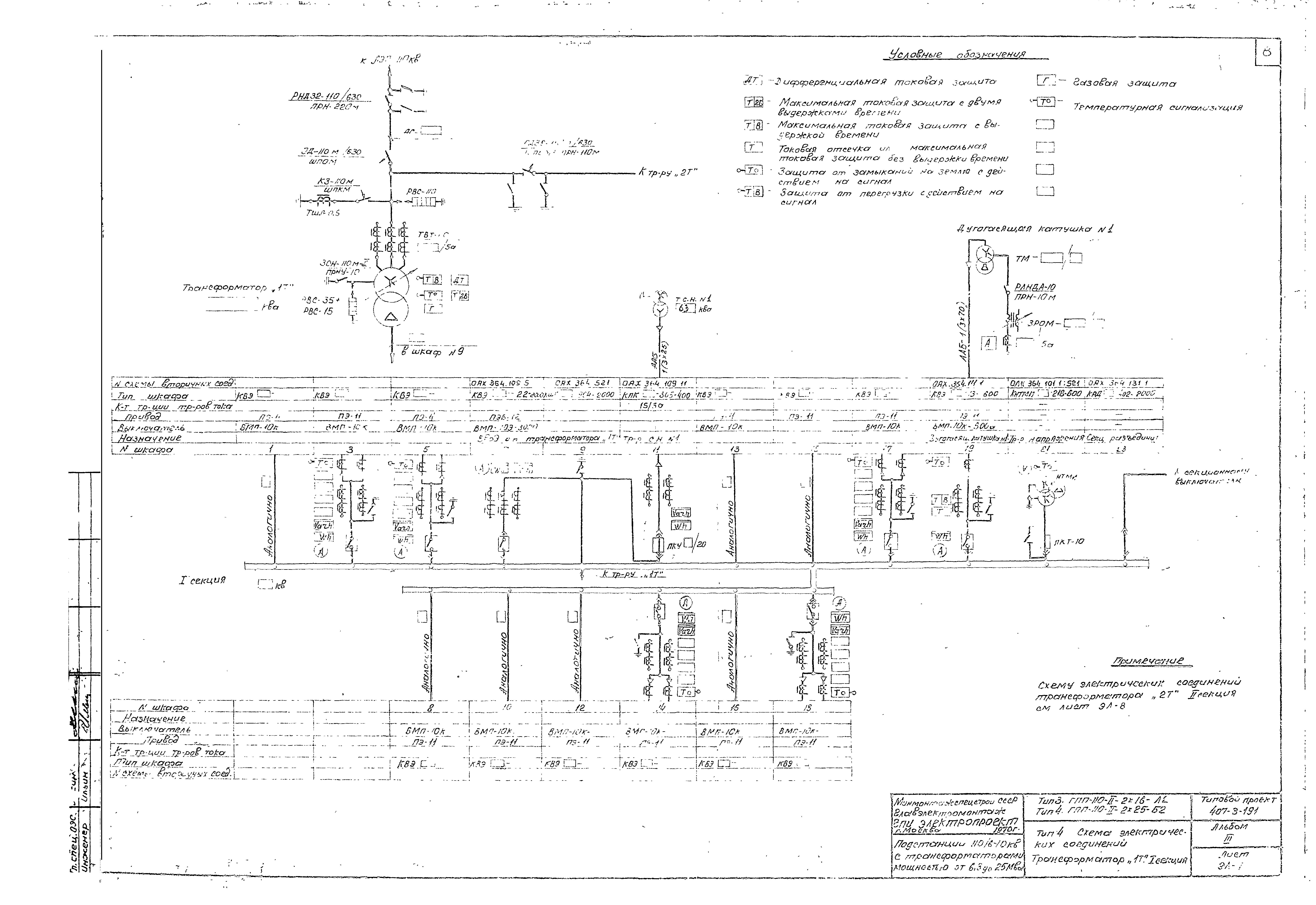
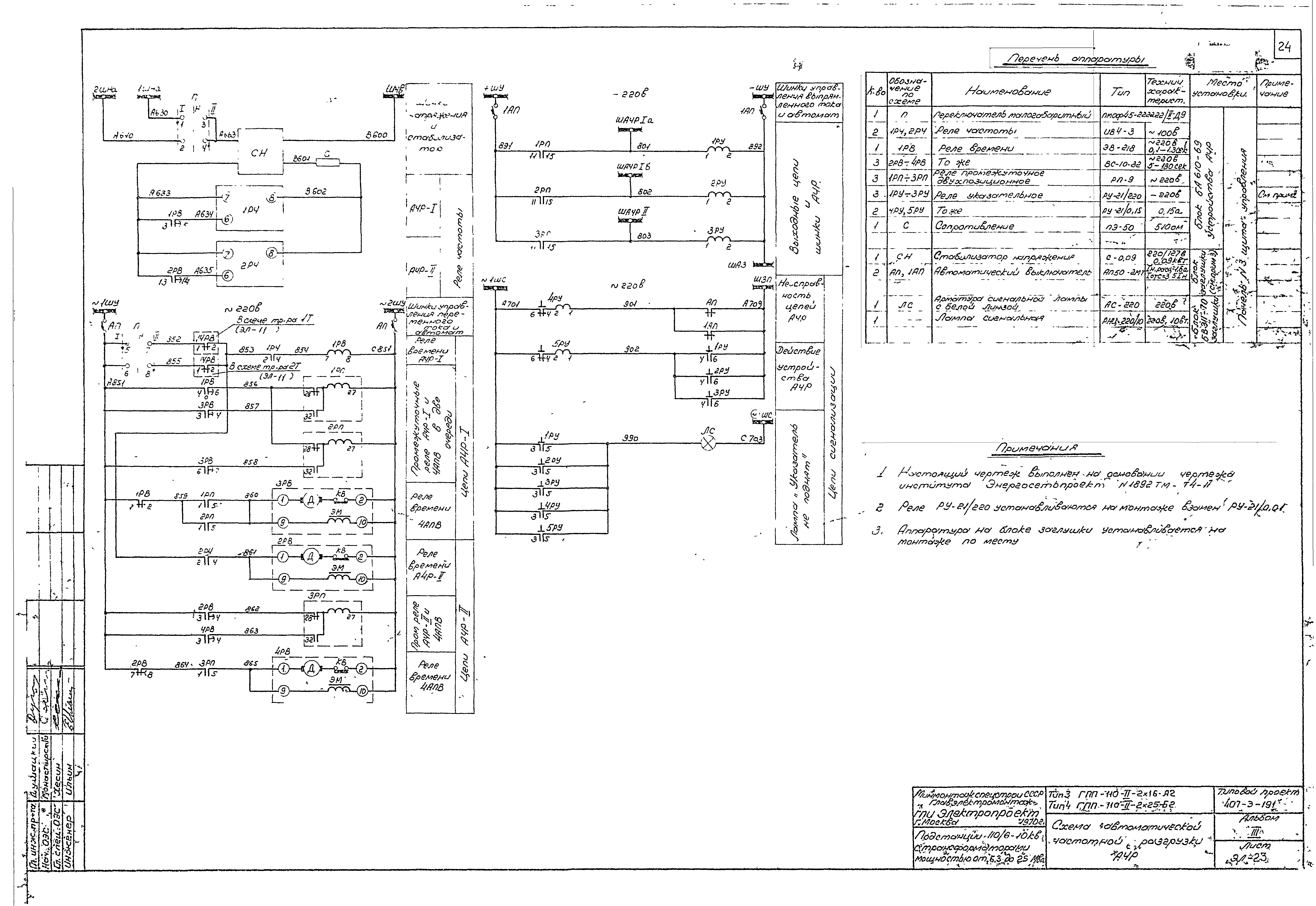
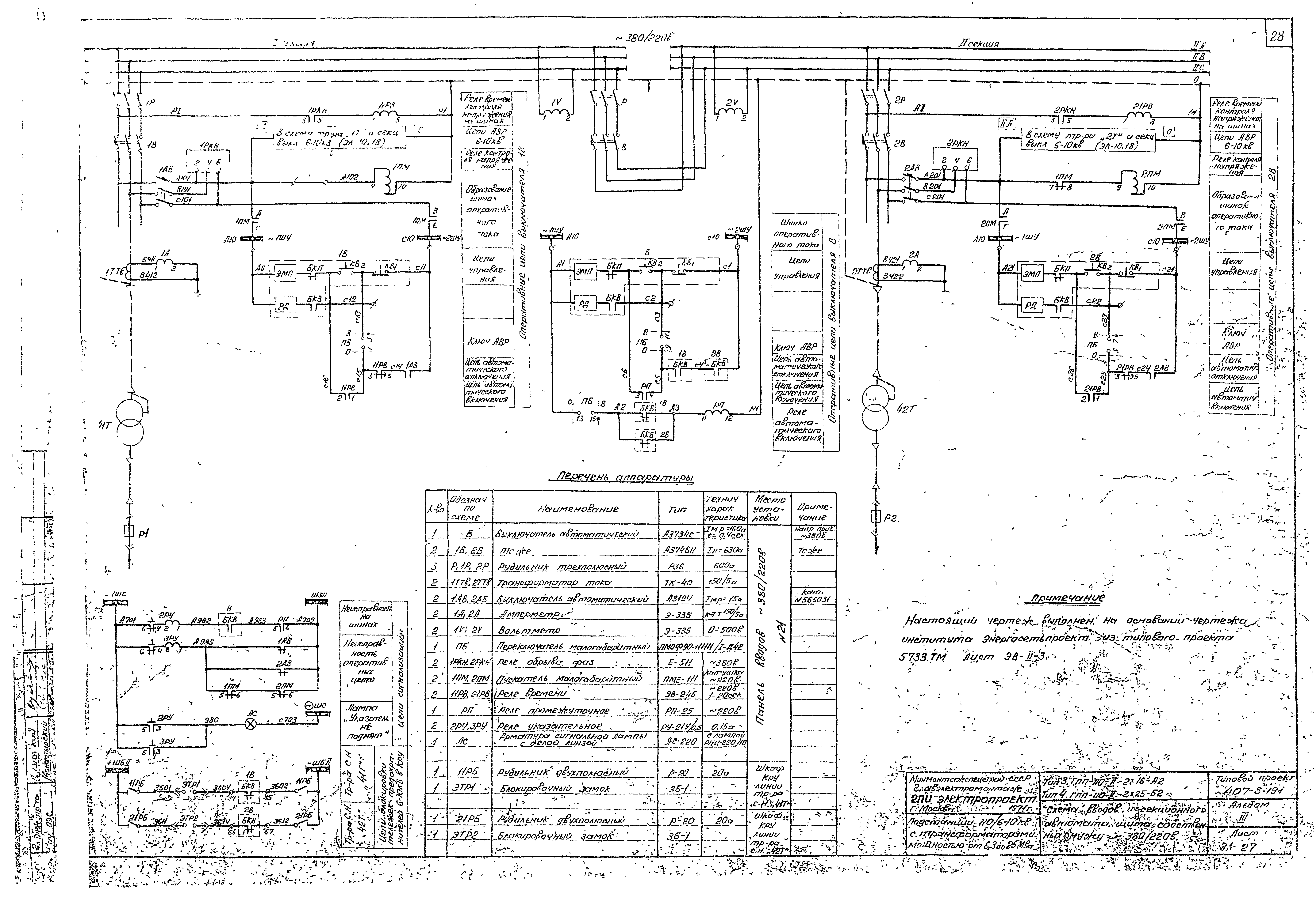
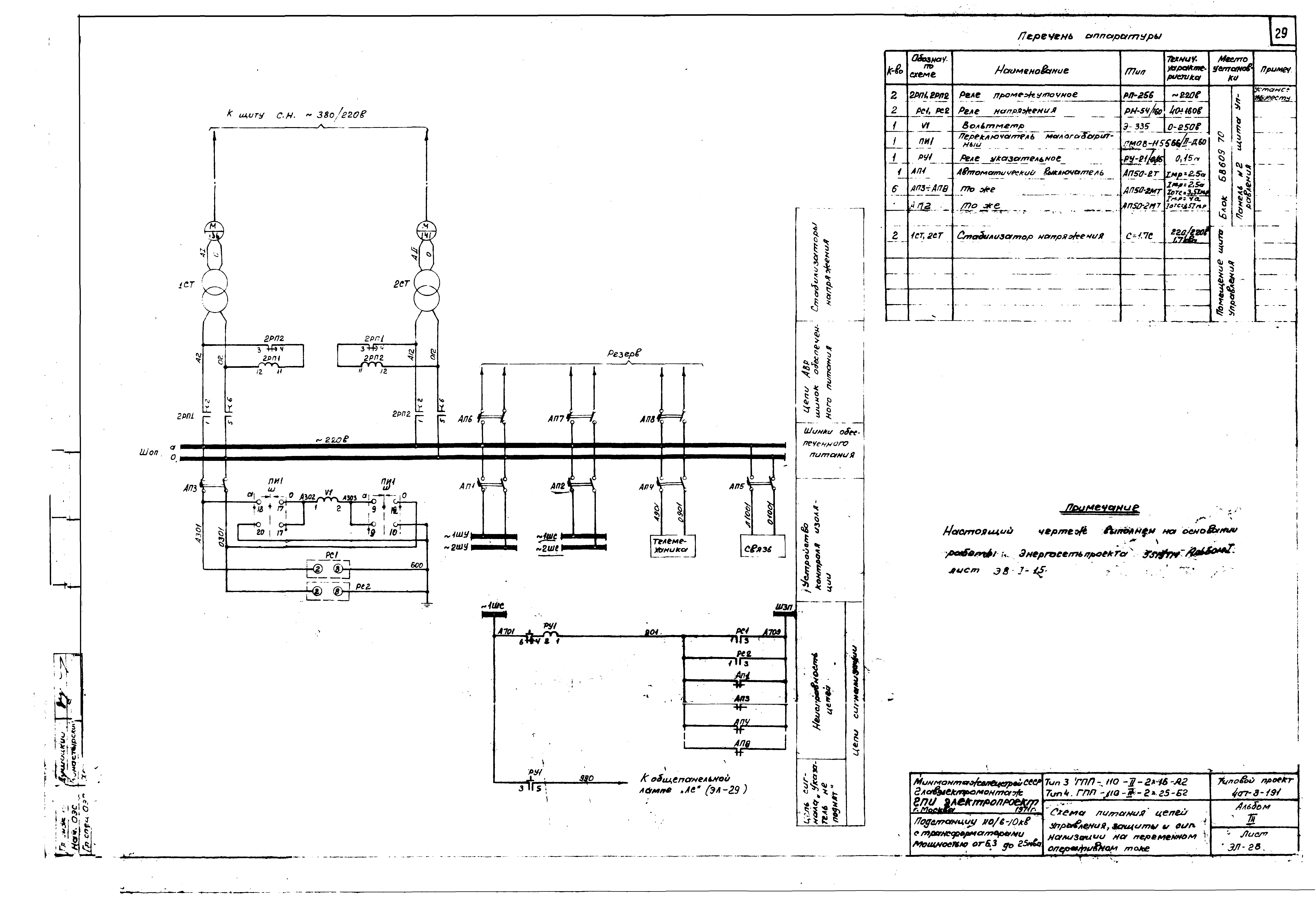
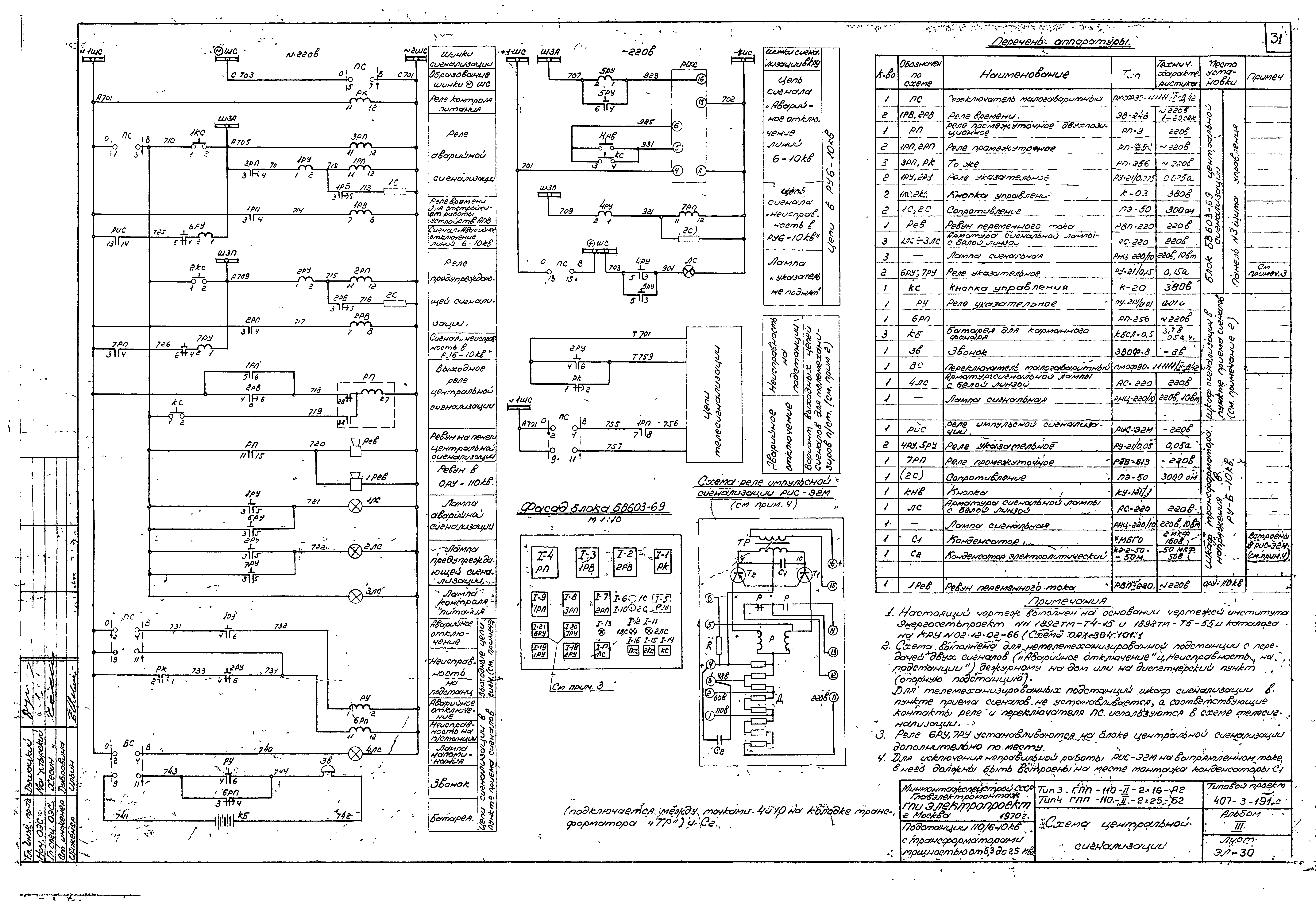
| Оглавление: | 1. Обложка 2. Титульный лист 3. ЭЛ-1 Содержание альбома. Пояснительная записка 4. ЭЛ-2 Таблица уставок реле защиты и автоматики 5. ЭЛ-3 Тип 3. План и разрез подстанции 6. ЭЛ-4 Тип 4. План и разрез подстанции 7. ЭЛ-5 Тип 3. Схема электрических соединений. Трансформатор "1Т". I секция 8. ЭЛ-6 Тип 3. Схема электрических соединений. Трансформатор "2Т". II секция 9. ЭЛ-7 Тип 4. Схема электрических соединений. Трансформатор "1Т". I секция 10. ЭЛ-8 Тип 4. Схема электрических соединений. Трансформатор "2Т". II секция 11. ЭЛ-9 Трансформатор 110/6-10 кв. Поясняющая схема и перечень аппаратуры цепей управления, защиты, сигнализации и автоматики 12. ЭЛ-10 Трансформатор 110/6-10 кв. Схема управления, сигнализации и автоматики 13. ЭЛ-11 Трансформатор 110/6-10 кв. Схема защиты и измерения 14. ЭЛ-12 Трансформатор 110/6-10 кв. Схема дистанционного и автоматического регулирования напряжения 15. ЭЛ-13 Трансформатор 110/6-10 кв. Схема приводного механизма типа М 3-2 16. ЭЛ-14 Трансформатор 110/6-10 кв. Схема устройства обдувки 17. ЭЛ-15 Трансформатор 110/6-10 кв "1Т". Схема блокировки 18. ЭЛ-16 Трансформатор 110/6-10 кв "2Т". Схема блокировки 19. ЭЛ-17 Трансформатор 110/6-10 кв. Монтажная схема трансформатора 20. ЭЛ-18 Секционный выключатель 6-10 кв. Схема управления, защиты, сигнализации и автоматики 21. ЭЛ-19 Отделители перемычки 110 кв. Схема управления, сигнализации и автоматики 22. ЭЛ-20 Отделители перемычки 110 кв. Секционный выключатель 6-10 кв. Схема блокировки 23. ЭЛ-21 Монтажная схема отделителей перемычки 110 кв 24. ЭЛ-22 Схема трансформатора напряжения 6-10 кв 25. ЭЛ-23 Схема автоматической частотной разгрузки "АЧР" 26. ЭЛ-24 Схема защиты минимального напряжения электродвигателей 6-10 кв 27. ЭЛ-25 Дугогасящая катушка. Принципиальная и монтажная схемы 28. ЭЛ-26 Схема питания собственных нужд ~ 380/220в 29. ЭЛ-27 Схема вводов и секционного автомата щита собственных нужд ~ 380/220в 30. ЭЛ-28 Схема питания цепей управления, защиты и сигнализации на переменном оперативном токе 31. ЭЛ-29 Схема питания цепей управления, защиты, сигнализации и блокировки на выпрямленном оперативном токе 32. ЭЛ-30 Схема центральной сигнализации 33. ЭЛ-31 Щит управления. Фасад. План шинок. Перечень панелей 34. ЭЛ-32 Щит управления. Ряды зажимов панели № 1 35. ЭЛ-33,34 Щит управления. Ряды зажимов панели № 2 36. ЭЛ-35 Щит управления. Ряды зажимов панели № 3 37. ЭЛ-36,37 Щит управления. Ряды зажимов панели № 4 38. ЭЛ-38,39 Щит управления. Ряды зажимов панели № 5 39. ЭЛ-40,41 Щит управления. Ряды зажимов панели № 6 40. ЭЛ-42,43 Щит управления. Ряды зажимов панели № 7 41. ЭЛ-44,45 Щит управления. Ряды зажимов панели № 8 42. ЭЛ-46,47 Щит управления. Ряды зажимов панели № 9 43. ЭЛ-48,49 Щит управления. Ряды зажимов панели № 10 44. ЭЛ-50,51 Щит управления. Ряды зажимов панели № 11 45. ЭЛ-52 Щит собственных нужд ~ 380/220в. Ряды зажимов панели №20 46. ЭЛ-53 Щит собственных нужд ~ 380/220в. Ряды зажимов панели №21 47. ЭЛ-54 Щит собственных нужд ~ 380/220в. Ряды зажимов панели №22 48. ЭЛ-55 Монтажные схемы тележек вводных и секционных выключателей 6-10кв с электромагнитными приводами ПЭВ-12 и ПЭ-11 49. ЭЛ-56 Тип 3. Ряды зажимов шкафов КРУ №№ 1, 4, 15, 17, 30 и 31 50. ЭЛ-57 Тип 4. Ряды зажимов шкафов КРУ №№ 7, 8, 9, 23, 25, 35, 37, 38 51. ЭЛ-58 Ряды зажимов шкафов КРУ №№ 3, 11, 13, 19, 21, 29 (11, 19, 21, 27, 29, 30); 1ВУ, 2ВУ, 11БПНС, 21БПНС, 1СТ, 2СТ и ШСП 52. ЭЛ-59 Схема кабельных связей 53. ЭЛ-60 Разводка кабелей в ОРУ-110 кв 54. ЭЛ-61 Разводка кабелей в ЗРУ-6-10 кв 55. ЭЛ-62-65 Кабельный журнал 56. ЭЛ-66 Тип 3. План сети электроосвещения открытой части подстанции 57. ЭЛ-67 Тип 4. План сети электроосвещения открытой части подстанции 58. ЭЛ-68 Тип 3. Заземление и молниезащита 59. ЭЛ-69 Тип 4. Заземление и молниезащита |
| Разработан: | ГПИ Электропроект |
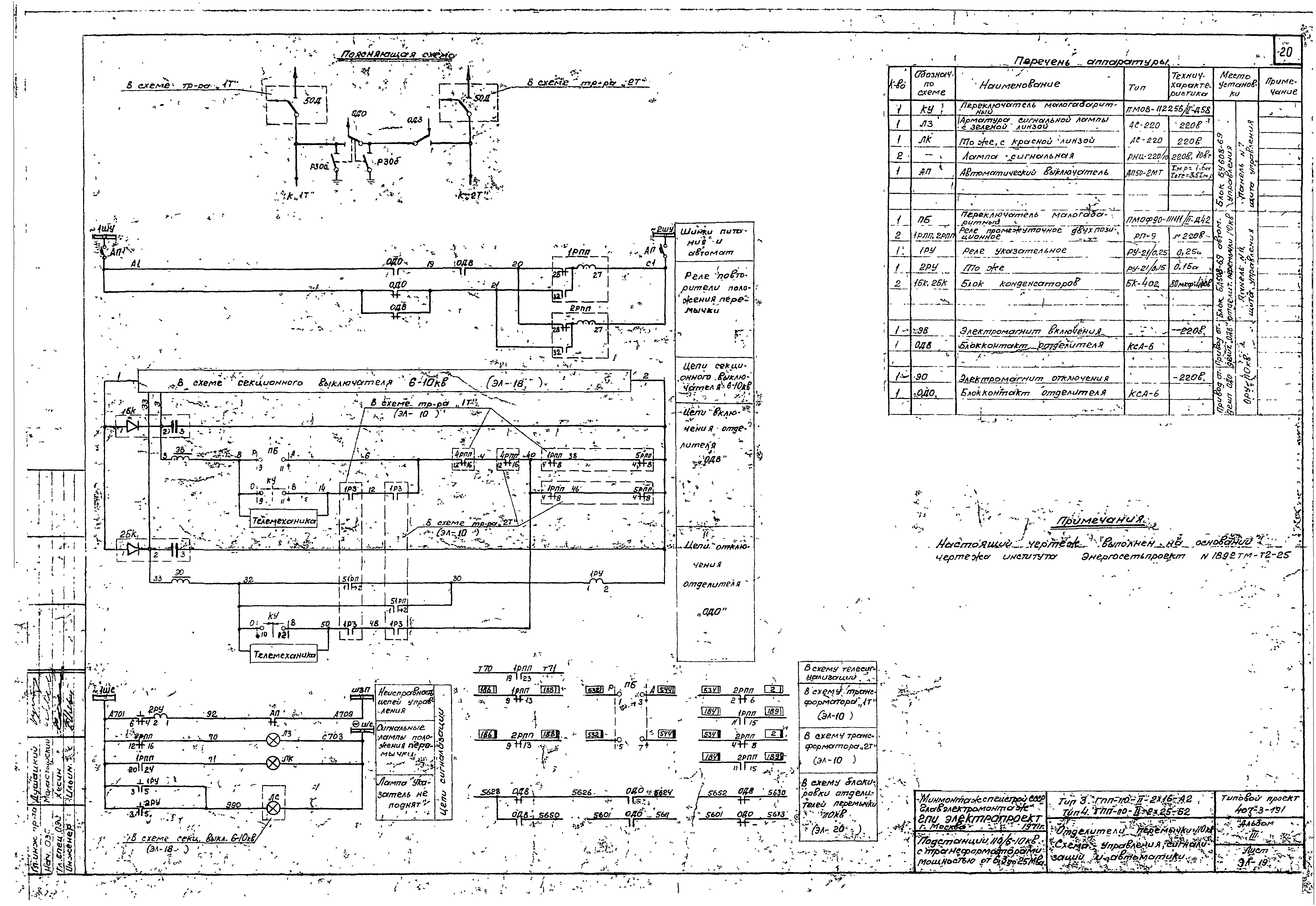
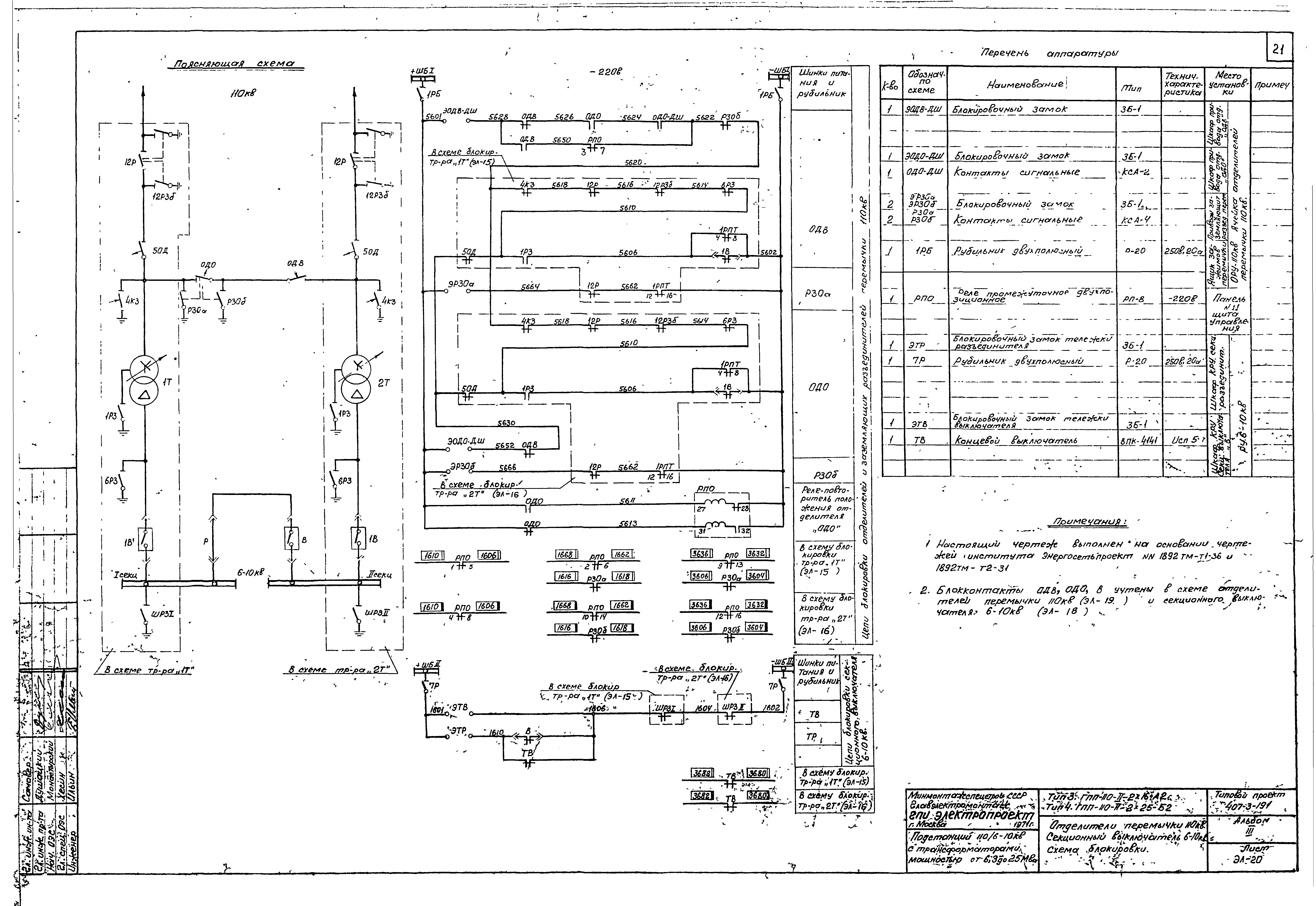
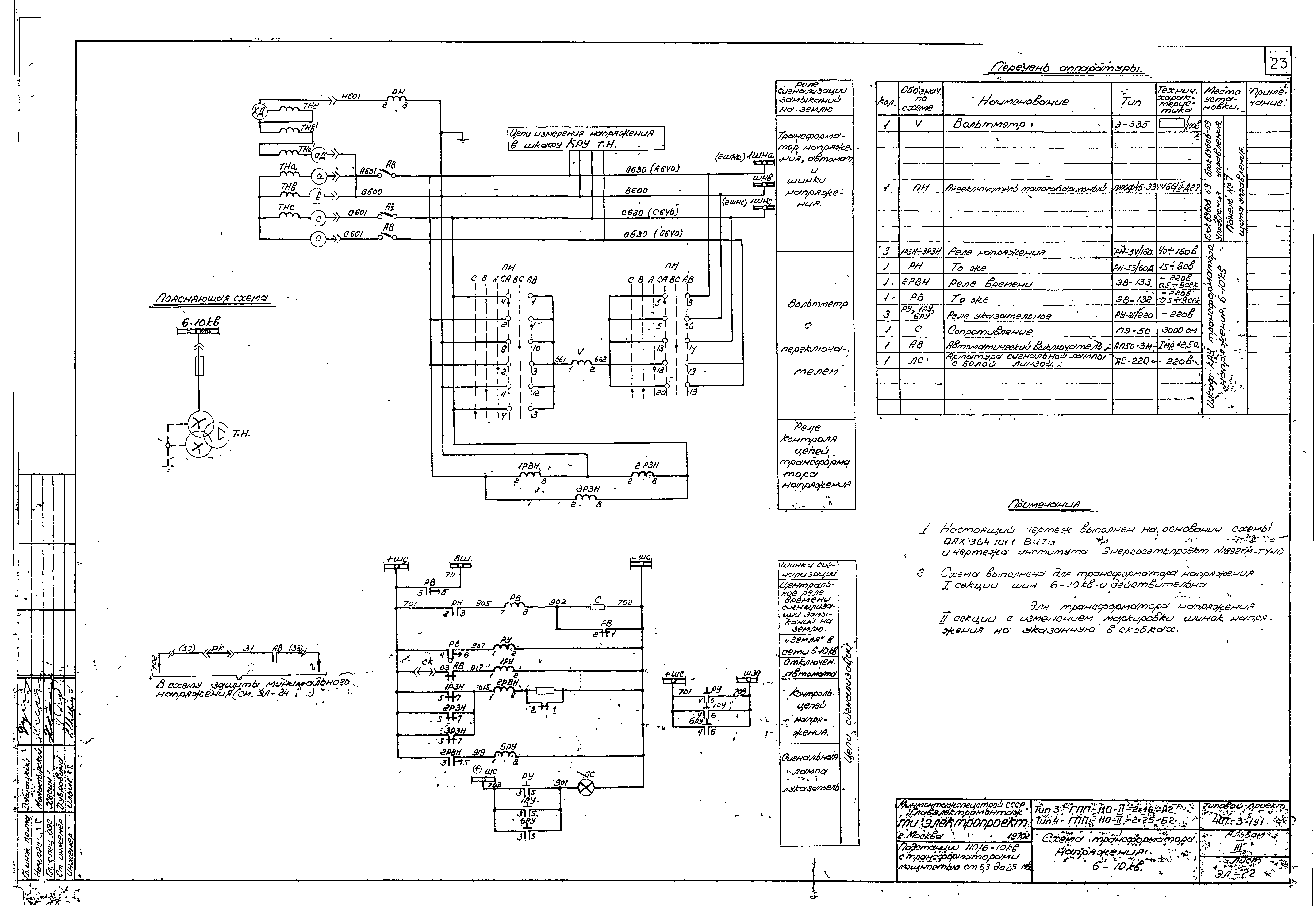
| Утверждён: | 01.06.1971 Минмонтажспецстрой СССР (USSR Minmontazhspetsstroy ) |

































































