Скачать Типовой проект 407-3-191 Альбом 13. Архитектурно-строительная часть. Распределительные устройства 6 - 10 кВ типов А1, А2, Б1, Б2. Строительные чертежи, отопление, вентиляцияДата актуализации: 01.01.2021
|
| Обозначение: | Типовой проект 407-3-191 |
| Обозначение англ: | 407-3-191 |
| Статус: | действует |
| Название рус.: | Альбом 13. Архитектурно-строительная часть. Распределительные устройства 6 - 10 кВ типов А1, А2, Б1, Б2. Строительные чертежи, отопление, вентиляция |
| Дата добавления в базу: | 01.09.2013 |
| Дата актуализации: | 01.01.2021 |
| Дата введения: | 15.08.1971 |
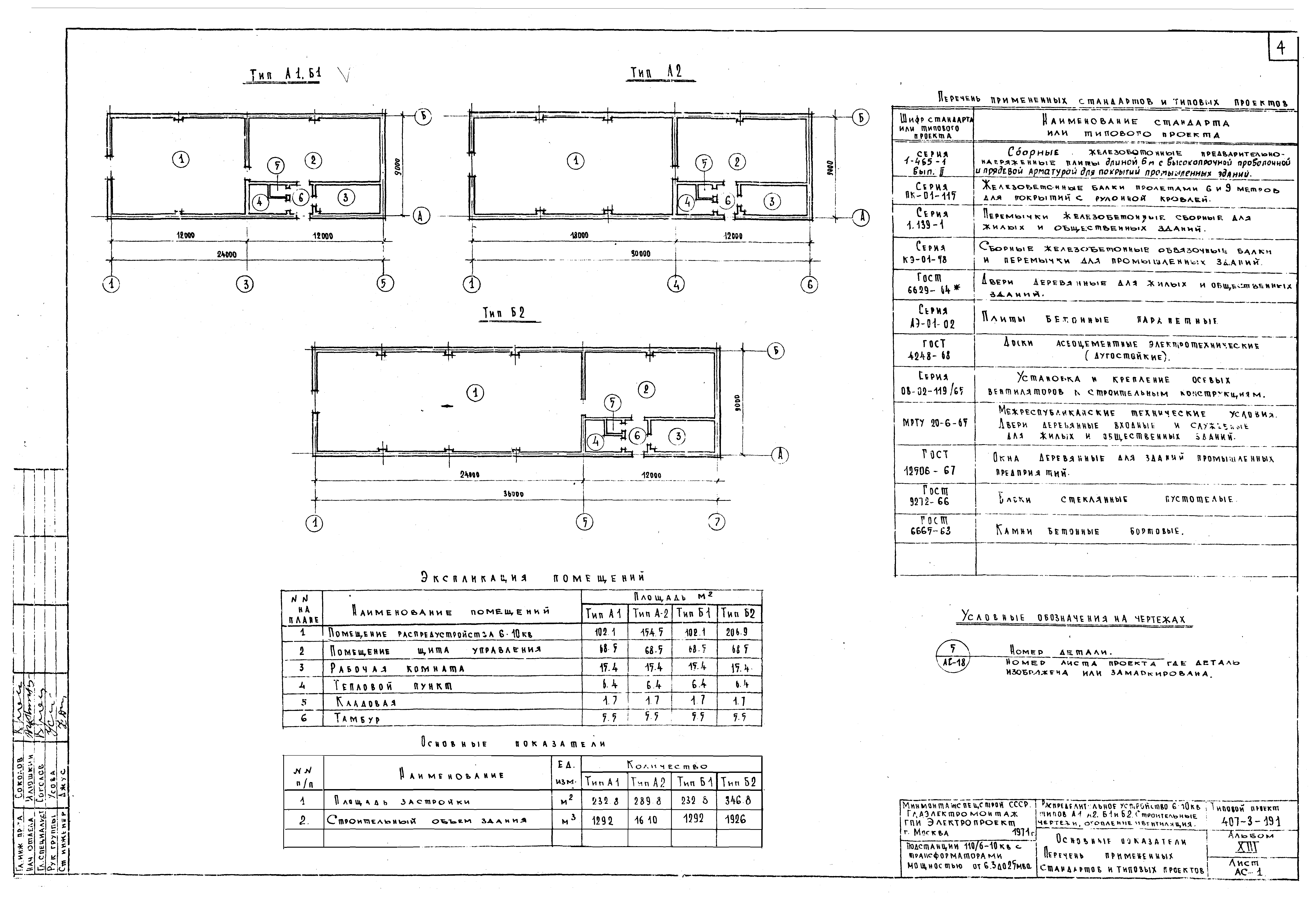
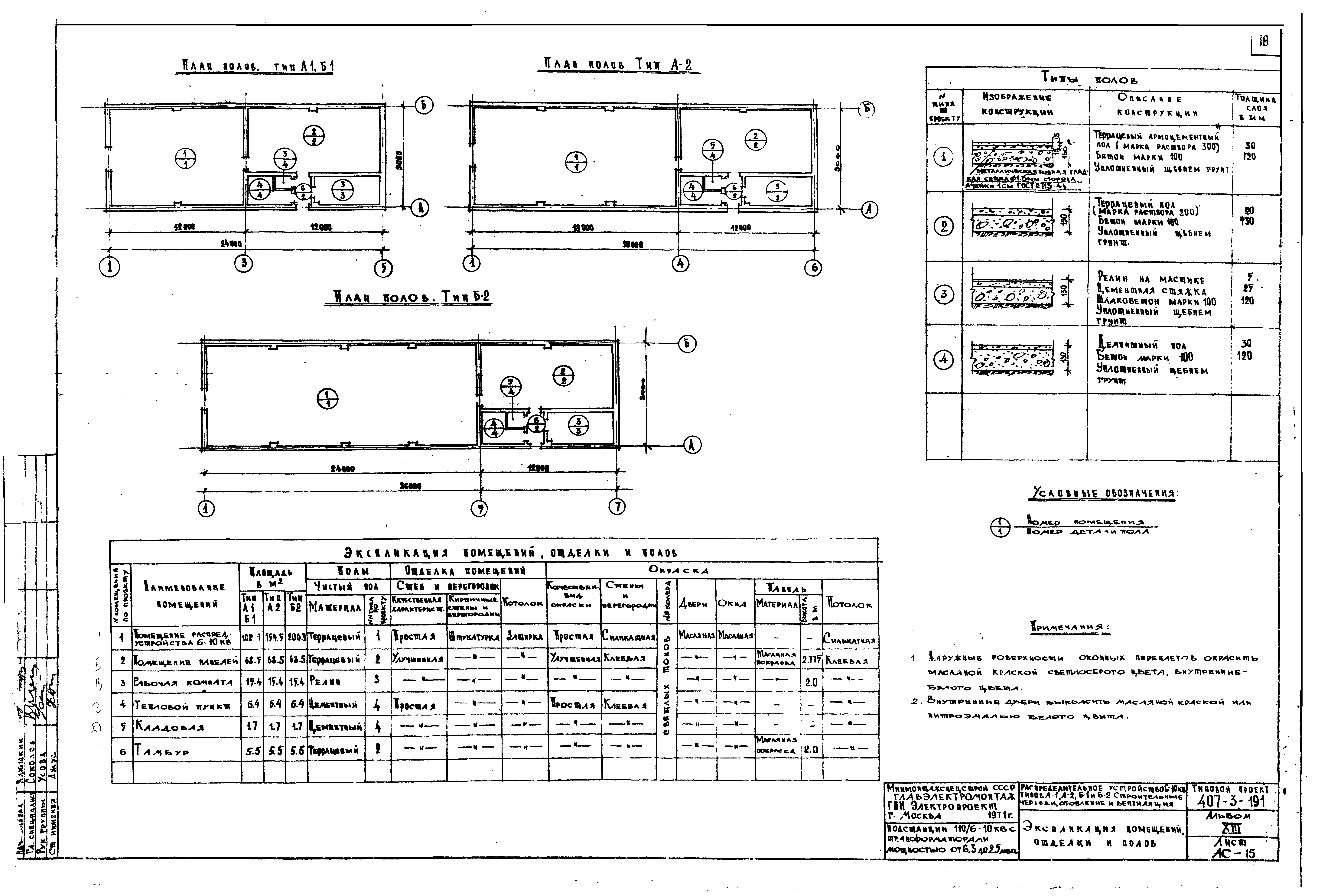
| Оглавление: | Титульный лист Содержание альбома. Пояснительная записка Чертежи марки АС Основные показатели. Перечень примененных стандартов и типовых проектов Сводные спецификации Тип А1, Б1. Фасады Тип А2. Фасады Тип Б2. Фасады Детали фасадов Тип А1, Б1. Планы стен. Разрезы 1-1, 2-2 Тип А2. Планы стен. Разрезы 1-1, 3-3, 4-4 Тип Б2. Планы стен. Разрез 1-1 Планы раскладки перемычек. Спецификация Планы раскладки плит покрытия Планы кровли с раскладкой парапетных плит Узлы 1 - 5. Детали Узлы 6 - 12 Экспликация помещений, отделки и полов Тип А1, Б1. Планы фундаментов. Разрезы и сечения Тип А2, Б2. Планы фундаментов Тип А1. Планы каналов и пола. Разрезы 1-1, 2-2 Тип Б1. Планы каналов и пола. Разрезы 3-3, 4-4 Тип А2. Планы каналов и пола. Разрезы 5-5, 6-6 Тип Б2. Планы каналов и пола. Раскладка труб М11, М15 Разрез 7-7. Узлы, детали Спецификация, закладные части пола и стен каналов. Перекрытие каналов Узлы А, Б Чертежи марки ВК и ОВ Внутренний водосток Вентиляция Отопление. Узел управления. Спецификации Тип А1, Б1, Б2. План и схема отопления Тип А2. План и схема отопления Тип Б2. План и схема отопления |
| Разработан: | ГПИ Электропроект |
| Утверждён: | 01.06.1971 Минмонтажспецстрой СССР (USSR Minmontazhspetsstroy ) |


































