Скачать Типовой проект 407-3-203 Альбом 2. Архитектурно-строительная частьДата актуализации: 01.01.2021
|
| Обозначение: | Типовой проект 407-3-203 |
| Обозначение англ: | 407-3-203 |
| Статус: | заменен |
| Название рус.: | Альбом 2. Архитектурно-строительная часть |
| Дата добавления в базу: | 01.09.2013 |
| Дата актуализации: | 01.01.2021 |
| Дата введения: | 12.10.1971 |
| Дата окончания срока действия: | 01.11.1978 |
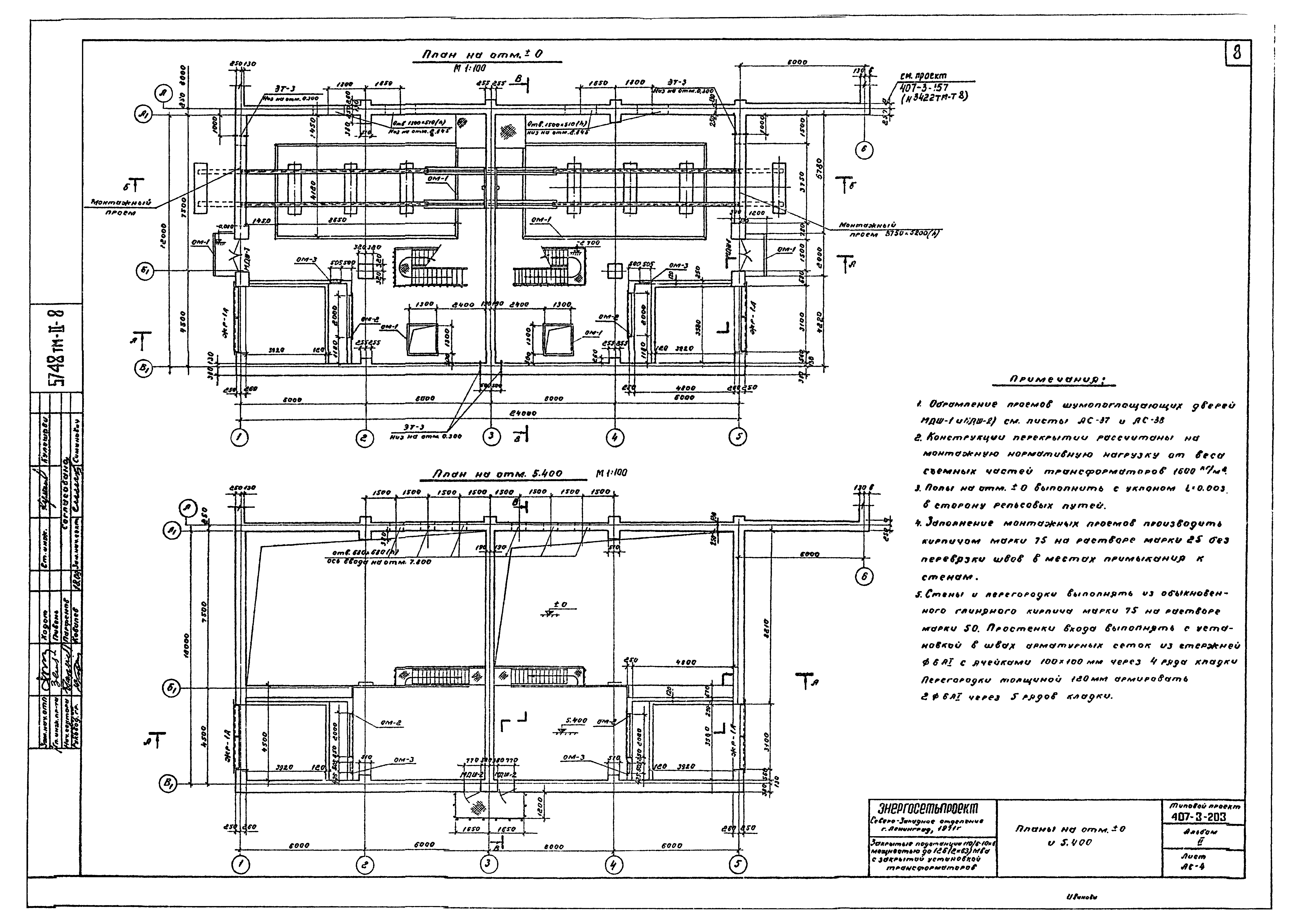
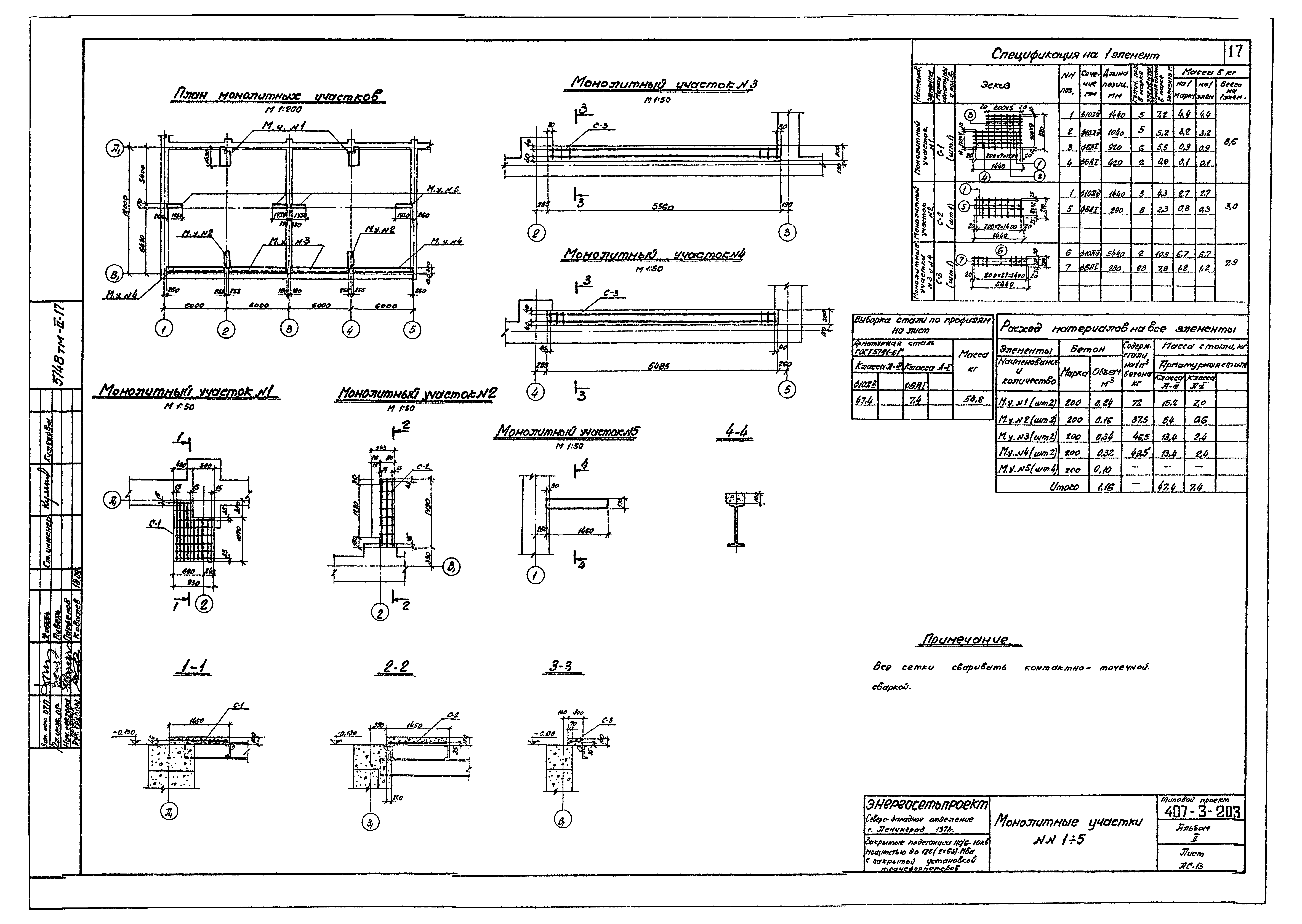
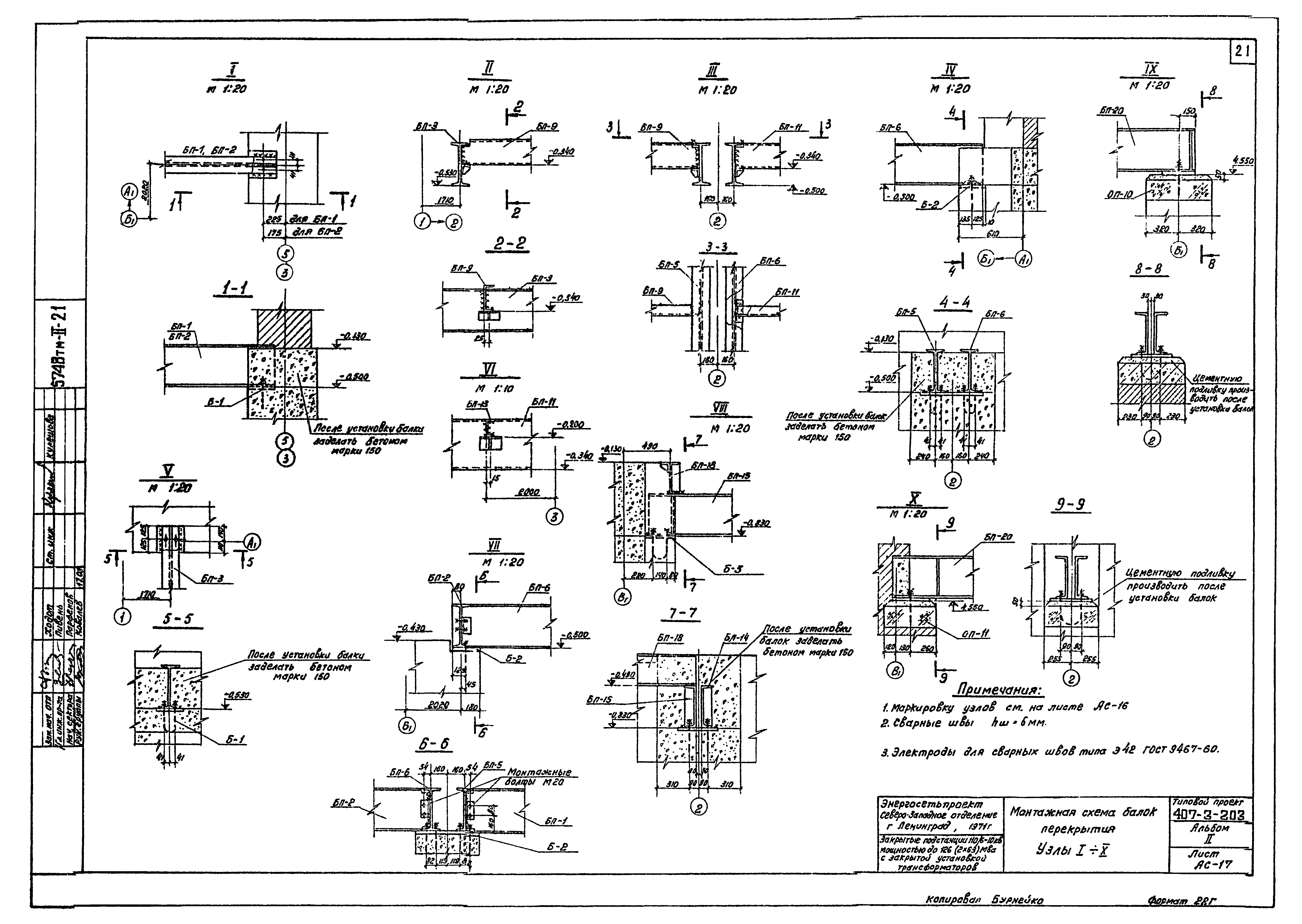
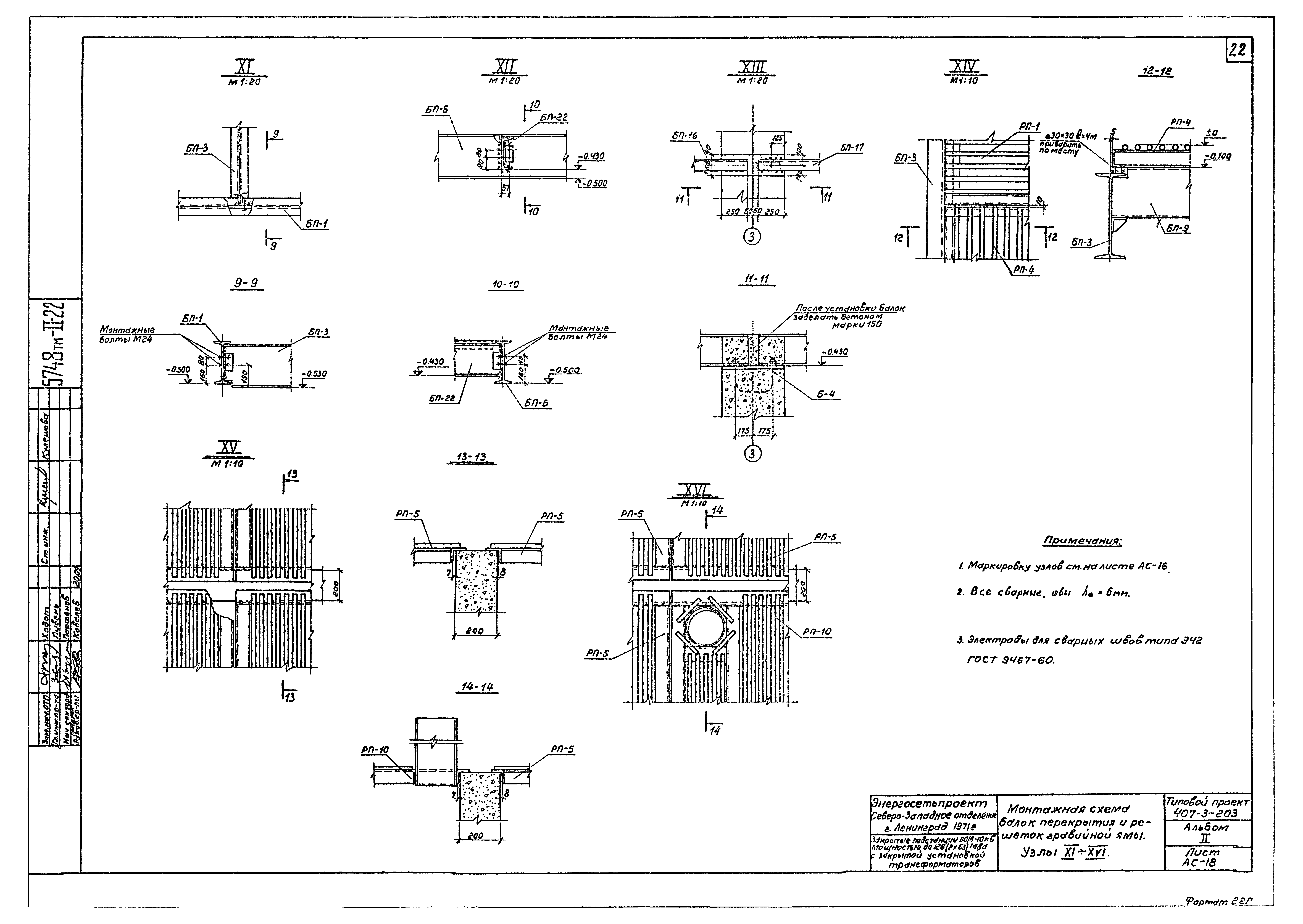
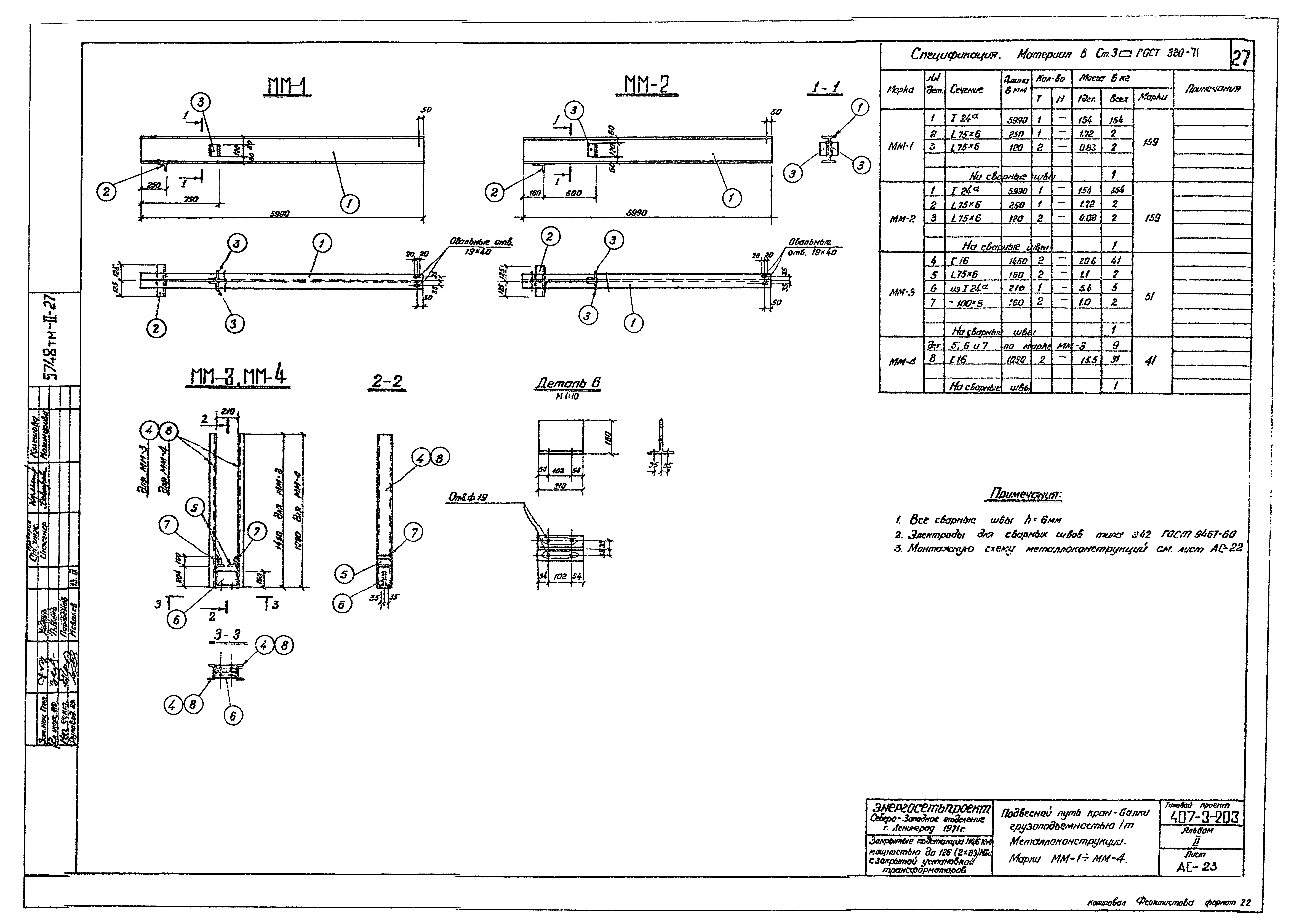
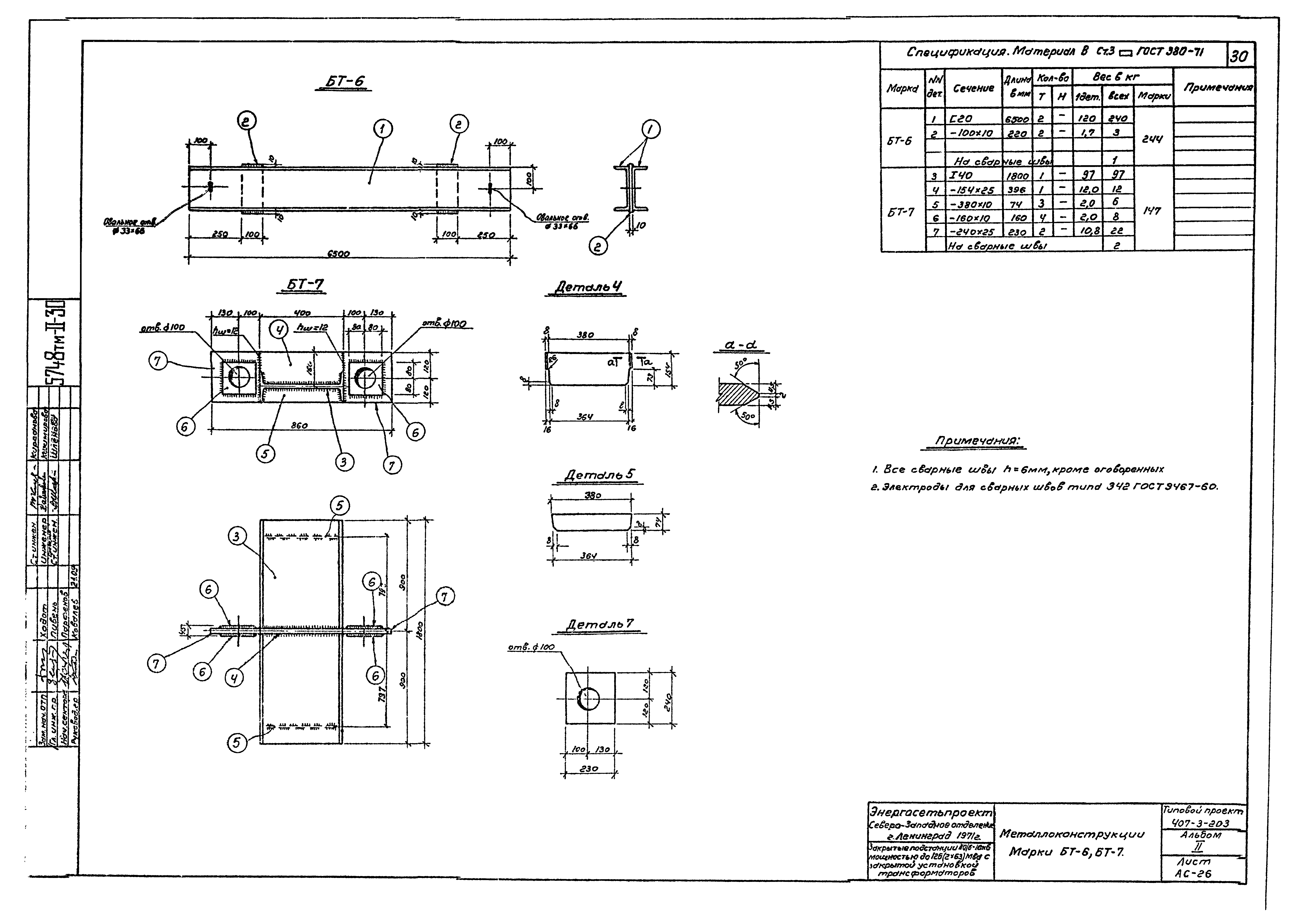
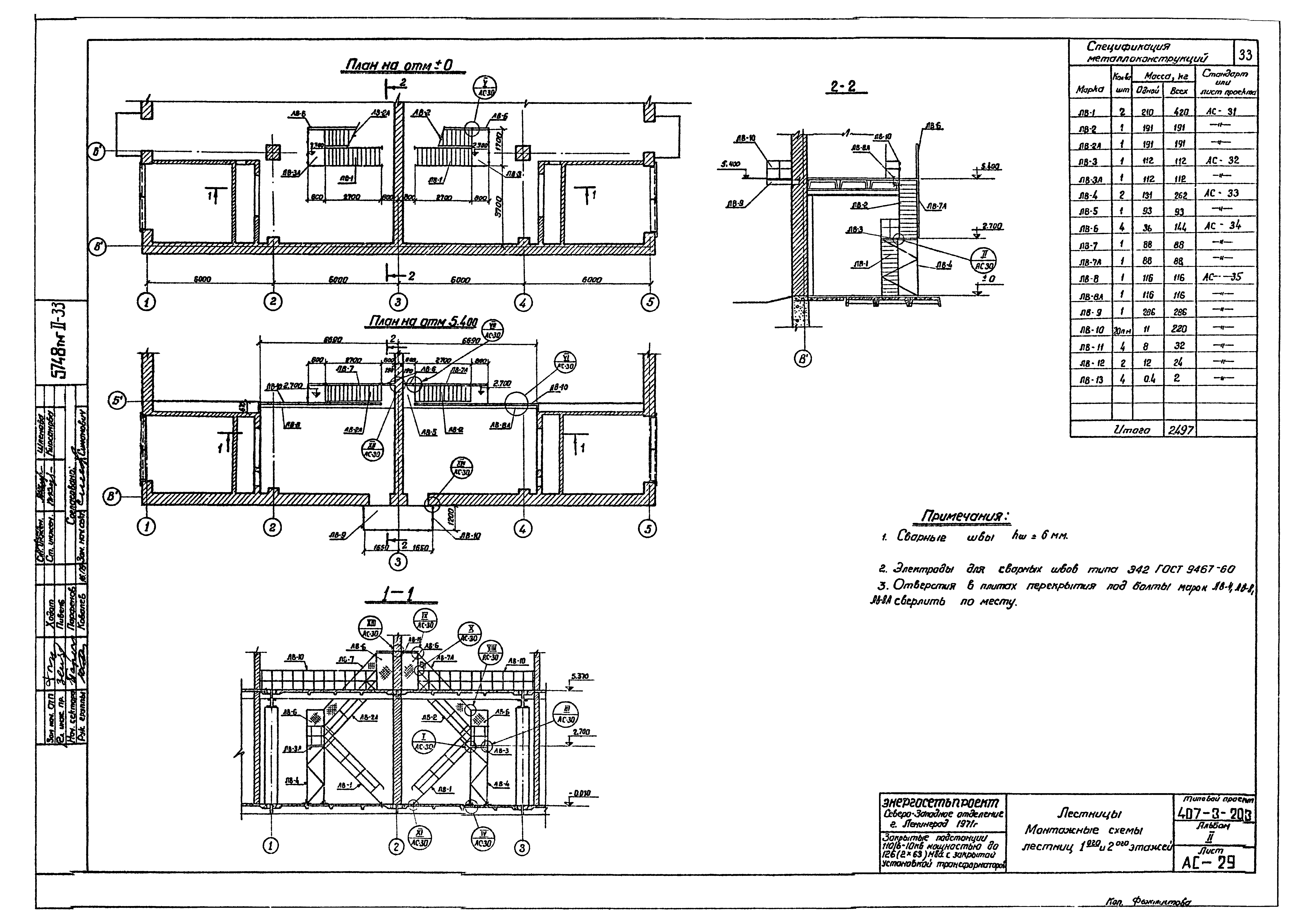
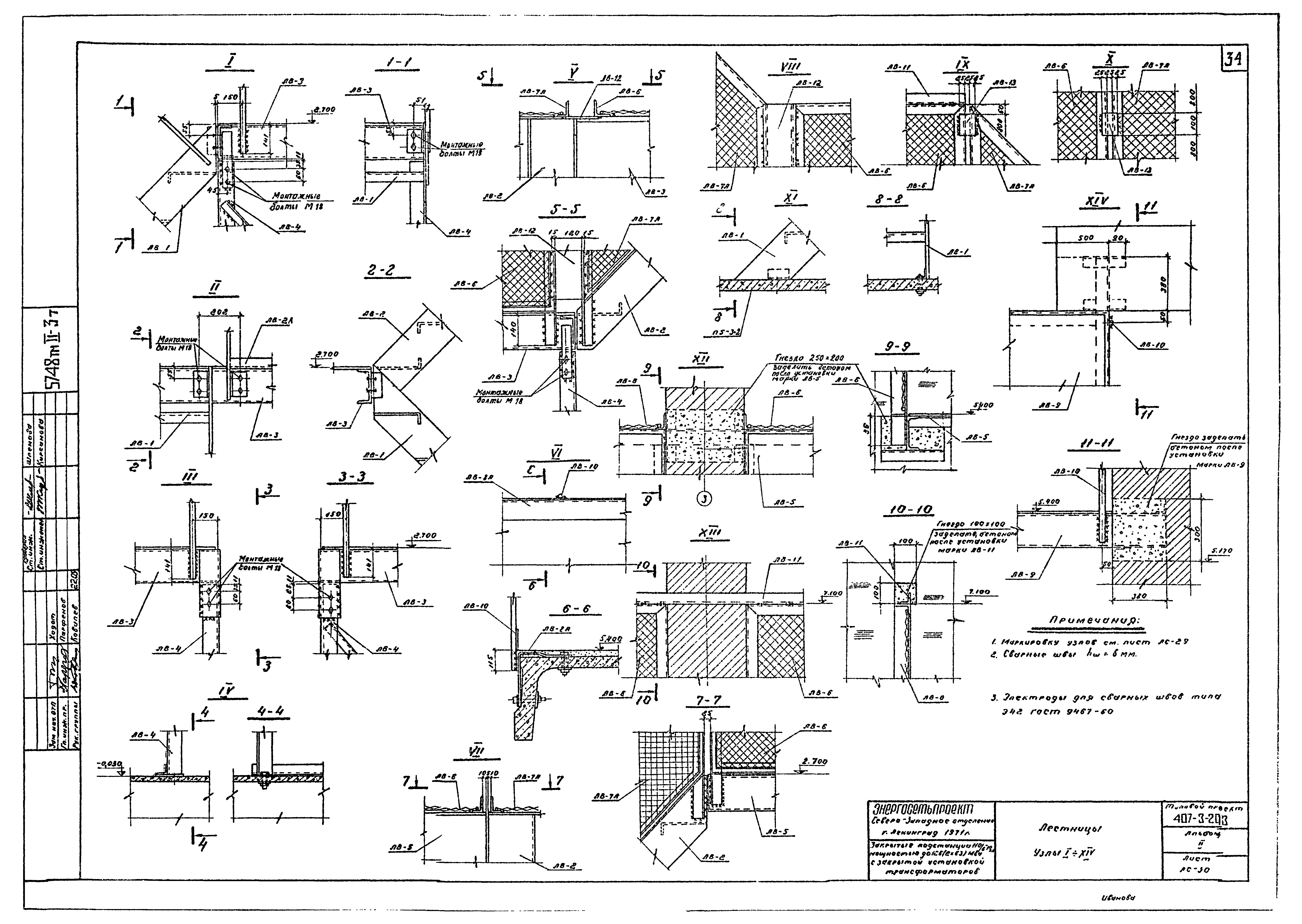
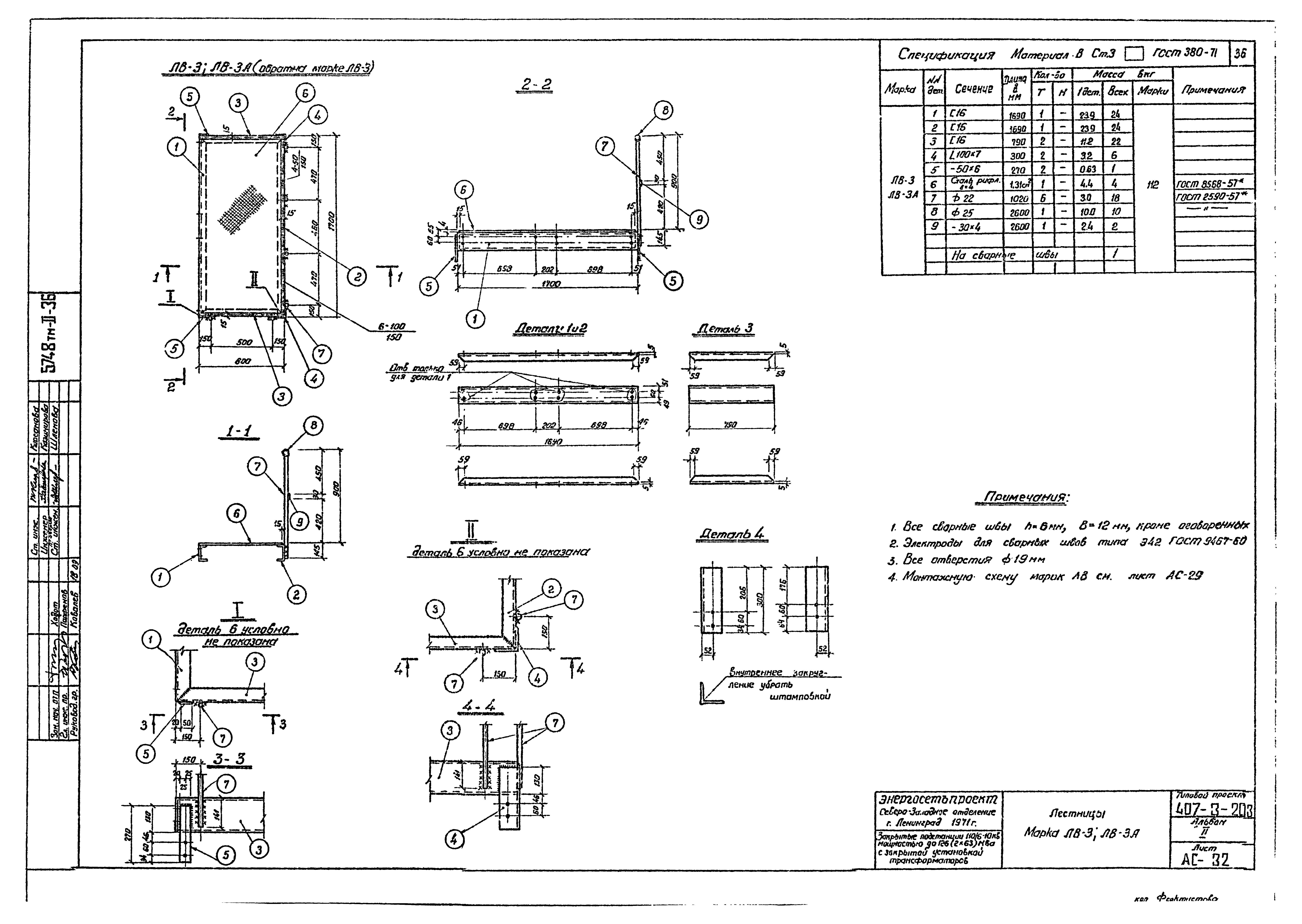
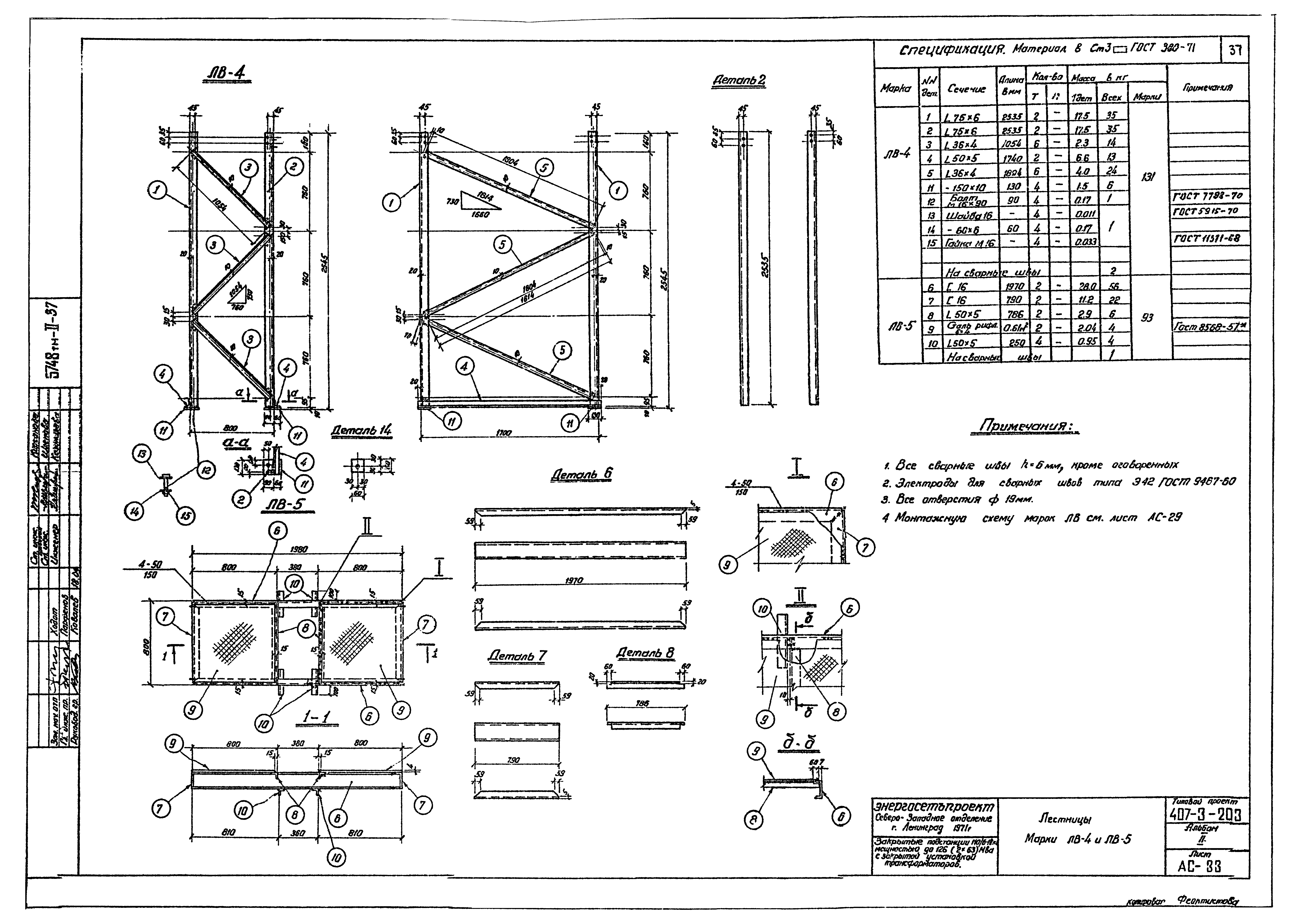
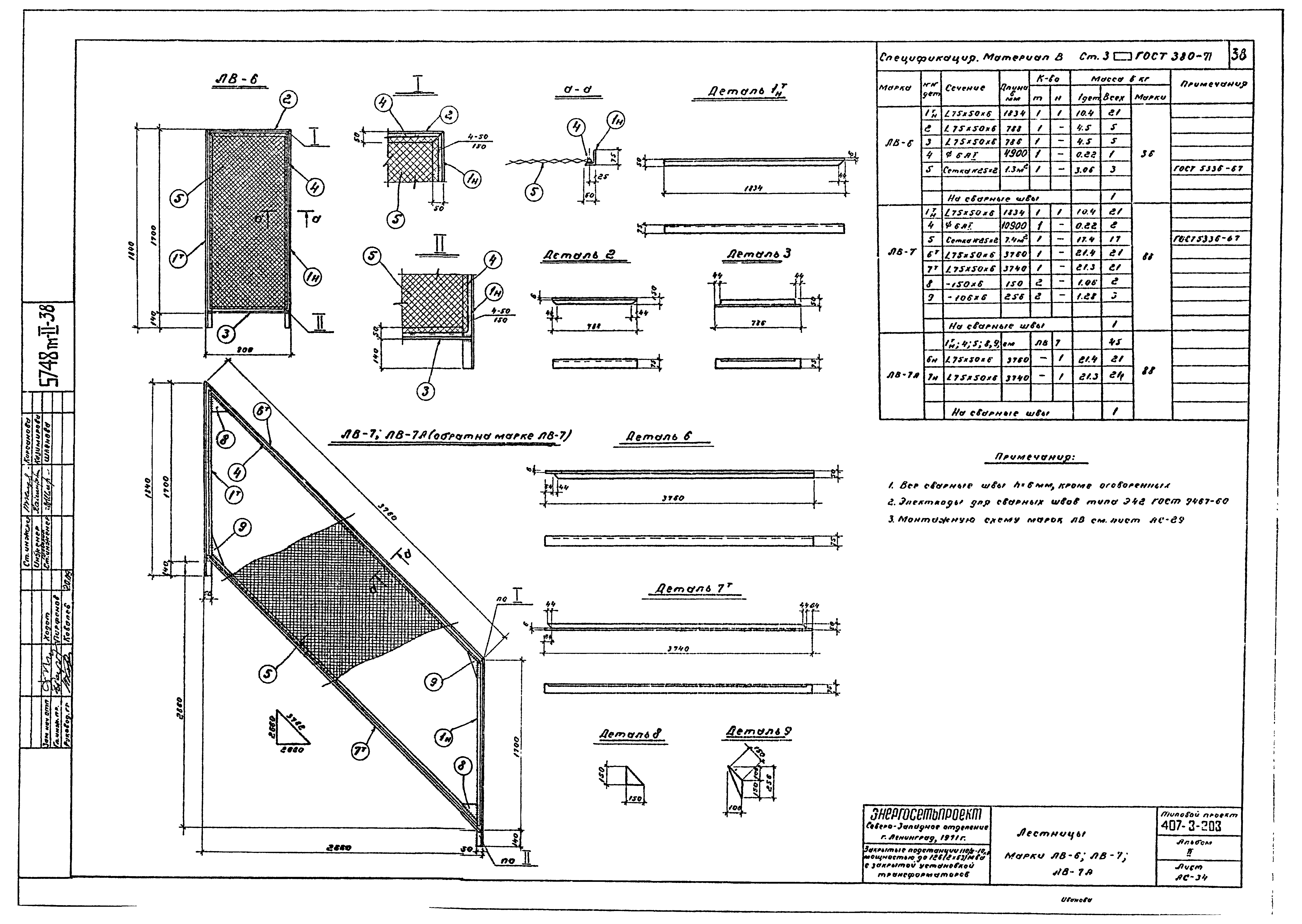
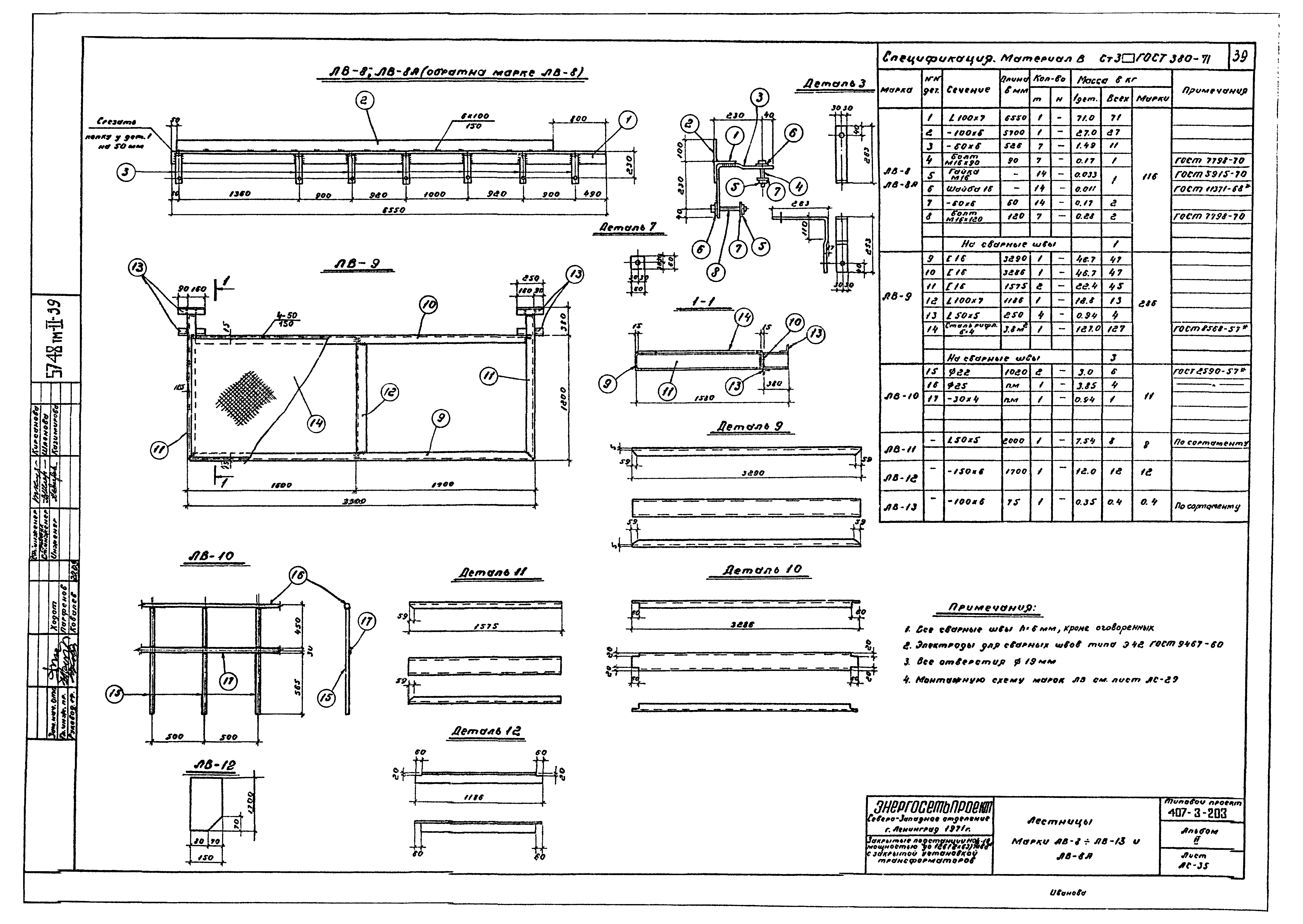
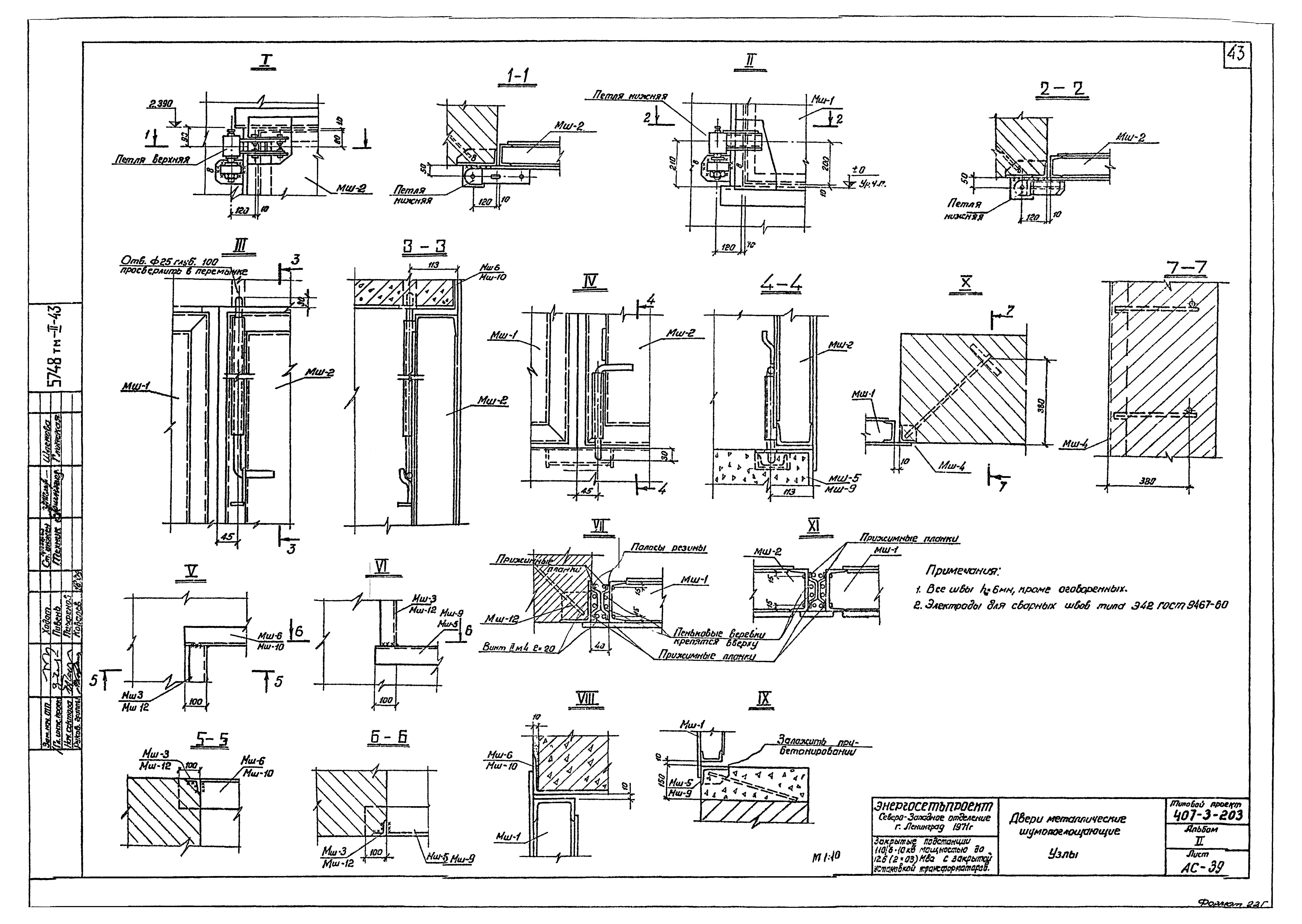
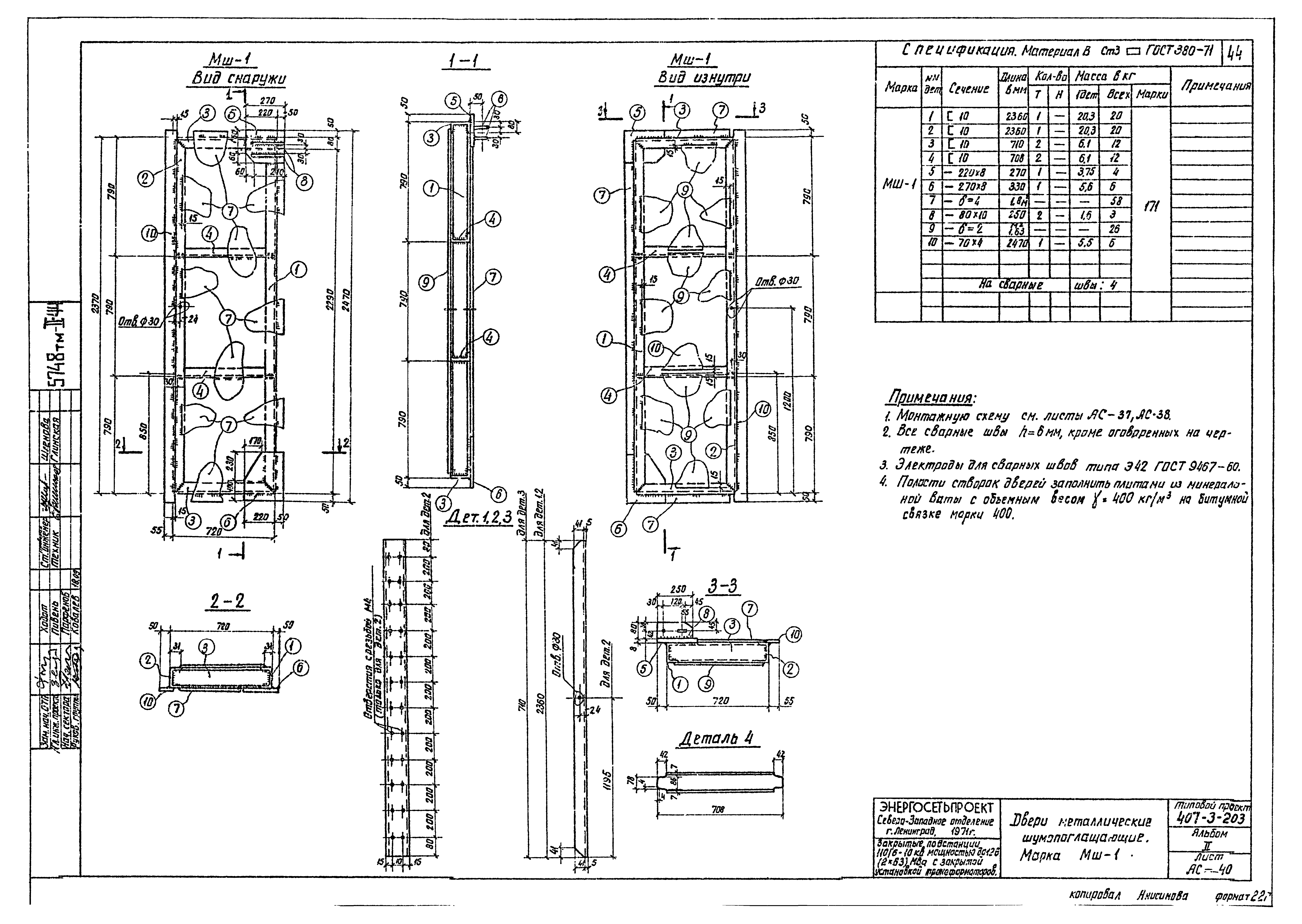
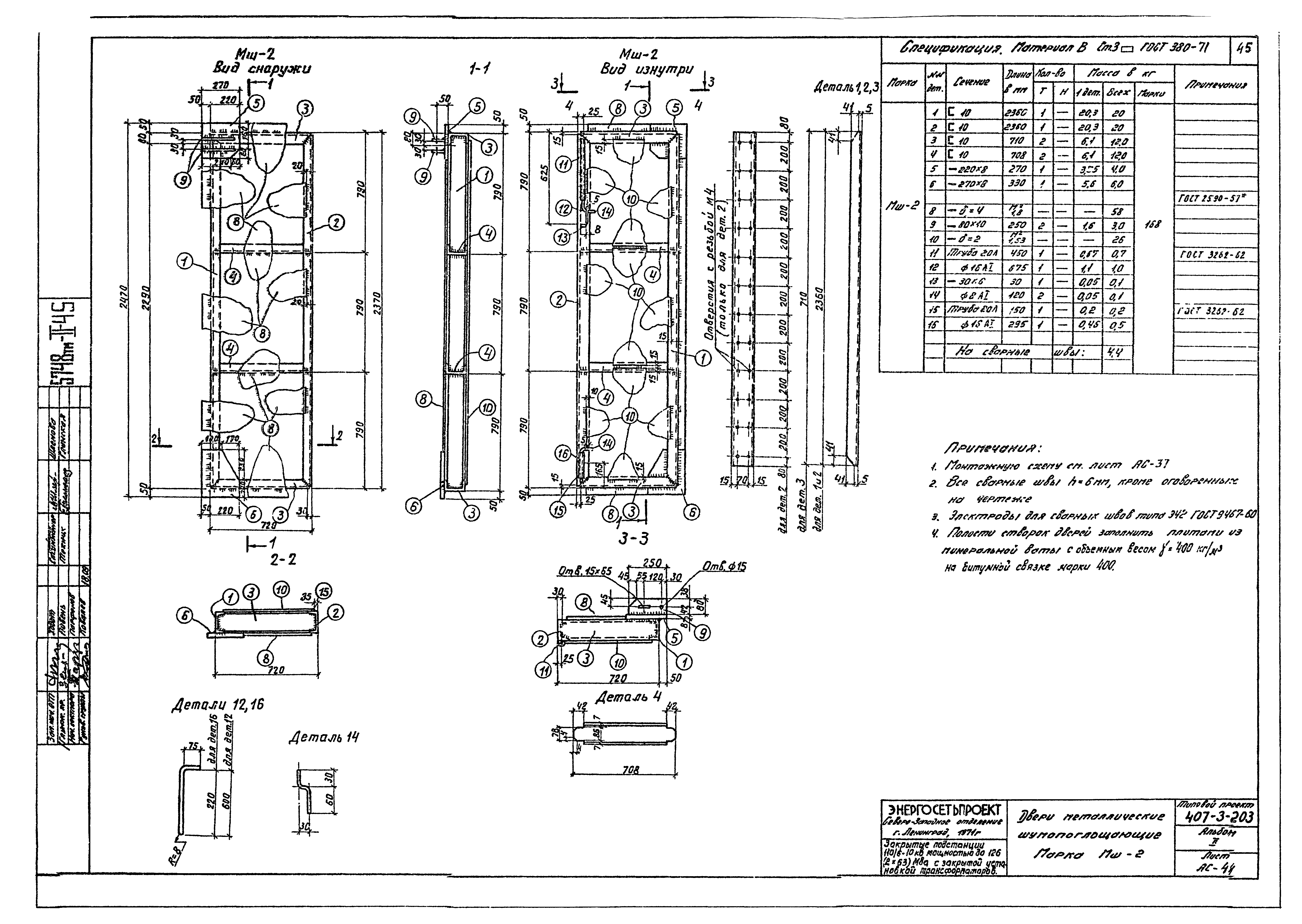
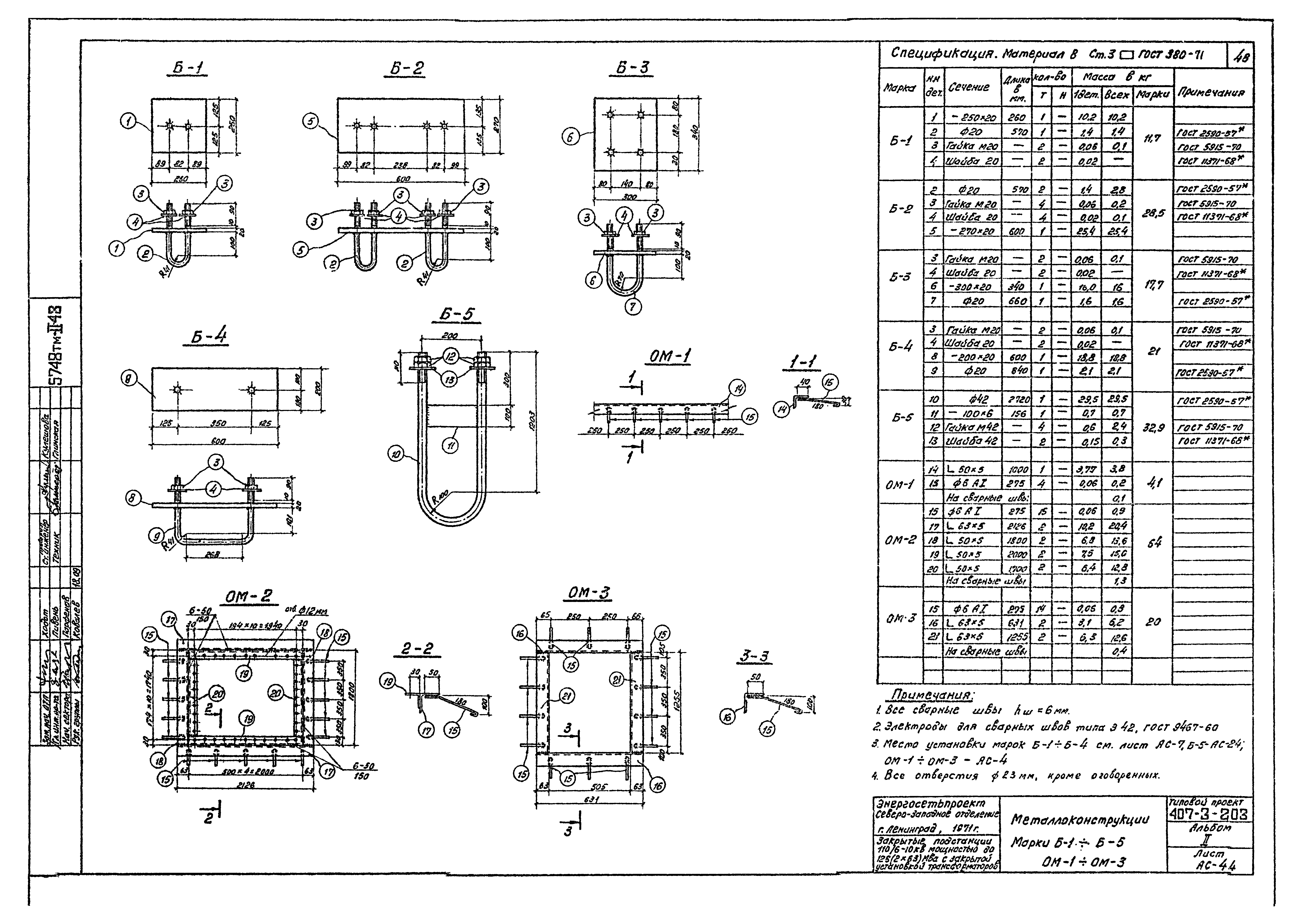
| Оглавление: | Титульный лист Перечень листов Пояснительная записка Заглавный лист. Технико-экономические показатели и перечень примененных стандартов и типовых чертежей, сводная спецификация сборных железобетонных и бетонных элементов Сводная спецификация металлоконструкций и выборка стали Фасады Планы на отметках 0.000 и 5.400 Разрезы А-А, Б-Б, В-В Архитектурные детали А, Б, В, Г, Д План фундаментов. Раскладка блоков по оси А План фундаментов. Раскладка блоков по осям В1, 1, 3 и 5. Сечения. Спецификация Раскладка плит перекрытия, покрытия и опорных подушек. План кровли. Спецификации Раскладка плит перекрытия, покрытия и опорных подушек. Детали 1 - 4 Планы перемычки проемов в стенах Опорные подушки ОП-1, ОП-7 - ОП-11 Монолитные участки №№1 - 5 Перекрытие под готовый глушитель. Опорная конструкция для кабелей Гравийная маслосборная яма. План, разрезы, детали Монтажная схема балок перекрытия и решеток гравийной ямы. Спецификация Монтажная схема балок перекрытия и решеток гравийной ямы. Узлы I - X Монтажная схема балок перекрытия и решеток гравийной ямы. Узлы XI - XVI Монтажная схема балок перекрытия и решеток гравийной ямы. Металлоконструкции. Марки БП-1 - БП-10, БП-21, БП-22 Монтажная схема балок перекрытия и решеток гравийной ямы. Марки БП11 - БП-20 Монтажная схема балок перекрытия и решеток гравийной ямы. Марки РП1 - РП-11 Подвесной путь. Кран-балки грузоподъемностью 1 тонна. Монтажная схема Подвесной путь. Металлоконструкции. Марки ПМ-1?ПМ-4 Установка трансформаторов. Монтажная схема металлоконструкций. Узлы Установка трансформаторов. Металлоконструкции. Марки БТ-1 - БТ-5 Установка трансформаторов. Марки БТ-6, БТ-7 Установка опорных конструкций под оборудование Металлоконструкции. Марки МО-1 - МО-9 Лестницы. Монтажные схемы лестниц 1-го и 2-го этажей Лестницы. Узлы I - XIV Лестницы. Металлоконструкции. Марки ЛВ-1, ЛВ-2, ЛВ-2А Лестницы. Марки ЛВ-3, ЛВ-3А Лестницы. Марки ЛВ-4, ЛВ-5 Лестницы. Марки ЛВ-6, ЛВ-7, ЛВ-7А Лестницы. Марки ЛВ-8 - ЛВ-13, ЛВ-8А Жалюзийные решетки. Металлоконструкции. Марки ЖР-1, ЖР-1А Двери металлические шумопоглощающие МДШ-1 Двери металлические шумопоглощающие МДШ-2 Двери металлические шумопоглощающие. Узлы Двери металлические шумопоглощающие. Металлоконструкции. Марка Мш-1 Двери металлические шумопоглощающие. Металлоконструкции. Марка Мш-2 Двери металлические шумопоглощающие. Металлоконструкции. Марки Мш-3 - Мш-12 Устройство для создания уклона трансформаторов Металлоконструкции. Марки Б-1 - Б-5, ОП-1 - ОП-3 Металлоконструкции. Марки С-1, С-4 - С8, А-1 - А-3, МП-1, МП-2, ЭТ-1 - ЭТ-4 |
| Разработан: | Энергосетьпроект |
| Утверждён: | 12.10.1971 Минэнерго СССР (USSR Minenergo 340) |
| Чем заменён: |
|

















































