Скачать Типовой проект 902-4-5.83 Альбом 2. Технологическая часть, санитарно-техническая часть, нестандартизированное оборудованиеДата актуализации: 01.01.2021
|
| Обозначение: | Типовой проект 902-4-5.83 |
| Обозначение англ: | 902-4-5.83 |
| Статус: | не определен законодательством |
| Название рус.: | Альбом 2. Технологическая часть, санитарно-техническая часть, нестандартизированное оборудование |
| Дата добавления в базу: | 01.09.2013 |
| Дата актуализации: | 01.01.2021 |
| Дата введения: | 01.12.1983 |
| Дата окончания срока действия: | 30.06.2003 |
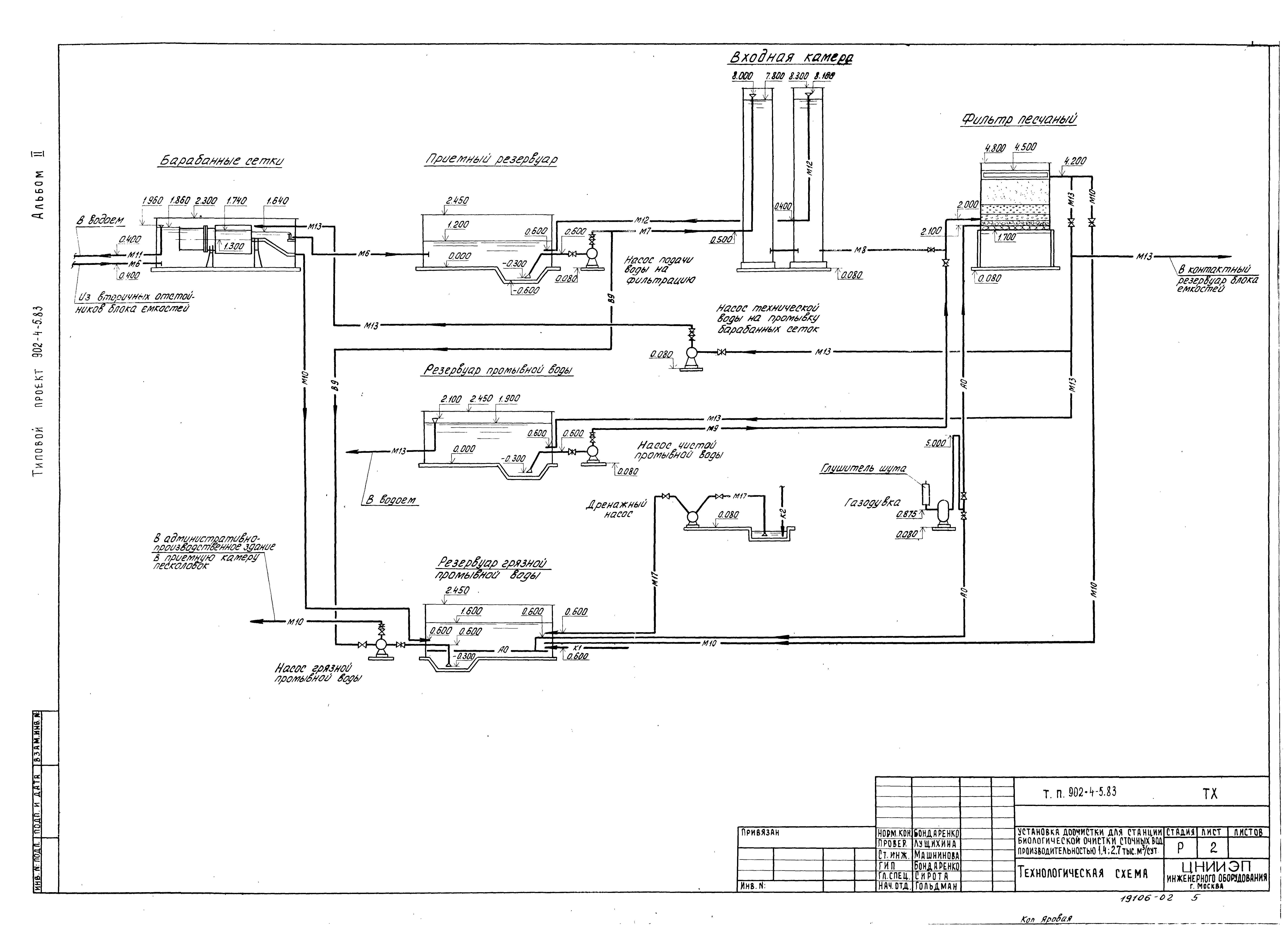
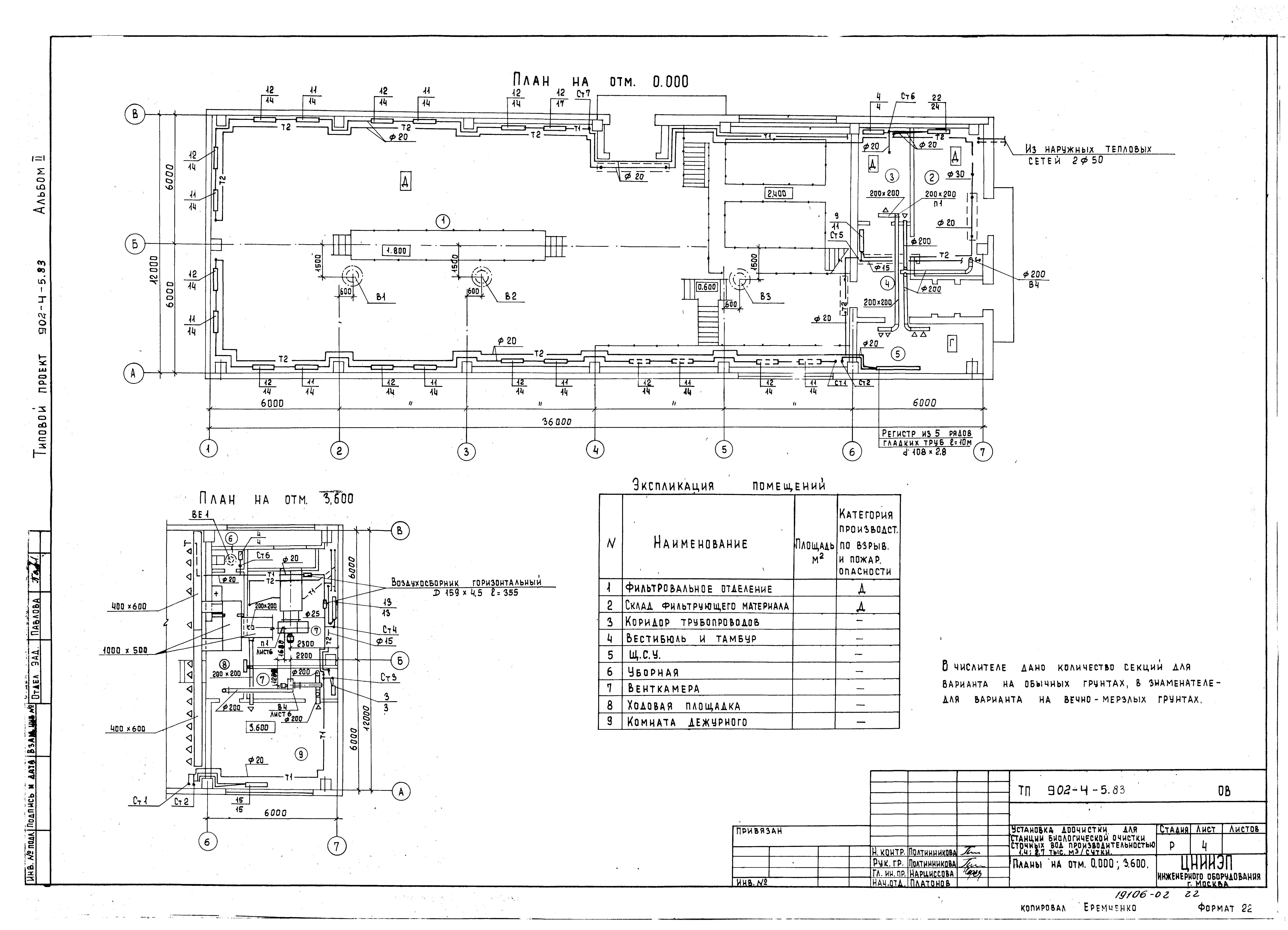
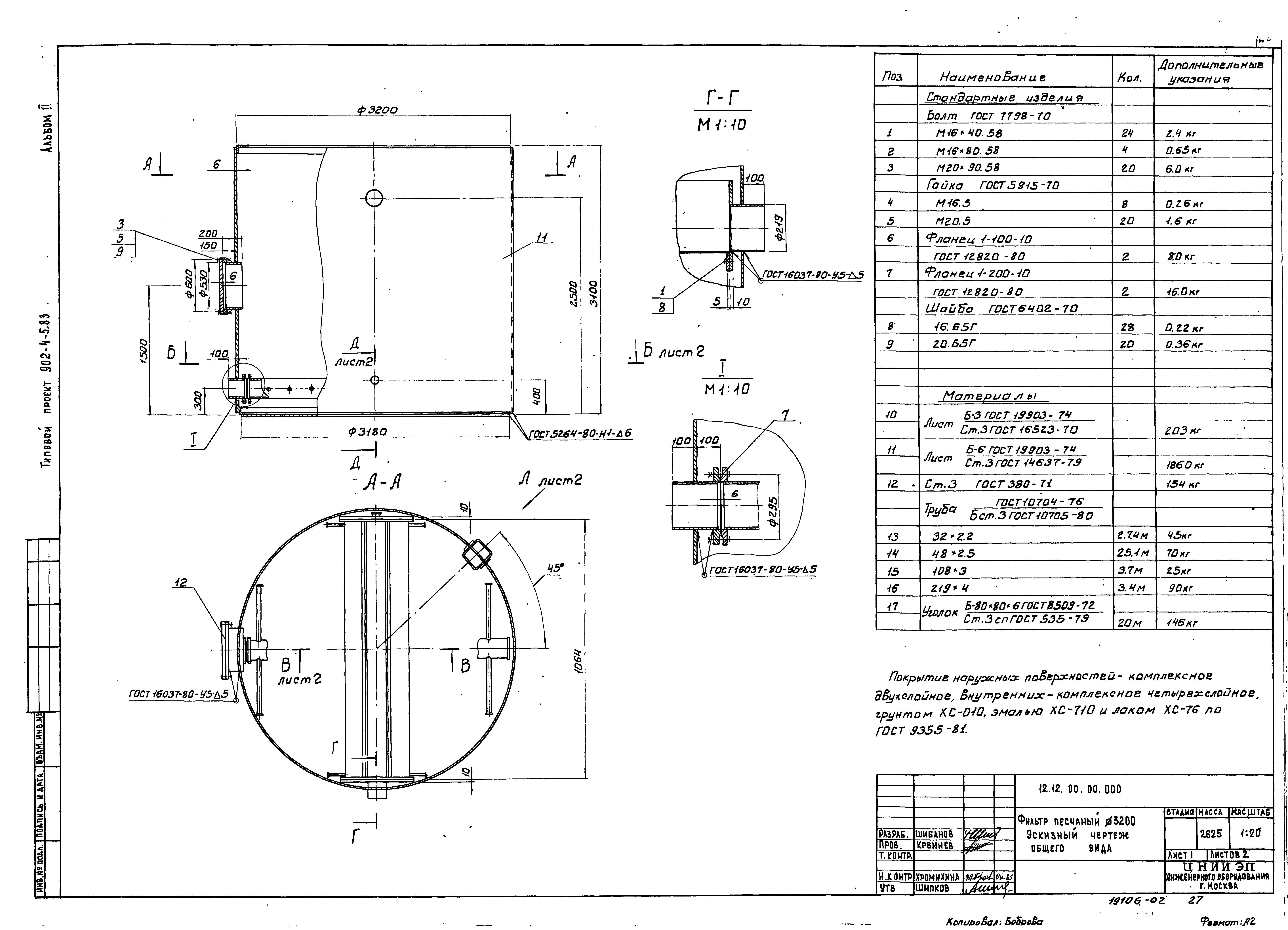
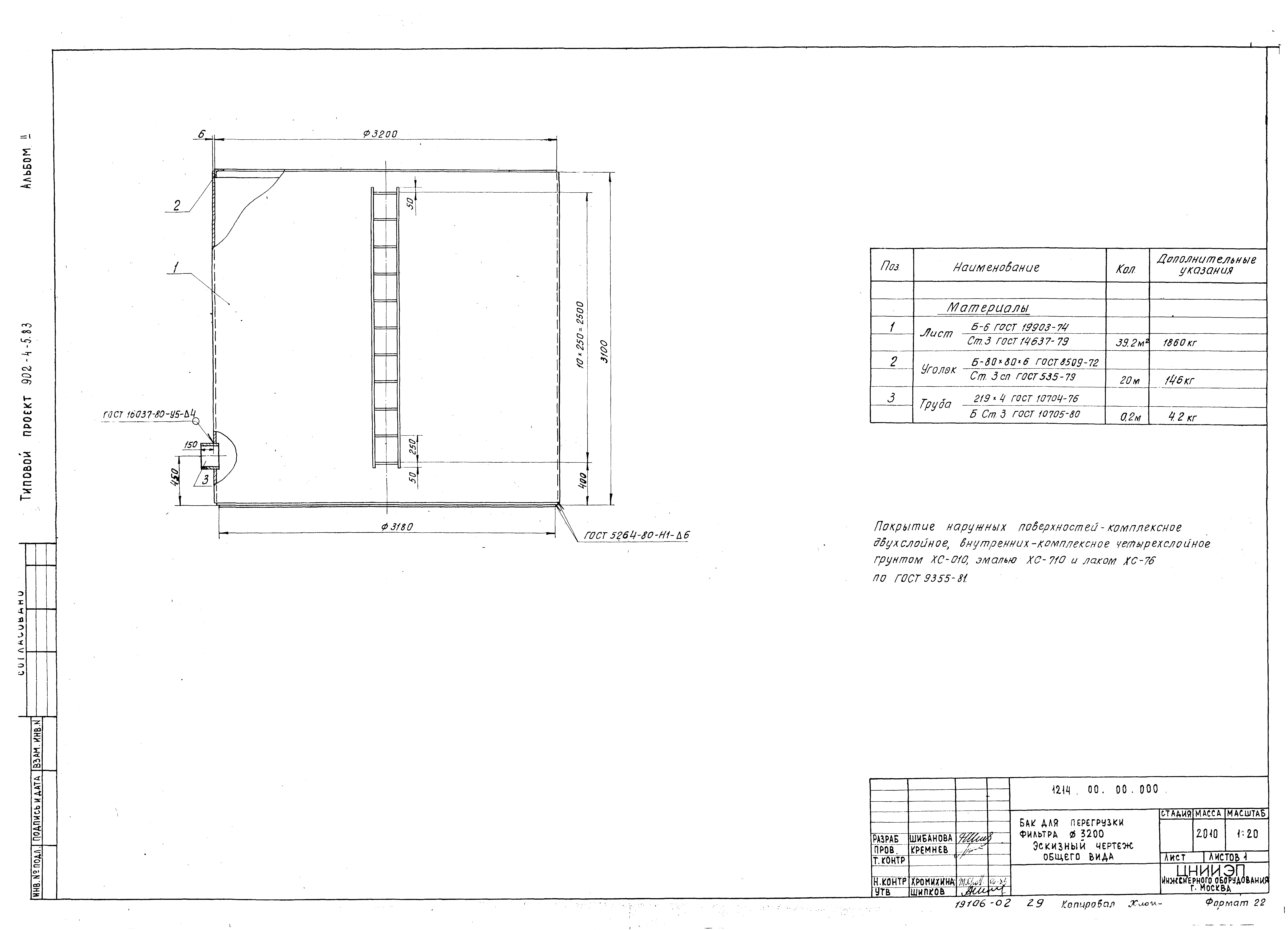
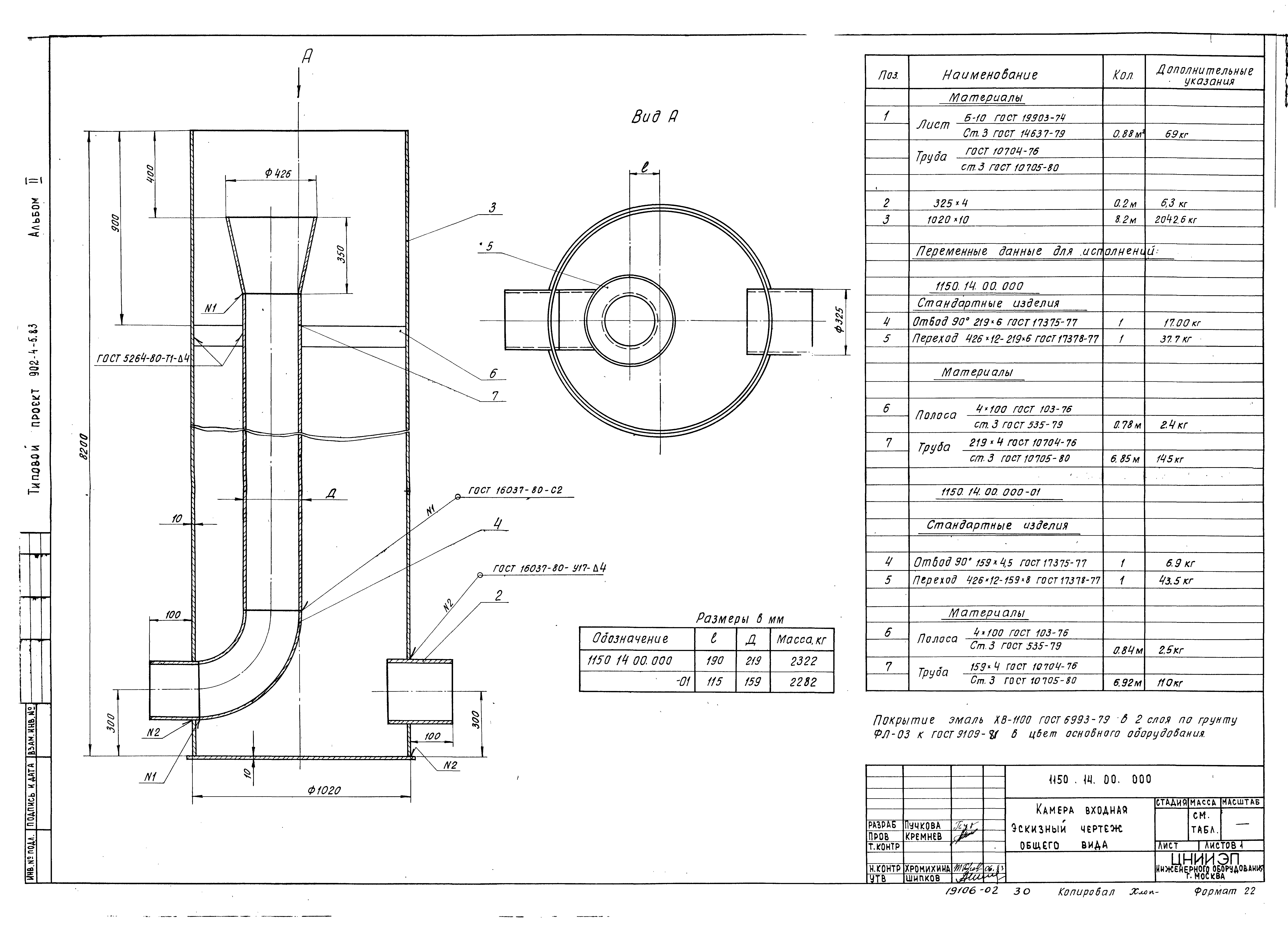
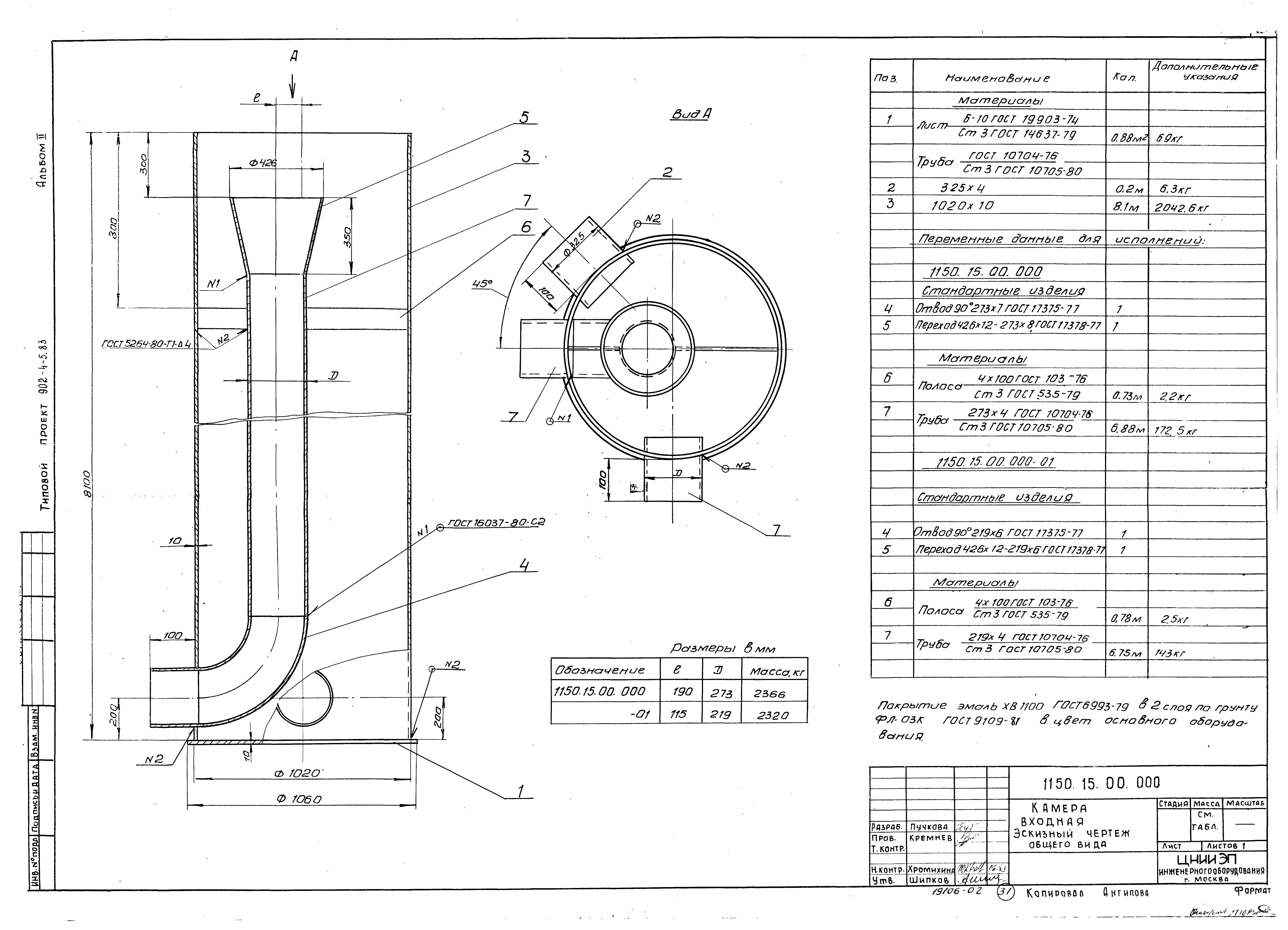
| Оглавление: | Содержание альбома Технологическая часть Общая часть Технологическая схема План на отм. 6.000 Разрезы 1-1; 2-2; 3-3; 4-4 Схемы трубопроводов М6; М7; М8; М11; М12 Спецификации систем М7; М8 Спецификации систем М6; М11; М12 Схема трубопровода М13 Схемы трубопроводов М9; А0; В9; П2 Спецификации систем М9; А0; В9; П2 Схемы трубопроводов М10; М17 Спецификации систем М10; М17 Фильтр. План. Разрезы 1-1; 2-2. Глушитель шума Блок резервуаров. План на отм. 0.000. Разрезы 1-1; 2-2; 3-3. Схемы трубопроводов Отопление и вентиляция Рама для крепления фильтра. Переходы Общие данные План на отм. 0.000; 3.600 Схема системы отопления. Схемы системы П1, В1, В2, В3, В4, ВЕ1 Установки систем П1; В4. Схема системы теплоснабжения установки П1 Внутренний водопровод и канализация Общие данные Схемы трубопроводов К1, К2, В1 Нестандартизированное оборудование Фильтр песчаный Ф3200. Чертеж общего вида 1212.00.00.00080 Бак для перегрузки фильтра Ф3200. 1214.00.00.00080 Камера входная. Чертеж общего вида. 1150.14.00.00080 Камера входная. Чертеж общего вида. 1150.15.00.00080 |
| Разработан: | ЦНИИЭП инженерного оборудования |
| Утверждён: | 14.02.1983 Госгражданстрой (Gosgrazhdanstroy 49) |






























