Скачать Типовой проект 902-4-5.83 Альбом 3. Архитектурно-строительные решенияДата актуализации: 01.01.2021
|
| Обозначение: | Типовой проект 902-4-5.83 |
| Обозначение англ: | 902-4-5.83 |
| Статус: | не определен законодательством |
| Название рус.: | Альбом 3. Архитектурно-строительные решения |
| Дата добавления в базу: | 01.09.2013 |
| Дата актуализации: | 01.01.2021 |
| Дата введения: | 01.12.1983 |
| Дата окончания срока действия: | 30.06.2003 |
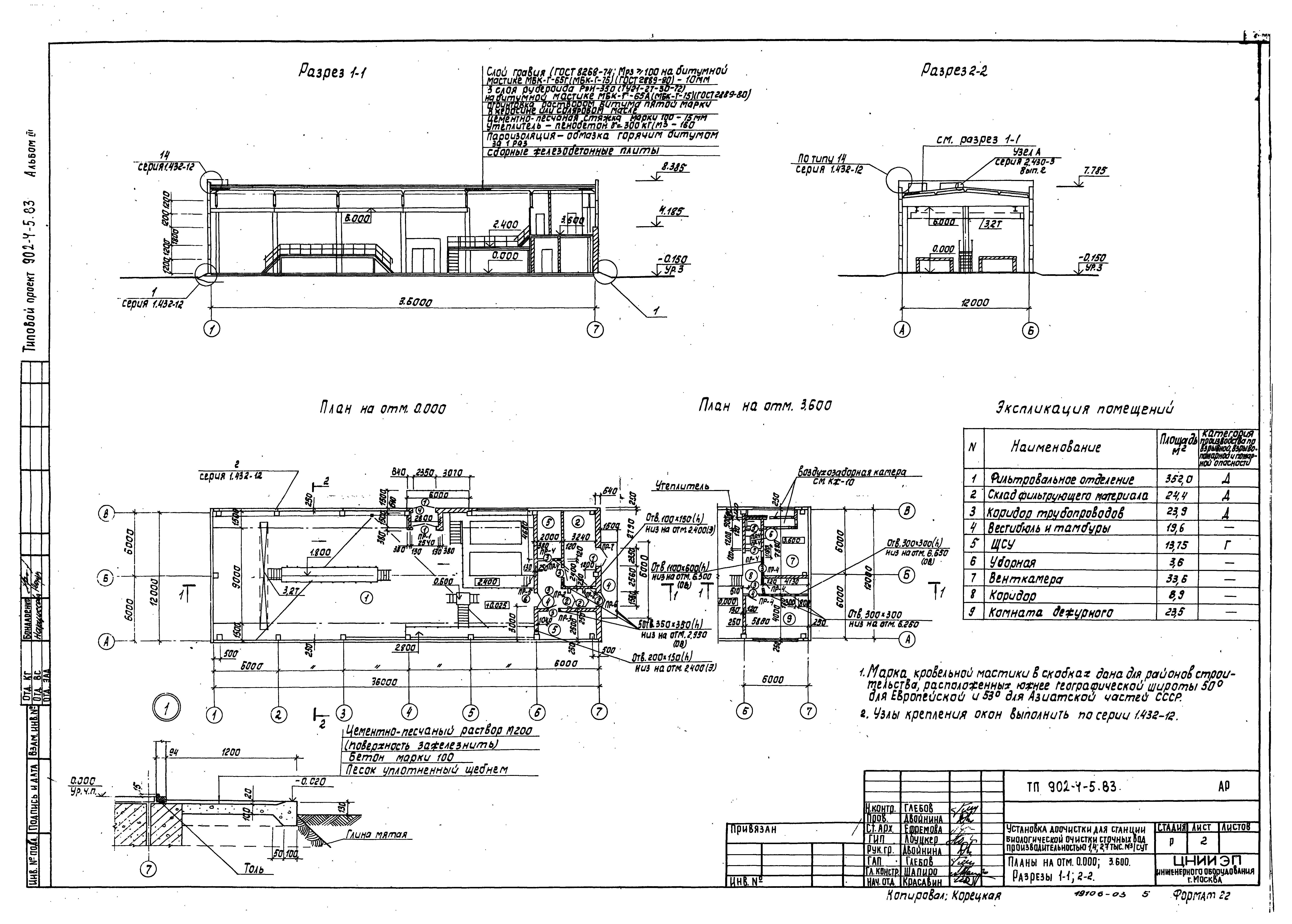
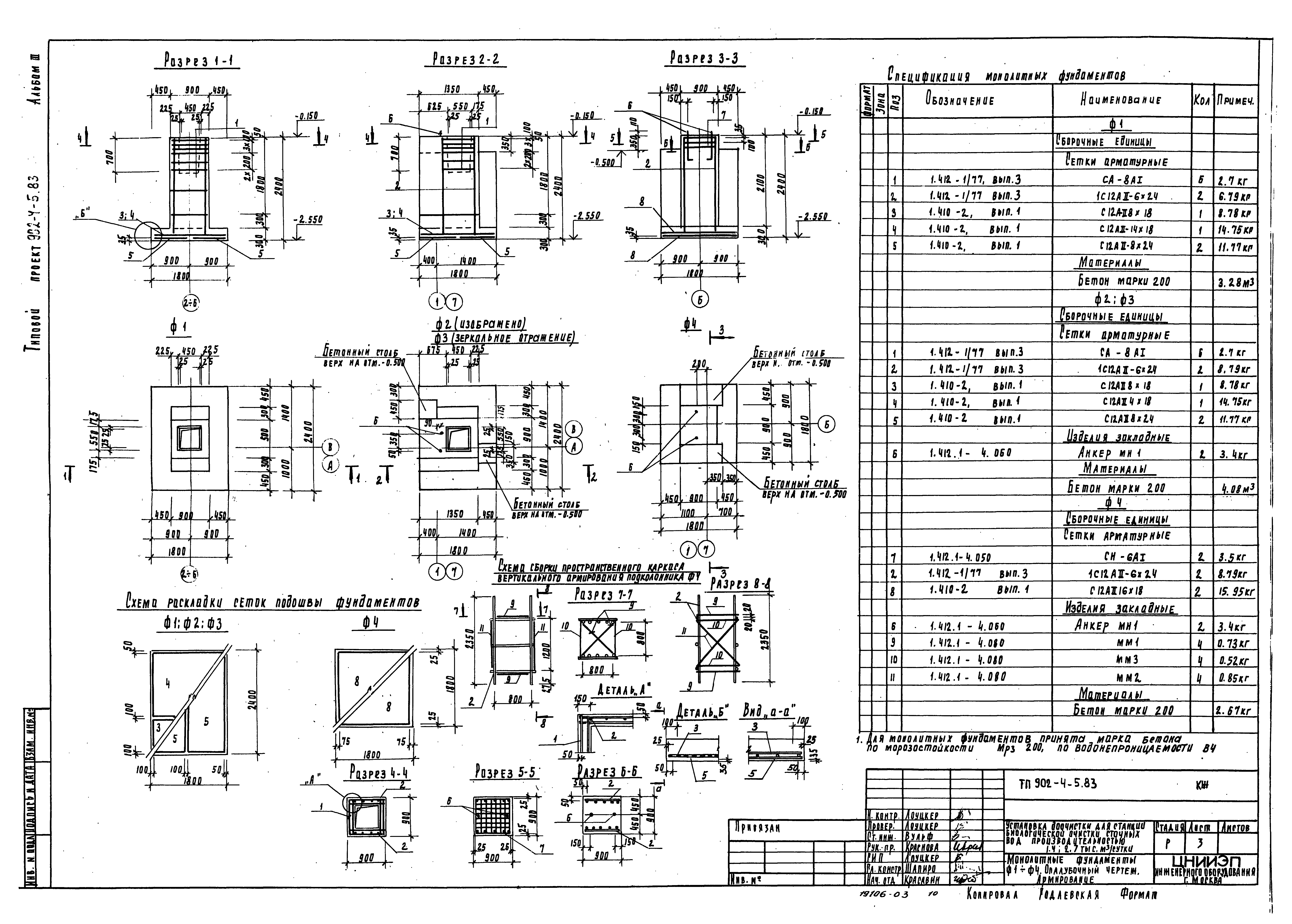
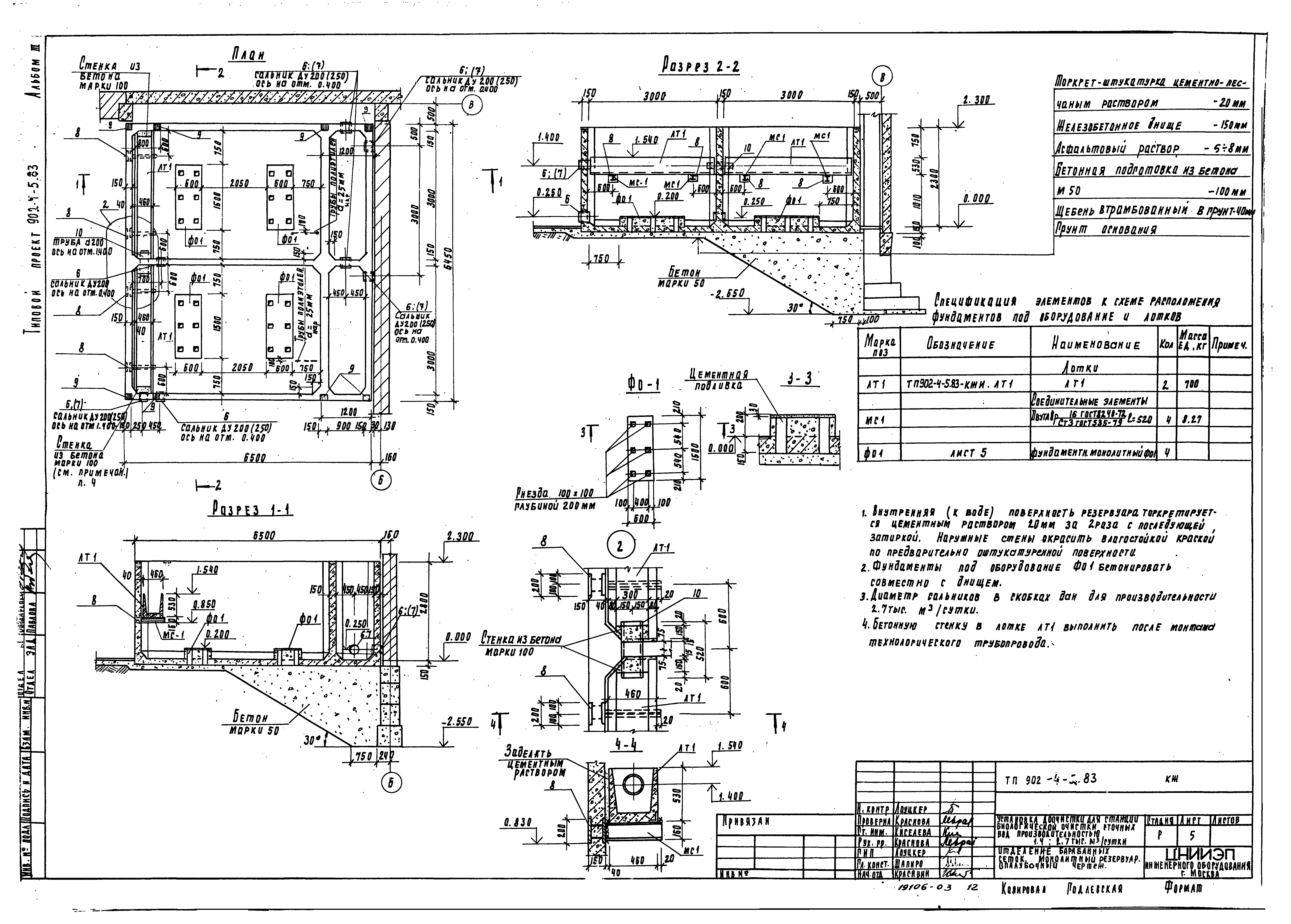
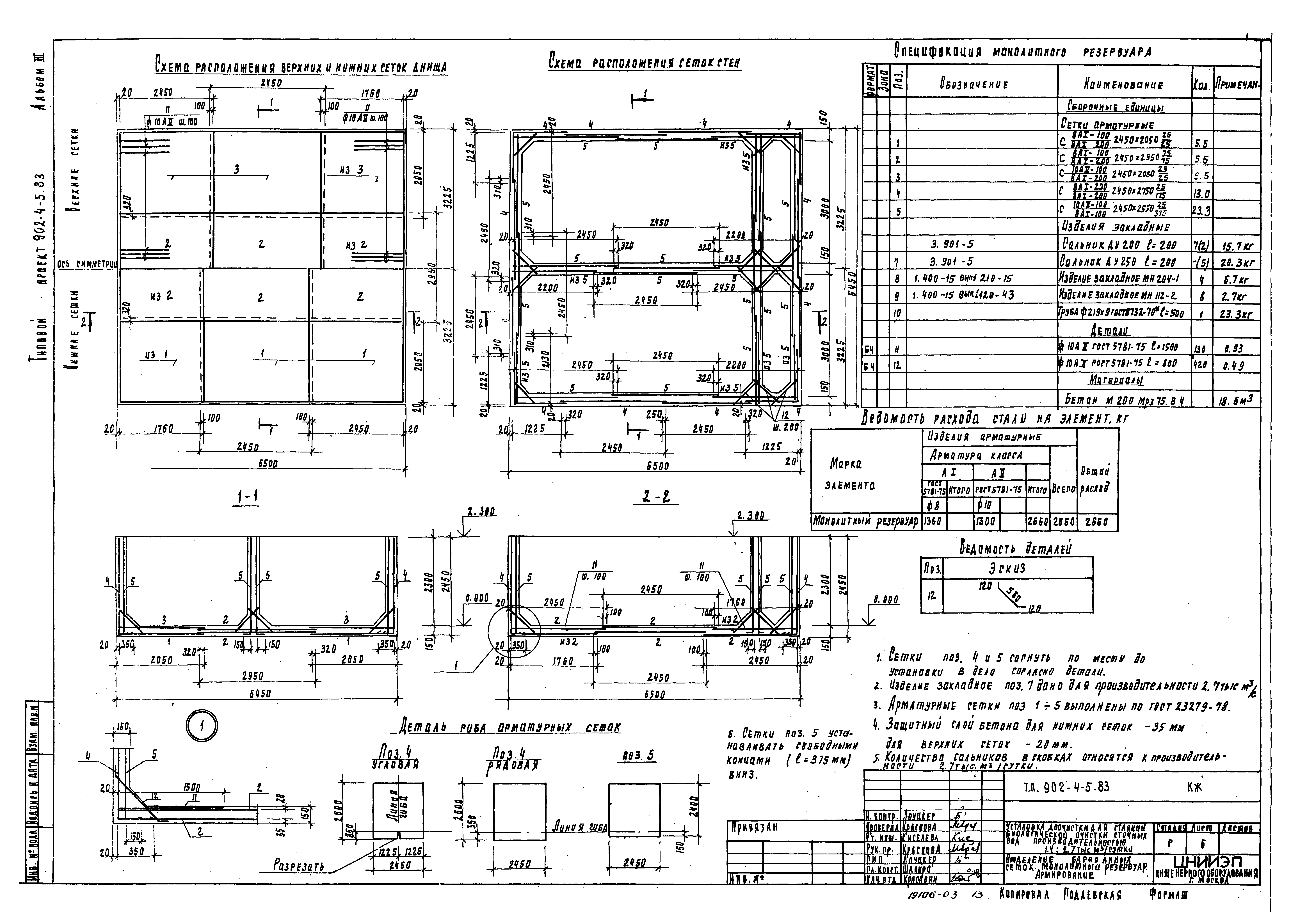
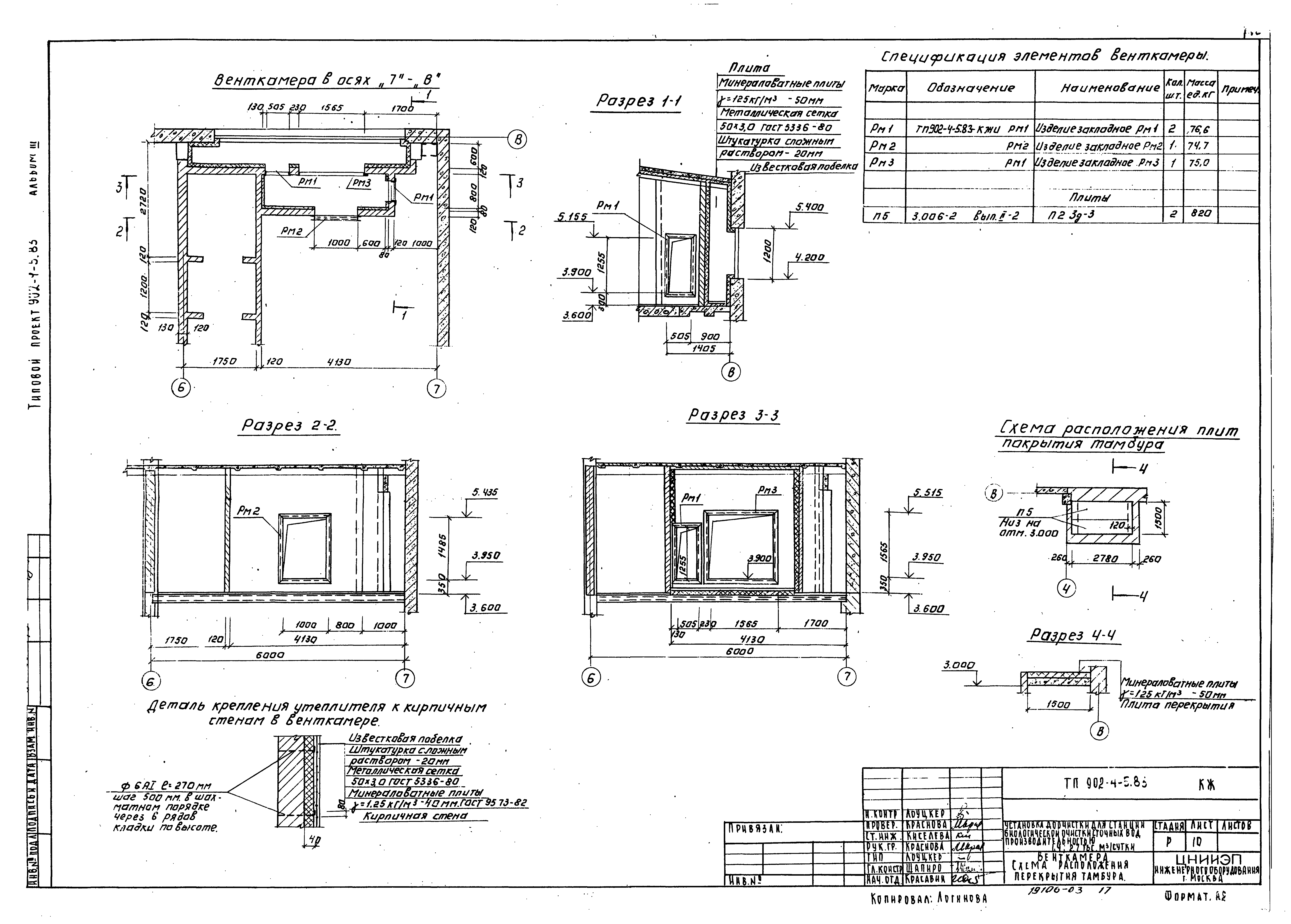
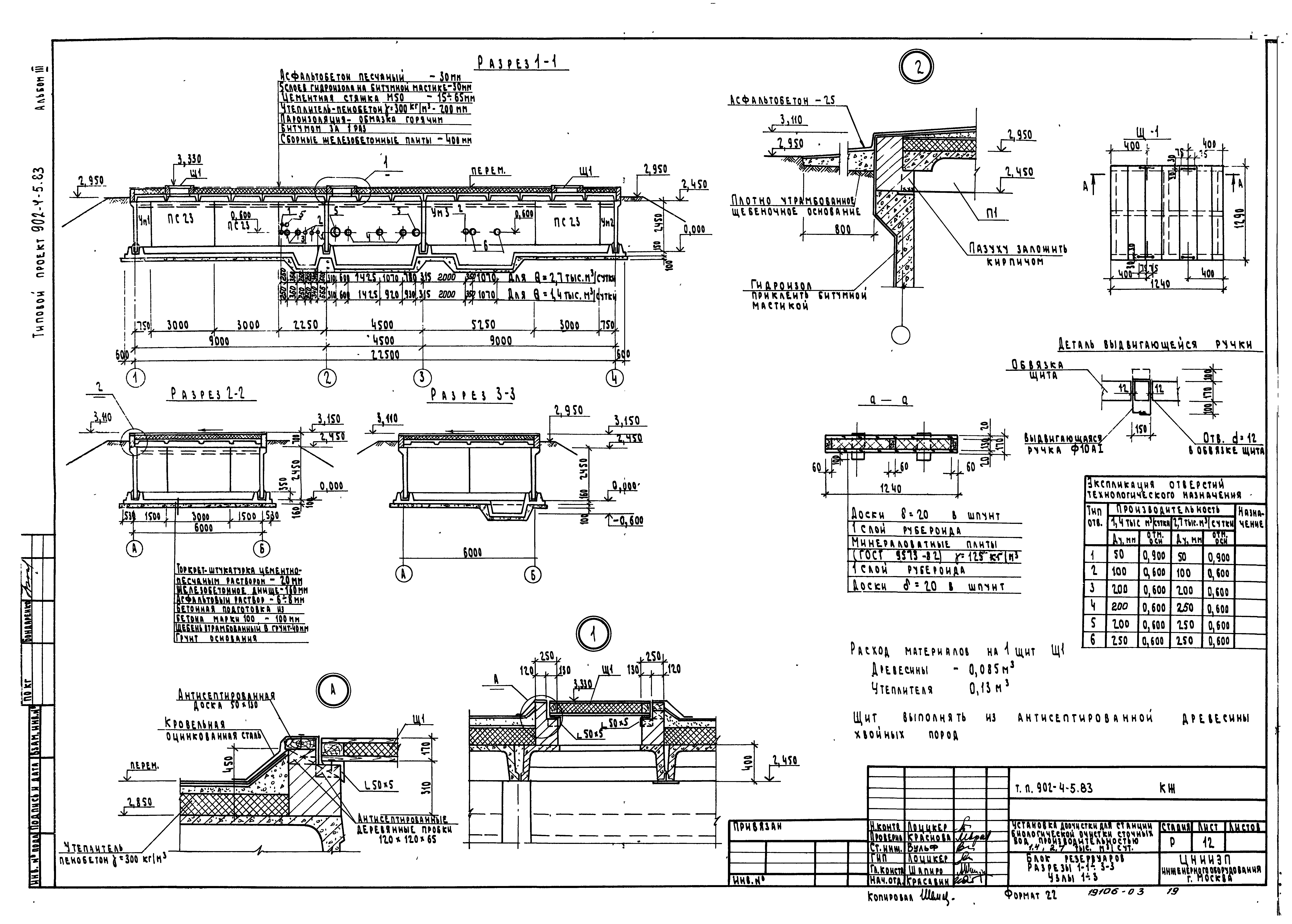
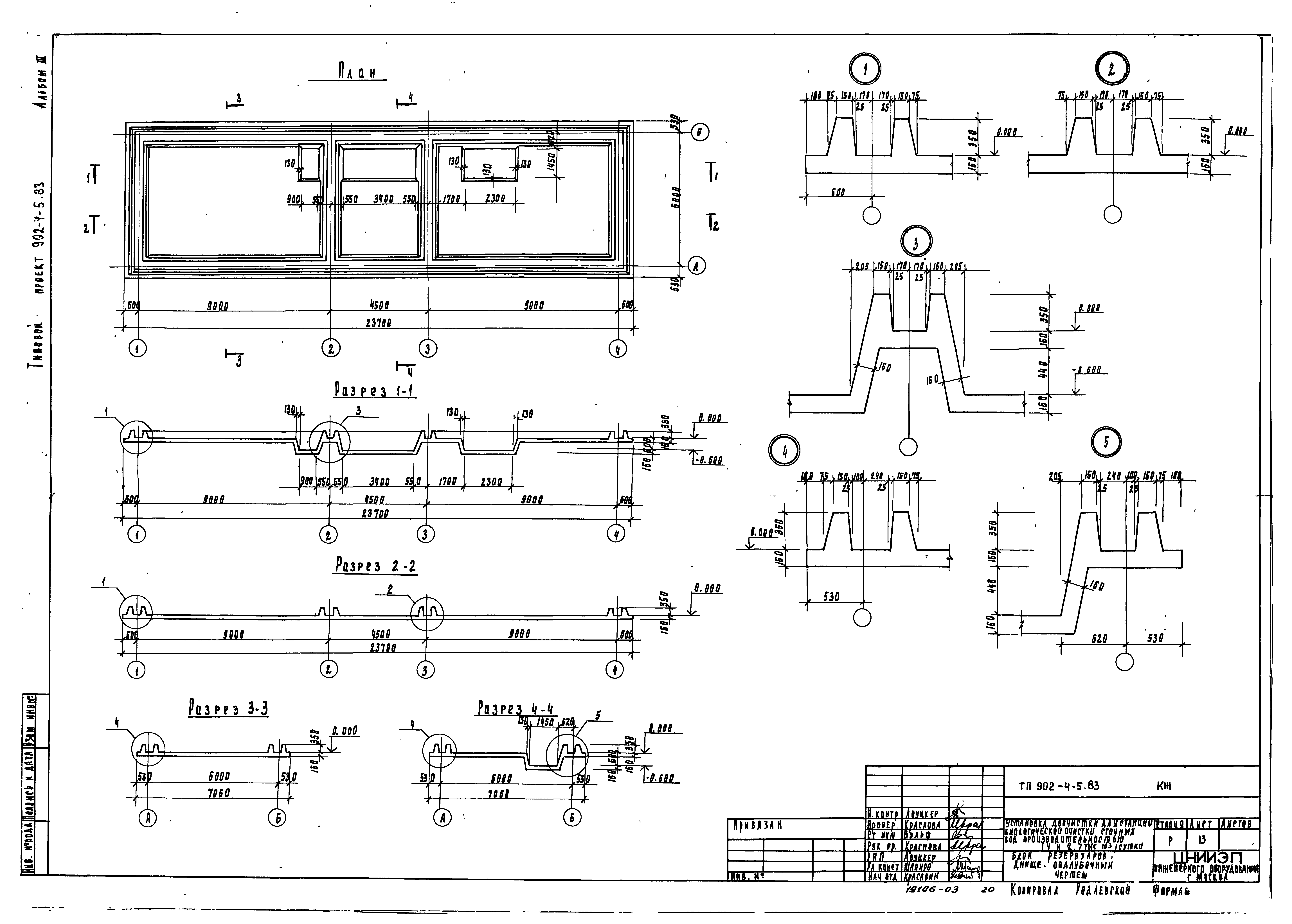
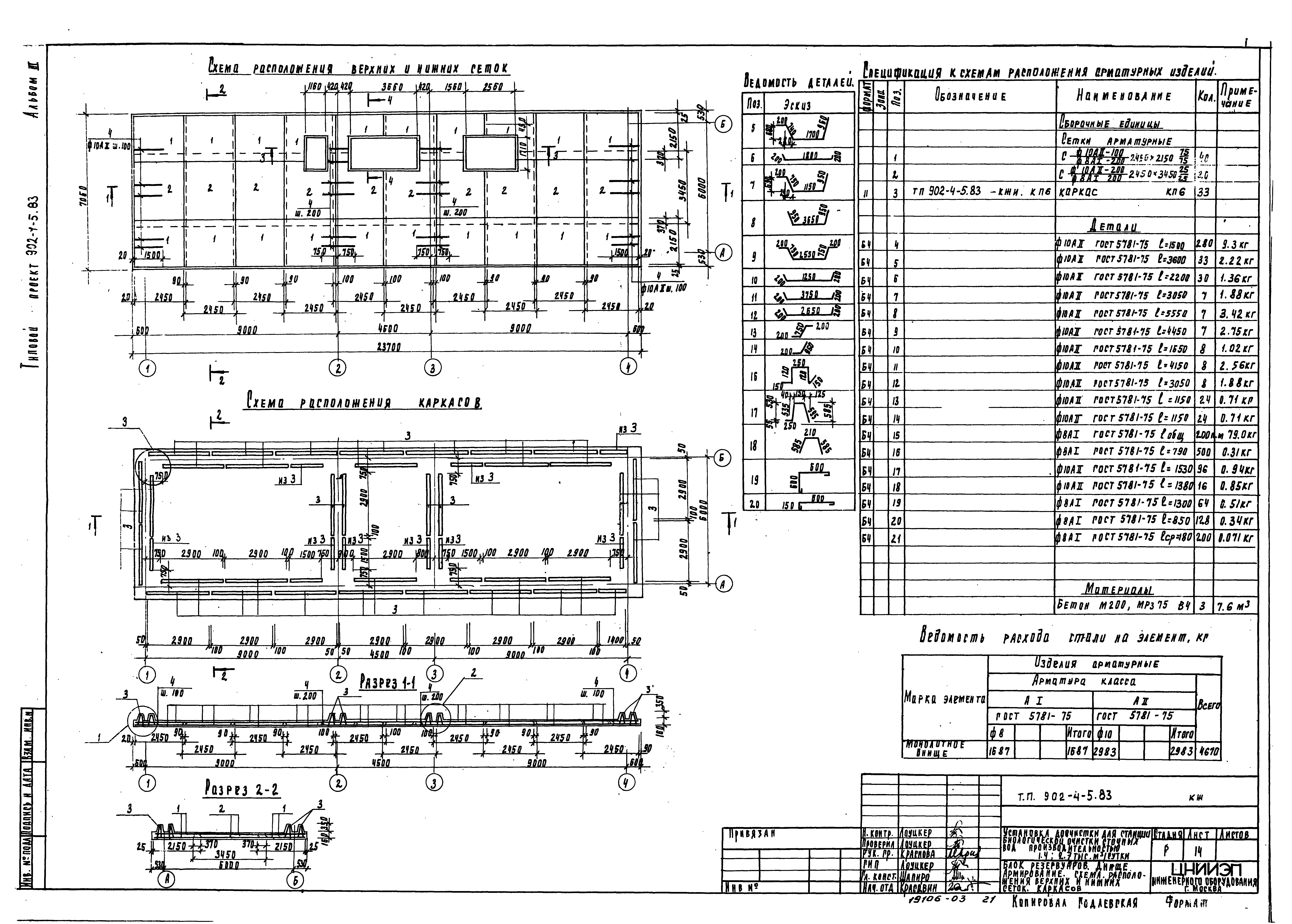
| Оглавление: | Содержание альбома Архитектурно-строительная часть Общие данные Планы на отм. 0,000; 3,600. Разрезы 1-1, 2-2 Фасады 1-7, 7-1, В-А, А-В План кровли. Планы полов на отм. 0,000; 3,600. Экспликация полов. Ведомость отделки помещений. Спецификация и ведомость перемычек Конструкции железобетонные Общие данные Схема расположения фундаментов и фундаментных балок. Узлы 1…3 Монолитные фундаменты Ф1-Ф4. Опалубочный чертеж. Армирование Схема расположения фундаментов под оборудование Отделение барабанных сеток. Монолитный резервуар. Опалубочный чертеж Отделение барабанных сеток. Монолитный резервуар. Армирование Схема расположения колонн и балок покрытия Схема расположения плит покрытия в осях 1…7 Схемы расположения стеновых панелей Венткамера. Схема расположения перекрытия тамбура Блок резервуаров. Схема расположения стеновых панелей, плит покрытия Блок резервуаров. Разрезы 1-1…3-3. Узлы 1…3 Блок резервуаров. Днище. Опалубочный чертеж Блок резервуаров. Днище. Армирование. Схема расположения верхних и нижних сеток каркасов Блок резервуаров. Днище. Армирование. Разрезы. Узлы Блок резервуаров. Монолитные участки стен. Ум1…Ум3. Опалубочный чертеж. Армирование Конструкции металлические Общие данные Техническая спецификация металла Техническая спецификация металла, типовые конструкции Выборка стали по видам профилей Схема расположения металлических балок, путей подвесного транспорта Планы площадок на отм. 0,600; 1,800; 2,800; 3,600 |
| Разработан: | ЦНИИЭП инженерного оборудования |
| Утверждён: | 14.02.1983 Госгражданстрой (Gosgrazhdanstroy 49) |



























