Скачать Типовой проект 902-4-5.83 Альбом 5. Электротехническая часть. Чертежи монтажной зоны и заготовительного участкаДата актуализации: 01.01.2021
|
| Обозначение: | Типовой проект 902-4-5.83 |
| Обозначение англ: | 902-4-5.83 |
| Статус: | не определен законодательством |
| Название рус.: | Альбом 5. Электротехническая часть. Чертежи монтажной зоны и заготовительного участка |
| Дата добавления в базу: | 01.09.2013 |
| Дата актуализации: | 01.01.2021 |
| Дата введения: | 01.12.1983 |
| Дата окончания срока действия: | 30.06.2003 |
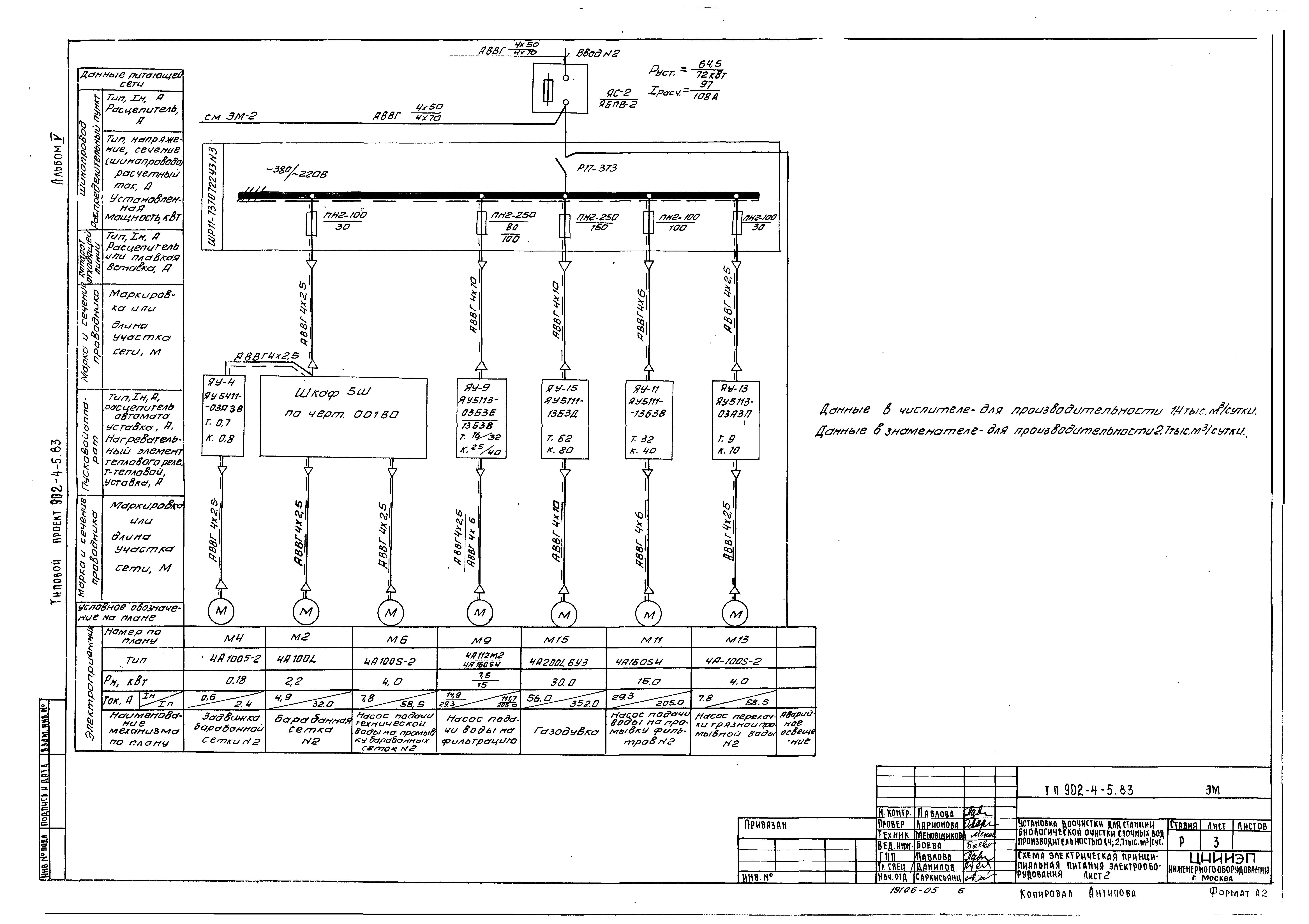
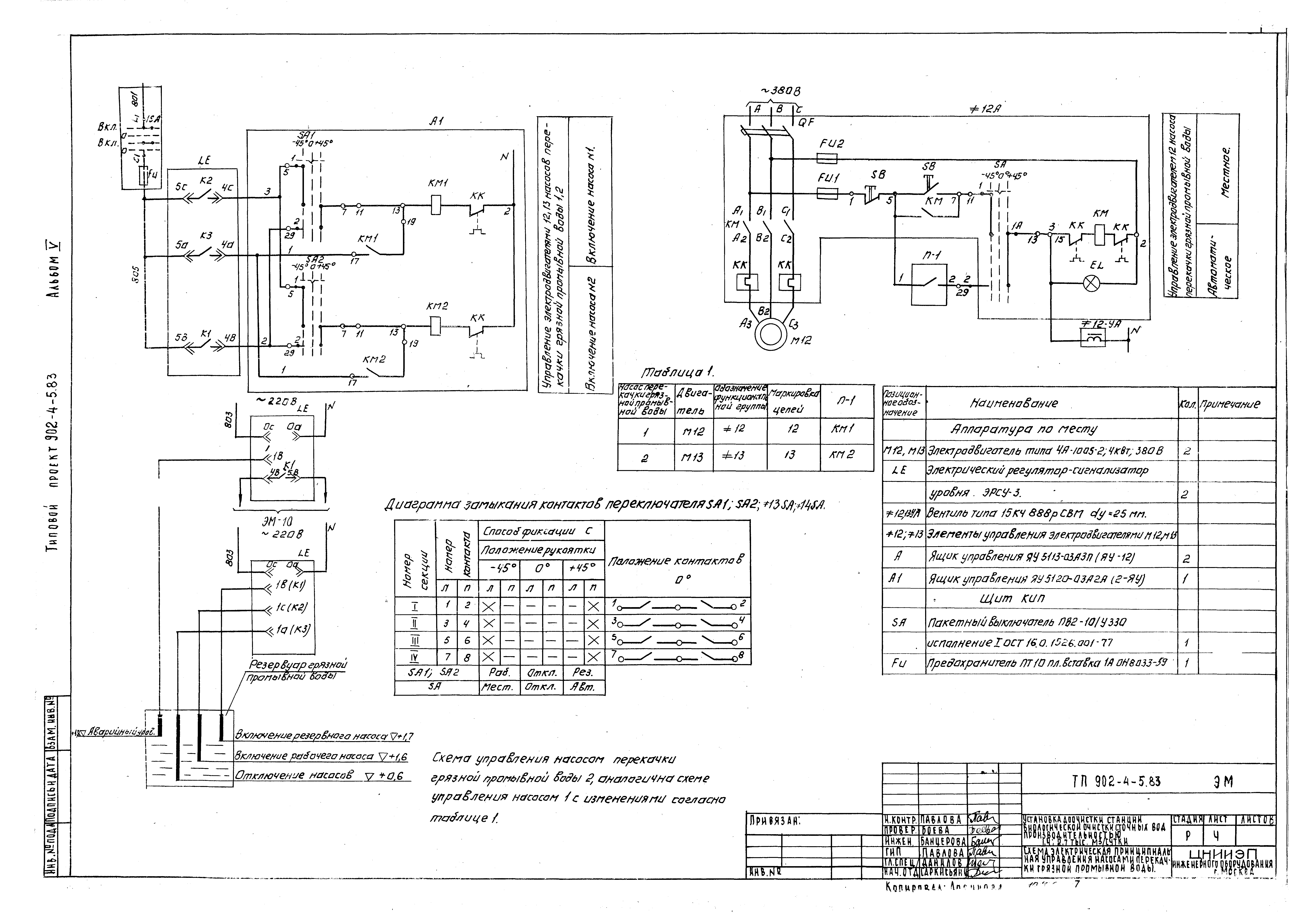
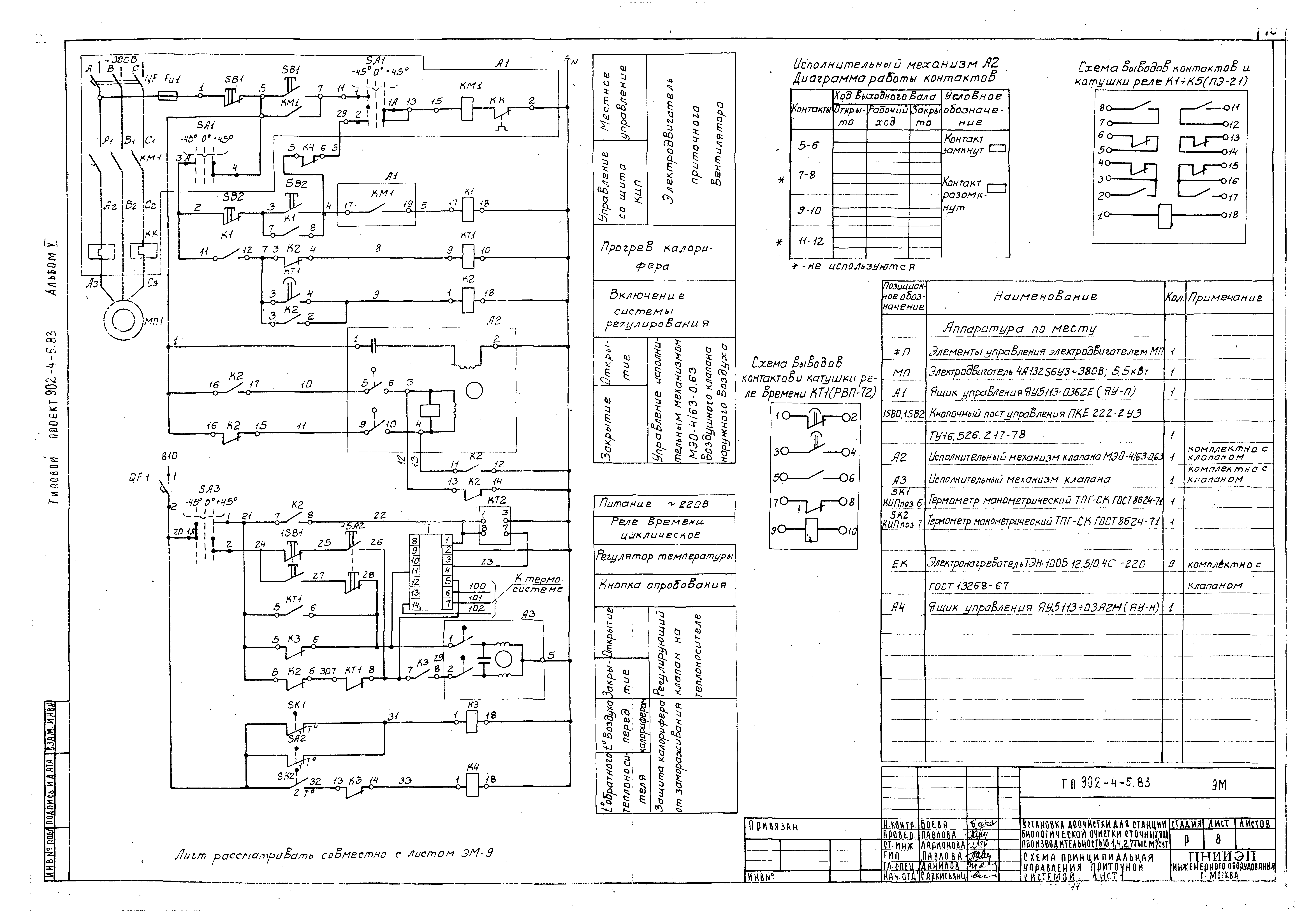
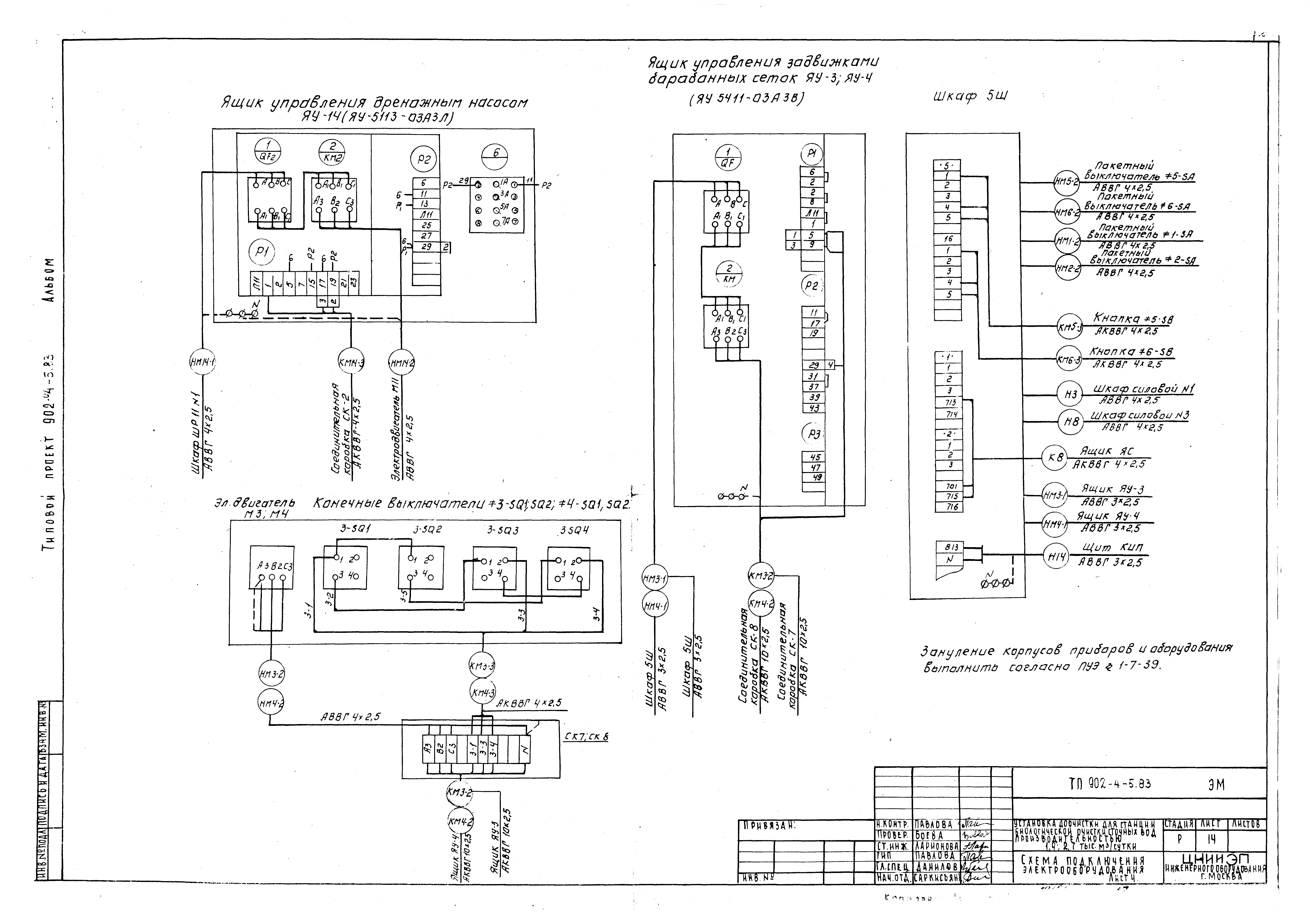
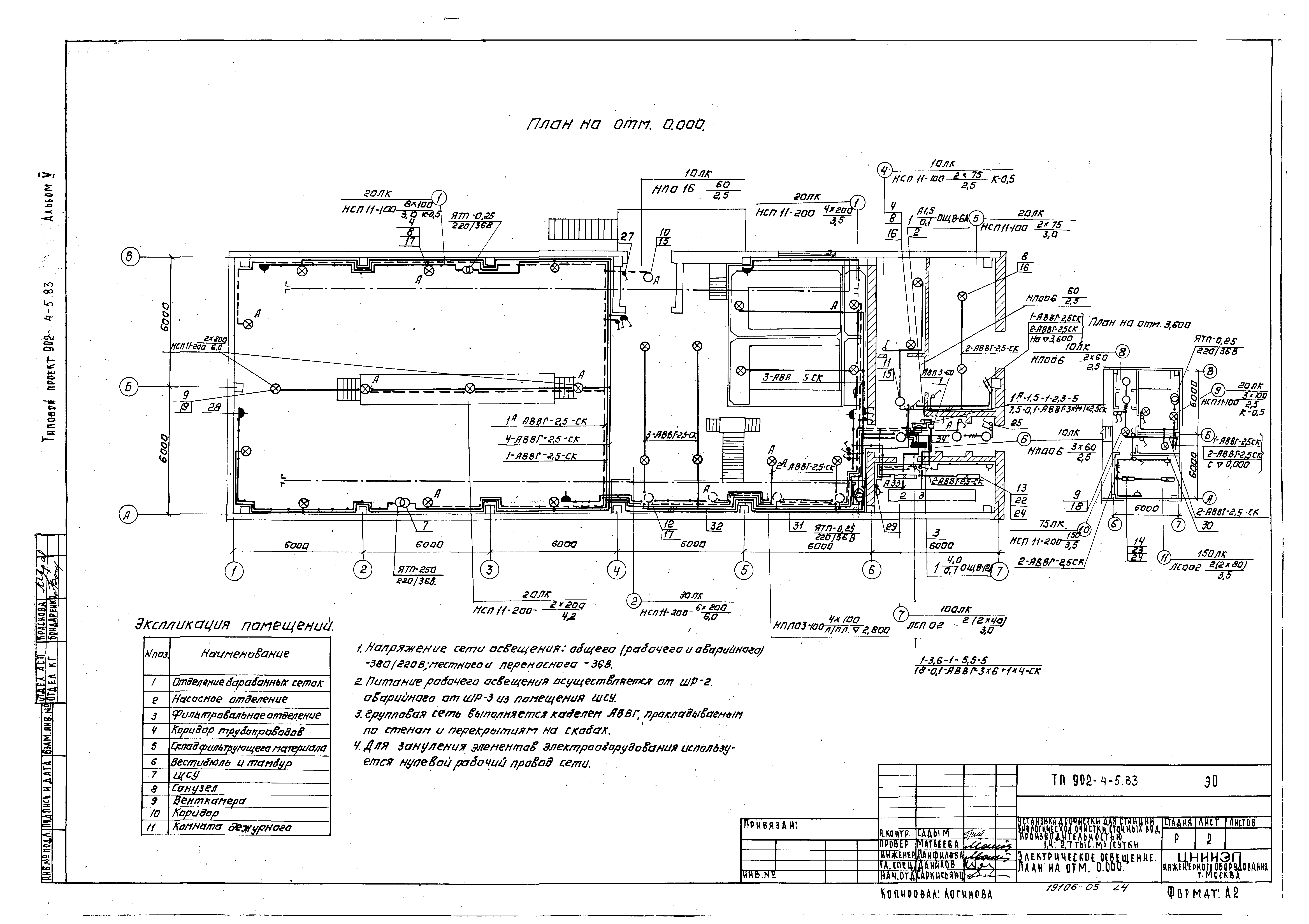
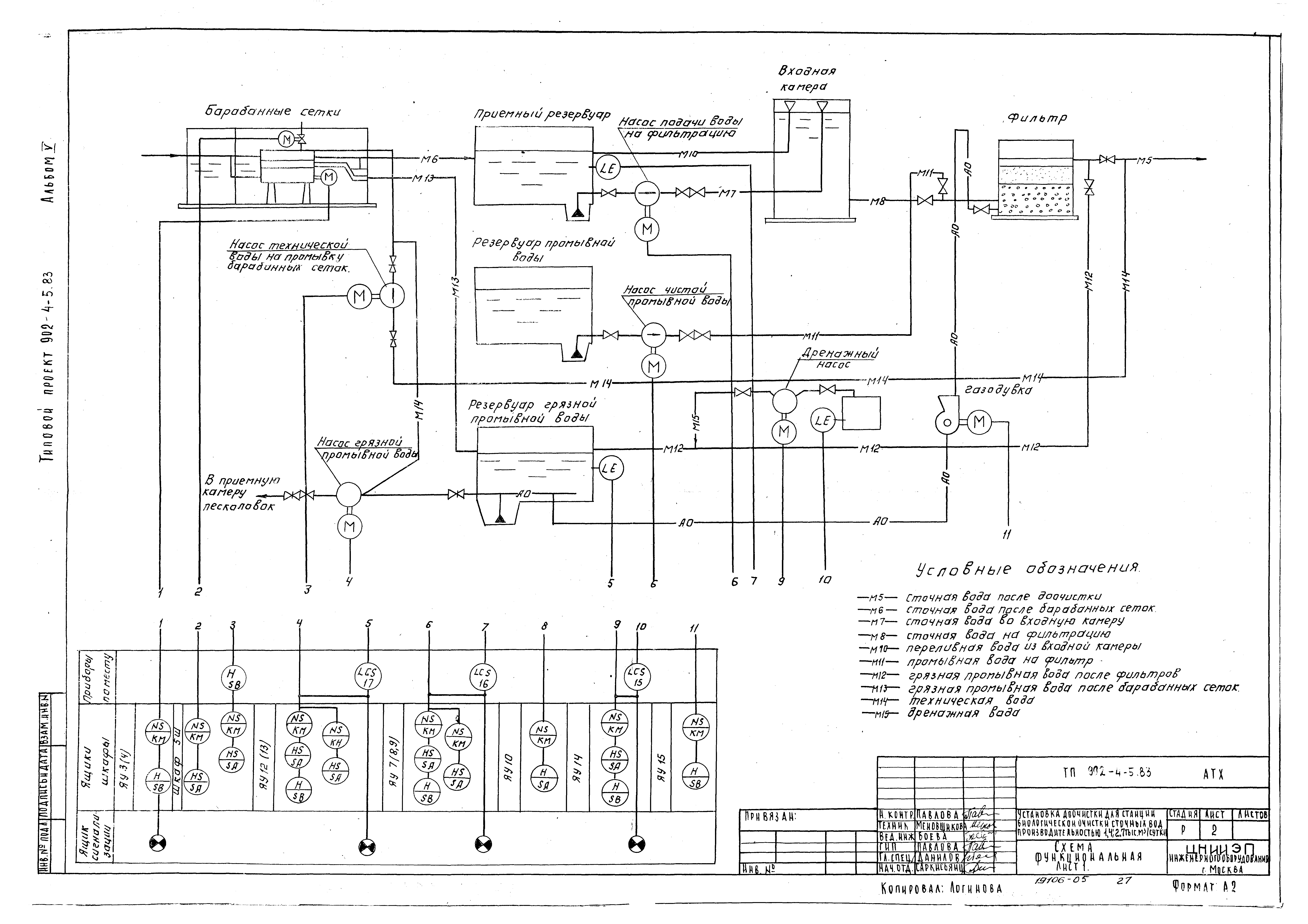
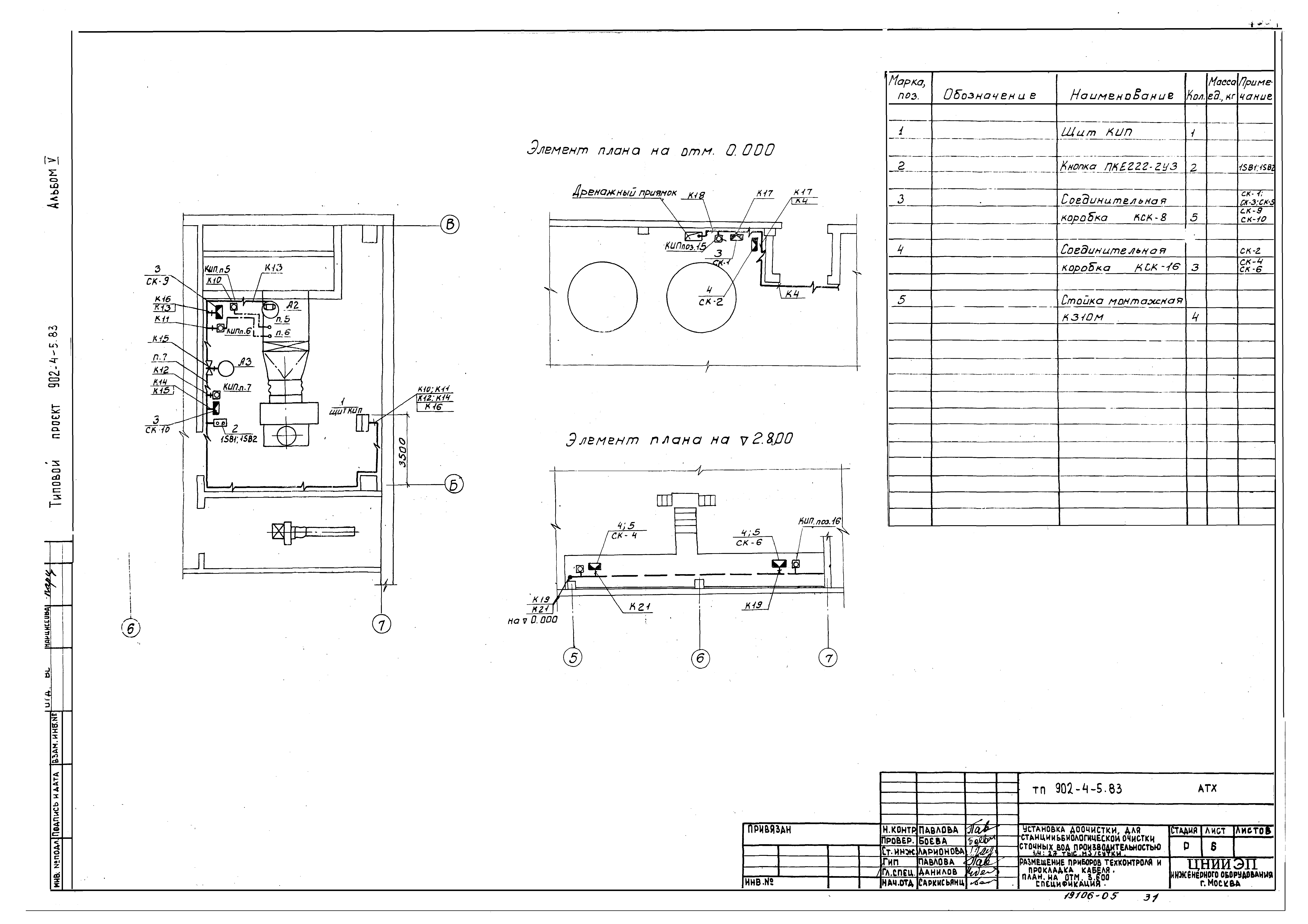
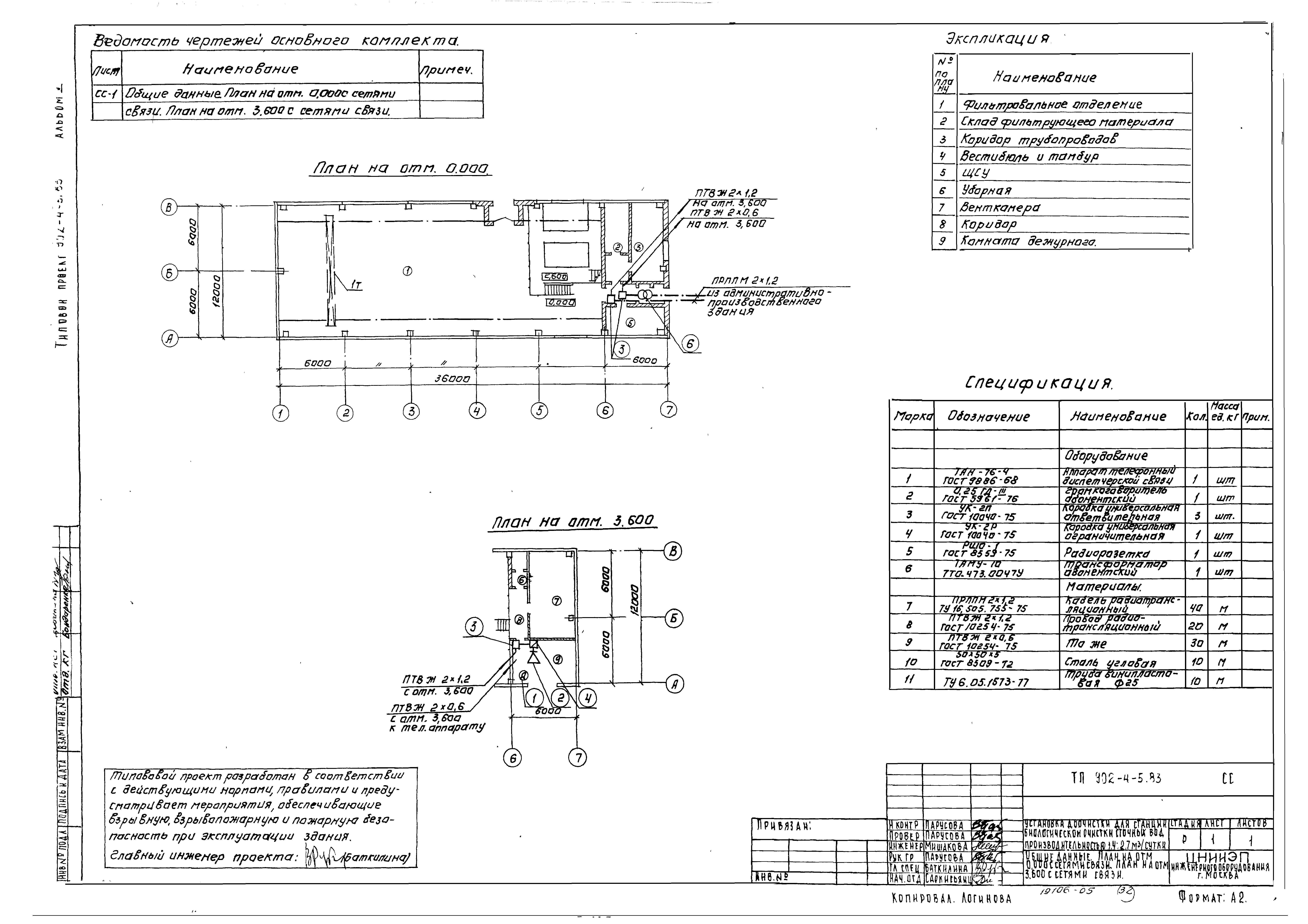
| Оглавление: | ЭМ-1 Общие данные ЭМ-2 Схема питания электрооборудования. Лист 1 ЭМ-3 Схема питания электрооборудования. Лист 2 ЭМ-4 Схема электрическая принципиальная управления насосами перекачки грязной промывной воды ЭМ-5 Схема электрическая принципиальная управления насосами подачи воды на фильтрацию ЭМ-6 Схема электрическая принципиальная управления дренажным насосом ЭМ-7 Схемы электрические принципиальные управления барабанной сеткой и насосом подачи технической воды на промывку барабанных сеток ЭМ-8 Схема электрическая принципиальная управления приточной системой. Лист 1 ЭМ-9 Схема электрическая принципиальная управления приточной системой. Лист 2 ЭМ-10 Схема электрическая принципиальная аварийной сигнализации ЭМ-11 Схема подключения электрооборудования. Лист 1 ЭМ-12 Схема подключения электрооборудования. Лист 2 ЭМ-13 Схема подключения электрооборудования. Лист 3 ЭМ-14 Схема подключения электрооборудования. Лист 4 ЭМ-15 Кабельный журнал. Лист 1 ЭМ-16 Кабельный журнал. Лист 2 ЭМ-17 Кабельный журнал. Лист 3 ЭМ-18 Размещение электрооборудования и прокладка кабеля. План на отм. 0.000 ЭМ-19 Размещение электрооборудования и прокладка кабеля. План на отм. 3.600. Спецификация ЭО-1 Общие данные ЭО-2 Электрическое освещение. План на отм. 0.000 и 3.600 ЭО-3 Электрическое освещение. Спецификация АТХ-1 Общие данные АТХ-2 Схема функционирования. Лист 1. Схема питания приборов АТХ-3 Схема функционирования. Лист 2 АТХ-4 Схема подключения приборов технологического контроля АТХ-5 Схема подключения приборов технологического контроля АТХ-6 Размещение приборов технологического контроля и раскладка кабеля. План на отм. 0.000 и 3.600. Спецификация СС-1 Общие данные. План на отм. 0.000 с сетями связи. План на отм. 3.600 с сетями связи |
| Разработан: | ЦНИИЭП инженерного оборудования |
| Утверждён: | 14.02.1983 Госгражданстрой (Gosgrazhdanstroy 49) |































