Скачать Типовой проект 902-5-35.86 Альбом 2. Технологическая и санитарно-техническая частиДата актуализации: 01.01.2021
|
| Обозначение: | Типовой проект 902-5-35.86 |
| Обозначение англ: | 902-5-35.86 |
| Статус: | не определен законодательством |
| Название рус.: | Альбом 2. Технологическая и санитарно-техническая части |
| Дата добавления в базу: | 01.09.2013 |
| Дата актуализации: | 01.01.2021 |
| Дата введения: | 01.10.1986 |
| Дата окончания срока действия: | 30.06.2003 |
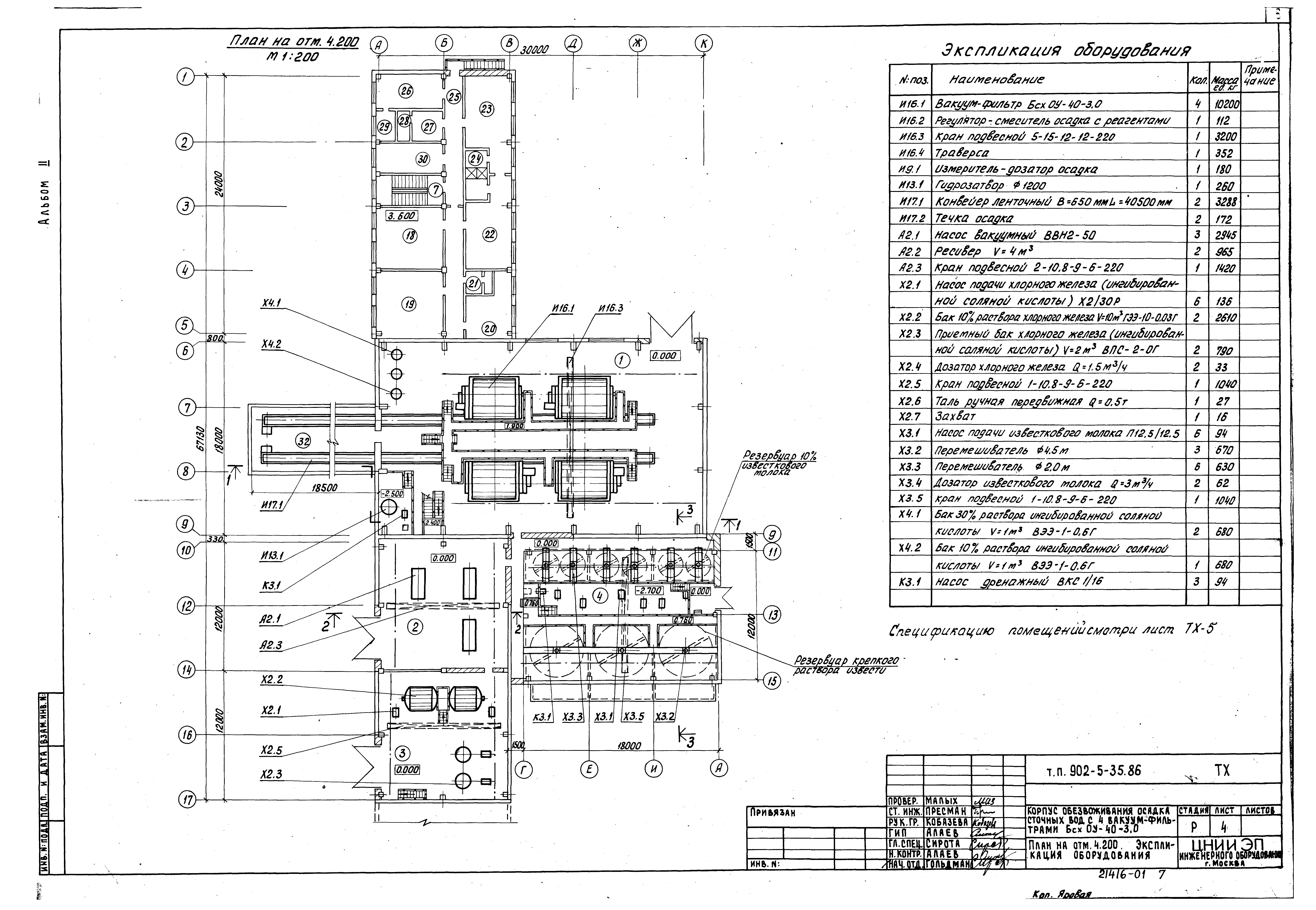
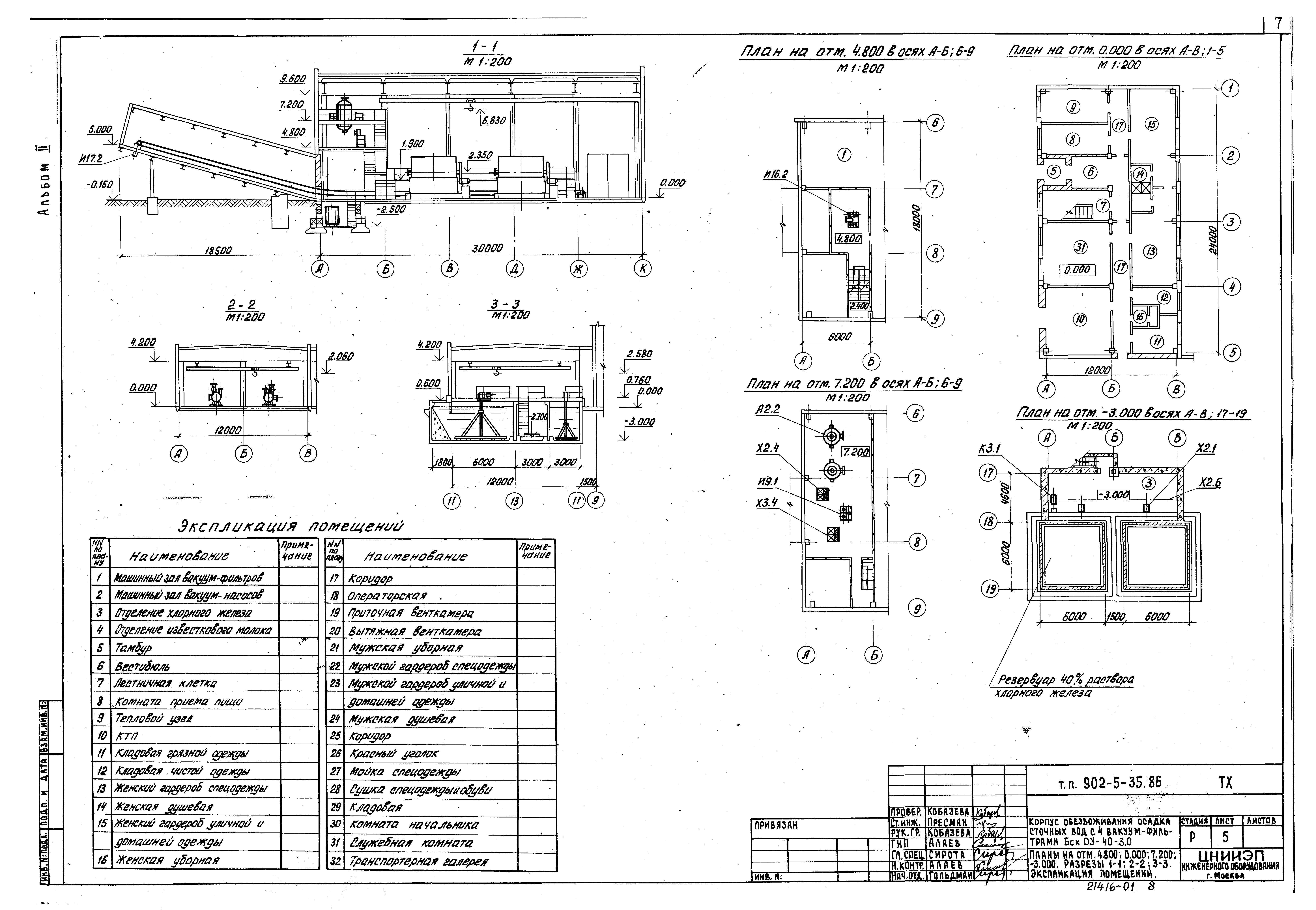
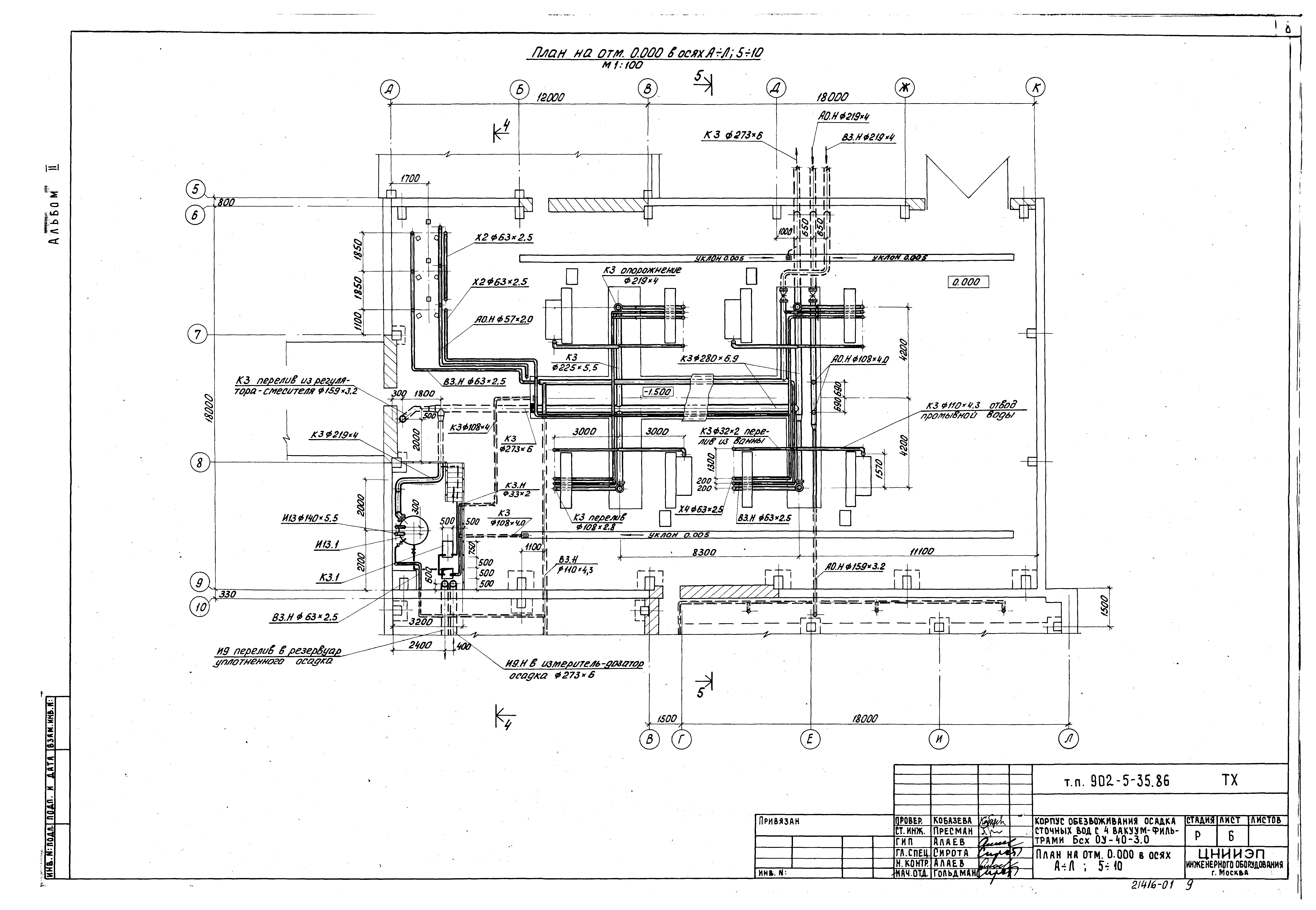
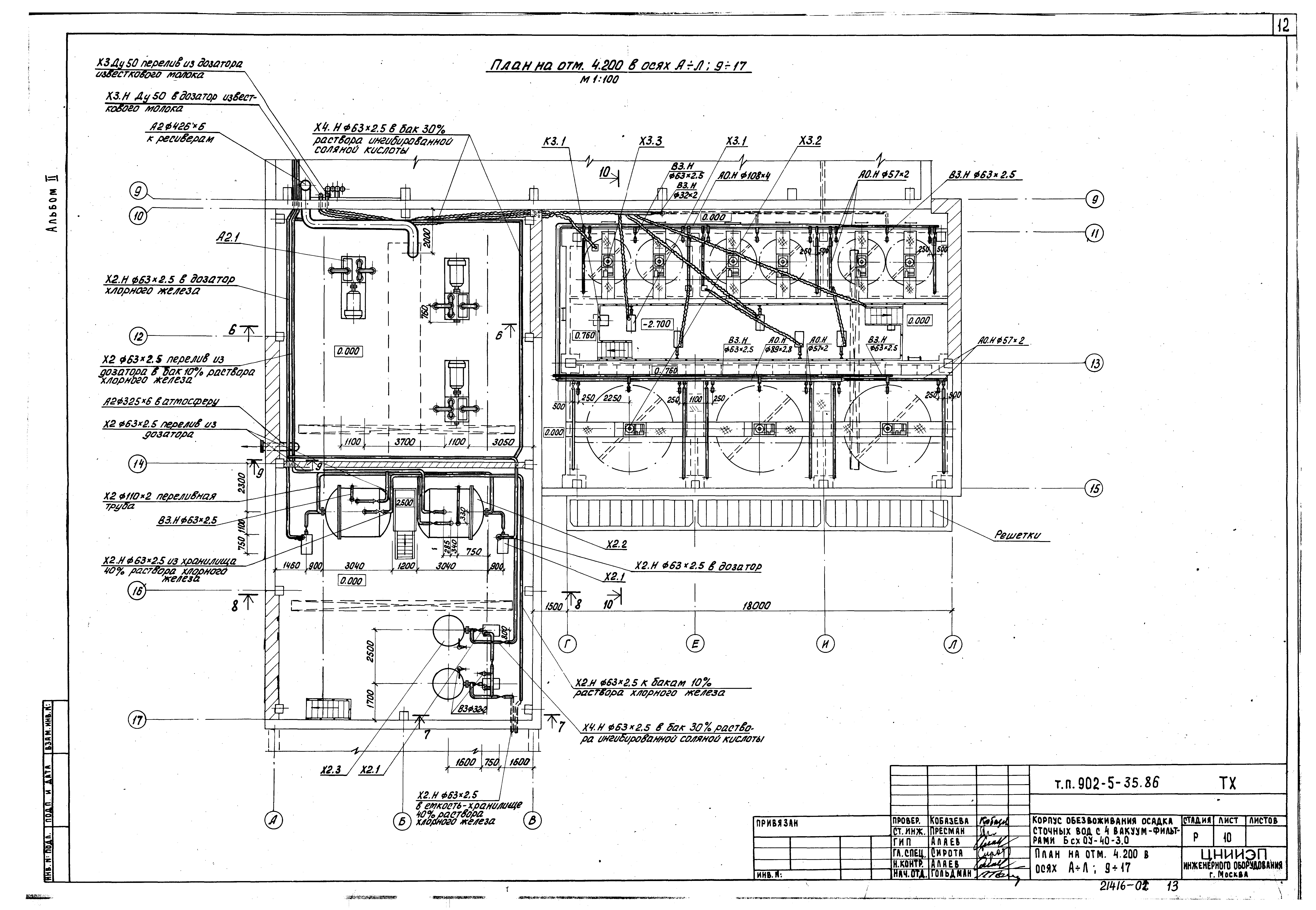
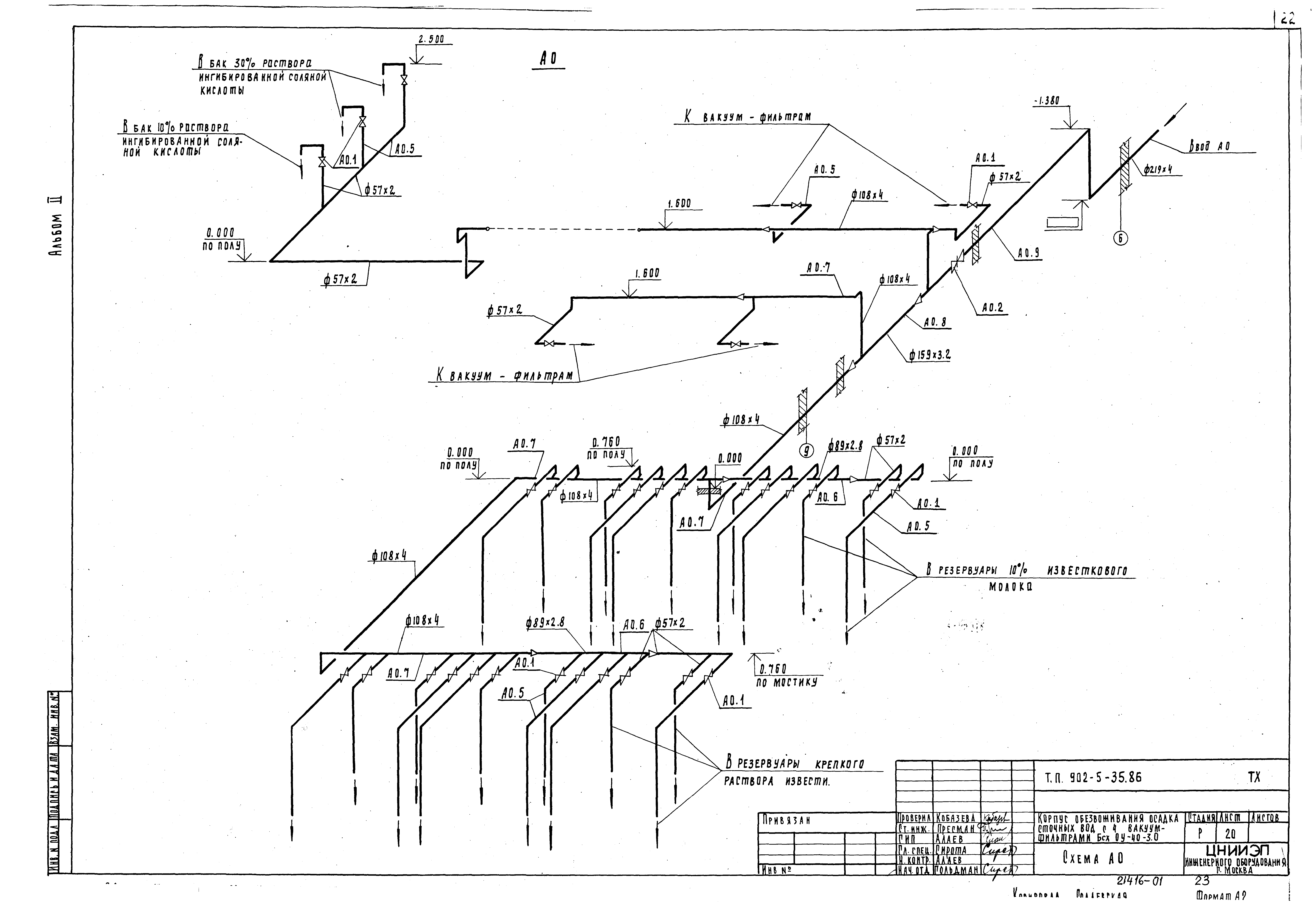
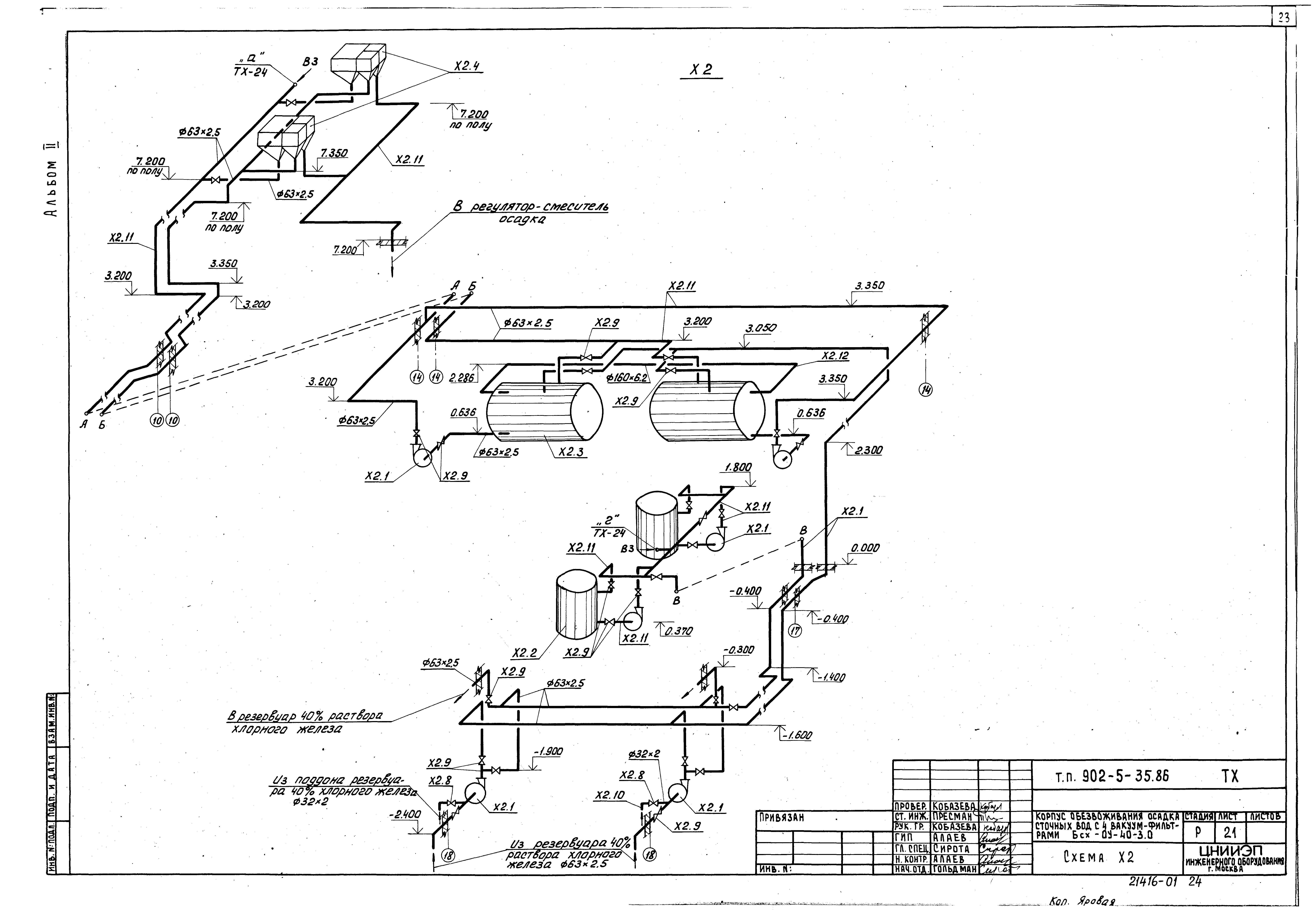
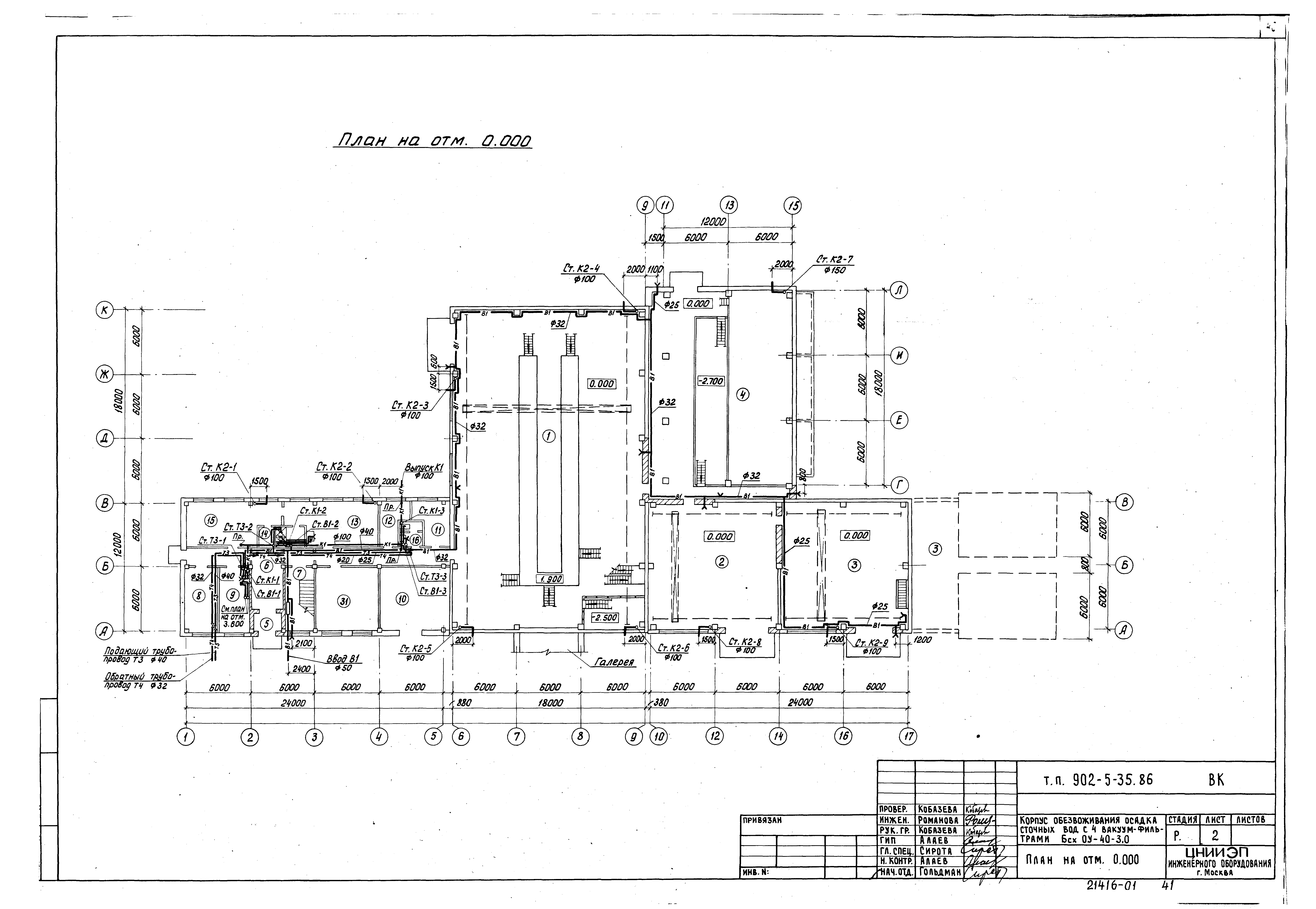
| Оглавление: | Содержание альбома Технологическая часть Общие данные Пример размещения корпуса обезвоживания осадка на генплане станции биологической очистки сточных вод Q = 200 тыс. куб. м/сутки Принципиальная технологическая схема План на отм. 4.200. Экспликация оборудования Планы на отм. 4.800; 0.000; 7.200; - 3.000. Разрезы 1-1; 2-2; 3-3. Экспликация помещений Планы на отм. 0.000 в осях А - Л; 5 - 10 Планы на отм. 4.200 в осях А - Л; 6 - 11 Планы на отм. 4.800; 7.200 в осях А - Б; 5 - 9 План на отм. 0.000 в осях А - Л; 9 - 18 План на отм. 4.200 в осях А - Л; 9 - 17 Разрез 4-4 Разрез 5-5 Разрезы 6-6; 7-7; 8-8; 9-9 Разрезы 10-10; 11-11; 12-12 Технологическая обвязка вакуум-фильтра БсхОУ-40-3.0 Технологическая обвязка вакуум-фильтра БсхОУ-40-3.0. Вид А Технологическая обвязка вакуум-фильтра БсхОУ-40-3.0. План на отм. 0.000 Схема И9, И16 Схема А2 Схема А0 Схема Х2 Схема Х3 Схема Х4 Схема В3 Схема И13, К3 Линия транспорта обезвоженного осадка. Общий вид Линия транспорта обезвоженного осадка. Выносные элементы. Разрезы Санитарно-техническая часть. Отопление и вентиляция Общие данные План на отм. - 2.700; - 3.000; 0.000; 3.600 Схема системы отопления. Схемы систем П1; В1 - В8; ВЕ1 - ВЕ5. Узел управления Установка системы П1. Схема системы теплоснабжения Установка систем В4; В5; В6 Конфузор Переход Воздуховод из асбестоцементных листов. Узлы соединения Конструкция изоляции перехода Конструкция изоляции трубопроводов Водопровод и канализация Общие данные План на отм. 0.000 План на отм. 3.600 в осях А - В; 1 - 5. Экспликация помещений План кровли Схема В1 Схемы Т3; Т4 и К1 Схема К2 |
| Разработан: | ЦНИИЭП инженерного оборудования |
| Утверждён: | 14.03.1986 Госгражданстрой (Gosgrazhdanstroy 88) |
| Заменяет собой: |













































